

Daria Fartadi-Scurtu
Architectural Technologist
I am a graduate architectural technologist with an energetic, ambitious, and detail-oriented approach for embracing challenges and working collaboratively across the field of architecture. I am looking for new opportunities as a newly graduated architectural technologist, in order to expand my knowledge and to work in a multidisciplinary environment. Interested in 3D modelling, architecture, sustainable building practicesand travelling.
Education
Jan. ‘22 Jun. ‘25
Experience KEA Copenhagen School of Design and Technology /Architectural Technology and Construction Management/
Aug. 24’ Jan. ’25 Constructing Architect Intern COBE Architects Copenhagen, Denmark
Gained hands-on experience in BIM modeling, Revit, and sustainable construction. Worked on a large-scale residential project, focusing on project coordination, technical detailing, and problemsolving. Developed skills in 3D modeling, construction documentation, and interdisciplinary collaboration.
Oct. ‘24 Jan. ‘25 Waitress Pincho Nation Copenhagen, Denmark
I developed strong customer service skills by guiding guests through the unique self-service concept, ensuring their needs are met, and maintaining a lively, welcoming atmosphere. I also improved my teamwork, time management, and adaptability by working in a fast-paced, fun, and vibrant environment.
May ‘23 Oct. ‘24 Sales Assistant
Zara Copenhagen, Denmark
Effectively communicating with customers, colleagues, and management to convey information about products, promotions, and policies. Collaborating with fellow sales assistants and other team members to achieve sales targets, handle busy periods, and ensure smooth store operations.
Mar. ‘22 Mar. ’23 Warehouse Assistant
Gorillas Copenhagen, Denmark
Pick and pack customers' orders in a short time. Ensure freshness, quality and accuracy regarding best before date of the products. Taking care of incoming shipments, full shelves, our storage and the cleanliness in the warehouse




2300 Copenhagen S, Denmark 52691719
fartadidaria@gmail.com
linkedin.com/in/daria-fartadi-scurtu
Workshops
Jan. ‘23
Brookfield Smart Sustainability Charette
George Brown College Toronto, Canada
Intensive, 5-day collaborative design process fostering inclusivity and innovation. Utilizes design thinking methodologies to tackle problems and envision collective futures.
Mar. ‘24
Circular Construction —Sustainable Use of Construction Materials
Salzburg University Salzburg, Austria
Working with international teams researching, discussing, and solving some of the big issues revolving around refurbishment and sustainability in the building industry.
Software Skills
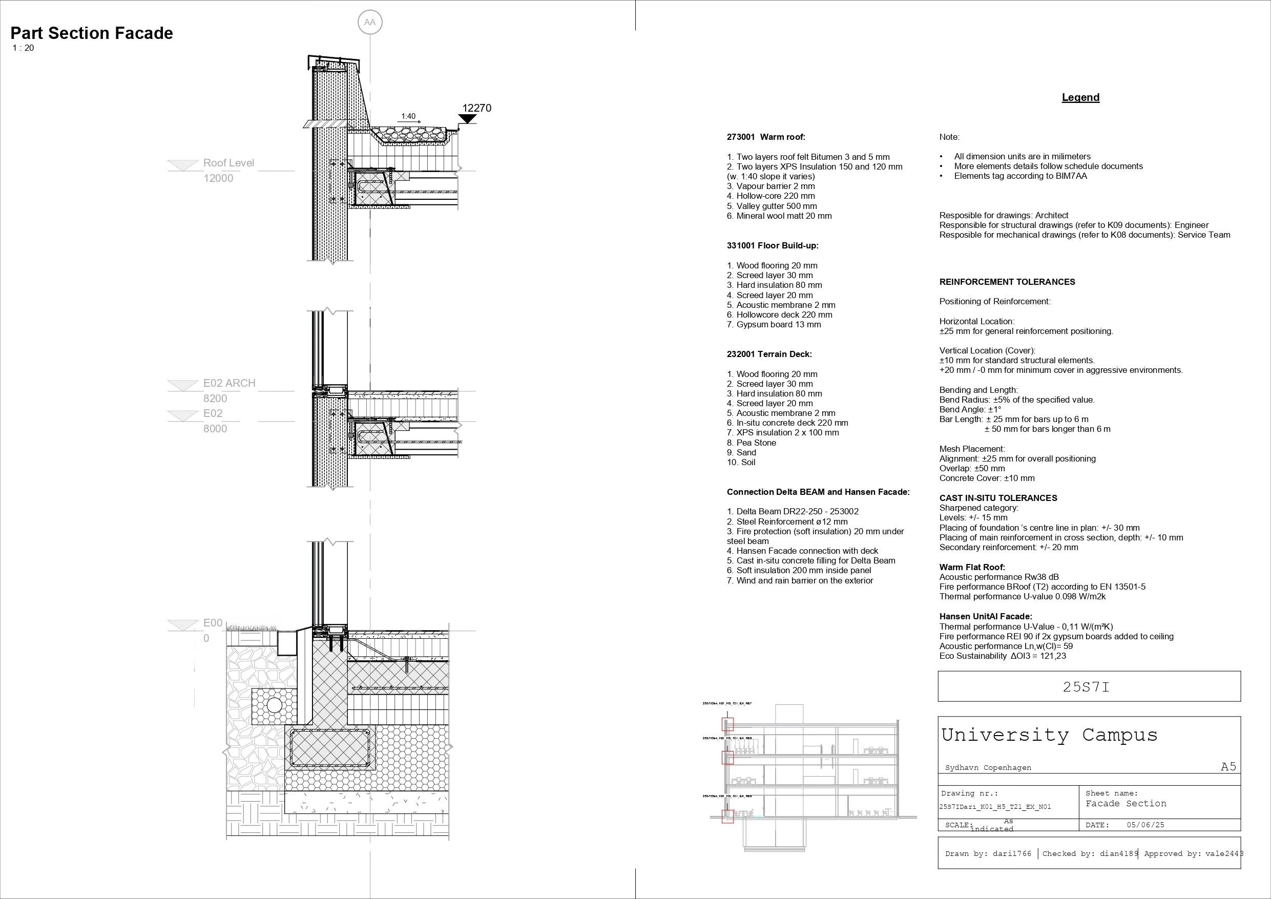
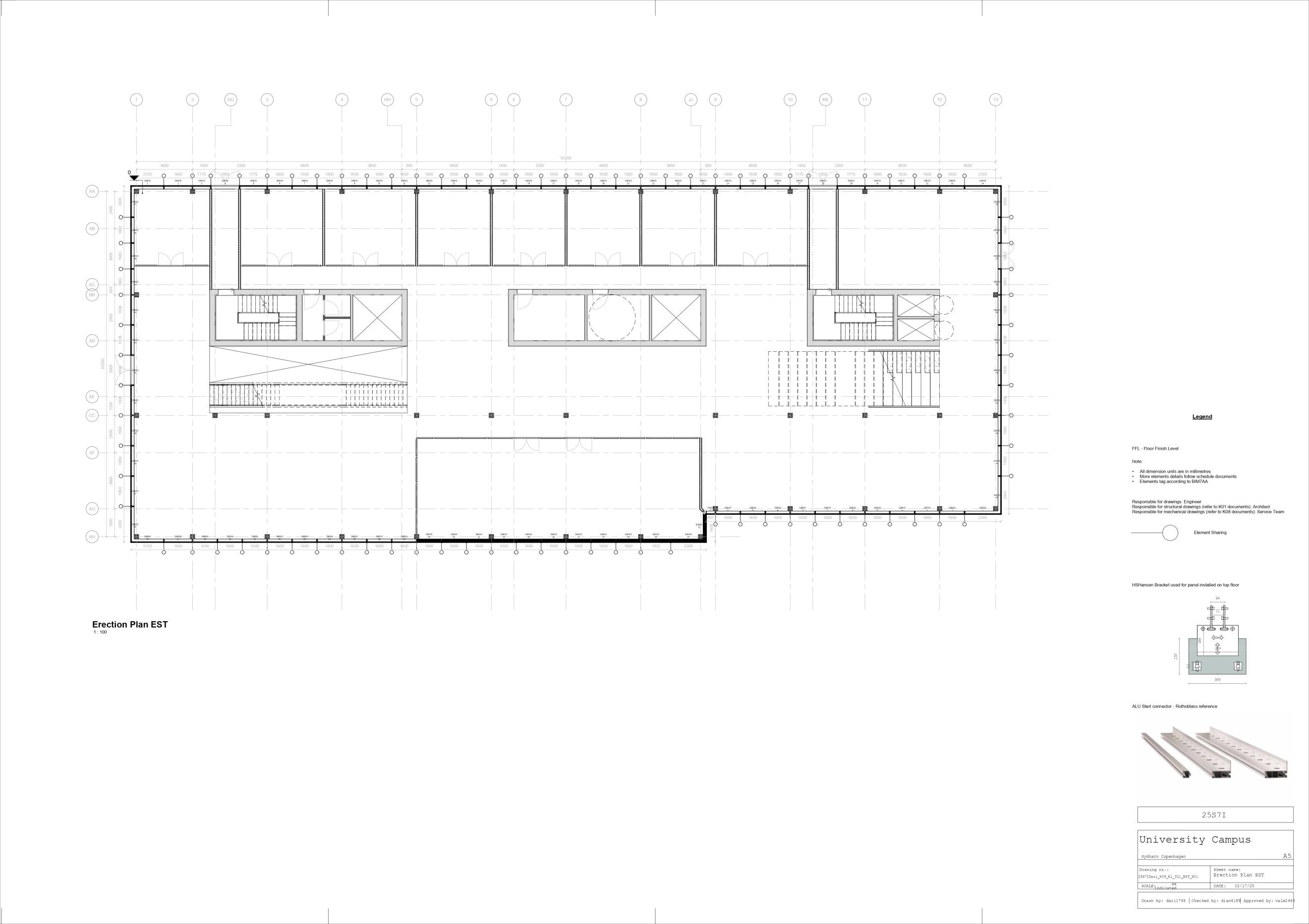
Bachelor Project — University Campus
A
Sydhavn,, structural The industry strategy,

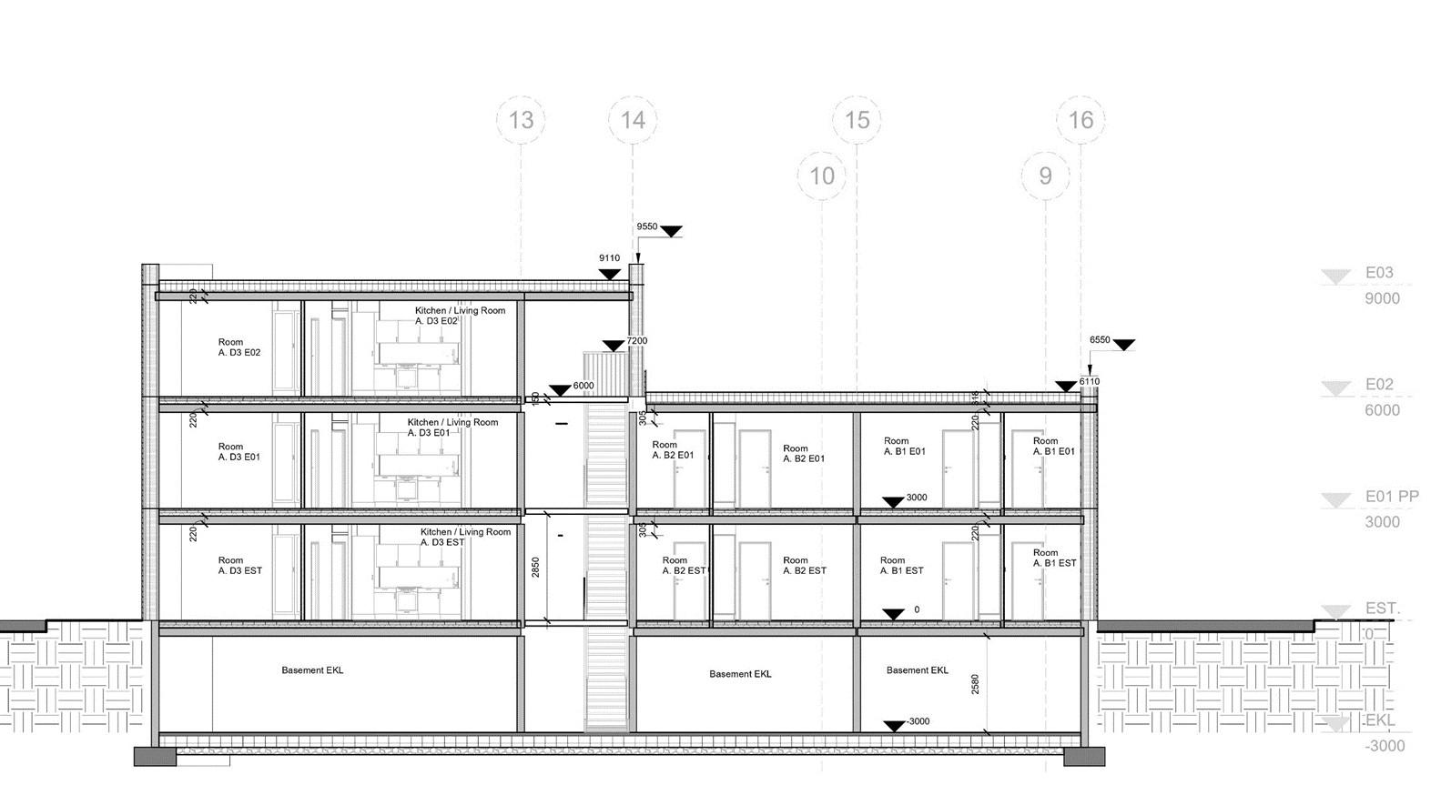
three-story university and office building including a small basement located in Sydhavn,, Copenhagen. The building features a curtain wall façade system and a structural frame of precast concrete columns, delta beams, and hollow core slabs. project applies Danish building regulations, dimensioning principles, and industry standards, while considering construction sequencing, procurement strategy,andbuildability.

01 Bachelor Project — University Campus


The given project was located concept which offices and shared students.
The initial project adjust it to be requirements load-bearing system, made out of and hollow core
The plot is in of the façade surrounding buildings so it had to match It has 3 storeys, storge. The campus made for recreational


3D representation

project from the internship company in Berlin, Germany. I kept the which is a university campus with shared spaces to work between
project had 6700 m2, but I had to be under 4000 m2, due to the from school. It has a concrete system, with a structural framing concrete columns, steel beams core system.
Sydhavn, Copenhagen, the finish façade is copper, because the buildings have a red colour finish, match the neighbourhood.
storeys, including a small basement for campus around the building is recreational purposes for students.


Deck Layout above First Floor


representation Structural Framing
3D representation Load-bearing Walla
01 Façade System

A result of an overall score of 63,2% - representing meet or exceed 300 lux for more than 50% of Design decisions Communicate the impact of space to stakeholders. Erection Plan Ground Floor


system, the building features a that maximizes daylight modern aesthetic. The system aluminium framing, ensuring compliance with Danish energy mullions are dimensioned for slender visual lines. Integrated enhance occupant comfort, streamlined installation and future


representing the of grid points that the hours.
of natural light on a building or






five-story renovation project situated in Frederiksberg, Copenhagen, with a concrete structure. Originally used as a Police Station, currently being used as a Student Innovation House. A key aspect of the design process was reimagining the basementspace,whichinvolvedextensivebrainstorming.


02 Student House Renovation to Culture Hub



In the beginning of the the project, that we analysed culture hub with a club in By analysing the project, to measure and recreate used a laser scanner to and outside the building. We were given the plans differences between the old The most changes we did Individual lation system ment. In I connected unit. The through

semester we were given analysed and transformed in a basement.
we had a few site visits the building in Revit. We scan all the areas inside
from the 1920’ to see the old and the new ones. did were in the basement.


Ventilation Plan Basement Individual Part

Demolition Plan basement
Individual part included designing the ventisystem for the club area in the baseIn the drawings you can see how connected the ducts with the ventilation The system goes to the attic and the roof outside.


A seven facade timber underground aesthetics, Design

seven-story timber office building in Amager, Copenhagen, featuring a curtain wall facade that floods the office space with natural light. Constructed primarily from timber for sustainability, it boasts high ceilings and a functional layout. Includes underground parking for convenience. A harmonious blend of sustainability, aesthetics,andfunctionality.

03 Design Offices Timber Construction



During the semester we designed a 7 storey office building which has working areas, a canteen on the ground floor, meeting rooms and an accessible green roof. Using IPD approach we identified the errors in the Scrutiny Project phase, which improved our overall progress.


Robot is one of the new Autodesk software's semester. We identified all the clashes simulation from two directions. 90% of intersect each other.

Ground
Ground Floor Plan




software's that we learnt during the fourth clashes in the structure and we made a wind of the clashes are structural elements that


Ceiling Plan
Ventilation Plan + 3D view
04 03Green Roof
My individual part was to model the green roof. Because it is a timber construction, different from the previous semesters, I learnt the build-up that applies into this situation. I also took care of the drainage system.

The detail drawing shows the drainage outlet going through the roof into the suspended ceiling.

Drainage Layout Plan

The detail drawing shows the connection between the curtain wall and the green roof on the terrace.









During the 6 weeks elective, we redesigned this old building located in Refshaleøen. We used Dynamo to model the facade and roof. Situated at the heart of Copenhagen on the vibrant peninsula, Refshalevej 147 embodies a strategic fusion of inspiration and challenge. Our design approach embraces the site's dynamic geography, harmonizing with its natural beauty and distinctive character.



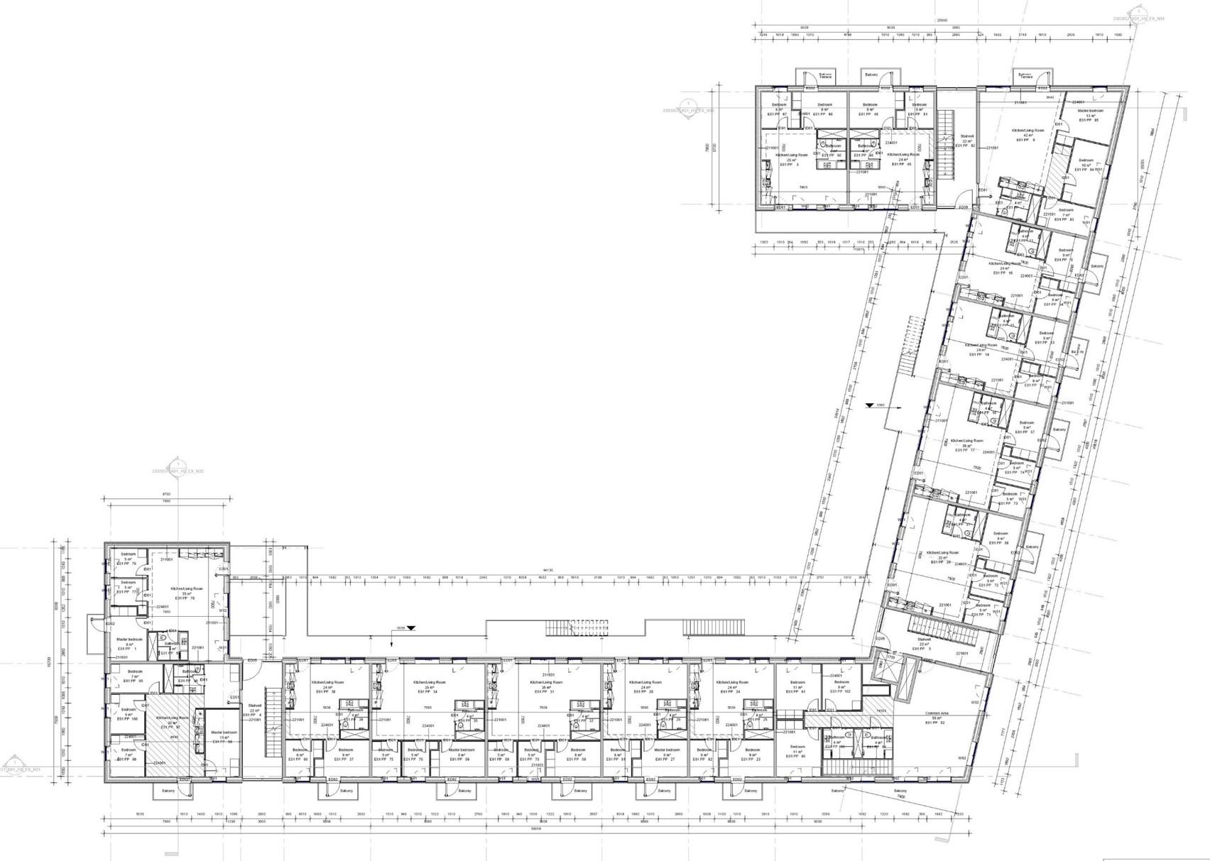
ECO Village Residential Building

A prefabricated apartments and relationships features residents'
prefabricated four-story residential ECO village in Aalborg Sundholm, featuring 48 apartments with common areas on the ground floor, a 50 storage room basement a communal terrace. Designed to foster community engagement and relationships among tenants while promoting sustainability through eco-friendly features and practices. A beacon of modern urban development, enhancing residents'qualityoflife.

05 ECO Village Residential Building

Throughout the 3rd semester we designed storey residential building, which provided by C.F. Møller Architects. semester we learnt about prefabricated elements. We designed the prefabricated bathroom pods, kitchens, staircases balconies. There are 4 types of from which 2 types were changing on the square meters and the edges





Construction Site Plan
designed a 4 is a project
Architects. During the prefabricated prefabricated staircases and apartments, changing depending edges of the








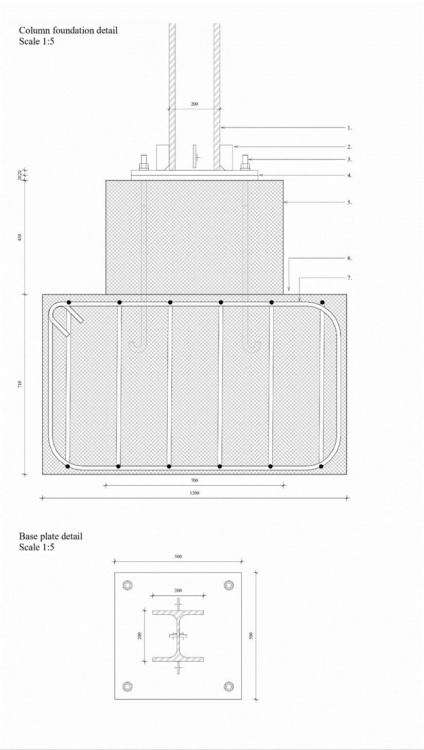
05 External Walkways
My individual focus in third semester was to design the external steel walkway. I decided to use HEB beams and JJ Anchor Bolts for the connection with foundation. I really enjoyed learning the steel tool in Revit and expanding my knowledge in working with steel.
On the right side it is displayed the connection between the stairs with foundation and column with foundation. Also the connection to the loadbearing structure which is welded.










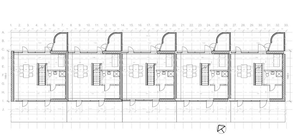
Row Houses
Five modern row houses in the peaceful area of Islands Brygge, Copenhagen, featuring two stories with green roofs and private terraces. Situated in a beautiful waterfront area, these residences offer a harmonious blend of urban convenience and natural tranquillity. Exemplifying modern design and environmental consciousness, they provide residents with an unique living experience.







For my individual part in the second semester, I developed the external walls. The first detail drawing shows the connection between the brick wall and metal steel wall, whereas the second drawing shows the connection with the window and the brick wall.
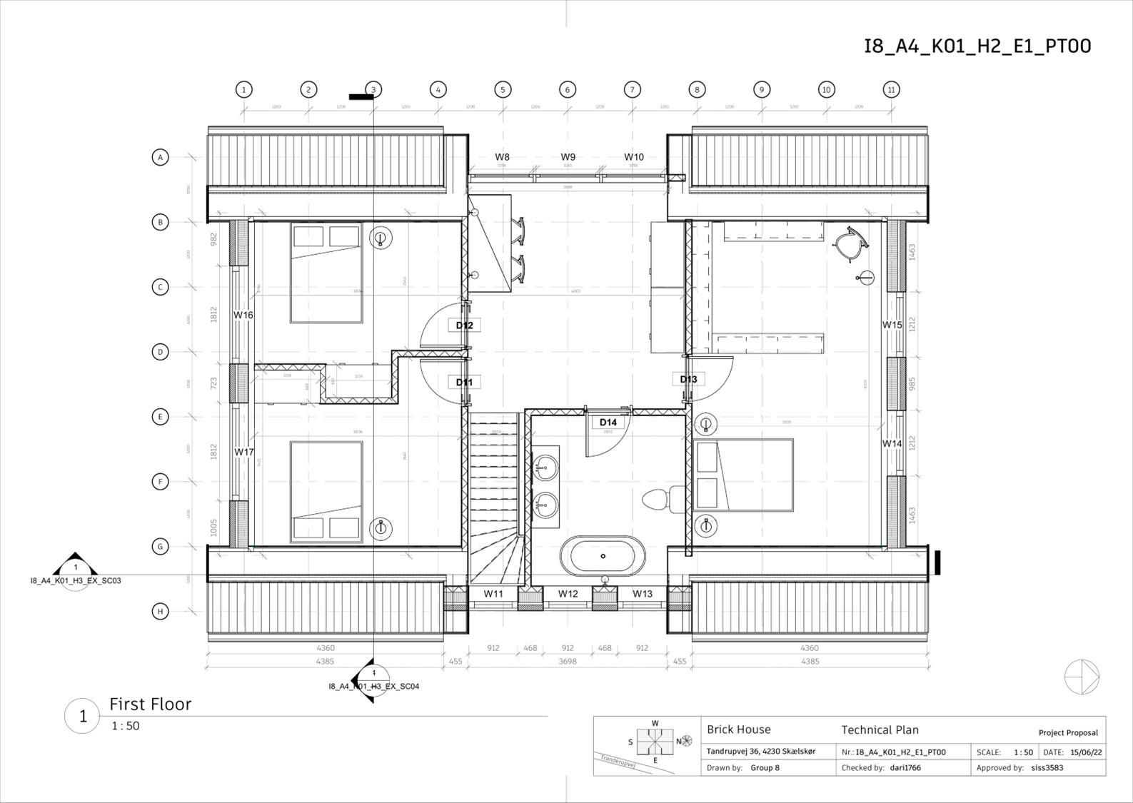
Single Family House
First semester project showcases a two-story Single Family House in Skælskør, Denmark, crafted from enduring brick. With three bedrooms, two bathrooms, and shared common spaces, the residence harmonizes functionality with comfort for modern family living. Its timeless design reflects Danish architectural tradition, blending durability with contemporary elegance.





In the first semester we redesigned a family house. We went through the Outline Proposal, Project Proposal and Documentation Phases. We learnt the basics in Revit and how to make a 3D representation of a detail drawing.

LightStanza — Daylight Design 09
In the 3D model, the basement is visible. There is no daylight penetration in the basement, so that results in using artificial light for the hole area.
We fulfilled the requirements of achieving 300 lux in at least half of the room (the relevant floor area) for at least half of the daylight hours.


By using LightStanza I analysed how much daylight penetrates through the curtain walls .
On the left side is the Ground Floor plan and on the right side is the Fifth Floor plan.
We can see the difference between the daylight penetration in the building.
The overall score for the Spatial Daylight Autonomy is 55,65%.



Sustainability Charette 10
During my third semester, I participated at the annual Brookfield Smart Sustainability Charette in Toronto, Canada. Throughout 5 days of working in groups, we had to develop a project with the subject The future of work. Our question was: How can we create a sustainable and flexible collaborative ecosystem for in-person and remote workers, clients, and the local community that prioritizes well-being and is future-focused?


On the right side there are 3 visions on the different spaces in the office, Green Areas, Modular Systems and Creative Spaces.


We created an app where you can schedule your office needs. It features a blockchain system, AI multi-cloud system, booking system, artificial intelligence and VR/AR space system.




Professional Work Experience 01 11
Project
Meadow — Cobe Architects
Project Description
”The project will focus on addressing the need for housing to be accessible Copenhagen. It will include up to 1,000 large and small rental apartments dominiums, and more than 25% of the total housing area will be designed housing. The ambition is to use biogenic materials wherever possible wood for structures. All buildings will target DGNB platinum certification constructed to align with the Reduction Roadmap initiative, that translates ciples of the Paris Agreement and the Planetary Boundary for Climate CO2 reduction targets for new Danish housing projects.” (CobeArchitects)
My Contribution
Part of a 9 members team, I worked on this project for 4 months during phase of the project.
Key responsibilities:
- set up and maintained the Revit model, including grids, levels and worksets
- created and updated 2D/ 3D standard construction journal with different build-up
- organized drawing sheets with BIM7AA
- modeled complex elements such as slanted walls, roofs, prefabricated and staircase cores
- collaborated with team members and participating in meetings
Tools and skills used: Autodesk Revit, Excel, BIM7AA standards, team 3D modeling.
* Render courtesy of Cobe (Due to confidentiality agreements more work examples

accessible to all in apartments and condesigned as social possible – including certification and be translates the prinClimate Change into Architects) during the design worksets different elements prefabricated bathrooms collaboration,

Professional Work Experience 02 11
Regent Park Building 4A — Cobe Architects
Project Description
The project is a high-rise prefabricated residential building located Canada. It is part of a bigger masterplan which is looking to redevelop neighbourhood of the city, and to create a close community with outdoor the roof for the residents to use. The residential building is a close between Cobe Architects and a local firm called A& Architects. As project, Cobe was in charge for a number of rooms to be designed in such as: lobby, elevator corridor, amenity areas for the residents etc.
My Contribution
Part of a 5 members team, I worked on this project for 1 month during phase of the project.
Key responsibilities:
- set up and maintained the Revit model
- collaborated with the architects from Toronto
- BIM coordination, as they were working with ArchiCAD
- draw plans, elevations, sections for the different rooms we designed
- modeled elements such as walls, floors, placing furniture
- created sheets and organized the model
- collaborated with team members and participating in meetings
Tools and skills used: Autodesk Revit, team collaboration, 3D modeling.
* Render courtesy of Cobe (Due to confidentiality agreements more work examples

Architects located in Toronto, redevelop Regent Park outdoor areas on collaboration
As part of the in the building, during the design





2300CopenhagenS,Denmark 52691719
fartadidaria@gmail.com
linkedin.com/in/daria-fartadi-scurtu