Skip to main content

Portafolio Danna Bernal (Español)

Page 1

DANNA BERNAL

Portafolio

Perfil profesional

Arquitecta proyectista con 5 años de experiencia en el desarrollo, coordinación y producción de proyectos de diseño interior para espacios comerciales y turísticos. Con conocimiento y manejo de los programas y herramientas enfocadas en el área. Interesada en ampliar mi experiencia laboral en el diseño arquitectónico y planteamiento a escala urbana.

Con interés en la arquitectura patrimonial, intervenciones y los aspectos culturales que giran entorno a este tema.

Proyecto Efimerus 12B

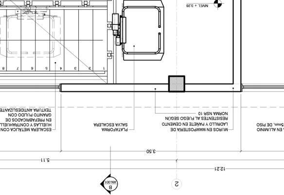
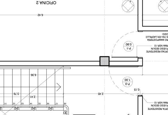
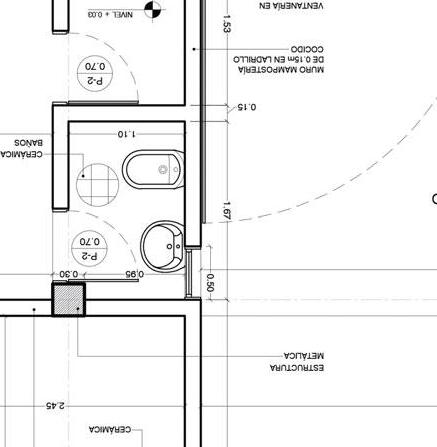
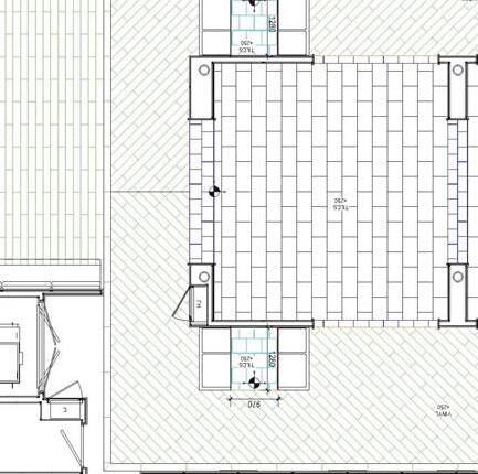
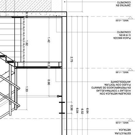
Planimetría técnica y detallada de un protectio de interveción patrimonial en Bogota, apoyando de el diseño arquitectónico, valorización y caracterizacion del patrimonio.

Planteamiento conceptual

Levantamiento arquitectónico

Sección A-A’
Sección B-B’
Planta primer pisoPlanta segundo piso

Planos de redes eléctricas y de comunicación

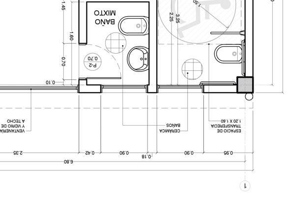
Proyecto residencial Macarena

Casa tipo 1 Primer piso Plano eléctrico Casa tipo 1 Primer piso Modelo eléctrico

Planimetría en AutoCAD y Revit de acuerdo a las normas, creando dibujo 2D y modelo 3D de redes e instalaciones eléctricas, comunicaciones y SIPRA de edificios residenciales.

Casa tipo 1 Segundo piso Plano eléctrico Casa tipo 1 Segundo piso Modelo eléctrico

Casa tipo 1

Primer piso

Plano de comunicaciones

Casa tipo 1

Primer piso

Modelo de comunicaciones

Casa tipo 1

Segundo piso

Plano de comunicaciones

Casa tipo 1

Segundo piso

Modelo de comunicaciones

Suite tipo 1 Plano y modelo

eléctrico
Plano
eléctrico
Suite tipo 10
y modelo
Edificio
Arezzo 120 Bogotá
tipo 16
Suite Plano y modelo
eléctrico
Suite tipo 18 Plano y modelo eléctrico

Apantallamiento (SIPRA)

Cruceros

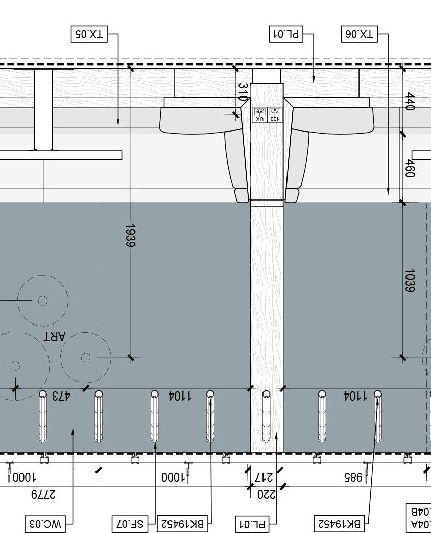
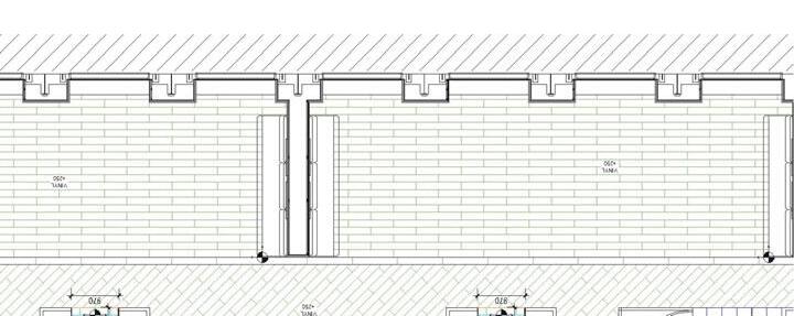
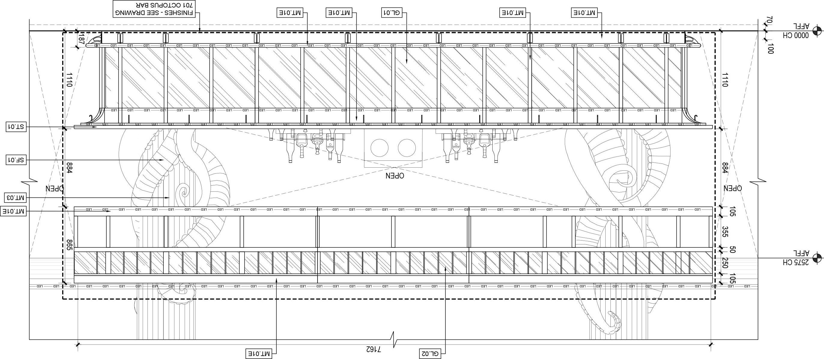
Planos de diseño interior, construcción, demolición e instalaciones de áreas públicas y privadas como cabinas, restaurantes, bares y comercio además de detalles constructivos y de mobiliario.

Barco Arvia-Dining (“The Olive grove” y “6th Street Diner”)

Planta arquitectónica

Planta de acabados de piso

del Dining del Barco Arvia en 360°:
Zonas
https://www.pocruises.com/cruise-ships/arvia/dining
Planta de cielo raso

https://www.carnival.com/cruise-ships/carnival-jubilee#zones

Barco Carnival Jubilee- Áreas Esplanade & Retail (Elevaciones) Renders
de áreas del barco Carnival Jubilee:

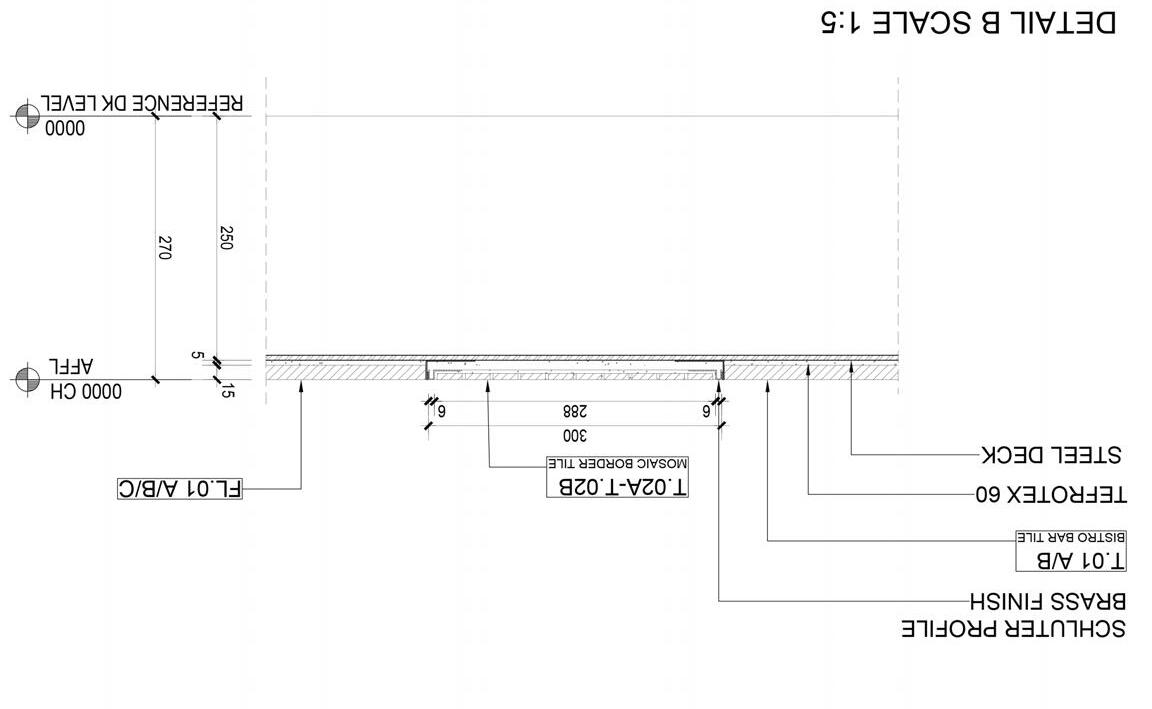
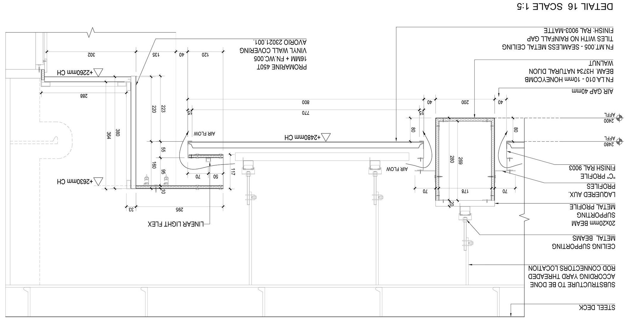
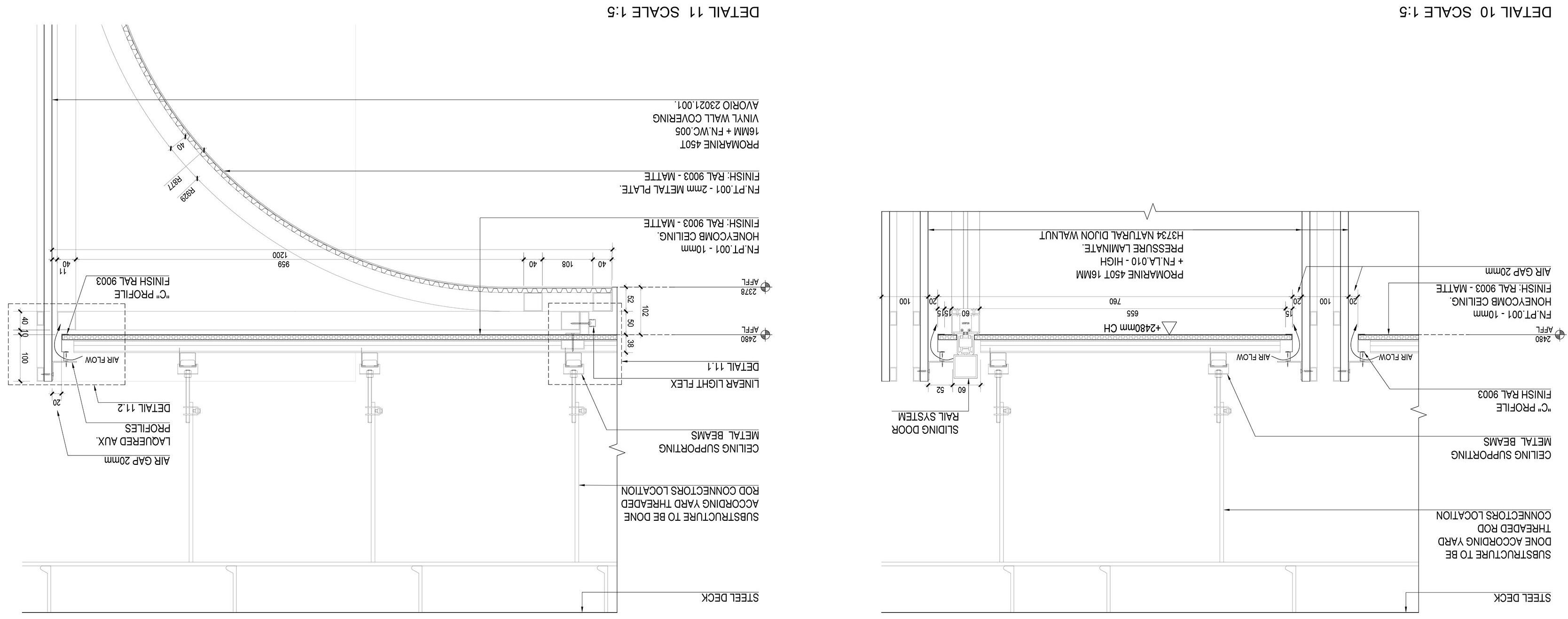
Detalles constructivos

Detalles de cielo raso

Detalles de piso
L 20 L 21 L 22 L 23 L 24 L 25 L 26 L 27 L 28 L 29 L 30 59 58 57 56 60 CATERING EQUIPMENT BY OTHERS LOCKABLE CABINET/TBC 112 113 111 400 SLIDING DOOR GUTTERWAY 600 1150 3000 850 1000 1000 800 1000 1200 100 5000 100 1382 1125 583 1346 563 1000 950 1000 920 750 250 SLIDING DOOR TO GALLEY 0000 AFFL 2300 AFFL 400 CEILING LINE 200 114 FINISH FLOOR 200 115 301 114 3MM CORNER PROFILE TO MATCH L-PROFILE ATTACHED TO PANEL BESIDE SERVICE HATCH 300 L 20 L 21 L 22 L 23 L 24 L 25 L 26 L 27 L 28 L 29 100 1150 800 100 100 20 720 60 1200 100 100 100 150 442 330 1050 3000 950 0000 AFFL 2300 AFFL 400 CEILING LINE FINISH FLOOR 121 114 301 SNEEZE GUARD ROUND WARMER WELLS CONTROLLER CERAMIC HEATING PLATE ITEM 1720104-1720103 ROUND WARMER PLATE WELLS SS10TDUI ITEM 1720102 COLD BASIN FOR 3 GN 1/1 DECORATIVE TOP REMOVABLE CONTROL PANELFIXED WITH SCREWS L 21 L 22 L 23 L 24 L 25 L 26 L 27 L 28 L 29 100 1300 40 275 435 50 100 900 2100 100 100 150 615 135 150 435 275 442 330 402 1677 1677 1245 3353 1000 1000 800 1000 1200 ACCESIBLE TECHNICAL SPACE NEUTRAL CABINET WITH DOOR ADJUSTABLE AND REMOVABLE SHELF 0000 AFFL 2300 AFFL 400 200 114 301 DECORATIVE SLATS 115 STAINLESS STEEL FOUNDATION CEILING LINE FINISH FLOOR 121 400 215 114 3MM CORNER PROFILE TO MATCH DECORATIVE TOP 100 740 60 900 150 1150 330 970 100 120 740 90 40 275 435 30 0000 AFFL 2300 AFFL 400 301 CEILING LINE FINISH FLOOR 215 200 114 DECORATIVE SLATS 115 SLIDING DOORS TO GALLERY 301 215 LOCKABLE CABINET LOCKABLE CABINET DECORATIVE TOP SNEEZE GUARD TECHNICAL SPACE ROUND WARMER 121 100 740 60 150 1150 100 900 2100 2110 40 30 435 275 STAINLESS STEEL FOUNDATION 0000 AFFL 2300 AFFL 400 301 CEILING LINE FINISH FLOOR 215 200 114 DECORATIVE SLATS 115 SLIDING DOORS TO GALLERY 301 121 215 LOCKABLE CABINET LOCKABLE CABINET DECORATIVE TOP NEUTRAL CABINET WITH DOOR ADJUSTABLE AND REMOVABLE SHELF 100 740 60 150 1150 100 900 2100 2110 50 615 95 STAINLESS STEEL FOUNDATION ACCESIBLE TECHNICAL SPACE NEUTRAL CABINET WITH DOOR ADJUSTABLE AND REMOVABLE SHELF 115 L-PROFILE ATTACHED TO PANEL BESIDE SERVICE HATCH DECORATIVE SLATS 200 114 DECORATIVE TOP 400 SNEEZE GUARD HEATING LAMP CERAMIC HEATING PLATE ITEM 1720104-1720103 SKIRTING 121 STAINLESS STEEL FOUNDATION 60 720 20 100 10 40 730 140 660 47 30 100 671 194 651 21 192 120 740 40 900 45 190 40 435 30 20 330 442 750 TECHNICAL SPACE 0000 AFFL 121 L-PROFILE ATTACHED TO PANEL BESIDE SERVICE HATCH DECORATIVE SLATS 200 114 DECORATIVE TOP 400 SKIRTING SNEEZE GUARD LED LIGHT ROUND WARMER PLATE WELLS SS10TDUI ITEM 1720102 900 60 720 20 100 10 40 730 740 40 275 435 30 20 140 660 50 30 120 100 705 531 330 750 STAINLESS STEEL FOUNDATION 1:20M PLAN VIEW 14 SEC-A 1 ELEV 2 ELEV 5 SEC-B 6 SEC-C DET 8 14 4 SEC-A 5 SEC-B 6 SEC-C DET 4 10 14 DET 1:20M ELEVATION 1 25 SEC-B 6 SEC-C 1:20M SECTION A 44 SEC-A 2 ELEV 1ELEV DET 1 7 1:20M ELEVATION 2 31:20M SECTION B 51 ELEV 2ELEV DET 2 8 1:20M SECTION C 61 ELEV 2ELEV DET 3 9 DET 6 12 DET 7 13 DET 7 13 1:10M DETAIL 1 711 DET 1:10M DETAIL 2 8DET 9 15
de carpintería/Dibujos
Detalles
de taller
NEUTRAL CABINET WITH DOOR ADJUSTABLE AND REMOVABLE SHELF 0000 AFFL 115 L-PROFILE ATTACHED TO PANEL BESIDE SERVICE HATCH DECORATIVE SLATS 200 114 DECORATIVE TOP 400 900 60 720 20 100 10 40 730 740 40 95 615 30 20 140 660 920 140 730 50 50 30 120 100 671 283 651 21 283 588 750 STAINLESS STEEL FOUNDATION DECORATIVE SLATS 200 114 L-PROFILE ATTACHED TO PANEL BESIDE SERVICE HATCH 115 730 20 20 23 12 32 30 70 20 90 61 46 50 734 20 115° 115° NATURALI COLLECTION OLMO LEONE SBIANCATO 5017 SW 200 TO BE MATCHED TO CHEMETAL #721 OILED BRONZE ALUMINIUM 114 NATURALI COLLECTION OLMO LEONE SBIANCATO 5017 SW 200 TO BE MATCHED TO CHEMETAL #721 OILED BRONZE ALUMINIUM 114 UPPER END LOWER END 70 10 20 25 61 46 70 20 MVW LEVELLING COMPOUND MVW VISCO ELASTIC DAMPING LAYER GLUE STIKATAC STK 950 GROUT NATURALI COLLECTION OLMO LEONE SBIANCATO 5017 SW 200 121 FERRARI PRECONTRAINT FABRIC 1302 8626 S2 BLANC, BACK PVDF 111 NEXO COLLECTION BLANCO RELIEVE, R11 TILE SIZE 150 150 mm (THICKNESS: 10 mm) 115 PAINT TO MATCH #114 MEDIUM OIL BRONZE METAL PAINT 315 E3 HAMMER LACQUER QUALITY FINISH STEEL DECK 3 mm STAINLESS STEEL FOUNDATION Z-BRACKET SLOT INTO L PROFILE L-PROFILE ATTACHED TO PANEL BESIDE SERVICE HATCH 10 20 100 20 20 20 60 20 140 2 8 12 1 R5 R5 NATURALI COLLECTION OLMO LEONE SBIANCATO 5017 SW 200 BIANCHI PALISSANDRO 10 mm GLOSSY & ATURAL PORCELAIN STONEWARE FINISH 400 R5 WOOD STRUCTURE FOR FAUX MARBLE CERAMIC HEATING PLATE ITEM R5 60 10 20 20 20 35 45 20 25 8 6 40 10 30 10 40 50 10 ALU MARTELÉ BRONZETON 807/970 TO MEET USPH AVAILABLE SHEET SIZES: 2440x1220 or 3050x1220 mm 215 CORNER CONNECTORS WITH T-BAR, HEAD 3MM ALU MARTELÉ BRONZETON 807/970 TO MEET USPH AVAILABLE SHEET SIZES: 2440x1220 or 3050x1220 mm 215 ULTRA MARMI COLLECTION 6 mm THICK. BIANCO COVELANO, POLISHED FINISH 400 3 3 20 60 20 6 20 60 100 2300 AFFL 301 CEILING LINE NCS 0603 Y20R SEMI GLOSSY FINISH SOLID WOOD 300 SEAMLESS 90 6 100 1:10M DETAIL 3 9 - 1:5M DETAIL 4 10 - 1:2M DETAIL 5 1111 DET 11 DET 1:2M DETAIL 6 121:2M DETAIL 7 13 - 1:2M DETAIL 8 14 - 1:2M DETAIL 9 15 -
806 SOAP DISPENSER SENSOR 809 WASTE COLLAR 807 PAPER TOWEL DISPENSER 805 FAUCET NON-CONTACT SENSOR HOLLOW SECTION HOLLOW SECTION HOLLOW SECTION 507 558 558 507 90 1950 90 708 155 403 155 709 100 2130 100 416 140 590 20 100 20 FINISH FLOOR 808 416 121 114 200 PAPER TOWEL BIN OPENING FOR WASTE BIN 200 200 807 PAPER TOWEL WALL MOUNTED 114 114 806 SOAP DISPENSER SENSOR 805 FAUCET NON-CONTACT SENSOR 2130 457 100 458 100 458 100 457 120 230 470 150 270 880 200 CEILING LINE 50 50 100 100 0000 AFFL 2200 AFFL HOLLOW SECTION HOLLOW SECTION HOLLOW SECTION L17 L18 L19 L20 L21 LOCK (SEE REF. IMAGE E) LOCK LOCK LOCK LOCK LOCK LOCK LOCK 230 475 145 270 880 200 120 110 20 220 10 350 14 276 20 280 10 280 10 281 20 160 140 310 280 590 440 WHITE PAINTED SURFACE INSIDE BOX OPEN 200 416 805 FAUCET NON-CONTACT SENSOR SINK 200 121 200 FINISH FLOOR CEILING LINE 0000 AFFL 2200 AFFL 130 100 578 290 280 HOLLOW SECTION 358359 360 LED LIGHTING STRIP E525 WITH DIFUSER CONCEALED HINGE (SEE REF. IMAGE-B) SHELF SUPPORT PIN (SEE REF. IMAGE-C) 4 SEC-A SEC-B 1 ELEV 1:10M VIEW PLAN 1SEC-B 4 SEC-A 1:10M ELEVATION 1 3 - 1:10M SECTION A 4NTS PERSPECTIVE 2DET 2 7 DET 4 9 DET 3 8 DET 1 6 1ELEV DET 5 10 10 DET
230 475 145 270 880 200 120 110 20 220 10 350 14 276 20 280 10 280 10 281 20 160 140 310 280 590 440 WHITE PAINTED SURFACE INSIDE BOX OPEN 200 416 805 FAUCET NON-CONTACT SENSOR SINK 200 121 200 FINISH FLOOR CEILING LINE 0000 AFFL 2200 AFFL 808 WASTE BIN 809 WASTE COLLAR 130 100 120 578 290 280 HOLLOW SECTION 358359 360 LED LIGHTING STRIP E525 WITH DIFUSER CONCEALED HINGE (SEE REF. IMAGE-B) SHELF SUPPORT PIN (SEE REF. IMAGE-C) 310 10 275 285 20 40 10 30 10 SOFT-CLOSING RUNNER SYSTEM (SEE REF. IMAGE F) NATURALI COLLECTION OLMO LEONE SBIANCATO 5017 SW 200 WASTE BIN DRAWER SHELF 25 X 25 BRACKET SUPPORT NATURALI COLLECTION OLMO LEONE SBIANCATO 5017 SW 200 WHITE PAINTED SURFACE INSIDE BOX 2200 AFFL CEILING LINE 25 X 25 BRACKET SUPPORT DIFFUSER GLASS 420 32 356 32 76 EQ EQ 76 412 GLASS SUPPORT 16X8.3mm (SEE REF. IMAGE A) 20 180 120 160 LED LIGHTING STRIP E525 (SEE REF. IMAGE A) 20 8 NATURALI COLLECTION OLMO LEONE SBIANCATO 5017 SW 200 121 FERRARI PRECONTRAINT FABRIC 1302 8626 S2 BLANC, BACK PVDF 111 NEXO COLLECTION BLANCO RELIEVE, R11 TILE SIZE 150 150 mm (THICKNESS: 10 mm) 15 10 120 MVW LEVELLING COMPOUND MVW VISCO ELASTIC DAMPING LAYER GLUE STIKATAC STK 950 GROUT STEEL DECK 2 2 29 NATURALI COLLECTION OLMO LEONE SBIANCATO 5017 SW 338 350 145 70 100 158 270 350 354 24 10 R5 R5 R5 25 X 25 BRACKET SUPPORT 416 ACRYLIC STONE 12 mm WIDTHCORIAN WHITE ONYX 200 805 FAUCET NO-CONTACT SENSOR 121 100 HOLLOW SECTION R10 200 CORNER CONNECTORS WITH T-BAR, HEAD 3MM LAMINATE NATURALI COLLECTION OLMO LEONE SBIANCATO 5017 SW 200 25 50 25 25 50 100 3 3 LAMINATE NATURALI COLLECTION OLMO LEONE SBIANCATO 5017 SW 1:2M DETAIL 4 91:5M DETAIL 1 61:10M SECTION B 51:2M DETAIL 3 81:5M DETAIL 2 7 - 1:2M DETAIL 5 10DET 2 7 DET 4 9 DET 3 8 DET 1 6 1ELEV
CONTACTO Correo dannac.bernalc@gmail.com Teléfono +57 300 554 9038 LinkedIn https://www.linkedin.com/in/danna-bernal/

Turn static files into dynamic content formats.

Create a flipbook