Danny Nolan Selected Works 2023

Page 1

PORTFOLIO PORTFOLIO

DANNY NOLAN SELECTED WORKS 2018 - 2023

dannynolan.work

2 CONTENTS SELECTED WORKS 20182023 DANNY NOLAN CONTENTS 01 SUPERORGANISM 02 RACE TO ZERO 03 THE DISTRICTS 04 BIO BUFFER 05 VIRAL, thesis 06 PROFESSIONAL WORK 4 20 28 36 46 62
3

SUPER ORGANISM

01

UNIVERSITY OF OREGON, PORTLAND, OREGON FALL 2020 STUDIO, ONLINE

a futuristic take on the traditional office building

What if our work and home life were symbiotic? Mutually beneficial? What if the office could grow and adapt, bend and twist like all organisms on the planet and achieve resiliency? Through this seamless integration, could our work become so fruitful, the human race would see an acceleration of development without sacrificing core values revolving around our home, social life, and mental health? Could it become this “SUPERORGANISM?” A new contemporary take on office life rooted in the radical architecture movement, this mega office block symbiotically combines programmatic elements to create a “SUPERORGANISM.” Located in Portland, Oregon, this office building considers all the lessons learned for a (fingers crossed) post-COVID era including adequate space for social distancing, contactless food delivery drop off areas, and satisfactory access to outdoor spaces for added ventilation. Other programmatic areas to assist office work include maker spaces, various seating and working typologies, a fitness center, foodstalls, and a gregarious amount of plants. “SUPERORGANISM” seeks to create an understanding of how work and life can flow together as one not only though physical structure, but the creation of these integrated spaces through light, color, and program.

4
NOLAN ARCHITECTURAL DESIGN SELECTED WORKS 20182023
DANNY
5

BUILDING BLOCKS & ORDER

MASSING PROCESS

Inspired by the radical content of Superstudio and posing the question of what life looks like after the ambitions of Superstudio are achieved, these building blocks are merged and mutated with a tensile rhetoric of the rigidity of the workplace and fluidity of personal life. The unification of organic and inorganic create a provocative composition, representative of how personal life and work life can reach equilibrium.

6
1. 3. 2.
MUTATION
4.
SYMBIOSIS
FACADE INTEGRATION

AXONOMETRIC

In the context of Portland, Oregon, the massing resists the vernacular and demands attention from those on the street, desiring to be seen. While the building is monolithic in its size, the twists, bends, and curves add a level of intricacy to break up the overall form and providing outdoor spaces, reducing it to a singular entity.

7

Welcoming visitors, guests, or individuals seeking a place to work, the ground floor lobby and food hall contains a variety of seating typologies for dining, informal meetings, waiting, and welcoming. Gender neutral restroom design increases stalls per square foot and temperature controlled lockers near reception allow for simple contactless food delivery.

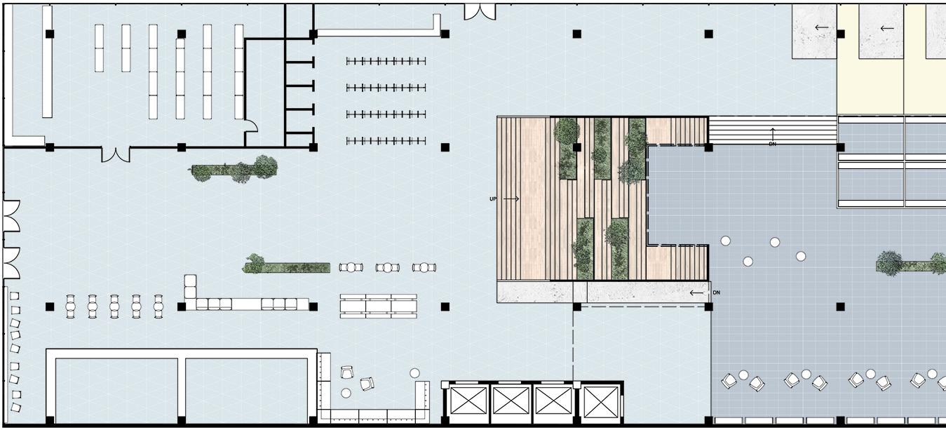
8 SE ASH ST. SE GRAND AVE. N 1 3 4 5 6 9 8 7 10 11 13 12 2
GROUND FLOOR
25’ 0’ 50’ 100’ * V ENTRY

GROUND FLOOR (left)

1. OUTDOOR SEATING

2. MULTIPURPOSE OUTDOOR SPACE

3. BACK OF HOUSE / LOADING

4. DINING SEATING, bar height, group tables, single tables

5. DINING SEATING, single tables, picnic style seating

6. FOODSTALLS 4 & 5: Afuri Ramen, Stretch the Noodle

7. FOODSTALLS 1, 2, & 3: Killer Burger, AkaPDX, Bamboo Sushi

8. CONTACTLESS FOOD DELIVERY LOCKERS: UberEats, DoorDash, PostMates

9. RECEPTION, directory, check ins, general information

10. LOBBY SEATING 1, casual, formal, waiting for a friend or meeting

11. FOODSTALLS 6 & 7: Good Coffee, Sweetgreen

12. DINING SEATING, single tables, booths, bar height

13. LOBBY SEATING 2, larger group, collaboration

PERSPECTIVE VIEWS

“TOY MODEL” SW CORNER

The main entrance, located at the base right hand side of this graphic, cascades across the entire vertical of the building and creates a smooth transition from the streetscape. These curves, openings, and edges are all met at different places across form and delicately at the ground plane. Vegetation at exposed points soften the composition and add a level of familiarity.

* V N 9

GROUND FLOOR FOOD HALL, SEATING & CIRCULATION

Various seating typologies in the lobby and food hall allow for people to do work, interact, or relax during their day, or take a break when needed. The multicolored dichroic glass façade distorts light entering the building, creating different micro colorful environments and atmospheres across the interior landscape, saturating, highlighting, and lowlighting different areas.

10
11

SECOND FLOOR

The second floor includes a variety of makerspaces to cater to any organization or company’s needs and this floor is also where several coworking spaces start to evolve. From prototyping and plotting to woodworking to phone calls and informal meetings, a superfluity of work can be accomplished across these generative and stimulating spaces.

12 SE ASH ST. SE GRAND AVE. N 1 3 4 5 6 9 8 7 10 11 13 14 12 2
25’ 0’ 50’ 100’ OPEN TO BELOW * V

SECOND FLOOR (left)

1. WORKSTATIONS, individual work

2. BOOTH SETING, group or individual work

3. KITCHEN, breaks, snacks, meals, pick me ups

4. LOUNGE LANDSCAPE, recharging, informal meetings, breaks

5. PHONE BOOTHS, individual work

6. WORKSTATIONS, individual work

7. HUDDLE SPACES, medium collaboration work

8. RAPID PROTOTYPING, vinyl cutters, laser cutters, 3D printers, CAD software

9. CNC SHOP, shopbot PRSAlpha

10. WOODSHOP, joiner, band saw, table saw, chop saw, drill press, hand tools, work tables

11. OUTPUT ROOM, printers, plotter

12. ART STUDIO, painting, ceramic arts, coloring, arts and crafts

13. MACHINE SHOP, mill, band saws, metal shear

14. FOCUS CHAIRS, individual work

PERSPECTIVE VIEWS

MAKER SPACES

The assortment of maker spaces provides collaboration across different populations of people, companies, and disciplines. Providing these resources in an open office setting allows for these various groups to learn from each other and produce advantageous methods of representation for client meetings, presentations, and other office related spectacles.

* * * V 13

THIRD FLOOR

The third floor, where the magic happens, consists of conference rooms, a fitness center, and a large coworking area or “focus forest.” Curves formulated from the biology of the building shape and form contour this space, surrounded by plants, to ensure a productive work environment. With seating typologies for large, medium, and small group work to individual work, any level of collaboration can thrive on this floor.

14 25’ 0’ 50’ 100’ SE ASH ST.
N
SE GRAND AVE.
1 3 4 5 5 5 6 8 7 2 * V

THIRD FLOOR (left)

1. FITNESS CENTER, well being, health, lifestyle, weights & machines, yoga studio

2. LOCKER ROOMS

3. PHONE BOOTHS, individual work

4. CONCENTRATION TABLES, small group work, individual work

5. CONFERENCE ROOMS, medium group work, large group work, formal meetings

6. TEAM TABLES, medium group work, individual work, informal meetings

7. COLLABORATION STATIONS, medium group work

8. FOCUS CHAIRS, individual, semi-private work

PERSPECTIVE VIEWS

“TOY MODEL” NE CORNER

From this corner of SUPERORGANISM, a lot of the chunks and shapes are sort of synchronized with each other, as if they grew off from the previous and have merged together, synthesizing the concept that work and personal life can grow together. Some of these aspects can merge while others might stay distant and within their own element.

* V 15 N

THIRD FLOOR FOCUS FOREST & TEAM TABLES

The vegetation adds a layer of camouflage and provides shade from the outside coming in through the vivid glass façade. Long curvy tables allow for any size group to efficiently collaborate if desired while enjoying the biophilic aspects of the excessive amount of plants. Textures across the interior materials add dimension, providing a fresh and invigorating office setting.

16
17

EAST WEST SECTION ELEVATION PERSPECTIVE

The Superstudio inspired building blocks shift and morph throughout the section, becoming a glass shell around the interior structure. Vertical elements help break up the monolithic feeling of the overall massing, yet the curves and spatial choices remain emphasized. The vertical and horizontal elements of the façade create a paracosm of a composition, revealing layers and hidden components.

18
19 *V

RACE TO ZERO

02

US DEPARTMENT OF ENERGY STUDENT DESIGN COMPETITION 2018 MIAMI UNIVERSITY, 2ND PLACE CATEGORY

a net positive attached housing development

Every year, the U.S. Department of Energy hosts the Race to Zero Student Design Competition, a sustainable building science contest focused on future oriented thinking and design. With second place recognition in the multifamily category in 2018, Wright Path to Zero is a collection of highly energy efficient attached housing units for active duty families, providing move in ready, net positive homes. This project has concentrations in universal design, efficient mechanical systems, and various green building science developments. These design principles were key for this set of homes to create a new model of urban planning and comfortable living, and successfully design homes for the people who sacrifice their lives every day, improving the lives of Wright Path’s inhabitants while working towards a guaranteed stable future. My roles included schematic design, formatting project submission documents, researching universal design implementations, and creating and editing graphics for presentation and communication materials.

was a collaborative project, all images and documents are my original work unless otherwise noted.

20
DANNY NOLAN ARCHITECTURAL DESIGN SELECTED WORKS 20182023
Team Members: Danny Nolan, Margaret Woolf, Peter Witt, Kelly Richter, Alanna Kuether, Shuting Chen, DeAngela Weakely While this
21

SITE PLAN

With a total of sixteen units, Wright Path to Zero focuses on creating a welcoming environment for each individual unit with landscaping around the site and a pedestrian street connecting all of the units, strengthening community ties. A one way street around the site reduces vehicle traffic and the amount of hardscape required, refocusing efforts on pedestrians.

22 N
25’ 50’ 75’ 100’ 0’

NATURAL

LOCALLY SOURCED MATERIALS

HIGH EFFICIENCY MECHANICAL SYSTEMS

RENEWABLE ENERGY SOURCE

POSITIVE ENVIRONMENTAL IMPACT

CONTINUOUS VAPOR & THERMAL CONTROL

HOME ENERGY RATING SYSTEM INDEX (top), DESIGN PRINCIPLES (bottom)

The design principles helped achieve a HERS index of -2, resulting in each unit being able to produce more energy than required to function. Positive environmental design choices include permeable pavers, absorptive landscaping, locally sourced continental materials, and pollinator friendly native plants to increase biodiversity.

23 EXISTING HOMES STANDARD NEW HOME MORE ENERGY HERS INDEX ZERO ENERGY HOME AVERAGE HOME 50 THIS HOME -2
HEATING FROM DAYLIGHT STORM WATER MANAGEMENT HIGH INSULATION & GLAZING

PERSPECTIVE VIEWS

FIRST FLOOR UNIVERSAL DESIGN PRINCIPLES

• full clearance ramp at entrances for those with mobility limitations

• peepholes at different heights for those with different needs

• frequent 5’ turning diameter for ADA standards

• open floor plan for those with hearing limitations

• rounded counter top edges

• adjustable height cooktop and sink

• drawer style dishwasher

24
0’ 5’ 10’ 20’ N

SECOND FLOOR UNIVERSAL DESIGN PRINCIPLES

• adequate landing space for those with stamina or vision limitations

• flush tread and riser to minimize stumble instances

• light switches reachable from bedside and door

• extra electrical outlets near bed for medical equipment if needed

• wall mounted closets for those with difficulty bending and kneeling

• non slip wet tile area

• front load washer and dryer for those with difficulty in handling

25
0’ 5’ 10’ 20’

FIRST FLOOR MAIN ENTRY & LIVING (top), BACK ENTRY, KITCHEN & DINING (bottom) Southern glazing is maximized for comfortable daylighting throughout the whole day with the aid of clerestory windows. North glazing is minimal to allow for views into the central community pathway and natural light in private rooms, but to reduce wall penetrations. Electric lighting is balanced with the daylight throughout the activity zones in the home to not over light.

26

HUNG LARSEN TRUSS ROOF

W/ BLOWN IN CELLULOSE

R-63

WALL DETAIL FROM EXTERIOR TO INTERIOR

7in. Composite V-Groove Siding 3/4in. Air Cavity

1x Wood Vertical Furring Strips

1/2in. Plywood

8in Larsen Truss w/ Cellulose Insulation

1/2in. ZIP Panel Sheathing (air & vapor)

2x4 Stud Wall w/ Rockwell Batt Insulation

5/8 in. Gypsum

R-47

GLO A7 TRIPLE PANE THERMALLY BROKEN ALUMINUM FRAME WINDOWS

R7

Metal Flashing w/ Drip Edge

WINDOW DETAIL

1/2in. ZIP Panel Sheathing (air & vapor)

2x4 Stud Wall w/ Rockwell Batt Insulation 5/8 in. Gypsum

Window Clip

Prosoco Liquid Applied Flashing (air)

Prosoco Liquid Applied Flashing (air)

Rigid Insulation

Trim

Insect Screen

MONOLITHIC SLAB EPS INSULATED

R24

CONSTRUCTION DETAILS

Wright Path to Zero deploys Passive House techniques to achieve the highest thermal performance and durability appropriately sized for Climate Zone 5. Passive House standards suggest an R60 roof, R40 wall, and R20 slab, however through thermal analysis, the building assemblies surpass these suggested values. Continuous insulation and careful barrier placement aids in maximizing gains and minimizing energy losses.

27
TJI FLOOR CONSTRUCTION 2X4 WOOD-FRAMED EXTERIOR WALL W/ FIBERGLASS BATTS & ZIP PANEL
EXTERIOR INTERIOR

THE DISTRICTS

03

MIAMI UNIVERSITY, OXFORD, OHIO SPRING 2019 STUDIO

an adaptive reuse and mixed use city hub

Providing a meeting plaza for a city with diverse demographics, The Districts is a collection of spaces and programs which seek to provide an inclusive space for the various residents of Cincinnati, Ohio to come together. Originally known as the Terrace Plaza Hotel, a groundbreaking manifestation of modernism by SOM, this project explores ideas to reestablish old and new communities in a unique metro area. Right in the heart of Cincinnati, the density of this urban area provides public passage and use by drawing attention from residents and visitors to allow for the growth of small startups and local businesses, while supporting the locals concurrently through various programs. Combining affordable housing, social spaces, and recreational activities, this cooperative center with localized services becomes a collaborative hub for the public. The transition between public and private spaces emit a cohesive core for the community, while providing daily services to those taking a break from work, after school, or just spending some time with friends in the city.

Team Members: Daniel Nolan, Carly Hansen, Evan Warder, Summer Nicholas, Michal Epstein While this was a collaborative project, all images and documents are my original work unless otherwise noted.

EXTERIOR RENDERING (right), in collaboration with Evan warder, team member

28
DANNY NOLAN ARCHITECTURAL DESIGN SELECTED WORKS 20182023
29

GROUND FLOOR LOBBY (above), LOCAL SERVICES (key, right)

Across the lobby on the ground floor, local businesses and organizations have the opportunity to come together and provide services for the people of Cincinnati. Whether taking a coffee break, doing some quick grocery shopping, meeting up with friends, or seeking a new place to call home, these amenities accentuate the community of the city.

PERSPECTIVE VIEWS

30
1. FOOD PANTRY 2. DINING SERVICES 3. THRIFT STORE 4. RESIDENTIAL ELEVATORS 5. GREEN SOCIAL STAIRS 6. MINI MART GROCERY STORE 7. BOOKSTORE & SEATING AREA 8. FOOD HALL W 12 STALLS 9. RESTROOMS 10. KID’S COLLABORATIVE AREA 11. RECEPTION 12. GREEN PATHWAY 13. CAFE
N0’ 50’ 100’ V ENTRY ENTRY 1 2 2 3 4 5 6 7 V

DE-STRESS

31 LOCAL CINCINNATI & OHIO SERVICES EAT Findlay Kitchen Carl’s Deli Sleepy Bee TAKE A BREAK Deeper Roots Coffee Emporium Bloc Coffee DINE The Gourmet Boca Restaurant L COLLABORATE Talbert House Maple Knoll Lighthouse
University of Cincinnati Art Academy Miami University
INSPIRE
Title Boxing Whatever Works Metamorphosis
CARE Squash Academy Divine Daycare Apple Tree SHOP St. Vincent de Paul Valley Thrift Kenzie’s Closet REJUVENATE SOL Green Umbrella LiveRoof LIVE OTRCH Cornerstone POAH STOCK UP Our Harvest Pic’s Produce Jo Lasita CATCH UP Fueled Collective Borderlands The Depot V ENTRY 8 9 10 11 12 13
TAKE

GROUND RECEPTION & GREEN PATHWAY

Murals created by local artists highlight Cincinnati’s roots and local culture, manifesting the lobby as a place for the people. Vegetation directing people as a form of wayfinding provides added positive biophilic effects. The double height entry allows users and residents to fully explore the aspects of the program and find the service best fitting to their needs at the current moment.

32
33

GROUND FOOD HALL, GREEN SOCIAL STAIRS, SEATING & CIRCULATION

The social stairs act as a hub for people to hang out and interact, and as an advertisement area for local businesses and community organizations. Local food vendors occupy spaces under the stairs and mezzanine for people who want a quick bite or snack, with supportive seating and alcoves surrounding. The exposed structure strengthens the idea of connectedness of one to the building and the community around them.

34
35

BIO BUFFER

UNIVERSITY OF OREGON, PORTLAND, OREGON FALL

2019 STUDIO

an integrated health center influenced by nature

The Bio Buffer Health Center aims to provide an integrated care approach, coordinating mental health, substance use disorder, and primary care services, producing greater outcomes and effective solutions for caring for those with complex healthcare needs. Integrated healthcare leads to fewer nights spent homeless, fewer hospitalizations, fewer nights in detox, and fewer emergency room visits, inevitably lowering the cost of care and increasing quality of life. Incorporating biophilic implementations search to increase the effectiveness of these components along with three points in the quadruple aim in healthcare: improving the health of populations, enhancing the experience of care for individuals, and increasing staff engagement and retention. Located in the Buckman neighborhood of East Portland, no matter the crisis one may be going through or reason for visiting, this health center engages biophilia and natural elements as a buffer to ease patients, their families, and service providers, ensuring recovery and stability.

36 04
DANNY NOLAN ARCHITECTURAL DESIGN SELECTED WORKS 20182023
37

SITE CONDITION

CONSIDERATIONS: BIOPHILIC IMPLEMENTATIONS

VISUAL CONNECTIONS

What we see, whether natural or man implemented, which can lower blood pressure and heart rate, improve mental engagement and attentiveness, and positively impact our mood.

NON-VISUAL CONNECTIONS

Auditory, haptic, or olfactory stimuli that create a deliberate and positive reference to nature, living systems, or natural processes, increasing our cognitive performance.

NON-RHYTHMIC SENSORY STIMULI

Stochastic and ephemeral connections with nature that may be analyzed statistically but can’t be predicted precisely, clouds moving, breezes, birds chirping.

THERMAL & AIRFLOW VARIABILITY

Subtle changes in air temperature, humidity, airflow across the skin, and surface temperatures that mimic natural environments, improving comfort, well being, and productivity.

BIOMORPHIC FORMS & PATTERNS

Symbolic representations and evocations of nature, whether material selections, facade choices, or graphic illustrations, improving creative performance.

CONSIDERATIONS: MOST REQUESTED ASPECTS IN A WORK ENVIRONMENT

NATURAL LIGHT

Vital to see where we are working and what we are doing and strengthen our circadian rhythm functioning, further increasing productivity and well being.

INDOOR PLANTS

Natural elements from the outdoors, directly connecting them to the exterior environment, reducing stress and increasing concentration and air quality.

PRESENCE OF WATER

Enhancing the experience of a place through the seeing, hearing, or touching of water, enhancing perception and psychological and physiological responsiveness.

BRIGHT COLORS

Hues inspired from appealing environmental forms, likening a space to natural connections, improving user experience, and enhancing creative performance.

38
BIOPHILIC INTEGRATION
MASSING PROCESS
COURTYARD PARAMETERS PROGRAM DESIGNATION
1. 2. 3. 4.

BUILT MODEL, basswood, chipboard, bristol, gypsophilia, my friends’ hands, 1/8” = 1’-0”

The jagged façade, iterative of arthropod exoskeletons, is a representation of regrowth with vegetation scattered throughout, changing as the seasons do. Situated on a very funky shaped site, the idea of the “journey” to improving one’s health is emphasized throughout the interior procession and program exploration.

39

GROUND FLOOR

1.

2.

3.

4.

7.

8.

9.

10.

PERSPECTIVE VIEWS

GROUND FLOOR

The main entrance has a generous amount of space for those entering while going through a crisis with a specific and immediate reception area, easily identifiable. All the main amenities have connections to the outdoors through the courtyard or adjacent green space, providing positive biological responses for the users. A separate entrance on the eastern side of the building provides privacy for employees.

40
UP UP UP ENTRY
9. 7. 6. 3. 2. 1. 5 4. 10. 11.
0’
V V V N
8.
5’ 10’ 20’
RECEPTION INDOOR WATER FEATURE PHARMACY STORAGE 5. BED BUG / LAUNDRY 6. SHOWER MULTIPURPOSE COURTYARD EDUCATION TRASH / ELECTRICAL 11. BIKE STORAGE

LOBBY ENTRANCE (top), COURTYARD (bottom)

The entrance contains a hanging vertical garden and reflecting pool in the main circulation lightwell, encouraging and encaptivating patients to use the stairs, while welcoming them in. Towards the back of the building, the courtyard provides a space for patients and employees to access natural elements outdoors, promoting eco-therapy and positive healing responses.

41

SECOND FLOOR

1. WAITING

2. RECEPTION

3. MULTIPURPOSE

4. CONSULTATION WING

PERSPECTIVE VIEWS

SECOND FLOOR

The second floor incorporates a formal reception and waiting room along with a multipurpose room for group therapy, small events, or other gatherings. The consultation wing is supported with views to the adjacent green space and ample hallways for family members or loved ones to wait if desired.

42
DN UP UP
1. 2. 3. 4.
0’ 5’ 10’ 20’ N
V V V

CONSULTATION WING CORRIDOR (left), CONSULTATION ROOM (right) The corridor provides views to the outdoors and natural stimulation, administering calming moments for employees if they’re feeling stressed throughout the day or patients if they’re going through a crisis and heading to an appointment. The privacy of the consultation rooms allows for patients to have their own window, increasing positive psychological responses during sessions, improving patient health.

43

THIRD FLOOR

PERSPECTIVE VIEWS

THIRD FLOOR

The third floor incorporates all staff related program, including a private open office, laboratory, and lounge / break room. The break room acts as a tertiary work space for employees and volunteers, giving them versatility in how they want to personally work throughout the day. All areas of work have views to the outdoors, vital for improving staff satisfaction in healthcare environments.

44
DN DN
1. STAFF BREAK / LOUNGE 2. IT STORAGE / SUPPORT 3. ELEVATOR MACHINE ROOM 4. LABORATORY 5. OPEN OFFICE 6. DIRECTOR’S OFFICE 3. 5. 6. 2. 1. 4.
N
0’ 5’ 10’ 20’
V V

OPEN OFFICE

The open office provides two different types of work environments, a formal desk space, and a more relaxed and casual space for meetings or comfortable individual work. Natural lighting and views to the exterior help improve work quality by providing necessary controlled distraction to reduce eye strain and fatigue.

45

05 VIRAL

UNIVERSITY OF OREGON, PORTLAND, OREGON THESIS STUDIO, 2020-2021, ONLINE

a community center rooted in social media and popular culture

Architecture has failed the people. We’ve created a world where physical public space is constantly being monitored, limited, and taken away from specific groups of people. The internet has become the last remaining public space where people use their voices unapologetically to express their ideas, opinions, thoughts, art, anything. Anyone can have a presence. Popular culture and social media networks, the main content on the internet, have become essential to educating and informing people on current social movements and general awareness. Information is the new education in the 21st century, and this information is potently abundant, all around us, and hard to hide from. These platforms carve and create spaces for underrepresented voices and communities, giving them a platform to speak about the injustices and discrimination they face. Situated on the South Side of Chicago, where the World’s Columbian Exposition was held in 1893, VIRAL seeks to provide a space that contains and transmits culture to benefit the people locally, while bringing awareness globally, the issues technology has created for humanity.

46
DANNY NOLAN ARCHITECTURAL DESIGN SELECTED WORKS 20182023

DOWNTOWN CHICAGO

THE BEAN THE SEARS TOWER

NAVY PIER SKYSCRAPERS

THE CONTEXT OF JACKSON PARK

Situated just eight miles south of downtown Chicago, the site sits on the Jackson Park Golf Course, home to the World’s Columbian Exposition, hosted in 1893. VIRAL aims to be a similar spectacle of an implementation, supporting and enhancing culture, serving the local communities. VIRAL opposes the existing golf course which doesn’t directly serve those of the surrounding communities of Hyde Park, South Short, and Woodlawn.

48
N
SITE JACKSON PARK JACKSON PARK GOLF COURSE
# #
49 #SELFIE @ the world’s fair #1893 #blessed group projects #suck but how’s my fit omg where r u, there are SO many people here lol this NEEDS to go on the gram i thought google maps said we’d be there by now me n my home skillets take a picture, it’ll last longer can’t touch this follow me on twitter and support my work omg can we play wonderwall? i’m the number one rockstar on the planet 1893 1960 2000s 202? THEN NOW

ROUGH MASSING / SHAPE EXPLORATION / HASHTAG AS DATUM

ADJUSTMENTS / MONEY MOVES / TRANSMUTATIONS

SUBCULTURE / PROGRAM IMPLEMENTATION / SPACE GENERATION

MASSING PROCESS

Globally recognizable and morally neutral, the hashtag symbol informs the building shape and rough massing, creating a shell, allowing culture to intensify within and amplify outwards. Abstracting the shape to add some depth and incorporating a structural “framework” inspired from the datum of the internet creates spaces where subcultures and niche communities can be supported.

50 #
1. 3. 2. 4. THE INTERNET AS THE “FRAMEWORK” OR “SUPPORT SYSTEM”

AXONOMETRIC

Sticky spaces, textures, and messy elements are generated across the building to get the public’s attention through the steel structure, iridescent cladding, and sawtooth skylights, similarly to how social media and internet trends work to grab the attention of others by calling out for it and being bold and in your face.

51
N

EXTERIOR

The framework grid is a nod to the radical architectural ideas of “plugging in” from SUPERSTUDIO and Archigram, yet contemporized to fit 2021, allowing technology to not limit, but further human freedom. Users can “plug in” and broadcast or portray whatever they desire across the façade, providing portions of the building or the entirety of the building to be a true representation of the people, serving them however they need.

52
53

AUDITORIUM

* Lecture

* Community Meetings

* Educational Presentations

* Various Sized Events

* Multipurpose

FOOD HALL

* Local Food Vendors

* Supportive Seating

* Additional Work / Study Space

CITY LIVING ROOM

* Informal / Formal Meeting

* Various Gathering

* Supportive Interaction

DIGITAL LIBRARY

* Workstations

* Virtual Reality Learning

* Study Areas

* Social Landscapes

INTERACTIVE

* Permanent Collection

* Temporary Exhibition

* Community Showcase

* Interactive Gallery

* Art Display

ENTRY

GROUND FLOOR

The ground floor is where a majority of the action happens, from learning about current social movements and studying in the digital library, meeting with a friend or having an informal meeting in the city living room, or engaging with an educational discussion from a community organization in the auditorium. These different spaces provide various platforms, educational services, or cultural support for anyone seeking to use their voice or listen.

54 N
300’ 200’ 100’ 0’

GROUND FLOOR SPACES

These programmatic spaces explore how design can serve the communities that have been disinvested and underserved through providing support at the individual scale. Tutoring, research, and studying occurs at the digital library for those who don’t have adequate space at home. Local food establishments are supported across the food hall while casual conversational and interactive spaces are sustained by the city living room.

55
DIGITAL LIBRARY CITY LIVING ROOM FOOD HALL

FOOD HALL

* Supportive Seating

COWORKING

* Various Work Stations

* Collaboration Stations

* Open Desk Areas

* Meeting Rooms

* Team Tables

* Phone Booths

MAKERSPACES

* Woodshop

* Rapid Prototyping

* Art Studio

* Output Room

DIGITAL LIBRARY

* Workstations

* Virtual Reality Learning

* Study Areas

* Social Landscapes

INTERACTIVE

* Permanent Collection

* Temporary Exhibition

* Community Showcase

* Interactive Gallery

* Art Display

ENTRY

SECOND FLOOR

The second floor carries up the programmatic spaces from the ground floor with the addition of coworking spaces and makerspaces. All of these spaces working together create a cultural hub for users to express themselves across a variety of methods to encourage long term empowerment and engagement through culture across the greater Chicagoland area.

56 N
300’ 200’ 100’ 0’

SECOND FLOOR SPACES

The spaces across the second floor provide adequate and stabile spaces for learning, making, and working to support the innovation and community of Woodlawn, South Shore, and Hyde Park. One of VIRAL’s main goal is to provide spaces that foster positive relationships for the wider community through these energized spaces.

57
MAKERSPACES DIGITAL LIBRARY COWORKING

INTERACTIVE

* Permanent Collection

* Temporary Exhibition

* Community Showcase

* Interactive Gallery

* Art Display

INTERACTIVE

* Permanent Collection

* Temporary Exhibition

* Community Showcase

THIRD FLOOR

The third floor is intentionally left undesigned with intent to allocate spaces where members of the southern communities of Chicago can fill it with their art, displays, work, and various forms of media. These decisions are solely made by the community and for the community based on current needs, conversations, and ideas they deem vital to express.

58
N
* Interactive Gallery * Art Display
300’ 200’ 100’ 0’

THIRD FLOOR SPACES

The interactive spaces have the potential to house any form of art or media by the community, working as a tool for building networks that support self-sufficiency and solidarity among the communities on the south side of Chicago. The learning methods provided by these various forms of media aim to portray work that isn’t just performative or representational, but that is impactful and inspiring.

59
INTERACTIVE INTERACTIVE INTERACTIVE

NORTH SOUTH SECTION PERSPECTIVE

The break in the overall grid structure framework at the courtyard provides an sort of escape from the digital realm that is created throughout the interior spaces. Composed as a secondary space for people to come together, it also provides a sense of respite with the connection to the environment.

60
0’ 50’ 25’ 75’ 100’

TECTONICS (left)

STRUCTURAL ASSEMBLY

Steel Structure w/ Columns 25’ Oc

Cross Bracing @ 25% of Total Bays

WALL ASSEMBLY (interior to exterior)

Plaster Gypsum Board

2x6 Metal Stud Wall w/ Mineral Wool Cavity Insulation w/ Lateral Bracing & Shear Stiffeners

Sheathing Taped at Seams

Vapor Permeable Air & Water Barrier

Rigid Insulation Board

Structural Thermal Break Connection

Iridescent Metal Panel Cladding w/ Vertical Supports & Steel Clips Fixed to Frame

FLOOR ASSEMBLY (finish to structure)

Wood Finish Floor

Concrete Composite Deck w/ Rebar

Drop Ceiling at Certain Conditions

61

PROFESH WORK

EASTLAKE STUDIO, CHICAGO, ILLINOIS

2022 - 2023

a bunch of stuff from my nine-to-fives

During my time at Eastlake Studio when not configuring space plans and test fits, you could find me tending to the rooftop garden, modeling at a photoshoot for a recently completed spec suite, assisting in illustrating marketing materials, attending business development happy hours, and most importantly, learning! The following pages are composed of various floor plans of spec suites and commercial office spaces in Chicago ranging from 3,000 square feet to 15,000 square feet.

62 06
DANNY NOLAN ARCHITECTURAL DESIGN SELECTED WORKS 20182023
63
Kendall McCaugherty, Hall + Merrick + McCaugherty Photographers
64 1 2 3 4 5 6 7 D C B A 1.1 2.1 3.1 4.1 E F B Reception Pit Stop (break) Large Meeting Private Offices Workstations Copy Server Reception Quiet Car (break) Wellness Break Flex / Break Large Conference Touchdown Open Collab Private Office Workstations Copy / Print Server space space sf sf qty qty 540 520 300 150+ 10 98 45 385 500 50 400 200 500 400 250 150+ 10 75 25 1 1 1 3 18 1 1 1 1 1 1 1 1 1 1 5 54 1 1 SUITE A HEADCOUNT SUITE B HEADCOUNT 3,882 rsf 22 seats 176 sf per person 7,643 rsf 60 seats 127 sf per person A
65 UP FHC FEC 3 4 5 6 7 10 15 18 25 22 C D F G H J L M N P S T U W X 27 3 4 5 6 7 10 15 18 22 25 27 Studio Break Small Meeting Private Offices Workstations Ante Room IT space sf qty 730 225 230 130+ 10 516 24 1 1 1 4 14 1 1 SUITE HEADCOUNT 4,993 rsf 18 assigned seats 277 sf per person
66 A B C TURNKEY Private Offices Workstations Reception Private Offices Workstations Private Offices Workstations Workstations Reception space space space space sf sf sf sf qty qty qty qty 130 36 130 155 36 100 36 36 1 2 29 1 2 30 3 19 53 1 SUITE A HEADCOUNT SUITE B HEADCOUNT SUITE C HEADCOUNT TURNKEY SUITE HEADCOUNT 5,770 rsf 32 seats 180 sf per person 5,064 rsf 32 seats 158 sf per person 4,185 rsf 22 seats 190 sf per person 15,359 rsf 54 seats 284 sf per person
67 EXTERIOR BALCONY EXTERIOR BALCONY EXTERIOR BALCONY UP UP UP DN 49 SF ELEVATOR 200 STAIR STAIR ELEVATOR STAIR STAIR 14 A B C D 13 12 11 10 9 8 7 6 5 4 3 E F G H 2 J K 1 13,635 usf 73 seats 7,460 usf 50 seats 5,838 usf 19 seats Private Offices Workstations Reception Private Offices Workstations Reception Private Offices Workstations Reception space space space sf sf sf qty qty qty 132 36 420 132 12 525 165 36 521 7 65 1 4 45 1 6 12 1 SUITE A HEADCOUNT SUITE B HEADCOUNT SUITE C HEADCOUNT A B C
THANK YOU dannynolan.work

Turn static files into dynamic content formats.

Create a flipbook
Issuu converts static files into: digital portfolios, online yearbooks, online catalogs, digital photo albums and more. Sign up and create your flipbook.