Daniel Morales Portfolio

Page 1


OSMAN DANIEL MORALES

Daniel99morales@gmail.com +1 662-801-8701

BACKGROUND

I am an alumnus of Mississippi State University with a Bachelor of Architecture, and I am currently pursuing a Master’s degree in Landscape Architecture. My design philosophy centers on integrating architecture and landscape, creating spaces that respond thoughtfully to the natural forms and character of the site. My professional experience includes working on high-end residential projects in the Hamptons and along Florida’s Gulf Coast, where I’ve gained invaluable insight into the design and construction process at a detailed level. I’ve also contributed to commercial and residential projects in my home state of Mississippi and Austin, Texas, allowing me to develop a versatile and regionally responsive approach to design.

16 GIN LANE

Southampton, NY. 2023-Present (Professional)

Page 17

CARRIAGE HOUSE

Southampton, NY. 2023-2024 (Professional)

Montuak, NY. 2024-Present (Professional)

Page 23

OXFORD RESIDENCE

Oxford, MS. 2023-Present (Professional)

Page 27

Page 31

PUD MASTER PLAN

Austin, TX. Fall 2021 (Professional)

Page 35

THE YARD

Oxford, MS. Summer 2020 (Professional)

MADRONE CANYON

Austin, TX. Fall 2021 (Pofessional)

Page 37

EL PALACIO DE LA MÚSICA

Jackson, MS. Spring 2023 (Academic)

16 Gin Lane

South Hampton, New York 2023-Present

I had the opportunity to work on the renovation of a historic English Tudor-style oceanfront estate in Southampton, NY. As an Associate at A+M+L Architecture, I worked alongside one of the Principals and collaborated closely with Windward Construction and the interior design firm Atelier AM throughout the project. I created a comprehensive 100+ page construction document (CD) set of interior drawings, effectively conveying the design intent for the project. Throughout the process, I coordinated daily with the client to integrate their extensive art collection, producing interior elevations to ensure each piece was properly placed and supported. I also collaborated with electricians, lighting consultants, and the lowvoltage team to develop detailed

electrical, reflective ceiling, and low-voltage plans. To assist with material and specification decisions, I produced renderings that helped guide both the client and the interior designer. My role included participating in on-site and virtual meetings to facilitate real-time coordination and problem-solving. Additionally, I assisted in reviewing and redlining shop drawings for custom millwork, metal doors, windows, stonework, and stainless steel kitchen components. This project provided me with invaluable experience in highend residential design, client relations, and the integration of custom architectural details, such as chamfered door openings, while maintaining the home’s historical integrity.

FISHERS POINT

Montauk, New York 2024- Present

This project consists of 14 cottages, a caretaker’s house, a sauna, a pavilion, two storage sheds, and a three-level singlefamily residence. Designed as a creative retreat in Montauk, NY, the property serves as an oasis for artists seeking to escape city life and connect with nature and like-minded individuals. In the early phases, I contributed to developing construction document (CD) sets for the cottages and assisted in reviewing various shop drawings. Once the cottage phase was complete, my focus shifted to the primary residence, which features a great hall constructed from structural insulated panels (SIPs) and supported by a custom timber frame.

Integrating this central space with the rest of the home was a key design challenge. I produced detailed plans, sections, and construction details, including SIP parameters, framed openings, and layouts for the timber frame bents. The site’s sloped terrain required a complex foundation strategy. To address this, I developed a series of foundation details aligned with a color-coded foundation plan, carefully noting varying wall heights and footing conditions. Currently, I am producing multiple building sections and framing plans to support the ongoing construction process and help ensure the successful realization of this unique artist retreat.

In addition to my work on the Carriage House, I collaborated with another principal at A+M+L Architecture on the Sareen Residence. My role focused on producing renderings to help the client evaluate design options and determine the project’s direction.

Top left: An interior rendering of the exercise room illustrating the seamless integration of millwork across the ceiling and walls and the harmonious material palette in the adjacent sauna area. Bottom section: Two design options for a bunk room. The right was the preferred layout, but due to budget considerations, we developed the left option to maintain a strong connection with the nearby exercise room while reducing costs.

Top right: Two structural solutions for supporting the shared roof of the pool house, which include a bathroom and storage room. The roof was designed to provide shade for poolside seating.

OXFORD RESIDENCE

Oxford, Mississippi 2023-Present

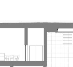
Over the past few years, I’ve been designing a custom home for my family, located just 15 minutes from the Oxford Square. Drawing inspiration from the coastal architecture I admired while living along Florida’s Gulf Coast, I set out to create a home that balances regional influence, personal identity, and practical constraints.

In partnership with Conlee Construction, I led the design and documentation process, producing detailed construction drawings for both the home and the site. With a limited square footage due to budget constraints, I focused on

maximizing spatial quality— designing a central corridor that promotes natural ventilation and daylight throughout the interior. I also wanted to draw ties to our home country of Guatemala by implementing a courtyard that connected to the iconic courtyard homes of Antigua Guatemala.

Managing the project remotely from New York added complexity, making site visits and close collaboration with contractors and subcontractors essential. Despite the challenges, I remained focused on maintaining the integrity of the design.

SCALE: 1/4"
1/4" = 1'-0"
1 North Elevation
1/4" = 1'-0"
2 South Elevation

PUD MASTER PLAN

Austin, Texas Fall 2022

I was honored to participate in a new Planned Unit Development (PUD) project along South Congress in Austin, Texas. This new development would feature a mix of offices, multi-family, hotels, retail, parking structures, and a communal park with trails along Boggy Creek. This project was an LSI team collaboration effort that incorporated the input of the client.

I was able to help by creating a series of diagrams that depicted the conceptual idea of what the master plan could potentially encompass. With the help of the firm’s principal and an urban planner, we presented a PUD Master Plan approved by the city of Austin and aligned with the city planning and zoning ordinance.

BOGGY CREEK TRAIL

USES

VEHICULAR

PEDESTRIAN

RAIL /BUS

MADRONE CANYON

Austin, Texas Fall 2022

Madrone Canyon is a luxurious gated community set in the heart of Texas Hill Country, just southwest of Downtown Austin in Bee Cave. Featuring 140 large, individually designed estate homes, the community blends privacy and luxury with stunning natural surroundings. It offers pocket parks, a gathering pavilion, and miles of Eco Trail Systems, creating an ideal space for outdoor living and connection with nature.

I worked closely with the founder and president of Land Strategies to develop the master plan for Madrone Canyon, ensuring the lots were evenly divided among three builders. I also created a vicinity map, rendered master plan, and landscape design renderings for the entry, highlighting the community’s seamless integration with its natural setting and luxurious appeal.

THE YARD

Oxford, Mississippi Summer 2020

Lamar Yard is a full-service restaurant, banquet hall, and event venue in Oxford, Mississippi. The design emphasizes flexibility and community, with expansive outdoor areas that support live music, games, and private events. The project was completed in the Spring of 2021.

During my internship at Develop Design Studio, I contributed to the design process by assisting with redlining the construction document set and participating in client meetings. In response to the client’s marketing needs, I also created a series of renderings and a walkthrough video to help visualize the space and promote the project.

1”=10’-0”

1”=10’-0”

1”=10’-0”

Lloyd Wright’s Pope-Leighey House Pen and Link Spring 2019

Frank

Turn static files into dynamic content formats.

Create a flipbook
Issuu converts static files into: digital portfolios, online yearbooks, online catalogs, digital photo albums and more. Sign up and create your flipbook.