Urban Assembly

Page 1


PORTFOLIO

HUANG YUQING

Selected Work 2014-2023

Bachelor of Engineering of Architecture

Master of Architecture

Tongji University

01 TIME-SPACE SYMBIOSIS

A Progressive Rural Revitalization Inspired by Local Timber Handicrafts

As a typical Gaeml minority village in Southeast Guizhou Province, Gaobie village faces a series of rural decay problems, e.g., aging society, youth population loss, low agricultural production, low income, etc. These problems have been threatening a wide variety of Chinese rural regions for decades. The whole design, based on the culture and natural resources, is not only a rural planning and architecture proposal but also a progressive rural revitalization plan. By successively bringing in students and tourists, Gaobie village will be upgraded into a place for exploring the natural charm and experiencing folk customs. My strategy is to rely on local traditional handicrafts to transform the village into a rural creative workshop, lead products to a larger platform through the Internet, and attract young people back to the village for employment, thus promoting the village's revival.

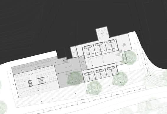
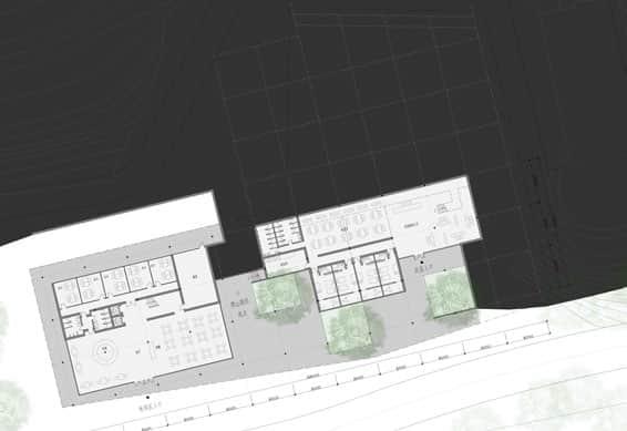
The overall strategy for the village re-planning is to strengthen the original small settlements and large scattered patterns of the villages, and to restore the idyllic production and living atmosphere and group-type neighborhoods. The village has two kinds of building groups, linear and enclosed, based on location and arrangement. Linear groups are suitable to develop into folk crafts workshops, while enclosed groups can be renovated into homestays. By interpreting the typical space of traditional local dwellings, combined with modern materials such as steel and concrete, the structure and space of the wooden frame can better adapt to the needs of villagers, tourists and students . At the same time, the design is devoted to the efficient use of space, the design of ambiguous or multi-purpose spaces of similar functions, considering the time and space requirements of the villagers' daily production and students/tourists' activities.

Design period: 2018.3-2018.6

Location: Gaobie Village, Gaeml minority Autonomous Prefecture, Guizhou, China

Type: Village planning & Architecture design

Instructor: Prof. Zhang Jianlong, A/Prof. Yu Xingze

Category: Academic Project Personal Work

folk traditional crafts

bamboo weaving

Outsider activities making tea seed oil rice field fish dyeing cloth and textile planting trees and construction farming tourism and sightseeing drawing from nature

Schedule of handicraft & farming with Chinese lunar term

The Gaeml people, Ethnic minorities who have lived here for generations, have inherited many exquisite traditional handicraft skills from their ancients, such as weaving bamboo, making tea seed oil, batik fabric art (a resist dyeing technique), carpentry (traditional ‘Chuandou’ timber structure), and so on. Gaeml-people cleverly use the lunar terms (Jieqi) to guide their crafts schedule and the time to conduct which steps so they will never miss the best timing for specific steps. These precious techniques are in danger of being lost since young generations are unwilling to stay in their poor home village. By reading the overlapping activities and times in the pie chart, I can tell enriched information to guide the following design. For example, tourism season overlaps a lot with the crafts schedule of batik dyeing, so it will be nice to arrange experience workshops. Most people will gather in the village in July and August. Homestay shortage should be taken into consideration.

'Gaeml'
'Gaeml' folk traditional crafts process diagram (personal sketch, activities drew in the two weeks of the field trip to Gaobie Village, Maogong Xiang, Gaeml Autonomous Prefecture

Buildable region

- Suitable for construction

- Suitable for construction after modification

field

Eaves front porch 'chuandou' structure exploded diagram 4*5 grid 'chuandou' 4*3 grid 'chuandou'

structure Draped eaves beyond

Draped eaves included Draped eaves open

With/without pillars inside the entrance

In order to make the design flexible to apply to other similar villages in Maogong County, I also design several examples and make suggestions about how to tramsform the dwellings into different functions. To maximize the retention of local architectural characteristics, we made a detailed survey of the local houses. We tried to learning from the local timber dwellings by analyzing and classifying them.

Current function distribution

Paddy

phase 1

Introduce art/design students from cities and universities Gather media heat and attention for the village

The first step, several well-preserved but vacant houses at the village's entrance, will be reformed into a gathering place for students and local fellows, including a lecture hall, a library, and an exhibition hall around an open square, looking down to the whole village.

The village leader can sign cooperation agreements with universities to attract art and design students to have workshops in their summer/ winter vacations. Thanks to the highly developed social media, photos and comments of the village will be spread rapidly so that more and more people come to know about this remote but beautiful village. Students will live and eat with villagers in renovated dwellings.

phase 2

Attract tourists to experience folk craft and local delicious food Increase village income and job opportunities

In the second step, tourists will be attracted to the village; other than delicious local cuisine and charming landscapes, the most memorable activity is experiencing various traditional crafts under the instructions of local crafters. Because the process of folk crafts follows the solar terms of the lunar calendar, tourists can participate in different phases of folk crafts if they come at other times of the year.

Meanwhile, local income will gradually increase due to tourism development. Extra money can be used to build new houses step by step to prepare for the next stage. More job opportunities lead to the young generation’s return to their hometowns for development.

phase 3

Balance tourism and local people to create sustainable business value Build new houses and attract young generation back to homeland

The last step, development in previous stages, has laid a solid foundation for this stage; old houses have been repaired, new houses have been built, and these spaces can have multiple functions at different times.

During tourist season and student vacation, places can be transferred into homestays, and craft production space can be used as workshops. During the low tourist season, the lecture and exhibition halls can be villagers’ gathering spaces for celebrating festivals.

The overall strategy for the village replanning is to strengthen the original small settlements and large scattered patterns of the villages, and to restore the idyllic production and living atmosphere and grouptype neighborhoods. As a gathering place for public activities, the village head overlaps the landscape belts of the original landscape nodes in the village.

The village has two kinds of building groups, linear and enclosed, based on location and arrangement. Linear groups are suitable to develop into folk crafts workshops, while enclosed groups can be renovated into homestays. By interpreting and translating the typical space of traditional local dwellings, combined with modern materials such as steel and

crete, the structure and space of the wooden frame can better adapt to the villagers and the living and workshop space that tourists and students need during their stay in the village. At the same time, the design is devoted to the efficient use of space, the design of ambiguous or multi-purpose spaces of similar functions, considering the time and space requirements of the villagers' daily production and students/tourists' activities.

02 'PORTABLE' OPERA HOUSE

Recyclable Interim Music Palace Via Mass Timber Assembly

The original task of the project was to design an interim opera for Frankfurt during its opera house’s renovation. However, after a survey of all the state operas in Germany, I found out that opera houses require regular renovation every several decades. Since even an interim opera can be expensive and time-consuming, it is a pity to consider it as a one-time building. So I converted the task into designing an interim opera that can be divided into reusable function boxes and easy to transport inside the city after the real opera completes its renovation.

The project aims to create a quickly constructed, eco-friendly, even ‘portable’ system to build an interim opera during the transition period. It can be dismantled into basic components that are suitable for truck size. The components can be rebuilt in other places with complete functions, for example, a rehearsal room for a local school or an open stage for music festivals in a community park. Moreover, in order to dismantle, transport, and rebuild the interim opera in other parts of the city, components are connected to each other by special joints instead of rivets and bolts. A timber-membrane combination is applied to the facade system to not only reduce the weight but also make the facade foldable to save transportation space, thus reducing costs and carbon emissions.

Design period: 2019.9.4-9.27, 2023.9-2023.11

Location: Frankfurt, Germany

Type: Architecture design

Instructor: Meinhard von Gerkan, Stephan Schütz, Nicolas Pomränke, Sona Kazemi

Category: Academic Project

Team: Huang yuqing (Team leader), Omar Cicci, Luise Hartung, Vincent Schmitt Personal work, 100% new design and drawings completed solely after the workshop

Reason of renovations

Renovate from WWII damage

Renovate from fire / flood

Modernize technical equipment

Expansion

Structural renovation

In Germany, opera houses have long been a life and culture center for many citizens. With hundreds of performances going on stage every year, opera houses, especially those in big cities, greatly enrich people's spiritual world. However, maintaining an opera house can be a luxurious construction project for even a big city. Those operas, which have hundreds of years of history, might have already several rounds of renovation, expansion, and upgrading. It can be found from the chart that

there is a certain periodicity in the renovation of opera houses. Every one or two decades, the opera devices need to be upgraded, not to mention unexpected events such as wars and natural disasters. During the renovation, rich cities like Frankfurt, Munich, and Nuremberg built interim opera houses to meet citizens’ needs for high-class performances. In most cities, operas have to be moved to other smaller theatres or suspended from performance.

1. reception

2. lobby

3. staircases

4. cloakroom

5. vip room

6. orchestra/opera wardrobe

7. audience waiting hall

The entrance to the auditorium, with softed view through translucent membrane and nature light from above.
The Auditorium with two tiers, the double-layer folding wall panels guarantee good acoustic effect

The timber-membrane facade can be folded into a unit of 5.3*1.8*4(h), which is easy to transport

The building mainly contains five functions ,which are the big spaces of large spans: a foyer, a rehearsal, an auditorium, a stage tower and a workshop. Every big space has an intermediate climate buffer corridor of one span. It not only reduces the mechanical ventilation area, but also works as a gathering gallery for the public.

Five volumes lies in a sequence along the street. This layout promises a clear linear opera circulation. Among the four facades of each box, two of them are transparent membrane which allows filtered sunlight to enter, the other two are either solid panels or windows, depends on if the box needs natural ventilation.

The timber structure stands on a concrete base which contains sunken pools for orchestra and stage, and four cores. The CLT timber components are 100% prefabricated and recycable. They are all connected with none- steel joints except when membranes are fixed on a foldable steel frame connected to the timber columns.

Close up street facade perspective
'House in house' & buffer zone
Axonometric exploded diagram of foldable timber-membrane facade
Pure timber connection detail
Foldable membrane frame
Natural ventilation & sunlight Prefabrication & concrete base

Rehearsal stage for opera (16*16m)

Rehearsal stage for choir

The project aims to create a quickly constructed, eco-friendly, even ‘portable’ system to build an interim opera during the transition period. It can be dismantled into basic components that are suitable for truck size. The components can be rebuilt in other places with complete functions, for example, a rehearsal room for a local school or an open stage for music festivals in a community park. Thanks to the rapid development of timber structures, we can now use CLT components to prefabricate strong timber beams, columns, and walls. Although CLT is more advantageous in making large panels, I use a timber frame system to create flexible big spaces suitable for multifunction conversion. Moreover, in order to dismantle, transport, and rebuild the interim opera in other parts of the city, components are connected to each other by special joints instead of rivets and bolts. A timber-membrane combination is applied to the facade system to not only reduce the weight but also make the facade foldable to save transportation space, thus reducing costs and carbon emissions.

0.50(W)x1.20(L)x4.00(H)

0.70(W)x5.00(L)x0.95(H)

0.30(W)x5.50(L)x0.50(H)

2.50(W)x5.00(L)x0.20(H)

0.20(W)x3.80(L)x2.85(H)

0.20(W)x5.00(L)x4.00(H)

0.20(W)x3.80(L)x2.85(H)

2.70(W)x1.80(L)x4.20(H)

Axonometric map of the Frankfurt culture region

Located at the junction of two historical districts: bockenheim and Westend-Süd, concentrated here are music buildings, museums, exhibition centers and universities, It is a perfect culture background to distribute flexible timber function boxes in order to fulfull the citizens' needs of activiating those aging culture destinations.

park State park

Palmengarten
Alte Oper
Bergmann Park
Rothschildpark state park
Bio-Campus Westend
Grüneburg
Papageno Musiktheater
Bockenheimer Depot
Bockenheimer Water Tower Street Market Goethe University
EXPERIMINTA Science Museum
Messe Frankfurt
Messe Frankfurt
Festhalle Messe Frankfurt Concert hall
Convention center
Maritim Hotel

03 TRANSPARENCY THROUGH TIME

A New Museum that Integrates into Two Urban Contexts and Incorporates Public Memories

The new Falckenburg Museum is located at the south end of Hamburg’s historical city center, opposite the newly rising Hafen city. I sought to develop a museum architecture that reminds visitors of the two typical architectural types from both old and new parts of Hamburg, the courtyard type featured by the Kontorhaus (Office) District and the linear type alongside the canals in the Speicherstadt (Old customs warehouse). Both districts are UNESCO world heritage, representing the city’s history and typical urban contexts. The floorplan incorporates two grid systems highlighting the independent yet obscure interaction between the two contexts. The lower grid is rotated 45 degrees to align with the direction of pedestrian flow from Speicherstadt. Cores of different sizes penetrate the building from roof to basement, introducing verticle circulation, natural light, and facade openings. It is crucial that visitors can experience the lower grid in the upper space and vice versa during the exhibition viewing process. The design employs Colin Rowe's phenomenal transparency to integrate time, context, and space so that the museum becomes a metaphor for the history and development of Hamburg City.

Design period: 2018.9-2018.12

Location: Hamburg, Germany

Type: Architecture design

Instructor: Prof. Nikolaus Goetze, Ms. Magdalene Weiss , Mr. Alexander Montero (all from gmp Architekten)

Category: Academic Project

Team: Huang yuqing (Team leader), Fan jie, Zhang shuyu

Role: Concept (100%, my concept is selected internally to be developed);

Section & Detail Study (100%);

Rendering & Drawing (50%)

* Collaborated drawings have been marked with contributions. If not, they were completed independently.

Kontorhaus District 1922-1924

Chilehaus - Office building

Speicherstadt 1883-1927

‘City of Warehouse’

Kontorhaus District 1922-1924

Chilehaus - Office building

The Kontorhaus District is the southeastern part of Altstadt, Hamburg. The streetscape is characterised by large office buildings in the style of Brick Expressionism of the early 20th century. Chilehaus, as one of the most important buildings in the district, features shifted terrains, copper roof terraces and three courtyards with red brick facades.

Speicherstadt 1883-1927 ‘City of Warehouse’

Exterior Perspective from plaza & historic buildings *Drew by Fan jie (photoshop) and me (modelling) together

‘Speicher‘ | 'Warehouse'

The warehouse of Arts stores art works that are not exhibited, it is also part of the visiting route, just as goods arrived at the customs in 80,90s.

1.5F

‘Brücke‘ | 'Bridge'

The bridge is the traffic core in the museum, it guides people around, just as bridges in hafencity takes people from one side of the canal to another.

2F

The art works are exhibited in a rather closed ‘courtyard’, people can appeciate arts from ‘balcony‘, just as they view daily life in the courtyard.

‘Hof‘ | 'Courtyard'

- Cavity & Supporting fastener - Insulation

- Cast-in-place concrete wall

- Cement morter bedding cushion

- Concrete-texture gypsum board

04: GEOLOGICAL MEMORY

Red Brick Hotel in memory of the ancient geological section

Work project, Rurban Studio

In the overall planning of the Garden Expo, the project follows the land boundaries of the existing building complex. In this site, red brick bungalows are nestled under tall plane trees, and the mountain road leading to the geological section truly records the traces of geological workers’ activities here. Big trees and hiking trails constitute the most characteristic material memory of the site. Preserving these site information as much as possible becomes the most important starting point of the design. We hope to sort out and inherit the humanistic and spatial memory unique to the Huanghua'an site, meet new space needs while continuing the original atmosphere and behavior of the space, and then transform it into a leisure resort full of mountain and wilderness interest.

Conceptual Design period*: 2018.12-2019.2

Completion time: 2021.4

Location: Nanjing, Jiangsu Province, China

Type: New design on historical site

Leader: Prof. Li li

Team member: Huang yuqing

Category: Working Project, completed

Role: Concept (50%), Modeling (100%), Drawing (100%)

* Design Development & Construction Phase are completed by other colleges later

* Collaborated drawings have been marked with contributions. If not, they were completed independently.

Bird view. Photographer: Hou bowen, ©Rurban Studio

A. The initial hexagon is determined by control points.

B. The six control points of each hexagon are randomly moved, and the three data of the rotation angle on the xy plane, the rotation angle in the z direction, and the radius are random variables.

C. FFind the center point of the two spatial hexagons as the highest and lowest point of the rock.

D. Stretch two center points out to make it look like a rock.

E. Manually separate three points, use the lever to adjust the height, corresponding to the line of sight relationship and the trend of the roof, insert the adjusted point back into the point column.

F. The obtained straight line is staked out to obtain an 18-faceted stone.

The function of the rock is as the viewfinder of the building. The front and back sides of the rock are made of glass, and the rock faults of the front and rear mountains can be seen.

Grasshopper is used to simulate the shape of the randomly generated rock, and the results are selected for the shape of the roof trend and line of sight.

Axonometric Sections, drew solely, ©Rurban Studio 1F
Floorplan in concept design phase, developed with the instruction of Prof. Li li, drew solely, ©Rurban Studio
Outdoor terrace penetrates the hotel to reach the forest. Photographer: Hou bowen, ©Rurban Studio

05 SMART CLT

An Optimized Workflow of Automatically Producing CLT Panels at Minimize Loss

The Smart CLT workshop is a collaboration between computer science and design, aimed at optimizing the use of wood in producing Cross Laminated Timber (CLT) panels. During the saw-milling process required to produce regular lamellas for CLT panels, up to 50% of a tree trunk can be wasted. As CLT is becoming increasingly popular in the construction industry, the workshop's focus on reducing waste is both timely and critical. The workshop utilizes imaging technology and AI to design CLT panels consisting of lamellas that follow the natural, irregular forms of trees. By doing so, the production process is optimized, and offcuts are minimized.

Design period: 2023.6.24-2023.7.1

Location: Shanghai, China

Type: Material fabrication study

Instructors: Carlo Ratti, Mykola Murashko, Nikita Klimenko Team member:

Imaging team: Dan Luo, Qiming Sun, Ruipeng Wang, Yantong Xie; Algorithm team: Yuqing Huang, Xu Cheng; Fabrication team: Hongsheng Jiang, Hanlin Dong, Jin Gao, Jinghan Wu, Lijun Xiao; Workflow team: Ziying Qi, Toto Tan, Zhihao Zhou; Construction team: Adelaide Tremori, Filippo Innocenti, Maria Francesca Toti, Guglielmo Sobrini; Brochure & videa team: Wenlei Yang, Wenzhuo Zhao, Zhiyi Lin.

Category: Workshop

06 PAVILION OF WIND

A

Lithe

Bamboo Pavilion Featuring Tectonic Exploration of Big Span Bamboo Arch and Truss

The proposal engaged in keeping the memory of the ancient reservoir. Like the ancient Piscina Mirabilis which stored the source of life——water, it is now a museum in which exhibits the source of the spirit——art. The experience of gently walking down through a tunnel ‘surrounded’ by water to explore. What is 'under' the water is a unique visiting route in our proposal.

Design period: 2019.7-2019.12

Location: Anji, Zhejiang Province,China

Type: Special material study and construction

Team member: Huang yuqing (team leader), Deng xifan, Wang zitong, Yi jinqiu

Category: Competition

Role: Concept (100%), Modeling (100%), Drawing (80%), Handmade model (50%)

* Collaborated drawings have been marked with contributions. If not, they were completed independently.

Roof

- Asphalt shingles

- Asphalt waterproofing membrane

- 5mm Multi-layered planks

- 10mm Carbonized reed mat

Substructure

- Bamboo purlins (1 pole)

Main structure

- Herringbone support (5 poles)

- Main beam (6-7 poles)

- Chord (2 poles)

- Steel wire

- Arch rod (3 poles)

- Truss brace (1 pole)

Install the herringbone columns
Bamboo parallel reinforcement joint
Bamboo processed to be connected
Hand-made bamboo structure model (made by Yi jingqiu and me)
Landscape seeps inside from arch openings and skylight
Small amphitheater under bamboo truss

PORTFOLIO

HUANG YUQING

Selected Work 2014-2023

Turn static files into dynamic content formats.

Create a flipbook
Issuu converts static files into: digital portfolios, online yearbooks, online catalogs, digital photo albums and more. Sign up and create your flipbook.