LANEWAYHOME
FLEXIBLEURBANLIVINGINACOMPACTFOOTPRINT
PROJECTDETAILS
DATE:FALL2022
TYPE:FIRSTYEARARCHITECTURALTECHNOLOGYSTUDIO
SOFTWARES:AUTOCAD,SKETCHUP,PHOTOSHOP
LANEWAYHOMEWASDESIGNEDFORADENSE,URBANTORONTO
CONTEXT, OFFERING A FLEXIBLE SOLUTION FOR COMPACT LIVING. THE STRUCTURE INCLUDES A ONE-CAR GARAGE AT GROUND LEVEL WITH A VERSATILE LIVING SPACE ABOVE, DESIGNED TO FUNCTION AS AN OFFICE OR STUDIO EASILY CONVERTIBLE INTO A STUDIO APARTMENT WITH THE ADDITION OFASLEEPERSOFA.
STUDENTS WERE PROVIDED WITH THE FOOTPRINT OF THE SITE AND TASKED WITH DESIGNING BOTH THE INTERIOR AND EXTERIOR, PRODUCING FULL CONSTRUCTION DRAWINGS AND CREATING RENDERINGS THAT DEMONSTRATE THE HOME’S FUNCTIONALITY, ADAPTABILITY, AND INTEGRATION WITHIN A TIGHTURBANFABRIC.


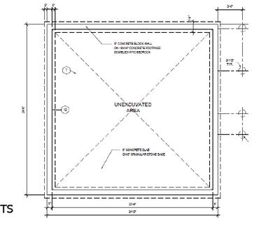
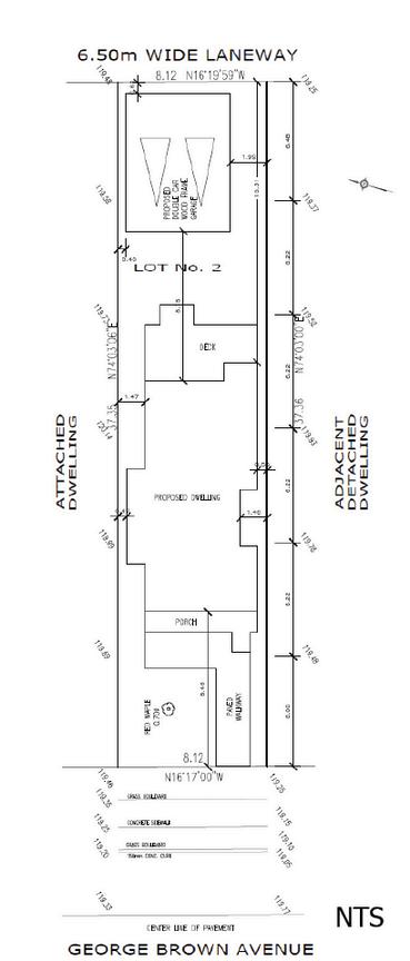
FOUNDATIONPLAN


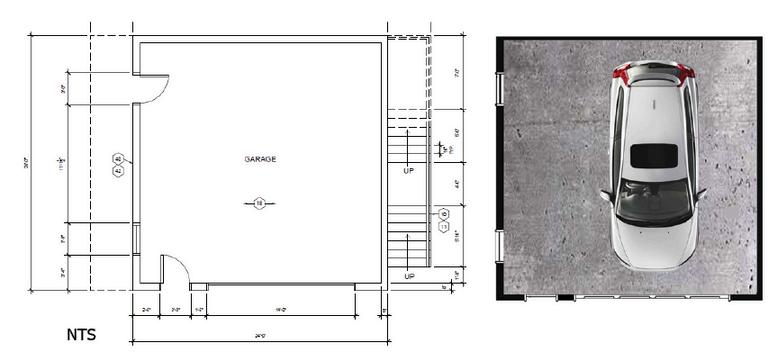
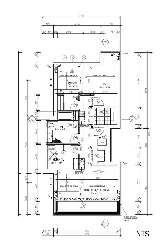
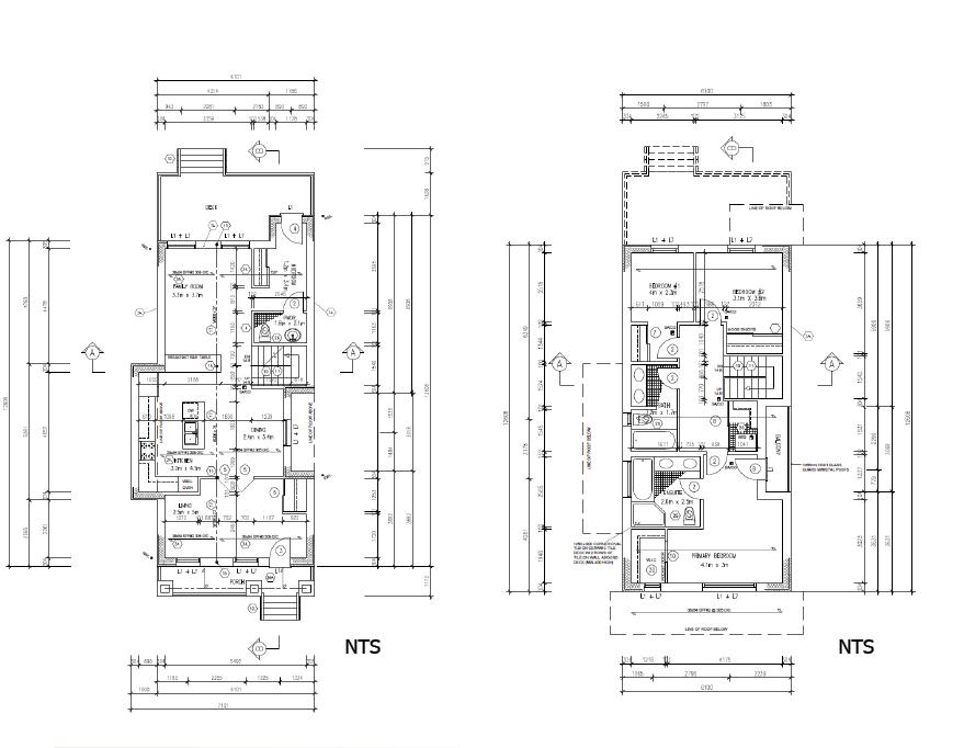
FIRSTFLOORPLAN

SECOND FLOORPLAN


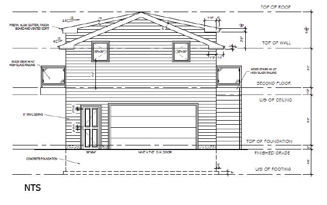
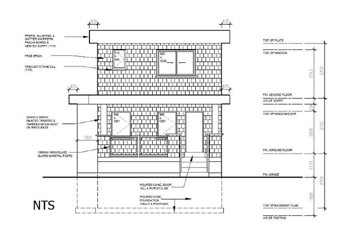
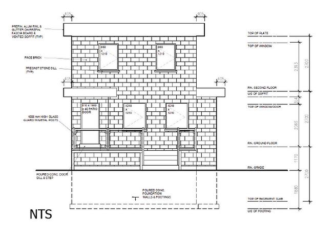
FRONTELEVATION

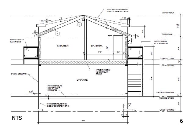
CROSSSECTION


MODERNRESIDENTIAL
ASTUDYINURBANLIVINGANDBUILDINGSYSTEMS
PROJECTDETAILS
DATE:WINTER2023
TYPE:FIRSTYEARARCHITECTURALTECHNOLOGYSTUDIO-PAIRSPROJECT
CONTRIUBUTOR:SALIALBARAKAT
SOFTWARES:AUTOCAD,SKETCHUP,PHOTOSHOP
MODERN RESIDENTIAL EXPLORES CONTEMPORARY CITY LIVING THROUGH THE DESIGN OF A TWO-STOREY FAMILY HOME, INTEGRATING BOTH INTERIOR AND EXTERIOR ELEMENTS. THE PROJECT EMPHASIZED THE DEVELOPMENT OF TECHNICAL SKILLS, INCLUDING A COMPREHENSIVE UNDERSTANDINGOFBUILDINGSTRUCTURE,THEONTARIOBUILDINGCODE (OBC),ANDCITYOFTORONTOBYLAWS.
STUDENTS WERE ASSIGNED A PARCEL OF LAND AND TASKED WITH DESIGNING A FULLY DETAILED RESIDENTIAL HOME, PRODUCING COMPLETE CONSTRUCTION DRAWINGS AND EXTERIOR RENDERINGS THAT DEMONSTRATEDBOTHAESTHETICINTENTANDSTRUCTURALFEASIBILITY.





FRONTELEVATION

BACKELEVATION


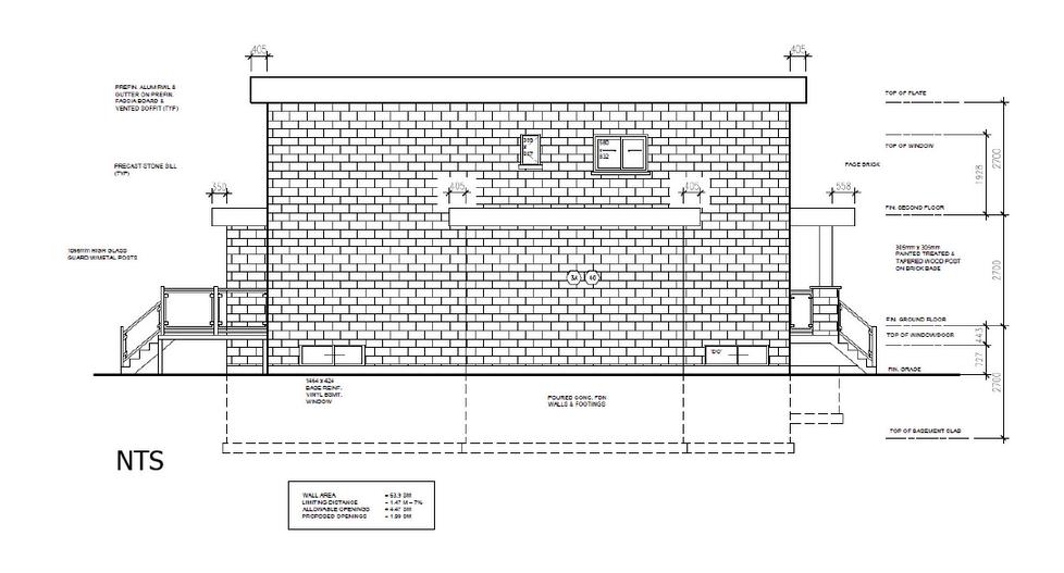
RIGHTELEVATION





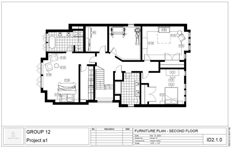
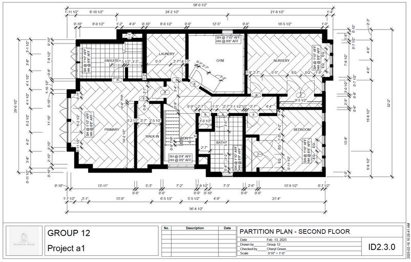
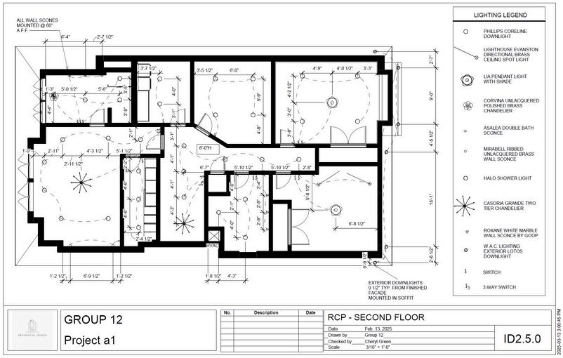
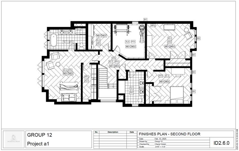
ROOMFORTWO
ANACCESSIBLEFAMILYCONDO

PROJECTDETAILS
DATE:WINTER2023
TYPE:SECONDYEARINTERIORDESIGNSTUDIO-PAIRSPROJECT
CONTRIUBUTOR:ERICAWILCOX
SOFTWARES:SKETCHUP V-RAY
ROOM FOR TWO IS A THOUGHTFULLY DESIGNED ACCESSIBLE CONDOTAILOREDFORJANEANDHERTEENAGESON,JESSE.WITH DISTINCT LIVING SPACES THAT REFLECT THEIR INDIVIDUAL INTERESTS,JANEENJOYSATRANQUILREADINGAREAWHILEJESSE HAS A DEDICATED SPACE TO SOCIALIZE AND PLAY VIDEO GAMES. THE KITCHEN SERVES AS A SHARED HUB WHERE THEY CAN RECONNECT, COOK, AND DO HOMEWORK TOGETHER. DESIGNED FOR FULL ACCESSIBILITY, THE SPACE ALLOWS JESSE, WHO USES A WHEELCHAIR, TO LIVE INDEPENDENTLY WHILE HIS MOTHER IS AT WORK FOSTERINGBOTHAUTONOMYANDCONNECTIONWITHIN THEHOME.
STUDENTS WERE PROVIDED WITH AN EXISTING CONDO FLOORPLAN AND TASKED WITH DESIGNING A FULLY ACCESSIBLE TWO-BEDROOM RESIDENCE THAT SUPPORTS INDEPENDENCE, FUNCTIONALITY,ANDCOMFORT.




Includestouchlatchcabinetswithpull downshelves





Includespulldownclothingrack

CURVEAPPEAL
AMODERNDECOFAMILYHOME
PROJECTDETAILS
DATE:FALL2023
TYPE:SECONDYEARINTERIORDESIGNSTUDIO-PAIRSPROJECT
CONTRIUBUTOR:ERIKAWILCOX
SOFTWARES:SKETCHUP PHOTOSHOP
CURVE APPEAL REINTERPRETS MODERN DECO STYLE THROUGH DYNAMIC MOVEMENT AND ORGANIC FORM AT 141 SORAUREN AVENUE.
CURVED WALLS GUIDE THE FLOW OF THE INTERIOR, CULMINATING IN A CIRCULAR LIVING SPACE AT THE HEART OF THE HOME A CONTEMPORARYNODTOTHECLASSICCONVERSATIONPIT.THISSENSE OF NATURAL MOVEMENT EXTENDS INTO THE KITCHEN AND DINING AREAS THROUGH THE CONTINUED USE OF SOFT, ORGANIC SHAPES.
ASCENDING THE CURVED STAIRCASE, THE GENTLE ARCS OF THE UPPER FLOOR WALLS MAINTAIN A FLUID SENSE OF DIRECTION, CREATING A COHESIVEANDINVITINGFAMILYHOME.
STUDENTS WERE TASKED WITH CONCEPTUALIZING AND DESIGNING THE INTERIOROFATWO-STOREYFAMILYRESIDENCEBASEDONANEXISTING BUILDINGFOOTPRINT.



First Floor











Second Floor














TAPIOGALLERY
ASUSTAINABLESPACEFORARTANDREFLECTION
PROJECTDETAILS
DATE:WINTER2024
TYPE:SECONDYEARINTERIORDESIGNSTUDIO-PAIRSPROJECT
CONTRIUBUTOR:MADDYO’CONNOR
SOFTWARES:REVIT,PHOTOSHOP
TAPIO IS A CONTEMPORARY ART GALLERY AND A MODEL FOR SUSTAINABILITY WITHIN THE ART WORLD, DEDICATED TO SHOWCASING WORKS CREATED WITH ECO-CONSCIOUS MATERIALS AND PRACTICES. DESIGNEDTOOFFERAMOMENTOFCALMREFLECTIONWITHINAHECTIC
URBAN ENVIRONMENT, THE GALLERY INVITES VISITORS TO EXPERIENCE ART WITHOUT ENVIRONMENTAL COMPROMISE. IN ALIGNMENT WITH ITS COREVALUES,ALLFINISHES,FURNISHINGS,ANDMATERIALSUSEDINTHE SPACEARESUSTAINABLYSOURCEDANDECO-FRIENDLY.
STUDENTS WERE PROVIDED WITH AN EXISTING RETAIL FLOORPLAN AND CHALLENGED TO DESIGN A SUSTAINABLE BUSINESS CONCEPT THAT INTEGRATES ENVIRONMENTAL RESPONSIBILITY INTO BOTH OPERATIONS ANDINTERIORDESIGN.
































FISK&HÄSTRESTAURANT
ACULINARYJOURNEYTHROUGHSCANDINAVIANTRADITION
PROJECTDETAILS
DATE:FALL2024
TYPE:THIRDYEARINTERIORDESIGNSTUDIO-GROUPPROJECT
CONTRIBUTORS:ERICAWILCOX,JULIAHERDSMAN
SOFTWARES:REVIT
AT FISK & HÄST, CRAFTSMANSHIP AND NATURE COME TOGETHER IN A CELEBRATION OF SWEDEN’S RICH COASTAL AND AGRARIAN HERITAGE. THE DESIGN DRAWS INSPIRATION FROM THE HORSES CARVED DURING WINTER’S QUIET SOLITUDE AND THE SHIPS THAT NAVIGATED SCANDINAVIA’S RUGGED COASTLINES, BRINGING IN THE BOUNTY OF THE SEA. THROUGH MATERIALS, TEXTURES,ANDSPATIALSTORYTELLING,THERESTAURANTOFFERSASENSORY
JOURNEY THROUGH THE CULTURAL RHYTHMS OF SWEDISH LIFE WHERE LAND, SEA AND TRADITION CONVERGE TO CREATE A WARM, AUTHENTIC DININGEXPERIENCE.
STUDENTS WERE GIVEN A DESIGNATED FOOTPRINT AND CHALLENGED TO DESIGNARESTAURANTTHATINCLUDEDBOTHAFULL-SERVICEDININGROOM ANDADEDICATEDTAKEOUTAREA.





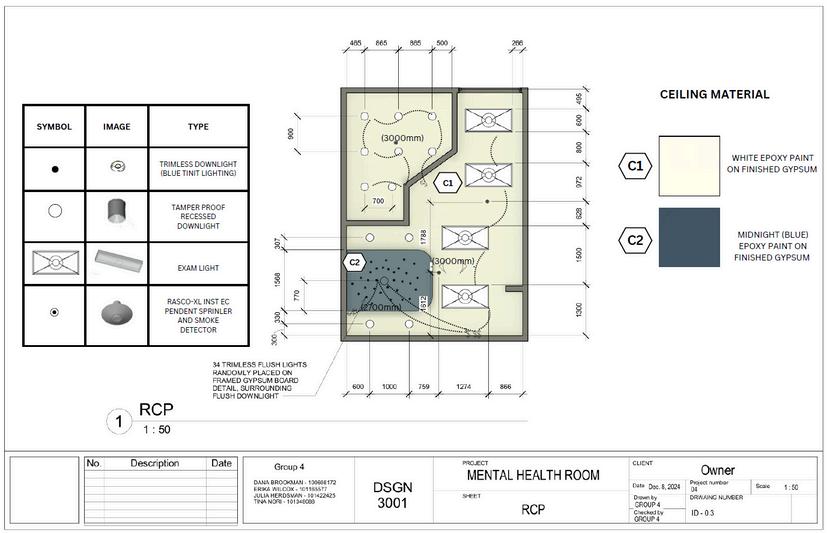
MOUNTAINVIEW
ARESTORATIVEMENTALHEALTHHOSPITALROOM
PROJECTDETAILS
DATE:FALL2025
TYPE:DESIGNFORHEALTHCARE-GROUPPROJECT
CONTRIUBUTORS:ERICAWILCOX,JULIAHERDSMAN,TINANORI
SOFTWARES:REVIT
MOUNTAIN VIEW HARNESSES THE THERAPEUTIC IMPACT OF NATURE TO CREATE A CALMING, RESTORATIVE ENVIRONMENT FOR YOUNG PATIENTS. SOOTHING COLOURS AND NATURAL ELEMENTS ARE CAREFULLY INTEGRATED TO BRING THE OUTDOORS IN FOSTERING A SENSE OF CONNECTION AND TRANQUILITY. MOUNTAIN IMAGERY IS USED SYMBOLICALLY, REFLECTING THE NON-LINEAR JOURNEY OF MENTAL HEALTH — THE UPS, DOWNS, AND STEADY RESILIENCE REQUIRED ALONG THEPATHTOWELL-BEING.
STUDENTS WERE TASKED WITH DESIGNING A JUVENILE BEHAVIOURAL AND MENTAL HEALTH HOSPITAL ROOM THAT CONFORMS TO ONTARIO BUILDING CODE (OBC) STANDARDS AND HEALTHCARE FACILITY GUIDELINES, ENSURING BOTH SAFETY AND EMOTIONAL SUPPORT THROUGH THOUGHTFUL DESIGN.


























































