




































![]()





































Fagleg og persónuleg
þjónusta



Boðskort · Matseðlar · Sætaskipan · Borðnúmer · Nafnspjöld



Klettastudio hannar meðal annars:
Auglýsingar · Bókakápur · Bæklinga · Ferilskrár · Logo
Matseðla · Plaköt · Skilti

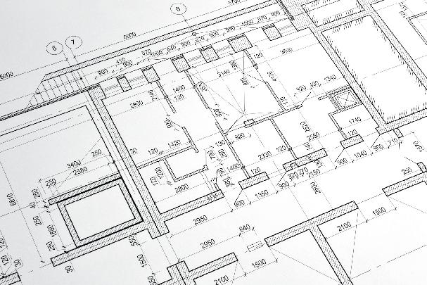
Drög að breytingu á Aðalskipulagi
Akureyrar 2018-2030 og deiliskipulagi verksmiðjusvæðis á Gleráreyrum
Skipulagsráð Akureyrarbæjar kynnir hér með tillögu á vinnslustigi að breytingu á
Aðalskipulagi Akureyrar 2018-2030 skv. 2.mgr. 30.gr. skipulagslaga nr. 123/2010.
Breytingin tekur til svæðis sem merkt er sem reitir VÞ6 ásamt nyrsta hluta ÍB4 sem liggur yfir brekkuna suðaustan við Glerártorg. Tillagan gerir ráð fyrir að svæðin tvö séu sameinuð og breytt í miðsvæði (M3). Heimild verður fyrir 100-150 íbúðum á svæðinu ásamt verslun- og þjónustu.
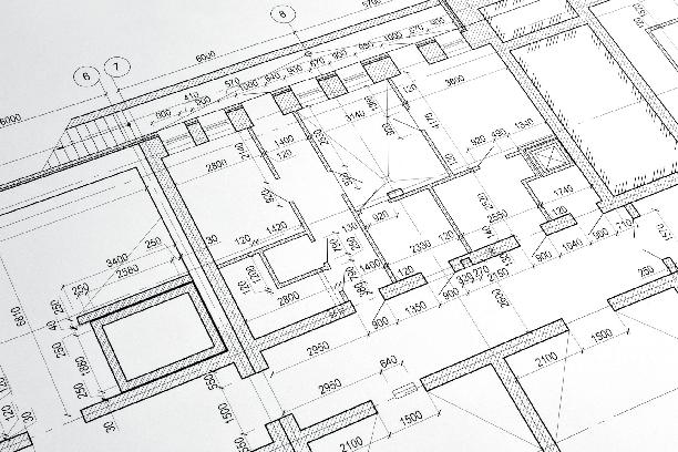
deiliskipulagi verksmiðjusvæðis
Breytingin felur í sér að svæði sem í núgildandi deiliskipulagi heimilar
íbúðabyggingar stækki til norðurs ásamt því að bæta við lóð syðst á skilgreindu svæði fyrir Gleráreyrar 10. Með þessum breytingum verður heimilt að byggja íbúðir, í bland við þjónustu- og verslunarrými á fyrstu tveimur hæðum húsanna, á lóðum Gleráreyra 2-10. Leyfileg hámarkshæð bygginganna verður frá 24 metrum og upp í 30 metra þar sem að efsta hæðin skal vera inndregin um að minnsta kosti 1,3 metra. Deiliskipulagið gerir ráð fyrir á bilinu 100-120 íbúðum á svæðinu.
Þeir sem þess óska geta kynnt sér tillögurnar og gert við þær athugasemdir. Tillöguuppdrætti ásamt greinargerðum má nálgast hjá þjónustu- og skipulagssviði í Ráðhúsi Akureyrar frá 21. ágúst til 12. september 2024. Tillögurnar munu jafnframt verða aðgengilegar á heimasíðu bæjarins á sama tíma: www.akureyri.is – neðst á forsíðu undir: Auglýstar skipulagstillögur og á Skipulagsgátt: skipulagsgatt.is
Athugasemdum þar sem nafn, kennitala og heimilisfang sendanda kemur fram má skila á netfangið skipulag@akureyri.is, bréfleiðis til Þjónustu- og skipulagssviðs, Ráðhúsi, Geislagötu 9, 600 Akureyri eða í gegnum Skipulagsgátt til og með 12. september 2024.
Akureyri, 21. ágúst 2024 Skipulagsfulltrúi
Geislagata 9 Sími 460 1000 www.akureyri.is skipulag@akureyri.is
SEPTEMBER / OKTÓBER
3D prentun 14.-15. SEPT.
Þinn eigin lampi 05. - 19. OKT.
*Staðnámskeið FABLAB - VMA
Leiðbeinandi: Árni Björnsson, FABLAB Akureyri


Grænmetisuppskeran
*Vefnámskeið 18. SEPT.
Leiðbeinandi: Auður I. Ottesen, garðyrkjufræðingur
Hugræn atferlismeðferð Kennt 12 skipti á þri. & fim.

Tölvustýrður fræsari
17., 19. & 21. SEPT.
Laserskurður 28. & 29. SEPT.
*Staðnámskeið FABLAB - VMA
Leiðbeinandi: Jón Þór Sigurðsson, FABLAB Akureyri

*Vefnámskeið HEFST 1. OKT.
Leiðbeinandi: Líney Úlfarsdóttir, sálfræðingur



*Staðnámskeið
• AKUREYRI 24. SEPT.
• DALVÍK 25. SEPT.
• ÓLAFSFIRÐI 26. SEPT.
Leiðbeinandi: Ásta Búadóttir, kennari og matreiðslumeistari

Snjalltækjanámskeið
*Staðnámskeið
• AKUREYRI 30. SEPT.
• SIGLUFJÖRÐUR 1. OKT.
• DALVÍK 2. OKT.
Leiðbeinandi: Snæbjörn Sigurðarson, tæknikennari

FRÍTT FYRIR FÉLAGSMENN:


Ath. að námskeiðin eru öllum opin og minnum við aðra en félagsmenn þessara félaga á að kanna rétt sinn hjá sínu stéttarfélagi.

á simey.is











Við viljum bæta
í hópinn hjá okkur:

Auglýsingar sem unnar eru hjá Dagskránni: Mánudagar kl. 10. Texta í auglýsingar þarf að skila á tölvutæku formi og myndum í prenthæfu ástandi
Auglýsingar sem koma tilbúnar til prentunar þurfa að berast fyrir kl. 16:00 á mánud.
Auglýsingapantanir berist á netfangið hera@dagskrain.is
Auglýsingaskil berist á netfangið dagskrain@dagskrain.is
Smáauglýsingar á netfangið sma@dagskrain.is
STÆRÐIR (br x hæð)
Forsíða
103 mm x 180 mm
Opna
284 mm x 219 mm
1/1 síða
135 mm x 219 mm
½ síða
135 mm x 108 mm
¼ úr síðu
66 mm x 108 mm
Borði
135 mm x 60 mm


13.00 Fréttir með táknmálstúlkun
13.25 Heimaleikfimi
13.35 Kastljós
14.00 Ljótu hálfvitarnir
14.40 Óvæntur arfur (6:6)
15.40 Dagur í lífi (2:8)
16.20 Orlofshús arkitekta (2:6)
16.50 Átök í uppeldinu (5:6)
17.30 Gulli byggir (3:6) e.
18.00 KrakkaRÚV
18.01 Kata og Mummi (7:12) e. 18.12 Ólivía (25:50)
18.21 Háværa ljónið Urri –Félagsskapur (17:52)
18.31 Fuglafár (29:52)
18.38 Hrúturinn Hreinn 5 (8:20)
18.45 Lag dagsins
18.52 Vikinglottó
19.00 Fréttir
19.25 Íþróttir
19.30 Veður
19.35 Kastljós
20.05 Með okkar augum XIV
20.40(2:6)Íslensk kvikmyndagerð (1:3)
(Sigurður Sverrir Pálsson kvikmyndatökustjóri)
21.05 Umsetinn (2:3)
(Dokument inifrån: Stalker)
22.00 Tíufréttir
22.15 Veður
22.20 Verbúðin (8:8) (8. kafli: Ísland)
23.15 Eldfimt leyndarmál II (2:6) (The Secrets She Keeps II) Önnur þáttaröð.
00.00 Dagskrárlok

13.00 Fréttir með táknmálstúlkun
13.25 Heimaleikfimi
13.35 Kastljós
13.55 Tæknin allt um kring e.
14.40 Steinsteypuöldin (2:5) e. 15.10 Stóra sviðið (2:5)
15.50 Söngvaskáld (5:9)
16.30 Orðbragð III (5:6)
17.05 Perlur Kvikmyndasafnsins (1:8)
17.30 Eldað úr afskurði (2:5)
18.00 KrakkaRÚV
18.01 Lesið í líkamann (8:10)
18.27 Hönnunarstirnin (7:10)
18.44 Íþróttastund
18.50 Lag dagsins
19.00 Fréttir
19.25 Íþróttir
19.30 Veður
19.35 Kastljós
20.00 Pabbasoð (7:8) (Berjabaka)
20.15 Fyrirtíðarspenna (PMS Forever) Sænskur heimildarþáttur frá 2021 um fyrirtíðaspennu.
21.05 Kæfandi ást III (2:6) (Smother III) Þriðja þáttaröð írsku spennuþáttanna um Val Alhern og fjölskyldu.
22.00 Tíufréttir
22.15 Veður
22.20 Neyðarvaktin (20:22) (Chicago Fire X)
23.05 Ráðherrann (1:8) e.
23.50 Dagskrárlok
08:00 Heimsókn (35:40)
08:25 Shark Tank (6:22)
09:10 Bold and the Beautiful
09:35 Fantasy Island (9:13)
10:15 NCIS (2:22)
10:40 Um land allt (8:22)
11:20 Hell’s Kitchen (3:16)
12:10 Neighbours (9067:148)
12:35 America’s Got Talent
13:45 Margra barna mæður
14:25 Afbrigði (8:8)
15:00 Sex í forgjöf (3:6)
15:30 Your Home Made Perfect (6:9)
16:20 Heimsókn (36:40)
16:45 Friends (20:24)
17:05 Friends (21:24)
17:27 Bold and the Beautiful
17:57 Neighbours (9068:148)
18:25 Veður
18:30 Fréttir Stöðvar 2
18:50 Sportpakkinn
18:55 Ísland í dag
19:10 Sullivan’s Crossing (8:10)
19:55 The Good Doctor (8:10)
20:40 LXS (5:6) (Gran Canaria 1)
21:05 The Client List (3:10)
21:50 The Night Shift (11:13)
22:40 Friends (20:24)
23:00 Friends (21:24)
23:25 Gasmamman (4:6)
00:10 Jagarna (2:6)
01:00 Ofsóknir (1:6)
01:45 Barry (8:8)
02:20 Fantasy Island (9:13)
03:00 NCIS (2:22)
08:00 Heimsókn (1:28)
08:15 Shark Tank (12:22)
09:00 Bold and the Beautiful (8915:750)
09:25 Grey’s Anatomy (2:20)
10:05 NCIS (8:22)
10:45 Um land allt (15:22)
11:15 Hell’s Kitchen (9:16)
12:00 Neighbours (9072:148)
12:20 Top 20 Funniest (3:18)
13:05 The Goldbergs (3:22)
13:25 Margra barna mæður (4:6)
14:00 PJ Karsjó (3:9)
14:30 Golfarinn (3:8)
14:55 Parental Guidance (3:9)
15:45 Heimsókn (2:28)
16:05 Hvar er best að búa? (6:7)
16:55 Friends (307:24)
17:15 Friends (308:24)
17:40 Bold and the Beautiful (8916:750)
18:00 Neighbours (9073:148)
18:28 Veður (235:365)
18:30 Fréttir Stöðvar 2
18:50 Sportpakkinn (234:365)
18:55 Ísland í dag (103:265)
19:10 Helvítis kokkurinn (3:8)
19:20 Steinda Con: Heimsins furðulegustu hátíðir (3:6)
19:55 Næturvaktin (2:13)
20:20 Æði (1:8)
20:45 Æði (2:8)
21:05 Shameless (9:12)
22:00 Shameless (10:12)
22:50 Friends (307:24)
23:15 Friends (308:24)
23:35 The Blacklist (5:22)
06:00 Tónlist
14:00 Survivor (4:14)
14:45 The Block (28:51)
16:25 Heima (1:6)
16:30 Heartland (15:18)
17:00 Tónlist
17:45 Everybody Hates Chris (19:22)
18:10 Rules of Engagement (2:15)
18:30 The Neighborhood (4:21)
18:50 Ghosts (9:22)
19:15 The King of Queens (1:25) Bandarísk gamanþáttaröð um skötuhjúin Doug og Carrie Heffernan.
19:35 Couples Therapy (5:9)
21:00 Chicago Med (3:13)
21:50 NCIS: Hawaii (3:10)
22:35 Good Trouble (12:20)
00:00 The Good Wife (16:22)
00:45 9-1-1 (2:10) Hörkuspennandi þáttaröð um hetjurnar á neyðarlínunni! Fylgstu með lögreglu, sjúkraliðum og slökkviliðsmönnum sem stökkva í hættuna til að bjarga lífum
01:30 George and Tammy (4:6) Stórbrotin þáttaröð um stormasamt ástarsamband kántrísöngvaranna Tammy Wynette og George Jones. Í aðalhlutverkum eru Óskarsverðlaunaleikkonan Jessica Chastain og Michael Shannon.
04:00 Tónlist
06:00 Óstöðvandi fótbolti
07:00 Dóra könnuður (7:26)
07:25 Skoppa og Skrítla enn út
07:35 Latibær 3 (10:13)
08:00 Hvolpasveitin (14:26)
08:20 Blíða og Blær (12:20)
08:45 Danni tígur (58:80)
08:55 Rusty Rivets 2 (6:26)
09:20 Svampur Sveinsson
09:40 Dóra könnuður (6:26)
10:05 Skoppa og Skrítla (1:10)
10:15 Latibær 3 (9:13)
10:40 Hvolpasveitin (13:26)
11:05 Blíða og Blær (11:20) 11:25 Danni tígur (57:80) 11:35 Rusty Rivets 2 (5:26) 12:00 The King’s Speech 13:55 Svampur Sveinsson 14:15 Dóra könnuður (5:26) 14:40 Skoppa og Skrítla (12:12) 14:55 Latibær 3 (8:13) 15:15 Hvolpasveitin (12:26)
15:40 Blíða og Blær (10:20) 16:05 Danni tígur (56:80) 16:15 Dóra könnuður (7:26) 16:40 Vinafundur (2:5)
16:50 Rusty Rivets 2 (4:26)
17:10 Svampur Sveinsson 17:35
19:00 Schitt’s Creek (6:13)
19:20 Fóstbræður (7:8) (Fóstbræður)
19:50 Næturvaktin (4:13) (Frægð)
20:15 Pressa (3:6) (Morðingjar)
21:00 Vertical Limit 23:00 Dazed and Confused 00:40 Chivalry (5:6) (5/6)
06:00 Tónlist
14:00 Survivor (4:14)
14:45 The Block (29:51)
15:45 Heartland (15:18)
17:00 Tónlist
17:45 Everybody Hates Chris (20:22)
18:10 Rules of Engagement (3:15)
18:30 The Neighborhood (5:21)
18:50 Ghosts (10:22)
19:15 The King of Queens (2:25) Bandarísk gamanþáttaröð um skötuhjúin Doug og Carrie Heffernan.
19:35 Frasier (3:10) Dr. Frasier Crane er kominn aftur. Eftir að pabbi hans deyr og sambandi hans og Charlotte lýkur ákveður Frasier að flytja aftur til Boston.
21:00 9-1-1 (3:10)
21:50 Sexy Beast (1:8) Dramatísk þáttaröð sem segir frá þjófunum Gal og Don sem taka að sér stórt verkefni fyrir þekktan glæpaforingja.
22:50 George and Tammy (5:6)
23:40 The Good Wife (17:22)
00:25 The Affair (8:10)
01:25 Gestir (4:1)
01:55 Run (4:7)
02:25 The Equalizer (4:10)
03:10 From (4:10)
04:00 Tónlist
06:00 Óstöðvandi fótbolti
07:00 Könnuðurinn Dóra (4:24)
07:25 Skoppa og Skrítla á póstkorti um Ísland (8:10)
07:35 Latibær (6:35)
08:00 Hvolpasveitin (10:25)
08:20 Shimmer and Shine 3 (14:20)
08:45 Danni tígur (80:80)
08:55 Dagur Diðrik (3:20)
09:20 Svampur Sveinsson (6:20)
09:40 Könnuðurinn Dóra (3:24)
10:05 Skoppa og Skrítla á póstkorti um Ísland (7:10) 10:20 Latibær (5:35)
10:45 Hvolpasveitin (9:25)
11:10 Shimmer and Shine 3
11:30 Danni tígur (79:80) 11:40 Dagur Diðrik (2:20)
12:05 I Don’t Know How She does it
13:35 Book of Love
15:15 Svampur Sveinsson
15:35 Könnuðurinn Dóra (2:24)
16:00 Skoppa og Skrítla á póstkorti um Ísland (6:10)
16:15 Hvolpasveitin (8:25)
16:35 Danni tígur (78:80)
16:50 Dagur Diðrik (1:20)
17:10 Svampur Sveinsson
17:35 Úbbs!
19:00 Schitt’s Creek (2:14)
19:20 Fóstbræður (5:7)
19:45 Þær tvær (6:6)
20:10 S.W.A.T. (16:22)
20:55 Oblivion
22:50 Gladiator
01:20 The PM’s Daughter 2 (3:10)




13.00 Fréttir með táknmálstúlkun
13.25 Heimaleikfimi
13.35 Kastljós
13.55 Gettu betur - Stjörnustríð (1:4) e.
15.05 Spaugstofan 2004-2005 (2:26) e.
15.35 Í 50 ár (3:9) e.
16.15 Útivist með Peltsi og Tom 16.25 Hvunndagshetjur (2:6) e.
17.00 Náttúran mín (2:4)
17.30 Græni slátrarinn (2:6)
18.00 KrakkaRÚV
18.01 Risaeðlu-Dana 3 (2:13)
18.22 Ofurhetjuskólinn 2
18.37 Húgó og draumagríman (3:18)
18.46 Krakkatónlist
18.50 Lag dagsins
19.00 Fréttir
19.25 Íþróttir
19.30 Veður
19.40 Tsatsiki - Pabbi og ólífustríðið (Tsatsiki, farsan och olivkriget) Sænsk fjölskyldumynd frá 2015. 21.15 Shakespeare og Hathaway (Shakespeare and Hathaway III)
22.05 My Old Lady (Parísardaman mín)
Bresk gamanmynd frá 2014 eftir Israel Horovitz.
23.55 Glastonbury 2023 (Glastonbury 2023) Samantekt frá tónlistarhátíðinni Glastonbury á Englandi 2023. 00.55 Dagskrárlok

08:00 Heimsókn (2:28)
08:15 Shark Tank (13:22)
09:00 Bold and the Beautiful
09:25 Grey’s Anatomy (3:20)
10:05 NCIS (9:22)
10:45 Um land allt (16:22)
11:15 Hell’s Kitchen (10:16)
12:00 Baklandið (5:6)
12:25 Top 20 Funniest (4:18)
13:05 Margra barna mæður (5:6)
13:35 PJ Karsjó (4:9)
14:05 Golfarinn (4:8)
14:30 Parental Guidance (4:9)
15:40 Heimaleikurinn
17:00 Heimsókn (3:28)
17:20 Made of Money with Brian Cox (2:2)
18:05 Bold and the Beautiful (8917:750)
18:25 Veður (236:365)
18:30 Fréttir Stöðvar 2
18:50 Sportpakkinn (235:365)
19:00 Puppy Love
20:45 Flamingo bar (1:6)
Vinirnir Bjarki og Tinna taka óvænta ákvörðun á djamminu og vakna upp í martröð sem þau reyna að breyta í spennandi verkefni.
21:10 The Dark Knight Einstaklega vel gerð spennumynd frá 2008.
23:35 Whitney Houston: I Wanna Dance with Somebody
01:55 Cocaine Bear
03:30 Made of Money with Brian Cox (2:2)
07.00 KrakkaRÚV
10.00 Dýrin taka myndir (2:2)
10.50 Stúdíó RÚV
11.15 Vesturfarar (10:10)
12.00 Æskuslóðir (1:8)
12.30 Sporið (4:6)
13.00 Fréttir með táknmálstúlkun
13.25 Faldar perlur með Bettany Hughes (3:6)
14.10 Ég sé þig
14.55 Íslendingar
15.40 Sagnameistarinn
16.45 Inndjúpið (1:4) e. 17.25 Lífsins lystisemdir
17.55 KrakkaRÚV
17.56 Töfratú (12:52)
18.08 Skrímslasjúkir snillingar (8:49)
18.19 Klassísku Strumparnir (2:10)
18.45 Sumarlandabrot
18.52 Lottó
19.00 Fréttir
19.25 Íþróttir
19.35 Veður
19.45 Tónaflóð á Menningarnótt Hátíðartónleikar Rásar 2 við Arnarhól í tilefni af Menningarnótt 2024.
23.15 Bohemian Rhapsody: Sagan af Freddie Mercury (Bohemian Rhapsody) Bíómynd frá 2018 í leikstjórn Bryans Singer um hljómsveitina Queen og söngvara hennar, Freddie Mercury.
01.25 Dagskrárlok
08:00 Söguhúsið (23:26)
09:50 Gus, riddarinn pínupons (46:52)
10:00 Rikki Súmm (52:52)
10:10 Smávinir (44:52)
10:20 100% Úlfur (13:26)
10:40 Denver síðasta risaeðlan (47:52)
10:50 Hunter Street (15:20)
11:15 Hvar er best að búa? (1:7)
12:15 Bold and the Beautiful 12:35 Bold and the Beautiful 13:00 Bold and the Beautiful 13:20 Bold and the Beautiful 13:40 Bold and the Beautiful
14:00 Who Do You Think You Are? (7:9)
15:00 Sullivan’s Crossing (9:10)
15:40 Rush (3:9)
16:45 Einkalífið (7:8)
17:40 Augnablik í lífi - Ragnar Axelsson (6:6)
17:55 Flamingo bar (1:6)
18:25 Veður (237:365)
18:30 Fréttir Stöðvar 2
18:50 Sportpakkinn (236:365)
19:00
Menningarnæturtónleikar Bylgjunnar 2024
22:35 Shoplifters of the World 00:00 Fear of Rain Spennutryllir frá 2021.
01:45 Sullivan’s Crossing (9:10)
02:25 Who Do You Think You Are? (7:9)
06:00 Tónlist
14:00 Survivor (5:14)
14:45 The Block (30:51)
15:45 Heartland (16:18)
17:00 Tónlist
17:45 Everybody Hates Chris (21:22)
18:10 Rules of Engagement (4:15)
18:30 The Neighborhood (6:21)
18:50 Ghosts (11:22)
19:15 The King of Queens (3:25) Bandarísk gamanþáttaröð um skötuhjúin Doug og Carrie Heffernan.
19:35 Frasier (4:10)
20:10 The Bachelorette (7:11)
21:40 Judy Skemmtikrafturinn Judy Garland kemur til Lundúna að vetri til árið 1968 til að syngja á röð tónleika, en uppselt er á þá alla.
23:45 Minority Report Minority Report gerist árið 2054, Cruise leikur John Anderton, yfirmann Pre-Crime deildarinnar (þar sem þrír einstaklingar sjá fyrir öll morð sem munu gerast og eru morðingjarnir handteknir áður en þeir ná að framkvæma glæpinn).
02:15 The Goods: Live Hard, Sell Hard
03:45 Tónlist
06:00 Óstöðvandi fótbolti Sport
07:00 Könnuðurinn Dóra (5:24)
07:25 Skoppa og Skrítla á póstkorti um Ísland (9:10)
07:35 Latibær (7:35)
08:00 Hvolpasveitin (11:25)
08:20 Shimmer and Shine 3
08:40 Danni tígur (1:80)
08:55 Dagur Diðrik (4:20)
09:15 Svampur Sveinsson
09:40 Könnuðurinn Dóra (4:24)
10:05 Skoppa og Skrítla á póstkorti um Ísland (8:10)
10:15 Latibær (6:35)
10:40 Hvolpasveitin (10:25) 11:05 Shimmer and Shine 3
11:25 Danni tígur (80:80) 11:35 Dagur Diðrik (3:20)
12:00 The Professional Bridesmaid 13:25 The Comeback Trail 15:05 Svampur Sveinsson 15:25 Könnuðurinn Dóra (3:24) 15:50 Skoppa og Skrítla á póstkorti um Ísland (7:10)
16:05 Latibær (5:35)
16:30 Hvolpasveitin (9:25)
16:55 Shimmer and Shine 3
17:15 Dagur Diðrik (2:20)
17:40 Clara 19:00 Schitt’s Creek (3:14)
19:20 Fóstbræður (6:7)
19:50 American Dad (5:22) 20:10 Steypustöðin (3:6)
20:40 Big George Foreman: The Miraculous Story of the Once and Future Heavyweight Champion of the World
22:45 The War Below
06:00 Tónlist
13:30 Man. City - Ipswich
16:00 Survivor (6:14)
16:45 The Block (31:51)
17:45 Heartland (17:18)
18:30 Everybody Hates Chris (22:22)
18:55 Rules of Engagement (5:15)
19:15 The Neighborhood (7:21)
19:35 Ghosts (12:22)
20:00 The King of Queens (4:25)
20:20 Fighting with My Family Sönn saga glímudrottningarinnar Sarayu-Jade Bevis sem undir sviðsnafninu Britani Knight (síðar Paige).
22:15 Tully Marlo er nýorðin móðir í þriðja sinn og er alveg úrvinda af þreytu og svefnleysi því fyrir utan umstangið í kringum nýfædda barnið eru hin tvö börnin, fimm og átta ára, líka þurftarfrek.
23:55 There Will Be Blood Myndin byggir lauslega á skáldssögu frá 1927 eftir Upton Sinclair. Daniel Plainview (Daniel Day-Lewis) byrjar starfsferilinn á því að grafa eftir silfri en finnur olíuæð fyrir slysni.
02:40 Unhinged
Sport
06:00 Óstöðvandi fótbolti
11:00 Brighton - Man. Utd.
13:30 Man. City - Ipswich
16:00 Aston Villa - Arsenal
18:30 Óstöðvandi fótbolti
07:00 Könnuðurinn Dóra (6:24)
07:25 Skoppa og Skrítla á póstkorti um Ísland (10:10)
07:35 Latibær (8:35)
08:00 Hvolpasveitin (12:25)
08:20 Shimmer and Shine 3 (16:20)
08:40 Danni tígur (2:80)
08:55 Dagur Diðrik (5:20) 09:15 Svampur Sveinsson (8:20)
09:40 Könnuðurinn Dóra (5:24) 10:05 Skoppa og Skrítla á póstkorti um Ísland (9:10) 10:15 Latibær (7:35) 10:40 Hvolpasveitin (11:25) 11:00 Shimmer and Shine 3 (15:20)
11:25 Danni tígur (1:80) 11:35 Dagur Diðrik (4:20)
12:00 What to Expect When You are Expecting
13:45 Love, Classified 15:10 Svampur Sveinsson 15:35 Könnuðurinn Dóra (4:24)
16:00 Skoppa og Skrítla á póstkorti um Ísland (8:10) 16:10 Latibær (6:35)
16:35 Hvolpasveitin (10:25)
16:55 Shimmer and Shine 3
17:20 Dagur Diðrik (3:20)
19:00 Schitt’s Creek (4:14)
19:20 Fóstbræður (7:7)
19:45 Simpson-fjölskyldan
20:05 Bob’s Burgers (14:22)
20:30 Batman Returns
22:30 In a Relationship
23:55 Orphan: First Kill 01:30 S.W.A.T. (16:22)



Pestana Carlton 5
19. nóv - 7 nætur
Verð frá 124.900 kr. á mann
m.v. 2 fullorðna. Morgunverður innifalinn.

Pestana Promenade Resort 4
3. des - 7 nætur
Verð frá 105.900 kr. á mann
m.v. 2 fullorðna. Morgunverður innifalinn.

Allegro Madeira 4
21. jan - 7 nætur
Verð frá 99.900 kr. á mann
m.v. 2 fullorðna. Morgunverður innifalinn.
Madeira er töfrandi eyja í Atlantshafinu sem tilheyrir Portúgal. Í hjarta Madeira liggur höfuðborgin Funchal sem er skemmtileg og lifandi borg. Þarna er að finna sjarmerandi steini lagðar götur, litrík hús og ýmis söguleg kennileiti. Matargerð heimamanna er frábær og ekki skaðar að vínmenningin er engu síðri. Á eyjunni er að finna stórbrotið landslag, allt frá mögnuðum fjöllum í dali þar sem vínekrur blómstra. Beint flug vikuleg með Play á þriðjudögum frá Keflavík frá 15.október til 3. júní. Madeira er dásamlegur áfangastaður sem allir ættu að heimsækja. Ekki bíða, bókaðu þína ferð á netinu eða sendu okkur póst á tango@tango.travel og við finnum ferðina fyrir þig.


07.15 KrakkaRÚV
10.00 Kína: Verndun fornrar náttúru (3:3)
10.50 Tilraunin (2:2)
11.35 Tónstofan
12.00 Rökstólar e.
12.15 Sofðu vel
13.00 Fréttir með táknmálstúlkun
13.25 Kvöldstund með listamanni 1986-1993
14.15 Perlur Kvikmyndasafnsins (1:8)
14.45 Reimleikar (4:6)
15.15 Ikea-arfurinn (2:2)
16.15 Pricebræður þræða Norðurlöndin (1:6)
17.00 Úti (5:6)
17.30 Basl er búskapur (2:10)
18.00 KrakkaRÚV
18.01 Söguspilið (6:7)
18.26 Björgunarhundurinn Bessí (20:24)
18.34 Undraveröld villtu dýranna (20:40)
18.40 Andy og ungviðið (13:20)
18.50 Sumarlandabrot
19.00 Fréttir
19.25 Íþróttir
19.35 Veður
19.45 Perlur Kvikmyndasafnsins (2:8)
20.15 Umhverfis jörðina á 80 dögum (2:8)
21.05 Jón Ólafsson 60 ára
22.50 Ítalíuferðin (The Trip to Italy)
Bresk gamanmynd frá 2014.
00.35 Dagskrárlok

13.00 Fréttir með táknmálstúlkun
13.25 Heimaleikfimi
13.35 Gettu betur (2:4) e. 14.50 Með okkar augum XIV (2:6)
15.20 Andri á flandri (3:6)
15.50 Heil manneskja (3:5)
16.20 Fiskur á disk – Makríll (3:3)
17.05 Biðin eftir þér (1:8) 17.20 Opnun e. 17.55 KrakkaRÚV
17.56 Lundaklettur (10:39)
18.03 Bursti – Ég þarf að fá plástur (23:32)
18.07 Molang 5 (6:46)
18.12 Ferðir Trymbils (3:13)
18.20 Rán - Rún (24:52)
18.25 Tillý og vinir (31:52)
18.36 Blæja (14:27)
18.43 Símon (8:52)
18.50 Lag dagsins
19.00 Fréttir
19.25 Íþróttir
19.30 Veður
19.35 Kastljós
20.00 Æskuslóðir (2:8)
20.30 Sofðu vel – Anna Mannheimer (3:4)
21.15 Brot úr Lífsins lystisemdum
21.25 Að baki hvers manns (4:8)
22.00 Tíufréttir
22.10 Veður
22.15 Silfrið
23.10 Níunda sinfónía Beethovens um veröld víða 00.10 Dagskrárlok
08:00 Rita og krókódíll (7:20)
08:30 Sólarkanínur (2:13)
08:40 Pipp og Pósý (9:52)
08:45 Rikki Súmm (33:52)
09:00 Geimvinir (8:52)
09:10 100% Úlfur (9:26)
09:30 Mia og ég (9:26)
09:55 Náttúruöfl (1:25)
10:00 The Pirates! Band of Misfits
11:25 Hvar er best að búa? (4:6)
12:10 Neighbours (9070:148)
12:35 Neighbours (9071:148)
12:55 Neighbours (9072:148)
13:15 Neighbours (9073:148)
13:35 The Night Shift (12:13)
14:20 The Good Doctor (9:10)
15:00 The Big C (8:13)
15:30 Helvítis kokkurinn (3:8)
15:45 The Dog House (9:9)
16:30 Sjálfstætt fólk (69:107)
17:05 Útkall (6:8)
17:40 60 Minutes (48:52)
18:25 Veður (238:365)
18:30 Fréttir Stöðvar 2
18:50 Sportpakkinn (237:365)
19:00 Tónlistarmennirnir okkar (1:6)
19:40 Rush (4:9)
20:50 Grantchester (7:8)
21:40 Succession (2:9)
22:40 The Dark Knight Einstaklega vel gerð spennumynd frá 2008 með Heath Ledger, Christian Bale og Aaron Eckhart.
01:10 Magnum P.I. (12:20)
01:50 The Big C (8:13)
26. ágúst
08:00 Heimsókn (3:28)
08:15 Shark Tank (14:22)
09:00 Bold and the Beautiful (8917:750)
09:25 Grey’s Anatomy (4:20)
10:05 NCIS (10:22)
10:45 Um land allt (17:22)
11:15 Hell’s Kitchen (11:16)
12:00 Neighbours (9073:148)
12:25 Top 20 Funniest (5:18)
13:05 The Goldbergs (4:22)
13:25 Margra barna mæður (6:6)
14:00 PJ Karsjó (5:9)
14:20 Golfarinn (5:8)
14:55 Parental Guidance (5:9)
15:45 Hvar er best að búa? (4:8)
16:25 Heimsókn (4:28)
16:45 Friends (309:24)
17:05 Friends (310:24)
17:30 Bold and the Beautiful (8918:750)
18:00 Neighbours (9074:148)
18:25 Veður (239:365)
18:30 Fréttir Stöðvar 2
18:50 Sportpakkinn (238:365)
18:55 Ísland í dag (104:265)
19:10 Útkall (7:8)
19:40 Sjálfstætt fólk (97:107)
20:10 Signora Volpe (2:3)
21:45 Tónlistarmennirnir okkar (1:6)
22:25 The Sopranos (11:13)
23:15 The Sopranos (12:13)
00:00 60 Minutes (48:52)
00:45 Grantchester (7:8)
01:30 Friends (309:24)
01:55 Friends (310:24)
06:00 Tónlist
13:50 Survivor (7:14)
14:35 The Block (32:51)
15:35 Heartland (18:18)
17:30 Völlurinn (2:33)
18:30 Everybody Hates Chris (1:22)
18:55 Rules of Engagement (6:15)
19:15 The Neighborhood (8:21)
19:35 Ghosts (13:22)
20:00 The King of Queens (5:25)
20:20 Gestir (5:1)
20:50 Run (5:7)
21:20 The Equalizer (5:10) Spennandi þættir með Queen Latifah í aðalhlutverki. Þetta er ný útgáfa af frægum þáttum frá 1985. Robyn McCall er kraftmikil kona með dularfulla fortíð sem notar fjölbreytta hæfileika sína til að hjálpa þeim sem eiga ekki í nein önnur hús að venda.
22:10 From (5:10)
23:00 The Good Wife (18:22)
23:45 The Affair (9:10)
00:45 Cobra (5:6)
01:30 Grease: Rise of the Pink Ladies (8:10)
02:20 Mayans M.C. (6:10)
03:15 Tónlist
06:00 Óstöðvandi fótbolti
12:30 Wolves - Chelsea
15:00 Liverpool - Brentford
17:30 Völlurinn (2:33)
18:30 Óstöðvandi fótbolti
07:00 Könnuðurinn Dóra (7:24)
07:25 Óskastund með Skoppu og Skrítlu (1:10)
07:35 Latibær (9:35)
08:00 Hvolpasveitin (13:25)
08:20 Shimmer and Shine 3
08:45 Danni tígur (3:80)
08:55 Dagur Diðrik (6:20)
09:20 Svampur Sveinsson
09:40 Könnuðurinn Dóra (6:24)
10:05 Skoppa og Skrítla á póstkorti um Ísland (10:10) 10:15 Latibær (8:35)
10:40 Hvolpasveitin (12:25)
11:00 Shimmer and Shine 3 11:25 Danni tígur (2:80)
11:35 Dagur Diðrik (5:20) 12:00 Hook 14:15 Svampur Sveinsson 14:40 Könnuðurinn Dóra (5:24) 15:00 Skoppa og Skrítla á póstkorti um Ísland (9:10) 15:15 Latibær (7:35) 15:40 Hvolpasveitin (11:25) 16:00 Shimmer and Shine 3 16:20 Danni tígur (1:80) 16:35 Dagur Diðrik (4:20) 16:55 Svampur Sveinsson 17:20 Könnuðurinn Dóra (6:24) 17:45 Skoppa og Skrítla á póstkorti um Ísland (10:10)
17:55 Bamse and the Thunderbell
19:00 Schitt’s Creek (5:14)
19:20 Fóstbræður (1:8)
19:50 Tekinn (4:13)
20:15 Sneaky Pete (6:10)
21:00 Bridesmaids 23:00 Cold Brook
06:00 Tónlist
13:15 Survivor (8:14)
14:00 The Block (33:51)
15:00 George Clarke’s Remarkable Renovations (1:6)
15:45 That Animal Rescue Show (8:10)
17:15 Everybody Hates Chris (2:22)
17:40 Rules of Engagement (7:15)
18:00 The Neighborhood (9:21)
18:20 Ghosts (14:22)
18:45 The King of Queens (6:25)
19:05 Frasier (5:10)
19:40 Solsidan (2:10) Sprenghlægilegur þáttur sem fjallar um tannlækninn Alex og eiginkonu hans, atvinnulausu leikkonuna Önnu, sem flytja í sænska smábæinn Saltsjöbaden þar sem skrautlegir karakterar leynast víða.
20:10 Tough As Nails (7:10)
21:00 Cobra (6:6)
21:50 Völlurinn (2:33)
22:50 Mayans M.C. (7:10)
23:50 The Good Wife (19:22)
00:35 The Affair (10:10)
01:35 FBI (1:13)
02:20 FBI: International (1:13)
03:05 FBI: Most Wanted (1:13)
03:50 Tónlist
06:00 Óstöðvandi fótbolti
07:00 Könnuðurinn Dóra (8:24)
07:25 Óskastund með Skoppu og Skrítlu (2:10)
07:35 Latibær (10:35) 08:00 Hvolpasveitin (14:25)
08:20 Shimmer and Shine 3
08:45 Danni tígur (4:80)
08:55 Dagur Diðrik (7:20)
09:20 Svampur Sveinsson
09:40 Könnuðurinn Dóra (7:24) 10:05 Óskastund með Skoppu og Skrítlu (1:10)
10:20 Latibær (9:35) 10:40 Hvolpasveitin (13:25) 11:05 Shimmer and Shine 3 11:25 Danni tígur (3:80) 11:40 Dagur Diðrik (6:20) 12:00 Perfect Harmony 13:25 Misbehaviour
15:10 Svampur Sveinsson
15:30 Könnuðurinn Dóra (6:24)
15:55 Skoppa og Skrítla á póstkorti um Ísland (10:10)
16:05 Latibær (8:35)
16:30 Hvolpasveitin (12:25)
16:50 Shimmer and Shine 3
17:15 Dagur Diðrik (5:20)
17:35 Vic the Viking and the Magic Sword
19:00 Schitt’s Creek (6:14)
19:20 Fóstbræður (2:8)
19:50 Stelpurnar (1:20)
20:10 Corpo Libero (3:6) 21:00 65 Spennu- og ævintýramynd frá 2023.
22:30 Oppenheimer 01:20 Sneaky Pete (5:10)




13.00 Fréttir með táknmálstúlkun
13.25 Heimaleikfimi
13.35 Kastljós
13.55 Silfrið
14.55 Gettu betur - Stjörnustríð (3:4) e.
16.10 Kaupmannahöfn - höfuðborg Íslands (5:6)
16.35 Spaugstofan 2004-2005 (3:26) e.
17.00 Fyrir alla muni (3:6)
17.30 Nördar - ávallt reiðubúnir
18.00(5:6)KrakkaRÚV
18.01 Strumparnir – Barnafár (27:52) e.
18.12 Strumparnir (26:52)
18.23 Hinrik hittir (5:26) e.
18.28 Friðþjófur forvitni (3:6)
18.50 Lag dagsins
19.00 Fréttir
19.25 Íþróttir
19.30 Veður
19.35 Kastljós
20.00 Pricebræður þræða Norðurlöndin – Svíþjóðseinni hluti (2:6) (Spise med Price: Nordisk Odyssé)
20.55 Saga Svíþjóðar –Steinöld, fyrir um 14.5003700 árum (1:10) (Historien om Sverige)
22.00 Tíufréttir
22.15 Veður
22.20 Sársaukapunkturinn (3:3)
23.20 Útrás – 1. Lasarus (1:7) e. (Exit III)
00.00 Dagskrárlok

13.00 Fréttir með táknmálstúlkun
13.25 Heimaleikfimi
13.35 Kastljós
14.00 Gettu betur (4:4) e. 15.10 Hönnunarkeppni 2024 15.45 Dagur í lífi (3:8)
16.20 Orlofshús arkitekta (3:6)
16.50 Átök í uppeldinu (6:6)
17.30 Gulli byggir (4:6) e. 18.00 KrakkaRÚV
18.01 Kata og Mummi (8:12) e. 18.12 Ólivía (26:50)
18.22 Háværa ljónið Urri – Urrið í skóginum (18:52)
18.32 Fuglafár (30:52)
18.39 Hrúturinn Hreinn 5 (9:20)
18.45 Lag dagsins
18.52 Vikinglottó
19.00 Fréttir
19.25 Íþróttir
19.30 Veður
19.35 Kastljós
20.00 Með okkar augum XIV
20.35(3:6)Íslensk kvikmyndagerð (3:3) (Skjaldborg 2024) Nýir heimildarþættir þar sem fjallað er um ýmislegt markvert úr heimi íslenskrar kvikmyndagerðar.
20.55 Fjallakór á Miðfelli
21.05 Umsetinn (3:3)
22.00 Tíufréttir
22.15 Veður
22.20 Trump V Harris: The Battle For America
23.10 Eldfimt leyndarmál II (3:6)
23.55 Dagskrárlok
08:00 Heimsókn (4:28)
08:15 Shark Tank (15:22)
09:00 Bold and the Beautiful (8918:750)
09:25 Grey’s Anatomy (5:20)
10:00 NCIS (11:22)
10:45 Um land allt (18:22)
11:15 Hell’s Kitchen (12:16)
12:00 Neighbours (9074:148)
12:25 Top 20 Funniest (6:18)
13:05 The Goldbergs (5:22)
13:25 Líf dafnar (1:6)
14:05 PJ Karsjó (6:9)
14:25 Golfarinn (6:8)
15:00 Parental Guidance (6:9)
15:50 Hvar er best að búa? (6:8)
16:30 Heimsókn (5:28)
16:45 Friends (311:24)
17:10 Friends (312:24)
17:35 Bold and the Beautiful (8919:750)
18:00 Neighbours (9075:148)
18:25 Veður (240:365)
18:30 Fréttir Stöðvar 2
18:50 Sportpakkinn (239:365)
18:55 Ísland í dag (105:265)
19:10 Einkalífið (8:8)
20:00 Who Do You Think You Are? (8:9)
21:05 The Big C (9:13)
21:35 Barry (2:8)
22:05 True Detective (4:8)
23:05 Friends (311:24)
23:25 Friends (312:24)
23:50 Signora Volpe (2:3)
01:20 La Brea (5:14)
02:00 Heimilisofbeldi (2:6)
02:35 The Client List (4:10)
08:00 Heimsókn (5:28)
08:15 Shark Tank (16:22)
09:00 Bold and the Beautiful (8919:750)
09:20 Grey’s Anatomy (6:20)
10:05 NCIS (12:22)
10:50 Um land allt (19:22)
11:15 Hell’s Kitchen (13:16)
12:00 Neighbours (9075:148)
12:25 Top 20 Funniest (7:18)
13:05 The Goldbergs (6:22)
13:25 Líf dafnar (2:6)
14:05 PJ Karsjó (7:9)
14:25 Golfarinn (7:8)
15:00 Parental Guidance (7:9)
15:50 Hvar er best að búa ? (2:3)
16:25 Heimsókn (6:28)
16:45 Friends (313:24)
17:05 Friends (314:24)
17:30 Bold and the Beautiful (8920:750)
18:00 Neighbours (9076:148)
18:25 Veður (241:365)
18:30 Fréttir Stöðvar 2
18:50 Sportpakkinn (240:365)
18:55 Ísland í dag (106:265)
19:10 Sullivan’s Crossing (10:10)
19:55 The Good Doctor (10:10)
20:45 The Client List (5:10)
21:30 The Night Shift (13:13)
22:10 Friends (313:24)
22:30 Friends (314:24)
22:55 Gasmamman (6:6)
23:40 Jagarna (4:6)
00:25 Heimilisofbeldi (3:6)
01:00 Barry (2:8)
01:30 The Goldbergs (6:22)
06:00 Tónlist
14:00 Survivor (9:14)
14:45 The Block (34:51)
15:45 Couples Therapy (5:9)
17:00 Tónlist
17:40 Everybody Hates Chris (3:22)
18:05 Rules of Engagement (8:15)
18:25 The Neighborhood (10:21)
18:45 Ghosts (15:22)
19:10 The King of Queens (7:25)
19:30 That Animal Rescue Show (9:10)
20:10 Beyond the Edge (7:10)
21:00 FBI (2:13)
21:50 FBI: International (2:13)
22:35 FBI: Most Wanted (2:13)
23:20 Grease: Rise of the Pink Ladies (9:10)
00:20 The Good Wife (20:22)
01:05 The Affair (1:12) Skáldsagnahöfundur í erfiðleikum og ung þjónustustúlka stofna til sambands utan hjónabands sem breytir lífi þeirra að eilífu.
01:55 Chicago Med (3:13)
02:40 NCIS: Hawaii (3:10)
03:25 Good Trouble (12:20) Bandarísk þáttaröð um tvær ungar konur sem flytja til Los Angeles og hefja nýjan kafla í lífi sínu í stjörnuborginni.
04:10 Tónlist
06:00 Óstöðvandi fótbolti
07:00 Könnuðurinn Dóra (9:24)
07:25 Óskastund með Skoppu og Skrítlu (3:10)
07:35 Latibær (11:35)
08:00 Hvolpasveitin (15:25)
08:20 Shimmer and Shine 3
08:40 Danni tígur (5:80)
08:55 Dagur Diðrik (8:20)
09:15 Svampur Sveinsson
09:40 Könnuðurinn Dóra (8:24)
10:05 Óskastund með Skoppu og Skrítlu (2:10)
10:20 Latibær (10:35)
10:40 Hvolpasveitin (14:25) 11:05 Shimmer and Shine 3 11:25 Danni tígur (4:80) 11:35 Dagur Diðrik (7:20) 12:00 Silver Linings Playbook 14:00 Svampur Sveinsson 14:20 Könnuðurinn Dóra (7:24) 14:45 Óskastund með Skoppu og Skrítlu (1:10) 15:00 Latibær (9:35)
15:20 Hvolpasveitin (13:25) 15:45 Shimmer and Shine 3
16:05 Danni tígur (3:80)
16:20 Dagur Diðrik (6:20)
16:40 Svampur Sveinsson
17:05 Könnuðurinn Dóra (8:24) 17:25 Óskastund með Skoppu og Skrítlu (2:10)
17:40 Latte & the Magic Waterstone
19:00 Schitt’s Creek (7:14)
19:20 Fóstbræður (3:8)
19:50 The PM’s Daughter 2 20:15 Blinded (5:8)
20:55 It’s Complicated 22:55 Moonfall
06:00 Tónlist
14:00 Survivor (10:14)
14:45 The Block (35:51)
15:45 Heima (3:6)
17:00 Tónlist
17:55 Everybody Hates Chris (4:22)
18:20 Rules of Engagement (9:15)
18:40 The Neighborhood (11:21)
19:00 Ghosts (16:22)
19:25 The King of Queens (8:25)
19:45 Dream Team: Birth of the Modern Athlete (3:5)
20:25 Couples Therapy (6:9)
21:00 Chicago Med (4:13)
21:50 NCIS: Hawaii (4:10)
22:35 Good Trouble (13:20)
23:20 Ze Network (2:8) Skemmtileg þáttaröð þar sem gamla Baywatch-stjarnan David Hasselhoff leikur sjálfan sig. Hann fær engin hlutverk í Hollywood en býðst starf í Þýskalandi, þar sem hann er ennþá stórt nafn. Ekki er þó allt sem sýnist og fljótlega flækist hann í alþjóðlegan svikavef.
00:05 The Good Wife (21:22)
00:50 The Affair (2:12)
01:40 9-1-1 (3:10)
02:25 Sexy Beast (1:8)
03:25 George and Tammy (5:6) 04:10 Tónlist
Óstöðvandi fótbolti
07:00 Könnuðurinn Dóra
07:25 Óskastund með Skoppu og Skrítlu (4:10)
07:35 Latibær (12:35)
08:00 Hvolpasveitin (16:25)
08:20 Shimmer and Shine 3
08:40 Danni tígur (6:80)
08:55 Dagur Diðrik (9:20) 09:15 Svampur Sveinsson
09:40 Könnuðurinn Dóra (9:24)
10:05 Óskastund með Skoppu og Skrítlu (3:10) 10:15 Latibær (11:35) 10:40 Hvolpasveitin (15:25) 11:00 Shimmer and Shine 3 11:25 Danni tígur (5:80)
11:35 Dagur Diðrik (8:20) 12:00 C’mon C’mon
13:45 Svampur Sveinsson
14:05 Könnuðurinn Dóra (8:24) 14:30 Óskastund með Skoppu og Skrítlu (2:10)
14:45 Latibær (10:35)
15:10 Hvolpasveitin (14:25)
15:30 Shimmer and Shine 3
15:55 Danni tígur (4:80)
16:05 Dagur Diðrik (7:20)
16:30 Svampur Sveinsson
16:50 Könnuðurinn Dóra (9:24)
17:15 Latibær (11:35)
17:40 Maya the Bee 3: The Golden Orb
19:00 Schitt’s Creek (8:14)
19:20 Fóstbræður (4:8)
19:50 Svínasúpan (4:8)
20:10 Stonehouse (1:3)
21:05 Unplugging
22:35 Harry Potter and the Deathly Hallows: Part 1




Dagskrá Þórarins Hjartarsonar í salnum
á hjúkrunarheimilinu Hlíð, Austurbyggð 17, Akureyri, föstudaginn 23. ágúst, kl. 13:30.
Efni dagskrárinnar verður ýmist um kvenfólk eða eftir kvenfólk, og frekar á léttum nótum heldur en hitt. Af nógu er taka þegar kemur að vísum um þetta efni:
Fyrsti eiginmaður orti:
„Læt ég fyrir ljósan dag ljós um húsið skína.
Ekki til að yrkja brag eða kippa neinu í lag heldur til að horfa á konu mína.“

Annar hafði það svona:
„Vondslega hefur oss veröldin blekkt vilja og rænu svift mig, Hefði ég betur hana þekkt hefði ég aldrei gift mig.“
Þórarinn Hjartarson er stálsmiður, kvæðamaður, trúbador og eftirlaunaþegi.
Dagskráin er hluti af viðburðaröð AkureyrarAkademíunnar á þessu ári fyrir íbúa hjúkrunarheimilanna og aðra bæjarbúa.
Menningar- og viðurkenningasjóður KEA styrkir viðburðinn.
Öll hjartanlega velkomin!






Frístundastyrkur Akureyrarbæjar árið 2024 er kr. 50.000,-
Akureyrarbær veitir styrk til allra barna og unglinga á Akureyri til niðurgreiðslu þátttökugjalda hjá íþrótta- tómstunda og æskulýðsfélögum.
Árið 2024 gildir styrkurinn fyrir börn fædd árið 2007 til og með 2018.
Foreldrar og forráðamenn geta gengið frá skráningu og nýtingu frístundastyrks í gegnum rafrænt skráningarkerfi íþrótta-, tómstundaog æskulýðsfélaga, sem veita aðstoð og upplýsingar um skráningu, greiðslu og notkun frístundastyrkts hjá hverju félagi fyrir sig.
Upplýsingar er einnig að finna á www.akureyri.is




Síðasti dagur í sumarveiðinni er 25. ágúst
Takk fyrir í sumar, sjáumst hress
Drög að tillögu að aðalskipulagsbreytingu fyrir Holtahverfi norður – ÍB18
Skipulagsráð Akureyrarbæjar kynnir hér með drög að tillögu að breytingu á Aðalskipulagi Akureyrar 20182030 skv. 2.mgr. 30.gr. skipulagslaga nr. 123/2010.
Breytingin tekur til svæðis sem merkt er ÍB18 í aðalskipulagi og felst í að einnig verður heimilt að byggja lífsgæðakjarna innan vestari reit íbúðarbyggðar ÍB18. Lífsgæðakjarnar eru heiti yfir húsnæði sem er einkum hugsað fyrir eldra fólk þar sem áhersla er á fjölbreytt búsetuform, m.a. hjúkrunarheimili. Áhersla er lögð á fjölbreytta þjónustu í bland við íbúðarhúsnæði fyrir aðra aldurshópa. Markmiðið er að tryggja áhugavert og aðlaðandi umhverfi, samveru og öryggi um leið og komið er til móts við ólíkar þarfir.
Skipulagsuppdrátt ásamt greinargerð má nálgast hjá þjónustu- og skipulagssviði í Ráðhúsi
Akureyrarbæjar, á heimasíðu bæjarins: www.akureyri.is – neðst á forsíðu undir: Auglýstar skipulagstillögur og á Skipulagsgátt: skipulagsgatt.is
Ábendingum þar sem nafn, kennitala og heimilisfang kemur fram má skila til þjónustu- og skipulagssviðs í Ráðhúsi, Geislagötu 9, á netfangið skipulag@akureyri.is eða í gegnum Skipulagsgátt.
Frestur til að koma ábendingum við skipulagstillöguna á framfæri er veittur til 12. september 2024.
Akureyri, 21. ágúst 2024 Skipulagsfulltrúi
Geislagata 9 Sími 460 1000 www.akureyri.is skipulag@akureyri.is

Opnum föstudaginn 23. ágúst
Verðum með opið hús föstudaginn 23. ágúst frá kl. 16:00 til 18:00 og laugardaginn 24. ágúst frá kl. 12:00 til 14:00



Opnum nýtt og glæsilegt geymsluhúsnæði að Týsnesi 12 í ágúst með yfir 100 geymslur
Stærð á geymslu: 8 fm.
Leiga án VSK. 24.124 kr. á mánuði
Leiga með VSK. 29.914 kr. á mánuði



Vogue fyrir heimilið, Glerártorgi, gengið inn að norðan og á www.vogue.is
Frí ástandsskoðun!
Fyrir Eftir Fyrir Eftir


Alhliða viðhald og hreinsun loftræstikerfisins.
Afköst útblásturskerfis í íbúðarhúsum minnka að jafnaði
6–8 % á ári vegna óhreininda.
NO RÐ U R L A ND I
S ími : 776 990 9
Ne t f a n g : p o s tu r@l o ft s t o kka t h j on u stan. i s
Heim a sí ð a : l o f ts t o kkathj on u stan. i s
Heyrumst!







þakkar styrktaraðilum, leiðbeinendum og nemendum fyrir frábæra vísindaviku
























Þegar þú velur útimálningu og viðarvörn
frá Slippfélaginu þá ertu að velja íslenskar
vörur sem þola íslenskt veðurfar .

Þingeyjarsveit leitar að drífandi og metnaðarfullum einstaklingi í starf slökkviliðsstjóra
Leitað er að einstaklingi sem hefur frumkvæði og aðlögunarhæfni að síbreytilegum aðstæðum og fjölbreyttum verkefnum. Slökkviliðssjóri heyrir beint undir sveitarstjóra.
Slökkvilið Þingeyjarsveitar er vel tækjum búið og þar starfar öflugur hópur manna Í sveitarfélaginu eru tvær slökkvistöðvar á Laugum og í Reykjahlíð
Helstu verkefni og ábyrgð
Dagleg stjórn og ábyrgð á rekstri slökkviliðsins
Ábyrgð á faglegri starfssemi, ráðningum, fræðslu og þjálfun slökkviliðsmanna
Umsjón húsnæðis, tækja og bíla
Umsjón með almennum brunavörnum og eldvarnareftirliti, úttektir, umsagnir og eftirfylgni
Stjórn slökkvistarfs og mengunaróhappa á vettvangi
Áætlanagerð og stefnumótun
Samskipti við hagsmunaaðila innan og utan sveitarfélagsins
Önnur verkefni í samráði við sveitarstjóra
Hæfniskröfur
Löggilding sem slökkviliðsmaður sbr 17 gr laga nr 75/2000 og að lágmarki eins árs reynsla í slökkviliði sem löggiltur slökkviliðsmaður eða hafa háskólamenntun með sérmenntun í brunamálum
Hafa lokið námi sem eldvarnaeftirlitsmaður sbr 12 gr reglugerðar nr 792/2001 um Brunamálaskólann og réttindi og skyldur slökkviliðsmanna
Stjórnunarreynsla og þekking á rekstri
Reynsla og/eða haldgóð þekking á stjórnun slökkviliðs æskileg Þekking á yfirferð og eftirliti tækja og búnaðar æskileg
Geta til að sýna sjálfstæði og frumkvæði í starfi
Leiðtogafærni og rík færni í mannlegum samskiptum
Góð skipulagsfærni, árvekni og öguð vinnubrögð
Vilji til þess að tileinka sér nýjungar í starfi
Góð íslenskukunnátta og hæfni til að tjá sig í ræðu og riti
Góð almenn tölvukunnátta og þekking á upplýsingatækni
Þingeyjarsveit er landmesta sveitarfélag landsins og státar af einstakri náttúrufegurð og náttúruauðlindum Sveitarfélagið er sannkölluð útivistarparadís Atvinnulífið er öflugt með fjölbreyttum möguleikum, m a í ferðaþjónustu, landbúnaði og matvælaframleiðslu Aðstaða er fyrir hendi fyrir störf án staðsetningar Þingeyjarsveit leggur áherslu á umhverfismál og sjálfbæra nýtingu auðlinda ásamt blómlegu mannlífi Þingeyjarsveit er ákjósanlegur búsetukostur fyrir þá sem kjósa gott mannlíf, friðsæld í fagurri sveit með nálægð við stóra þéttbýlisstaði
Umsóknarfrestur er til og með 23. ágúst 2024
Með umsókn skal fylgja ítarleg ferilskrá og kynningarbréf þar sem gerð er grein fyrir ástæðu umsóknar og rökstuðningur fyrir hæfni umsækjanda
Við ráðningu eru jafnréttissjónarmið jafngild öðrum málefnalegum sjónarmiðum og hvetjum við áhugasama að sækja um óháð kyni og uppruna Þingeyjarsveit áskilur sér rétt til að hafna öllum umsóknum
Laun og starfskjör eru samkvæmt gildandi kjarasamningi Sambands íslenskra sveitarfélaga við viðkomandi stéttarfélag

Sótt er um starfið á www.mognum.is
Nánari upplýsingar veitir
Sigríður Ólafsdóttir I sigga@mognum is


Fáðu afhent með Dropp!
Nú getur þú fengið sendingar úr vefverslun IKEA afhentar með Dropp! Með þessu aukum við úrval þjónustu okkar og komum til móts við misjafnar þarfir viðskiptavina, hvar á landinu sem er.
Verslun opin 11-20 alla daga - IKEA.is
Lífland óskar eftir starfsmanni í verslun Líflands
á Akureyri.
Vinnutími er frá kl. 9-17 alla virka daga og annan hvern laugardag frá 10-14. Starfsmaður þarf að geta hafið störf sem fyrst.
Starfssvið
Ráðgjöf og sala til viðskiptavina
Framstillingar í verslun
Almenn verslunarstörf
Hæfniskröfur
Reynsla af sölumennsku/verslunarstörfum
Þekking á íslenskum landbúnaði og hestamennsku er kostur
Þjónustulund og lipurð í mannlegum samskiptum
Lyftararéttindi eru kostur
Góð almenn tölvuþekking
Nánari upplýsingar um starfið veitir Ellert verslunarstjóri í síma 540-1150 eða í versluninni, Grímseyjargötu 2.
Áhugasamir eru beðnir um að senda umsókn og ferilskrá á atvinna@lifland.is

Verið velkomin! • Þakrennuhiti • • Hleðslustöðvar fyrir ra íla • • Raflagnir endurnýjun og nýlagnir • • Dyrasímakerfi •
Varmadælur • -Ekkert verk er of stórt eða of lítið-


Straumrás ehf Furuvöllum 3
leitar að starfsmanni til framtíðarstarfa sem fyrst

Verkefni eru öll almenn störf sem til falla í fyrirtækinu
Til dæmis:
• Sala og þjónusta við viðskiptavini
• Pantanir á vörum
• Vörumóttaka og frágangur á vörum
• Að taka þátt í að byggja upp og auka vöruúrval fyrirtækisins
Hæfniskröfur:
• Skipulagshæfileikar
• Þjónustulund og hæfni í mannlegum samskiptum.
• Frumkvæði og sjálfstæði í vinnubrögðum
• Reglusemi
• Snyrtimennska
• Að minnsta kosti þokkaleg enskukunnátta
• Meiri eða minni þekking á þeim vörum sem við erum með er kostur
Hjá Straumrás vinna 6 starfsmenn. Opnunartími er 7:30-17:00 virka daga nema föstudaga, þá er opnunartími 7:30-16:00
Áhugasamir sendi upplýsingar um sjálfan sig, til dæmis um aldur og fyrri störf og jafnvel eitthvað fleira skemmtilegt til Guðna hjá: hermaco@simnet.is eða gudni@straumras.is
Eða hringið í Guðna í síma 862 8700 fyrir nánari upplýsingar.








HINDARLUNDUR 6

Pakkhúsið · Hafnarstræti 19 · Opið alla virka daga kl.9-17 Sími 466 1600 ·
VÖRÐUTÚN 2

Fallegt og vel við haldið 4-5 herbergja einbýli með bílskúr á vinsælum stað á Brekkunni.
Húsið er skráð 150,2 m² að grunnfleti en auk þess eru um 40,0 m² í risi.
Verð 110,0 millj.
HRAFNATRÖÐ 9
HÖFÐABYGGÐ B19

Vandað 5 herbergja einbýlishús á einni hæð með sambyggðum bílskúr sem stendur á hornlóð syðst í Naustahverfinu.
Heildarstærð 225,1 m² Verð 149,9 millj.

4ra herbergja einbýli með bílskúr í bygginguskemmtilega hannað hús við nýja botnlangagötu í Eyjafjarðarsveit.
Eignin selst tilbúin til spörtslunar.
Stærð 157,7 m² Húsið stendur á 798 m² leigulóð.
Verð 72,9 millj.
HAFNARSTRÆTI 17
Virkilega skemmtilegt sumarhús/heilsárshús með sér gestahúsi og tækjageymslu á 5.000 m² skógi vaxinni leigulóð á besta stað inn í Lundsskógi.
Húsið er skráð 132,2 m² og með rúmlega 150 m² timbur verönd með heitum potti og sauna húsi. Verð 79,8 millj.
GEIRÞRÚÐARHAGI 2 ÍBÚÐ 203

Skemmtilegt hús með tveimur íbúðum og útleigumöguleika í kjallaranum á horni
Munkaþverárstrætis og Krabbastígs.
Verð 145,9 m²
Verð 88,9 millj.

HEIÐARBYGGÐ 31

SÉR STÆÐI Í BÍLAGEYMSLU
Mjög falleg 3 herbergja íbúð á 2. hæð í nýlegu fjölbýli í Hagahverfi. Íbúðinni fylgir bílastæði í bílakjallara og sér geymsla í sameign.
Stærð 67,5 m²
Verð 54,5 millj.
LANGHOLT 28

Mikið endurnýjað 4ra herbergja einbýlishús á tveimur hæðum í Innbænum á Akureyri.
Stærð 144,0 m²
Verð 87,0 millj.
Skemmtilegt sumarhús í Heiðarbyggð í Vaðlaheiðinni gegnt Akureyri. Húsið var flutt á staðinn árið 2008 og
var mikið endurnýjað árið 2018
Stærð 99,3 m²
Verð 44,9 millj.

EIGNIN ER LAUS 1. OKT. 2024
Fallegt 6 herbergja einbýli með innbyggðum bílskúr í Holtahverfi.
Stærð 211,7 m², þar af er bílskúr skráður 34 m²
Verð 99,7 millj.

Sigurður S. Sigurðsson Löggiltur fasteignasali siggi@kaupa.is s. 862 1013
Björn Davíðsson Löggiltur fasteignasali bubbi@kaupa.is s. 862 0440

Íris Egilsdóttir hdl. Löggiltur fasteignasali iris@kaupa.is s. 868 2414

Linda Brá Sveinsdóttir Löggiltur fasteignasali linda@kaupa.is s. 866 8535

SMÁRAHLÍÐ 10F

Opin og björt 2ja herbergja íbúð á þriðju (efstu) hæð í fjölbýlishúsi í Þorpinu.
Stærð 58,1 m²
Verð 34,5 millj.
KLETTABORG 46
Þórunn Friðlaugsdóttir Ritari thorunn@kaupa.is s. 691 4414

KARLSRAUÐATORG 7 DALVÍK

Virðulegt steinsteypt hús, tvær hæðir og ris, hús sem nýst hefur sem byggðasafn síðustu ár.
Stærð 280 m²
Verð 49,9 millj.

Góð 4ra herbergja endaraðhúsaíbúð á 2.hæðum miðsvæðis á Akureyri.
Stærð 114,9 m²
Verð 67,9 millj.


Sigurður H. Þrastarson Löggiltur fasteignasali siggithrastar@kaupa.is s. 888 6661
Gunnar Arason Löggiltur fasteignasali gunnar@kaupa.is s. 618 7325
FANNAGIL 26

Rúmgóð og falleg 6 herbergja raðhúsaíbúð á tveimur hæðum með sambyggðum bílskúr í Giljahverfi. Heildarstærð er 197,6 m² en þar af telur bílskúrinn 24,9 m²
Verð 105,0 millj.


Vel skipulögð 5 herbergja íbúð með sér inngangi á jarðhæð á vinsælum stað á Brekkunni.
Stærð 123,5 m²
Verð 56,9 millj.

VÍÐIHLÍÐ 1 - NÝBYGGINGAR
Vel skipulögð 5 herbergja parhúsaíbúð á einni hæð með innbyggðum bílskúr.
Stærð 161,0m². Rúmgóð steypt verönd er með vestur og suðurhlið hússins.
Verð 99,8 millj.
LAUSAR TIL AFHENDINGAR VIÐ KAUPSAMNING - SKOÐA SKIPTI Á ÓDÝRARI
Virkilega vandaðar og vel skipulagðar 4ra herbergja íbúðir í nýju fjölbýlishúsi í Hörgársveit.
Stærð 105,9 – 109, 3 m²

• Vandaðar innréttingar frá GKS • Ísskápur með frysti og uppþvottavél fylgir með við sölu. Húsið er í flokki B fyrir hljóðvist sem er umfram lágmarkskröfur byggingarreglugerðar um kröfur fyrir hljóðeinangrun innbyrðis á milli íbúðareininga • Þrefalt gler í öllum gluggum • Aukin
lofthæð • Viðhaldsfrí utanhússklæðning
Verð 72,9 – 78,6 millj.
Skipagata 1 | 600 Akureyri
fastak.is | Sími: 460 5151

HOFSÁRKOT
Mjög glæsilegt 216m2 hús með leiguíbúð á neðri hæð í einni fegurstu náttúrperlu
Norðurlands, Svarfaðardal. Útsýni sem ekki býðst á hverjum degi!

LÆKJARVELLIR 1B-103
Geymsubil. 45m2 að stærð, auðvelt að setja milliloft í húsið og bætt enn frekar nýtinguna. Búið er að setja up snyrtingu, skolvaska og bæta við tenglum.

BREKKUGATA 39, E.H.
Skemmtileg fjögurra herb. efri hæð.Rúmgóð stofa/borðstofa, stór herbergi, einstök staðsetning, timburverönd með útsýni.
Verð 46,9 m.

GEIRÞRÚÐARHAGI 6
Mjög smekkleg og rúmgóð fimm herbergja 106,9m2 íbúið á efri hæð í tveggja hæða húsi í Hagahverfi.
Verð 69,9 m.

LYNGHRAUN 1
Mikið endurbyggt 85m2 einbýlishús á einni hæð í Mývatnssveit, gott tækifæri til að eignast hús í Mývatnssveit.

VÍÐIHLÍÐ 7-201 - HÖRGÁRSVEIT
Rúmgóð 108,3m2 fjögurra herb. íbúð á efri hæð með flottu útsýni, þrjú svefnherb, rúmgott eldhús/stofa í opnu rými.

SELJAHLÍÐ 13 G
Afar góð 3-4 herb. raðhúsaíbúð með 30m2 bílskúr á góðum stað þorpinu.

HÓLAVEGUR 16
Talsvert mikið uppgerð fjögurra herb. íbúð á efri hæð í þríbýlishúsi á fallegum stað á Siglufirði.

MIÐHOLT 9, ÞÓRSHÖFN
Töluvert endurnýjuð 94 fm. endaíbúð í raðhúsi byggðu 2011 úr forsteyptum einingum með steinklæðningu og tré/ál gluggum.

LÁFSGERÐI ÞINGEYJARSVEIT
Tvö sumarhús / heilsárshús sem henta frábærlega til útleigu í ferðaþjónustu. Ca. 25-30 mín. Akstur frá Akureyri.

STRANDGATA 25B
Falleg tveggja herbergja íbúð á góðum stað á Eyrinni, örstutt í allt! Laus strax.
Verð 35,5 m.

ÞÓRUSTAÐIR
Mjög gott og mikið endurnýjað sex herbergja einbýlishús á flottum stað í Eyjafjarðarsveit.
Verð 117,9 m.

ARNAR GUÐMUNDSSON
Löggiltur fasteignasali
Sími: 773 5100 arnar@fastak.is

KJARNAGATA 59-203

Mjög fín og skemmtileg tveggja herbergja íbúð á 2. hæð, með svölum til vesturs, fallegt útsýni.
Gæti losnað mjög fljótlega.

UNDIRHLÍÐ 1-104

Um er að ræða tveggja herbergja íbúð á 1. hæð í fjölbýlishúsi með lyftu ásamt sérgeymslu í kjallara.

KLETTAGERÐI 6
Stórskemmtilegt íbúðarhús á Brekkunni, hannað og teiknað með ýmsar þarfir í huga, í húsinu eru stór rými sem gætu verið vinnustofur, aukaíbúð, bíósalur, eða hvað sem er. Verð 159,9 m.

EYJAFJARÐARBRAUT FLUGSKÝLI
514m2 flugskýli með góðri skrifstofuaðstöðu, verkstæði og millilofti til sölu. Gólfflötur hússins 425,6m2 og 88,4m2 milliloft innréttað sem salur með hallandi gólfi.

SKARÐSHLÍÐ 27
Falleg fjögurra herbergja íbúð með frábæru útsýni og á kyrrlátum stað í Þorpinu. Verð 49,9 m.
www.byggd.is






Opið hús fimmtudaginn 22. ágúst milli kl. 16 og 17.
Nánari lýsing:
Vandað fjórbýlishús í byggingu í Hörgársveit þar sem annars vegar er um að ræða 5 herbergja íbúðir á efri hæð með bílskúr og hinsvegar 4 herbergja íbúðir á neðri hæð án bílskúrs. Húsið er staðsteypt og klætt smábáru að utan. Eignirnar afhendast fullbúnar með gólfefnum og vönduðum heimilistækjum og innréttingum frá Parka. Í 4 herbergja íbúðunum eru tvö svefnherbergi, sjónvarpsherbergi og fataherbergi. Í 5 herbergja íbúðunum eru fjögur svefnherbergi sér þvottahús og bílgeymsla er 29,5 fm. Geymslur íbúða neðri hæðar eru innan íbúða en efri hæðar í sameign á neðri hæð. Hjóla- og vagnageymsla allra íbúða er í sameign á efri hæð.
Verktaki er Böggur ehf. Húsið er í einkasölu, allar nánari upplýsingar á skrifstofu eða heimasíðu www.byggd.is



















ÁRALÖNG REYNSLA • PERSÓNULEG ÞJÓNUSTA

Ef þú lendir í slysi
– okkar að sækja bætur fyrir þig
Hafðu samband við okkur sem fyrst eftir slys. Þú getur fylgst með ferlinu þínu inni á þjónustugáttinni okkar.
Mundu að þú greiðir enga þóknun ef þú færð ekki bætur!
Skoðaðu nánar á tryggingarettur.is og hafðu samband í síma 419 1300

Dagný S. Jónasdóttir lögfræðingur

Ingvar Rafn Hjaltalín, lögfræðingur

Jón Stefán Hjaltalín, lögmaður
Hofsbót Akureyri | Hafnartorgi Reykjavík 419 1300 • tryggingarettur.is
tryggingarettur@tryggingarettur.is
/tryggingarettur


30. TÖLUBLAÐ / 5. ÁRGANGUR / FIMMTUDAGUR 22. ÁGÚST 2024

Hermannsbúð var tekin í notkun við Útgerðarminjasafnið á Grenivík í tengslum við Grenivíkurgleði fyrir skemmstu. Þar með er Hermann TH 34, hundrað ára súðbyrðingur á heimsminjaskrá kominn í eigið húsnæði.
Útgerðarminjasafnið á Grenivík var opnað sumarið 2009. Það er í beitingaskúr sem heitir Hlíðarendi
og var byggður 1920. Einn af þeim safngripum sem merkastir eru í safninu er sexæringurinn Hermann TH 34. Hann hafði staðið úti nær þrjá áratugi og var farinn að fúna og láta mjög á sjá. Kristján Ben Eggertsson á Húsavík tók hann undir sinn verndarvæng og gerði eins og nýjan að sjá.

„Ég er nú ekkert mikil hlaupakona en mig hefur alltaf langað til að taka þátt í þessu,“ segir Árni Björnsdóttir kennari við Borgarhólsskóla á Húsavík ætlar að láta gamlan draum rætast um helgina þegar hún tekur þátt í Reykjavíkurmaraþoni Íslandsbanka sem fram fer á laugardag. Árný mun hlaupa hálfmaraþon, eða 21,1 km. og hleypur til styrktar MSfélagi Íslands. Það er enginn beygur í Árnýju þó hún sé ekki vön því að hlaupa þetta langar vegalengdir enda er hún vel undirbúin.
Allar fartölvur um land allt


1.990 Fartölvutöskur

Verð frá

39.990 Skólafartölvur









Jónsson




Ertu að byggja?
Við bjóðum upp á prentun, plöstun og skönnun á teikningum í allt að A0 stærð.
Góð gæði, vönduð og góð þjónusta.
Verið hjartanlega velkomin

Glerárgötu 28
4 600 700 prentmetoddi.is akureyri@prentmetoddi.is

30. ÁGÚST TIL 1. SEPTEMBER
Dekraðu við bragðlaukana með 5 rétta upplifun
ÞORSKUR
Foie gras, seljurótarmauk, pestó
LAMBA-TARTAR
Skessujurt, sinnepsdressing, svartkál, reyktur beinmergur, sinnepskarsi
HÖRPUSKELJAR-CRUDO
Hnúðkál, piparrót, kóríanderkarsi, dill, epli, rjómi, söltuð sítróna
HANGER-STEIK, 100 G
Gulbeða, ostrusveppur, smælki, reyktur beinmergur, soðgljái
KERFILL
Grísk jógúrtfroða, lakkrísmarengs, kerfilgraníta
Verð fyrir tvo 14.900 kr.
Vínpörun fyrir tvo 9.500 kr.
MOJITO TRÍÓ
Mintu Mojito I Ástaraldin Mojito I Hindberja Mojito
Mojito tríó verður í boði alla helgina frá kl 12–24. Verð 5.500 kr.
Upplýsingar og borðapantanir í síma 518 1000 eða á akureyri@icehotels.is

Óskum eftir vönum rafvirkjum til starfa sem allra fyrst.
Menntunar- og hæfniskröfur:
• Sveinspróf í rafvirkjun
• Reynsla í faginu
• Almenn tölvukunnátta
• Drifkraftur og sjálfstæði í vinnubrögðum
• Hæfni í mannlegum samskiptum og rík þjónustulund
• Bílpróf
Góð verkefnastaða framundan.
Umsóknir ásamt ferilskrá berist á netfangið rafmenn@rafmenn.is
Umsóknarfrestur er til 30. ágúst nk.

eflir hugann, rökhugsun og einbeitingu!
Skáknámskeið haustsins eru að hefjast.
Kennt er í Skákheimilinu í Íþróttahöllinni, gengið inn að vestan.
Æfingar hefjast 26. ágúst.
Tímar:
• Byrjendaflokkur og yngri börn á mánudögum kl. 16:45-18:00.
• Framhaldsflokkur á þriðjudögum kl. 14:30-16:00.
• Auk þess a.m.k. einn opinn æfingatími í hverri viku.
Skráning í netfangið askell@simnet.is eða á staðnum við upphaf æfingar.
Skákfélag Akureyrar - skakfelag.blog.is


Breyting á deiliskipulagi fyrir Naust III, lóð minjasafns.
Skipulagsráð Akureyrarbæjar kynnir skv. 4.mgr. 40.gr. skipulagslaga nr. 123/2010 drög að tillögu að breytingu á deiliskipulagi fyrir Naust III, lóð minjasafns.
Tillagan gerir ráð fyrir að útbúnar verði 7 einbýlishúsalóðir ásamt 2 parhúsaog 5 ráðhúsalóðum á svæðinu. Svæðið er skilgreint sem íbúðarbyggð í aðalskipulagi Akureyrar 2018-2030 (ÍB13) og er þetta beint framhald af uppbyggingu Naustahverfis. Fyrst um sinn verður skipulagið áfangaskipt í 2 hluta, þar sem að gamli bærinn Naust III, fær að vera þar til að Minjasafninu verður fundinn varanlegur staður á Akureyri.
Deiliskipulagsuppdrátt ásamt greinargerð má nálgast hjá þjónustu- og skipulagssviði, á heimasíðu Akureyrarabæjar: www.akureyri.is – neðst á forsíðu undir: Auglýstar skipulagstillögur og á Skipulagsgátt: skipulagsgatt.is
Eru áhugasamir hvattir til að kynna sér tillöguna og senda inn ábendingar.
Ábendingum þar sem nafn, kennitala og heimilisfang sendanda kemur fram má skila með tölvupósti á netfangið skipulag@akureyri.is, bréfleiðis til þjónustu- og skipulagssviðs í Ráðhúsi Akureyrar, Geislagötu 9 eða í gegnum Skipulagsgátt.
Frestur til að senda inn ábendingar er til 12. september nk. 21. ágúst 2024 Skipulagsfulltrúi
Geislagata 9 Sími 460 1000 www.akureyri.is skipulag@akureyri.is
VERÐLAUNAÐASTI JEPPI SÖGUNNAR

Hans hefur verið beðið með eftirvæntingu og nú er hann loksins lentur. Nýr 380 hestafla Jeep® Grand Cherokee Plug-In Hybrid drífur þig á vit ævintýranna, hlaðinn lúxus-staðalbúnaði og með enn meira rými en áður í farangursrými sem rúmar auðveldlega fjögur golfsett auk farangurs. Aukin drifgeta og lágt drif. Það hefur aldrei verið þægilegra að njóta ævintýranna jafnt innan sem utan borgarinnar. Komdu við og reynsluaktu.
Summit Reserve: 16.990.000 kr.
Gerið samanburð á verði og útbúnaði
EIGUM BÍLA TIL AFGREIÐSLU STRAX


Minning þín er mér ei gleymd; mína sál þú gladdir; innst í hjarta hún er geymd, þú heilsaðir mér og kvaddir. (Káinn)
Við birtum minningargreinar endurgjaldslaust á vefnum okkar vikubladid.is Sendið minningargreinar, ljósmyndir og annað efni á netfangið gunnar@vikubladid.is
22.–25. ágúst
25% appsláttur















Starfsmaður í afgreiðslu
Óskum eftir að ráða strax starfsmann í afgreiðslu
og til almennra verkefna á bókasafni.
Ráðningin er tímabundin til áramóta.
Um 50% starf er að ræða.
Upplýsingar veitir skólameistari í síma 862-8754
eða karl@ma.is

Við viljum minna á okkur - samfélagið þarf á þér að halda
Þeir sem eru heilsuhraustir og á aldrinum 18-65 ára
geta orðið blóðgjafar
Blóðbankinn er með blóðsöfnun á Glerártorgi, 2. hæð
Opnunartími:
Mánudaga, þriðjudaga og miðvikudaga kl.8:15 - kl.15:00
Fimmtudaga kl.10:15 - 17:00
Við tökum vel á móti þér!
Alltaf heitt á könnunni, ásamt góðu bakkelsi
Gefðu með hjartanu – Blóðgjöf er lífgjöf!

www.blodbankinn.is – www.blodgjafi.is
Við erum á facebook



vikubladid.is
graenihatturinn.is
Akureyri
Aðalnúmer heilsugæslunnar er: 432 4600
Vaktsímanúmer er: 1700

LÖGREGLAN/NEYÐARSÍMI: 112
Hefur þú upplýsingar um fíkniefni?
Hringdu þá í síma: 800-5005
SLÖKKVILIÐ/NEYÐARSÍMI: 112

POLICE/FIRE DEPARTMENT
EMERGENCY LINE: 112
SJÚKRAHÚSIÐ Á AKUREYRI
Aðalnúmer: 463 0100 // www.sak.is
APÓTEK Á AKUREYRI
Lyfja Glerárgötu 34, sími: 461 3920
LYF & HEILSA Glerártorgi, sími: 461 5800
APÓTEKARINN Hafnarstræti 95, sími: 460 3452
AKUREYRARAPÓTEK Kaupangi, Mýrarv., sími: 460 9999
APÓTEKARINN Hrísalundi sími: 462 2444

www.heilsaogsal.is
s: 830-3930
Opið er fyrir fyrirspurnir á milli kl. 10 og 12 alla virka daga.
Opnunartími 24. ágúst til 31. maí:
Mán. - Fös. kl. 06:45-21:00
Lau. kl. 09:00-19:00 og sun. kl. 09:00-19:00
Fim. 22. ágúst // kl. 21:00 // BLOOD HARMONY
Fös. 23. ágúst // kl. 21:00 // GUNNI, MAGNI & HREIMUR
Lau. 24. ágúst // kl. 21:00 // LADDI OG HLJÓMSVEIT MANNANNA
KA - Breiðablik // 1/9// kl. 16:15 // Besta deild karla // Greifav.
ÞÓR - ÍR // 31/8 // kl. 16:00 // Lengjud. karla
Dalvík/Reynir - Grindavík //24/8 // kl. 16:00 // Lengjud. karla
KF - Reynir S // 25/8 // kl. 16:00 // 2. deild karla
Magni - Augnablik // 21/8 // kl. 19:15 // 3. deild karla

Safn: Hildigunnur Birgisdóttir og verk úr safneign 02.12.2023 – 24.11.2024
Brynhildur Kristinsdóttir / Að vera vera / 26.08.2023 – 11.08.2024
Heiðdís Hólm / Vona að ég kveiki ekki í / 23.03.2024 – 18.08.2024
Salóme Hollanders / Engill og fluga / 23.03.2024 – 18.08.2024

mak.is
18. júní - 23. ágúst // Forðabúr hjartansSýning 43 félaga í Myndlistafélaginu í Hofi
23. ágúst // kl. 19:30 // Miomantis: TJÓN Útgáfutónleikar
30. ágúst // kl. 22 // Rómantískt síðkvöld með Tríói Akureyrar
31. ágúst // kl. 14 // Leikhúslög barnanna

AMTSBÓKASAFNIÐ Á AKUREYRI
Afgreiðslutímar í sumar 16.05-15.09
Mánudaga til föstudaga: 8:15-19 (Sjálfsafgreiðsla kl. 8:15-10:00)
Laugardaga og sunnud.: Lokað
ATH! Ertu á leið úr bænum og búið að loka bókasafninu?
Þá er möguleiki að skila í Eymundsson, Akureyri

Opnunartími verslana á Glerártorgi:
Virka daga: 10:00 - 18:30
Laugardaga: 10:00 - 17:00
Sunnudaga: 13:00 - 17:00
GLERÁRLAUG Mánudaga til föstud. 6:45 - 08:00 og 18-21
Laugard. 9 - 14:30 og sunnud. 9 - 12
HRAFNAGIL Mánud. til fimmtud. 6:30 - 8 og 14 - 22
Föstud. 6:30 - 8 og 14 - 18 Helgar 10 - 19
ÞELAMÖRK Mánud. til fimmtud.: 6:30 - 8 & 14 - 22
föstud. 6:30-8:00 og 14:00-19:00 og Helgar 10 - 19

Til leigu skrifstofuaðstaða/Vinnuaðstaða ca. 1520m2 í miðbænum. Nánari uppl. veitir Arnar í síma 773-5100

TÖLVUVIÐGERÐIR - ÓDÝRT
Gerum við allar gerðir af tölvum. Uppfærum hugbúnað og vírusvörn og gerum þær traustari og hraðvirkari. Kvöld- og helgarþjónusta í boði Uppl. í síma 896 6001.

Þarf að stilla píanóið hjá þér? Er búsettur á svæðinu. Vönduð vinna og sanngjarnt verð. Michael Jón Clarke s: 862 0426. mikkjall@mmedia.is.

Erum tveir öryrkjar og búum í hjólhýsi. Okkur vantar stað til að vera á í vetur frá 15. september til 1. júní. Erum með fast pláss á sumrin. Þurfum að komast í rafmagn til að tengja hjólhýsið við og auðvitað borgum við rafmagnið og plássið. Erum reglusöm og ekkert partýstand. Frekari upplýsingar í síma 7718545.

Kaupum bíla til niðurrifs Sækjum og göngum frá allri pappírsvinnu. Lágmarksverð 40.000 kr. allt eftir aldri og ástandi bifreiðar. Hafið samband og við gerum ykkur tilboð. Eigum til varahluti í flestar gerðir bifreiða. Bílapartasalan Austurhlíð sími 462 6512 / 823 0421 og partasala@partasala.is. Opið frá kl. 8:00-17:00 mánud. til fimmtud. og 8:00-16:00 á föstudögum.

Tek að mér öll garðverk. Klipping 15 - 25 þús. Förgun innifalin.
Geri tilboð til húsfélaga. Kiddi garðyrkjumaður.
Sími: 777 8708

Tölvulestur á bílum. Er eitthvað ljós í mælaborðinu eða bíllinn eitthvað ósamvinnuþýður? Tölvulesum flestar gerðir bíla. Kvöldog helgarþjónusta í boði. Uppl. í síma 896 6001.

Safnasafnið

Höfuðsafn íslenskrar alþýðulistar, Svalbarðseyri. Einstakur staður til að heimsækja! Opið alla daga í sumar frá 10:0017:00 @safnasafnid


Er tölvan biluð? Viðgerðir, uppsetningar og margt fleira. Hef ódýrustu lausnina. Uppl. í síma 892 5444.

Sími 821 5171
Endurmálun
Sandspörtlun
Gifsspörtlun
Utanhússmálun
Löggiltur málningarverktaki

SÓLSTEF GARDÍNUFRAMLEIÐSLA AKUREYRI. Framleiðum á staðnum skrín og myrkvunargardínur úr vönduðum efnum. Vinsælt að hafa rúllugardínur með DC hleðslumótór án raflagna – eða beintengdar með t.d Free@Home kerfi. Stýrt með rofa, fjarstýringu eða smáforriti úr farsíma. Úrval af strimlagardinum og upp/niður plíseruðum gardínum sem bjóða uppá nýjar lausnir. Mæling/ráðgjöf/ uppsetning/ viðgerðir. Verslun opin 12 til 17 nema föstud 12 til 16. SólstefÓseyri 6 - Sími 4663000 solstef@simnet.is

Flóamarkaður

Flóamarkaðurinn í Sigluvík á Svalbarðsströnd. Opið föstud. – sunnud. 23. – 25. ágúst frá kl. 13. – 17. Ýmislegt til sölu s.s. búsáhöld, skrautmunir, bækur, föt, húsgögn og fl. Velkomin á markað, ath. erum með posa. Upplýsingar í síma 8531340, á facebook: Flóamarkaðurinn í Sigluvík
A.A. fundir á Akureyri Strandgata 21 (þjónustum.st.)
Mán. kl. 12:10
Mán. kl. 20:00 (opinn)
Þri. kl. 12:10
Þri. kl. 21:00 (opinn)
Mið. kl. 12.10
Mið. kl. 20:00 (Hornsteinninn - bókafundur fyrir karla)
Fim. kl. 12:10
Fim. kl. 21:00 (nýliðafundur - opinn)
Fös. kl. 12.10
Fös. kl. 21:00
Lau. kl. 11:30 (kvennafundur - opinn)
Lau. kl. 19:00 AA fundur á pólsku.
Lau. kl. 21:00 (opinn)
Sun. kl. 10:30 sunnudagsmessan
Sun. kl. 21:00
Heimasíða svæðisnefndar á Akureyri www.saaa.is
Skarðshlíð 18 (Hvítasunnukirkjan)
Mán. kl. 20:15 (ekkert hálfkák - opinn)
Hofsbót 4
Þri. kl. 20:00 (Sigurboginn kvk. - lokaður)
Akureyrarkirkja
Fös. kl. 18:30
Glerárkirkja
Mið. kl. 20:00 Sun. kl. 09:00 (Hornsteinninn - bókafundur fyrir karla)
Neyðarsími AA - 849 4012 www.aa.is







Fim. 22. ágúst




Tónleikar kl. 21:00
Fös. 23. ágúst

Tónleikar kl. 21:00

Lau. 24. ágúst




Tónleikar kl. 21:00



















































































