Dagskráin 15. mars - 22. mars 2023

Page 1

Við vorum að bæta við sýningum

Föstudagurinn - 17. mars

Laugardagurinn - 18. mars

-

Föstudagurinn - 24. mars

Föstudagurinn - 24. mars

Laugardagurinn -25. mars

Laugardagurinn -25. mars

Aukasýning

Laugardagurinn -25. mars

Laugardagurinn -25. mars

Föstudagurinn - 31. mars

Föstudagurinn - 31. mars

Laugardagurinn - 1.apríl

Laugardagurinn - 1.apríl

Miðvikudagurinn - 5.apríl

Fimmtudagurinn - 6.apríl

Fimmtudagurinn -

Föstudagurinn - 7.apríl

Föstudagurinn

Laugardagurinn - 8.apríl

Laugardagurinn 8.apríl

Miðasala
Sýningar um páskana: WWW.SVEFNOGHEILSA.IS Svefn heilsa & GERIÐ GÆÐA- OG VERÐSAMANBURÐ Ýmir heilsurúm 90x200 Verð áður 96.800,Fermingartilboð 80.910,Ýmir heilsurúm 120x200 Verð áður 118.300,Fermingartilboð 98.910,TILBOÐ INNIHALDA: DÝNU, SAMSETTAN ÍSLENSKAN BOTN OG FÆTUR. FRÍ YFIRDÝNA FYLGIR ÖLLUM TILBOÐUM & FERMINGARTILBOÐ FRÁBÆR VERÐ 11. tbl. 56. árg. 15. mars - 22. mars 2023 dagskrain@dagskrain.is 464 2000 vikubladid.is
á tix.is

HVAR VERÐUR ÞÚ Í SUMAR?

Skannaðu kóðann með myndavélinni í símanum Plönum pallinn saman á BYKO.is
Napoleon gæðagrill í öllum stærðum og gerðum
VNR: 83004410 - Almennt verð: 2.195 kr. HVAÐ EIGUM VIÐ AÐ GRILLA SAMAN?

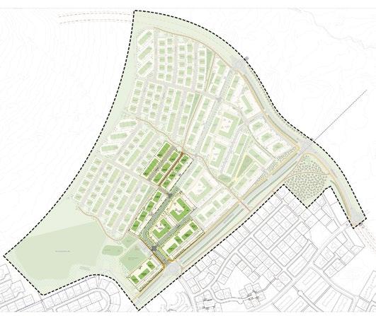
Lóðir í Móahverfi

Móahverfi er nýtt íbúðahverfi í norðvesturhluta Akureyrar þar sem gert er ráð fyrir að byggðar verði allt að 1.100 íbúðir á næstu árum. Akureyrarbær auglýsir nú eftir tilboðum í 11 lóðir í fyrsta áfanga auk þess sem auglýstar eru tvær lóðir þar sem úthlutun mun byggja á uppbyggingu íbúða á grundvelli stofnframlaga sbr. lög nr. 52/2016.

Geislagata 9 Sími 460 1000 www.akureyri.is skipulag@akureyri.is

Þjónustu- og skipulagssvið

Í þessum fyrsta áfanga er áhersla lögð á lóðir fyrir fjölbýlishús af öllum stærðum og gerðum auk nokkurra par- og raðhúsa. Um er að ræða átta fjölbýlishúsalóðir, tvær raðhúsalóðir og þrjár parhúsalóðir þar sem heimilt er að byggja samtals 220-280 íbúðir. Lögaðilar geta boðið í allar lóðirnar en einstaklingar geta eingöngu boðið í parhúsalóðirnar.

Síðar á árinu munu fleiri par- og raðhúsalóðir auk einbýishúsalóða verða auglýstar.

Fimmtudaginn 16. mars nk. kl. 14-15 verður haldinn kynningarfundur um þessa fyrstu úthlutun lóða í Móahverfi.

Fundurinn verður haldinn í Ráðhúsi Akureyrarbæjar, Geislagötu 9. Gestir sem ætla að koma í Ráðhúsið eru beðnir um að skrá sig á með því að senda tölvupóst á skipulag@akureyri.is. Kynningarfundinum verður jafnframt streymt á Teams og má nálgast fundarslóðina í auglýsingu á heimasíðu Akureyrarbæjar.

Útboðsgögn verða tilbún til afhendingar 16. mars.

Tilboðum í lóðir skal skilað rafrænt á útboðsvef Akureyrarbæjar, https://www.akureyri.is/is/stjornkerfi/utbod/auglyst-utbod-loda fyrir kl. 12 fimmtudaginn 30. mars 2023. Tilboð verða opnuð í Ráðhúsinu kl. 14 sama dag í viðurvist þeirra umsækjenda sem þess óska.

www.maturogmork.is Samlokubakkar ro www.matu r w w w m a t ogmork.is k i LÆGSTA VERÐIÐ Mýrarvegi, Akureyri VIKU BLADID.IS FRÉTTIR • MANNLÍF • ÍÞRÓTTIR

D raumagjafir náttúrubarnsins

* Birt með fyrirvara um prentvillur Hvannavöllum 14, Akureyri / 580-8500 / www.ellingsen.is / ellingsen_akureyri GRISPORT DAKAR GÖNGUSKÓR 24.995 KR. / ST. 39-44 TNF DUFFEL TASKA - SMALL 22.995 KR. / 50 L COLUMBIA TITAN PASS 16.995 KR. / KVK COLUMBIA TITAN PASS 22.995 KR. / KK KOBUK VALLEY 2 TJALD 22.995 KR. MAMMUT DUCAN HIGH 35.995 KR. / ST. 36-42 COLUMBIA EARTH EXPLORER 23.995 KR. / KK COLUMBIA EARTH EXPLORER 23.995 KR. / KVK ZERO 9 RAFHLAUPAHJÓL 99.995 KR.

13.00 Fréttir með táknmálstúlkun

13.25 Heimaleikfimi e.

13.35 Kastljós e.

14.00 Útsvar 2017-2018 e.

15.05 Söngvaskáld (4:8) e.

15.55 Sögur frá Listahátíð e.

16.05 Heilabrot (6:10) e.

16.35 Okkar á milli e.

17.00 Leyndarlíf hunda (1:3) e.

17.50 Vísindahorn Ævars

18.00 KrakkaRÚV

18.01 Hæ Sámur (31:51) e.

18.08 Símon (11:52)

18.13 Örvar og Rebekka (13:52)

18.25 Ólivía (8:50)

18.36 Eldhugar – Temple Grandin - dýrahvíslari (6:30)

18.40 Krakkafréttir með táknmálstúlkun

18.45 Lag dagsins e. 18.52 Vikinglottó 19.00 Fréttir

21.05 Dýragarðsbörnin (1:8) (Wir Kinder vom Bahnhof Zoo) Þýsk þáttaröð í átta þáttum byggð á endurminningum

22.00 Tíufréttir

22.15 Veður

22.20 Frelsisbarátta svartra Bandaríkjamanna

23.10 Lífshlaup í tíu myndum –Tupac Shakur (3:6) e. 00.05 Dagskrárlok

08:00 Heimsókn (14:28)

08:15 Grand Designs: Australia (6:8)

09:05 Bold and the Beautiful (8561:749)

09:30 Listing Impossible (1:8)

10:10 Mr. Mayor (3:11)

10:30 Masterchef USA (1:20)

11:10 Þetta reddast (6:8)

11:30 Um land allt (3:7)

12:10 Franklin & Bash (3:10)

12:50 Ísskápastríð (10:10)

13:25 Shark Tank (1:22)

14:10 Saved by the Bell (2:10)

14:35 Love Triangle (4:8)

15:25 Lóa Pind: Battlað í borginni (2:5)

16:00 Men in Kilts: A Roadtrip with Sam and Graham (5:8)

16:30 The Heart Guy (1:10)

17:15 Franklin & Bash (3:10)

17:55 Bold and the Beautiful (8561:749)

18:20 Veður (74:365)

18:30 Fréttir Stöðvar 2

18:50 Sportpakkinn (70:187)

18:55 Ísland í dag (43:265)

06:00 Tónlist

12:00 Dr. Phil (57:160)

12:40 The Late Late Show with James Corden (99:150)

13:25 The Block (20:47)

14:25 Love Island (44:57)

15:10 Læknirinn í eldhúsinu (5:6)

15:40 Að heiman - íslenskir arkitektar (3:6)

16:10 Ghosts (16:18)

17:40 Dr. Phil (58:160)

18:25 The Late Late

18:30 Fréttavaktin

19:00 Markaðurinn

19:30 Söfnin á Íslandi (e)

20:00 Bíóbærinn

20:30 Fréttavaktin (e)

21:00 Markaðurinn (e)

10:00 Svampur Sveinsson (12:21)

10:25 Könnuðurinn Dóra (12:24)

10:50 Skoppa og Skrítla enn út um hvippinn og hvappinn

11:00 Strumparnir (35:49)

11:20 Latibær (15:35)

11:45 Ace Ventura: Pet Detective

13:10 Funny People

15:30 Hvolpasveitin (18:26)

15:55 Blíða og Blær (1:20)

16:15 Adda klóka (7:26)

16:40 Dagur Diðrik (20:26)

17:00 Svampur Sveinsson (11:21)

17:25 Drekatemjarinn

19:00 Fóstbræður (4:8)

19:30 Tekinn (7:13)

19:55 Legends of Tomorrow (9:15)

20:35 Six Minutes to Midnight

22:10 Savage

23:45 Umma

01:05 Pressa (6:6)

01:45 Dating #NoFilter (19:20)

mars

með táknmálstúlkun

13.25 Heimaleikfimi (1:15) e.

13.35 Kastljós e.

14.00 Útsvar 2017-2018 e.

15.10 Á tali hjá Hemma Gunn 1992-1993 (5:11) e.

16.35 Hvunndagshetjur (5:6) e.

17.00 Matur með Kiru (6:8) e.

17.30 Landinn e.

18.00 KrakkaRÚV

18.01 Holly Hobbie (5:10)

18.24 Undraverðar vélar (4:20)

18.38 Áhugamálið mitt (16:20)

18.45 Krakkafréttir með táknmálstúlkun

18.50 Lag dagsins e.

19.00 Fréttir

19.25 Íþróttir

19.30 Veður

19.35 Kastljós

20.00 Græna röðin með Sinfó (Bertrand de Billy stjórnar Brahms)

21.05 Sanditon (1:6) (Sanditon II) Önnur sería þessara leiknu þátta sem byggðir eru á ókláraðri skáldsögu Jane Austen frá 1817.

22.00 Tíufréttir

22.15 Veður

22.20 Útrás (2:8) (Exit III)

23.00 Lögregluvaktin (18:19) (Chicago PD VII)

23.40 Heima (6:6) e. (Home)

00.05 Dagskrárlok

08:00 Heimsókn (15:28)

08:20 Grand Designs: Australia

09:10 Bold and the Beautiful

09:30(8562:749) FC Ísland (4:4) 10:10 Lego Masters USA

10:50 The Cabins (3:16)

11:35 BBQ kóngurinn (4:6)

12:00 America’s Got Talent: Extreme (3:4)

13:20 Franklin & Bash (4:10)

14:05 Family Law (7:10)

14:45 Skreytum hús (4:6)

15:00

15:50

Designs (6:8)

Economics (4:22)

17:00 The Masked Singer (3:8) 17:15

& Bash (4:10) 18:00 Bold and the Beautiful (8562:749)

18:25 Veður (75:365)

18:30

Stöðvar 2

18:50 Sportpakkinn (71:187)

18:55

í dag (44:265)

18:30 Fréttavaktin

19:00 Mannamál (e)

19:30 Suðurnesja-magasín Víkurfrétta

20:00 Iðnþing 2023

20:30 Fréttavaktin (e)

21:00 Mannamál (e)

10:05 Svampur Sveinsson (13:21)

10:25 Könnuðurinn Dóra (13:24)

10:45 Skoppa og Skrítla á póstkorti um Ísland (2:10)

10:55 Strumparnir (36:49)

11:20 Latibær (16:35)

11:45 The Princess Bride

13:20 Here Today

15:15 Hvolpasveitin (19:26)

15:35 Blíða og Blær (2:20)

16:00 Danni tígur (34:80)

16:10 Adda klóka (8:26)

16:30 Dagur Diðrik (21:26)

16:55 Svampur Sveinsson (12:21)

17:15 Könnuðurinn Dóra (12:24)

17:40 Kapteinn Skögultönn og töfrademanturinn

18:55 Fóstbræður (5:8)

19:25 Ástríður (7:12)

19:50 Dating #NoFilter (20:20)

20:15 Coroner

20:55 Chick Fight

22:30 Robert

Bein útsending Bannað börnum Stranglega bannað börnum Miðvikudagurinn 15. mars
19:10 Heimsókn (10:10) 19:35 Grey’s Anatomy (9:20) 20:25 Family Law (5:10) 21:05 The Resort (6:8) 21:45 Unforgettable (4:13) 22:30 NCIS (13:22) 23:10 Grantchester (1:8) 00:00 Outlander (8:8) 01:00 Euphoria (7:8) 01:55 Wentworth (8:10) 02:45 Mr. Mayor (3:11) 03:05 Shark Tank (1:22)
19.25 Íþróttir 19.30 Veður 19.35 Kastljós 20.05 Kiljan
Christiane F.
Show with James Corden (100:150)
9JKL (3:16) 19:40 The Neighborhood (14:22) 20:10 Survivor (2:13) 21:00 New Amsterdam (19:22) 21:50 Love Island (45:57) 22:35 Good Trouble (7:19) 23:20 The Late Late Show with James Corden (100:150) 00:05 NCIS (1:24) 00:50 NCIS: New Orleans (1:24) 01:35 9-1-1 (5:16) 02:20 American Gigolo (6:8) 03:10 Love Island (45:57) 03:55 Tónlist 06:00 Óstöðvandi fótbolti 16:10 Völlurinn (22:32) 17:10 Tottenham - N. Forest 19:00 Brighton - Crystal Palace 21:30 Premier League Review 22:30 Everton - Brentford 00:20 Óstöðvandi fótbolti Sport Bein útsending Bannað börnum Stranglega bannað börnum Fimmtudagurinn 16.
19:10
(7:8)
(3:10)
Grand
Home
Franklin
Fréttir
Ísland
(5:6) 19:40 Love Triangle (5:8) 20:40 La Brea (8:14) 21:20 NCIS (14:22) 22:05 The Lazarus Project (4:8) 22:50 The Undeclared War (6:6) 23:40 A Friend of the Family (6:9) 00:30 Magnum P.I. (11:20) 01:15 Lego Masters USA (3:10) 01:55 The Cabins (3:16) 02:40 Family Law (7:10) 13.00 Fréttir
19:20 Samstarf
American Dad (9:22) 06:00 Tónlist 12:00 Dr. Phil (17:160) 12:40 The Late Late Show 13:25 The Block (21:47) 14:25 Love Island (45:57) 15:10 The Bachelor (7:12) 16:30 Black-ish (21:21) 17:40 Dr. Phil (18:160) 18:25 The Late Late Show with James Corden (101:150)
The Moodys (4:8)
Ghosts (17:18)
Læknirinn í eldhúsinu (6:6)
Að heiman - íslenskir arkitektar (4:6)
9-1-1 (6:16)
Love Island (46:57)
American Gigolo (7:8)
NCIS:
(2:16)
Mayor of Kingstown (3:10)
Love Island (46:57)
Tónlist
Óstöðvandi fótbolti
Premier League Review (26:37)
Leeds - Brighton
Southampton - Brentford
Völlurinn (22:32)
West Ham - Aston Villa
Óstöðvandi fótbolti Sport
the Bruce 00:30 Old 02:15
19:10
19:40
20:10
20:40
21:10
22:00
22:45
23:40 The Late Late Show with James Corden (101:150) 00:25 NCIS (2:24) 01:10
New Orleans (2:24) 01:55 Law and Order: Special Victims Unit
02:40
03:40
04:25
06:00
16:00
17:00
18:50
20:40
21:40
23:30

Frá Akureyri og út í heim oft í viku

Hvernig hljómar Singapúr í sumar? Hvað með Aþenu eða LA?

Niceair flýgur til Kaupmannahafnar þrisvar í viku í allt sumar. Þaðan er boðið upp á beint flug til fleiri en 170 spennandi áfangastaða um allan heim

Spurningin er bara hvar þig langar að hafa það næs!

AKUREYRI Amsterdam Dúbaí Los Angeles Mílanó Búdapest Berlín Malaga Prag Bangkok Stokkhólmur Barselóna Mallorca Riga Bologna Beirút Feneyjar Madríd Aþena París Róm Tallinn Varsjá Lissabon Istanbúl Frankfurt Singapúr Vín Borgundarhólmur
KAUPMANNAHÖFN niceair.is

13.00 Fréttir með táknmálstúlkun

13.25 Heimaleikfimi (2:15) e.

13.35 Kastljós e.

15.15 Enn ein stöðin (1:16) e.

15.45 Stúdíó A (2:4) e.

16.15 Kæra dagbók (5:8) e.

16.45 Á meðan ég man (5:8) e.

17.10 Bæir byggjast (1:5) e.

18.00 KrakkaRÚV

18.01 Ósagða sagan (2:10) e.

18.29 Hjá dýralækninum (8:20)

18.34 KrakkaRÚV - Tónlist

18.35 Húllumhæ 18.50 Lag dagsins e. 19.00 Fréttir 19.25 Íþróttir

19.30 Veður

19.40 Kastljós

20.00 Gettu betur (7:7)

21.30 Vikan með Gísla Marteini

22.25 Vera – Tígrisdýrið (3:6) Bresk sakamálamynd byggð á sögu eftir Ann Cleeves um Veru Stanhope rannsóknarlögreglukonu á Norðymbralandi.

23.55 Shakespeare og Hathaway (Shakespeare and Hathaway: Private Investigators)

Breskir gamanþættir um einkaspæjarana Luellu Shakespeare og Frank Hathaway sem leysa sakamál í bænum Stratford-upon-Avon.

Aðalhlutverk: Mark Benton og Jo Joyner. e. 00.40 Dagskrárlok

08:00 Heimsókn (16:28)

08:25 Grand Designs: Australia (8:8)

09:15 Bold and the Beautiful (8563:749)

09:35 Listing Impossible (2:8)

10:20 Inside the Zoo (4:8)

11:15 Tala saman (4:5)

11:45 Í eldhúsi Evu (3:8)

12:15 Franklin & Bash (5:10)

13:00 10 Years Younger in 10 Days (10:19)

13:45 Britain´s Naughtiest Nursery (1:2)

14:30 Britain’s Got Talent (3:18)

15:25 Saved by the Bell (5:10)

15:55 Schitt’s Creek (7:13)

16:15 Stóra sviðið (7:8)

17:15 Franklin & Bash (5:10)

18:00 Bold and the Beautiful (8563:749)

18:25 Veður (76:365)

18:30 Fréttir Stöðvar 2

18:50 Sportpakkinn (72:187)

19:00 Hlustendaverðlaun 2023

20:00 The Masked Singer (1:8)

21:05 Venom: Let There Be

Carnage

Eddie Brock reynir að laga sig að sínu nýja lífi, sem hýsill lífverunnar Venom.

22:45 Predestination

00:20 Promising Young Woman Stórkostleg ráðgáta og glæpamynd frá 2020.

02:10 Listing Impossible (2:8)

02:50 Saved by the Bell (5:10)

03:20 Schitt’s Creek (7:13)

Laugardagurinn 18. mars

10.00 Gettu betur (7:7) e. 11.05 Vikan með Gísla Marteini 11.55 Dagur í lífi e.

12.30 Landakort

12.35 Fréttir með táknmálstúlkun

13.00 Bikarkeppnin í handbolta (Bikarúrslit kvenna)

15.30 Bikarkeppnin í handbolta (Bikarúrslit karla)

18.00 Landakort e.

18.05 KrakkaRÚV

18.06 Fótboltastrákurinn Jamie

18.34 Litlir uppfinningamenn (2:10) e.

18.42 KrakkaRÚV - Tónlist

18.45 Bækur sem skóku samfélagið (4:8) e.

18.52 Lottó

19.00 Fréttir

19.25 Íþróttir

19.35 Veður

19.45 Emilíana Torrini og The Colorist Orchestra Upptaka frá tónleikum Emilíönu Torrini og belgísku hljómsveitarinnar The Colorist

21.20 Viggó viðutan (Gaston Lagaffe) Frönsk gamanmynd frá 2018.

22.40 Dallas Buyers Club (Innkaupaklúbbur ÓskarsverðlaunamyndDallas)frá 2013 byggð á sönnum atburðum.

00.35 Nærmyndir – Flaga í sykrinum e. (Talking Heads: A Chip in the Sugar)

01.10 Dagskrárlok

08:00 Söguhúsið (24:26) 10:40 Angelo ræður (28:78) 10:50 Mia og ég (23:26)

11:15 K3 (51:52)

11:25 Denver síðasta risaeðlan (42:52)

11:35 Angry Birds Stella (1:13)

11:45 Hunter Street (20:20)

12:05 Ísskápastríð (3:10)

12:40 Bold and the Beautiful

13:00 Bold and the Beautiful

13:20 Bold and the Beautiful

13:40 Bold and the Beautiful

14:05 Bold and the Beautiful

14:25 Þeir tveir (8:8)

15:25 Hvar er best að búa? (3:7)

16:05 Hell’s Kitchen (3:16)

16:50 Kórar Íslands (5:8)

17:55 Franklin & Bash (7:10)

18:25 Veður (77:365)

18:30 Fréttir Stöðvar 2

18:50 Sportpakkinn (73:187)

19:00 Top 20 Funniest (2:11)

19:40 Emoji myndin

21:10 Escape Room:

Tournament of Champions

Framhaldsmynd um sex manneskjur sem festast nauðug í flóttaherbergjum.

22:45 The Wedding Year Gamanmynd frá 2019.

00:10 In Bruges

Mögnuð hasarmynd um leigumorðingja.

01:55 Ísskápastríð (3:10)

02:25 Hvar er best að búa?

(3:7)

03:10 Hell’s Kitchen (3:16)

15:55

17:40

(19:160)

18:25 The Late Late Show with James Corden (8:150)

19:10 Kenan (4:9)

19:40 Black-ish (1:13)

20:10 The Bachelor (8:12)

21:40 Love Island (47:57)

22:25 Love Island (48:57)

23:10 Indiana Jones and the Temple of Doom

Ævintýramynd frá 1984 með Harrison Ford í aðalhlutverki.

01:05 12 Strong

Sönn saga fyrstu

hermannasveitarinnar sem send var til Afganistan eftir árásina á tvíburaturnana í New York. 03:10 Love Island (47:57) 03:55

18:30 Fréttavaktin

19:00 Íþróttavikan með Benna Bó

19:30 Íþróttavikan með Benna Bó

20:00 Bíóbærinn (e)

20:30 Fréttavaktin (e)

21:00 Íþróttavikan með Benna Bó (e)

10:05 Svampur Sveinsson (14:21)

10:25 Könnuðurinn Dóra (14:24)

10:50 Skoppa og Skrítla á póstkorti um Ísland (3:10)

11:05 Strumparnir (37:49)

11:25 Latibær (17:35)

11:50 The Personal History of David Copperfield

13:45 America’s Sweethearts

15:25 Hvolpasveitin (20:26)

15:50 Blíða og Blær (3:20)

16:10 Danni tígur (35:80)

16:25 Adda klóka (9:26)

16:45 Dagur Diðrik (22:26)

17:10 Svampur Sveinsson (13:21)

17:25 Skoppa og Skrítla á póstkorti um Ísland (2:10)

17:40 Fjölskylda Stórfótar

19:00 Fóstbræður (6:8) 19:25

06:00

12:00

18:30 Bíóbærinn (e)

19:00 Heilsubraut (e)

19:30 Nýsköpun (e)

20:00 Undir yfirborðið (e)

20:30 Bíóbærinn (e)

21:00 Heilsubraut (e)

20:10 Mamma Mia!

Rómantísk gamanmynd frá 2008

þar sem lög Abba fá að njóta sín.

22:00 Papillon

00:10 Licorice Pizza

Uppvaxtarsaga Alana Kane og

Gary Valentine þar sem þau lifa og leika sér og verða ástfangin í San Fernando Valley árið 1973.

02:15 Hansel and Gretel: Witch Hunters

Eftir að systkinin Hans og Gréta

voru skilin eftir í skóginum á sínum tíma römbuðu þau á hús eitt sem reyndist í eigu illrar nornar.

03:40 Love Island (48:57)

04:25 Tónlist

Sport

12:40 Premier League Stories

13:10 Chelsea - Everton

13:35 Chelsea - Everton

14:00 Netbusters (25:38)

14:30 Southampt. - Tottenham

17:00 Chelsea - Everton

19:30 Markasyrpan (25:33)

20:00 Brighton - Crystal Palace

20:25 Southampton - Brentford

10:00 Svampur Sveinsson (15:21)

10:25 Könnuðurinn Dóra (15:24)

10:50 Skoppa og Skrítla á póstkorti um Ísland (4:10)

11:00 Strumparnir (38:49)

11:25 Latibær (18:35)

11:50 Iceland is Best

13:20 Sense and Sensibility

15:30 Hvolpasveitin (21:26)

15:50 Blíða og Blær (4:20)

16:15 Danni tígur (36:80)

16:25 Adda klóka (10:26)

16:50 Dagur Diðrik (23:26)

17:10 Svampur Sveinsson (14:21)

17:35 Hodja og töfrateppið

19:00 Fóstbræður (7:8)

19:30 Simpson-fjölskyldan (15:22)

19:55 Bob’s Burgers (13:23)

20:20 Réttur (1:6)

21:00 The Craft

22:40 Boss Level

Bein útsending Bannað börnum Stranglega bannað börnum Föstudagurinn 17. mars
(10:22)
Daisies
23:50 Vivarium
Tónlist
Dr. Phil (18:160)
The Late Late Show with James Corden (101:150)
The Block (22:47)
Love Island (46:57)
This Is Us (2:16)
American Dad
19:45 Pushing
(7:13) 20:30 About Last Night 22:05 At Eternity’s Gate
06:00
12:00
12:40
13:25
14:25
15:10
Players (2022) (3:10)
Dr. Phil
Óstöðvandi fótbolti 16:40 Brighton - Crystal Palace 18:30 Netbusters (24:38) 19:00 Premier League Stories (42:20)
Nottingham ForestNewcastle 22:00 Man. Utd. - Southampton 23:50 Óstöðvandi fótbolti Sport
Tónlist 06:00
19:30
Bein útsending Bannað börnum Stranglega bannað börnum
Tónlist
The Block (23:47)
Love Island (47:57)
Liverpool - Fulham
00:15 Zola Survivor
13:00
14:30
17:25
(2:13)
18:10 Gordon, Gino and Fred
18:55 George Clarke’s Old House, New Home (3:4)
19:40 Players (2022) (4:10)
20:50 N. Forest - Newcastle
Vitinn við Oddeyrarbryggju

11.00 Silfrið

(5:5)

12.10 Menningarvikan

12.40 Kveikur e.

13.15 Z-kynslóðin

13.30 Taka tvö (4:10) e.

14.25 Landinn e.

14.55 Norskir tónar

15.45 Fiðlusmiðurinn

16.35 Rick Stein og franska eldhúsið (2:6) e.

17.35 Fréttir með táknmálstúlkun

18.00 KrakkaRÚV

18.01 Stundin okkar (4:7)

18.26 Frímó (6:10) e.

18.40 Sögur - stuttmyndir e.

18.50 Smíðað með Óskari

19.00 Fréttir

19.25 Íþróttir

19.35 Veður

19.45 Eddan 2023

Bein útsending frá afhendingu

Edduverðlaunanna sem fram fer í Háskólabíói. Stjórn útsendingar: Þór Freysson.

21.55 Stormur (8:8)

22.45 Lífið (2:6) (Life)

Leikin þáttaröð frá BBC. Gail, Belle, David og Hannah búa hvert í sinni íbúð í fjórbýli í Manchester. Þegar röskun verður á högum þeirra fer keðjuverkandi atburðarás af stað sem hefur víðtæk og ófyrirsjáanleg áhrif.

23.45 Silfrið

00.45 Dagskrárlok

Mánudagurinn

08:00 Litli Malabar (5:26)

10:00 Angelo ræður (29:78)

10:10 Mia og ég (24:26)

10:30 Denver síðasta risaeðlan (4:52)

10:45 Hér er Foli (7:20)

11:05 K3 (52:52)

11:20 Náttúruöfl (2:25)

11:25 Are You Afraid of the Dark? (3:3)

12:10 Kjötætur óskast (2:5)

12:45 Simpson-fjölskyldan (7:22)

13:10 Landnemarnir (4:11)

13:45 Draumaheimilið (5:6)

14:15 Top 20 Funniest (2:11)

14:55 Samstarf (5:6)

15:20 Grey’s Anatomy (9:20)

16:05 Heimsókn (10:10)

16:35 The Masked Singer (1:8)

17:40 60 Minutes (29:52)

18:25 Veður (78:365)

18:30 Fréttir Stöðvar 2

18:50 Sportpakkinn (74:187)

19:00 Hvar er best að búa? (4:7)

með táknmálstúlkun

18.50 Lag dagsins e. 19.00 Fréttir 19.25 Íþróttir 19.30 Veður

19.35 Kastljós

20.05 Móðurmál (2:5) (2. Kenzo Eghosa Awaanisha)

20.30 Attenborough: Furðudýr í náttúrunni

21.00 Paradís (4:8) (Paradise II)

22.00 Tíufréttir

22.15 Veður

22.20 Ennio

Heimildarmynd frá 2019 um Ennio Morricone, eitt áhrifamesta tónskáld kvikmyndasögunnar.

Farið er yfir feril hans og rætt við fjölmarga leikara, leikstjóra og tónlistarfólk.

00.50 Dagskrárlok

18:30 Mannamál (e)

19:00 Suðurnesja-magasín Víkurfrétta (e)

19:30 Iðnþing 2023 (e)

20:00 Matur og heimili (e)

20:30 Mannamál (e)

21:00 Hugvekjur á sunnudegi

10:05 Svampur Sveinsson (16:21)

10:25 Könnuðurinn Dóra (16:24)

10:50 Skoppa og Skrítla á póstkorti um Ísland (5:10)

11:05 Strumparnir (39:49)

11:25 Latibær (19:35)

11:50 Billy Elliot

13:35 Reality Bites

15:10 Hvolpasveitin (22:26)

15:35 Blíða og Blær (5:20)

15:55 Adda klóka (11:26)

16:20 Dagur Diðrik (24:26)

16:40 Svampur Sveinsson (15:21)

17:05 Könnuðurinn Dóra (15:24)

17:30 Nonni norðursins 3

19:00 Fóstbræður (8:8)

19:35 Hæðin (7:9)

20:35 Unforgettable (21:22)

21:15 Unforgettable (22:22)

21:55

16:35

21:50

18:30 Fréttavaktin

19:00 Heima er bezt

19:30 Nýsköpun

20:00 433.is

20:30 Fréttavaktin (e)

21:00 Undir yfirborðið (e)

10:05 Svampur Sveinsson (17:21)

10:30 Könnuðurinn Dóra (17:24)

10:55 Skoppa og Skrítla á póstkorti um Ísland (6:10)

11:05 Strumparnir (40:49)

11:30 Latibær (20:35)

11:55 My Salinger Year

13:30 Chaplin

15:45 Hvolpasveitin (23:26)

16:10 Blíða og Blær (6:20)

16:35 Danni tígur (38:80)

16:45 Adda klóka (12:26)

17:05 Dagur Diðrik (25:26)

17:30 Svampur Sveinsson (16:21)

17:50 Sammi brunavörður

19:00 Fóstbræður

19:25 Ríkið (1:10)

19:45 Last Man Standing (7:21)

20:05 It’s

22:45

00:20

Bein útsending Bannað börnum Stranglega bannað börnum Sunnudagurinn 19. mars
(7:9) 21:25 Stonehouse (1:3) 22:20 Masters of Sex (1:12) 23:20 Coroner (6:10) 00:05 Coroner (7:10) 00:45 Coroner (8:10) 01:30 Insecure (9:10) 01:55 Brave New World (6:9)
19:45 Grand Designs (7:8) 20:35 A Friend of the Family
10.00 Fótboltasnillingar (2:8) e. 10.30 Verksmiðjan
The Aviator 00:40 Antebellum 02:20 Adam
Island (48:57)
(8:14)
PEN15 (13:15)
Matarboð (1:4)
Heima (4:6)
mitt (5:6) 18:30 Læknirinn í eldhúsinu (6:6) 19:10 Að heiman (4:6) 19:40 Killing It (10:10) 20:10 A Million Little Things (1:13) 21:00 Law and Order: Special Victims Unit (3:16) 21:55 Love Island (49:57) 22:50 Mayor of Kingstown (4:10) 23:35 Impeachment (6:10) 00:30 NCIS (3:24) 01:10 NCIS: New Orleans (3:24) 01:50 The Rookie (8:16) 02:35 Resident Alien (3:16) 03:20 Love Island (49:57) 04:05 Tónlist 13:00 Markasyrpan (25:33) 13:30 Arsenal - Crystal Palace 16:00 Völlurinn (23:32) 17:00 Markasyrpan (25:33) 17:30 Brentford - Leicester 17:55 Wolves - Leeds 2022-23 18:20 Chelsea - Everton
N. Forest - Newcastle
Southampt. - Tottenham 19:35 A. Villa - Bournemouth 20:00 PL 100 Sport
03:55 It’s Always Sunny in Philadelphia (5:8) 04:20 Ástríður (7:12) 12:00 The Bachelor (8:12) 13:20 The Block (24:47) 14:20 Love
15:05 Top Chef
15:50
16:50
17:30
18:00 Brúðkaupið
18:45
19:10
Bein útsending Bannað börnum Stranglega bannað börnum
20.
08:00 Heimsókn (17:28) 08:15 The Bold Type (1:6) 08:55 Bold and the Beautiful (8564:749) 09:20 NCIS (11:21) 10:00 Nettir kettir (8:10) 10:50 Um land allt (9:19) 11:20 Top 20 Funniest (3:18) 12:00 Franklin & Bash (6:10) 12:40 Skreytum hús (5:6) 12:55 Afbrigði (4:8) 13:20 Jamie’s One Pan Wonders (4:8) 13:45 Bump (10:10) 14:20 Fantasy Island (2:10) 15:00 Í eldhúsinu hennar Evu (6:9)
Næturgestir (5:6)
The Titan Games (8:12)
mars
15:25
15:55
Are You Afraid
Dark? (4:6)
Franklin & Bash (6:10) 18:00 Bold and the Beautiful (8564:749) 18:25 Veður (79:365) 18:30 Fréttir Stöðvar 2 18:50 Sportpakkinn (75:187) 18:55 Ísland í dag (45:265) 19:10 Draumaheimilið (6:6) 19:35 Ice Cold Catch (11:13) 20:20 Screw (4:6) 21:10 The Lazarus Project (5:8) 21:55 Masters of Sex (2:12) 22:50 60 Minutes (29:52) 23:35 After the Trial (6:6) 00:25 Magnum P.I. (4:20) 01:05 Cheaters (5:6) 01:30 Bold and the Beautiful 01:55 Jamie’s One Pan Wonders 13.00 Fréttir með táknmálstúlkun 13.25 Heimaleikfimi (3:15) e. 14.45 Af fingrum fram e. 15.30 Rökstólar
Húsið
16.15 Úti II e. 16.45 Silfrið e. 17.50 Músíkmolar 18.00 KrakkaRÚV 18.01 Hinrik hittir 18.06 Vinabær Danna tígurs 18.18 Skotti og Fló e. 18.25 Blæja e. 18.32 Zip Zip (8:52) 18.43 Ég er fiskur
Krakkafréttir
of the
17:20
15.45
okkar á Sikiley (7:8)
18.45
(1:8)
Sunny in Philadelphia (6:8)
Always
The Fast Saga
20:30 F9:
Days
Four Good
The Secrets We Keep
Hamilton (9:10) 06:00 Tónlist 12:00 Dr. Phil (19:160) 12:40 The Late Late Show with James Corden (8:150)
The Block (25:47)
Love Island (49:57)
Heartland
American
Dr.
The
PEN15
The
01:55 Agent
13:25
14:25
15:10
(8:18) 15:55
Auto (3:13) 17:40
Phil (20:160) 18:25
Late Late Show with James Corden (102:150) 19:10 How We Roll (4:11) 19:40
(14:15) 20:10 Top Chef (9:14) 21:00
Rookie (9:16)
Love
Island (50:57)
22:35 Resident Alien (4:16)
Love Island
Tónlist
23:20 The Late Late Show with James Corden (102:150) 00:05 NCIS (4:24) 00:50 NCIS: New Orleans (4:24) 01:35 FBI (11:16) 02:20 The Man Who Fell to Earth (9:10) 03:10
(50:57) 03:55
06:00 Óstöðvandi fótbolti
16:00 Völlurinn (23:32)
17:00 N Forest - Newcastle
18:50 SouthamptonTottenham
Sport
20:40 Premier League Review (27:37) 21:40 Chelsea - Everton 23:30 Óstöðvandi fótbolti

13.00 Fréttir með táknmálstúlkun

13.25 Heimaleikfimi (4:15) e.

13.35 Kastljós e. 15.15 Með okkar augum (4:6) e. 15.50 Kiljan e. 16.30 Menningarvikan e. 17.00 Veröld sem var 17.30 Sætt og gott

17.50 Óperuminning

18.00 KrakkaRÚV

18.01 Pósturinn Páll

18.23 Drónarar 18.45 Krakkafréttir með táknmálstúlkun

08:00 Heimsókn (18:28)

08:20 The Bold Type (2:6)

09:00 Bold and the Beautiful

09:20 Blindur bakstur (4:8)

10:00 Punky Brewster (9:10)

10:25 Fyrsta blikið (1:8)

11:05 Home Economics (2:7)

11:25 Simpson-fjölskyldan (8:22)

11:45 Franklin & Bash (7:10)

12:25 Skreytum hús (1:6)

12:40 Amazing Grace (5:8)

13:30 Backyard Envy (6:8)

14:10 Margra barna mæður (3:7)

14:40 The Masked Dancer (2:7)

15:45 Hið blómlega bú (2:10)

16:15 Race Across the World (3:6)

17:20 Franklin & Bash (7:10)

06:00 Tónlist

12:00 Dr. Phil (20:160)

12:40 The Late Late Show with James Corden (102:150)

13:25 The Block (26:47)

14:25 Love Island (50:57)

15:10 Survivor (2:13)

15:55 The Neighborhood (14:22)

17:40 Dr. Phil (26:160)

18:25 The Late Late Show with James Corden (103:150)

19:10 A.P. BIO (4:8)

19:40 American Auto (4:13)

20:10 Heartland (9:18)

18:30 Fréttavaktin

19:00 Matur og heimili

19:30 Heilsubraut

20:00 Undir yfirborðið

20:30 Fréttavaktin (e)

21:00 Matur og heimili (e)

10:05 Svampur Sveinsson

10:30 Könnuðurinn Dóra

10:55 Skoppa og Skrítla á póstkorti um Ísland (7:10)

11:10 Strumparnir (41:49)

11:35 Latibær (21:35)

11:55 A Winter Princess

13:15 Role Models

14:50 Hvolpasveitin (24:26)

15:15 Blíða og Blær (7:20)

20.05

núll (Day

Heimildarmynd frá 2021 sem tekin var yfir þriggja ára tímabil og varpar ljósi á þá stigvaxandi umhverfisvá sem heiminum stafar af skorti á vatni. Leikstjórar: Virginia Quinn og Kevin Sim.

21.00 Síðasta konungsríkið (5:10) (The Last Kingdom V)

22.00 Tíufréttir

22.15 Veður

22.20 Kveikjupunktur (6:6) (Trigger Point)

23.10 Sæluríki (3:8) e. (Lykkeland II)

23.55 Dagskrárlok

18:00 Bold and the Beautiful (8565:749)

18:25 Veður (80:365)

18:30 Fréttir Stöðvar 2

18:50 Sportpakkinn (76:187)

18:55 Ísland í dag (46:265)

19:10 Jamie’s One

Miðvikudagurinn 22. mars

08:00 Heimsókn (19:28)

08:15 The Bold Type (3:6)

09:00 Bold and the Beautiful (8566:749)

09:20 Listing Impossible (3:8)

10:00 Mr. Mayor (4:11)

10:20 Masterchef USA (2:20)

11:00 Um land allt (4:7)

12:05 Franklin & Bash (8:10)

12:25 Ísskápastríð (1:7)

12:55 Shark Tank (2:22)

13:40 The Heart Guy (2:10)

14:25 Saved by the Bell (3:10)

14:55 NCIS (14:22)

15:35 Love Triangle (5:8)

16:30 Lóa Pind: Battlað í borginni (3:5)

17:20 Franklin & Bash (8:10)

15:40 Að heiman - íslenskir arkitektar (4:6)

16:10 Ghosts (17:18)

17:40 Dr. Phil (27:160)

18:25 The Late Late Show with James Corden (104:150)

19:10 9JKL (4:16)

19:40 The Neighborhood (15:22)

20:10 Survivor (3:13)

15:35 Danni tígur (39:80)

15:50 Adda klóka (13:26)

16:10 Dagur Diðrik (26:26)

16:35 Svampur Sveinsson (17:21) 16:55

21:35 The Twilight Saga: Breaking Dawn Part 1

23:25 Waiting for the Barbarians

01:15 Boarding School

03:05 Legends of Tomorrow (9:15)

18:30 Fréttavaktin

19:00 Markaðurinn

19:30 Útkall (e)

20:00 Bíóbærinn

20:30 Fréttavaktin (e)

21:00 Markaðurinn (e)

10:05 Svampur Sveinsson (19:21)

10:25 Könnuðurinn Dóra (19:24)

10:50 Skoppa og Skrítla á póstkorti um Ísland (8:10)

11:05 Strumparnir (42:49)

11:25 Latibær (22:35)

11:55 Ace Ventura: When Nature Calls

18.45 Lag dagsins e.

Vikinglottó

Íþróttir

Veður

Kastljós

Íslensku tónlistarverðlaunin 2023 Bein útsending frá afhendingu Íslensku tónlistarverðlaunanna 2023 í Silfurbergi í Hörpu.

22.00 Tíufréttir

22.15 Veður

22.20 Dýragarðsbörnin (2:8) (Wir Kinder vom Bahnhof Zoo)

23.20 Músíktilraunir 2021 Samantekt frá úrslitakvöldi Músíktilrauna 2021 í Norðurljósasal Hörpu.

00.30 Dagskrárlok

18:00 Bold and the Beautiful (8566:749)

18:20 Veður (81:365)

18:30 Fréttir Stöðvar 2

18:50 Sportpakkinn (77:187)

18:55 Ísland í dag (47:265)

19:10 Spegilmyndin (1:6) Mannlífsþáttur um heilsu, fegurð, hreyfingu og fegrunarog lýtaaðgerðir.

21:00 New Amsterdam (20:22)

21:50 Love Island (52:57)

22:35 Good Trouble (8:19)

23:20 The Late Late Show with James Corden (104:150)

00:05 NCIS (6:24)

00:50 NCIS: New Orleans (6:24)

01:35 9-1-1 (6:16)

02:20 American Gigolo (7:8)

03:10 Love Island (52:57)

03:55 Tónlist

Sport

06:00 Óstöðvandi fótbolti

16:00 Völlurinn (23:32)

17:00 A. Villa - Bournemouth

18:50 Chelsea - Everton

20:40 Premier League Review (27:37)

21:40 Southampt. - Tottenham

23:30 Óstöðvandi fótbolti

13:25 Robin Roberts Presents: Mahalia

15:05 Hvolpasveitin (25:26)

15:30 Blíða og Blær (8:20)

15:50 Danni tígur (40:80)

16:05 Adda klóka (14:26)

16:25 Dagur Diðrik (1:20)

16:50 Svampur Sveinsson (18:21)

17:10 Könnuðurinn Dóra (18:24)

17:35 Klandri

19:00 Fóstbræður (3:8)

19:25 Tekinn (8:13)

19:50 Legends of Tomorrow (10:15)

20:30 In the Name of the Father

22:35

Bein útsending Bannað börnum Stranglega bannað börnum Þriðjudagurinn 21. mars
Pan Wonders (5:8) 19:35 Hell’s Kitchen (4:16) 20:20 S.W.A.T. (12:22) 21:00 Magnum P.I. (5:20) 22:05 The Righteous Gemstones (4:9) 22:45 Unforgettable (4:13) 23:30 Family Law (5:10) 00:10 The Resort (6:8) 00:45 Agent Hamilton (4:10) 01:30 The Bold Type (2:6) 02:10 Punky Brewster (9:10)
18.16 Jasmín & Jómbi
18.50 Lag dagsins
19.00 Fréttir 19.25 Íþróttir 19.30 Veður 19.35 Kastljós
e.
Dagur
Zero)
Könnuðurinn Dóra
(17:24)
17:20 Croods - Ný öld 19:00 Fóstbræður (2:8) 19:25 Flúr & fólk (1:6)
19:55 Agent Hamilton (10:10)
20:40 Shameless (7:14)
21:00 FBI (12:16) 21:50 Love Island (51:57) 22:35 The Man Who Fell to Earth (10:10) 23:25 The Late Late Show with James Corden (103:150) 00:10 NCIS (5:24) 00:55 NCIS: New Orleans (5:24) 01:40 New Amsterdam (19:22) 02:20 Good Trouble (7:19) 03:05 Love Island (51:57) 03:50 Tónlist 06:00 Óstöðvandi fótbolti 16:00 Premier League Review (27:37) 17:00 Brentford - Leicester 18:50 Arsenal - Crystal Palace 20:40 Völlurinn (23:32) 21:40 Wolves - Leeds 23:30 Óstöðvandi fótbolti Sport
Bein útsending Bannað börnum Stranglega bannað börnum
19:30 Grey’s Anatomy (10:20) 20:20 Family Law (6:10) 21:00 The Resort (7:8) 21:40 Unforgettable (5:13) 22:20 Grantchester (2:8) 23:05 La Brea (8:14) 23:50 Euphoria (8:8) 00:50 Wentworth (9:10) 01:35 The Bold Type (3:6) 02:20 Listing Impossible (3:8) 03:00 Mr. Mayor (4:11) 13.00 Fréttir með táknmálstúlkun 13.25 Heimaleikfimi (5:15) e. 13.35 Kastljós e. 15.20 Söngvaskáld (5:8) e. 16.10 Út og suður (8:17) 16.30 Heilabrot (7:10) e. 17.00 Leyndarlíf hunda (2:3) e. 17.50 Rabbabari e. 18.00 KrakkaRÚV 18.01 Hæ Sámur (32:51) e. 18.08 Símon (12:52) 18.13 Örvar og Rebekka (14:52) 18.25 Ólivía (9:50) 18.36 Eldhugar – Naziq al-Abid
aðgerðasinni af aðalsættum (7:30) e. 18.40 Krakkafréttir
-
með táknmálstúlkun
19.25
19.30
19.35
18.52
19.00 Fréttir
20.00
06:00 Tónlist 12:00 Dr. Phil (26:160)
The Late Late Show with James Corden (103:150)
The Block (27:47)
Love
Fear and Loathing in Las Vegas 00:30 Unhinged
12:40
13:25
14:25
Island (51:57)
15:10 Læknirinn í eldhúsinu (6:6)
Erum búin að opna í Hrísalundi Alvöru heimilismatur alla virka daga

Fiskikvöldið mikla

Karlakórs Eyjafjarðar

í Skeifunni, sal Hestamannafélagsins Léttir

í reiðhöllinni, föstudaginn 17. mars kl. 19.00

Þar verður boðið upp á sjósigin fisk, Þórustaðarkartöflur, hamsatólg og heimabakað rúgbrauð. Þá verða drykkjarföng við hæfi til sölu. Kaffi & konfekt á eftir

Kórinn syngur nokkur lög og eins verður fjöldasöngur og kannski fleira skemmtilegt. Verð 3500

Að gefnu tilefni...

Að gefnu tilefni viljum við biðja fólk um að gera greiðan aðgang fyrir blaðbera okkar að bréfalúgum og póstkössum

á drei ngarsvæði Dagskrárinnar Með

kveðju,

Ráðgjafi á Húsavík

Við leitum að öflugum aðila í útibú okkar á Húsavík til að sinna þjónustu og sölu til viðskiptavina. Um er að ræða fjölbreytt starf í skemmtilegu starfsumhverfi.

Starfið felur m.a. í sér:

› ráðgjöf og þjónustu vegna trygginga

› sölu og upplýsingagjöf til núverandi og nýrra viðskiptavina

› greiningu á þörfum viðskiptavina og þátttöku í fjölbreyttum þjónustuverkefnum

Við leitum að einstaklingi með:

› menntun sem nýtist í starfi

› reynslu af ráðgjafar- og söluverkefnum

› mikla færni í mannlegum samskiptum og söluhæfileika

› framúrskarandi þjónustulund og jákvætt hugarfar

› frumkvæði og metnað til að ná árangri

Nánari upplýsingar veitir

Valgeir Páll Guðmundsson, svæðisútibússtjóri, valgeir.gudmundsson@sjova.is

Umsóknarfrestur er til og með

22. mars nk. Sótt er um starfið á

sjova.is/starfsumsoknir

S j ó v á 44 0 200 0
Efst tryggingafélaga í Ánægjuvoginni Framú rirtæki í flokki stærri fyrirtækja Jafnlaunavottun forsætisráðuneytisins

SJÁLFSBJÖRG

félag fatlaðra Akureyri og nágrenni

Fundarboð

Boðað er til félagsfundar fimmtudaginn 23. mars kl. 17:00.

Dagskrá:

• Kosning fulltrúa félagsins á landsfund Sjálfsbjargar landssambands hreyfihamlaðra sem fram fer 29. apríl næstkomandi.

• Önnur mál.

Fundurinn verður haldinn í sal félagsins á neðri hæð að Bugðusíðu 1.

Félagsfólk er hvatt til að mæta. Stjórnin

Starfsfólk óskast í stoðþjónustu

Stoðþjónusta (heimaþjónusta b) óskar eftir að ráða starfsfólk til að styðja við sjálfstæða búsetu fatlaðs fólks. Um er að ræða ótímabundin störf í vaktavinnu þar sem unnið er á morgun-, kvöld- og helgarvöktum. Starfshlutfall er frá 60-90% og þurfa umsækjendur að hafa náð 22 ára aldri.

Leitað er að einstaklingum sem hafa hæfileika og áhuga á að starfa með fólki.

Sjá nánari upplýsingar um starfið á heimasíðu Akureyrarbæjar www.akureyri.is þar sem sótt er um rafrænt.

Umsóknarfrestur er til og með 20. mars 2023.

www.akureyri.is akureyri@akureyri.is
Geislagata 9 Sími 460 1000

VÍTAMÍN MEÐ FORÐAVERKUN

Hylki með breyttan losunarhraða eru þróuð til að losa virku efnin smám saman yfir lengri tíma.

Forðahylki eru nýstárleg leið til að stuðla að betri upptöku virkra efna og minni ertingu við inntöku.

1h 3h 6h 8h
www.akap.is Kaupangi v/ Mýrarveg sími 460 9999
Losun virkra efna, %

20% AFSLÁTTUR

BARNABÍLSTÓLAR

Viðskiptavinir tryggingafélagsins TM fá 20% afslátt af Kiddy barnabílstólum í Bílanaust.

Fullt verð 38.900 kr

Kiddy Cruiserfix 3

Svartur 15-36 Kg

Fullt verð 49.900 kr

Skoðaðu vöruúrvalið á

Bílanaust Furuvöllum 15, 600 Akureyri

S. 535 9085

Opið

Mán - fös 8 - 18

Lau 10 - 14

FABBRI REIÐHJÓLAFESTINGAR FYRIR VIÐSKIPTAVINI
TM
Kiddy Evolution Pro 2 Grænn 0-13 Kg
Alternatorar og startar í miklu úrvali Glerárgata 34b, 600 Akureyri • S4611092 • asco@asco.is Ó K EYPIS RAFGEYMAMÆLING! Eigum allar stærðir rafgeyma á lager

Y rborðsfrágangur í Lónsbakkahver , Hörgársveit

Hörgársveit óskar eftir tilboðum í yfirborðsfrágang gatna og gangstétta í

Lónsbakkahverfi, Hörgársveit. Tilboðið nær til undirbúnings undir malbik gatna og gangstétta, malbikunar á götum, bílastæðum og gangstéttum og að koma fyrir umferðarkantsteinum og leggja staðsteypta kantsteina.

Um er að ræða hluta Reynihlíðar, lengd götu um 250m, Víðihlíð, lengd götu um 160m og um 40m langa tengigötu milli Reynihlíðar og Lónsvegar.

Nokkrar magntölur eru:

Jöfnunarlag um 5.500 m²

Malbik Y16 á götur og bílastæði um 3.000 m²

Malbik Y12 á gangstéttar um 2.600 m²

Umferðarkantsteinar um 470 m

Staðsteyptir kantsteinar um 770 m

Verkinu skal að fullu lokið 31. júlí 2023.

Útboðsgögn verða afhent hjá Verkís hf., Austursíðu 2, 603 Akureyri, frá og með miðvikudeginum 15.mars 2023 að gefnum upplýsingum um nafn, kennitölu, heimili, símanúmer og netfang bjóðanda. Senda má ósk um gögn í tölvupósti á netfangið mm@verkis.is með ofangreindum upplýsingum.

Tilboðum skal skila á VERKÍS hf., Austursíðu 2, 3. hæð eða í tölvupósti á

mm@verkis.is eigi síðar en miðvikudaginn 29. mars 2023 kl. 11:00 og verða tilboð þá opnuð að viðstöddum fulltrúum bjóðenda, sem þess óska.

MAGNAÐUR MAGNAÐUR MARS MARS FERMINGARGRÆJUR Í MIKLU ÚRVALI MI tolvutek.is 11.990 Glorious leikjamýs Verð frá 129.990 Öflugar leikjafartölvur 189.990 Apple MacBook Air Verð frá Verð frá 129.990 Öflugir leikjaturnar 19.990 Leikjastólar í úrvali SENDUM FRÍTT ALLT AÐ 10KG 109.990 PlayStation VR2 gleraugu Verð frá 99.990 PlayStation 5 Verð frá Stafræn útgáfa Verð frá Verð frá 15. mars 2023 • B i r t me ð fyri r v a r a u m br eyti n ga ,r in n slátta r vill u r og m y n da br e ng l

16. mars kl. 20:00

Stjórnandi: Stefán R. Gíslason

Meðleikari á píanó: Valmar Väljaots

Einsöngur: Snorri Snorrason

Tónleikar í Glerárkirkju fimmtudaginn
Karlakórinn Heimir
facebook.com/karlakorinnheimir
Miðasala við innganginn, verð 5.000 kr. Snorri Snorrason

SKILATÍMI AUGLÝSINGA

Auglýsingar sem unnar eru hjá Dagskránni:

Mánudagar kl. 10. Texta í auglýsingar þarf að skila

á tölvutæku formi og myndum í prenthæfu ástandi

Auglýsingar sem koma tilbúnar

til prentunar þurfa að berast fyrir

kl. 16:00 á mánud.

Auglýsingapantanir berist á netfangið hera@dagskrain.is

Auglýsingaskil berist á netfangið dagskrain@dagskrain.is

Smáauglýsingar á netfangið sma@dagskrain.is

Forsíða

103 mm x 180 mm

Opna

284 mm x 219 mm

1/1 síða

135 mm x 219 mm

½ síða

135 mm x 108 mm

¼ úr síðu

66 mm x 108 mm

Borði

135 mm x 60 mm

STÆRÐIR (br x hæð)

AÐALFUNDIR DEILDA

VERÐA HALDNIR SEM HÉR SEGIR:

DEILDARFUNDUR ÞINGEYJARDEILDAR

verður haldinn þriðjudaginn 21. mars kl. 20:00

á Fosshótel Húsavík

DEILDARFUNDUR ÚT – EYJAFJARÐARDEILDAR

verður haldinn miðvikudaginn 22. mars kl. 16:30

í Safnaðarheimilinu í Dalvíkurkirkju

DEILDARFUNDUR AUSTUR – EYJAFJARÐARDEILDAR verður haldinn miðvikudaginn 22. mars kl. 20:00

á Lamb Inn, Öngulsstöðum í Eyjafjarðarsveit

DEILDARFUNDUR VESTUR – EYJAFJARÐARDEILDAR verður haldinn fimmtudaginn 23. mars kl.16:00

í Leikhúsinu á Möðruvöllum

DEILDARFUNDUR AKUREYRARDEILDAR

verður haldinn fimmtudaginn 23. mars kl. 20:00

á Stuðlabergi Hótel KEA

Á fundunum verða venjuleg aðalfundarstörf samkvæmt samþykktum um störf deilda félagsins.

Deildarstjórnir

blekhonnun.is blekhonnun.is

FORD BRONCO

AUKAHLUTAPAKKI

FYLGIR MEÐ KEYPTUM

BRONCO AÐ VERÐMÆTI

774.000 KR.

18.-25. MARS

MUSTANG MACH-E

PREMIUM SR AWD

NÝJAR ÚTFÆRSLUR

VERÐ FRÁ

8.890.000 kr.

KOMDU VIÐ Í BRIMBORG DAGANA 18.-25 MARS

OG SKOÐAÐU GÆÐINGANA FORD BRONCO

OG FORD MUSTANG MACH-E!

Tryggvabraut 5

Akureyri

S. 515 7050

Opnunartími:

Mán-fim kl. 8-17, Fös 8-16:15

Laugardaga kl. 12-16

FORD.IS

Sólskin fyrir sálina

Það vorar hjá Ekelund Linneväveriet Bjartir

♥ Páskaævintýri og vor í vændum TÍMI TIL AÐ NJÓTA!

♥ Marsípanfylltir Páskadagar TÍMI TIL AÐ SMAKKA!

♥ Allt þetta gula og góða Curd með límónu og ástríðu

♥ Himnesk handmáluð egg frá Slóvakíu

♥ „Gode gammeldags karklude“ frá Solwang lífga upp á tilveruna

♥ Alls konar freistingar og fallegar gjafir við hvert tækifæri

Taktu rúnt í Sveinsbæ

Opið alla daga 14-18

Bakgarður „tante Grethe“ Eyjafjarðarbraut vestri 821 (í skjóli jóla)
sími 4631433 – opið alla daga 14-18 Velkomin í Bakgarð „tante Grethe“
og dásamlegir litir

RAFVIRKI

Finnst þér áhugavert að starfa í alþjóðlegu umhverfi?

Langar þig að taka þátt í spennandi vegferð atNorth?

atNorth leitar að skipulögðum og handlögnum rafvirkja í rekstrar- og

viðhaldsteymi sitt í gagnaverið Freyju á Akureyri

Helstu verkefni og ábyrgð

Almennt viðhald, vinna við breytingar og uppsetningu á búnaði

Uppsetning, eftirlit og viðhald á ýmsum tæknibúnaði í gagnaveri atNorth

Skipulögð viðhalds- og eftirlits- vinna samkvæmt verkferlum

Þátttaka í uppfærslu verkferla og stöðugum endurbótum verkferla og

vinnulags

Þjónusta við viðskiptavini og úrlausn beiðna

Þekkingar- og hæfnikröfur

Sveinspróf í rafvirkjun

Reynsla af lágspennukerfum, hússtjórnarkerfum eða sambærilegum kerfum kostur

Góð skipulagshæfni

Samviskusemi, stundvísi og drifkraftur

Rík þjónustulund, jákvæðni og samskiptahæfni

Góð almenn tölvukunnátta

Góð enskukunnátta

Hreint sakavottorð

atNorth, er norrænt hátæknifyritæki á sviði gagnavera, ofurtölva, blockchain og gagnaversþjónustu sem hönnuð er til að hámarka reiknigetu viðskiptavina félagsins

Hjá atNorth starfar hópur sérfræðinga sem þjónustar viðskiptavini þess sem eru bæði fyrirtæki og stofnanir sem eru leiðandi á sínu sviði og starfa í fjölmörgum greinum, svo sem fjármálastarfsemi, rannsóknum, heilbrigðismálum, genarannsóknum, framleiðslu og veðurfræði svo eitthvað sé nefnt

Höfuðstöðvar félagsins eru á Íslandi en félagið er einnig með starfsemi í Svíþjóð, Finnlandi Hollandi, Belgíu og Bretlandi.

Umsóknarfrestur er til og með 22. mars 2023

Sótt er um starfið á www.mognum.is

Umsókn skal fylgja starfsferilskrá og kynningarbréf þar sem gerð er grein fyrir ástæðu umsóknar og rökstuðningur fyrir hæfni

umsækjanda

Nánari upplýsingar veita Sigríður Ólafsdóttir; sigga@mognum.is og Telma Eiðsdóttir; telma@mognum is

Tengill ehf óskar eftir að ráða rafiðnaðarmann

á starfsstöð okkar á Akureyri.

Helstu verkefni og ábyrgð: Daglegur rekstur, eftirlit og viðhald arskiptadreifikerfa á Norðurlandi. Tengivinna og mælingar í ljósleiðarakerfum.

Blástur á ljósleiðurum.

Menntunar- og hæfniskröfur: Sveinspróf í rafiðngrein er kostur.

Reynsla af vinnu við tengingar á ljósleiðurum sem og blæstri er kostur. Frumkvæði og nákvæmni.

Tengill er öflugt rafverktakafyrirtæki með starfsstöðvar á 5 stöðum, Akureyri, Sauðárkróki, Blönduósi, Hvammstanga og Reykjarvík.

Nánari upplýsingar veita: Gísli Sigurðsson sími 858 9201 eða netfang gisli@tengillehf.is

Gunnar Örn Jakobsson sími 858 9216 eða netfang

gunnarja@tengillehf.is

RAFIÐNAÐARMAÐUR
ÖLL ALMENN BÍLAÞRIF RB BÍLAÞRIF ] Óseyri 6c ] símI: 863-3100 www.facebook.com/rbbilathrif

Starfsfólk óskast í stoðþjónustu

Stoðþjónusta (heimaþjónusta b) óskar eftir að ráða starfsfólk til að styðja við sjálfstæða búsetu fatlaðs fólks. Um er að ræða ótímabundin störf í vaktavinnu þar sem unnið er á morgun-, kvöld- og helgarvöktum. Starfshlutfall er frá 60-90% og þurfa umsækjendur að hafa náð 22 ára aldri.

Leitað er að einstaklingum sem hafa hæfileika og áhuga á að starfa með fólki.

Sjá nánari upplýsingar um starfið á heimasíðu Akureyrarbæjar www.akureyri.is þar sem sótt er um rafrænt.

Umsóknarfrestur er til og með 20. mars 2023.

Geislagata 9 Sími 460 1000 www.akureyri.is akureyri@akureyri.is

Félag eldri borgara á Akureyri

Mánudaginn 20. mars klukkan 14.00 í Birtu, Bugðusíðu

Ellilífeyrir frá

Tryggingastofnun

Unnur Kristín Sigurgeirsdóttir verkefnastjóri ellilífeyris

á þjónustusviði TR

fjallar um réttindi til ellilífeyris hjá TR, umsóknarferlið, gerð tekjuáætlana o.fl.

Kaffi á könnunni, spjall og spurningar Fjölmennið meðan húsrúm leyfir

Fræðslunefnd

.: Lífsferilsgreiningar í byggingariðaði Þetta námskeið er fyrir iðnaðar- og tæknifólk sem kemur að efnisvali bygginga og mannvirkja. Markmið þess er að kynna þátttakendum lífsferilsgreiningar bygginga og hugmyndafræði þeirra, hvernig þær eru gerðar og hvernig megi lágmarka kolefnisspor framkvæmda.

Kennarar: Helga María Adólfsdóttir byggingafræðingur og Sigurrós Davíðsdóttir umhverfis- og byggingaverkfræðingur.

Staðsetning: Skipagata 14, Akureyri

Tími: Fimmtudagur 23. mars 2023 kl. 13.00 – 16.00

Verð: 20.000 kr.

Verð til aðila Iðunnar: 4.000 kr.

ÞVÍ INNIHALDIÐ SKIPTIR ÖLLU

Framúrskarandi næring og frábært bragð

GEIRÞRÚÐARHAGI 1 ÍBÚÐ 103

Mjög falleg 2ja herbergja íbúð á jarðhæð í góðri lyftublokk í Hagahverfi.

Stærð 54,2 m²

Verð 38,9 millj.

HJALLATÚN 9

SKOÐA SKIPTI Á MINNI EIGN

Falleg og vel skipulögð 3ja herbergja íbúð á efri hæð í fjölbýli í Naustahverfi.

Stærð 98,3 m² Stór og góð verönd er yfir bílskúr neðri hæðar. Verönd og svalir sem snúa til vesturs eru samtengdar

Verð 56,9 millj.

Pakkhúsið · Hafnarstræti 19 · Opið alla virka daga kl.9-17

MIKIL SALA, VANTAR ALLAR GERÐIR EIGNA Á SKRÁ MIKIL SALA, VANTAR ALLAR GERÐIR EIGNA Á SKRÁ

REYNIHLÍÐ 15B

Nýleg glæsileg 4ra herbergja raðhúsaíbúð á einni hæð með 15 m² geymsluskúr á baklóð í nýlegu hverfi í Hörgársveit.

Stærð íbúðar er 98,7 m² Verð 69,9 millj.

MELASÍÐA 2C

Björt og falleg 3ja herbergja íbúð á 2. hæð í fjölbýli í Síðuhverfi.

Stærð 83,8 m²

Verð 39,5 millj.

NJARÐARNES 12 EIGNARHLUTI 108

Gott geymsluhúsnæði á neðri hæð í norður enda með aðkomu frá Goðanesi.

Stærð 81,0 m²

Verð 29,5 millj.

MELASÍÐA 5K

Rúmgóð 3ja herbergja íbúð á 3ju hæð í fjölbýli í Síðuhverfi.

Stærð 93,9 m² Verð 39,8 millj.

AUSTURVEGUR 26 HRÍSEY JÓDÍSARSTAÐIR LÓÐ NR. 7

Vandað sumarhús á 10.000 m² leigulóð skemmtilegum stað í Þingeyjarsveit.

Stærð 44,0 m²

Verð 24,5 millj.

AUSTURHLÍÐ II BLÖNDUDAL

Skemmtilegt 4ra herbergja einbýlishús á tveimur hæðum með bílskúr á 6,6 ha eignarlóð.

Stærð 167,0 m²

Verð 53,9 millj.

Falleg eign á sjávarlóð á suðurenda Hríseyjar í Eyjafirði. Eignin skiptist þannig að íbúaðarhúsið er skráð 105,5 m² að stærð, frístundahús eða vinnustofa er skráð 49 m² og geymsla tæpir 40 m². Verð 70,0 millj.

EIGNAMIÐLUN www.kaupa.is
Sími 466 1600 · www.kaupa.is

Sigurður S. Sigurðsson Löggiltur fasteignasali siggi@kaupa.is s. 862 1013

Björn Davíðsson Löggiltur fasteignasali bubbi@kaupa.is s. 862 0440

SUNNUTRÖÐ 2

Vandað og vel skipulagt 5 herbergja einbýlishús með bílskúr á einni hæð í Eyjafjarðarsveit. Stærð 161,5 m² Verð 89,9 millj.

BYGGÐAVEGUR 92

Íris Egilsdóttir hdl. Löggiltur fasteignasali iris@kaupa.is s. 868 2414

Linda Brá Sveinsdóttir Löggiltur fasteignasali linda@kaupa.is s. 866 8535

SUÐURBYGGÐ 7

7 herbergja einbýli á tveimur hæðum auk bílskúrs á vinsælum stað á Brekkunni. Stærð 254,4 m² Verð 92,0 millj.

ELÍSABETARHAGI 1 ÍBÚÐ 202

Þórunn Friðlaugsdóttir Ritari thorunn@kaupa.is s. 691 4414

Sigurður H. Þrastarson Löggiltur fasteignasali siggithrastar@kaupa.is s. 888 6661

KOTÁRGERÐI 21

Skemmtilegt 5-6 herbergja einbýlishús á 2 hæðum á vinsælum stað á Brekkunni.

Stærð 190,1 m² Verð 95 millj.

KJARNAGATA 35 ÍBÚÐ 101

SÉR INNGANGUR

Vel skipulögð 4ra herbergja neðri hæð með sér inngangi í tvíbýlishúsi á vinsælum stað á Brekkunni. Stærð 138,7 m² Verð 59,9 millj.

HVANNAVELLIR 6, EFRI HÆÐ

EIGNIN ER LAUS VIÐ KAUPSAMNING

Stílhrein og falleg 4-5 herbergja sérhæð í tvíbýli sem hefur verið gerð upp á skemmtilegan hátt. Stærð 128 m² Verð 69,9 millj.

Rúmgóð og skemmtilega skipulögð 3ja herbergja íbúð á 2. hæð í lyftublokk í Hagahverfi.

Stærð 85,5 m² Verð 54,9 millj.

SKARÐSHLÍÐ 30F

EIGNIN ER LAUS VIÐ KAUPSAMNING

Rúmgóð og vel skipulögð 4ra herbergja íbúð á 3ju hæð (efstu) í fjölbýli í Glerárhverfi.

Stærð 109,0 m² Verð 45,9 millj.

EIGNIN ER LAUS VIÐ KAUPSAMNING

Skemmtileg 3-4ra herbergja íbúð með sér inngangi á jarðhæð (austur endi) í fjölbýli í Naustahverfi.

Stærð 96,3 m²

Verð 60,9 millj.

LOKASTÍGUR 1 ÍBÚÐ 302

Björt 3ja herbergja íbúð á 3ju hæð ( efstu ) á Dalvík. Stærð 77,1 m² Verð 23,9 millj.

www.kaupa.is

Frítt verðmat vegna sölu fasteigna

FASTEIGNASALA AKUREYRAR

Skipagata 1 | 600 Akureyri

fastak.is | Sími: 460 5151

NÝTT

SMÁRAHLÍÐ 2

Góð þriggja herbergja 83,9m2 íbúð á jarðhæð, verönd, sérgeymsla í sameignarhluta.

Verð 39,9 m.

DAVÍÐSHAGI 4-304

Skemmtileg stúdíó-íbúð á þriðju hæð, íbúðin er 36,4m2. Mjög falleg íbúð sem er skemmtilega innréttuð með fallegum innréttingum.

TJARNARLUNDUR 12B

Mjög snyrtileg þriggja herbergja íbúð á 2. hæð í fjölbýlishúsi. Íbúðin er skráð samtals 75,8 m2 að stærð og að auki er sér geymsla í sameign.

Verð 37,8 m.

HVANNAVELLIR 6

Mjög glæsileg fimm herb. íbúð á flottum stað á Eyrinni, íbúðin hefur öll verið tekin í gegn og endurnýjuð.

Verð 69,9 m.

LÁFSGERÐI -2 SUMARHÚS/HEILSÁRSHÚS

HRINGTÚN 42-48

Afar smekklegt þriggja herb. raðhúsaíbúðir á einni hæð við hringtún, sameiginleg hjólageymsla og sérgeymslur í sameign.

Verð 49,9 m.

Láfsgerði er í Þingeyjarsveit, Reykjadal um 3 km norðan við Laugar. Lóðin er eignarlóð –stærð 4.242m2

ENGIMÝRI ÖXNADAL

Til sölu 233m2 einbýlishús, 116m2 hlaða, 86,4m2 fjárhús, hesthús sem er 237,8m2 og gróðurhús, landstærð er 1,75ha.

BREKKUGATA 39 e.h.

Rúmgóð og björt 90m2 íbúð á efri hæð í Brekkugötu 39, frábært útsýni og staðsetning, 3 mín. í bæinn, örstutt í alls konar verslunar- og þjónustustarfsemi.

Verð 45,9 m.

DAGSKRÁIN · VIKUBLAÐIÐ · SKRÁIN · VIKUBLADID.IS VIKU BLAÐIÐ Bls. 2 Rokkað gegn sjálfsvígum VIKU BLAÐIÐ 34. TÖLUBLAÐ / 2. ÁRGANGUR / FIMMTUDAGUR 9. SEPTEMBER 2021 Sveitarstjóri fagnaði stórafmæli Þröstur Friðfinnsson, sveitarstjóri Grenivík, fagnaði 60 ára afmæli á dögunum. Þröstur hefur verið sveitarstjóri í sjö ár og kann vel við sig í Grýtubakkahreppi. Vikublaðið fékk hina hliðina af Þresti sem er Bændur eru farnir að heimta fé af fjalli og fyrstu réttir voru um sl. helgi. Vikublaðið átti leið um Ytri-Þverá þar sem réttir voru í fullum Ljósmynd/Þorgeir Baldursson PÍRATAR LÝÐRÆÐI EKKERT KJAFTÆÐI Sjáumst á kjörst - frá Blönduósi til Vopna arðar DAGSKRÁIN skráin 1975 - 2018 1975 - 2021 ÚTGÁFUFÉLAGIÐ GEFUR ÚT vikulega - fáðu þér áskrift! VIKUBLAÐIÐ - í Norðuþingi SKRÁIN Sími: 697 6608 hera@dagskrain.is Sími: 860 6751 gunnar@vikubladid.is Sími: 864 1472 skrain@skarpur.is

www.byggd.is

DALSGERÐI 2F

OPIÐ HÚS FIMMTUDAGINN 16. MARS MILLI KL. 16:15 OG 17

Mikið endurnýjuð og vel skipulögð 5-6 herbergja enda raðhúsaíbúð á tveimur hæðum á mjög vinsælum stað í botnlangagötu á efri Brekku. Góður einangraður 12-14 fm. geymsluskúr fylgir eigninni en í hann er leitt rafmagn.

Stærð: 151,8 fm. Verð: 81 mkr.

DALSGERÐI 5D

EIGNIN GETUR VERIÐ LAUS FLJÓTLEGA

Góð og vel skipulögð fimm herbergja raðhúsaíbúð á tveimur hæðum á vinsælum stað á efri Brekku. Sólskáli er úr stofu sunnan við eignina og garður afgirtur. Stutt er í leik- og grunnskóla ásamt íþróttasvæði KA.

Stærð: 141,1 fm. Verð: 66 mkr.

LAUGARBREKKA 15 – 101 HÚSAVÍK

Um er að ræða þriggja herbergja íbúð á jarðhæð með sér inngangi í þríbýli. Inngangur er að austan og er timburverönd úr borðstofu til suðurs. Mest af innbúi utan persónulegra muna getur fylgt.

Stærð: 111,7 fm. Verð: 36,9 mkr.

ODDEYRARGATA 8 - 101

EIGNIN ER LAUS TIL AFHENDINGAR VIÐ SAMNINGSGERÐ

Þriggja herbergja íbúð neðri hæð með sér inngangi í steinsteyptu tvíbýlishúsi á vinsælum stað á neðri Brekku, mjög nálægt miðbænum. Eignin er skráð skv þjóðskrá 61,3 fm að stærð en að auki er sér geymsla og þvottahús í kjallara.

MIKIL SALA

Verð: 29,8 mkr.

GERÐIR EIGNA Á SKRÁ

Lögg. fasteignasali bjorn@byggd.is Greta Huld Lögg. fasteignasali greta@byggd.is Björn Lögg. fasteignasali bjorn@byggd.is Ólafur Már Nemi til lögg. fast. olafur@byggd.is Berglind Lögg. fasteignasali berglind@byggd.is Freyja Ritari
VANTAR
ALLAR

SMÁRAHLÍÐ 4 - 201

Vel skipulögð þriggja herbergja íbúð á 2. hæð í fjölbýlishúsi á mjög góðum stað í Glerárhverfi rétt við skóla og íþróttasvæði Þórs. Eigninni fylgir sér geymsla í sameign, þak hússins var endurnýjað og gler íbúðar fyrir ca. 10 árum. Stærð: 77 fm. Verð: 39,5 mkr.

LANGAHLÍÐ 6

Vel skiplögð fimm herbergja neðri sérhæð ásamt stakstæðum bílskúr sem er 28 fm. Húsið hefur fengið gott viðhald, það m.a. málað 2021, skólp og pappi á þaki endurnýjað á síðustu 10 árum. Stærð: 168 fm. Verð: 74 mkr.

ÁSATÚN 44 - ÍBÚÐ 103

Um er að ræða 4 herbergja einbýlishús á góðum stað á Blönduósi með stakstæðum bílskúr, 47,5 fm. Mjög stór timburverönd er sunnan við hús og lóðin einnig gróin og stór. Þá hefur þak verið endurnýjað.endurnýjuð, verönd til suðurs.

Stærð: 222,9 fm. Verð: 48 mkr.

LAUS VIÐ SAMNINGSGERÐ

neðri hæð í tveggja hæða fjölbýli með sérinngangi. Skemmtileg íbúð sem hefur verið talsvert endurnýjuð, verönd til suðurs.

Stærð: 79 fm. Verð: 42,9 mkr.

EIGNIN GETUR VERIÐ LAUS VIÐ SAMNINGSGERÐ

Um er að ræða þriggja til fjögurra herbergja íbúð í norðurenda á jarðhæði með sér inngangi í fjölbýlishúsi. Svalir til suðvesturs.

HÁAGERÐI 1

EIGNIN GETUR VERIÐ LAUS FLJÓTLEGA

Sex herbergja einbýlishús á tveimur hæðum á glæsilegum útsýnisstað í rólegu hverfi á efri Brekku með tvöföldum bílskúr. Eignin er á tveimur hæðum, íbúð efri hæðar er skráð 145,1 fm, rými neðri hæðar skráð 30 fm og bílskúr 53 fm. Afar skemmtileg eign sem stendur á hornlóð.

Stærð: 228,1 fm. Verð: 107,9 mkr.

Stærð: 86,5 fm. Verð: 59,5 mkr.

VÍÐIGERÐI - EYJAFJ.SV.

talin vera um 200 ha. og af því ræktað land um 50 hektarar. Jörðinni fylgir um 235 þús l. mjólkurkvóti, nú 45 mjólkandi kýr og 40 aðrir gripir í uppeldi. Tæki skv. tækjalista.

Verð: 260 mkr.

FRÍTT SÖLUVERÐMAT - ALLAR EIGNIR Á BYGGD.IS

SKIPAGATA 16 ◊ OPIÐ KL. 9-17 FÖS 9-16 ◊ FASTEIGNASALAN BYGGÐ
9955 byggd@byggd.is
TRAUST FASTEIGNASALA 464

Kasa Fasteignir - Ráðhústorgi 1 - 600 Akureyri - Opið alla virka daga milli 10:00 - 17:00

Langholt

5

Bjart, vel skipulagt og mikið endurnýjað um 200 fm 5 herbergja einbýlishús með bílskúr og sólpalli með heitum og köldum potti.

Efri hæð skiptist í: Forstofa, eldhús, borðstofa, stofa, hol/gang, baðherbergi, hjónaherbergi og tvö barnaherbergi.

Neðri hæð skiptist í: Þvottahús, salerni, bílskúr, geymslu, herbergi og auka inngang. Gengið er út á sólpall frá neðrihæð.

Jóninnuhagi

4

Björt og vel skipulögð 2 herbergja 56,2 fm íbúð á jarðhæð í austur enda í nýlegu fjölbýli í Hagahverfi.

Eignin skiptist í Forstofu, gang, stofu og eldhús í sama rými, baðherbergi með þvottaaðstöðu, svefnherbergi og geymslu innan íbúðar. Möguleiki á að kaupa innbú með eigninni.

Ásvegur 28

Falleg og mikið uppgerð 4 herbergja 125,2 fm íbúð á tveimur hæðum í tvíbýli á brekkunni. Einstakt útsýni er úr íbúðinni. Neðri hæð skiptist í forstofu, salerni, stofu og borðstofu. Efri hæð skiptist í eldhús, þrjú svefnherbergi og baðherbergi ásamt austur svölum. Góð staðsetning í göngufæri frá miðbænum.

Austurbrú 8

Um er að ræða einstaka útsýnis penthouse íbúð á besta stað í miðbæ Akureyrar. Íbúðin er 3 herbergja og 99,9 fm að stærð og er öll hin glæsilegasta. Eignin skiptist í forstofu, stofu og eldhús í sama rými, baðherbergi með þvottaaðstöðu, tvö svefnherbergi, rúmgóðar vestur svalir ásamt sér stæði í bílakjallara og geymslu.

5 herb. ~200 fm. 92,9 m.
2 herb. 56,2 fm. 41,5 m.
4 herb. 125,2 fm. 62,9 m.
3 herb. 99,9 fm. 99,8 m.
www.kasafasteignir.is NÝTT NÝTT NÝTT
Sími 461 2010

Sigurpáll Lögg. Fast. S: 696 1006

Kasafasteignir Kasafasteignir

Víkurgil 5

NÝTT

Sigurbjörg Lögg. Fast. S: 864 0054

Helgi Steinar Lögg. Fast. S: 666 0999

Sendu okkur fyrirspurn á netfangið: kasa@kasafasteignir.is

Björt og vel skipulögð 4-5 herbergja raðhúsaíbúð með innbyggðum bílskúr á afar vinsælum stað í Giljahverfi.

Eignin skiptist í forstofu, eldhús, stofu, borðstofu, gang, þrjú svefnherbergi, baðherbergi, tölvuherbergi, bílskúr með þvottaaðstöðu og geymslulofti ásamt rúmgóðum viðarsólpall með heitum potti og geymsluskúr.

Brekatún 6

NÝTT

Björt og vel skipulögð rúmgóð 4 herbergja 120,6 fm búð á efri hæð í tengihúsi í Naustahverfi.

Eignin skiptist í forstofu, gang/hol, eldhús, stofu/borðstofu, þrjú svefnherbergi, baðherbergi, þvottahús, geymslu innan íbúðar og tvær geymslur í sameign ásamt rúmgóðum suður svölum. Íbúðin er einkar vel staðsett í rólegu umhverfi með góðu útsýni.

Ljómatún 3

Melasíða 5

Tjarnarlundur 14

Björt og falleg 4 herbergja íbúð á efri hæð í tengihúsi í Naustahverfi. Rúmgóð verönd með góðu útsýni!

4 herb. 114,1 fm. 62,5 m.

Múlasíða 3

NÝTT

Björt og rúmgóð 3 herbergja 93,9 fm íbúð á 3 hæð í fjölbýli rétt við Síðuskóla. Rúmgóðar vestur svalir.

Góð 3 herbergja íbúð á 2 hæð ásamt geymslu á jarðhæð samtals 83,6 fm. Stutt í leik- og grunnskóla.

herb. 83,6 fm. 39,9 m.

Góð 93.7 fm íbúð á 3 hæð. Íbúðin var endurnýjuð fyrir nokkrum árum. Stutt í leik- og Grunnskóla.

2-3 herb. 93,7 fm. 38,9 m.

Kiðagil 1

Höfðahlíð 7

Falleg og vel staðsett 77.7 fm nokkuð endurnýjuð 3 herbergja íbúð á jarðhæð í Giljahverfinu.

Falleg 3 herbergja 80,1 íbúð á jarðhæð í tvíbýli. Rúmgóð verönd til suðurs fylgir eigninni.

3 herb. 80,1 fm. 39,9 m.

4-5 herb. 130 fm. 81,9 m.
4 herb. 102,6 fm. 69,5 m.
3
48,5 m. LAUSSTRAX
herb. 77,7 fm.

NÝTT

Við sýnum allar eignir sjálf

Fagmennska frá fyrstu heimsókn

Syðri Tjarnir, Eyjafjarðarsveit

Um er að ræða 162,3. einbýlishús ásamt 265,9 fm. geymsluhúsnæði ( áður útihús ) á c.a. 1 hektara eignarlandi á frábærum útsýnisstað skammt frá Akureyri.

Verð 89,8 millj.

NÝTT

Dalsgerði 1 b

Falleg og þó nokkuð endurnýjuð 5 herbergja raðhúsaíbúð á tveimur hæðum á vinsælum stað á Brekkunni. Íbúðin er 121,7 fm.

Verð 64,5 millj.

NÝTT

Skarðshlíð 36 d

Rúmgóð og björt 4ra herbergja 109,0 fm íbúð á annari hæð í fjölbýli í Glerárhverfi á Akureyri. Stakstæður 26,6 fm bílskúr fylgir eigninni og er húseignin samtals 135,6 fm.

Verð 46,9 millj.

NÝTT

Tjarnarlundur 16 b

Glæsileg og mikið endurnýjuð 83,2 fm. 3ja herbergja íbúð á annari hæð í góðu fjölbýli á Brekkunni.

Verð 45,9 millj.

460 6060 Hafnarstræti 97 (Krónunni) á 1. hæð

Arnar

Framkvæmdastjóri

Löggiltur fasteignasali

gsm: 898 7011 arnar@eignaver.is

Lína Rut

Löggiltur fasteignasali, lögfræðingur og löggiltur leigumiðlari lina@eignaver.is

Opnunartími: Alla virka daga 9:00 - 17:00

NÝTT

Tryggvi

Löggiltur fasteignasali gsm: 862-7919 tryggvi@eignaver.is

Begga

Löggiltur fasteignasali gsm: 845-0671 begga@eignaver.is

Halllandsnes VILLA NORD.IS

Ragnheiður

Markaðsmál og bókhald gsm: 896 0212 ragga@eignaver.is

www.eignaver.is

Frábært uppbyggingartækifæri á 2560 fm eignarlóð ásamt metnaðarfullum teikningum. Um er að ræða 4 íbúðir byggðar 2012 ásamt gamla húsinu, Samtals 414,2 fm. Gott tækifæri til að eignast eignarlóð á besta stað gegnt Akureyri. Glæsilegt útsýni yfir Pollinn, Hlíðarfjall, Akureyri og inn og út fjörðinn og að ógleymdum fjallahringnum sem fær að skarta sínu fegursta hvert sem litið er.

Verð 200,0 millj.

Strandgata 37 íbúð 301

4ra herbergja íbúð og stúdíóíbúð á 3ju hæð í litlu fjölbýli á Eyrinni með frábæru útsýni. Húseignin er samtals 176,1 fm. Góður fjárfestingarkostur.

Verð 59,9 millj.

Akurgerði 11b

Rúmgóð og fín 5 herbergja íbúð í raðhúsi með innbyggðum bílskúr á frábærum stað á Brekkunni. Íbúðin er 168,0 fm. hæð og ris með góðum sólpalli.

Verð 80,9 millj.

Tjarnarlundur 6b

Björt og falleg 3ja herbergja íbúð í góðu fjölbýli á Brekkunni. Íbúðin er 82,9 fm. ( 2.hæð í austurenda ).

Nýlegt eldhús ofl. Laus í vor.

Verð 38,8 millj.

Álfabyggð 15

Fallegt og þó nokkuð endurnýjað 5-6 herberbergja einbýlishús á einni hæð með stakstæðum bílskúr á vinsælum stað á Brekkunni. Húseignin er samtals

Verð 91,5 millj.

Munkaþverárstræti 20 nh

3ja herbergja íbúð í kjallara/jarðhæð í tvíbýlishúsi á góðum stað rétt við miðbæ Akureyrar. Inngangur í íbúð frá Krákustíg. Eignin er samtals 93,8 fm. með

Verð 36,9 millj.

Múlasíða 5 d

Rúmgóð og björt 4ra herbergja íbúð á annari hæð í fjölbýli. Gott útsýni. Íbúðin er laus í vor.

Verð 43,9 millj.

Langholt 24

Fallegt, vandað og þó nokkuð endurnýjað 5 herbergja einbýlishús ásamt bílskúr á frábærum útsýnisstað. Húseignin er samtals 202,1 fm. Góð verönd, heitur

Verð 91,9 millj.

Eyrarvegur 2a

Mjög gott fimm herbergja 161,8 fm. einbýlishús á einni hæð með stakstæðum bílskúr á góðum stað á Eyrinni. Göngufæri við miðbæinn og Glerártorg.

Verð 68,9 millj.

NÝTT NÝTT

Þjónustu- og skipulagssvið Akureyrarbæjar

KA svæði

Breyting á deiliskipulagi KA svæðis – Lundarskóla – Lundarsels

Niðurstaða bæjarstjórnar

Bæjarstjórn Akureyrarbæjar hefur þann 7. mars 2023 samþykkt breytingu á deiliskipulagi KA svæðis – Lundarskóla - Lundarsels í samræmi við 3. mgr. 41. gr. skipulagslaga nr. 123/2010.

Skipulagssvæðið afmarkast af íþrótta- og æfingasvæði KA. Í breytingunni felst m.a. að bætt er við nýjum byggingarreit fyrir tengibyggingu ásamt því að settir eru skilmálar fyrir byggingarreiti fyrir markatöflu, sjónvarpsupptökuhús og fjögur ljósamöstur fyrir flóðlýsingu. Þá gerir tillagan ráð fyrir fjölgun bílastæða meðfram Þingvallastræti og tilfærslu núverandi innkeyrslu.

Tillagan var auglýst frá 29. desember 2022 til 12. febrúar 2023. Ein athugasemd barst sem leiddi ekki til breytinga á skipulaginu. Deiliskipulagið hefur verið sent Skipulagsstofnun og tekur það gildi með auglýsingu í B-deild Stjórnartíðinda.

Þeir sem óska nánari upplýsinga um tillöguna og niðurstöðu bæjarstjórnar geta snúið sér til þjónustu- og skipulagssviðs Akureyrarbæjar; skipulag@akureyri.is

15. mars 2023

Skipulagsfulltrúi

Geislagata 9 Sími 460 1000 www.akureyri.is skipulag@akureyri.is

Útboð á reglubundnu eftirliti með

brunaviðvörunarkerfum

Umhverfis- og mannvirkjasvið Akureyrarbæjar óskar eftir tilboðum í reglubundið eftirlit á brunaviðvörunarkerfum, neyðar- og flóttaleiðalýsinga í stofnunum Akureyrarbæjar fyrir árin 2023 - 2024.

Um er að ræða tilboð í heildarúttekt á stöðu brunavarna í stofnunum Akureyrarbæjar samkvæmt magntöluskrá.

Útboðsgögn verða afhent rafrænt á útboðsvef Akureyrarbæjar frá og með mánudeginum 13. mars 2023.

Tilboðum skal skila rafrænt á útboðsvef Akureyrarbæjar eigi síðar en þann 31. mars 2023 kl. 10:00 og verða tilboð opnuð á rafrænum fundi á sama tíma að viðstöddum þeim bjóðendum sem þess óska.

Verkkaupi áskilur sér rétt til að taka hvaða tilboði sem er eða hafna öllum.

Geislagata 9 Sími 460 1000 www.akureyri.is akureyri@akureyri.is

FERMINGAR 2023

Hannaðu þitt eigið boðskort

Skoðaðu úrvalið á vefnum okkar

honnun.prentmetoddi.is

4 600 700

akureyri@prentmetoddi.is

VIKU BLAÐIÐ

MEÐAL EFNIS Í BLAÐINU Á MORGUN

Fýsileiki þess að framleiða lífrænan áburð úr úrgangi

Martin Varga hefur kynnt verkefni um fýsileika þess að framleiða lífrænan áburð úr úrgangi sem annars er hent.

Það gerði hann á hádegishittingi Stem Húsavík, sem er samfélagsmiðað fræðslunet.

Fjölmargir þættir ýta undir fýsileika þess að notast við lífrænan áburð framleiddan á Íslandi í stað tilbúins/framleidds áburðar, svo

Chigago stærsta sýning LA í mörg ár

sem flutningskostnaður nú í kjölfar covid, sem og stríðsins í Úkraínu – en ekki síður en háværar kröfur út frá náttúruverndar­ og heilsufarssjónarmiðum, en notkun á tilbúnum áburði hefur neikvæð áhrif til langs tíma á jarðveg, grunnvatn og sjó.

Þá eykst eftirspurn eftir lífrænum matvælum með hverju árinu.

„Chicago er án efa stærsta sýning LA í mörg ár og hefur aðsókn og eftirspurn farið fram úr björtustu vonum. Sýningin hefur algjörlega slegið í gegn hjá áhorfendum,“ segir Marta Nordal leikhússtjóri Leikfélags Akureyrar.

Til stóð að hætta sýningum í byrjun apríl næstkomandi, en Marta segir að í ljósi mikillar eftir­

spurnar hafi það hreinlega ekki verið hægt.

Menningarfélag Akureyrar, MAk óskaði eftir viðbótarframlagi frá Akureyrarbæ upp á fjórar milljónir króna til að hægt sé að framlengja sýningartímabil söngleiksins Chicago. Bæjarráð tók erindið fyrir og samþykkti að veita MAk þrjár milljónir króna.

11. TÖLUBLAÐ / 4. ÁRGANGUR / FIMMTUDAGUR 16. MARS 2023
ÁSKRIFTARSÍMI 8606751
vfs.is VERKFÆRASALAN • TRYGGVABRAUT 24 (aðkoma frá Furuvöllum) , AKUREYRI • S: 560 8888 • vfs.is Sjáðu tilboðin á vfs.is

Umhverfis- og mannvirkjasvið Akureyrarbæjar óskar eftir tilboðum í jarðvegsskipti og undirstöður fyrir nýja vélageymslu í Hlíðarfjalli. Um er að ræða gerð vegslóða að verkstað, uppgröft, steypa upp undirstöður, veggi og gólfplötur. Verkið afhendist tilbúið fyrir uppsetningu stálgrindarhúss. Verklok eru 1. september 2023.

Útboðsgögn verða afhent rafrænt á útboðsvef Akureyrarbæjar. Kynningarfundur verður í fundarsal umhverfis- og mannvirkjasviðs. Í framhaldinu gefst væntanlegum bjóðendum kostur á því að skoða aðstæður á verkstað.

Tilboðum skal skila rafrænt á útboðsvef Akureyrarbæjar eigi síðar en miðvikudaginn

5. apríl 2023 kl. 14:00 og verða tilboð opnuð á sama tíma að viðstöddum þeim bjóðendum sem þess óska.

Verkkaupi áskilur sér rétt til að taka hvaða tilboði sem er eða hafna öllum.

Vikublaðið ÓskAR eftir að ráða blaðbera á brekkuna frá Víðilundi og suður í Teigana Áhugasamir Hafi samband við Gunnar í síma 860-6751 eða í netfangið gunnar@vikubladid.is Geislagata 9 Sími 460 1000 www.akureyri.is akureyri@akureyri.is Útboð á framkvæmdum við jarðvegsskipti og undirstöður við nýbyggingu vélageymslu í Hlíðarfjalli

SENDUM UM ALLT LAND!

Þreföld boðskort hafa verið mjög vinsæl síðustu ár

Umslagakort- þar er skrifað skemmtilegar staðreyndir um fermingarbarnið

ER FERMING FRAMUNDAN?

Faglega hönnuð boðskort í úrvali

Við bjóðum bæði upp á prentuð og rafræn boðskort

Rafræn boðskort - sett upp sem viðburður á Facebook

Boðskort sem er eins og boðsmiði hafa verið mjög vinsæl hjá fermingarbörnum

KOMPANHONNUN.IS
Upplýsingar og pantanir: astjorn.is eða 462 3980
Stofnaðar 1946
Sumarbúðir í 77 ár í einstakri náttúru Facebook Instagram youtube
Kristilegar sumarbúðir

TÆKNIMAÐUR

Finnst þér áhugavert að starfa í alþjóðlegu umhverfi?

Langar þig að taka þátt í spennandi vegferð atNorth?

atNorth leitar að skipulögðum og fjölhæfum tæknimanni í rekstrar- og viðhaldsteymi sitt í gagnaverið Freyju á Akureyri.

Helstu verkefni og ábyrgð

Uppsetning, eftirlit og viðhald á ýmsum tæknibúnaði í gagnaveri atNorth Þátttaka í uppfærslu verkferla og stöðugum endurbótum verkferla og

vinnulags

Þjónusta við viðskiptavini og úrlausn beiðna

Þekkingar- og hæfnikröfur

Nám sem nýtist í starfi svo sem tölvuviðgerðir, tæknistjórnun, rafeindavirkjun eða sambærilegt

Haldgóð þekking og reynsla af upplýsingatækni

Sjálfstæði, lausnamiðað viðhorf og greinandi hugsun

Skipulagshæfni og geta til að vinna í fjölbreyttum verkefnum

Framúrskarandi hæfni í samvinnu og samskiptum

Góð enskukunátta

Hreint sakavottorð

Umsækjendur þurfa að hafa náð 20 ára aldri

atNorth, er norrænt hátæknifyritæki á sviði gagnavera, ofurtölva, blockchain og gagnaversþjónustu sem hönnuð er til að hámarka reiknigetu viðskiptavina félagsins.

Hjá atNorth starfar hópur sérfræðinga sem þjónustar viðskiptavini þess sem eru bæði fyrirtæki og stofnanir sem eru leiðandi á sínu sviði og starfa í fjölmörgum greinum, svo sem fjármálastarfsemi, rannsóknum, heilbrigðismálum, genarannsóknum, framleiðslu og veðurfræði svo eitthvað sé nefnt.

Höfuðstöðvar félagsins eru á Íslandi en félagið er einnig með starfsemi í Svíþjóð, Finnlandi Hollandi, Belgíu og Bretlandi.

Umsóknarfrestur er til og með 22. mars 2023

Sótt er um starfið á www.mognum.is

Umsókn skal fylgja starfsferilskrá og kynningarbréf þar sem gerð er grein fyrir ástæðu umsóknar og rökstuðningur fyrir hæfni umsækjanda.

Nánari upplýsingar veita Sigríður Ólafsdóttir; sigga@mognum.is og Telma Eiðsdóttir; telma@mognum.is.

Landsfundur VG í Hofi 17.–19. mars 2023 Erindi okkar við samfélagið

Við óskum eftir að ráða starfsmann í sumarafleysingu frá 12. júní til og með 4. ágúst.

Helstu verkefni:

· Sala og móttaka auglýsinga fyrir Vikublaðið og Dagskránna

· Samskipti varðandi umbrot

· Utanumhald vegna blaðburðar

Hæfniskröfur:

· Góð tölvukunnátta

· Góð hæfni í mannlegum samskiptum

· Sjálfstæð vinnubrögð

Nánari upplýsingar og umsóknir berist á netfangið hera@dagskrain.is fyrir 15. apríl

of langt síðan síðast. Það tómlegra án þín. Viltu kíkja við? Ég sakna þín. Blóðgjafar bjarga lífum á hverjum degi.

Viltu kíkja við? Ekki fresta næstu heimsókn. Allt of langt síðan síðast. Það er tómlegra án þín. of langt síðan síðast. Viltu kíkja við? Ég sakna þín. Það tómlegra án þín. Blóðgjafar

Tímabókanir í s. 543 5560

Mán.-Mið. kl. 08:00 - 15:00

blodbankinn.is

Fimmtud. kl. 10:00 - 17:00

Allt fyrir helgina!

Tilboð gilda 16.–19. mars Tilboðin gilda meðan birgðir endast. Birt með fyrirvara um prentvillur og myndavíxl. Vöruúrval getur verið breytilegt milli verslana.
1.449kr/kg 2.898 kr/kg Hrossafillet 50% Apptilboð - afsláttur í formi inneignar
Safnaðu inneign og fáðu betra verð á matvöru með Samkaupaappinu

vinnuafli og slæmrar umgengni við náttúruna.

staðið að valdeflingu kvenna á þeim svæðum þar sem þær stunda kakórækt.

og hefur verið fyrst og fremst í höndum karla. Þessu viljum við

aðgengi að heilbrigðisþjónustu. Þú getur því verið viss um að hráefnið í þitt Síríus súkkulaði var búið til í sátt við samfélagið með það að markmiði að auka almenn lífsgæði.

Þegar kemur að nærsamfélaginu þá vinna samtökin náið með samfélögum kakóbænda til að auka almenn lífsgæði.

Fimmtudagur 16. mars

Kyrrðar- og fyrirbænastund í kapellu kl. 12.00.

Léttar veitingar á vægu verði í Safnaðarheimilinu eftir stundina.

Sunnudagur 19. mars

Fjölskylduguðsþjónusta í Akureyrarkirkju kl. 11.00.

Kristján Helgason kemur okkur til að hlæja með hláturjóga.

Yngri barnakór kirkjunnar syngur. Umsjón sr. Hildur Eir Bolladóttir og

Sigrún Magna Þórsteinsdóttir.

Æskulýðsmessa í Munkaþverárkirkju kl. 13.00.

Umsjón sr. Jóhanna Gísladóttir og Sigrún Magna Þórsteinsdóttir.

Helgistund á Hlíð kl. 14.00 og Lögmannshlíð kl. 15.15.

Prestur er sr. Magnús G. Gunnarsson. Félagar úr Kór Akureyrarkirkju syngja.

Organisti er Eyþór Ingi Jónsson.

Æðruleysismessa í Akureyrarkirkju kl. 20.00.

Hermann Ingi Arason, Guðrún Arngrímsdóttir og Eyþór Ingi Jónsson sjá um tónlistina. Prestur er sr. Hildur Eir Bolladóttir.

Nánari upplýsingar um starfið og skráning í barnakóra- og æskulýðsstarf er að finna á heimasíðu kirkjunnar, www.akureyrarkirkja.is og á facebook.com

Deildarstjóri óskast í Glerárskóla

Í Glerárskóla eru laust til umsóknar 100% ótímabundið starf deildarstjóra.

Deildarstjóri starfar í þriggja manna stjórnunarteymi skólans við daglega stjórnun innan skólans og veitir faglega forystu í öllu skólastarfi Glerárskóla.

Leitað er að einstaklingi með mikinn metnað, sem sýnt hefur árangur í störfum sínum og sem leggur áherslu á vellíðan og árangur nemenda og starfsfólks í samstarfi við aðra stjórnendur skólans.

Ráðið verður í stöðuna frá og með 1. ágúst 2023.

Sjá nánari upplýsingar um starfið á heimasíðu Akureyrarbæjar www.akureyri.is þar sem sótt er um rafrænt.

Umsóknarfrestur er til og með 29. mars 2023.

Geislagata 9 Sími 460 1000 www.akureyri.is akureyri@akureyri.is

Kerfisstjóri

Laus er til umsóknar staða Kerfisstjóra á Upplýsingatæknideild Sjúkrahússins á Akureyri. Um er að ræða 100% stöðu sem er laus nú þegar eða eftir samkomulagi.

Næsti yfirmaður er Garðar Már Birgisson, forstöðumaður upplýsingatæknideildar.

Helstu verkefni og ábyrgð

• Sér um daglegan rekstur netþjóna og búnaðar í tölvukerfi SAk.

• Að tryggja að rekstur upplýsingakerfa fullnægi öryggiskröfum Embætti Landlæknis.

• Gera áætlanir um breytingar og uppfærslur einstakra kerfishluta.

• Hafa umsjón með uppsetningum og uppfærslum á hugbúnaði sem settur er upp á netkerfi SAk í samvinnu við þjónustuaðila viðkomandi hugbúnaðar, eftir því

• sem við á.

• Gera áætlun um afritun gagna í tölvukerfi og fylgjast með að afritun sé framkvæmd samkvæmt áætlun og að þau séu prófuð reglulega.

• Gerð og viðhald kerfishandbókar í samráði við forstöðumann.

• Hafa umsjón með öllum ytri tengingum vegna internets og heilbrigðisstofnana, þjónustufyrirtækja, stofnana og einstaklinga, sem vegna starfa sinna á eða

• fyrir SAk þurfa á slíku að halda.

• Hafa umsjón með nettengibúnaði fyrir innra og ytra netkerfi SAk.

• Endurskoða stefnu og markmið í öryggismálum tengt tölvukerfi.

• Taka þátt í rýni og samþykki úttektaráætlunar.

• Taka þátt í rýni á öryggiskerfi á 12 mánaða fresti eða oftar.

• Rýna og samþykkja kerfisbreytingar sem lagðar eru til.

• Hafa umsjón og eftirlit með því að veiruvarnir séu virkar og uppfærðar reglulega.

• Gera innri kerfisúttektir.

• Hafa samskipti við verktaka og þjónustuaðila hug- og vélbúnaðarkerfa.

Hæfniskröfur

• Menntun eða víðtæk reynsla með vísun í verkefni og ábyrgð sem lýst er hér að ofan

• Faglegur metnaður í starfi og árangursmiðað viðhorf

• Skipulagshæfileikar, sjálfstæði og markviss vinnubrögð

• Hæfni í mannlegum samskiptum og miðlun upplýsinga

• Reynsla og áhugi á teymisvinnu

Nánari upplýsingar veita:

Garðar Már Birgisson - gardar@sak.is - 463-0100

Sigmundur Björnsson - sigmundur.bjornsson@sak.is

ÖRYGGI - SAMVINNA FRAMSÆKNI
Á UPPLÝSINGATÆKNIDEILD
Allar nánari upplýsingar
á https://www.sak.is/is/um-fsa/atvinna
K A R A O K E A K U R E Y R I PARTÝLAND 7 5 S T K . Í K A S S A M Y N D A K A S S A R B L Ö Ð R U L E N G J U R 9 5 S T K . Í K A S S A A L L T F Y R I R V E I S L U N A P A R T Y L A N D I D . I S KYNJABLÖÐRUR STRÁKUR STELPA eða P A R T Ý L A N D A K U R E Y R I P A R T Y L A N D @ P A R T Y L A N D I D . I S

ÞJÓNUSTA // ÍÞRÓTTIR // MENNING

vikubladid.is

Hvað er að gerast í bænum? halloakureyri.is

graenihatturinn.is

Akureyri

Aðalnúmer heilsugæslunnar er: 432 4600

Vaktsímanúmer er: 1700

LÖGREGLAN/NEYÐARSÍMI: 112

Hefur þú upplýsingar um fíkniefni?

Hringdu þá í síma: 800-5005

SLÖKKVILIÐ/NEYÐARSÍMI: 112

POLICE/FIRE DEPARTMENT

EMERGENCY LINE: 112

SJÚKRAHÚSIÐ Á AKUREYRI

Aðalnúmer: 463 0100 // www.sak.is

APÓTEK Á AKUREYRI

Lyfja Glerárgötu 34, sími: 461 3920

LYF & HEILSA Glerártorgi, sími: 461 5800

APÓTEKARINN Hafnarstræti 95, sími: 460 3452

AKUREYRARAPÓTEK Kaupangi, Mýrarv., sími: 460 9999 APÓTEKARINN Hrísalundi sími: 462 2444

www.vikubladid.is

Fréttir, fróðleikur og auglýsingar

Opnunartími:

Mán. - Fös. kl. 06:45-21:00

Lau. og sun. kl. 09:00-19:00

Fim // 16. mars // kl. 21:00 // Salka Sól og Karl Orgel Tríó

Fös // 17. mars // kl. 21:00 // Laddi - Syngur öll sín bestu lög

Lau // 18. mars // kl. 21:00 // Laddi - Syngur öll sín bestu lög

ÞÓR - Hrunamenn // 24/3 kl. 19:15 1. deild körfu karla

ÞÓR - Kórdrengir // 18/3 kl. 16:00 Grill 66 deild k. handb.

KA - Afturelding // 24/3 kl. 19:30 Olís deild karla

KA/ÞÓR - Fram // 25/3 kl. 15:00 Olís deild kvenna

listak.is

Chicago 27/1- 21/3 kl. 20:00

Þorgerðartónleikar 15/3 kl. 20:00

Sound of Silence - 25/3 kl. 16:00

mak.is

Bandarísk kórtónlist, Kammerkór Norðurlands

ABBA tónleikasýning 25/3 kl. 18:00 & 21:00

AMTSBÓKASAFNIÐ Á AKUREYRI

Afgreiðslutímar í vetur 16.09-15.05

Mánudaga til föstudaga: 8:15-19

(Sjálfsafgreiðsla kl. 8:15-10:00)

Laugardaga 11:00-16:00 Sunnud.: Lokað

ATH! Ertu á leið úr bænum og búið að loka bókasafninu?

Þá er möguleiki að skila í Eymundsson, Akureyri

Opnunartími verslana

á Glerártorgi:

Virka daga: 10:00 - 18:30

Laugardaga: 10:00 - 17:00

Sunnudaga: 13:00 - 17:00

GLERÁRLAUG Mánudaga til föstud. 6:45 - 8, 18 - 21

Laugard. 9 - 14:30 og sunnud. 9 - 12

HRAFNAGIL Mánud. til fimmtud. 6:30 - 8 & 14 - 22

Föstud. 6:30 - 8 & 14 - 19 Helgar: 10 - 19

ÞELAMÖRK Mánud. til fimmtud.: 17 - 22:30

föstud. Lokað Laugard. 11 - 18 Sunnud. 11 - 22:30

HOF
SAMKOMUHÚS

Sími 821 5171

NÝTT SÍMANÚMER

697 6608 464 2000

Þjónusta

Er tölvan biluð? Viðgerðir, uppsetningar og margt fleira. Hef ódýrustu lausnina. Uppl. í síma 892 5444.

Félag eldri borgara á Akureyri

Skrifstofa félagsins í Bugðusíðu 1 er opin á miðvikudögum kl. 15:00-15:45. Þar verða stjórnarmenn til viðtals fyrir félagsmenn. Sími 462 3595.

Stjórn EBAK

vikubladid.is

SÓLSTEF GARDÍNUFRAMLEIÐSLA AKUREYRI. Rúllugardínur, skríngardínur og myrkvunar úr vönduðum Evrópskum og Amerískum efnum. Nú vinsælt að fá rúllurnar með fjarstýrðum rafmótór sem ekki þarfnast raflagna. Hægt að stýra með smáforriti úr símanum. Frábært verð á þessum vandaða búnaði. Skoðaðu líka úrvalið af hinum nýju og glæsilegu upp/niður HC plíseruðu gardínum sem bjóða uppá alveg nýja upplifun. Heildræn þjónusta; Mæling/ráðgjöf uppsetning og viðgerðir. Sólstef –Óseyri 6, opið 10 til 17 nema föstud til 16. Sími 466-3000. solstef@ simnet.is

Fataviðgerðir

Fataviðgerðir. Tek að mér allar almennar fataviðgerðir. Set rennilása í úlpur og lopapeysur. Er einnig með lopapeysur til sölu. Er í Holtateig. Upplýsingar í síma 865 2839, Auður.

A.A. fundir á Akureyri Strandgata 21 (þjónustum.st.)

Mán. kl. 12:10

Mán. kl. 20:00 (opinn)

Þri. kl. 12:10

Þri. kl. 21:00 (opinn)

Mið. kl. 12.10

Mið. kl. 20:00 (Hornsteinninn - bókafundur fyrir karla)

Fim. kl. 12:10

Fim. kl. 21:00 (nýliðafundur - opinn)

Fös. kl. 12.10

Fös. kl. 21:00

Lau. kl. 11:30 (kvennafundur - opinn)

Lau. kl. 19:00 AA fundur á pólsku.

Lau. kl. 21:00 (opinn)

Sun. kl. 10:30 sunnudagsmessan

Sun. kl. 21:00

Heimasíða svæðisnefndar

á Akureyri www.saaa.is

Skarðshlíð 18 (Hvítasunnukirkjan)

Mán. kl. 20:15 (ekkert hálfkák - opinn)

Hofsbót 4

Mið. kl. 20:00 (Sigurboginn kvk. - lokaður)

Akureyrarkirkja

Fös. kl. 18:30

Glerárkirkja

Mið. kl. 20:00

Sun. kl. 09:00 (Hornsteinninn - bókafundur fyrir karla)

Neyðarsími AA - 849 4012 www.aa.is

NÝTT SÍMANÚMER

697 6608

AGLOW verður með samveru

Aðstoð við skattframtöl einstaklinga Ráðgjöf og aðstoð fyrir rekstraraðila varðandi rafrænt bókhald.

Nánari upplýsingar í gegnum netfangið bokhald@jo.is og í síma 552-8771

í safnaðarheimili Glerárkirkju

þriðjudaginn 21. mars kl. 20:00.

Sr. Jóhanna Gísladóttir verður með hugvekju.

Lofgjörð, góðar veitingar og notaleg samvera.

Allar konur hjartanlega velkomnar

Sandspörtlun Gifsspörtlun Utanhússmálun Löggiltur málningarverktaki
Endurmálun
Jón bókari slf. · Oddeyrarskála · Strandgötu 600 Akureyri

GÓLFHITAFRÆSING

Erum staðsettir bæði á Suður- og Norðurlandi. Mætum hvert á land sem er, en fer þó eftir verkefni.

Upplýsingar veitir Oliver í síma 892-0808

BYGGINGARSTJÓRI

Bílar og tæki

fyrir 16 mm rör Kaupum bíla til niðurrifs. Sækjum og göngum frá allri pappírsvinnu. Lágmarksverð 40.000 kr. allt eftir aldri og ástandi bifreiðar. Hafið samband og við gerum ykkur tilboð. Eigum til varahluti í flestar gerðir bifreiða. Bílapartasalan Austurhlíð sími 462 6512 / 823 0421 og partasala@partasala.is. Opið frá kl. 8:00-17:00 mánud. til fimmtud. og 8:00-16:00 á föstudögum.

Þarftu að byggja eða breyta?

Tek að mér starf byggingarstjóra vegna einbýlishúsa og vegna smærri verka á Norðurlandi.

Upplýsingar í síma 892 4465 eða sjbald@mi.is

Hrísalundur 1b, Akureyri

Sími 462 4433 & 789 4433

Opið:

Mánudaga til föstudaga kl. 12:00-17:00

Laugardaga kl. 12:00-15:00

Sunnudaga lokað

Er ferming í vændum?

Tek að mér að farða fyrir fermingar

Þú finnur mig á instagram: gudrunerla_makeup

Facebook: Guðrún Erla Makeup

Eða á netfangið: gudrunerla1999@gmail.com

Tölvulestur á bílum. Er eitthvað ljós í mælaborðinu eða bíllinn eitthvað ósamvinnuþýður? Tölvulesum flestar gerðir bíla. Kvöldog helgarþjónusta í boði. Uppl. í síma 896 6001.

Krakkastarf

eyri býður í krakkakirkju. Alla miðvikudaga kl. 16:3017:30 fyrir börn á aldrinum 5­12ára. Síðdegishressing kl. 16:00. Skapandi starf þar sem börnin læra um kærleika Jesú. Sögur, söngur, verkefni og umræður.

Tölvuviðgerðir

TÖLVUVIÐGERÐIR - ÓDÝRT

Gerum við allar gerðir af tölvum. Uppfærum hugbúnað og vírusvörn og gerum þær traustari og hraðvirkari. Kvöld- og helgarþjónusta í boði. Uppl. í síma 896 6001.

Píanóstillingar

Þarf að stilla píanóið hjá þér? Er búsettur á svæðinu. Vönduð vinna og sanngjarnt verð. Michael Jón Clarke s: 862 0426. mikkjall@mmedia.is.

Fundir 12 spora samtaka á Akureyri

Al-Anon/Alateen á Akureyri Strandgata 21

Þri. kl. 18:00 (barnapössun)

www.al-anon.is

CoDA á Akureyri

Hofsbót 4

Föstud. kl. 12:00

Kvennafundir

www.coda.is

Gamblers Anonymous

GA fundir í Glerárkirkju Lau. kl. 10:30

www.gasamtokin.is

GSA fundir í Glerárkirkju

GSA eru 12 spora samtök fólks með matarfíkn.

Fundirnir eru haldnir í kjallara Glerárkirkju alla þriðjudaga kl 19:00 og í Kirkjubæ á Húsavík síðasta fimmtudag í mánuði kl 18:00.

Öll velkomin

Munum eftir fuglunum

Snjótittlingar, auðnutittlingar og finkur eru fræætur sem best er að gefa á fóðurpöllum eða á húsþökum

Skógarþrestir, svartþrestir og starar eru sérlega sólgnir í feitmeti eins og kjötsag og mör. Einnig þiggja þeir epli, perur og rúsínur. Brauðmeti, sérstaklega ef það er blandað með matarolíu eða öðru feitmeti er einnig vel þegið í vetrarkuldum.

Fluglavernd.is

KROSSGÁTAN

Forsalan er á: graenihatturinn.is Græni Hatturinn • Hafnarstræti 96 • Akureyri • 461 4646 • 864 5758 Facebook.com/gænihatturinn LÉTTÖL Salka sól og karl ORgel tríó Útgáfutónleikar kl. 21.00 Tónleikar kl. 21.00 Fim. 16. mars Fös. 17. mars Lau. 18. mars

RÉTTUR DAGSINS ÚRVAL LÉTTRA RÉTTA

Glerárgata 20 - 600 Akureyri - greinn@greinn.is - 460 1600 SALATBARINN ER KOMINN AFTUR ALLA VIRKA DAGA 11:30-14:00
HÁDEGISTILBOÐSSEÐILL
NÝR

12 12 12

Frumsýnd fös. 17. mars Frumsýnd lau. 17. mars 12

16 L

Tryggðu þér miða á netinu inn á sambio.is SÝNINGARTÍMA MÁ FINNA Á WWW.SAMBIO.IS L

Þriðjudagstilboð:

Gildir dagana 15. - 21. mars
50% afsláttur af miðanum 9 12 L

FERMINGARTILBOÐ

ENGJATEIGI 17-19, REYKJAVÍK S:581 2233

BALDURSNESI 6, AKUREYRI S: 461 1150

OPIÐ: VIRKA DAGA.......KL. 10:00 -18:00

LAUGARDAGA....KL. 12:00 - 16:00 UMBOÐSAÐILAR: HÚSGAGNAVAL, HÖFN Í HF. BARA SNILLD, EGILSSTAÐIR

GERIÐ
OG VERÐSAMANBURÐ
VERSLANIR:
GÆÐA-
VERÐ WWW.SVEFNOGHEILSA.IS Svefn heilsa & Ýmir heilsurúm 90x200 Verð áður 96.800,- Fermingartilboð 80.910,Ýmir heilsurúm 120x200 Verð áður 118.300,- Fermingartilboð 98.910,Frigg Heilsu rúm 140x200 Verð áður 174.300,- Tilboð 148.410,Iðunn Heilsurúm 120x200 Verð áður 153.300,- Tilboð 130.410,Óðinn Heilsurúm 153x203 Verð áður 194.800,- Tilboð 166.410,Valhöll heilsurúm 153x203 Fullt verð 174.800,- Tilboð 148.410,TILBOÐ INNIHALDA: DÝNU, SAMSETTAN ÍSLENSKAN BOTN OG FÆTUR. FRÍ YFIRDÝNA FYLGIR ÖLLUM TILBOÐUM &
FRÁBÆR

Turn static files into dynamic content formats.

Create a flipbook
Issuu converts static files into: digital portfolios, online yearbooks, online catalogs, digital photo albums and more. Sign up and create your flipbook.