FriscoParkwoodProjects_InterviewBook

Page 1


We had a unique start, which explains a lot about us.

Ask any one of our 1900+ employees what our founder, Ivan Crossland, Sr., stood for—every single one would say family, honesty , and hard work.

WE THINK THAT SAYS A LOT. THOSE VALUES ARE ENGRAINED IN EVERYTHING WE DO.

In loving memory of our founder, Ivan “Red Iron” Crossland, Sr.

We Have The Numbers

TO BACK IT UP.

We’re proud to be ranked among the top builders in the nation — but we know it’s not just about the numbers. It’s about the people behind the work, and the results we deliver for our clients every day.

ƒ Financial strength that protects your project

ƒ The power of 1,900+ experienced professionals

ƒ Local knowledge with national reach

ƒ Proven performance across 400+ projects annually

ƒ Nationally ranked company by ENR Magazine

Frisco
Frisco
City of Frisco Fire Station #10

MORE THAN A JOB...

IT’S ABOUT FOSTERING

GROWTH,

INNOVATION, AND COMMUNITY FOR FRISCO

We are genuinely excited for the opportunity to deliver the City of Frisco Parkwood Projects because this work aligns perfectly with our strengths, values, and long-standing commitment to the Frisco community. Our team thrives on complex, high-impact municipal projects, and the Parkwood Projects represent exactly the kind of challenge where we excel—integrating diverse municipal functions, navigating sitespecific constraints, and delivering facilities that will serve the City for decades to come.

What excites us most is the chance to build on our trusted partnership with the City of Frisco. We have a proven history of delivering successful projects here, including the Municipal Court Adaptive Reuse, Public Works Expansion, Fire Station No. 10, and the ongoing City Hall Renovation. These experiences have given us a deep understanding of Frisco’s standards, processes, and expectations, and we are proud of the trust the City has placed in us time and again.

We are also energized by the collaborative spirit of this project. Our strong working relationship with Martinez Architects—demonstrated on multiple active projects across North Texas—ensures seamless communication, proven coordination, and project continuity from day one. We know that when the Owner, Architect, and Construction Manager work as a true team, the results exceed expectations.

Our capability to deliver this project with excellence is rooted in our unmatched municipal experience, robust financial strength, and the power of our 1,900+ professionals. We bring self-perform capabilities, a deep bench of local and regional trade partners, and a proactive, transparent approach to preconstruction and construction management. Our team is committed to delivering the Parkwood Projects on time, on budget, and to the highest standards of quality and safety.

Ultimately, we want this job because we care about Frisco’s future. We are invested in the community, and we see this project as an opportunity to create lasting value for the City, its staff, and its residents. We are ready to bring our passion, expertise, and partnership to the Parkwood Projects—and to deliver a result that reflects Frisco’s vision and standards of excellence.

BEYOND CONSTRUCTION, something BIGGER IS HAPPENING.

Facilities are just the beginning of bettering our communities.

A successful project is a well thought out project. Facilities are nothing without great people to operate them. That’s why we strive to make the experience and process as easy and seamless as possible while providing a personal touch.

PROJECT TEAM

PRESIDENT

Rocky Hussman

SENIOR PROJECT MANAGER

Mike Cohen

GENERAL SUPERINTENDENT

Ben Harris

PRECONSTRUCTION MANAGER

Drew Worth

DIRECTOR OF PRECONSTRUCTION

Eric Bunner

PROJECT MANAGER

Hunter Pudenz

SUPERINTENDENT

Brandon Ulbrich

PROJECT ESTIMATOR Zach Spurgin

PROJECT ENGINEER

Camry Mullins

PROJECT ENGINEER Devin Kelly

Proven Partnership with Martinez Architects

Built on a foundation of collaboration and trust, Crossland Construction’s partnership with Martinez Architects spans multiple complex fire and public safety projects across Texas. Our joint experience includes the Greenville Fire Administration, Support Building & Training Tower, Denton County ESD Fire Station, Grand Prairie Fire Station No. 11, and Mansfield Fire Station No. 1.

On the City of Greenville Fire Administration, Support Building & Training Tower, our teams have worked hand-in-hand from preconstruction through construction, providing detailed cost models, constructability reviews, and phasing strategies to align the design with the City’s budget and operational goals. Weekly coordination meetings, field walk-throughs, and open issue tracking have allowed us to address challenges proactively, minimize change orders, and keep the schedule on track—all while ensuring the final product supports the City’s longterm service delivery needs.

This collaborative, team-based approach is consistent across all our work with Martinez Architects. Whether for Greenville, Denton County ESD, Grand Prairie, or Mansfield, we bring early and active engagement during design, transparent communication, and integrated project teams that foster continuity and accountability. Our shared commitment to partnership ensures that each project not only meets design and construction goals but also the broader operational and community priorities of our public-sector clients.

Greenville Fire Administration
Mansfield Fire Station No. 1
Denton County ESD Fire Station
Grand Prairie Fire Station No. 11

AWPA

PROJECT OF THE YEAR

The City of Lewisville Facilities & Fleet Maintenance Facility is a 34,000-square-foot, $14.5 million project designed to support the city’s municipal fleet operations. The facility features a dedicated fuel oil storage area and on-site fueling station, 14 service bays, and 5 heavy equipment bays, providing safe and convenient access for a wide range of city vehicles. The building includes a mezzanine, vehicle lifts, workstations for mechanics, and office and meeting spaces for staff. Constructed with tilt-wall concrete and structural steel framing for durability, the project overcame site-specific challenges such as the removal of a problematic retaining wall near an adjacent pond to ensure site stability without impacting the budget. The new facility enhances operational readiness, streamlines fleet maintenance and fueling, and positions the City of Lewisville for future growth.

Lewisville Facility & Fleet Maintenance

Frisco, Texas

CLIENT

City of Frisco

DELIVERY METHOD

Construction Management

public works

Frisco, TX | 57,826 SF

New facility to expand forensic science education

The Scope of Work for the Frisco Public Works Service Center Expansion and Renovation is a three-phase project. Phase A consists of the renovation of the two easternmost bays of the Warehouse/Shop Bldg.

Phase B consists of the renovation of the three westernmost bays of the Warehouse/Shop Bldg. Selective demolition and construction of a new addition on the north end of the existing Admin. Bldg.

Phase C consists of the Main Lobby addition and renovations to the existing Administration Building. The scope of this phase is similar to that of the Phase B Administration Building Addition.

The project features a new administrative office building and a pre-engineered metal storage facility, both tailored to improve operational efficiency. Inside, the center offers a range of functional spaces, including a conference and training room, a dispatch suite, dedicated storage for the traffic division, a break room and tech bar, and specialized areas for field staff staging and personal storage.

This project marked Crossland Construction’s first collaboration with the City of Mesquite. The construction manager, a former fire marshal, brought valuable expertise to the project, ensuring that the facility met the city’s high standards for safety and functionality. Delivering Mesquite’s first new municipal building in 35 years was a rewarding experience, reflecting a strong partnership and a shared commitment to the city’s future.

MESQUITE FIELD SERVICES CENTER

Mesquite, Texas

CLIENT

City of Mesquite

DELIVERY METHOD

Construction Management

Mckinney municipal service center

McKinney, TX | 71,547 SF

The exterior received significant upgrades, including new windows, brick finishes, and a refreshed front facade. Inside, the facility features traditional office spaces and conference rooms to accommodate the city staff.

Celina parks & rec admin building

CELINA, TX | 14,171 SF

Turning Vision Into Function

This project involves a complete gut and remodel of the former school district field house, transforming the 14,171-square-foot facility into a modern administrative hub for the City of Celina’s parks and recreation department.

The scope of work includes full interior demolition, structural and systems upgrades, and a comprehensive interior build-out to create new offices, meeting rooms, and support spaces designed to meet the operational needs of city staff and community programming. The project is being delivered within the city limits of Celina, under a 420-day contract, and requires ongoing coordination with city officials, design partners, and end users to ensure the facility aligns with both current and future needs.

FUEL ISLAND AND fueling infrastructure projects

Experience you can trust

Crossland Construction has a strong record of delivering fuel island and fueling infrastructure projects for both municipal and private sector clients across Texas. Our portfolio includes the City of Frisco Fire Station No. 11, City of Lewisville Facilities & Fleet Maintenance, City of McKinney Municipal Service Center, and City of Melissa Public Safety Headquarters—all designed and built to the highest standards of safety, efficiency, and code compliance.

For example, the Lewisville Facilities & Fleet Maintenance project featured a dedicated fuel storage area and on-site fueling station, integrated with 14 service bays and 5 heavy equipment bays. Our team worked closely with the City and design team to address site challenges, delivering a modern, efficient hub that streamlines city operations and supports future growth.

The Melissa Public Safety Headquarters, designed by Ron Hobbs Architecture, includes integrated fueling for fire and police vehicles. The centralized, secure facility enhances operational efficiency, and our team managed late design changes while maintaining budget discipline.

At the McKinney Municipal Service Center, we renovated and expanded the city’s only fleet maintenance facility, including a new underground fuel station, coordinating closely with city departments and delivering on time and on budget.

Current projects, such as the Town of Little Elm Public Safety Annex Fire Station 4 and Walmart facilities in Melissa and Celina, TX, further demonstrate our expertise in constructing safe, efficient, and code-compliant fueling infrastructure.

Walmart Fuel Station Bentonville, AR I 5,200 SF SF
Love’s Fuel Station Winona, TX I 12,500 SF

Choctaw Travel Plaza

Pacola, OK I 12,000 SF

Turtle Shop

Seneca, MO I 4,990 SF

Wyandotte
Quick Trip Texas

Going Beyond Estimating PRE-CONSTRUCTION SERVICES

Our preconstruction services embody a comprehensive approach that extends far beyond traditional estimating practices.

We understand that successful construction projects rely on thorough planning, strategic foresight, and detailed groundwork before breaking ground. Our preconstruction services are a testament to our commitment to delivering excellence from the outset.

Beyond estimation, we take a holistic approach, meticulously crafting a roadmap that encompasses every crucial aspect of project planning. From setting clear project goals, validating budgets, conducting thorough technical assessments, and coordinating various project elements, we prioritize a multifaceted strategy that ensures not just accurate cost projections but also streamlined execution.

PLANNING + STRATEGY

1. Establish Project Goals & Objectives

2. Communication Strategy

3. Responsibility Matrix (FF&E)

4. Benchmarking

5. Budgets Validation

6. Value Engineering

7. Procurement Strategy (Long Lead Items)

8. Risk Analysis and Safety Planning

9. Permit Strategy/Assistance

10.Cash Flow Analysis

TECHNICAL ASSESSMENTS + REVIEWS

1. Quantity Take-off

2. Cost Estimating (Conceptual, SD, DD, CD)

3. Material/Equipment Recommendations

4. Constructability Review

5. Site Inspection/Analysis

PROJECT EXECUTION + COORDINATION

1. Scheduling

2. Phasing

3. Bid Packages

4. Bidding Process

5. Subcontractor/Vendor Prequal. & Recommendations

6. Site Logistics

7. Guaranteed Maximum Price (“GMP”) Proposal

Value Engineering Sample

constructability review sample

100% CD Constructability Review

Project:

Architect:

Date: 10/1/2024

C2-1

SiteSee notes on drawings sheets:

--Existing Sign to be reolcated? Where does it need to be relocated to?

--General Notes 5: Are there any other utility services not shown that are known?

--General Notes 7: All existing paving striping to be removed within limits of construction. Not applicable?

--What existing signage needs to be removed/salvaged?

SitePaving Hatches

--Provode appropriate hatching for new sidewalk

--No paving designation for hatch at the drive approaches

SiteGeneral Notes

--Please provide copy of city standards

--Note 7 - says City of Garland Standards. Should this be Mansfield?

SiteConcrete Legend - See notes on drawings sheet

--What Prep is expected under sidewalks?

--Typical at paving, Geo Report says #3 bar. Please confirm #4 bar die Drive Approach

--Subgrade says use 6" lime stabilized subgrade, Geo report says 7"

--Confirm that we are to bid with Lime Stabilized and Provide alternate as listed below

--Parking subgrade notes missing"+subgrade" 05 Civil/Plumbing C5-1

SitePlumbing and Civil plan descrepancies

--Domestic and Fire service entrances do not coordinate with plumbing plans. Plumbing shows on the front of the building. Please see atatched notes on drawings and coordinate

Landscaping. See notes on drawings sheets

--We believe the city indicated that they did not want any mulch in the last design meeting

--Electrical Plans call for lightpoles were trees are placed. Please coordinate plantings accordingly.

--Trees that are planted close to the fence will potentially cause long term issues

--Show desired location for the irrigation controller and coordinate with electrical to provide electrical to it

--It was discussed in last design meeting to utilize all Sod

07 Arch AS-100

08 Arch AS-100

09 Arch AS-100

10 Arch AS-100

11

12

SiteKeynote 117

--If this is the location of the future EV charging station, it needs to be coordinated on the electrical site plan to this location

SiteKeynote 111

--Believed there was a discussion about a ghate going here. Please confirm.

SiteKeynote 129

--These details do not show anything about the turf. We need to know about the pad prep/concrete base

SiteKeynote 123

--Nothing is shown on the structural drawings for the concrete pad for the generator

Arch AS-100 SiteKeynote 130

Arch/MEP AS-100

13 Arch AS-100

14 Arch AS-100

15 Arch AS-100

16 Arch AS-100

17 Arch/Civil AS-201

18 Arch AS-201

19 Arch AS-201

20 Arch AS-201

21 Arch AS-201

22 Arch/Civil/Structura l AS-202

23 Arch/Civil AS-202

24 Arch /StructuralA-101

25 Arch A-101/A102

26 Arch A-102

27 MEP A-102

28 Arch/Structural A-102

--Please give dimensional location for bollards off building and door openings.

Site Who is detailing all the gate controlsand operations. It is not shown on electrical

SiteDetail D4

--Keynote 115, is this supposed to tag bollards? Please dimensionally layout these as well

SiteKeynote 100

--Are we okay to carry allowance for this until we understand the full scope?

SiteKeynote 113

--We had notes from previous meetings that this was to be a viking H10, your specs state differently.

SiteDetail D3

--Confirm no enxlosure required for screening requirements

SiteDetail A1

--The concretemix and reinforcement do not coordinate with the civil plans --The COMPACTED

SiteDetail A2

--Is there a screenwall for the generator? If so, there is no detail.

SiteDetail A3

--Not applicable? Flags are to be mounted to the building.

SiteDetail A4

--This typical sidewalk detail does nt coordinat with the civil drawings.

--Need to know if we are to use 4.5" or 4" per civil, and subgrade needs to be clarified

SiteDetail A5

-- What manufacturer are we to use for the card reader pedastal? Not included in the specs.

SiteDetail A3

--Canopy Column Base Detail is not in civil or structural

SiteDetail B5

--Handcap Signage does not coordinate with civil provided Detail. Clarify which one is desired.

BuildingDimensional Layout

--Please provide dimensional layout for bollards and coordinate layout with structural foundations

BuildingKeynotes

--Several Keynotes are duplicated from A111 and A112. Can we keep them on one sheet?

Building No Detail showing where the roof ladder will go. There is a hatch shown on the roof plan

BuildingKeynote 235 and 256

--No waterline is shown on the plumbing drawings

--No Gas stub out shown on drawings

Building Structural is calling these canopy columns to go under the architect

Mansfield Fire Station Martinez Archiects

Value Engineering Sample

Value Management Log

1

2

3

4

5

6

8

9

10

12

30

LOCAL VALUE BACKED BY BIG RESOURCES

This project hits close to home for our project team members. After completing dozens of projects within the City of Frisco, we are proud to be a choice builder within your community. Our Prosper Office is a short drive to Frisco, so we feel that Crossland is the best for servicing your needs. Crossland takes pride in being a community builder and made this an easy decision to pursue.

Project Risk Assessment

A. SITEWORK

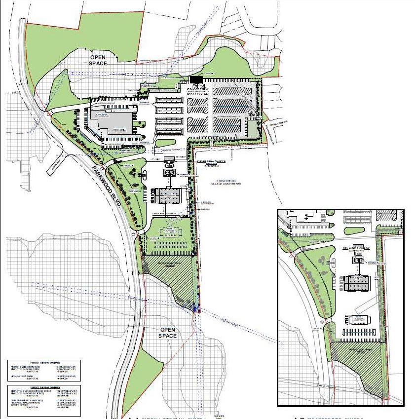
The Frisco Parkwood Projects site encompasses approximately 39.13 acres, including various easements and FEMA floodplain restrictions. This introduces several sitework risks:

• Tree Protection/Mitigation & Open Space

• Grading & Utilities

• Franchise Utilities

• Early Release Package for Civil

b. FUEL STATION

The dual-island covered fueling facility is a key component of the site and presents unique risks:

• Design & Regulatory Compliance

• Long Lead Equipment

• Integration with Site Circulation

C. EQUIPMENT – IMPORTANCE OF AN FF&E MATRIX

Given the multiple functions and departments (Fire Fleet Maintenance, Facilities Operations, Parks & Natural Resources), clear delineation of responsibilities for Furnishings, Fixtures, and Equipment (FF&E) is critical:

• FF&E Matrix

• Coordination

• Risk Mitigation

D. MULTIPLE BUILDINGS – SCHEDULE AND COMMUNICATING TO BIDDERS

The project includes several distinct structures (Fire Fleet Maintenance, Facilities Operations, Parks & Natural Resources) with shared and independent spaces:

• Crew Loading

• Bidder Communication

• Risk Mitigation

Built for Projects Like This

Crossland is uniquely equipped to deliver the success you expect for your project. Our team combines deep experience, robust resources, and a proven track record on complex municipal and public safety facilities—making us the right partner for your vision.

We bring stability and competitive pricing from day one through project closeout, backed by:

• An experienced team with a passion for quality constructability and a history of delivering on similar projects.

• A financial bond capacity of $5 billion, ensuring the security and confidence your project deserves.

• An $88 million equipment fleet, allowing us to mobilize quickly and self-perform critical scopes with unmatched efficiency.

• Self-perform capabilities that set us apart, providing greater control over quality, schedule, and safety.

Our commitment to local involvement is unwavering. We leverage our relationships with 3,286 pre-qualified subcontractors and suppliers within 100 miles of Prosper, Texas, ensuring your project benefits from the expertise and pride of local craftsmen. These partnerships, combined with our in-house strengths, allow us to guide your project to a successful outcome.

With extensive fire station and municipal facility experience, the Crossland Texas team is ready to make your vision a reality. When you choose Crossland, you’re choosing a partner with the support, knowledge, and expertise to deliver exceptional results—built for projects like this.

We’re experts in public safety & municipal building

Parks Nature & Admin

Bldg.

Pending Council Approval

Parking Garage

GMP Approved by Council

100%

All of our team members have experience on projects of similiar size and scope to the Parkwood Projects. Their knowledge and experience is unmatched.

250,ooo+

Our Texas team has built over 250,000 SF of municipal buildings in Texas.

MAJOR MILESTONES

Council

Substantiall

Certificate of Occupancy Final Completion

DD BUDGETING

DD Estimate

GMP DEVELOPMENT

GMP Estimate

PERMITTING AND APPROVALS

City of Frisco Permitting

SUBCONTRACTS/SUBMITTALS/PROCUREMENT

CONSTRUCTION

EARTHWORK

FOUNDATIONS

Fire Fleet Maintenance

Facilities Operations

Parks & Natural Resources

Foundations Completed

STRUCTURES

EXTERIORS

Fire Fleet Maintenance

Facilities Operations

Parks & Natural Resources

Exteriors Complete

INTERIORS

Fire Fleet Maintenance

Facilities Operations

Parks & Natural Resources

Interior Complete SITE FINISHES

3/3/2027 3/17/2027 8/4/2025 9/2/2025 9/2/2025 9/2/2025

COUNTRY LIMITS

As one of the leading businesses in our industry, we have a responsibility to give back to the communities we serve. First Responders are the backbone of Public Safety, and supporting them sends a strong message that we stand with those who risk their lives for us every day.

By organizing a high-profile benefit concert, we demonstrate that we are more than just a company—we are a committed community partner. This not only builds goodwill but fosters lasting relationships with local leaders, government officials, and residents.

By associating our company with a meaningful cause, we differentiate ourselves in the marketplace, making us a more attractive option for clients who value corporate social responsibility.

Employees take pride in working for a company that gives back. Supporting First Responders through this event fosters a sense of purpose and unity among our team.

Volunteering opportunities at the concert allow employees to engage with the community outside of their daily work, increasing job satisfaction and company loyalty.

A strong internal culture of philanthropy and engagement translates into higher employee retention, better teamwork, and a workplace that people are proud to be a part of.

3FTL is a non-profit organization dedicated to supporting first responders and their families throughout Texas. We offer a comprehensive mental health treatment approach, including case management, medical oversight, a trauma-specialized and culturally competent counseling team, and peer support. In addition to outpatient services, we also provide suicide stabilization and detoxification, partnering with facilities across the state to offer long-term treatment options. Our mission is simple: to save the lives of those who save us.

WHY A BENEFIT CONCERT?

PROPOSAL

Hosting a Benefit Concert Supporting First Responders

Our company has the unique opportunity to make a lasting impact on our local community by hosting a benefit concert in support of a local 501(c)(3) non-profit that provides critical support to our First Responders. This initiative aligns with our corporate values (ie. Crossland Cares) and presents significant benefits for our company in three key areas.

1) COMMUNITY INVOLVEMENT

Strengthening Our Reputation & Impact

2) BUSINESS DEVELOPMENT

Expanding Our Network & Visibility

3) CORPORATE CULTURE

Boosting Employee Morale & Engagement

CONCLUSION

A Win-Win for Our Company and the Community

Hosting a benefit concert for first responders is not just a charitable act—it’s a strategic move that enhances our brand, builds business relationships, and strengthens our internal culture. This event would position us as a leader in corporate social responsibility while delivering real business benefits.

TEXAS OFFICE

731 Industry Way

Prosper, TX 75078

p: 972-347-5659

Contact: ROCKY HUSSMAN

President - Texas Region c. 469-408-7702

rhussman@crossland.com

WHY CROSSLAND

ƒ Previous History with the City of Frisco

ƒ Recent/Relevant Project Experience

ƒ Team Approach to Construction

ƒ Experienced Project Team

ƒ Top Tier Preconstruction Services

ƒ Local, Community Builder

ƒ Community Builders

Turn static files into dynamic content formats.

Create a flipbook
Issuu converts static files into: digital portfolios, online yearbooks, online catalogs, digital photo albums and more. Sign up and create your flipbook.