Portafolio v2.1

Page 1


Portafolio Arquitectura

CRISTIAN AUGUSTO VEGA ZAMBRANO

Z A M B R A N O

cristian-vega12@hotmail.com

(+57) 3214482086

Tolima - Ibagué - B. Cañaveral

Soy un arquitecto soñador y trabajador, en busca de la misma esencia de la arquitectura que ha prevalecido a lo largo de nuestra historia, de nuestra humanidad, arquitectura que busca brindar un techo util y confortable a las personas que la habitan mediante la intransigencia de las ideas materializadas.

https://www.linkedin.com/in/cristian-augusto-vega-zambrano-197872295/

Arquitecto Juniorr

Estudiante de arquitectura de noveno semestre

Educación

Colegio Comfatolima Ana JuliaSuarez de Zorroza

Bachiller con énfasis en el cuidado del medio ambiente

Universidad del Tolima

Pre-grado: estudiante de noveno semestre

Expericencia laboral / academico

Dibujante de casa “Villa Clarita” 2021

Dibujo de planos de planta, cortes y fachadas

Ponente investigación Análisis del entorno y la movilidad de las personas con diversidad funcional enla universidad del Tolima, 2023

Universidad del Tolima

Evento de entrega de premios a la excelencia del programa de arquitectura 2023

Cursos

Sketchup para arquitectos

Aula pixel rendering

Ilustración digital de proyectos arquitectónicos

Doméstika

Software

AutoCAD

Sketchup

Revit

V-ray

Indesign

D5 Render

Concursos

Art Temporary installation in “Panamá la Vieja” 2023

New Arch Competitions

Introducción a Illustrator

Aula pixel rendering

Enscape

Photoshop

Illustrator

01

CONTENIDO

Casa en Aldana - Nariño

Residencia unifamiliar

02 03 04

Edificio Toneda - Neiva

Edificio residencia multifamiliar

‘‘

Paisajes de Natagaima’’ - Tolima

Jardín botánico - Equipamiento regional

Centro de felicidad La samaria- Ibagué

Equipamieento sectorial

Año:

Academico:

Tipo:

Ubicación:

Encargo

2019

Semestre III

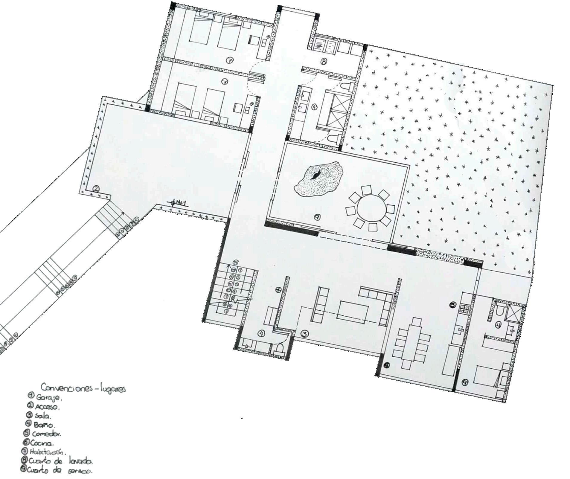
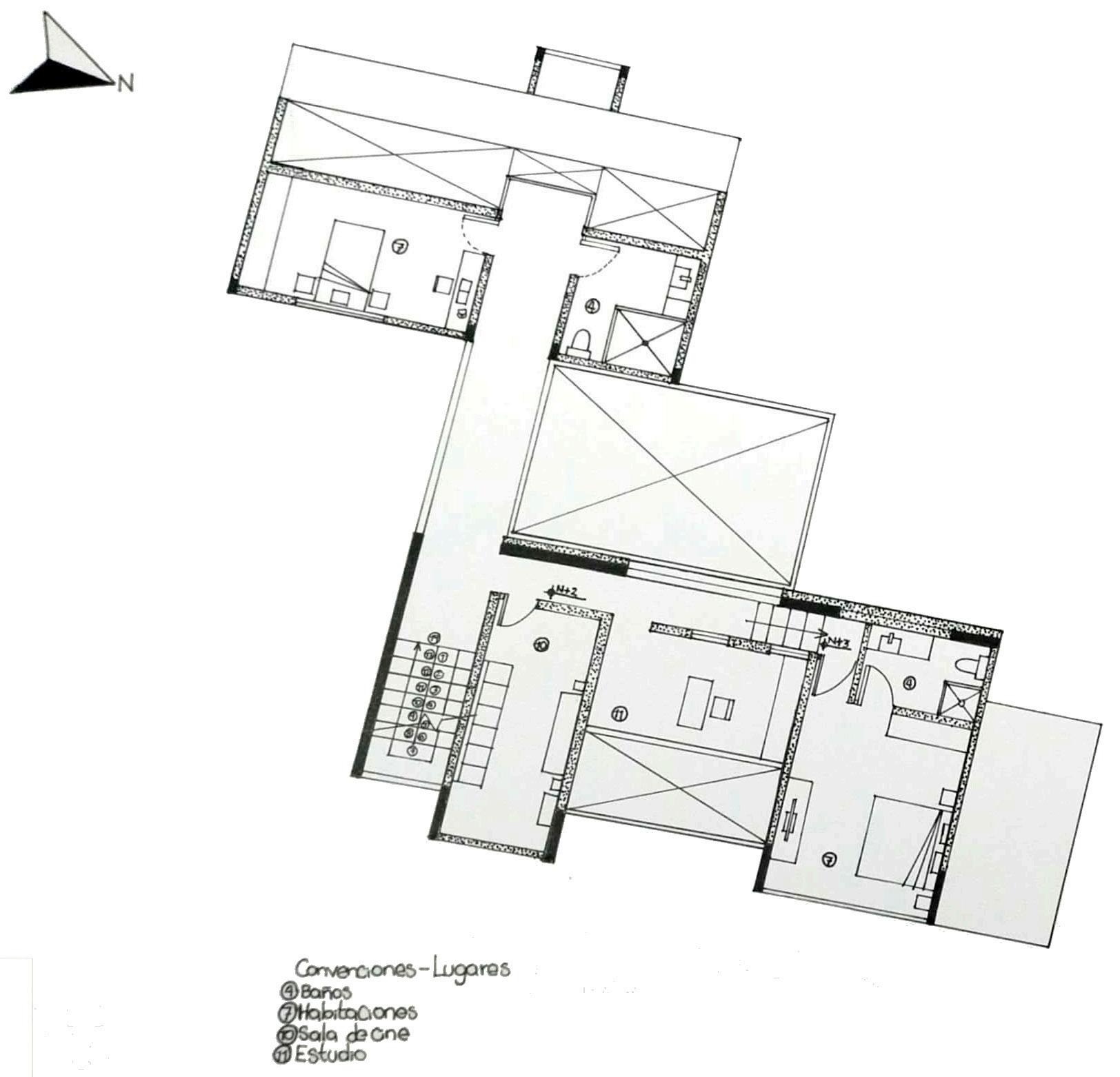
CASA EN ALDANA

Vivienda unifamiliar

Municipio de Aldana - Nariño - Colombia

El ejercicio de diseño, consta de crear una vivienda unifamiliar, la cual cumpla y satisfaga las necesidades que podría tener un personaje reconocido del municipio asignado al estudiante

Solución

Se seleccionó al poeta Aurelio Arturo, nacido en 1906 en Aldana, Nariño, en una familia acomodada. Fue abogado, graduado de la Universidad Javeriana, casado en 1941 y padre de cinco hijos. La casa planteada es una vivienda vacacional donde su familia, que residía en Bogotá, se reúne para descansar y conectarse con sus raíces en épocas de verano.

EDIFICIO TONEDA

Año: Academico:

Tipo:

Ubicación:

2020

Semestre V

Vivienda multifamiliar

Ciudad de Neiva - Huila - Colombia

Encargo

El Taller de Diseño Arquitectónico V propone diseñar un edificio multifamiliar en una zona de clase media-alta, respetando normativas urbanas y el entorno. Incluirá una azotea con zonas comunes y viviendas que cumplan con la normativa constructiva. El diseño debe ser creativo y armonioso, basado en un concepto sin jerarquía entre arriba y abajo.

Terraza
Fachada carrera novena

JARDIN BOTANICO “PAISAJES DE NATAGAIMA” EDIFICIO DE INVESTIGACIÓN

Año:

Academico:

Tipo:

Ubicación:

Equipo: Encargo

2021

Semestre VI

Equipamiento de carácter regional

Municipio de Natagaima - Tolima - Colombia

Steven Zabala Hernandez

El taller constó de un análisis de las categorías proyectuales del municipio de Natagaima, el cual tiene como objetivo identificar qué necesidad y/o oportunidad posee el municipio en cuanto a equipamientos se trata y que tipo de factibilidad habría de la creación de cada uno.

Solución

Con este análisis, se llegó a la conclusión de la creación de un jardín botánico vinculado tal vez a la universidad del Tolima, donde su principal objetivo sería el estudio, conservación y aprovechamiento del ecosistema del bosque seco, mediante el PROMENADE PAISAJÍSTICO, por eso el equipamiento adquiere el nombre de “Paisajes de Natagaima”.

Sketch realizado por Steven Zabala
Huertas
Ecosistema desierto

Convenciones

1. 2. 3. 4. 5. 6. Restaurante. Administración. Auditorio.

Zona de investigación.

Zona de exposiciones.

Cuarto de manejo de fuentes de agua del Jardín Botánico.

Fachada Sur-Oeste
Fachada Sur-Este
Fachada Norte

CENTRO DE FELICIDAD ‘‘LA SAMARIA’’

Año:

Academico:

Tipo:

Ubicación:

Equipo:

Encargo

2024

Semestre IX

Equipamiento de carácter sectorial

Municipio de Ibagué - Tolima - Colombia

Juan Diego Jaramillo

El taller tuvo como objetivo el diseño de un centro de felicidad el cual seria una respuesta a las necesidades psicologicas presentes en el amplio número de suicidios a lo largo de la historia de la ciudad y tambien dando respuesta a las necesidades encontradas por los estudiantes.

Proceso

Edificio de recuperación y fortalecimiento

Edificio deportivo

“Para ser arquitecto, tienes que ser dos cosas: optimista y curioso”
Norman Foster

Turn static files into dynamic content formats.

Create a flipbook
Issuu converts static files into: digital portfolios, online yearbooks, online catalogs, digital photo albums and more. Sign up and create your flipbook.
Portafolio v2.1 by CrisVega12 - Issuu