Skip to main content

PORTAFOLIO CC

Page 1


C R I S T I N A C A S T R O

INTERIOR DESIGN & ARCHITECTURE

H e l l o , I ’ m C r i s t i n a

Interior Architect

Since I was a child, I loved creating new things, inventing stories, and painting new ones. That's how I developed this passion for designing new realities through interior design and architecture. I was able to express and connect all these ideas and skills I had acquired over time.

+(1) 850 332 8280

Education:

UNIVERSITY:

DEGREE INTERIOR ARCHITECT

FACULTY OF ARCHITECTURE AND DESIGN

UNIVERSIDAD DE LAS AMERICAS (UDLA) QUITO, ECUADOR 2018 - 2022

Skills:

CONCEPTUALIZATION DIAGRAMMING CREATING MOODBOARDS 3D MODELING

PLANIMETRY RENDERING GRAPHIC DESIGN PHOTOGRAPHY

www.linkedin.com/in/ cristina-castro-8108232a9

Software skills: AUTOCAD REVIT SKETCHUP VRAY LUMION ENSCAPE RHINO

PHOTOSHOP ILUSTRADOR RAYON LAYOUT INDESIGN CANVA OFFICE 365

Certifications:

SHERWIN WILLIAMS 2019: EPOXY PAINTS

EDIMCA 2020 MODULAR FURNITURE FOR KITCHENS

FABLAB ZOI 2021: ENVELOPING STRUCTURES WORKSHOP

Languages:

SPANISH - NATIVE ENGLISH - ADVANCED

WORK EXPERIENCE

Clinica Dental Corporación

Favorita Supermaxi

CUSTOMER SERVICE

ACCOUNTING

ASSISTANT

SALES AND INSURANCE

CASHIER

INSURANCE SALES

FINANCE DEPARTMENT SUPPORT

Interiorismo Udla

Architecture and Design Center

SOCIAL MEDIA MANAGEMENT AND CONTENT CREATION, ARCHITECTURE AND INTERIOR DESIGN

ARCHITECTURE AND INTERIOR DESIGN COURSE SALES SOCIAL MEDIA CONTENT CREATION

RESIDENTIAL AND COMMERCIAL PROJECTS Freelance

TERRAFERTIL

NOVADENTAL

POP UP - MAC

INANA - CCM
CASA CC
ARTE DIGITAL

T E R R A F E R

LOCATION: QUITO, ECUADOR YEAR 2020

SOFTWARE: REVIT, LUMION, PHOTOSHOP CONCEPT CAPTURE THE BRAND IDENTITY USING THE BRAND'S COLOR SCHEME AND ONE OF ITS PRODUCTS (ALMONDS), DECONSTRUCTING IT IN BOTH FORM AND FUNCTION AND USING IT FOR THE INTERIOR DESIGN. THIS IS REFLECTED IN THE ARCHITECTURAL LAYOUT AND ALSO IN THE TEXTURES AND FINISHES OF THE FURNITURE, WALLS, FLOORS, AND CEILING.

C A S A C C

Residential

LOCATION: TABABELA, ECUADOR YEAR 2020

SOFTWARE: AUTOCAD SKETCHUP LUMION PHOTOSHOP

CONCEPT: INDOOR-OUTDOOR CONNECTION THE MAIN FOCUS OF THIS PROJECT IS THE IMPLEMENTATION OF EXTERIOR ELEMENTS INTO THE INTERIOR. THE USE OF WOOD, STONE, AND LARGE WINDOWS TO ALLOW SUNLIGHT IN WERE IMPORTANT ELEMENTS, ESPECIALLY FOR THE CLIENT TO FEEL THAT CONNECTION WITH NATURE

I

N A N A

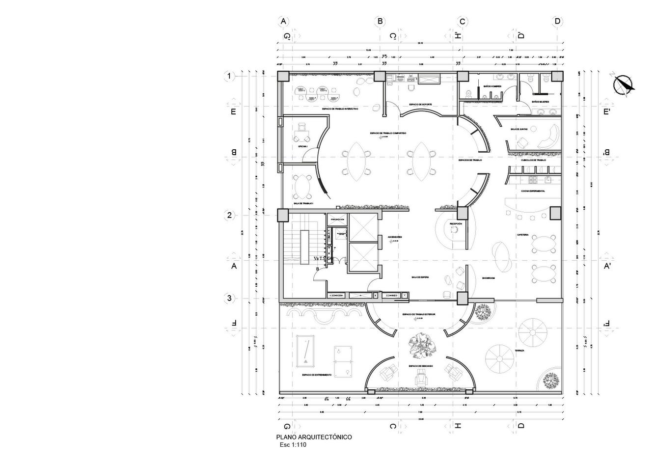
Community Center

LOCATION: QUITO, ECUADOR YEAR: 2021 - 2022

SOFTWARE SKETCHUP, LUMION, PHOTOSHOP CONCEPT: REMODELING AN OLD BUILDING FOCUSED ON CREATING A CALM, EDUCATIONAL, AESTHETIC, AND FUNCTIONAL ENVIRONMENT TO MEET THE NEEDS OF THE USER (WOMEN AND CHILDREN) WHO FIND A PLACE OF REFUGE AND DEVELOPMENT ALL THIS THROUGH HEALTH, EDUCAT ONAL, INTERACTIVE, AND RECREATIONAL SPACES.

F U R N I T U R E

Design details

F U R N I T U R E Design details

N O V A D E N T A L Dental Clinic

LOCATION: PUEMBO, ECUADOR

YEAR 2024

SOFTWARE: SKETCHUP, LUMION, PHOTOSHOP

CONCEPT ADAPTATION OF A SPACE THAT INCLUDED THREE CUBICLES, A STERILIZATION ROOM, AND A RECEPTION AREA USING BRIGHT LIGHTING AND A COLOR SCHEME REPRESENTATIVE OF THE BRAND

M A CC O S M E T I C S

LOCATION: QUITO, ECUADOR YEAR: 2020

SOFTWARE AUTOCAD, SKETCHUP, LUMION, PHOTOSHOP

CONCEPT: MAKEUP SHAPES, DERIVED FROM THE PRODUCT S SHAPE AND APPLICATION; THESE SHAPES ARE GEOMETRIC, SINUOUS, AND RREGULAR WITH SMOOTH AND POROUS TEXTURES THIS WAS APPLIED TO THE ARCHITECTURAL LAYOUT AND FURNITURE DESIGN, AS WELL AS THE PANELS FOR ASSEMBLY.

L L U S T R A T I O N

THE GRAPHIC REPRESENTATION OF EACH PROJECT IS THE KEY TO TRANSMITTING TO THE CLIENT ALL OUR IDEAS, MATERIALS, COLOR, FURNITURE AND OTHER DESIGN ELEMENTS

SOFTWARE: AUTOCAD SKETCHUP PHOTOSHOP ILLUSTRADOR

L O G O Graphic design

THE LOGOS WERE CUSTOM CREATED FOR PREVIOUSLY PRESENTED PROJECTS. THEY ARE PART OF THE BRAND IDENTITY AND OFTEN PROVIDE INSPIRATION FOR INTERIOR DESIGN.

SOFTWARE: PHOTOSHOP ILLUSTRADOR CANVA

TRANSFORM SPACES - INSPIRE LIVES

Turn static files into dynamic content formats.

Create a flipbook
PORTAFOLIO CC by Cristina Castro - Issuu