Biggins Wood Road | Folkestone

Page 1

A beautiful new development of three and four bedroom homes

Biggins Wood Road is a beautiful new development in Folkestone offering a variation of three and four bedroom, two and three storey, detached and semi detached homes.

THESE CONTEMPORARY MODERN HOMES HAVE BEEN BUILT BY A REPUTABLE DEVELOPER TO A FANTASTIC STANDARD.

Wood effect flooring is laid to the ground floor, luxury carpet to the stairs and bedrooms, glass balustrades to staircases, integrated kitchen appliances, under floor heating to the ground floor and a ground floor heat source pump. Plot Seven is the beautifully dressed show home and can be viewed immediately.

Each dwelling includes a Buildzone 10 Year Warranty, an electric car charging point, some with a garage and all with parking for up to four cars.

Fast becoming a sought after place to be, Folkestone has seen much regeneration over the past few years, with much more planned going forward, especially surrounding the town centre and Harbour.

With a large array of shops, boutiques and restaurants as well as many hotels and tourist attractions, Folkestone is also fortunate to have two High Speed Rail links to London, both offering a London commute in under an hour.

There are great transport links to surrounding towns and cities and easy access to the continent. With so much going on and with the future bright, Folkestone is an excellent location to both live and invest in.

“It was one of those hot clear days that Folkestone sees so much of. Every colour bright and every outline hard.”
HG Wells

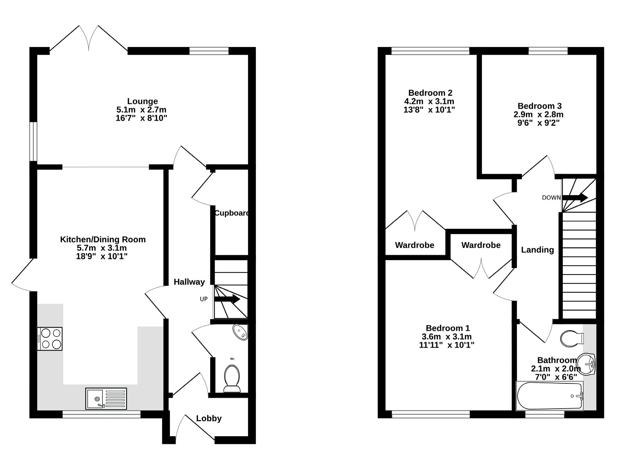
PLOT TWO I 111 BIGGINS WOOD ROAD

Subject to change. Photograph show
FLOORPLANS
Plot Seven.

PLOT THREE I 113 BIGGINS WOOD ROAD

FLOORPLANS
Subject to change. Photograph show Plot Seven.

FLOORPLANS

PLOT FOUR I 115 BIGGINS WOOD ROAD

Subject to change. Photograph show
Plot Seven.

FLOORPLANS

PLOT FIVE I 117 BIGGINS WOOD ROAD

Subject to change. Photograph
show Plot Seven.

PLOT SIX I 119 BIGGINS WOOD ROAD

Subject to change.
FLOORPLANS
Photograph show Plot Seven.

PLOT SIX I 121 BIGGINS WOOD ROAD

Subject to change. Photograph
FLOORPLANS
show Plot Seven.

TENURE

Freehold.

ESTATE CHARGE

N/A; Each house is responsible for their own boundaries which are outlined on the title plan.

WARRANTY PROVIDER

Buildzone 10 Year Warranty.

SNAGGING

Any snagging will be carried out in full, usually after exchange and prior to completion. Snagging examples; clean, decoration and uneven finishes.

DEFECT PERIOD

Three months from the completion date buyers can report any defects to the developers directly. Defect examples; settlement cracks, fittings, plumbing, drainage, wiring, damp, malfunction windows and doors.

RESERVATIONS

£1000 reservation fee is required to secure the property to remove it from the market. The reservation fee is lodged with the seller and deducted from the sale agreed price on completion.

INFORMATION Subject to change. Photograph show Plot Seven.
PLOT POSTAL ADDRESS TYPE STOREY PARKING SQ.FT 1 109 Biggins Wood Road 3 Beds & 1 Bath, Semi Detached House 2 2 Allocated Bays 1050 2 111 Biggins Wood Road 3 Beds & 1 Bath, Semi Detached House 2 2 Allocated Bays 1050 3 113 Biggins Wood Road 3 Beds & 1 Bath, Detached House 2 Drive for 1/2 Allocated Bays 1000 4 114 Biggins Wood Road 4 Beds & 2 Bath, Semi Detached House 3 Garage / Drive for 2 1600 5 117 Biggins Wood Road 4 Beds & 2 Bath, Semi Detached House 3 Garage / Drive for 2 1600 6 119 Biggins Wood Road 4 Beds & 2 Bath, Semi Detached House 3 Garage/Drive for 2 & 1 Allocated Bay 1600 7 121 Biggins Wood Road 4 Beds & 2 Bath, Semi Detached House 3 Garage/Drive for 2 & 2 Allocated Bays 1600
For further information or to arange a viewing, please contact: 01303 255 335 • folkestone@milesandbarr.co.uk
The specification maybe subject to some change as necessary and without notice. Any photographs or computer-generated images may not represent the actual fittings and furnishings of the development.The specification is not intended to form part of any contract or warrant unless specifically incorporated in writing into the contract. The developer retains the right to adjust and vary specifications.
BIGGINS WOOD ROAD

Turn static files into dynamic content formats.

Create a flipbook
Issuu converts static files into: digital portfolios, online yearbooks, online catalogs, digital photo albums and more. Sign up and create your flipbook.
Biggins Wood Road | Folkestone by Miles & Barr - Issuu