Résidence SABLINE
19-21, RUE des prés L-7333 STEINSEL
Appartements de 49 m² à 116 m²






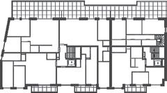
REZ-DE-JARDIN
SABLINE 1
3 CHAMBRES - SURFACE 113,56 M²
REZ-DE-JARDIN
SABLINE 2
3 CHAMBRES - SURFACE 107,27 M²
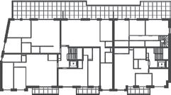
ÉTAGE 1
SABLINE 1
ÉTAGE 2
SABLINE1
![]()
19-21, RUE des prés L-7333 STEINSEL
Appartements de 49 m² à 116 m²






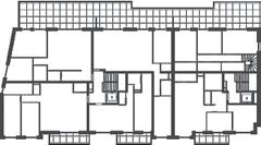
REZ-DE-JARDIN
SABLINE 1
3 CHAMBRES - SURFACE 113,56 M²
REZ-DE-JARDIN
SABLINE 2
3 CHAMBRES - SURFACE 107,27 M²
ÉTAGE 1
SABLINE 1
ÉTAGE 2
SABLINE1
19-21, RUE des prés L-7333 STEINSEL Appartements de 49 m² à 116 m²
appartement description et situation plans de façades / coupes sous-sol / implantation plans de chaque niveau appartement appartement appartement appartement appartement appartement appartement appartement appartement appartement appartement appartement appartement appartement appartement
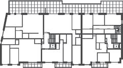
ÉTAGE 1
SABLINE 2
ÉTAGE 2
SABLINE 2



Un développement résidentiel exclusif composé de deux blocs intérieurs regroupant respectivement 11 et 5 appartements. Ces espaces de vie lumineux et généreux offrent entre 49 et 116 m² habitables. Implantée en léger retrait, la résidence bénéficie d’un agréable espace vert à l’avant, tandis que les appartements situés à l’arrière profitent d’une vue dégagée et apaisante sur la nature environnante. Édifié sur un terrain de 17,73 ares, ce projet allie confort, esthétisme et sérénité. Chaque appartement dispose d’un emplacement de parking ainsi que d’une cave/buanderie privative.
COMPLÉMENTAIRES
19 et 21, rue des prés L-7333 STEINSEL parcelles n°415/3978 et 557/3979
Commune : STEINSEL
Promoteur : F.C.O. IMMO SARL
Résidence Sabline
Rue des prés

Rue des prés

Résidence SABLINE - STEINSEL
géographique
Sabline se situe à Steinsel, un quartier recherché du Luxembourg grâce à sa proximité avec le centre-ville. Son emplacement est idéal, offrant toutes les commodités essentielles (écoles, commerces et services) à moins de 2 minutes en voiture. L’accès aux transports en commun y est également facile et pratique.
Écoles et maison relais / 05 min.
Pall Center / 03 min.
Pharmacie de Steinsel / 03 min.
Arrêt de bus / 01 min. lignes 691, 292, D32, 112, E26/E27
Mobilité :
Axes autoroutiers A7, A1, A6 / 10 min.
Stations essence / recharge / 03 min.
Gares de Heisdorf / 05 min.
Aéroport du Findel / 20 min.
Pistes cyclables / 01 min.
Commodités :
Piscine de Steinsel / 05 min.
Sentiers nature / 10 min. (Vallée de l’Alzette)





vue d’ensemble





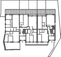
ACCÈS + SORTIE PARKING ➔
LOCAUX TECHNIQUES/COMPTEURS POUBELLES
ACCÈS AUX ÉTAGES - ASCENSEURS
CAVES/BUANDERIES


vue d’ensemble





rez-de-jardin / ÉTAGE 01 / ÉTAGE 02 Résidence
REZ-DE-JARDIN

2 CHAMBRES - SURFACE 70,18 M²
1 cave/buanderie n°01-R1 +/- 6,55 m² voir page 08
1 emplacement int n°02-R1 voir page 08
vue jardin
exposé ouest
optimisation des pièces







Jardin

Séjour / S.A.M. / Cuisine : +/- 45,62 m²
Entrée : +/- 3,63 m²
WC : +/- 1,32 m²
Hall de nuit : +/- 5,43 m²
Chambre 1 + Dressing : +/- 14,37 m²
Chambre 2 : +/- 14,54 m²
Chambre 3 : +/- 11,71 m²
S.D.D. / WC : +/- 4,15 m²
S.D.B. : +/- 5,90 m²
Terrasse : +/- 36 m²
Jardin




3 CHAMBRES - SURFACE 106,80 M²
1 cave/buanderie n°02-R1 +/- 8,78 m² voir page 08
2 emplacements int n°01-R1, ext n°01 voir page 08
vue dégagée sur la nature exposé est ouvert sur le jardin





REZ-DE-JARDIN
1 CHAMBRE - SURFACE 49,14 M²
1 cave/buanderie n°03-R1 +/- 6,50 m² voir page 08
1 emplacement ext n°02 voir page 08
ouvert sur le jardin
exposé est
mieux qu’un studio









Séjour / S.A.M. / Cuisine : +/- 31,30 m²
Chambre : +/- 13,39 m²
S.D.D. : +/- 3,12 m²
WC : +/- 1,34 m²
Terrasse : +/- 23 m²
Jardin
Séjour / S.A.M. / Cuisine : +/- 53,46 m²
Chambre 1 : +/- 18,46 m²
Chambre 2 : +/- 14,41 m²
Chambre 3 : +/- 11,69 m²
S.D.D. / WC : +/- 4,15 m²
S.D.B. : +/- 4,64 m²
WC : +/- 1,56 m²
Terrasse : +/- 27,7 m²
Jardin





3 CHAMBRES - SURFACE 113,56 M²
1 cave/buanderie n°04(07)-R1 +/- 10,28 m² voir page 08
2 emplacements int n°10, ext n°03 voir page 08 vue dégagée sur le jardin exposé est et ouest traversant





2 CHAMBRES - SURFACE 89,19 M²
1 cave/buanderie n°05-R1 +/- 5,77 m² voir page 08
1 emplacement int n°03-R1 voir page 08
vue dégagée
terrasse exposée ouest
spacieux








Séjour / S.A.M. / Cuisine : +/- 47,45 m²
Dégagement : +/- 2,87 m²
Cellier : +/- 2,66 m²
WC : +/- 1,27 m²
Chambre 1 : +/- 15,81 m²
Chambre 2 : +/- 13,42 m²
S.D.B. / WC : +/- 6,92 m²
Terrasse : +/- 9,13 m²

Séjour / S.A.M. / Cuisine : +/- 41,16 m²
Cellier : +/- 4,50 m²
Dégagement : +/- 2,15 m²
WC : +/- 1,83 m²
Chambre 1 : +/- 19,82 m²
Chambre 2 : +/- 12,81 m²
S.D.D. / WC : +/- 4,30 m²
Terrasse : +/- 16,6 m²


1 cave/buanderie n°06-R1 +/- 7,38 m² voir page 08
1 emplacement int n°04-R1 voir page 08
vue dégagée sur la nature terrasse exposée est agencement original

2 CHAMBRES - SURFACE 86,52 M² N




2 CHAMBRES - SURFACE 92,83 M²
1 cave/buanderie n°07-R1 +/- 7,41 m² voir page 08
1 emplacement int n°05 voir page 08
vue dégagée sur la nature
terrasses exposées est et ouest
atypique avec espace nuit traversant







Dégagement : +/- 5,31 m²
+/- 1,59 m²
Chambre 1 + Dressing : +/- 15,72 m²
Chambre 2 : +/- 13 m²
S.D.D. : +/- 3,60 m²
Terrasse : +/- 17,25 m²
Séjour / S.A.M. / Cuisine : +/- 28,65 m²
WC : +/- 1,31 m²
Chambre : +/- 14,61 m²
Dressing :
S.D.D. :
Terrasse :



1 cave/buanderie n°08-R1 +/- 6,55 m² voir page 08 Résidence SABLINE -
1 emplacements int n°06 voir page 08
vue dégagée
terrasse exposée ouest
cocooning





1 CHAMBRE - SURFACE 58,02 M²
1 cave/buanderie n°09-R1 +/- 6,52 m² voir page 08
1 emplacement int n°09 voir page 08
vue dégagée
terrasse exposée ouest
optimisation des pièces


Séjour / S.A.M. / Cuisine : +/- 39,58 m²
Chambre : +/- 13,05 m²
S.D.D. : +/- 3,57 m² +/- 15 m²






Séjour / S.A.M. / Cuisine : +/- 42,85 m²
WC : +/- 1,69 m²
Cellier : +/- 2,41 m²
Chambre 1 : +/- 13,87 m²
Chambre 2 : +/- 12,92 m²
Dégagement : +/- 3,85 m²
S.D.B. : +/- 5,43 m²
Terrasses : +/- 30 m²

1 cave/buanderie n°10-R1 +/- 5,67 m² voir page 08 Résidence SABLINE - STEINSEL
1 emplacements int n°08 voir page 08 vue dégagée
terrasses exposées nord, est et ouest espace nuit traversant







2 CHAMBRES - SURFACE 98,64 M²
1 cave/buanderie n°11-R1 +/- 6,42 m² voir page 08
1 emplacement int n°07, ext n°05 voir page 08
vue dégagée sur la nature et le village
terrasses exposées est et ouest spacieux

Séjour / S.A.M. / Cuisine : +/- 50,24 m²
Cellier : +/- 5,09 m²
WC : +/- 1,28 m²
Chambre 1 : +/- 17,27 m²
Chambre 2 : +/- 13,76 m²
S.D.D. / WC : +/- 3,91 m²
S.D.B. : +/- 4,10 m²
Terrasses : +/- 30 m²








REZ-DE-JARDIN
1 CHAMBRE - SURFACE 50,27 M²
1 cave/buanderie n°01-R2 +/- 8,04 m² voir page 08
1 emplacement ext n°04
voir page 08
vue jardin
exposé est optimisation des pièces



Séjour / S.A.M. / Cuisine : +/- 29,99 m²
Dégagement : +/- 6,56 m²
Chambre : +/- 13,83 m²
S.D.D. : +/- 2,81 m²
WC : +/- 1,20 m²
Terrasse : +/- 27,7 m²
Jardin






REZ-DE-JARDIN
Séjour / S.A.M. / Cuisine : +/- 44,91 m²
Entrée : +/- 3,59 m²
WC : +/- 1,84 m²
Terrasse : +/- 23 m²
Jardin
Résidence SABLINE - STEINSEL
REZ-DE-JARDIN + ÉTAGE 01
3 CHAMBRES - SURFACE 107,27 M²
1 cave/buanderie n°02-R2 +/- 8,04 m² voir page 08



ÉTAGE 01
Hall de nuit : +/- 6,67 m²
Cellier : +/- 4,87 m²
Chambre 1 : +/- 17,95 m²
Chambre 2 : +/- 15,22 m²
Chambre 3 : +/- 12,30 m²
S.D.D. / WC : +/- 4,43 m²
S.D.D. / WC : +/- 4,39 m²
Terrasse : +/- 17,79 m²


2 emplacements int n°04-R2, ext n°06 voir page 08 vue dégagée
exposé est duplex coté jardin




REZ-DE-JARDIN
1 CHAMBRE - SURFACE 61,28 M²
1 cave/buanderie n°03-R2 +/- 3,89 m² voir page 08
1 emplacement int n°03-R2 voir page 08
ouvert sur le jardin
terrasse exposée ouest
cocooning









Séjour / S.A.M. / Cuisine : +/- 37,23 m²
Cellier : +/- 2,03 m²
WC : +/- 3,07 m²
Chambre : +/- 14,99 m²
S.D.D. : +/- 4,98 m²
Jardin
Séjour / S.A.M. / Cuisine : +/- 35,67 m²
Cellier : +/- 3,90 m²
Entrée + Dégagement : +/- 7,63 m²
WC : +/- 1,56 m²


+/- 14,61 m²
+/- 10,23 m²
+/- 6,20 m²
+/- 7,72 m²

1 cave/buanderie n°04-R2 +/- 3,88 m² voir page 04 Résidence SABLINE - STEINSEL ÉTAGE 01
2 CHAMBRES - SURFACE 78,47 M²
1 emplacement int n°02-R2 voir page 04
vue dégagée sur le village
terrasse exposée ouest spacieux





3 CHAMBRES - SURFACE 115,69 M²
1 cave/buanderie n°05-R2 +/- 5,16 m² voir page 08
1 emplacement int n°01-R2, ext n°07 voir page 08
vue dégagée
terrasses exposées est et ouest
accès ascenseur direct dans l’appartement







/
Entrée / Dégagement : +/- 11,52 m²
Cellier : +/- 5,05 m² WC : +/- 1,41 m²
Chambre 1 : +/- 14,57 m²
Chambre 2 : +/- 13,83 m²
Chambre 3 : +/- 13,59 m²
S.D.B. : +/- 5,69 m²
Terrasses : +/- 33 m²


Quel sera votre futur appartement ?





