


















































































































![]()




















































































































2,829 BED + DEN + BONUS BATH
SQ. FT
3 CAR GARAGE 2 LOT #28
5908 NW 132nd Ave, Portland, OR 97229
Bonus Room
Dining Room
Guest Suite
Dining Nook
Den
Covered Patio
Eco-Friendly Construction
Walk-In Closets
Welcome to this thoughtfully designed two-story home offering 2,829 sq. ft. of well-planned living space with 3 bedrooms and 3 bathrooms. This residence combines open living, flexible spaces, and everyday functionality.
The main level features a spacious great room with a cozy fireplace that flows effortlessly into the kitchen, nook, and dining area—ideal for gathering and entertaining. A main-level den or bedroom with an adjacent full bath offers flexibility for guests or a home office, while the partially covered patio and welcoming front porch extend the living space outdoors.
Upstairs, the private living area includes a generous primary bedroom with a walk-in closet and spa-inspired bath, two additional bedrooms, a full bath, and a versatile bonus room. A conveniently located laundry room adds everyday ease.
A 2-car garage and energy-efficient construction complete this well-balanced and inviting home.


▪ 18-time Earth Advantage Award Winner
▪ 9-time Oregon Home Magazine Winner
▪ EEBA - Excellence in Healthy Homes National Champion
▪ EEBA - Zero Energy Ready Homes at Production Scale National Champion
▪ HBA Builder of the Year
▪ Energy Star Market Leader
▪ Department of Energy ZER Housing Innovation Award Winner
▪ Earth Advantage’s Project of the Year











3,286 BED + DEN + BONUS BATH
SQ. FT
3.5 CAR GARAGE 2 LOT #30
5895 NW 132nd Avenue, Portland, OR 97229
Bonus Room
Dining Room
Guest Suite
Dining Nook
Den
Covered Patio
Eco-Friendly Construction
Walk-In Closets
Welcome to this spacious two-story home offering 3,286 sq. ft. of thoughtfully designed living space with 5 bedrooms and 3.5 bathrooms. This plan delivers a perfect balance of open gathering areas and private retreats.
The main level features an expansive great room with a cozy fireplace, seamlessly connecting to the kitchen, nook, and dining room—ideal for entertaining and everyday living. A main-level den or bedroom and a separate guest bedroom, each with nearby baths, provide excellent flexibility for visitors or home office needs. Enjoy outdoor living on the covered patio, complemented by a welcoming covered front porch.
Upstairs, the private living area includes a generous primary bedroom with a walk-in closet and spa-inspired bath, along with three additional bedrooms, a full bath, and a versatile bonus room. A conveniently located laundry room adds everyday ease.
A 2-car garage and energy-efficient construction complete this well-designed and highly livable home.
▪ 18-time Earth Advantage Award Winner
▪ 9-time Oregon Home Magazine Winner
▪ EEBA - Excellence in Healthy Homes National Champion
▪ EEBA - Zero Energy Ready Homes at Production Scale National Champion
▪ HBA Builder of the Year
▪ Energy Star Market Leader
▪ Department of Energy ZER Housing Innovation Award Winner
▪ Earth Advantage’s Project of the Year















3,792
5
4.5
2
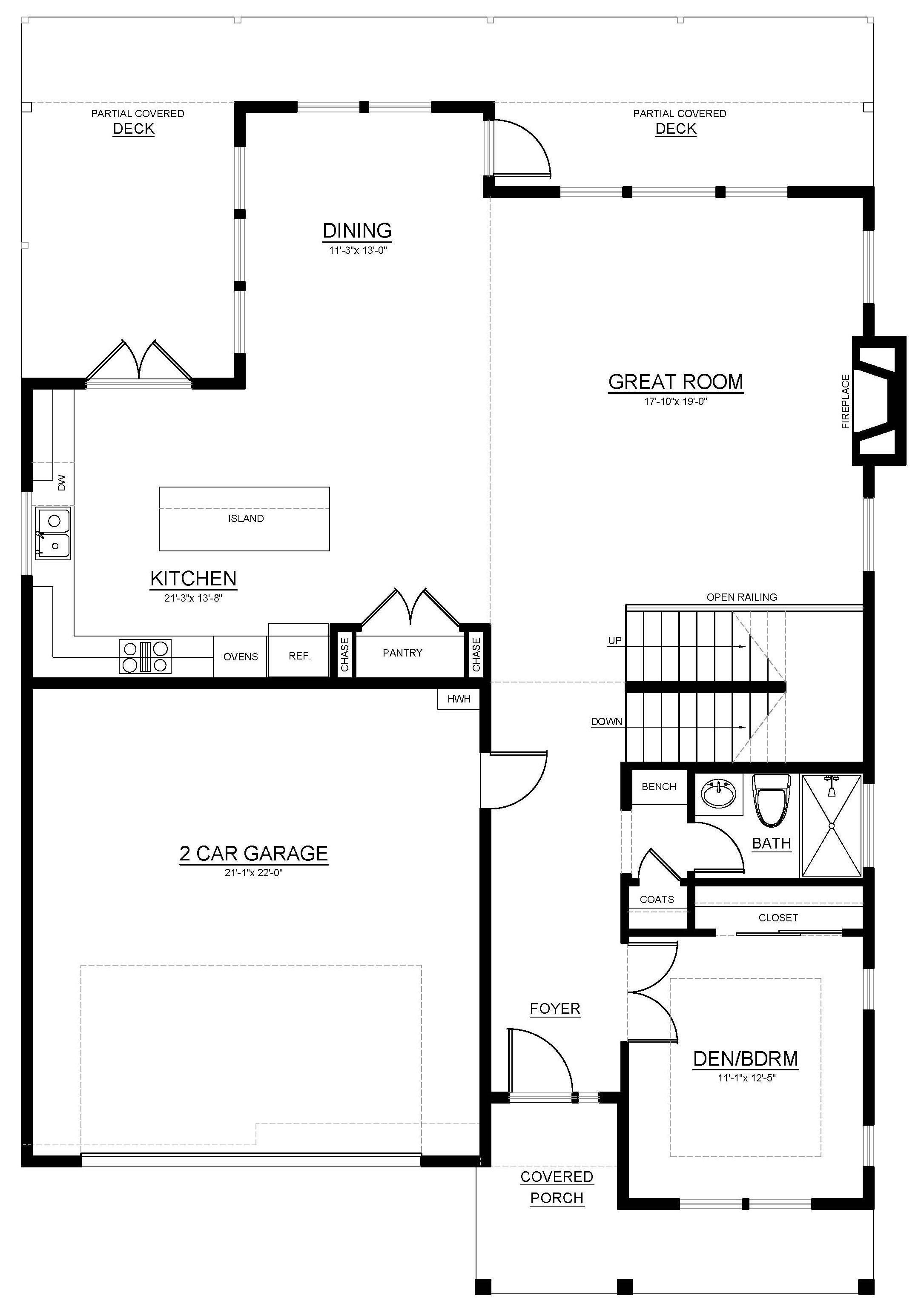
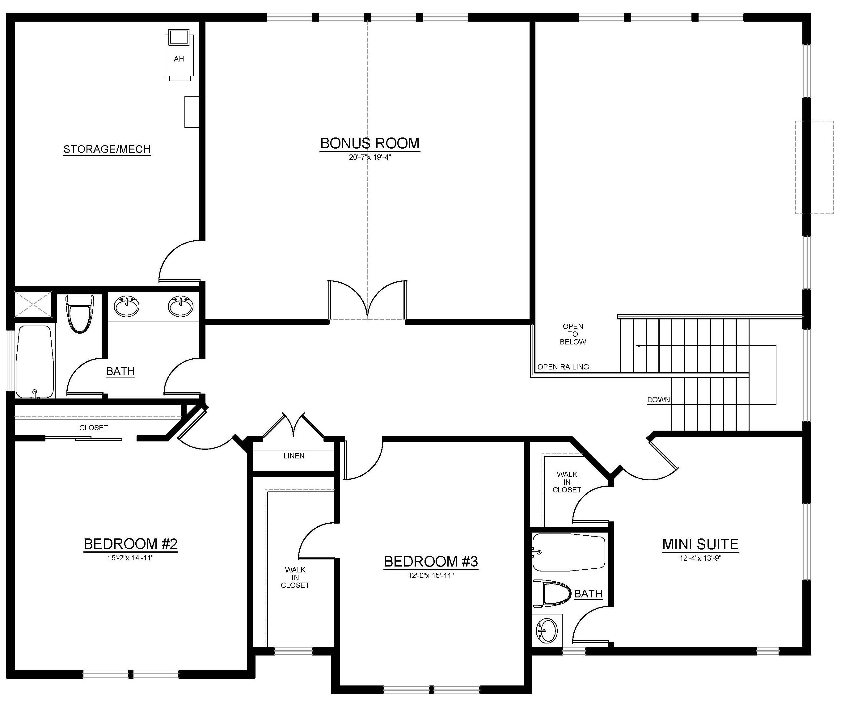
Discover the comfort and versatility of Lot 27, a beautifully planned two-story home offering generous spaces for gathering, hosting, and everyday living. With 5 bedrooms, including both a guest suite and a mini suite, this plan supports multigenerational needs or long-term visitors with ease.
The main floor centers around a bright, open great room with a welcoming fireplace, connecting seamlessly to the dining nook and a chef-friendly butler’s pantry. A separate dining room and a quiet den add flexibility for work, entertaining, or hobbies.
Upstairs, a spacious bonus room provides the perfect spot for movie nights, play space, or a second lounge. Thoughtful storage is found throughout, including multiple walk-in closets.
Enjoy outdoor relaxation on the covered patio, where serene green space views extend the sense of privacy and calm. Eco-friendly construction ensures long-lasting comfort and efficiency. Lot 27 blends smart design with inviting living spaces—ideal for today’s lifestyle.


Bonus Room
Dining Room
Guest Suite
Mini Suite
Dining Nook
Butler's Pantry
Den
Covered Patio
Eco-Friendly Construction
Walk-In Closets
Green Space Views
▪ 18-time Earth Advantage Award Winner
▪ 9-time Oregon Home Magazine Winner
▪ EEBA - Excellence in Healthy Homes National Champion
▪ EEBA - Zero Energy Ready Homes at Production Scale National Champion
▪ HBA Builder of the Year
▪ Energy Star Market Leader
▪ Department of Energy ZER Housing Innovation Award Winner
▪ Earth Advantage’s Project of the Year











3,566 BED + DEN + BONUS BATH
SQ. FT
4.5 CAR GARAGE 3
Welcome to this expansive two-story home offering 3,566 sq. ft. of thoughtfully designed living space with 5 bedrooms and 4.5 bathrooms. This plan combines generous gathering areas with well-defined private spaces for everyday comfort and entertaining.
The main level features a spacious great room with a cozy fireplace that opens seamlessly to the kitchen and nook, creating an ideal hub for daily living. A formal dining room adds flexibility for hosting, while a main-level den or bedroom and a private guest suite—each with nearby baths—offer exceptional versatility. Enjoy outdoor living on the covered patio and a welcoming covered front porch.
Upstairs, the private living area includes a luxurious primary bedroom with a walk-in closet and spa-inspired bath, along with three additional bedrooms, a full bath, and a large bonus room perfect for recreation or relaxation. A conveniently located laundry room enhances everyday efficiency.
A 3-car garage and energy-efficient construction complete this well-balanced and highly livable home.


LOT #31
5913 NW 132nd, Portland, OR 97229
Bonus Room
Dining Room
Guest Suite
Dining Nook
Den
Covered Patio
Eco-Friendly Construction
Walk-In Closets
▪ 18-time Earth Advantage Award Winner
▪ 9-time Oregon Home Magazine Winner
▪ EEBA - Excellence in Healthy Homes National Champion
▪ EEBA - Zero Energy Ready Homes at Production Scale National Champion
▪ HBA Builder of the Year
▪ Energy Star Market Leader
▪ Department of Energy ZER Housing Innovation Award Winner
▪ Earth Advantage’s Project of the Year











3,700 BED + DEN + BONUS 5 BATH 5 CAR GARAGE 2
SQ. FT
Welcome to this beautifully designed three-story home offering 3,700 sq. ft. of thoughtfully planned living space with 5 bedrooms and 5 bathrooms. Designed for modern lifestyles, this residence delivers flexibility, comfort, and efficient use of space.
The main level features an open great room with a cozy fireplace that flows seamlessly into the kitchen and dining area—ideal for everyday living and entertaining. A main-level den or bedroom with a nearby bath provides flexible living options, while the partially covered deck and welcoming front porch extend the living space outdoors.
Upstairs, the private retreat includes a spacious primary suite with a walk-in closet and spa-inspired bath, along with additional bedrooms, a mini suite, and a conveniently located laundry room.
The lower level expands the home’s versatility with an additional bedroom, full bath, and generous bonus spaces perfect for recreation, media, or fitness, plus access to a walk-out patio. A 2-car garage and energy-efficient construction complete this exceptional home.


Daylight Basement
Bonus Room
Dining Room
Butler’s Pantry
Den
Covered Deck
Eco-Friendly Construction
Walk-In Closets
Green Space Views
▪ 18-time Earth Advantage Award Winner
▪ 9-time Oregon Home Magazine Winner
▪ EEBA - Excellence in Healthy Homes National Champion
▪ EEBA - Zero Energy Ready Homes at Production Scale National Champion
▪ HBA Builder of the Year
▪ Energy Star Market Leader
▪ Department of Energy ZER Housing Innovation Award Winner
▪ Earth Advantage’s Project of the Year












3,830 BED + DEN + BONUS BATH
SQ. FT
4.5 CAR GARAGE 2 5
Welcome to this well-appointed two-story home offering 3,830 sq. ft. of thoughtfully designed living space with 5 bedrooms and 4.5 bathrooms. This plan blends open-concept living with private retreats for exceptional everyday comfort.
The main level features a spacious great room with a cozy fireplace, seamlessly connected to the kitchen, nook, and dining area—ideal for gathering and entertaining. A private primary bedroom suite and a separate guest suite on the main floor provide excellent flexibility for multi-generational living or overnight guests. Enjoy outdoor living on the covered patio, complemented by a welcoming covered front porch.
Upstairs, the home continues to impress with three additional bedrooms, including a mini suite with its own bath, a large bonus room perfect for recreation or relaxation, and conveniently located laundry and storage spaces.
A 2-car garage and energy-efficient construction complete this versatile and beautifully designed home.


5929 NW 132nd, Portland, OR 97229
Bonus Room
Dining Room
Guest Suite
Dining Nook
Den
Covered Patio
Eco-Friendly Construction
Walk-In Closets
▪ 18-time Earth Advantage Award Winner
▪ 9-time Oregon Home Magazine Winner
▪ EEBA - Excellence in Healthy Homes National Champion
▪ EEBA - Zero Energy Ready Homes at Production Scale National Champion
▪ HBA Builder of the Year
▪ Energy Star Market Leader
▪ Department of Energy ZER Housing Innovation Award Winner
▪ Earth Advantage’s Project of the Year











4,205
6 BATH 5 CAR GARAGE 3
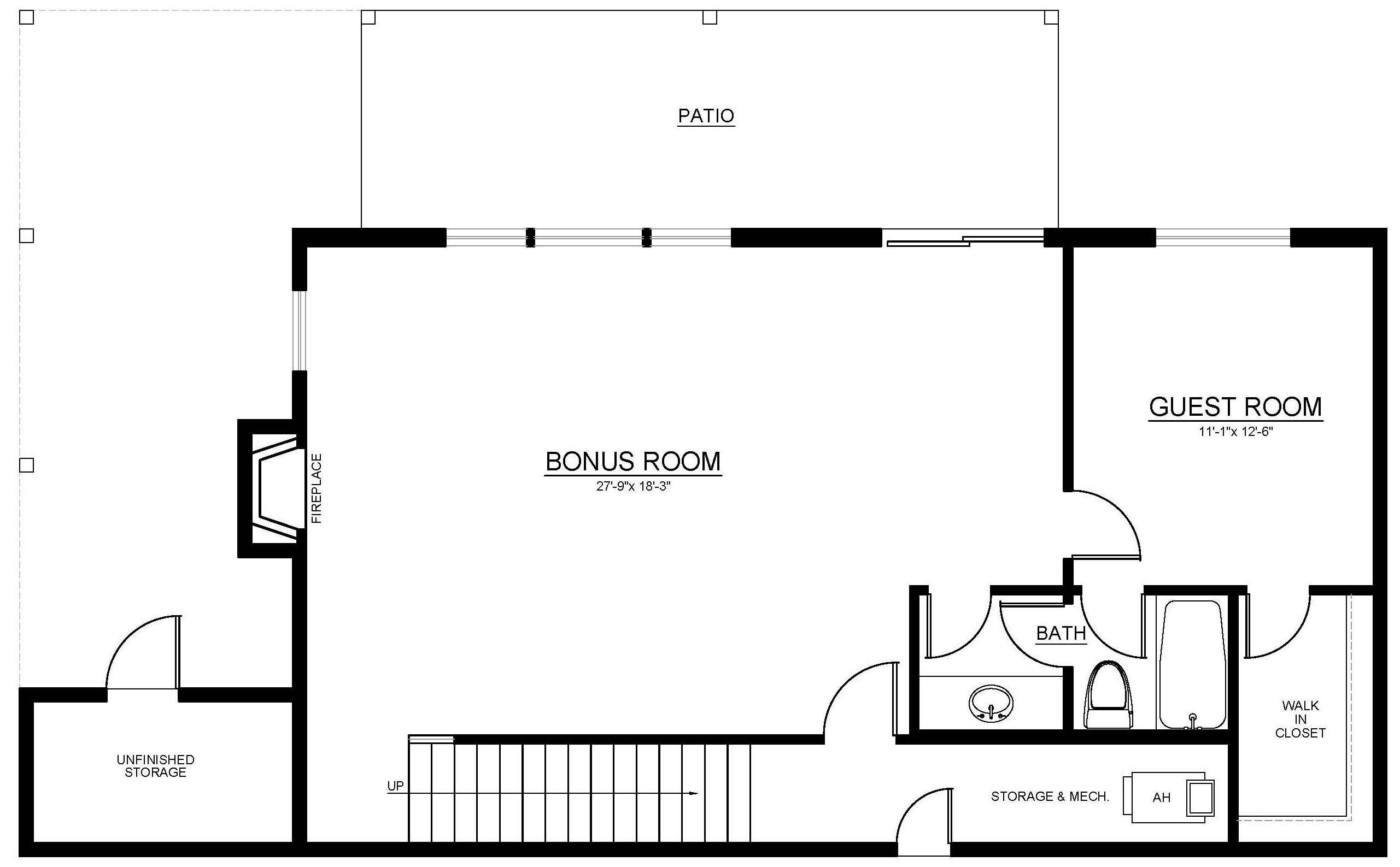
Lot 5 is a spacious three-story home offering 6 bedrooms, 5 bathrooms, a daylight basement, and a versatile bonus room. Thoughtfully designed for comfort and flexibility, the main level features a welcoming den, elegant dining room, butler’s pantry, and an open great room with a cozy fireplace.
Enjoy year-round outdoor living on the covered deck, showcasing peaceful green space views. Dual guest suites, abundant walk-in closets, and eco-friendly construction elevate both convenience and sustainability.
With a bright daylight basement, covered porch, and a roomy 3-car garage, this home offers exceptional space, style, and livability.
Daylight Basement
Bonus Room
Dining Room
Butler’s Pantry
Den
Covered Deck
Eco-Friendly Construction
Walk-In Closets
Green Space Views
▪ 18-time Earth Advantage Award Winner
▪ 9-time Oregon Home Magazine Winner
▪ EEBA - Excellence in Healthy Homes National Champion
▪ EEBA - Zero Energy Ready Homes at Production Scale National Champion
▪ HBA Builder of the Year
▪ Energy Star Market Leader
▪ Department of Energy ZER Housing Innovation Award Winner
▪ Earth Advantage’s Project of the Year












•High e˜ciency variable speed heat pump provides heating and cooling for optimal comfort
•Wifi compatible thermostat
•Air handler and ducts inside conditioned space for health and e˜ciency
• Energy Recovery Ventilator pulls fresh air in and takes stale air out increasing e˜ciency, comfort, and health
•.95 EF Navien tankless hot water heater
•Milgard vinyl insulated windows with lifetime limited manufacturer warranty and special energy and comfort package
•Energy e˜cient insulation package including polar blown in blanket insulation and extensive air sealing
•Raised heel trusses and high-performance framing system
•All homes built solar ready with many Zero Energy Ready Certified homes available
•Garage exhaust fan
•Ask sales agent for detailed list of high-performance features

•Covered front entry/porch (per plan)
•Enhanced front and back yard landscaping with irrigation
•Fully fenced backyard
•Patio or deck (per plan)
•Hardie panel and plank siding and fiber cement trim with an industry leading manufacturer warranty
•Partial exterior decorative stone (per plan)
•Architectural roof with lifetime manufacturer warranty
•Raised 4 panel garage door (per plan)
•Satin Nickel dead bolt - Matte Black optional
•Aggregate driveway and walkway
•Grids on front windows (per plan)
•Rain Screen moisture management system
•Outdoor living options available
•Fully wood wrapped windows
•Decorative panel doors and millwork
•Iron baluster and open rail staircase throughout
•Stair skirt board
•Wood floors in Entry, Kitchen, Butler’s pantry (if applicable), Nook, Dining, Great Room and Powder Bath (if applicable)
•Durable designer carpet and upgraded pad
•Built-ins with tile face gas fireplace (per plan)
•Satin Nickel plumbing fixtures - Matte Black optional
•Satin Nickel decorative light fixtures - Matte Black optional
•Primary walk-in closet
•Co˝ered ceilings (per plan)
•2-step crown moulding in primary bedroom
•2-step crown moulding and wainscoting in dining room
•Contemporary square sheetrock corners
•Wood shelving and recessed lighting throughout
•10’ main floor & 9’ upper floor ceilings (per plan)
•One year builder’s warranty, 2 year extended systems and a 10 year home buyer’s warranty
•Ceiling fan in primary bedroom
•Surround sound pre-wire in family/great room & basement (per plan)
•Pre-plumb for central vac retractable hose system
•Phone jacks conveniently located in kitchen and primary bedroom
•Cable television pre-wired in the family/great room and in all bedrooms
•High-tech structured low voltage wiring
•Leviton smart switch - front porch (additional options available)
•Leviton smart home panel (smart breaker ready)
•3 weather proof electrical outlets (per plan)
•2 exterior faucets
•Automatic wifi-capable belt drive garage door opener and keypad
•Dedicated circuit for freezer in garage
•Hard wired smoke detectors with hush feature and battery backup for safety
•Direct vent gas fireplace in family/great room and basement (per plan)
•Dedicated circuit and outlet in garage for electric vehicle charging
•Irrigation system with rain sensor
•Quartz counter with full height designer backsplash
•Recessed lighting and decorative pendants
•Under cabinet lighting
•Stainless steel four piece appliance package, including convection oven and microwave combination, and vent hood
•Custom beech cabinetry with 48” and 42“ staggered uppers (per plan) and 3-step crown moulding
•Composite undermount sink
•Quality waste disposal
•Stainless high neck faucet with pull down sprayer - Matte Black and Champagne Bronze optional
•Pre-plumbed for refrigerator
•Concealed outlets
•Slab countertops with undermount sinks in all bathrooms
•6’ soaking tub in primary bath
•Tile floors in primary, hall bathrooms and laundry room
•Tile mud set primary bath shower
•Tile-walled shower in main level bathroom (per plan)
•Fiberglass tub/shower in hall bathroom
•Custom cabinetry with 36” lower cabinet vanity in master bath
•Full width wood wrapped vanity mirrors
•Satin Nickel finish faucet fixtures - Matte Black optional
•Elongated bowl water closets
•Tile countertops in utility room
•Decorative powder vanity


