Skip to main content

Cora Clark | Virginia Tech Interior Design Portfolio 2024

Page 1

Virginia Tech Interior Design Portfolio

Spring 2024

coraclark

Hi! My name is Cora Clark and I am a Junior at Virginia Tech pursing a Bachelor of Science in Interior Design. I have a passion for design in many forms. Since I was little, I have imagined and re-imagined the many spaces and places I have visited. As a designer, I strive to create spaces that are efficient and where users will feel comfortable and uplifted. I enjoy working with others, being collaborative on projects, and value hearing feedback and new ideas.

Outside of studio, I work in the School of Design office as an Operations Assistant. I’m proud of the many ways I contribute to the Virginia Tech community through volunteering and leadership. In my spare time, I love to read, be outdoors, as well as cook and bake.

My Clifton Strengths describe me well:

Adaptability, Strategic, Positivity, Futuristic, Connectedness

coragclark21@vt.edu /in/cora-clark 304-767-4991
table of contents
01. Google Co-working 02. Soar 03. Artist Atelier 04. Unbend Boutique Live-Work Space Restorative Space

01 - Google

Fall 2023 - 3rd year|Individual|10 weeks|8,000 sqf

Programs used: Revit, Enscape, Photoshop

The way we work is rapidly changing for a variety of reasons, and offices are switching to hybrid and co working solutions to respond to their employees needs. The office needs to evolve from a place where people are required to go, to a place that draws people in. The goal of this project was to design a new and enticing workplace in downtown Roanoke, VA. The design should address changes in the current workforces attitude towards the workplace. First, decide a problem to address throughout the design, then propose a solution to develop the design.

Concept

A common design problem seen in co-working spaces post Covid-19 is poor space utilization. Office spaces aren’t being fully utilized as people continue working from home. By making the space more inviting and comfortable, creating “neighborhoods” to mimic personal spaces and interaction places, workers will feel more ownership of space and will be more open to returning to the office. Using angled walls, inspired by the Google logo, to create movement and direction throughout the space.

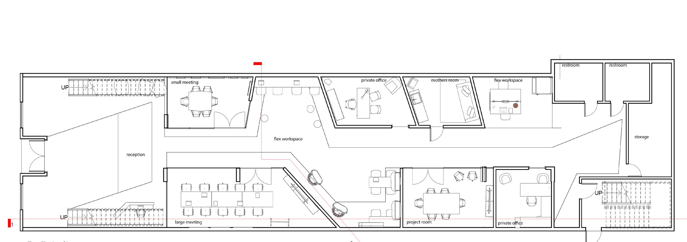
Flex workspaces and conference rooms

*first floor rooms not available to renters (locked) for safety reasons for Google*

*second floor completely available to renters*

Floor Plan Level 1 NTS Floor Plan Level 2 NTS
Work Cafe and upstairs conference rooms Work Cafe
Blue + Green spaces = private space
space Axonometricofwholespace,highlightingtopfloor Axonometrichighlightingbottomfloor
Red + Yellow = co working/collaboration
“neighborhoods”

Physical Model Images

Second Floor layout First Floor layout Entrance Work Cafe and Reception “neighborhoods” of flex workspaces to integrate open space into rows of closed rooms First Floor flex workspaces Small Scenes First Floor flex workspaces Section Cut 2 NTS Section Cut 1 NTS Entryway Work Cafe

02. Soar

Spring 2023 - 2nd year|Individual|7 weeks|3,000 sqf

Programs used: SketchUp, Enscape, Photoshop

The project prompt was to design a retail space with items that are tangible. We were given three floor plans to choose from. Each floor plan was situated on the corner of a street. Within the retail space we were required to have a mezzanine level, fitting rooms, ADA restroom, elevator, office, storage space, seating, and displays that reflect our concept and what our retail store was selling. We needed to have a design feature, either on the ceiling, floors, or walls. We also had to really think about materiality while designing our spaces, and provide a material pallet with our final poster.

Concept

SOAR is an adventure store located in Albuquerque, New Mexico. One of the many things Albuquerque is known for is their hot air balloon festival. Hot air balloons are an outlet for adventure, exploration, and curiosity. Basing SOAR off of the concept of hot air balloons, the retail store has a sense of endless adventure. Keeping curves and roundness throughout the space to represent flow as well as the shape of a hot air balloon. The organization of the store is easy to understand and has a distinct path of travel to it. The store is made of many neutral and natural textures with pops of color throughout the decoration, displays, and materiality.

Perspective showing entirety of retail space Level 1 Floor Plan NTS Mezzanine Level Floor Plan NTS Perspective from on top the mezzanine Perspective from underneath the mezzanine Isometric, highlighting main design feature Cross Section A NTS Cross Section B NTS Material Board

03. Artist Atelier

Fall 2022 - 2nd year|Individual|5 weeks|720 sqf

Programs used: SketchUp, Enscape, Photoshop

Artist Atelier was a project using the fundamentals of Hierarchy, Organization, Proportion, Movement, Progression, Transition, Permeation, Aperture, and Threshold to successfully create an interior environment for the client. Designing an atelier, living space, and a small exhibit area, we were able to imagine our own client; coming up with their profession, background, hobbies, location, etc.

Client Bio:

Miss Ellie May is a 40 year old lamp worker, which is scaled down glass blowing. She lives in Palisade, Colorado. Ellie was born and raised in Houston, Texas and moved to Colorado at 25 to become independent and start her life. Ellie picked up lamp working as a hobby and it has now become her full time job. She works on and sells her amazing creations out of her home. As Miss Ellie has gotten older she has developed arthritis, but that hasn’t stopped her from doing what she loves!

Exhibit Space leading into studio

Concept:

Living in the mountains the client loves nature. She loves to go on hikes and be outdoors. Because of this I used some colors you might see on hiking trails in Colorado, while also keeping it colorful to tie in with her glass creations. Large windows were used to let lots of light in and also reflect off of all the colorful glass in her home. The ceilings are all very tall just like the mountains she loves to hike in Colorado. The design is one floor so she can grow old in her home and not have to worry about stairs or any other challenges. There are minimal doors needed to open and close so she can move through the space easily.

Floor Plan NTS
Living room and studio space Kitchen and living room

Organizational Concept:

The client wanted an open concept while also having some privacy in her living area and total privacy in her bedroom and bathroom. The exhibit leads into the studio space with a t ransparent wall so guests can see into her work space. From the studio you travel into the living room/ kitchen. There is a divider wall that is made out of stained glass, nodding to her work with glass, and love for the mountains. It is somewhat open but also closed to give her a sense of privacy. Next, in the back of the house is her bedroom and bathroom which has total privacy. When entering the house, you enter in through the exhibit space which has a lower ceiling and once you enter the studio space the ceiling gets higher showing that it is now starting to get more private.

Cross Section NTS

04 - Unbend

Spring 2024 - 3rd year|Group| 2 weeks|500 sqf

Programs used: Revit, Enscape, Photoshop

A Place of Restoration and Respite for college students. A space on an existing college campus, maximum 50 square meters. The competition is open to interpretations of the safe space. We could either choose an existing indoor or outdoor venue, or we could propose a temporary installation that can be relocatable or reproducible in other locations. There are no programmatic requirements for this project. We crafted the needs and justified the spatial solutions based on our specific site selection and research.

My contribution:

- created space planning layout

- worked within Revit to create form of the space

- worked with Enscape to render and edited renders in Photoshop

Concept:

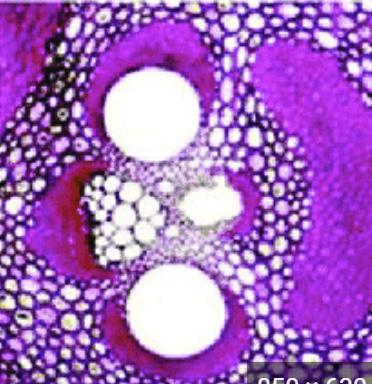
Unbend, a center carefully crafted to offer university students a rejuvenating and inspiring experience. Drawing inspiration from the revitalizing attributes of bamboo, this space is dedicated to elevating mental well-being, fostering creativity, and establishing a comprehensive support system for the University of Southern Florida students. Vascular Bundles of bamboo cells inspired the spacial planning of this space, each “cell” having a different function. Immerse yourself in the serenity of Unbend. In this inviting structure, students can unwind, whether it’s day or night.

Meditation Space

Elevations

Vascular bundles of bamboo Meditation
Lounge Garden Work Area
Relaxing sitting space as well as entrance View from entrance, both sitting spaces to each side and meditation space in back

A comprehensive case study specifically targeted university students, revealing the profound relaxation effects associated with the viewing of bamboo. It was proven that students had lower anxiety scores after 3 minutes of viewing bamboo compared with the control. During students’ visual simulation with the bamboo plant, increased brain activity indicated that there was improved relaxation, attention, and blood pressure significantly decreased.

Bamboo beams to magnify a sense of enclosure in meditation space. Bamboo partitions offer a sense of privacy in this open space. Miniature curved gardens to enhance way finding.
360 ° Video Tour
Sand texture activates acupuncture points, bringing relaxing sensations.
thank you coragclark21@vt.edu 304-767-4991

Turn static files into dynamic content formats.

Create a flipbook