
GOLFHAVEN OG GOLFSVINGET I 5750 RINGE
![]()

GOLFHAVEN OG GOLFSVINGET I 5750 RINGE
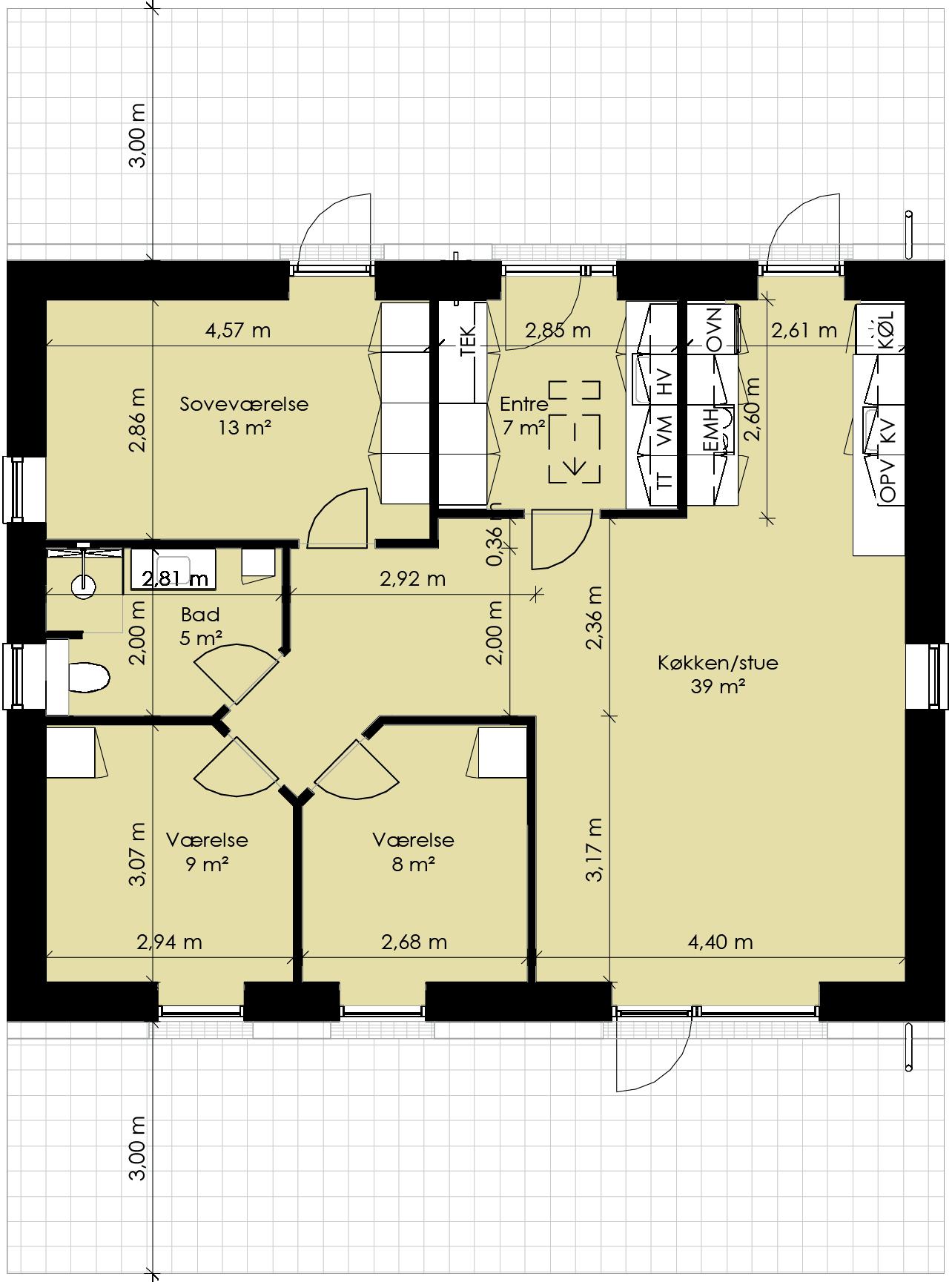
Golfengens består af 3-4 værelses klyngehuse på 78m2 til 98m2.
Boligerne danner rammerne til et godt hjem og opføres i robuste materialer af høj kvalitet. Alle boliger har adgang til udelivet, hvor sommersæsonen kan nydes i fuld drag med spilaftener med familien og grillmiddage med vennerne, eller blot dasedage under solens stråler.
Byggeriet er DGNB-certificeret, hvilket betyder at der er lagt vægt på social-, økonomisk- og miljømæssig bæredygtighed.










Ringe ligger ved motorvejen mellem Odense og Svendborg, og er kendt som en byen til alle, der er glade for at shoppe. Ringe er kendetegnet ved et bredt udbud af butikker og mange aktiviteter året rundt.
Byen byder på utroligt mange parker, haver og andre dejlige naturområder. Du kan tage på skønne vandreture, besøge De Japanske Haver ved landsbyen Vøjstrup, eller tage på Ringe Museum, for at opleve hele byens historie.





