Alstrup Have

En ny bydel i det nordlige Holstebro danner ramme for 42 skønne rækkehuse
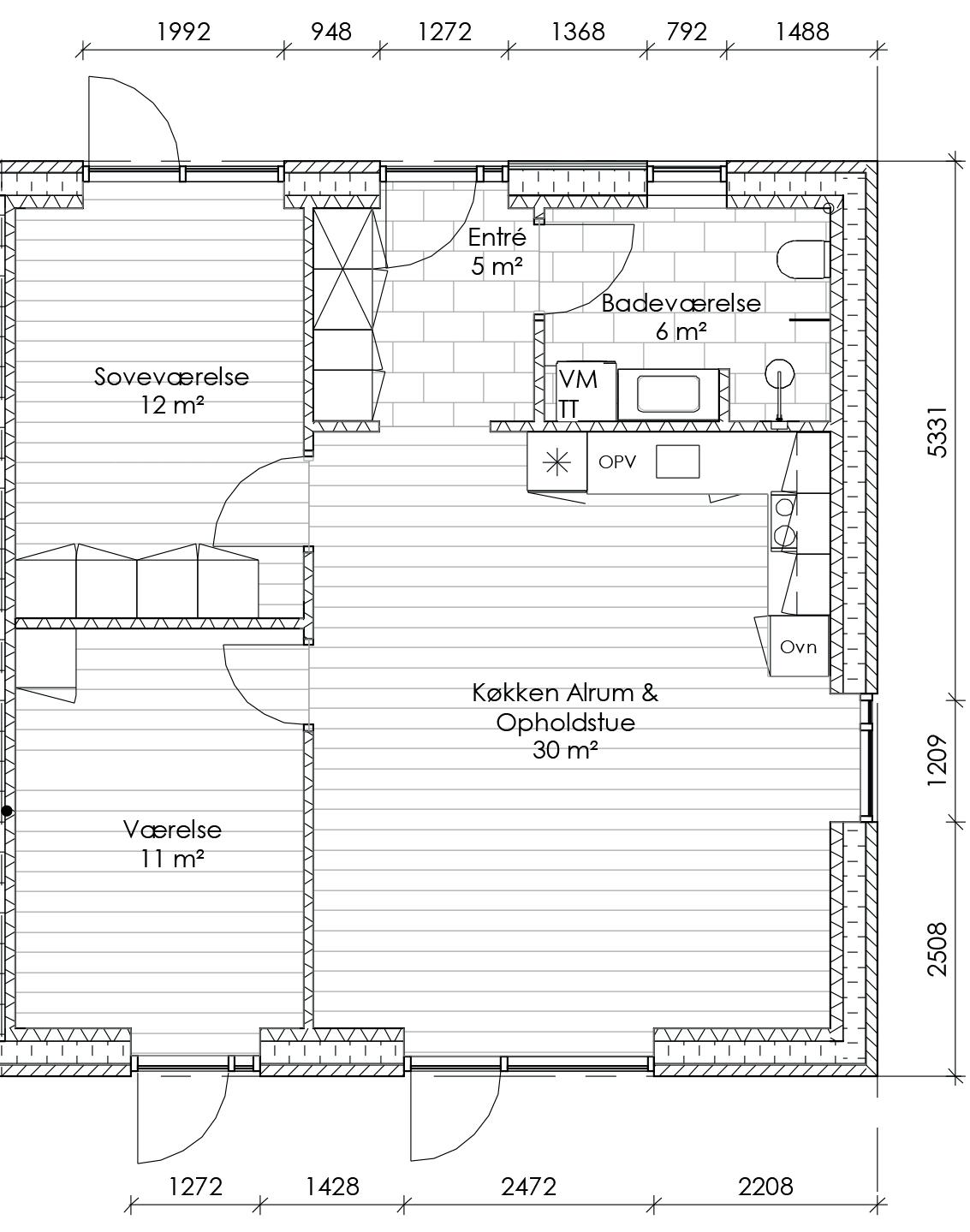
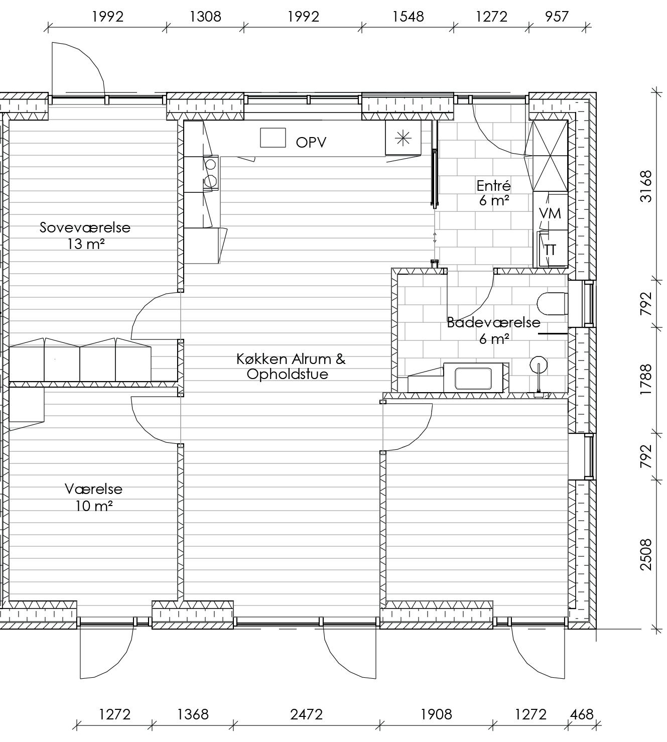
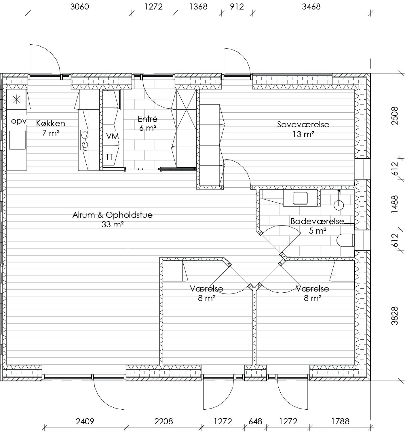
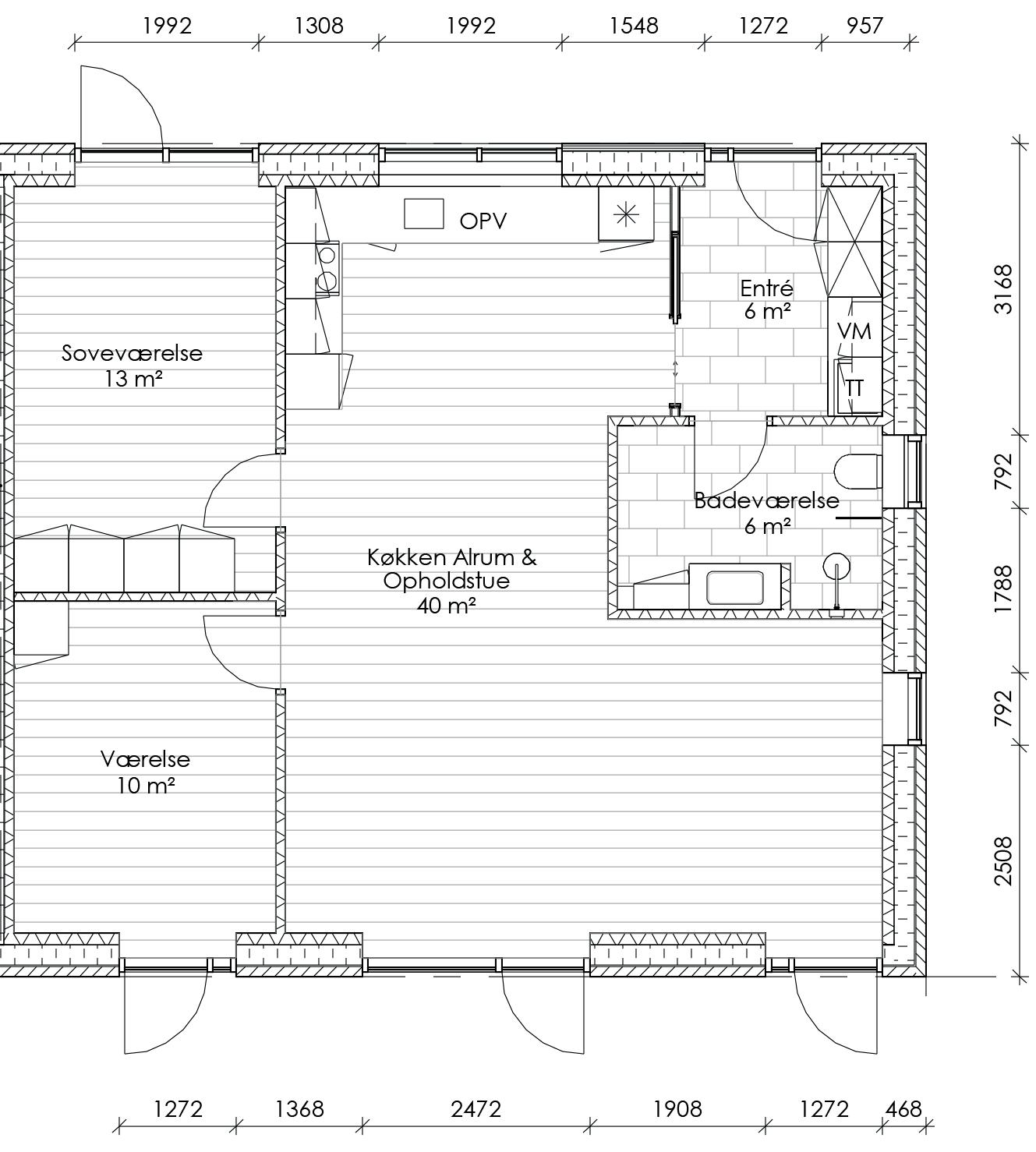
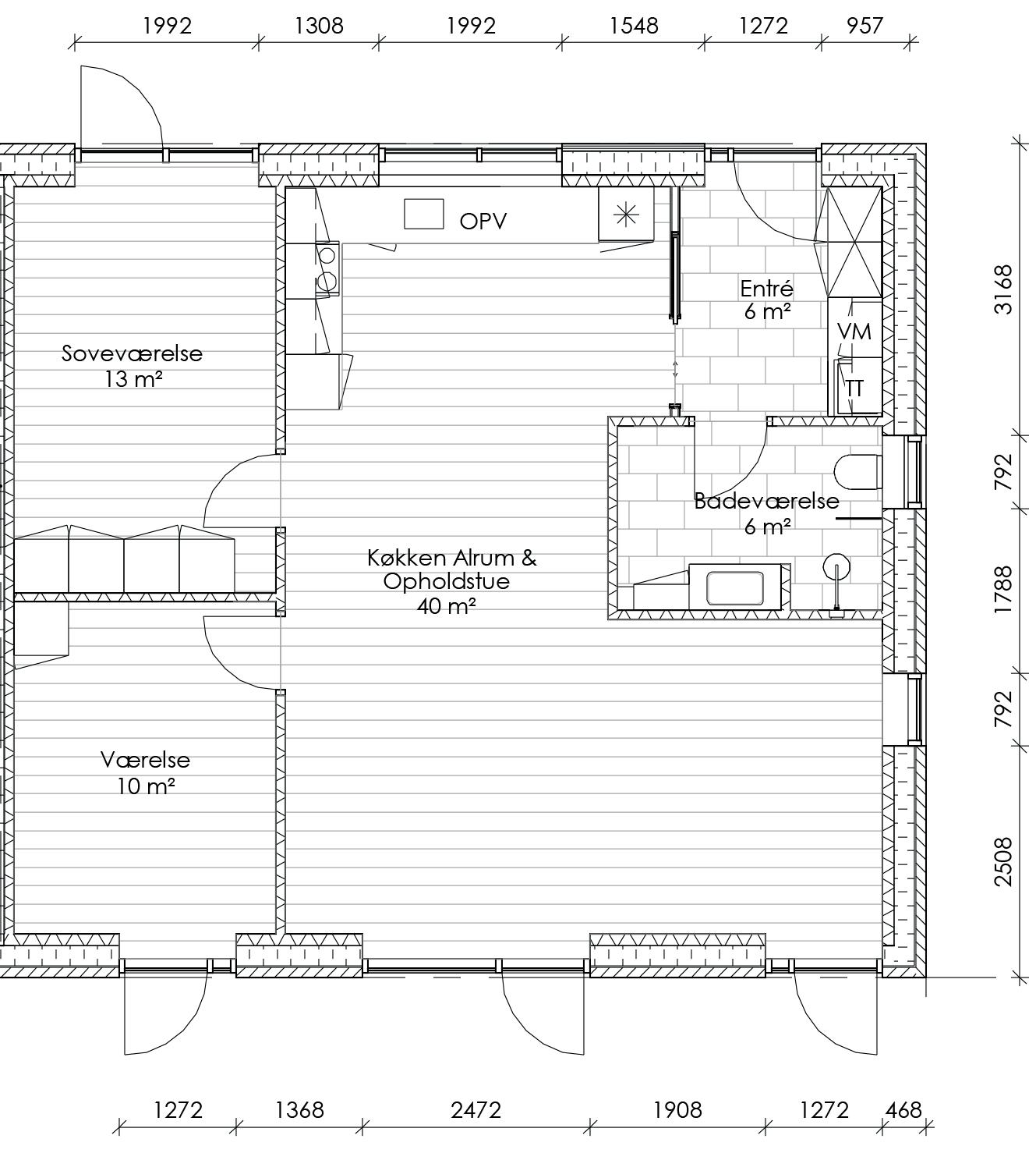
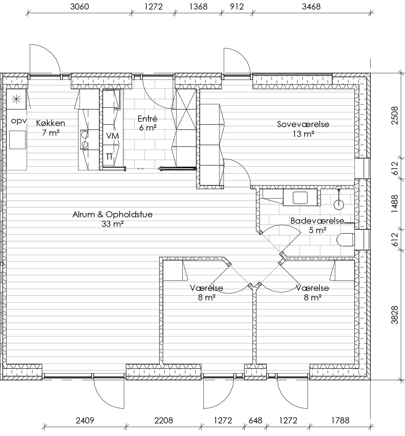
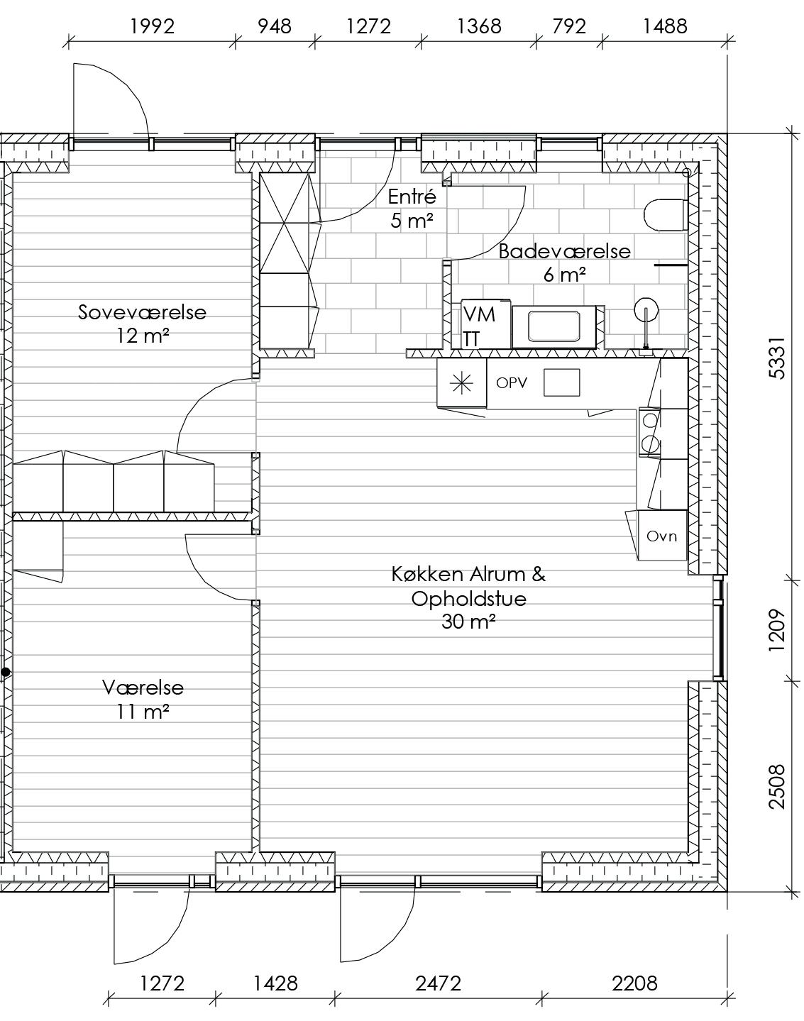
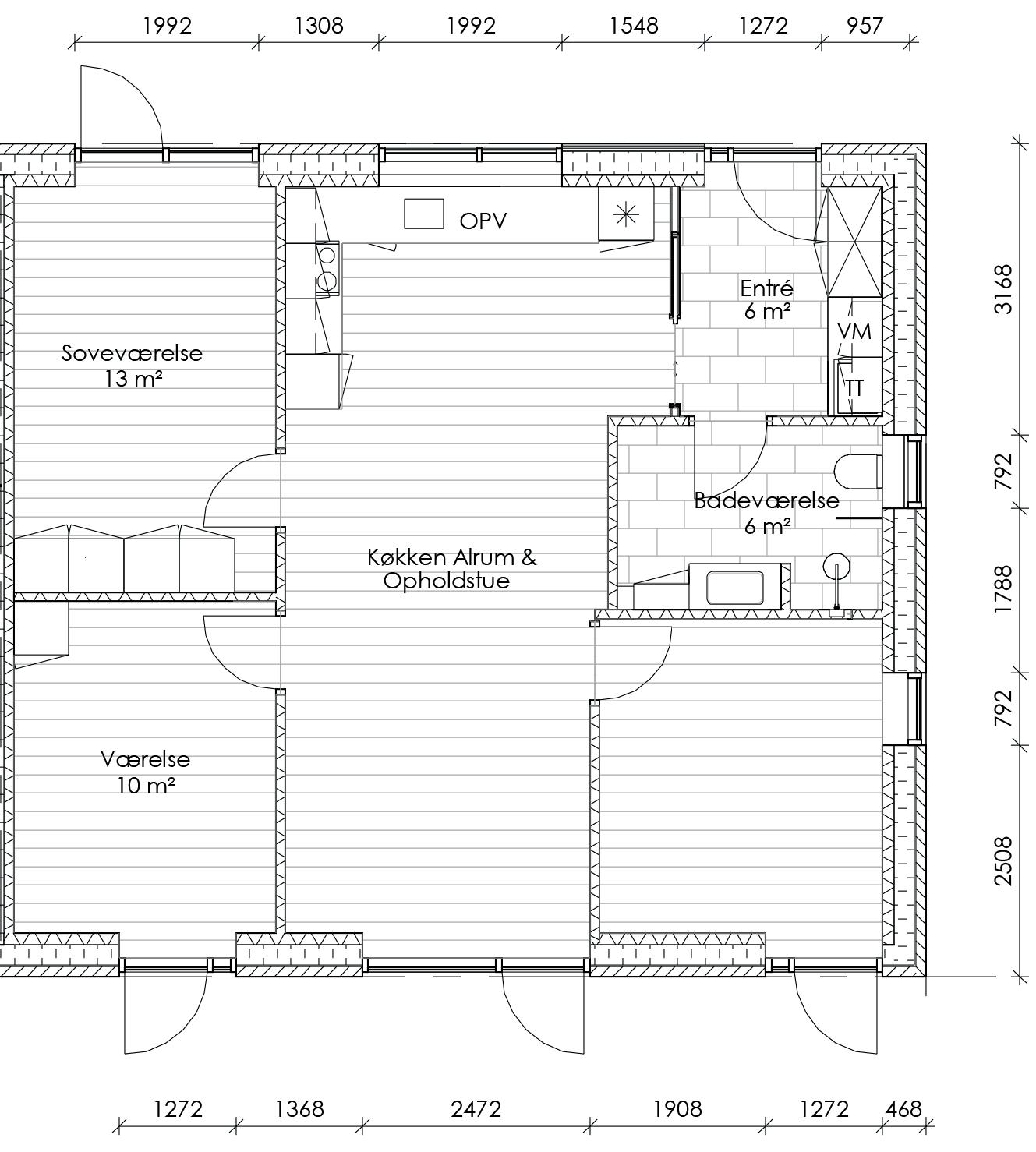
I den nordlige del af skønne Holstebro, byder vi nu velkommen til Alstrup Have - 42 nyopførte rækkehuse i velvalgte materialer med en perfekt beliggenhed. Rækkehusene spænder fra 3 til 5 værelser og er et oplagt match til familier, som i Altstrup Have vil få kort afstand til skole, indkøb og transport.
VELKOMMEN TIL
Boligerne ved Alstrup Have bliver opført i kvalitetsmaterialer! Husene bliver bl.a. opført med alle hvidevarer installeret og Genvex anlæg. Der bliver loft til kip i stue/køkken og en stor terrasse udenfor, hvor der er plads til at nyde udelivet.
Alle boliger har eget skur og carport, og der er desuden en fast vicevært er tilknyttet boligerne!
Der bliver lagt fiber ind i boligerne, så der er mulighed for hurtigt internet. Al forbrug afregnes direkte med forsyningsværkerne. Fjernvarme og vand leveres af Vestforsyning.