CA REG 260123 WEB

Page 1


Debate over affordability of 388-unit project

WESTBOROUGH – Post Road Residen-

tial — a Connecticut-based developer — is looking to construct 388 rental units on Route 9 in Westborough. Parcels at 171 Milk Street and 222 Turnpike Road are the targets of development.

The town’s zoning guidelines stipulate that new developments over 10 units must include affordable housing. There are three tiers to these types of units: affordable, priced for households that make between 50 percent and 80 percent of the Area Median Income (AMI); moderate, for households within 120 percent of the AMI; and market value, with no price restrictions.

Affordability | 5

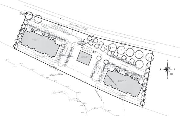
60-unit project proposed for Southborough’s MBTA district

SOUTHBOROUGH – The Southborough Planning Board got a peek at some “very” preliminary plans for the first proposed project within the town’s MBTA Zoning District.

SJP Investments, a family-owned real estate development company, is looking to build two three-story buildings on a 4-acre parcel on Southville Road – right next door to a CrossFit and less than a mile from the train station. Each building would include 30 rental units, bringing the total to 60. There are 30 proposed

Running for RISE

Shrewsbury

mother to run Boston Marathon to support local program

SHREWSBURY

SHREWSBURY – When Emily Anderson heard of a setback, she couldn’t watch from the sidelines.

In 2025, the RISE (Reaching Independence through Supported Employment) Program, which was created to provide 18- to 22-year-old Shrewsbury special education students with in-district precareer support, lost a $17,000 grant from YouthWorks which the district secured through the Blackstone Valley Hub.

The RISE students, who run Maple & Main in Shrewsbury Center, spend their days learning skills that help them live more independently — cooking, making products, organizing, and more. The lost grant funding had been designated

to pay students their wages for overtime hours and off-site special-event work.

The students’ compensation was in jeopardy, and the RISE Program’s budget was strained.

As the mother of Andie — a 9-yearold with Down syndrome — Anderson leaped into action.

“I wouldn’t want my daughter to work without getting paid. Her work is just as important as anyone else’s,” Anderson told the Community Advocate. “To me, not paying the RISE Program students — that can’t happen. We simply can’t run out of funds.”

To help, Anderson is looking to raise $17,000 by running the 130th Boston Marathon on April 20. When she starts the race in Hopkinton, she’ll officially

Car intentionally crashed into Shrewsbury Police Station front entrance Shrewsbury approves 300-unit 40B project on Main Street Madelyn Glynn is the engine for Algonquin girls’ hockey

Stay up to date with all the news!

Emily Anderson is supporting Shrewsbury students by running the Boston Marathon. (Photo/Evan Walsh)

COMMUNITY NEWS

Car intentionally crashed into Shrewsbury Police Station

SHREWSBURY – A man driving a black 2022 BMW SUV plowed into the front of the Shrewsbury Police Station on Jan. 19 at around 2:02 p.m., damaging the $42-million building that officially opened in 2023.

Robert S. McCluskey, 58, of Shrewsbury, was arrested after the incident and taken to the hospital with injuries. He is a Shrewsbury resident who the Shrewsbury Police Department last interacted with in 2019.

McCluskey faces six charges, including assault and battery with a dangerous weapon, three counts of assault with a dangerous weapon, one count of malicious destruction of property, and one count of reckless operation of a motor vehicle. He was arraigned at Westborough District Court on Jan. 20.

According to the statement of facts, McCluskey indicated that he was going to conduct a “suicide by cop.” Earlier that day, McCluskey reportedly made statements including “Watch the News” and “I’m Going To End This.”

After the incident, he reportedly stated, “I am sorry. Help me. I am so sorry.” The Shrewsbury Police Department reported an “odor of alcoholic beverage” emanating from his breath.

No officers, staff, or citizens were injured as a result of this incident, according to the Shrewsbury Police Department. Three dispatchers were close to the collision, which broke through two pylons, two sets of doors, and the dispatch area.

Considering the extent of the damage, no officer or citizen injuries was the best-case scenario. Just 30 minutes prior to the incident, the Shrews-

bury Police Department held a training session; a large group of officers had gathered in the room adjacent to where the crash happened.

“We’re very fortunate. Our police lobby, we have a lot of activity. Trainings are going on, two conference rooms. The vehicle went through the front door, into the lobby, and into dispatch,” said Shrewsbury Police Chief Kevin Anderson.

It was an isolated incident, and there is no danger to the community, said Anderson. The department remains fully operational.

Shrewsbury will look to start the clean-up process.

“A significant amount of clean-up has to happen,” Town Manager Kevin Mizikar said. “It did penetrate the inside wall of the main window where residents come in and interact with dispatch. It will take at least months for us to recover from this.”

MARLBOROUGH HOSPITAL IS NOW A CAMPUS OF UMASS MEMORIAL MEDICAL CENTER

For more than 135 years, Marlborough Hospital has been relentless in providing its community with highly personalized, clinically excellent care. As of January 1, 2026, Marlborough Hospital is a campus of UMass Memorial Medical Center, and that relentless commitment now provides greater access to community-based specialty care, cutting-edge technologies, and a higher level of expert care when needed. Provided by the people you know and trust.

Popular açaí bowl spot coming to Westborough

WESTBOROUGH – Westborough will be the latest town to get a Playa Bowls.

With over 20 locations in the state, franchisee Ben Arthur is working on opening a new location in Westborough at Speedway Plaza, located at 290 Turnpike Road.

The popular eatery is known for its açaí, pitaya, coconut bowls, and smoothies –as well as its surfing aesthetic.

Arthur is getting ready to renovate a former spa. Construction will take six to nine weeks, and he is hoping for a late-March or early-April opening.

“The big attraction for Playa is that it’s more of a

healthier food option for folks, and that’s a big thing for us,” he said, noting the lack of similar establishments in Westborough. “We want to create more opportunities for people to eat healthy and eat really good at a really good price point. It’s got a phenomenal following across the country where folks are just really in love with it.”

The Community Advocate’s Policy on Letters to the Editor Letters must be signed with a name, address and telephone number for verification (only name and town will be printed). Letters should be sent to news@communityadvocate.com or mailed to Managing Editor c/o Community Advocate, 32 South St. Westborough MA 01581. The editor reserves the right to reject letters on the basis of length, libelous content, suitability and space constraints. Multiple letters from the same person will not be accepted within a 30-day period. “Form letter” submissions, in which the content of one letter is essentially duplicated, will not be accepted. Letters should be 350 words or less. Deadline is 12 p.m. Friday the week before publication. Opinions expressed in the letters to the editor do not necessarily represent the opinion of the Community Advocate management or its advertisers.

MANAGING EDITOR: Evan Walsh

ASSISTANT EDITOR: Leighah Beausoleil

PROJECT EDITOR: Brett Peruzzi

SOCIAL MEDIA DIRECTOR/REPORTER: Shealagh Sullivan

ADVERTISING DEPARTMENT:

Angela Gilbert | 508-366-5500 ext. 20

Barbara Clifford | 508.769.6259

Cynthia Merchant | 508.736.4332

Diane Sabatini | 508.366.5500

Mary Ellen Cyganiewicz | 508.366.5500 ext. 17

LEGAL & CLASSIFIED ADVERTISING:

Cynthia Merchant | 508.736.4332

GRAPHIC DESIGNERS:

Jess Walters

Lynne Fountain

Michelina Portas

OFFICE MANAGER: Tracy Nickerson

BILLING INQUIRIES: Bookkeeping Dept. | ext. 19

The Community Advocate is a weekly periodical, (U.S.P.S. # 014-423), published by Bagdon Advertising, Inc., with offices located at 32 South Street, Westborough, MA 01581. Periodicals postage is paid at Shrewsbury, MA 01546 and additional mailing offices. Postmaster: Please send address changes to: Community Advocate, 32 South Street, Westborough, MA 01581. Publication date is Friday. Deadline for R.O.P. advertising, local community news and classified advertising is Friday, noon, seven days prior to publication. Not liable for typographical errors, however, we will reprint that portion of the ad wherein error occurred if notified in writing within three working days of the publication date. All material included is the property of The Community Advocate and may include material produced under copyright or a syndicated ad service. Permission must be obtained in writing before reproducing any material from any issue of the Community Advocate.

The business will have space for just over 20 individuals.

“We’re really excited to get entrenched with the community and provide a really high-quality service,” Arthur added. “Our team’s goal is to have five-star reviews across the board and just really wow people with a really high-quality meal, a really nice ambiance, and a really pleasurable experience with eating healthier. So excited to be part of it.”

A Northborough street has been the topic of debate. Crawford Street — a cut-through between the Southwest Cutoff area and the I-290 exit onto Church Street — has practically been a racetrack, residents say. In an effort to slow people down, the Northborough Select Board voted to lower the speed limit from 30 mph to 25 mph.

“When I drive down Crawford and I see somebody running or walking, I say a little prayer for them,” Select Board member Michael Tietjen said.

CHILL FILTRATION

Chill filtration is a finishing step in whiskeymaking that cools the spirit to near freezing and filters it to remove fatty acids, proteins, and esters. These compounds can clump together and cause cloudiness when the whiskey gets cold or is diluted with water. Most bottles under about 46 % ABV undergo this process to stay clear and visually appealing, especially when poured over ice or chilled. The upside is a polished, consistent appearance with no haze, making it ideal for mass-market whiskies. However, some purists argue that these same compounds contribute flavor, texture, and mouthfeel, giving non-chill-filtered whiskies a richer, more satisfying feel. Many high-end and cask-strength whiskies skip chill filtration, leaving those oils intact for a fuller sensory experience.

Did you know that whiskey is an ideal liquor for tailgating? It can be used in hot drinks during football season, and iced drinks when you’re tailgating for baseball. People also love whiskey because of the wonderful range of flavors. When it comes to packing your tailgating essentials, make sure to also grab a bottle of whiskey at JULIO’S LIQUORS

We carry many hard-to-find items from single malt scotches to high-end vodkas and gins. Please call 508-366-1942 for more information, or visit us at 140 Turnpike Rd., Rt. 9 East

P.S. Those who prefer a bolder, more textured whiskey and don’t mind a bit of haze might enjoy non-chill-filtered whiskey more than chill-filtered whiskey.

MON-SAT 9am-9pm • SUN 10am-7pm

pm after Howie Carr! You can also pick and choose episodes on Spotify or wherever you get your podcasts. itstheliquortalking.com

Ryan Maloney, owner

Dear Editor, Nice article about Westboro Airport! My dad, Richard Stone, was the last operator of Westboro (no -ugh) Airport, where I learned to fly. My last flight out of Westboro was September 2, 1977. Dad had leased the airport from Astra Pharmaceutical for several years until they were ready to build. Westborough Municipal Airport would have entailed an east-west runway crossing Otis Street with Astra development retained. Town voters had a chance to develop

this project for $150,000 (5 percent of the total cost) with the state picking up 5 percent and the feds 90 percent. False fears included a jetport and reports from Worcester Telegram that vibrations from aircraft would affect production in Astra’s facility. I feel the outcome was short-sighted, as this irreplaceable and unique asset would have been a huge economic engine for the area. Instead, today we see warehouses with heavy truck traffic.

Doug Stone, Northborough

Dear Editor, The number-one characteristic that sets Marlborough apart from many surrounding communities is our diversity. A vibrant Brazilian community is well-established, the Central Americans are well on their way to building a complete presence here, and morerecently-arrived Haitians are on our streets and in our businesses — all enriching Marlborough and the fabric of our city.

Now a federal agency has sent in armed outsiders into our city, arresting our neighbors and gen-

erating fear among OUR community, many of whom came here to be free of the fear they experienced in their home countries. They are attacking the very thing that makes us special. Marlborough will suffer until these hate enforcers leave. We are not safe and the threat is the U.S. government.

While our city police force, whose sole purpose is to keep us safe, is powerless to protect us from ICE, I would love to see our police follow these armed outside enforcers around and observe that ALL the residents of Marlbor -

No more winter worries

Residents of New Horizons retirement community in Marlborough never have to be concerned with cleaning snow off their cars, shoveling walkways, or braving the New England winter.

• Enjoy a variety of activities

• Eat delicious home-cooked meals

• Exercise in the on-site fitness club

Swim in our indoor 84-degree lap pool

Immediate availability, including three home-cooked meals daily, starting at $3,400/ month for one resident.

ough are being treated with the basic respect every human being deserves, and record and report when ICE fails to uphold the fundamental standards of law enforcement behavior. At least they could bear witness to this illegal and immoral action of the United States government in the city they are now unable to protect.

I am disappointed that Mayor Dumais is not commenting. This is the perfect opportunity to stand up and show some leadership in support of the city.

Bruce Ishikawa and Maria Rodriguez, Marlborough

To the Residents of Northborough,

At the Jan. 12 Select Board meeting, a presentation was made regarding the issue of contaminated soil on the site of the new fire station. Information from Fire Station Building Committee meetings, along with communications from and reports of professionals tasked with assessing the levels of contaminated soil on the site, make it clear that prior to the Fall 2024 Special Town Meeting, town employees and elected officials knew or should have known that the site had “widespread residual contamination”. It also was known, or should have been known, that the budget for the building project included a $300K line item for the removal of contaminated soil. None of that information was communicated to residents at the town meeting. Instead, residents were told the contamination was “completely mitigated, cleaned and tested, zero detections.” If residents had been told at the special town meeting that contaminated soil was still on site and needed to be removed, would the outcome of the vote have remained the same? We will never know. But the fact remains that the town was not given all pertinent information before being asked to vote. And now, 12 months later, we’ve learned of the price we have paid for it: Approximately $1.3 million to remove 174 truckloads of contaminated soil. And because we’ve paid with borrowed money, that $1.3 million will likely balloon to $3 million, from interest, by the time we’ve paid it back in 30 years. Ironically, during the same Select Board meeting, the superintendent of schools and our town finance director indicated that their FY2027 budgets being prepared for town meeting in April are currently projected to increase by $2 million and $1 million respectively. How much easier would it be for Northborough residents to entertain the possibility of a $3 million tax increase to cover the budget shortfalls if we weren’t already on the hook to pay $3 million for soil remediation we never voted to approve?

Aaron Hutchins, Northborough

Debate over affordability of 388-unit project

The AMI for Worcester County in fiscal 2025 was $122,200, according to the Department of Housing and Urban Development (HUD).

The bylaw requires developments to have at least 15 percent “affordable” units, with 5 percent at the “moderate” tier. However, developers looking to deviate from this requirement have an opportunity to make a payment – or “buy-down” –instead of designating a unit as “affordable.”

In Westborough, that perunit payment would be between $170,000 and $180,000.

The developer’s proposal Post Road Residential’s current proposal calls for there to be 10 percent “affordable” units at 80 percent AMI, and 5 percent “moderate” units at 120 percent AMI — with a $50,000 buy-down for the forgone units. With this plan, the total buy-down would come to

a total of about $1 million.

Lead developer Tom Montelli argued before the Planning Board that the commissioned study behind the zoning bylaw is “flawed” and does not account for current economic conditions, such as higher construction costs.

Affordable Housing Trust Chair Allen Edinberg said, “We understand their viewpoint on the study. We’re really not qualified to say where the study was right or wrong or if the conditions have changed or the application of the study is off, but we’re also very much aware there are many factors impacting the cost of residential construction right now.”

Edinberg noted the Planning Board – which constantly evaluates market conditions – could revisit the study and update the bylaw: “I’m very confident that [the Planning Board is] on top of it,” he said.

The buy-down addressed in the bylaw only looks at “afford-

project proposed for Southborough’s MBTA district

one-bedroom units and 30 two-bedroom units.

As required by the MBTA bylaw for developments with more than five dwelling units, 10 percent of the units would be affordable, meant for households who make 80 percent or lower of the Area Median Income.

The developer has proposed a number of on-site amenities, including a fitness center, community room, resident cafe, work-from-home space, conference room, patio, grilling station, and resident courtyard. A trail loop around the property is also proposed.

Some of those amenities would be situated in the proposed clubhouse — but that might be an issue. The Planning Board noted that parking lots are the only accessories permitted by-right by the town’s bylaws.

Additionally, there was concern about the proposed development’s floor-to-area ratio. Southborough limits total floor area to 30 percent of the lot size, with up to 50 percent allowed by special permit.

A total of 116 parking spaces are planned for the develop -

able” units that are brought to market-level rents. Edinberg said he believes that it would be reasonable to consider a smaller buy-down when looking at units that have gone from “affordable” to “moderate,” or from “moderate” to “market.”

But Edinberg also said it’s wise to ensure any mitigation buy-down the developer pays relative to affordable housing is “considered separately and distinctly from other mitigation and other negotiations that they have. … We wouldn’t want to lose affordable housing units and have that money go somewhere else in town.”

Housing Trust’s final recommendation

The Affordable Housing Trust submitted a final recommendation for the Planning Board to consider, which calls for 10 percent “affordable” and 10 percent “moderate” units, with a total buydown within the range of $950,000 to $1,862,490.

ment, with 55 in front of each building and six in front of the clubhouse. SJP Investments will be seeking a waiver to allow parking in front of the development. Due to the presence of the Sudbury River in the rear, parking in the back would require the development to sit close to the road.

The septic systems (one per building) would be underneath the parking. The developer says landscaping would provide a visual buffer from the roadway. According to the bylaws, developments are capped at “2 1/2 stories or 35 feet.” In order to stay within the height requirement, both buildings would have flat roofs.

In the current market, the maximum rents for moderateincome rental units for this type of building are “nearly identical” to the market, Edinberg explained to the Community Advocate.

With the decision now being “in the Planning Board’s hands,” the Affordable Housing Trust hopes the Planning Board will consider its recommendation, but understands that it’s

considering a range of issues associated with the project. The Planning Board will also determine which units will have a “local preference” attached to them, which gives higher priority on the unit waitlist for residents, those who work in town, veterans, and people with disabilities. Edinberg said the Affordable Housing Trust can help maintain that list.

SJP’s Cohen Babcock noted the roof could be altered slightly to help it blend with the characteristics of the surrounding residential neighborhood, but it would still need to be “semi-flat.”

SPJ also noted there is no flexibility to go lower than 60 units, so bringing the buildings down to two stories would not be feasible, especially with the size of the parcel.

“The only way you can accomplish getting affordable housing is with density,” SPJ’s James Venincasa said. “It’s truly the only way, especially in Southborough where the land is not cheap.”

Shrewsbury mother to run Boston Marathon for town’s RISE Program

become the first marathoner running for the RISE Program — an accomplishment she takes great pride in.

“Hopefully I can pass the torch. Maybe by me running, I can inspire someone else,” she said.

Anderson was an off-and-on runner until her senior year of college, when she started train-

ing alongside her friend for a half-marathon. Eventually, she started to get serious, completing the Boston Marathon six times — not including the two times she’s run it unofficially — for another cause close to her heart.

Anderson has raised over $60,000 for Massachusetts General Hospital. The Down syndrome program at Mass

General provides clinical care, education, and cutting-edge research so that individuals with Down syndrome can reach their full potential. Through difficult times, Anderson always felt supported by hospital staff.

“The Down syndrome program did, and still does, so much for our family — not only taking care of Andie physically, but me and my husband’s emotional well-being,” she said. “They were there for us at a time that was really, really challenging and hard to navigate. I wanted to give back to them.”

And her experience with Andie has given Anderson a whole new appreciation for those with special needs. It’s something she loves seeing at Maple & Main — and something that, through her donations, she hopes she can help continue.

“The students are learning

time. I’ve seen that with my own daughter,” she said. “Andie has accomplished everything she has set her mind to. Has it taken her a little longer? Yes –but she’s done it. Having a child with a disability has opened up my eyes and made me so aware of the need to support individuals who need a little extra help.”

“Emily’s dedication to meeting the needs of our RISE students in the Shrewsbury Public

A Life Based on Trust

Schools is unparalleled, as she consistently devotes a significant amount of time and energy to support students, staff, families, and our community. Emily is spending countless hours training for the 2026 Boston Marathon, while actively fundraising, reaching out to those near and far, with the goal of providing wages for our 18-22 year old students who are employed at Maple & Main,” said Shrewsbury Public Schools Assistant Superintendent for Community Partnerships and Well-Being Jane Lizotte. She added: “Emily’s journey will undoubtedly result in continued life learning opportunities for our students, and we are very, very grateful for her commitment to this effort.”

DONATE HERE!

I have learned to be content whatever the circumstances. I know what it is to need, and I know what it is to have plenty. Philippians 4:11-12

As a follower of Christ you have powers at your disposal that enable you to tackle life positively and constructively. Remember that dynamic discipleship is based on faith that finds expression in deeds, not feelings. Focus on the fact that God loves you, even though you might be experiencing the darkest time of your life.

Acknowledge the fact that He will never leave you, even though you may not be able to feel His presence right now. If your life is based on your faith in Christ, your confidence will increase and you will overcome every feeling of inferiority. There will be no situation that you will not be able to handle through Christ’s wisdom and power.

Terkanian,

Grafton 2026-27 school calendar announced

GRAFTON – Grafton’s 2026-27 academic calendar is taking shape. Here’s what to know. Based on the calendar, school will start on Aug. 26, which is a Wednesday. There will be no school on Sept. 4, the Friday before Labor Day,

and Sept. 23 will be a half-day for students – and a Professional Development Day for staff.

Nov. 3 (Election Day) is reserved for parent-teacher conferences. The other Professional Development half-days include Oct. 21, Jan. 27, March 24, and May 19. The last day of school will be June 11, assum-

• Spiritual Care

ing there are no snow days.

Like Shrewsbury, Grafton does not recognize religious holidays unless they are federal ones. The practice has become a topic of debate in surrounding districts like Westborough and Northborough, where the calendar debate is among the biggest topics of controversy all year.

older adults often develop delirium, and there can be some confusion as to what delirium is. Delirium is a state of sudden confusion, and it is considered a medical emergency, similar to chest pain. The disorder usually occurs fast, often within hours or a few days. It can often be traced to one or more factors. They may include a medical problem, such as a severe or prolonged illness, or an imbalance in the body. The disorder also may be caused by certain medicines, alcohol or drug use, infection, or surgery. Symptoms such as trouble focusing and being easily distracted are also common. They tend to be worse at night and in unfamiliar settings.

Seniors on the move

If a relative, friend or someone in your care shows symptoms of delirium, talk to the person’s health care provider. Your input about symptoms, typical thinking and usual abilities will be important for a diagnosis. It also can help the provider find the cause of the disorder.  If a loved one requires care, call NOTRE DAME LONG TERM CARE CENTER at (508) 852-3011 You can also schedule a tour of our facilities at 559 Plantation Street.

P.S. Symptoms of delirium are sometimes mistaken for symptoms of dementia.

MariAnn Paladino, Dir. of Admissions, Notre Dame Health Care Center, Inc. Long Term Care Center 559 Plantation Street, Worcester, MA 508.852.3011

Start planning now. Residents at New Horizons at Marlborough enjoy worry-free retirement living, never having to be concerned with cleaning snow off their cars, shoveling walkways, or braving the New England winter. Instead, they savor wine and cheese by the fire, splash into “Watercise” in the 84-degree lap swimming pool, dine on sumptuous meals, and more. Immediate availability, including three home-cooked meals daily, starting at $3,400/month for one resident.

DELIRIUM
MariAnn

HOMES MORE

Jennifer Juliano, REALTOR®

Keller Williams Realty

Boston-MetroWest

Member: KW Luxury Homes

Mobile: (508) 294-0778

I’ll Make It Happen. You’ll Make It Home.

Off-Market Sales: Smart Power Move or Expensive Mistake?

Selling a house off-market, or a “private sale”, means the property is sold without being listed on the Multiple Listing Service (MLS). Instead, it is marketed to a limited audience, such as a small group of buyers, agents, investors, or occasionally a specific known buyer. While this strategy can work in certain situations, it comes with definite trade-offs. Understanding both the advantages and drawbacks helps sellers decide whether selling off-market truly aligns with their goals, especially in a shifting or buyer-leaning market.

Real estate agents are often involved in off-market transactions. Sometimes one agent represents the seller, sometimes a buyer’s agent approaches a homeowner, and sometimes both. This is not the same as a full “for sale by owner” situation. Professional guidance, market knowledge, and proper representation still matter.

One commonly cited advantage of selling off-market is privacy. There are no public listings, open houses, or visible price histories. This appeals to sellers with personal circumstances, tenants, health concerns, high-profile careers, tragic events at the property, or simply discretion. However, privacy is temporary. Once a deed is recorded, the sale price and the names of both the seller and buyer become public record. Another perceived benefit is reduced disruption.

Municipal healthcare costs loom as officials look to fiscal 2027 budget

NORTHBOROUGH – On average, municipalities predict an approximately 3 percent yearto-year increase in health insurance costs. However, with rising medical and pharmaceutical costs, Northborough’s municipal health insurance has become a hidden problem.

Currently, the town spends about $9 million annually on health insurance, covering 320 employees across municipal departments and the schools. According to Borislow Insurance — the town’s new insurance broker — Northborough purchases its health insurance alongside Southborough, as both share the

same school system.

Across Northborough, Southborough, and the school district, 900 people utilize the health insurance plan.

A ‘surprise’ rise in health care costs

In February 2025, town officials were expecting the typical 3 percent increase for its annual health insurance renewal for fiscal year 2026. They had heard rumors of a higher increase, Northborough Town Administrator Stephanie Bacon said, but didn’t foresee anything higher than a 12 percent increase.

That month, Northborough’s healthcare proposal came in at a whopping 24.9 percent increase. After negotiations, the town

accepted a proposal that had a 17.9 percent rise over the previous year’s healthcare cost.

As the town began to look toward fiscal year 2027, Bacon said the town switched insurance brokers in hopes of striking a deal that favored the town.

According to Borislow Insurance, the town should expect to first see a 16 percent increase in its fiscal year 2027 health insurance proposal, but the firm added that, after negotiations, it expects the final increase to hover around 12 percent. Its predictions factor in rising medical and pharmaceutical costs, the town’s history, and current premiums.

“A lot of it is dependent on our relationship with Harvard

Fewer showings mean sellers do not have to keep the house “show ready” or leave for showings. This can be appealing for homeowners who are homebound due to illness or other sensitive situations. Some sellers believe that avoiding the MLS prevents negative perceptions tied to “days on market.” In past frenzied markets, houses that sat “longer” were sometimes viewed as overpriced. Today, however, longer market times compared to recent years are often normal and expected, not a sign of weakness.

The biggest drawback of selling off-market is reduced exposure. The MLS exists to place a house in front of the widest possible audience. Fewer buyers mean fewer offers, limiting competition and reducing the likelihood of achieving the strongest price and terms. Without competition, sellers often leave money behind. Even in a relaxed or buyerleaning market, broad exposure combined with strategic pricing can still produce solid results. If a house feels like it is taking a long time to sell on the MLS, it is unlikely to sell faster off it.

Off-market buyers, particularly investors, often expect discounts in exchange for convenience and speed. This arrangement typically benefits the buyer more than the seller. When there is only one interested party, negotiating leverage often shifts. Buyers may push harder on price, inspections, or concessions, knowing there is no competition. Sellers and their agents must remain disciplined to stay aligned with the seller’s goals.

Private sales make sense in specific circumstances. I have occasionally assisted both buyers and sellers in these situations. In one recent case, a seller needed to sell quickly due to mounting Medicare and healthcare costs. A trusted family friend was already renting the property and wanted to purchase it. After reviewing all available options with proper legal and professional guidance, both parties chose an offmarket sale that worked for them.

For sellers focused on achieving top dollar, best terms, and maximum exposure, especially in a market that already favors buyers, listing publicly often delivers stronger results. Selling off-market is neither good or bad; it is situational. The key is fully understanding the trade-offs and choosing a strategy matching your priorities. Market conditions, pricing expectations, and timing should be fully evaluated. The reality is that most houses sell on the MLS. If your goal is to see who is truly willing, ready, and able to buy, list it for all to see.

[Pilgrim], which is extremely strong, as well as the relationship that the town has,” said Vice President of Borislow Insurance Susan Boisvert.

On July 1, municipal employees can expect Harvard Pilgrim, the town’s insurance, to no longer cover GLP-1 drugs, such as Ozempic, for weight

loss. The medication will still be covered for diabetes and other diagnoses.

Across Northborough, Southborough, and the school district, 277 employees were on GLP-1s. Over the course of 10 months, it cost about $1.3 million to cover the drugs.

Local Real Estate Sales

January 12–January 16

For nearly seven decades, Whitco Sales & Service, Inc. has been a household name across Worcester County and surrounding communities. Established in 1955, the company has built its reputation on providing quality appliances, electronics, and dependable customer service. Located at 140 Main Street in Spencer, MA, Whitco has become a go-to destination for families and businesses seeking everything from refrigerators and washers to televisions and grills.

SHREWSBURY

19 Grafton Street

$839,000

45-45A Kinglet Drive

$550,000

WESTBOROUGH

39 Warren Street

$550,000

NORTHBOROUGH

25 Castle Road

for their homes and budgets. Over 3,000 appliances are in stock with fast delivery or pick-up at our warehouse.

$550,000

GRAFTON

23 Institute Road

$500,000

MARLBOROUGH 16 Beaudry Street

57 Melody Lane

$665,000

59 Francis Street

$410,000

HUDSON

30 Maple Street

$725,000

We also have a huge year-round toy department featuring Lego, Mattel, Hasbro and Fisher Price products, as well as 1,000’s of kids and adults bicycles - including E-Bikes... more than anyone in Worcester County. We also service bikes!

$619,900

maria.vagnini@mnsir.com

Katie Mulcahy 774.244.7727

katie.mulcahy@mnsir.com

As an authorized dealer of leading brands such as LG, Samsung, G.E. Maytag and many more, Whitco combines a wide product selection with knowledgeable staff who help customers find the right fit

Whitco Sales is a family-owned business, and its longevity reflects the dedication of its leadership and staff to the community. They have a Better Business Bureau (A+ rating). Visit their website at www.whitcosales.com for hundreds of deals!

Once again, Westborough looks to consolidate ‘fragmented’ downtown zoning

WESTBOROUGH – Despite having previous plans defeated at October’s Town Meeting, the Planning Board is once again proposing amended downtown zoning that aims to modernize, consolidate, and simplify the development process.

Residents will have the opportunity to vote on these proposed changes at Town Meeting on March 21.

Currently, Downtown Westborough has four zoning districts: Downtown Business (BB), Exclusive Industrial (IA), General Industrial (IB), and Town-Owned Properties (M1). There’s also one overlay district, the Downtown Planning Overlay District (DPOD), which provides flexibility for downtown development through a special permitting process.

The zoning change would remove the IA and IB districts from the downtown area to

reduce heavy-industrial uses and combine relevant components of the BB and DPOD districts. If the zoning changes are implemented, the downtown would have two zoning districts: the proposed Downtown Business District and the M-1 district.

Ahead of Town Meeting — and a public hearing which will give residents a chance to discuss this proposed zoning with the Planning Board on Feb. 3 — Director of Planning Jenny Gingras outlined the benefits of such changes.

What does this mean for downtown business?

The proposed zoning increases the number of uses allowed by-right, including artisanal production, consumer services establishments, creative workspaces, micro/ nano-breweries or distilleries, personal services, medical offices, as well as farmers markets, vendors-courts, and mobile food markets. This means many businesses can

open, expand, or change use without a lengthy special permit process. This reduces red tape, saves time and money, and makes downtown more attractive to entrepreneurs. If the new zoning is approved, motor vehicle service stations, sales, and repair services — as well as any proposed parking facilities or performance spaces — would require a special permit from the Planning Board. Animal kennels or hospitals would no longer be permitted.

How is mixed-use development encouraged?

The Downtown Business District allows residential uses and most commercial uses by-right, making it easier to create mixed-use buildings with shops, offices, restaurants, and housing. This approach supports foot traffic, helps businesses succeed throughout the day and evening, and strengthens downtown’s economic vitality.

Why eliminate existing zoning?

The changes consolidate multiple overlapping downtown zoning districts into a single Downtown Business district. This simplifies the rules, makes them easier to understand, and gives businessowners more predictability and confidence when planning investments downtown.

How will dimensional requirements change?

While the standard dimensional requirements remain the same, the updates in the bylaw are clearer and more consistent with the scale and pattern of buildings that already exist downtown. This gives property-owners and businesses clearer expectations around height, setbacks, and building placement, making redevelopment easier to plan.

Who asked for this change?

The proposed zoning updates are consistent with the Town’s

Dine & Discover

Warm up with a hearty chef-prepared meal and cozy conversation at our February Dine & Discover.

Discover life at SALMON at Westborough while enjoying comforting winter favorites and a welcoming community atmosphere.

Master Plan, Strategic Plan, Downtown Plan, and public engagement efforts. Residents and businesses repeatedly asked for a more flexible, business-friendly downtown, clearer rules, and reinvestment in existing buildings, and these changes directly respond to that feedback.

“Overall, this article simplifies and clarifies, aligns with our adopted plans, and positions the downtown for the future, while preserving what we love about Westborough,” Gingras had told the October Town Meeting.

For more, scan below or visit https://www.town.westborough.ma.us/1313/TownMeeting-Zoning-Articles

250-unit development at former site of Tanela reaches Planning Board

SHREWSBURY – Residents had difficulty wrapping their (tiki) heads around a proposed development.

On Jan. 8, the proposed 250unit mixed-use project slated for a 26-acre site at 525 Hartford Turnpike — more commonly known as the Tanela by local residents — officially made it to the Planning Board. The hearing was continued, with plenty of discussion and debate sure to follow.

Plans call for the demolition of all existing structures — presumably including the giant tiki head that has come to define the property — and the construction of a 12,000-square-foot commercial-retail building. A new access road would be created near the rear of the property, which would lead to two fivestory residential buildings containing 250 total units.

The new road would be aligned with the eastern en-

trance to Stoney Hill Road, according to a 2025 letter from the developer, GoVenture Capital Group (GVC). The developer has had preliminary discussions with the town and MassDOT about signalizing this intersection.

All infrastructure currently on the site would be razed.

Approximately 37 percent of the 26-acre lot will be deedrestricted, prohibiting future development there. The land

backs up on town property. Though the developer seemed receptive to having conversations about selling the deedrestricted land to the town, it seemed to prefer to simply continue owning the property while paying taxes on it.

The application was filed prior to the two-year moratorium on mixed-use developments along Route 20.

Residents spoke out against the project during public par-

ticipation sessions, with many upset about the project’s potential impact on schools, added traffic associated with the project, and the fact that GoVenture could — as it has with other projects — ask for a tax abatement down the road.

“The whole area, from Market Basket to the Christmas Tree Shops, is totally congested,” said Stoney Hill Road resident Anand Sharma. “Morning, evening. We have too much traffic. My daughter can’t go to school in the morning — one of her parents has to drop her off. This is the situation on Route 20 because of the overdevelopment this town is doing.”

“It’s obviously terrible from a traffic perspective — we all agree,” said resident Brian Costello.

GoVenture Capital Group is a Worcester-based operation that recently completed The Kiln, a 111-unit multifamily development in the city. GVC has also received site plan approval for a 364-unit development on

Franklin Street in Worcester. The groundbreaking for that project was May 27, 2025. The Tanela Restaurant was once a popular restaurant located on Route 20 near Hebert’s Candy Mansion. Since the restaurant closed, the building has fallen into disrepair. The tiki statue is one of the last indications of the restaurant’s Polynesian theme.

The Tanela could become a mixed-use development. (Photo/Evan Walsh)
Robert J. Terkanian

Amid budget shortfall, Grafton Select Board stands beside Fire Department

GRAFTON – The Grafton Fire Department seems poised to add another full-time member.

The Grafton Fire Department’s responsibilities have expanded significantly in recent years. The depart -

ment fields about 650 calls annually, and the amount of inspections performed doubled between 2024 and 2025, partly due to population increases in Grafton.

The town has plenty of new equipment to help subdue blazes, and expects more to be delivered.

The department’s budget

has gone from $600,000 in fiscal 2019 to $1.1 million in fiscal 2026. For a one-station call, Grafton typically sees eight firefighters respond; when all three stations respond, roughly 25 to 30 often respond, a number town leaders characterized as “amazing.”

And while on-call staff has increased roughly proportionally — going from 48 (2022) to 59 (2026) — the additional work has strained the town’s resources. Several members have retired or left the department due to burnout, moving away, or a number of other factors.

“There’s really only 30 very-active members who make most of the calls, are on the working groups, attend all the community events, and serve on various committees,” said Deputy Chief Paul Cournoyer. “I say this very sincerely: we’re wearing those 30 people down.”

The department — which has a “strong chief,” mean -

ing the chief asks the Select Board directly for budget increases – asked for two additional full-time equivalent positions. However, taking into account the town’s $1.4 million budget gap in fiscal 2027, it decided to ask for one position.

“To keep the work we’ve all started, moving forward the department must continue to grow to serve the community and provide the best level of customer service the residents have come to expect,” Cournoyer said before the Select Board.

Compared to towns with similar populations, Grafton spends far less on its Fire Department. Grafton’s $1.1 million budget is lower than Sudbury’s (19,000 residents) $5.6 million fire budget, Hopkinton’s (20,000 residents) $4.1 million budget, and Ashland’s (19,000 residents) $3 million budget. Almost all comparable towns are not on-call, however.

“What the Fire Depart -

ment has done since I’ve been involved is nothing short of incredible. It’s allowed Grafton to be able to fund our schools to a higher level, and to do a host of other things. We’ve had an on-call department all these years. People don’t talk about it enough,” said Select Board member Craig Dauphinais. “The department needs to grow.”

The Select Board was receptive to the additional position, with many thanking the department for considering current budget issues when making its request.

“I support anything that will support the call firefighters,” said Select Board member Ann Marie Foley.

“The Fire Department, as I know them, is notoriously frugal,” added Select Board member Mathew Often. “You guys are really thrifty and hate to spend money. That attitude and that culture has helped Grafton be where we are today. We have an incredible value in Grafton.”

Local psychotherapist publishes book of poems reflecting on life

WESTBOROUGH – One night while at Chan’s — a Chinese restaurant in Woonsocket, Rhode Island — Art DuBois and his son were enjoying jazz music when an elderly man stood up.

DuBois was immediately filled with concern, as the man had only one good arm and could have been ill or confused. Then, the man began to dance: “And he danced like there was no tomorrow.”

It was a lighthearted moment that got DuBois thinking. With all of life’s suffering and challenges, how can one take a moment to appreciate its beauty? And, how can we find ourselves through it all?

During his time as a psychotherapist, a social worker, and in personal moments throughout his life, DuBois, 68, has found himself trying to answer these questions that are universal to the human experience.

The poems and photography in his first published book, “Desperate Souls, Hopeful Hearts,” reflect on moments when the answer may not be so clear. Or, sometimes the answer might be standing right in front of you and dancing.

“I really want people to hear the bits and pieces that might ring true for them and go wherever they want to go with it,” DuBois said of the collection.

Though he’s loved writing all his life, when choosing a career, he wanted to do something to help other people.

From 1975 to 1979, he was a paraprofessional in the U.S. Army. He’s spent his career as a clinical social worker and a psychotherapist, and now lends his talents to the Westborough-based Pastoral Counseling Center of Massachusetts.

His writings, like his poem “Luck,” draw from his personal and professional experiences.

“I’ve met people with great problems, and I know it doesn’t have anything to do with patience, smarts, or heart, but it has to do with luck,” DuBois said. “So much of how we get to where we are is really about luck.”

About a decade ago, he took a course that inspired him to start going on mindfulness walks, which have largely taken place at Sachuest Point National Wildlife Refuge in Middletown, Rhode Island. There, he captured a lot of his photography for the book and would often write within the peaceful nature.

One of his biggest inspirations has been Mary Oliver, well-known for her nature writings. DuBois said that beyond its obvious benefits, nature helps people pay attention to themselves.

And while in the right headspace, he has been able to turn his reflections and epiphanies into poems that he feels most people can understand.

Although his wife would be the first to say that there is a certain melancholy to his poems, DuBois notes that almost every one ends with some kind of hope.

“Desperate Souls, Hopeful Hearts,” which was first released in November, is currently available on Amazon as a hardcover, paperback, and as an e-book.

jackboyd@boydstrategy.com

Peter A. Boyd, CFHC®: pboyd@boydstrategy.com

John R. Boyd, CFP®: jboyd@boydstrategy.com

319A Southbridge St. Auburn, MA 01501 boydstrategy.com

After new strategy, Zeh School roof project price drops $2 million COMMUNITY SCHOOLS

NORTHBOROUGH – After an initial $8 million plan drew skepticism from Northborough officials, the school district presented a revised vision for the Marion E. Zeh Elementary School roof. Now, a “roof recovery” is planned instead of an outright replacement.

According to Keith Lavoie, the assistant superintendent

of operations, the project is estimated at $5.68 million.

The town is expected to be reimbursed for just under half of the project costs by the Massachusetts School Building Authority, bringing the amount the town will pay to $3 million.

The “roof recovery” was chosen over a full replacement because it was the “most costeffective solution and provides a reasonable extension of the building’s service life,” accord-

ing to a memo from Lavoie.

“[The OPM and designers have] been great partners. I have been impressed. They’ve listened to us, they’ve taken our feedback, they’ve made adjustments, and they worked even over the break to get us to where we are now,” said Lavoie.

According to school district officials, the current roof dates back to 1997.

A roof recovery would require removing the existing stone ballast, membranes, shingles, and underlayment, followed by the installation of new underlayment, plywood sheathing, brickwork, and new shingles.

The new roof is required to be solar-ready under new state energy codes that took effect in 2024. According to Lavoie, the project will include upgrades to entrances, doorways, doors, bathrooms, toilet heights, and related components to address ADA compliance requirements.

Superintendent Gregory Martineau said that while the OPM is confident that it will not exceed the estimated costs, nothing is certain until the project goes out to bid.

The original plan — which would have cost $8 million, with $4 million covered by the MSBA — drew criticism for being too expensive: “This is a huge amount of money. Even with the estimated [reimbursement], it’s still over $4 million. It’s going to be a tough sell,” Committee Chair John Rapa said at the time.

Innovative Shrewsbury High School course teaches students how to referee

SHREWSBURY – Massachusetts is experiencing a referee shortage. A course at Shrewsbury High School is helping fix that.

“Officiating,” a course that debuted on Cypress Avenue in the fall, is teaching students how to officiate a variety of common sports. Students leave the class with a certification to referee a sport of their choosing. They are immediately eligible to officiate recreational and junior-varsity games — and earn money while doing it.

“Sometimes kids don’t know how to deal with calls, reffing, and understanding what the rules of the game are. You see a lot of bad behavior that they model from adults — the pros. This gives them a perspective on the other side — they see how the rules need to be implemented, or else there’s anarchy in the sport,” said Director of Physical Education Jeffrey Lane.

The course includes several “modules.” There is in-class instruction and videos where students learn the rules, how to make the calls, and how to control the game effectively.

Shrewsbury High School also brings in outside experts — professional officials and representatives from the MIAA, for instance — to speak to the class. As their peers play organized sports as part of other

physical education courses, the Officiating students may practice their newfound skills and referee the game.

Open to juniors and seniors, the class covers soccer, field hockey, lacrosse, football, volleyball, basketball, and more.

The class comes at a time when officials are tough to come by. Due to a number of factors, 1,100 Massachusetts officials quit their jobs in the past five years, the Boston Globe reported in 2023, leaving games without the proper number of referees. In some cases, matches were canceled or postponed.

The shortage is sometimes attributed to a rise in overzealous parents on the sideline, leading referees to quit instead of dealing with the turmoil. The Officiating students learn how to make peace with raucous spectators as part of their curriculum: “It’s not just about the rules, it’s about how to manage a game: coaches, fans, players. Our kids are starting to learn about being proactive,” said Lane.

“We tell kids to be prepared for that in the real world. There are videos they’ll watch to see how officials handle things. We teach them to be proactive and communicate. If there’s a call that might be arbitrary for the layperson that is watching, communication is everything,” Lane told the Community Advocate.

SHREWSBURY – Now The Wheelock can get rolling.

During a special session on Jan. 12, the Shrewsbury Zoning Board of Appeals (ZBA) officially approved a 300-unit development planned for 104 Main Street, a 5.8-acre parcel wedged between North Quinsigamond Avenue, Main Street, and Interstate 290.

The 40B development will include 19 studios, 175 one-bedroom units, 76 twobedroom units, and 30 threebedroom units, with roughly 350,000 square feet of space. Plans call for over 400 parking spaces with a four-story parking garage. The site will include 75 (25 percent) affordable units, and since The Wheelock will be a rental development, all 300 units will count toward the town’s Subsidized Housing Inventory (SHI).

The development will be an expected $100 million

investment from Saxon Partners. Under Chapter 40B, the Zoning Board of Appeals had very little ability to turn away this project. The Wheelock’s affordable unit count – which gives the town interim “safe harbor” — will help prevent fast-tracking 40B projects in the future.

“From my point of view, it’s a bitter pill. If I saw any other way, I’d probably take it. It’s good for us – it gets us housing. But I don’t think it’s the right development for that place,” said ZBA member Fran Mannella.

Added ZBA member Ann Refolo: “It’s very, very dense. I have concerns about the traffic, concerns about the safety, concerns about the impact on the neighbors. But nonetheless, I believe it meets the minimum standards they need to meet.”

It had been a project with some background tension. When the Select Board was first notified about the plans in late 2024, it sent a letter to

the developer noting that the project has “significant flaws with regards to site control, design, public safety, environmental impact, and overall misalignment with community goals.” But the project pushed forward — albeit as an “unfriendly” 40B.

Then, in 2025, the project asked for approximately $822,000 in fees waived, claiming that the project’s affordable housing provided considerable benefits to Shrewsbury — and that the developers had downsized original plans at the town’s request.

“Maybe it’s not as much of a waiver, but the concept that there would be no waiver when you’re constructing affordable housing of this magnitude and doing the other things that are offered for the community strikes me as somewhat inequitable,” said Mark Donahue, a Fletcher Tilton attorney representing the developer.

Saxon Partners offered sev-

eral community benefits, like a contribution to Shrewsbury’s Complete Streets Initiative.

And while it was floated at one point, it’s unclear whether the development’s proposed $100,000 renovation of adjacent Gauch Park will happen now that the town has chosen not to waive fees for the developers.

Still, based on previous comments, the team behind the project is excited to build.

“To me, this is just a terrific site for a project like this. … It’s a perfect location for multifamily housing,” said Clay Smook, a Shrewsbury resident and owner of Smook Architecture, earlier in the permitting process.

POLICE FIRE

Shrewsbury Public Schools employee arrested on child pornography charges

SHREWSBURY – An employee of Shrewsbury Public Schools has been arrested on child pornography charges.

Following an ongoing investigation, the Lunenburg Police Department, with assistance from the Massachusetts State Police Internet Crimes Against Children Task Force, the United States Secret Service, and the New England Regional Computer Forensics Laboratory,

executed a search warrant at a home in Lunenburg on Jan. 15.

As a result of the search warrant, Aiden York, 19, of Lunenburg, was arrested. He was arraigned in Fitchburg District Court and was charged with two counts of Possession of Child Pornography and one count of Dissemination of Visual Material of a Child in a State of Nudity or Sexual Conduct.

The Shrewsbury Police Department is working closely with Shrewsbury Public

Schools and law enforcement partners to ensure all appropriate steps are taken as this matter continues to be investigated.

“We understand that news of this nature is concerning for families and the community. Please know that the safety and well-being of students is our highest priority, and we take these matters extremely seriously,” the Shrewsbury Police Department said in a statement.

If any parent, guardian, or

Grafton bus-driver faces kidnapping charges

GRAFTON – A bus-driver in Grafton faces criminal charges.

Redi Gace, 54, of Worcester, was arrested and charged after an incident involving Grafton Public Schools students who were getting a ride home from school. The bus-driver allegedly “deviated from his route with students in the vehicle and made unauthorized stops,” Grafton Superintendent James Cummings said in a statement.

According to reports, the bus-driver allegedly blocked the vehicle’s camera while a child was sitting on the bus, traveled down roads that weren’t part of the route, and dropped the student off approximately 30 minutes late.

The bus-driver was arraigned Jan. 14 and faces charges including kidnapping and reckless endangerment of a child.

“The safety and well-being of our community’s children is

our highest priority,” said Grafton Police Chief Neil Minardi.

“At this time, we are working closely with the Grafton School District and AA Transportation to ensure the safety of all students. The suspect is no longer employed by AA Trans-

portation. The suspect was not assigned to general student transportation routes.”

Added Cummings: “We take this matter extremely seriously and remain committed to the safety and well-being of every student entrusted to our care.”

Immediate

individual believes their child may have been affected or has information that may be relevant, the Shrewsbury Police Department encourages them to contact the department directly at 508-845-1212, or use the Massachusetts Childat-Risk Hotline at 1-800-7925200. Any such reports will be handled promptly and thoroughly.

The department continued: “We appreciate the cooperation and trust of the Shrewsbury community as we continue to work to ensure the safety of our schools and students.”

York worked as an ABA technician paraeducator at Sherwood Middle School, according to Superintendent Joe Sawyer. He also worked in Extended School Care programs at Sherwood, Beal School, and Spring Street School, and at Summer Enrichment and Special Education Extended

Year programs.

The charges are not connected to any Shrewsbury student.

“When we received this information today, Mr. YorkWallach was immediately placed on leave and we revoked all access to SPS buildings and systems,” said Sawyer. “We reviewed and confirmed that the district performed all required criminal background checks prior to Mr. York-Wallach starting in our schools, and there was no criminal record.”

Added Sawyer: “The safety and well-being of our students is our highest priority. Our school district will continue to be in communication with the Lunenburg and Shrewsbury Police and the District Attorney’s office regarding these criminal charges, and we will provide any additional information and support as necessary.”

Three-alarm blaze in Marlborough kills several pets, displaces residents

MARLBOROUGH – A latemorning fire caused significant damage to the structure located at 610 Lincoln Street.

On Jan. 16, the Marlborough Fire Department received a 911 call at approximately 10:19 a.m. reporting the blaze. Marlborough Engine 1, Engine 2, Engine 3, Rescue 1, Truck 1, Squad 1, and Car 5 responded to the first alarm. Marlborough

Car 1, 2, and 3, and Pridestar

EMS responded, along with the Marlborough Police Department to do traffic control.

The first arriving companies reported heavy fire conditions showing from the second floor and attic area of the structure. The fire went to three alarms due to its location; the home had a 50-foot-long driveway on a one-way road that was very narrow.

Mutual aid from Hudson, Southborough, Northborough,

Westborough, Sudbury, and Berlin responded, with offduty Marlborough personnel manning reserve apparatuses. Framingham and Hopkinton provided coverage for calls.

One firefighter was transported to the hospital for evaluation. The residents had gotten out, but there were pets that were unaccounted for. The cause of the fire is under investigation, and damage assessments were unavailable.

notice.

SHREWSBURY

TOWN

January 26, 2026 6:00 PM

MA

To hear the appeal of Samantha Ormond, 101 Grove Street, Shrewsbury, MA 01545 for three Variances to the Shrewsbury Zoning Bylaw Section VII - Table III to allow for a shed three and seven tenths feet (3.7’) from the rear and two and five tenths feet (2.5’) from the side where ten (10’) is required and one Variance to allow a pergola less than ten feet (10’) to the principle dwelling upon property located at 101 Grove Street in the Residence A zoning district. The subject premise is described on the Shrewsbury Assessor’s Tax Plate 46 Plot 084000.

January 26, 2026 6:00 PM

To hear the appeal of Shayne Scott, 40 Trowbridge Lane, Shrewsbury, MA 01545 for a Variance to the Shrewsbury Zoning Bylaw Section VII.C Table III to construct an addition six and five tenths feet (6.5’) from an accessory structure where ten feet (10’) is required upon property located at 40 Trowbridge Lane in the Residence B-1 zoning district. The subject premise is described on the Shrewsbury Assessor’s Tax Plate 29 Plot 360050.

January 26, 2026 6:00 PM

To hear the appeal of Praveen Kosaraju, 600 South Street, Shrewsbury, MA 01545 for a Variance to the Shrewsbury Zoning Bylaw Section VII.C Table III to allow for a solar array one and four tenths feet (1.4’) from the principle dwelling where ten feet (10’) is required, upon property located at 600 South Street in the Rural A zoning district. The subject premise is described on the Shrewsbury Assessor’s Tax Plate 43 Plot 022001.

January 26, 2026 6:00 PM

To hear the appeal of Andrew Barbash, 18 Rockwell Drive, Shrewsbury, MA 01545 for a Special Permit to the Shrewsbury Zoning Bylaw Section VI Table I to allow for an in-home residential kitchen business upon property located at 18 Rockwell Drive in the Rural B zoning district. The subject premise is described on the Shrewsbury Assessor’s Tax Plate 48 Plot 044000.

January 26, 2026 6:00 PM

To hear the appeal of Pamela Panarelli, 24 Gulf Street, Shrewsbury, MA 01545 for

a Special Permit to the Shrewsbury Zoning Bylaw Section IV.C to allow for alteration and expansion of a preexisting nonconforming single family dwelling upon property located at 3 Brookway Drive in the Residence B-1 zoning district. The subject premise is described on the Shrewsbury Assessor’s Tax Plate 22 Plot 124000.

David Moore, Clerk

TOWN OF SHREWSBURY PUBLIC HEARING NOTICE

The Select Board will hold a public hearing on Tuesday, February 10, 2026 at 7:05 PM in the Selectmen’s Meeting Room, Richard D. Carney Municipal Office Building, 100 Maple Avenue, Shrewsbury, Massachusetts 01545-5398, to accept public comment on an application submitted by Dean Park Shrewsbury LLC, doing business as Dean Park Grill & Pizza, located at 749 Main Street, Shrewsbury, MA 01545, requesting approval of a change of hours of operation associated with its Common Victualler License, pursuant to Massachusetts General Laws Chapter 140, Section 2. Interested residents are encouraged to attend and provide oral or written comments. Written comments may be emailed to selectboard@shrewsburyma.gov or mailed to the Office of the Select Board, 100 Maple Avenue, Shrewsbury, MA 01545. Theresa Flynn, Chairperson Office of the Select Board January 14, 2026

SOUTHBOROUGH

The Southborough Tree Warden and the Southborough Planning Board, under the requirements of the MGL, Chapter 87, Section 3, and MGL Chapter 40, Section 15C, will conduct a consolidated public hearing on Monday, January 26, 2026 at 6:30 PM at the Southborough Town House, McAuliffe Hearing Room, 17 Common St., and via Zoom, to discuss the removal of trees and removal and reset of stone walls located on Oak Hill Rd., Richards Rd., Woodland Rd., and Parkerville Rd. as part of sidewalk improvement project. Number of trees affected: 4 Ash, 10 Hickory, 4 Pines, 5 Maples, 6 Oak and 1 Cherry. All ranging from 6” to 48” diameter at breast height.

Oak Hill Rd.

12 Trees

2 sections of stonewall totaling 16’

Richards Rd.

9 Trees

5 sections of stonewall totaling 364’ Woodland Rd.

8 Trees

9 sections of stonewall totaling 466’

Parkerville Rd.

3 Trees

1 section of stonewall totaling 7’

Those who wish to watch or participate remotely may do so by accessing the meeting link at: https://www.southboroughma.gov/674/Virtual-Meetings

Each tree is posted. A complete list of the proposed tree removal locations, species, size and pictures can also be found at: https://www.southboroughma.gov/266

Any person wishing to be heard should appear at the time and place designated. Objection to the proposed removals may be made in writing prior to, or at the hearing.

Christopher Leroy Tree Warden

Meme Luttrell Planning Board, Chair

AUCTION NOTICE

Notice is hereby given by Ted’s of Fayville, 300 Turnpike Road., Southborough, MA 01772, pursuant to the provisions of G.L. c. 255, section 39A, that on Wednesday February 18, 2026 at 10 am an auction sale on the web based site of http://sta. ibidsmart.com the following motor vehicles will be sold to satisfy our garage keeper’s lien thereon for storage, towing charges, care and expenses of notices and sale of said vehicles. Starting February 8, 2026 at 9 am, vehicles can be viewed at http://sta.ibidsmart.com.

This is not an absolute auction we reserve the right to set a minimum on all auction vehicles. If a particular vehicle is not listed on http://sta.ibidsmart.com call 508-4850503 for bidding instructions.

2009 Honda CR-V 2007 VIN: 5J6RE48769L067385

Owned by Daniel Park

Chrysler Sebring VIN: 1C3LC66K47N548892

Owned by Workensky J Loreston

2010 Mazda 3 VIN: JM1BL1SG2A1150588

Owned by Raymond C Gannon

2014 Mercedes E350

VIN: WDDHF8JB2EA846217

Owned by AMI Healthcare Inc

2007 Hyundai SantaFe Vin: 5NMSG73D47H078027

Owned by Joane V Odate & Anselm Mmuju

2025 TaizHou Moped VIN: HZ2TBCNF6S1013131

Owned by Shaun Cusano

2012 Nissan Xterra Vin: 5N1AN0NW1CC503229

Owned by Stephen C Dow

2010 Honda Insight VIN: JHMZE2H7XAS028799

Owned by Joulson Dieudonne

2007 Dodge Caliber Vin: 1B3HE78K57D246212

Owned by James M King

2003 Honda Odyssey VIN: 5FNRL18043B098769

Owned by Allison Rodriguez

2009 Toyota Yaris Vin: JTDKT903195229432

Owned by Alisson Silva

2005 GMC Savana VIN: 1GDGG31V951901399

Owned by USA Home Services Inc

2012 Chevrolet Equinox Vin: 2GNFLEE52C6210394

Owned by Loria Diaz

2007 Toyota Prius VIN: JTDKB20U677668534

Owned by Davi Batista

2014 Jeep Cherokee Vin: 1C4PJMBS6EW310398

Owned by Wendy Fenty

1995 Jaguar XJ6 VIN: SAJHX1740SC740521

Owned by Samuel W Bogoch

This notice has been given under the provisions of G.L. c. 255, Section 39A.

Publication Friday January 23, 30 and February 6, 2026 Community Advocate.

HUDSON

TOWN OF HUDSON ZONING BOARD OF APPEALS NOTICE OF PUBLIC HEARING PETITION #ZSP-25-20

Notice is hereby given of a Public Hearing to be held by the Hudson Zoning Board of Appeals on Thursday, February 12, 2026, at 7 p.m. Pursuant to Chapter 2 of the Acts of 2025 extending the remote meeting provisions of the March 12, 2020, Executive Order, suspending certain provisions of the Open Meeting Law, this meeting of the Hudson Zoning Board of Appeals will be conducted via remote participation. Specific information for remote participation will be included on the agenda.

At this time the Board of Appeals will hear the request of Michelle Bernier-Capaldo to alter a pre-existing non-conforming structure by removing and replacing a front porch, pursuant to Section 5.1.6 of the Town of Hudson Zoning By-laws and MGL Chapter 40A Section 9. The subject property is located at 22 Worcester Avenue in the R15 zoning district, Assessor Map 35, Parcel 9. The Board may consider any action deemed necessary relative to the subject petition.

All petition materials are available for review in the Town Clerk’s Office during regular business hours, on the Town of Hudson website at https://townofhudson. community.highbond.com/Portal/DocumentLibrary.aspx?id=85934f03-0b1f-41cf8354-f86a021cbe36 and can be requested by calling (978) 562-2989 or by sending an email to kjohnson@townofhudson.org.

PUBLIC NOTICE

DEPARTMENT OF ENVIRONMENTAL PROTECTION WATERWAYS REGULATION PROGRAM

NOTICE OF GENERAL LICENSE CERTIFICATION APPLICATION PURSUANT TO 310 CMR 9.29 25-WW-PRE-0116-APP

NOTIFICATION

DATE: January 23, 2025

Public notice is hereby given of the application for Certification to the General License by Aaron W. Moore to construct/ maintain a seasonal, residential dock in the waters of Lake Boon at 12 Town Line Road, Hudson, MA 01749, in Middlesex County.

The Hudson Planning Board will consider all written comments on this Waterways application received within 30 days of the “Notification Date.”

Project plans and documents for this application are on file with the Hudson Planning Board. Written comments must be addressed to: Town of Hudson Planning Board, c/o Kristina Johnson, Director of Planning and Community Development, 78 Main Street, Hudson, MA 01749.

WESTBOROUGH

LEGAL NOTICE FOR REVISIONS TO WESTBOROUGH ZONING BYLAW

In accordance with the provisions of MGL c.40A, Section 5, the Westborough Planning Board will hold a public hearing on Tuesday, February 3, 2026 at 6:30 P.M. at the Forbes Municipal Building, Great Hall, 45 West Main St., Westborough, MA regarding the proposed zoning amendments under two (2) Articles entitled “Amend Zoning Bylaw – Downtown Business (BB) Zoning District”, and “Amend Zoning Bylaw – Section 8.2(F) - Off-Premises Signs”. The Articles will appear on the Warrant for the March 21, 2026 Westborough Annual Town Meeting.

To access the articles and any corresponding documents, please go to our website at https://www.westboroughma. gov/1313/Town-Meeting-Zoning-Articles. Documents are also available for review in the Westborough Planning Board Office at Forbes Municipal Building, 45 West Main St., Westborough, MA during regular business hours.

WESTBOROUGH FY2027 BUDGET PUBLIC HEARING January 27, 2026, at 6:15PM Town Hall – Memorial Hall (3rd Floor) 34 West Main

Antonio Mancini, Jr., Clerk Hudson Zoning Board of Appeals

A Powerful Prayer to the Holy Spirit - Holy Spirit you who solve all problems who light all roads so I can attain my goals, you who give me the divine gifts to forgive and forget all evil against me, in this short prayer to thank you for all things and confirm once again that I never want to be separated from you, even in spite of all material illusions. I wish you in eternal glory, thank you for your mercy towards me and mine. The person must say this prayer for three consecutive days. After three days the favor requested will be granted, even if it may appear difficult. This prayer must be published immediately after the favor is granted without mentioning the favor. Only your initials shall appear on the bottom. ~ F.R.

Virtusa Corporation

has multiple openings for the following positions in Southborough, MA and other unanticipated locations across U.S.:

Data Analytics–Business Intelligence Analyst II: Bach in CS, Elctrncs Engrng, Dta Sci, Math or rel fld +2yrs exper prod dta analytics for system optimztn. Sal: $95,118$125,000. Ref #VIR-1195.

BPM–Analyst 4: Bach in CS, IT, CIS, MIS or Engrng (any fld) +5yr prgsv pst bach IT devlmpnt exper, incl 3+yrs wrkng w/ BPM prods&platforms in a distrib environ OR Master’s in CS, IT, CIS, MIS or Engrng (any fld) +3yrs IT devlmpnt exper wrkng w/ BMP prods&platforms in a distrib environ. Sal: $133,182-$140,000. Ref #VIR-1184.

Agile Delivery Manager III: Bach in CS or Engrng (any fld) +5yr prgsv pst bach IT dvlmpnt exper incl 3+yrs leading delivery tms w/ Agile mthodlogy wrkng in a global distrib environ. Sal: $125,549-$132,000. Ref #VIR-1204.

For all positions, employee engage in longterm project assignments at unanticipated U.S. locations. Telecommuting possible in some instances. Resumes to apply@virtusa.com, making specific reference to position Ref #.

Virtusa Corporation

has multiple openings for the following positions in Southborough, MA and other unanticipated locations across U.S.: Business Analyst II: Bach* in any fld of sci +3yrs business/systms analysis wrkng in a distrib environ. *Or Bach equiv thru a combo of edu&wrk exper as dtrmnd by a rep cred srvc, or 3yr Indian or Sri Lankan bach of sci degree. Sal.: $133,182-$139,000. Ref #VIR1238.

User Digital Interface Designer II: Master’s in CS, Elctrncs Engrng or rel fld +1yr UI dsgn & dvlmpnt exper. Sal.: $116,397-$122,217. Ref #VIR-1208.

Java Engineer I: Bach in CS, Elctrncs Engrng or rel fld +1yrs exper/training w/ core Java/ J2EE tech. Sal: $98,051-$115,000. Ref #VCS1024.

For all positions, employee will engage in long-term project assignments at unanticipated U.S. locations. Telecommuting possible in some instances. Resumes to apply@virtusa.com, making specific reference to position Ref #.

is also known as one of the most affordable auto detailers in the area, believing high-quality detailing should be

Services include interior and exterior detailing, scratch removal, deep interior cleaning, and chrome restoration for cars, trucks, motorcycles, and business vehicles. Many customers return seasonally,

especially after winter, to restore their vehicle’s appearance and value.

When he’s not detailing cars, Victor enjoys skiing with his grandchildren — a testament to the energy and dedication he brings to both his work and life.

Catacchio Auto Detail

located at 218 Worcester

in North Grafton.

COMMUNITY OBITUARIES

The Community Advocate will post obituaries online (and in print, as space allows). Please send information (and a picture if desired) to tracy@communityadvocate.com.

Here is a complete list of individual obituaries posted on the Community Advocate website (www.communityadvocate.com).

DEATHS

Anderson, Gary of Northborough Auger, David of Hudson Bailey, Randolph of Northborough Baril, P. Raymond of Grafton Bottcher Jr., Frank of Shrewsbury Brady Sr., Harold formerly of Grafton Clough Sr., John of Westborough Collier, Robert of Marlborough Cooke, Frederick of Marlborough Cordeiro, Mary of Hudson DaPonte, Lynn of Marlborough Dobay, Erik of Northborough Flint, Judith of Shrewsbury Foster Jr., Malcolm formerly of Southborough Girardin, Sr. Jeanne a Sister of St. Chretienne Hayes, Pauline of Shrewsbury Kelly, Elaine of Northborough Labrie, Marie of Grafton Lindsay, Carol of Northborough/ Shrewsbury Monahan, Virginia of Shrewsbury Murphy, Joan of Hudson Negus, Marjorie of Westborough Peck, Vicki of Marlborough Phillips, Stanley of Westborough Riley, Pamela of Westborough Ripsz, Stephen of Westborough Sargent Jr., Robert of Shrewsbury Silva, Judith of Hudson Tozer, Jody raised in Grafton Whitney, Ruth of Hudson Randolph Bailey, 89

NORTHBOROUGH – Randolph Bailey, aged 89, died on January 9, 2026, at 8:44 p.m. at the Coleman House. He was surrounded by many loved ones until his passing.

His wife Geraldine Anne Bailey predeceased him on January 6th, 2018.

Randy is survived by his 4 children, 9 grandchildren and two great grandchildren: his daughter, Andrea Bailey and her husband Ray Bazzano, Ed Bailey and his wife Marlene, Ray Bailey and Phil Bailey. He leaves his grandchildren: Amanda, Kari, Tyler, Caitlin, Samantha, Rebecca, Annie, Alex and Krystal. He is also survived by his brother, John Bullard, and his wife, Anna, of Maine; his cousin, Barry Caminati, and his wife, Jackie, in Vero Beach, Florida; extended family residing in New Hampshire; as well as numerous friends across Massachusetts, California, and Florida.

Interment and burial service was held at the Massachusetts National Cemetery in Bourne.

Frank M. Bottcher Jr., 96

SHREWSBURY – Frank M. Bottcher, Jr., 96, of Shrewsbury, passed away peacefully on Tuesday, January 13, 2026, in his home. He is survived by his son, Steven Bottcher, and his wife Diane; his daughter, Karen Weigold, and his stepdaughter, Deboarh Congdon; his sister, Claire Stidsen; 13 grandchildren and 19 great-grandchildren. He was predeceased by his first wife, Nancy J. (Greenleaf) Bottcher, who passed away in 1959 and his second wife of 52 years, Dolores A. (Kondrasawicz) Bottcher, who passed away in 2016.

Callahan, Fay & Caswell Funeral Home of Worcester assisted the family.

Judith R. Flint, 84

(Schwartz) Enman on June 8, 1941. Raised in Westborough, she was a 1959 graduate of Westborough High School and married Bradley Flint on September 3, 1960.

Judy is survived by her daughters; Patricia (Flint) Levenson, and Pamela FlintDube. Patricia and Mark live in Shrewsbury and their son Maxwell lives in North Carolina. Pamela and Andrew live in Sutton with their children Gwyneth and Drew.

Judy was predeceased by her husband, parents, brothers Roland and Bruce, and sisters Lola Miller and Jeanne Goodall. She is survived by her brothers Douglas and Robert, and many other relatives.

The Pickering & Son Westborough Funeral Home assisted the family.

Gary S. Anderson, 93

Scan QR code to read all of this week’s obituaries on our website.

whom will miss his kind spirit and gentle presence.

The Britton Funeral Home of Shrewsbury assisted the family.

Erik S. Dobay, 61

She is preceded in death by her father William and mother Muriel who gave the best advice: it doesn’t cost anything to be kind, a motto she lived by every day.

SHREWSBURY – Judith Ruth (Enman) Flint, 84, of Shrewsbury and formerly of Westborough passed away on December 28, 2025 after a lengthy period of declining health. Judy was born to Roland and Ruth

NORTHBOROUGH – Gary S. Anderson, a beloved husband, father, grandfather, great-grandfather, and friend, passed peacefully on Saturday, January 3, 2026, at Marlborough Hospital.

Gary’s legacy is carried on by his devoted wife of 73 years and best friend of 83 years, Shirley Anderson. Together, they built a life filled with joy and companionship. Their love story is one that exemplifies the beauty of partnership and unwavering support through the decades.

Gary is survived by his son, Gary C. Anderson and his wife Jean of Shrewsbury, and his daughter, Karen L. Hollyer of Northborough. He was a proud grandfather to three grandchildren: Christian Hollyer and his wife Trisha, Brandon Hollyer, and Bryan J. Anderson and his wife Emily, all of Shrewsbury. Additionally, Gary cherished his role as great-grandfather to five great-grandchildren: Marissa Hollyer of Somerville, Joshua Hollyer, and Charlie, Andie, and Drew Anderson, all of Shrewsbury. He is also survived by his brother Gregory Anderson and wife Sheila of Plaistow NH, by several nieces and nephews, a longtime family friend Karen Ryberg, all of

NORTHBOROUGH – With heavy hearts and deep love, we remember a remarkable man whose presence filled every room with laughter, warmth, and an unmistakable sense of joy. He was dad who loved

The Pickering & Son Westborough Funeral Home assisted the family.

Stanley D. Phillips, 89

his daughters Tatyana, Bryana & Mackenzie Dobay fiercely and proudly. A generous friend to so many whom he would give the shirt off his back. He was a loving husband to Catherine Dobay.

In addition to his daughters and wife, he leaves the mother of his two eldest daughters Andrea Dobay, his mother Bernice Lee, his brother Mark Dobay & wife Stacey, as well as his sister-in-law Jessica Butler and her husband John. He also leaves his brother-inlaw Tyson Hight along with his best buddy and fatherin-law Allen Hight. Lastly his cherished nieces and nephews Olivia, Blake, Sam, Max, Maddie and honorary family Lexi, Kyleigh and Jagger. Erik was predeceased by his sister Lynn Dobay, stepfather Bob Lee and mother-in-law Marie Hight.

Hays Funeral Home of Northborough assisted the family.

Pamela Riley, 69

WESTBOROUGH – Stanley D. Phillips, 89, born on February 25, 1936, in Westborough, Massachusetts, passed away on January 10, 2026. He was the youngest of five children born to Merritt and Helen (Lowe) Phillips. Stanley was predeceased by his sisters, Harriet and Virginia, and his brothers, Wayne and Norman. Stanley is survived by his three sons: Michael Phillips of Quito, Ecuador; Steven Phillips and his wife Catherine of Boylston, Massachusetts; and Mark Phillips and his wife Tammy of Hubbardston, Massachusetts and several grandchildren, Casey (Phillips) Wheeler, Gina PhillipsBradshaw, Steven Phillips, Jr., Alec and Olivia Phillips and great granddaughter Kiley Wheeler.

The Pickering & Son Westborough Funeral Home assisted the family.

Vicki L. Peck, 72

WESTBOROUGH – Pamela Riley (nee Jones), Ph.D. of Westborough, MA passed away peacefully on January 4th, 2026, surrounded by loved ones following a brief illness. She is survived by her daughter Sarah (Peter), sons, Andrew (Sara) and Jonathon (Grace), two granddaughters, Adrienne and Esme, her sister Suzi (Tim) and brother Derek, as well as many friends she considered family scattered all over the world but in particular her Westborough family, Dave, Jan, Kevin, and Eva.

MARLBOROUGH – Vicki L. Peck, 72, of Marlborough, died Monday, January 5, 2026. She was the daughter of the late Gerald E. and Claire (Collier) Peck. For many years Vicki sang or played her tambourine with local bands. She cherished those who she made strong friendships with. She was also a very talented artist.

Vicki is survived by her sister, Nancy Lane and her husband Edward of Marlborough and her niece, Heather Miranda. She was predeceased by her niece Rachel Miranda. Slattery Funeral Home of Marlborough assisted with arrangements.

Meet Westborough’s Black Student Union president

WESTBOROUGH – Growing up and going to school in a predominantly white community presents its fair share of challenges, said Victoria Njuguna, a student at Westborough High School.

“There have been moments where I felt different, misunderstood, or like I had to work harder to be seen or heard,” Njuguna said. “Those experiences were not always easy, but they helped me grow stronger, more self-aware, and more determined to create a space for myself and for others who might feel the same way.”

That’s why she and her older sister decided to join the school’s Black Student Union, which she became president of as a sophomore: “I’m very proud of myself for that,” she said.

Continuing her sister’s legacy in the presidency role, Njuguna said she hopes to continue fostering a community “where everyone feels respected, valued, heard, and loved — regardless of race, background, or identity.”

She added: “A community where difficult conversations are welcomed, differences are embraced, and kindness leads the way.”

Njuguna spoke on her experience during the eighth annual Dr. Martin Luther King Jr. Day Celebration at Westborough High School. The event was hosted by Westborough

Connects in partnership with Central MA Connections in Faith, Westborough Interfaith Clergy, and the Westborough Public Schools.

“To me, Dr. King represents courage, hope, and an unwavering belief in justice – even when the world gives you reasons to feel discouraged,” Njuguna said. “His message reminds me that even one voice, especially a young one, can make a difference.”

For Black History Month in February, the Black Student Union has an “indoor field trip” planned at the high school. Students will have the opportunity to visit an array of exhibits, all reflecting Dr. King’s vision. Njuguna said students will learn more about Black culture, history, and how society has changed over time.

“I think it’s important to honor the legacy of MLK and what he had done for the Black community, because without him, we wouldn’t be here today,” Njuguna told the Community Advocate.

Additionally, the students in the group will take a field trip to Brown University, where they hope to meet with a professor Njuguna got in touch with who teaches Africana Studies and about the African Diaspora.

“BSU is not just a club, it’s a space for education, support, and connection,” she said.

“I’m glad that we have this community, so we all know that we have each other.”

CHOCOLATE & WINE PAIRING Presented by Missa Capozzo

We can’t live on chocolate alone — that’s why there’s wine! Carbernet, Riesling, Merlot, Pinot Noir, Rose... why not? You deserve it! Tantalize your taste buds and learn how wine can enhance the flavor of your chocolate. Hosted by sommelier and wine educator Missa Capozzo. Refreshments will be served.

RSVP: Melissa Berardo, 508-841-3375, mberardo@residenceorchardgrove.com

Friday, February 13 | 2:00 - 3:30 pm

258 Walnut Street, Shrewsbury 508-841-3375

residenceorchardgrove.com

Independent, Assisted & Memory Care Living

‘I wouldn’t give it up for anything’ Madelyn Glynn is the engine that keeps Algonquin girls’ hockey going COMMUNITY SPORTS

MARLBOROUGH – It was the first practice of the 2022 season. After helping Algonquin win the championship as an assistant the year prior, Head Coach Tina Beauchemin found herself sitting in the bleachers, evaluating players with a bird’s-eye view of the ice.

There were the usual suspects who had helped the team claim the title the year before. But there was also this freshman: young, incredibly fast, with an unmistakable drive and passion for the game. Even from afar, Beauchemin knew she had something.

“I’m watching this kid, and I’m like, ‘There’s no way she’s defense,’” she remembered.

Coaches don’t always trust first impressions – but sometimes, they’re impossible to ignore. Before the practice was over, Beauchemin sent word she’d like the freshman defenseman to consider a position change. After the newcomer scored a goal in her first shift during a scrimmage, Beauchemin knew Algonquin had its forward of the future.

Her name was Madelyn Glynn.

“She’s just a machine out there. She’s pure determination, she’s the spark you need. She doesn’t give up, and she plays with relentless tenacity and determination. After that first scrimmage, I knew this kid was going to be a great asset. She never looked back,” Beauchemin told the Community Advocate.

While Glynn grew into the team’s senior captain, she arrived at the Algonquin girls’ hockey co-op nervous, anonymous, and unsure of where she fit. An AMSA student and Marlborough native, Glynn wasn’t familiar with many of her soon-to-be teammates.

But with the support of coaches and teammates, Glynn found her way.

nobody from my school — I was so nervous,” said Glynn. “But everyone was so welcoming. Coach [Tina] was so welcoming – she was so awesome. Everyone was so supportive.”

Soon enough, it wasn’t just Beauchemin who noticed her speed. A three-sport athlete who also plays softball and volleyball, Glynn’s quickness is game-changing, helping her become one of the leading scorers in Central Mass.

“My playing style is just speed. I use it to the best of my ability. I might not have the best shot, or the best hockey IQ, but I know how to get down the ice and support my teammates,” said Glynn. “That’s what I try to do.”

But her on-the-ice dominance is only the half of it.

“Joining a big co-op, I was so scared. I came in knowing maybe one or two other girls, from just playing club. I knew

REIMAGINE EDUCATION

As the team’s senior captain, Glynn has led Algonquin through a time of transition.

With a new coach, half the roster being freshmen, and a new division, Algonquin had few constants — but Glynn was able to pick up the slack, effectively leading the team.

“It’s been incredible watching her become a leader, get more vocal in the locker room as her career has progressed.

She was becoming a leader even before she was captain. She’s gotten involved with off-season stuff, and started bonding with the girls,” said Algonquin Head Coach Will Downs, who took over for Beauchemin.

He added: “She is working 100 percent all the time.”

Glynn — who will study at Providence College — credits her family, teachers, and coaches for giving her the opportunity to balance school, club sports, sports, and extracurricular activities. It’s been a journey, but one that she has

thoroughly enjoyed.

“Playing for the Algonquin Titans my last four years has been my best experience in high school. I look forward to every game and practice. Winter can sometimes be long, but being with my teammates every day, playing the sport I love every day — I wouldn’t give it up for anything,” Glynn said.

It’s been a pleasure for her coaches, too.

“She’s one of my most favorite,” said Beauchemin. “She’s someone I’m proud to have coached.”

A grades 6 –12 day and boarding school where today’s students become tomorrow’s innovators by discovering their purpose and preparing for what’s next.
MARLBOROUGH, MA
Madelyn Glynn (Photo/Evan Walsh)
‘It’s more than a game to us’

Algonquin hockey honors Northborough fallen soldier in annual memorial game

NORTHBOROUGH – Algonquin Head Coach Greg Cappello doesn’t need to explain the meaning of this game to his team.

“They know,” he said.

Donning special camouflage jerseys, Algonquin took the ice on Jan. 17 at NorthStar Ice Sports for the most meaningful game on the schedule. Colors were presented before the game, a student gave a moving rendition of The StarSpangled Banner, and a No. 3 jersey hung high above the Algonquin bench.

That number belonged to Brian K. Arsenault. The night was about remembering him.

A lifelong Northborough resident, Arsenault’s life was defined by his dedication to his community, his love for his country, and his fondness for hockey. He started with pond hockey, later playing for Starhawks Youth Hockey

and the Northborough Men’s League. He was a four-year varsity player at Algonquin, graduating in 2004.

“This is such a beautiful night. This [NorthStar] was Brian’s second home,” said Arsenault’s mother, Leslie. “He started hockey in third grade, very late for hockey, and when he came home from the service, he didn’t care to go out with his friends or go swimming — it was stick time.”

Arsenault joined the U.S. Army and became a specialist in the 1st Battalion, 504th Parachute Infantry Regiment, 1st Brigade Combat Team, 82nd Airborne Division, and was assigned to Fort Bragg, North Carolina. On Sept. 4, 2014, he was killed in Ghazni, Afghani-

stan, after facing small-arms fire as part of Operation Enduring Freedom. He was 28.

onds into the game. Turns out the pep talk worked.

For the 11th consecutive year, Algonquin honored one of America’s most honorable.

“We’re close with the family — they’ve been huge supporters of this program, and we know how important this game is to them,” said Algonquin senior captain Gilbert Prepetit. “We’re a tight-knit group, the community comes out for this one, we wear the jerseys, and we all know what it means. It means a lot to a lot of people.”

Every year, the Titans get a pre-game speech from someone close to Arsenault. This year, it was a retired soldier — Arsenault’s former jumpmaster while stationed at Fort Bragg. Sitting in the NorthStar nosebleeds, he watched alongside the Arsenault family as Algonquin scored 17 sec -

game in overtime last year. Cappello was proud (and relieved) it didn’t happen again. “At the end of regulation, that was tremendous. We

“The message in that pregame speech is always the same every year: It’s about teamwork and family,” Cappello told the Community Advocate after the game. “It hits home right away, and then we come out and we start fast. That’s typically what happens, and we did it again tonight.”

In his first game back from a broken ankle, Quinn Shea notched a goal to move the lead to 2-0. With just over a minute of action remaining, though, the Titans found themselves behind, 4-3, and pulled their goalie. With an empty net behind him, Ajay Sealey scored a game-tying goal with mere seconds remaining. Algonquin and Hopkinton tied in overtime, 4-4.

The Titans had lost this

practice the 6-on-5, and obviously that was the moment for it. We had that offensive zone face-off, and the people who needed to be rested were rested, and they played with a lot of poise,” he said.

Tying the game was nice, but for Algonquin hockey, the Arsenault tradition has evolved into something that goes beyond the rink. The Saturday before the action, the team headed to Howard Street Cemetery to take down over 900 wreaths placed on the headstones of Northborough veterans.

It’s the type of selfless work Brian Arsenault was known for. And it’s exactly what Algonquin hockey is trying to bring into the limelight.

Said Ben Yosca, another senior captain: “It’s more than a game to us. It means more to wear these jerseys.”

5 course menu, each course served with a hand selected Scottish Whiskey at

THURSDAY JANUARY 29TH 6:30-9:00 pm at Cold Harbor Brewing company 66 Otis Street, Westborough ma

JANUARY 28TH 7-8 pm at julio’s liquors 140 turnpike road, Westborough ma

$10 per person scan qr code to purchase tickets Keepers Heart with brian nation

M-Sat 9am-9pm, Sun 10am-7pm Family Owned & Operated since 1974 Experience the Difference!

$85 per person. 65 person limit. Scan qr code for eventbrite link to purchase tickets 140 Turnpike Rd, Westborough Route 9 at Lyman St. 508-366-1942

juliosliquors.com OPEN 7 DAYS

Turn static files into dynamic content formats.

Create a flipbook
Issuu converts static files into: digital portfolios, online yearbooks, online catalogs, digital photo albums and more. Sign up and create your flipbook.