CA 240906

Page 1


$15.5 to $25 million

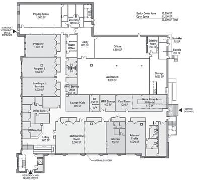
WESTBOROUGH – On Thursday, Aug. 29, a special joint meeting hosted by the Select Board, Council on Aging and Recreation Commission gave residents a better idea of what could go into the community center on Union Street, and the possible cost.

Based on input from public sessions

SHREWSBURY – Tim McInerney has been tapped to lead Shrewsbury’s Department of Public Works (DPW).

During an Aug. 27 Select Board meeting, Town Manager Kevin Mizikar announced that McInerney would become DPW director, a role that has been unoccupied following the departure of the former director Jeff McInerney | 4

Mary Ellen Duggan named Applefest grand marshal

NORTHBOROUGH – When Mary Ellen Duggan learned that she would be Applefest grand marshal, she was shocked.

“I love Applefest. I really do. It just brings everybody in the community out,” said Duggan. “There’s something for everybody.”

Meet Mary Ellen

Duggan grew up in Canton and moved to Northborough when she started her family.

“I think as my kids grew up, I grew with them in the ways you’re involved with town things,” she said.

Woman’s Club, the Northborough Food Pantry and Northborough Helping Hands Association Inc.

She is currently in her second year as copresident of the Junior Woman’s Club; she also volunteers with Community Meals, Our Father’s Table and Northborough Rotary Club and its Nutrition 68 program. She is also involved with her church St. Bernadette Parish as the outreach minister.

All of the work is intertwined, she said.

“I think there are so many opportunities to get everybody involved in helping our community. Our community is a helping community. If you have a need, and you put it out there, someone is going to answer your need,” Duggan said.

For example, when shoes were needed for the families who lived at the Econo Lodge, community members were “head over heels” donating items. The community is generous when people need sup-

That means helping out with Girl Scouts, PTO and Booster Club. She ran the snack shack for the Booster Club for many years. As her kids grew up, Duggan became involved with the Northboro Junior Stay up to date with all the news!

$41.4M fire station price tag to go before Town Meeting Plans approved for Albrecht Auto Group Students head back to school Boosters still raise funds after kids have graduated

Mary Ellen Duggan stands inside of the Northborough Food Pantry. She was recently named the Applefest grand marshal. (Photo/Laura Hayes)
Community Center | 9
The rendering for the first floor under Alternative 1. (Photo/Town of Westborough)

COMMUNITY NEWS

Speakers honor lives lost on overdose awareness day

MARLBOROUGH – Roughly

100 people gathered on the lawn outside the Walker Building in Marlborough on Aug. 27 for this year’s candlelight vigil marking International Overdose Awareness Day.

Speaking to the crowd, a slate of event speakers frequently mentioned the sea of purple flags to their left.

The 2,125 flags honored each of 2,125 lives lost to opioid overdoses in Massachusetts, as measured by the state Department of Public Health.

The number of flags is down from a 2022 peak of 2,357. But by unanimous agreement among the speakers, it is still too high.

Retire

“We can make those flags be smaller and smaller every year,” said Nick Joyce, the vigil’s audio engineer and

production manager.

Joyce took the microphone to discuss his experience of recovery.

“This disease is here, and it’s not going away,” he said. “But I’ll be damned if I let it take any more than it has to.”

International Overdose Awareness Day falls on Aug. 31 each year. National Recovery Month happens annually in September.

Marlborough resident and vigil organizer Kathy Leonard lost her son to an overdose in 2014. She organized her first vigil less than a year later and has continued placing flags

Exactly 2,125 purple flags dot the lawn outside the Walker Building in Marlborough, honoring each life lost to an opioid overdose last year.

(Photo/Dakota Antelman)

every August since then, interrupted only by the COVID-19 pandemic.

Speaking with the Community Advocate after assembling this year’s flag display on Aug. 23, Leonard said she has seen progress over the years.

Though far from gone, the stigma around talking about addiction has lessened. Marlborough’s annual vigil is now one of many in the area. Plus, lifesaving tools like Narcan, which can reverse an overdose if administered in time, have proliferated.

Still, the crisis continues.

The number of statewide opioid overdose deaths started rising in 2020 and reached an all-time high in 2022 after dipping following a previous peak in 2016.

In Marlborough, there were 10 overdose deaths in 2022. Where statewide deaths decreased, the local numbers of deaths increased in 2023, with 12 recorded fatal overdoses.

“One [death] is way too many,” Leonard said during her vigil remarks. “And every day, more families are left to pick up the pieces.”

Leonard finished her comments with a call to action.

“I know that the road ahead may seem long,” she said. “But I also know that by supporting one another, we can move forward with hope.”

Among other speakers, Kathryn Stygles Peirce discussed losing her son to an overdose. She spoke about her

grief and recalled sitting in the crowd at a previous vigil in Marlborough.

“I sat up on the hill and just wept,” she said. “But then I looked around and I wasn’t the only one weeping. We were passing tissues. We were starting conversations. We were making connections and bonds.”

Now the leader of a grief support group in Natick for loved ones of people who died due to overdoses, Stygles Peirce led the crowd in shouting out the names of fatal overdose victims.

Still eyeing the future, Leonard and other speakers sent vigil attendees home with a message they delivered throughout the event.

“Let’s acknowledge overdose awareness day and recovery month…and honor the lives that we’ve lost by working toward a future where fewer lives are lost,” Leonard said.

Live More. Worry Less.

Information Seminars

Longfellow’s

MA 01776

Wednesday, September 18

Lunch & Learn: 11:30 a.m. • Dine & Discover: 4:30 p.m.

Thursday, September 19

Lunch & Learn: 11:30 a.m

MARLBOROUGH – Community Advocate photographer Tami White captured photos of crews capping the old dump on Route 85 in Marlborough. For more photos, visit communityadvocate.com.

LETTERS TO THE EDITOR

The Community Advocate’s Policy on Letters to the Editor Letters must be signed with a name, address and telephone number for verification (only name and town will be printed). Letters should be sent to news@communityadvocate.com or mailed to Managing Editor c/o Community Advocate, 32 South St. Westborough MA 01581. The editor reserves the right to reject letters on the basis of length, libelous content, suitability and space constraints. Multiple letters from the same person will not be accepted within a 30 day period. “Form letter” submissions, in which the content of one letter is essentially duplicated, will not be accepted. Letters should be 350 words or less. Deadline is 12 p.m. Friday the week before publication. Opinions expressed in the letters to the editor do not necessarily represent the opinion of the Community Advocate management or its advertisers.

PUBLISHER/EDITOR: David Bagdon

ADVERTISING INQUIRIES: 508.930.9022

MANAGING EDITOR: Laura Hayes

ASSISTANT EDITOR: Maureen Sullivan

PROJECT EDITOR: Brett Peruzzi

REPORTER: Evan Walsh

ADVERTISING DEPARTMENT:

Diane Sabatini | 508.366.5500

Cynthia Merchant | 508.736.4332

Mary Ellen Cyganiewicz | 508-366-5500 ext. 17

Barbara Clifford | 508-769-6259

Melissa Tatten-Perry | 413-658-7372

LEGAL & CLASSIFIED ADVERTISING:

Cynthia Merchant | 508.736.4332

GRAPHIC DESIGNERS:

Ellen Bishop

Lynne Fountain

OFFICE MANAGER: Tracy Nickerson

BILLING INQUIRIES: Bookkeeping Dept. | ext. 19

LETTER TO THE EDITOR

ATTENTION – Mosquito Control Project Questions

The MA Mosquito Control Project is spraying pesticides from airplanes and trucks in various towns.

The mass.gov websiteb(https://www. mass.gov/info-details/mosquito-controland-spraying) states that the pesticide used is Anvil 10+10 and poses no “unreasonable risk.”

“Anvil and other similar pesticides are toxic to land-dwelling and waterdwelling invertebrates (e.g., dragonflies, beetles) and to fish. There is less risk to fish in larger ponds than in smaller ones and the risks to large natural water bodies are minimal. Those with small ornamental fishponds in their yards, however, may want to cover them during the night of spraying. These fishponds can be uncovered in the morning after spraying has been completed.”

The website instructs people to close windows and turn off fans that bring air in from outside, and if clothes are left outside during spraying, to wash them.

“People with known sensitivities to chemicals or with existing respiratory conditions, such as asthma, are encouraged to stay indoors during spraying to reduce the chances of aggravating those conditions. “

QR

The Community Advocate is a weekly periodical, (U.S.P.S. # 014-423), published by Bagdon Advertising, Inc., with offices located at 32 South Street, Westborough, MA 01581. Periodicals postage is paid at Shrewsbury, MA 01546 and additional mailing offices. Postmaster: Please send address changes to: Community Advocate, 32 South Street, Westborough, MA 01581. Publication date is Friday. Deadline for R.O.P. advertising, local community news and classified advertising is Friday, noon, seven days prior to publication. Not liable for typographical errors, however, we will reprint that portion of the ad wherein error occurred if notified in writing within three working days of the publication date. All material included is the property of The Community Advocate and may include material produced under copyright or a syndicated ad service. Permission must be obtained in writing before reproducing any material from any issue of the Community Advocate. 32 South Street • Westborough, MA 01581 (508) 366-5500 • FAX (508) 366-2812

@ CommunityAdNews FACEBOOK.COM

EMAIL FOR CALENDAR ITEMS: calendar@communityadvocate.com

Does this indicate to you that there is no unreasonable risk? Who defines what an unreasonable risk is?

I called the Massachusetts Department of Public Health Lab to ask how they define, “High Risk” — which would warrant the spraying and how they isolate a virus from a mosquito. They did not return my calls.

No one has the right to spray me and my property with anything against my wishes.

Decision makers at the Mosquito Control Project, Massachusetts and municipal Boards of Health, and the Department of Agriculture should be held personally responsible for any repercussions associated with this invasive procedure.

Mass.gov has an opt-out option, which takes 14 days to take effect. How much notice did they give the said towns? And how did the town deliver this information to their residents? In addition, what about the public places where our kids play and dogs walk? Do they put up signs to warn people?

Please contact your town’s Health Department, as well as mpha@mapublichealth.org and winton.pitcoff2@mass. gov (MA Dept. of Agriculture) to express your concerns.

Jodie Chapin, Northborough

Enzymes in Whiskey Making

Enzymes play a crucial role in the whiskeymaking process, particularly in the conversion of starches into fermentable sugars. During malting, enzymes are activated when barley is soaked and germinated, breaking down the grain’s complex carbohydrates into simpler sugars. This enzymatic activity is essential for the subsequent mashing process, where the malted barley is mixed with hot water. The heat further activates enzymes, which convert the remaining starches into fermentable sugars. This sugar-rich liquid, known as wort, is fermented by yeast to produce alcohol. Without these enzymes, the conversion of starches to sugars would be inefficient, resulting in a lower alcohol yield. Additionally, enzymes continue to play a role during fermentation and maturation, influencing the development of flavors and aromas.

The Spirits department at JULIO’S LIQUORS carries many hard-to-find items from single malt scotches to high-end vodkas and gins. We also house the Vigilant Smoke Shop, a state-of-the-art, full-service smoke shop with a knowledgeable, well trained friendly staff to cater to all of your tobacco needs. Every Wednesday we offer free whiskey tasting to the public. For more information, please call 508-366-1942, or visit us at 140 Turnpike Rd., Rt. 9 East

P.S. Simply put, enzymes act as catalysts that make biochemical reactions happen faster (if at all) than they would otherwise.

McInerney | from page 1

Howland on Feb. 2.

“Mr. McInerney has almost 20 years of public sector leadership experience. I think he’ll be a great asset to our public works team. He’s a great leader, and I think he’ll bring a unique perspective to help us problem solve and help us focus on very customer-

McInerney to become Shrewsbury DPW director WINE TASTING MACHINES

centric-oriented solutions when it comes to our public infrastructure,” Mizikar said.

McInerney grew up in Lowell and served as town administrator in Grafton from 2009 to 2020. He briefly worked as Worcester’s interim director of inspectional services before becoming Northborough’s town administrator in No -

vember.

McInerney submitted his letter of resignation effective this October. Following the announcement, Northborough town leaders praised McInerney’s performance; Select Board Chair Mitch Cohen called him a “great partner” and thanked him for leaving the town in a strong position.

Angel Share

“These have been some of the most difficult days and the most stressful decision I have had to make,” McInerney said at the time he submitted his letter of resignation. “I am sad that I have to make this decision after a short tenure. There is no one reason for my departure; it is many. All are personal.”

Mizikar to hold regular office hours

SHREWSBURY – Town Manager Kevin Mizikar will start holding regular office hours, he announced at the Aug. 27 Select Board meeting.

Mizikar will hold his first office hours session on Sept. 24 from 5:30 to 6:30 p.m. in the Town Hall’s Conference Room A. He’ll continue to hold office hours from 5:30 to 6:30 p.m. on the fourth Tuesday of each month.

With Mizikar’s office hours, residents will have the opportunity to meet with town leaders at least biweekly. The Select Board holds office hours on the second Tuesday of each month (just before its meeting) from 5:30 to 6:30 p.m.

The town manager’s office hours are the product of new, short-term goals Mizikar has implemented. The goals focus on “organizational culture,” “trust, community engagement and cooperation,” and “organization development planning.”

As part of meeting his goals, Mizikar has also implemented In Shrewsbury — a monthly internal email to town employees — and Common Ground, which will have Mizikar will speak at events throughout the community.

Shrewsbury

Police plans community night

SHREWSBURY – The Shrewsbury Police Department will sponsor a community night on Wednesday, Sept. 25, from 4 to 7 p.m. at the station, 106 Maple Ave.

There will be live music, food trucks, a chance to explore police vehicles, station tours, face painting and comfort dogs.

Rain date will be Oct. 4.

CORRECTION: In the Aug. 23 issue, Tom Potosnak’s name was misspelled in the article “Reunion brings back the music of Old Vienna Kaffeehaus.” We regret the error.

NORTHBOROUGH – The figure for the Northborough Fire Station project to be presented at Town Meeting has been determined — $41.4 million.

Colliers’ Tim Alix presented the figure during the Fire Station Building Committee meeting on Aug. 28.

“As we’ve added things and there’s been decisions made on scope, added in the geothermal, made some decisions on the retaining wall, the numbers have shifted a little bit, but we’ve been able to reduce that range,” said Alix.

The future fire station is proposed for 61-65 West Main St. and plans call for a 30,000-square-foot station.

When the figures were presented as part of the schematic design in late February, the project was estimated to cost between $43 to $49.9 million. After the committee supported a geothermal system, the range narrowed, and it narrowed

further with the design development review.

As the project has progressed to the construction document phase, the estimators had more to look at and place numbers to versus a contingency, Alix said. They have come up with an estimated total project cost of $44,863,992. This includes an estimated $33.4 million for construction; $905,000

for furnishings, fixtures and equipment; $6.8 million for fees and expenses and $3.7 in contingency.

However, this figure also includes the original Town Meeting appropriation for the project of $3.5 million, resulting in a required appropriation of $41,364,992 at Town Meeting this fall.

“The takeaway is we’ve been maintaining this range in

Northborough’s new fire station is proposed for 61-65 West Main Street.

(Photo/Laura Hayes)

this roughly $45 million project cost since February since we’ve started talking about values from the original schematic design estimate,” said Alix.

The committee noted that, in theory, Town Meeting could approve reducing this figure. Fire Chief David Parenti said the fire station is designed to the $41.4 price tag.

“I’ve seen line items zeroed out [at Town Meeting], but

that essentially does the same thing — it kills the project at that point,” said Parenti. He said just because Town Meeting appropriates this amount for the project “doesn’t mean it can’t come in at $40 million or $39 million,” noting that the Lincoln Street School project came in $1 million under budget.

“We’re setting everything up to have the most competitive bid possible,” said committee member Mitch Cohen. “We’re appropriating the money first so that hopefully more contractors will bid because they know it’s a real project. … We’re putting ourselves in the best position possible for it to be substantially less than that, but we won’t know until probably the early part of 2025 exactly what it will be and then further refined throughout the project.”

Committee members also noted that the project is expected to get rebates, including for the geothermal system and electric vehicle charging stations.

Maxo Joseph

MAB Community Services has awarded $58,000 to our direct care staff for excellence. Our staff keep participants healthy and safe while supporting their increased satisfaction and independence. These awards honor Maxo Joseph, an exceptional teammate who worked for MAB for nearly 20 years.

MAB Community Services provides residential and individual supports, transitional assistance, community-based day services, and employment services for people with intellectual disabilities or brain injuries throughout the Commonwealth of MA. Join our team as we do good by helping others!

Stefani Kennedy Stefani helps people with disabilities find meaningful jobs with any accommodation they need.

Patrick Parker Patrick’s classes help people with brain injuries recover and gain independence.

Olugbenga (Anthony) Osho Anthony helps participants with daily activities, is calm, and never complains.

Lily MacNamee Lily helps Robbie learn skills like saving money and cooking healthy meals.

Babatunde Adebiyi Babatunde is trusted and beloved. The participants call him “Mr. Bob”.

Romil Sanon

Romil gets participants ready for the day and supports them when they’re ill.

Bennett Anyanwu Bennett helps participants practice basic skills and provides exceptional care.

Stanley Ugochukwu Stanley saved a man’s life. He brings participants to their favorite places.

Dendirmwa Samuel Den shows initiative and supports elderly people with intellectual disabilities.

Antonia Drigo Toni has helped participants get fit and brings them to watch hockey practices.

Lisa Funches Lisa takes participants to Red Sox games, apple picking, live theatre, and the salon.

Planning Board approves plans for Albrecht Auto Group

WESTBOROUGH – Albrecht

Auto Group has been given the green light to renovate its facility at 80 Turnpike Road.

The Westborough Planning Board approved the site plan review on Tuesday, Aug. 20. According to Director of Planning Jenny Gingras, the decision will

be filed with the town clerk by the end of the month.

With the approval, the auto group plans to complete the demolition of the second-floor office area, and turn the remaining building into an auto mechanical facility. These plans will include 11 non-washing service bays; the installation of vehicle lift jacks and alignment equipment, floor drains; and an

First Parish welcomes new minister

NORTHBOROUGH – First Parish Church Unitarian Universalist of Northborough has welcomed Rev. Steve Wilson as the church’s new minister.

He said he is looking forward to getting to know Northborough and the surrounding communities.

“I feel proud, grateful and lucky that I am a UU minister,” Wilson said. “In recent years, our culture’s attention has both shortened and turned away from contemplation and toward popular entertainment. It has also

become increasingly mobile and segregated across generations.”

He continued, “Amid this landscape, the church has become a rare place where people can connect and engage. In church, at best, we care for one another, cultivate our characters, hone our consciences and are asked to act out of our commitments and deepest values, and I am honored to be a part of it.”

Wilson previously served at a parish in California before relocating to be near family in Lexington.

oil/water separator unit.

Two new overhead doors and an interior drain system will also be installed.

The issue of sewer allocation held up the application, as Albrecht Auto Group and the town tried to determine how much sewer flow would be allowed. Earlier this spring, the town imposed a sewer moratorium that prohibited new sewer connections, system expansions and increases in flow.

According to a letter from Town Engineer Lisa Allain, the town has determined the baseline flow for the property as 1,380 gallons per day – the same number claimed by Anthony Carbone, general manager for the auto group, based on the state’s Title 5 regulations.

At a previous meeting with the Planning Board, Carbone said that the actual flows are “substantially lower,” according to sewer bills received from the town; the flows for both 80 and 82 Turnpike add up to about 450 gpd, he said.

WESTBOROUGH – Fall for

Wellness, a free community wellness fair for all ages, will be on Sunday, Sept. 8, from 1 to 4 p.m. at Westborough High School.

The event, presented by the Square One collaboration (Westborough Public Schools, Westborough Youth and Family Services, Rotary Club of Westborough, Westborough Public Library and Westborough Connects), will connect attendees to resources that support mental and behavioral health, showcase various ways to positively impact well-being, and decrease the stigma surrounding mental health.

Come enjoy active sessions (e.g., family yoga, tai chi, mindfulness sessions); pick up resources in the expo area; or listen in during one of the information sessions. Learn about common items that can be used by teens to hide substances in the Hidden in

Plain Sight exhibit.

There will be light refreshments, door prizes, raffles and giveaways. Be among the first 50 attendees, and $20 will be donated in your honor to the National Alliance on Mental Illness’ StigmaFree Campaign, thanks to Dolan & Maloney Insurance Agency and Thomas Financial Associates.

The event is made possible, in part, through funding support from Reliant Foundation, Central One Federal Credit Union, Grossman Development Group, LLC, Avidia Bank Charitable Foundation, Rotary Club of Westborough and Synergy Wellness Center.

Stop in anytime during the day, or stay the whole time. Go to www.westboroughconnects.org for more information, including a schedule of events, and to save your spot for the active and info sessions.

because what you think and believe is the result of your circumstances. It is therefore imperative to discipline your thoughts in order to have a positive and constructive disposition towards life.

The greatest force in a healthy and emotional life is allowing the Holy Spirit to take control of your thoughts. You can, through the strength that Christ

There will be moments of disruption when evil thoughts will try to re-establish themselves, but if you focus on God and give Him control, nothing will destroy your peace.

SHREWSBURY – Calling all Taylor Swift fans, and all those who want to make a difference in the lives of local women.

Pawsitively 4 Pink — a Worcester-based organization that seeks to uplift low-income women burdened by breast cancer — is holding a fundraising concert at SAC Park on Oct. 5 from 4 to 9 p.m., rain or shine. The event will feature Taylor Nation, a Taylor Swift tribute band that will perform hours of music from every one of Swift’s eras.

Attendees are sure to have an excellent time singing and trading friendship bracelets, but the event is made more special considering each ticket purchased will benefit in-need women in the local area.

Founded in 2018 by Michelle Power, who has had several family members affected by breast cancer, Pawsitively 4 Pink has raised over $790,000 to help support low-income

families hampered by the disease. Oftentimes, when diagnosed, women are bombarded with bills, which are especially difficult to pay when treatment can take someone out of the workforce for a significant amount of time.

Pawsitively 4 Pink is able to help defray some of the financial burden, oftentimes helping women pay mortgages.

“Unfortunately we still live in a time where people do judge

people as lazy, and nobody wants to have those labels on them. In fact, many of the women we work with aren’t in that position at all. It’s not about being lazy. It’s about a diagnosis that puts them in this situation,” said Power. “For me, it’s a very humbling experience, to be honest. When I was younger, I grew up low-income, and there were several people throughout my life who showed me grace and comfort. For me,

it’s nice to be able to give that back to women.”

“We’re both very compassionate, community-focused and caring people. Not only is this something Michelle has a passion for, but we both have a passion for helping people, and we continue to do it in numerous ways. We care for the people of our community,” said Kathy Chapman, the president of the organization and Power’s wife of 20 years.

Gates will open at 3 p.m., and an opening act by Whit-

ney Doucet is scheduled for 4 p.m. Food and beverage will be available.

“I think it’s a family-friendly, affordable event that, in turn, supports your local community and the women in it. We’re making a difference, and we’re asking people to help us make that difference,” said Chapman.

Buy your tickets at https:// givebutter.com/Swiftie. For more information on Pawsitively 4 Pink, visit https://pawsitively4pink.org/.

Annual fair, apple pie social

GRAFTON – The 45th annual Harvest Fair and Apple Pie Social, hosted by the Congregational Church of Grafton, will be held on Sunday, Sept. 29, from 11 a.m. to 3 p.m. on the church grounds, at 30 Grafton Common.

The event will include homemade fresh apple pies and crisps; hot dogs, ham -

burgers, meatball subs, corn chowder, chili and beverages; a yard sale with household items, toys, jewelry, clothing and more; books for all ages; raffle baskets; silent auction items, including a handmade doll house; children’s activities, including a bounce house; and live musical performances.

Michelle Power (left) and Kathy Chapman at SAC Park, where their organization will fundraise in October. (Photo/Evan Walsh)

and a survey that drew 1,100 responses, Joel Bargmann, principal with Bargmann, Hendrie + Archetype Inc. (BH+A), presented the following conceptual designs:

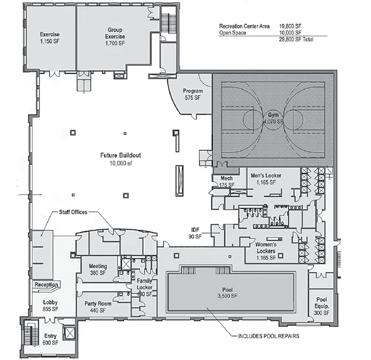
Alternative 1 – minimum space requirements. There would be minimal work on the second floor (where the Recreation Department will be); no internal connection with the first floor; and no buildout other than the Senior Center and the Recreation Department. This plan would include offices, a kitchen and program rooms, with 8,000 square feet for a future buildout, on the first floor; for the second floor, a refurbished pool and 10,000 square feet for a future buildout.

Alternative 2 – preferred space requirements. This would include a common entry with internal connection; and an area for a polling station and inexpensive activities within the Senior Center space. This plan could include the addition of a 4,000-square-foot auditorium and a pop-up space on the first floor; and an open play room on the second.

Alternative 3 – optimal space requirements. This would include a black box theater and more programming space for both floors. In this plan, there could be a billiard room and low-impact exercise room for the first floor; and the same features for the second floor as in Alternative 2.

Bargmann also presented a fourth option that consolidates the three alternatives.

He said the designs attempted to answer some of the top demands made by residents, like dedicated spaces for seniors and veterans.

The possible costs

According to Bargmann, the preliminary total project costs for Alternative 1 would be $11.5 million for construction; $15.5 million after factoring in costs for an architect, owners project manager, etc. Alternative 1 would include $8 million for the senior center; $1 million for the Recreation Department; $1 million for a new centralized elevator and connecting stair; $500,000 for required maintenance and repairs; and $400,000 for swimming pool renovations.

Bargmann pointed out that additional funds would need to be set aside for future main-

tenance, such as roof and HVAC replacement.

For Alternative 2, construction costs are estimated at $17 million to $18 million, with a total project cost of $22 million to $23 million.

For Alternative 3, construction costs are estimated at $20 million to $21 million, with total project costs at $24 million to $25 million.

Town officials, including Town Manager Kristi Williams, said some funds would be available to help offset the potential

costs, including a possible sale of the Senior Center on Rogers Road.

There could also be potential savings from a new kitchen. Because the center could serve as an emergency shelter, the kitchen (a requirement for a shelter) could draw some state grants.

Possible alternatives

Members of the Select Board pointed out that even if no plan is approved at Town Meeting, the community center still

belongs to the town, and the Recreation Department will be moving into the second-floor space this fall.

Chair Patrick Welch said if that situation arises, the approach could be similar to the Westborough Public Library. After the library was turned down at Special Town Meeting in December 2022, the renovation project was scaled back to a repair project.

He added that the remaining space could remain vacant until funds become available.

There are two more opportunities for public input. On Monday, Sept. 9, a community charette will be held in the Great Hall at the Forbes Building at 6 p.m. Attendees will review the proposed designs, which will be laid out on tables. On Tuesday, Sept. 10, at 2 p.m. at the senior center, there will be a charette follow-up at the senior center, 4 Rogers Road.

Learn more about the project at https://ma-westborough.civicplus.com/917/WestboroughCommunity-Center

Community
Alternatives 1 second floor; 2 first floor; and alternatives 2 and 3, second floor.

Aging Gracefully DIPHENHYDRAMINE AND

THE ELDERLY

Diphenhydramine, also known as Benadryl, is a drug that treats a wide range of conditions including allergies, anxiety, and urinary incontinence. It is also the most common ingredient found in over-the-counter sleeping pills and is also available by prescription. Common side e ects of diphenhydramine are more severe in the elderly. Many seniors take diphenhydramine over extended periods, resulting in subtle long-term cognitive e ects such as increased confusion after waking in the morning, dizziness, dry mouth, blurred vision, constipation, and behavioral issues. Many elderly may be unaware of the safety risks, so it is crucial to review any medication taken, especially if noticeable changes have occurred. Older people also shouldn’t take diphenhydramine if they have a history of liver disease.

Diphenhydramine and other antihistamines can react with medications including tranquilizers, barbiturates and monoamine oxidase inhibitors. e drug interactions can cause fainting or a dangerously irregular heartbeat. If a loved one requires long-term care, please consider NOTRE DAME LONG TERM CARE CENTER at (508) 852-3011. Our center is located at 559 Plantation Street. P.S. Diphenhydramine is also found in over-thecounter products with “PM” after the name.

Notre Dame Health Care

Long Term Care

559 Plantation Street, Worcester, MA 508.852.3011 · notredamehealthcare.org

Seniors on the move

Manage Heart Health for Stronger Brain Health

(Family Features) The same risk factors that contribute to making heart disease the leading cause of death worldwide also impact the rising global prevalence of brain disease, including stroke, Alzheimer’s disease and dementia.

e global death rate from Alzheimer’s disease and other dementias is increasing even more than the rate of heart disease death, according to the American Heart Association.

“The global rate of brain disease is quickly outpacing heart disease,” said Mitchell S.V. Elkind, M.D. M.S., FAHA, the past president of the American Heart Association (2020-21), a professor of neurology and epidemiology at Columbia University’s Vagelos College of Physicians and Surgeons and attending neurologist at New York-Presbyterian/Columbia University Irving Medical Center. “We are learning more about how some types of dementia are related to aging, and how some types are due to poor vascular health. It’s becoming more evident that reducing vascular disease risk factors can make a real di erence in helping people live longer, healthier lives, free of heart disease and brain disease.”

According to the statistics update, people with midlife hypertension were ve times more likely to experience impairment on global cognition and about twice as likely to experience reduced executive function, dementia and Alzheimer’s disease. e risk for dementia associated with heart failure was nearly two-fold.

Experts recommend maintaining a healthy weight, managing your blood pressure and following

other heart-healthy lifestyle behaviors that can also support good brain health while studies show maintaining good vascular health is associated with healthy aging and retained cognitive function.

Optimal brain health includes the ability to perform tasks like movement, perception, learning and memory, communication, problem solving, judgment, decision making and emotion. Cognitive decline and dementia are often seen following stroke or cerebrovascular disease and indicate a decline in brain health.

Consider these steps to live a healthier lifestyle and protect your heart and brain health:

• Don’t smoke; avoid secondhand smoke.

• Reach and maintain a healthy weight. Be mindful of your eating habits; eat foods low in saturated fat, trans fat, sodium and added sugars.

• Be physically active. Start slowly and build up to at least 150 minutes of moderate physical activity (such as brisk walking) each week. As an alternative, you can do 75 minutes of vigorous physical activity, or a combination of the two, to improve overall cardiovascular health.

• Get your blood pressure checked regularly and work with your health care team to manage it if it’s high.

• Have regular medical checkups and take your medicine as directed.

• Decrease your stress level and seek emotional support when needed.

Learn more about the relationship between heart health and brain health at heart.org.

Source: American Heart Assoc.

New Horizons retirement community in Marlborough offers independent living, assisted living, and memory care accommodations to meet a wide variety of needs. Assisted living and memory care service plans are uniquely personalized for each resident. The campus is also home to a 25-suite geripsych unit operated by an independent provider.

Schedule a visit today to discuss how New Horizons is right for you or your loved one. Immediate availability, including three home-cooked meals daily, starting at $2,400/month for one resident

Packard Street Commons

62 Packard Street, Hudson, MA 01749

BRAND NEW AFFORDABLE HOUSING COMMUNITY OFFERING ONE, TWO & THREE BEDROOM APARTMENTS

*SMOKE FREE* PET FRIENDLY* ONSITE LAUNDRY* COMMUNTY ROOM *TWO & THREE BEDROOM TOWNHOMES & ELEVATOR ACCESSIBLE BUILDING WITH ONE, TWO & THREE BEDROOM ACCESSIBLE UNITS

Monthly Tenant Rents

1 BEDROOM (13 UNITS)

2 BEDROOMS (22 UNITS) $1,836

3 BEDROOMS (5 UNITS) $2,121

3 One Bedroom Accessible CBH Direct Referral 30% Units, 3 Two Bedroom & 1 Three Bedroom are Homeless Preference 30% Units, 5 Two Bedroom 30% Units, 2 Two Bedroom 50% Units, 1 Three Bedroom 30% Unit, 1 Three Bedroom Accessible 50% Unit. See the website for details on preferences and set aside programs: www.packardstreetcommons.com. An applicable utility allowance based on bedroom size will be deducted from the rents above and is subject to change per EOHLC guidelines.

EXPECTED OCCUPANCY IN EARLY 2025

AMENITIES INCLUDE ON-SITE MANAGEMENT OFFICE, 24-HOUR EMERGENCY MAINTENANCE, OUTDOOR PATIO, 6 HANDICAP ACCESSIBLE UNITS, ELEVATOR ACCESSIBLE UNITS LOCATED IN MAIN BUILDING, 9 TWO AND THREE BEDROOM TOWNHOUSES, AVAILABLE ONSITE PARKING, ONSITE LAUNDRY, HEATING/CENTRAL AC AND HOTWATER ARE INCLUDED, CONVENIENT A CCESS TO DOWNTOWN HUDSON, INTERSTATE 495 & 290. INCOME LIMITS AND RENTAL RATES SUBJECT TO CHANGE. MOBILE VOUCHER HOLDERS ENCOURAGED TO APPLY. ALL APPLICANTS MUST MEET THE PROPERTY TENANT SELECTION PLAN CRITERIA. PREFERENCES AND SET ASIDE PROGRAMS APPLY. SEE WEBSITE FOR MORE INFORMATION.

Applications

Lottery Application Deadline: Thursday, October 31, 2024

Application can be accessed online at: www.packardstreetcommons.com

To request an application be mailed to you, or if you or a family member has a disability or limited English proficiency, and as a result need assistance completing the application and/or require any assistance during the application process, please contact us:

EMAIL : packardstreetcommons @maloneyproperties.com | WEBSITE: packardstreetcommons.com CALL: 617-209-5460/ Relay 711

Two Information Sessions will be held in person and via Zoom using the link on the website*

1.Wednesday, September 18th @ 6pm, Hudson Police Station Meeting Room, 911 Municipal Drive, Hudson, MA 01749

2. Saturday, September 28th @ 10am, Avidia Bank Community Room, 17 Pope Street, Hudson, MA 01749

*Information Session locations fully accessible, attendance not required for application

Paper Applications are available to be picked up at the Hudson Town Hall. All printed applications must be returned by mail o r in person to Maloney Properties Inc, 27 Mica Lane, Wellesley MA 02481 or by email no later than October 31, 2024 to packardstreetcommons@maloneyproperties.com.

Applications must be received or post marked by Thursday, October 31, 2024 to be included in the lottery. The lottery will be conducted by a third party electronic service provider Random.org. Applicants will be notified in advance of the lottery date, and it will be posted on the website.

Professionally Managed By:

For more information or if you or a family member has a disability or limited English proficiency, and as a result need assistance completing the application and/or require any assistance during the application process, please call 617-209-5460 / US Relay #711.

This is a paid advertisement

The Biggest Mistakes Sellers Are Making Right Now

Elaine Quigley, CBR, CRS, GRI

Elaine.Quigley@commonmoves.com

Cell: (508) 735-5161

www.EQRE.com

The housing market is going through a transition. Higher mortgage rates are causing more moderate buyer activity at the same time the supply of homes for sale is growing.

And if you aren’t working with an agent, you may not realize that. Here’s the downside. If you’re not informed, you can’t adjust your strategy or expectations to today’s market. And that can lead to a number of costly mistakes.

Here’s a look at some of the most common ones – and how an agent will help you avoid them when you sell.

1. Overpricing Your House

Many sellers set their asking price too high and that’s why there’s an uptick in homes with price reductions today. An unrealistic price will deter potential buyers, cause an appraisal issue, or lead to your house sitting on the market longer. An article from the National Association of Realtors (NAR) explains:

“Some sellers are pricing their homes higher than ever just because they can, but this may drive away serious buyers and result in unapproved appraisals . . .”

To avoid falling into this trap, partner with a pro. An agent uses recent sales of similar homes, the condition of your house, local market trends, and so much more to find the price that’ll attract more buyers and open the door for multiple offers and a faster sale.

2. Skipping the Small Stuff

You may try to skip important repairs, thinking you can pass the task on to

your buyer. But visible issues (even if they’re small) can turn off potential buyers and result in lower offers or demands for concessions. As Money Talks News says:

“Home shoppers like to turn on lights, flush toilets and run the water. If these basic things don’t work, they may assume you’ve skipped other maintenance. Homes that appear neglected aren’t likely to fetch top price.”

If you want to get your house ready to sell, the best place to turn to for advice is your agent. They’ll be able to do a walk-through with you and point out anything you’ll need to tackle before the photographer comes in.

3. Not Looking at Things Objectively

Buyers today are feeling the pinch of high home prices and mortgage rates. With affordability that tight, they may come in with an offer that’s lower than you’d want to see – especially if you didn’t stage, price, or market the house well.

It’s important you don’t take this personally. Getting overly emotional can put the sale at risk. As an article from Ramsey Solutions says:

“Remember, a buyer’s offer is not a reflection of their opinion of your home or your housekeeping abilities. . . The sale of your home is strictly a business transaction. If they start out with a low offer, don’t take it personally and get emotional. Instead, channel that energy toward negotiating. Work with your agent and make a counteroffer.”

4. Being Unwilling To Negotiate

The supply of homes for sale has grown. That means buyers have more options, and with that comes more negotiation power. As a seller, you may see more buyers getting an inspection, requesting repairs, or asking for help with closing costs today. You need to be prepared to have those conversations. As U.S. News Real Estate explains:

“If you’ve received an offer for your house that isn’t quite what you’d hoped it would be, expect to negotiate . . . the only way to come to a successful deal is to make sure the buyer also feels like he or she benefits . . . consider offering to cover some of the buyer’s closing costs or agree to a credit for a minor repair the inspector found.”

An agent will walk you through what levers you may want to pull based on your own goals, budget, and timeframe.

5. Not Using a Real Estate Agent

Notice anything? For each of these mistakes, partnering with an agent helps prevent them from happening in the first place. That makes trying to sell your house without an agent’s help the biggest mistake of all.

Real estate agents have experience and expertise in pricing, marketing, negotiating, and more. That knowledge streamlines the selling process and usually results in drumming up more interest and ultimately can get you a higher final price.

Bottom Line

If you want to avoid making mistakes like these, let’s connect to make sure you’re set up for success.

MEMBER FDIC 1Annual Percentage Yields (APYs) effective as of 7/1/2024 and subject to change at any time after the account is open. The interest rate and annual percentage yield for your account depend upon the applicable rate tier. The interest rate and annual percentage yield for these tiers may change. The APY range assumes a maximum deposit of $50,000 for illustration purposes only. Fees may reduce earnings. The account does not have a maximum deposit limit. Refund of domestic ATM surcharge transaction fees are capped at $25.00 per statement cycle. Non-UniBank ATM Surcharges are those fees charged by the bank that owns the non-UniBank ATM used. If the eligibility requirements are not met the account will earn a lower interest rate and corresponding APY and will not

Marlborough Downtown Pop-Up Shops

Vendor

Schedule

September 6 - 8

Petals & Leaf Magic & Color Co. Rocks & Roots

Meals by Mayari CRAG Fitness The Fig Collective September 20 - 22

September 13 - 15

Blue Bumble Bee Creations

The Fig Collective * Space Available *

September 27 - 29

Blue Bumble Bee Creations

The Fig Collective * Space Available *

13 Weed Street Fridays 4pm - 7pm Saturdays/Sundays 10am - 3pm A Rotating Retail Marketplace to Support Local Small Businesses

FOR SPENDING YOUR SUMMER AT THE WILLOWS!

The Willows at Westborough wants to extend a heartfelt thanks to the local high school students who brought energy and enthusiasm to our dining area this summer. Best of luck in the upcoming school year—we can’t wait to see you again next year!

An extra special thank you to Kielan Alamprese, Miranda Kathryn Antonelli, Salam Boulon, Anthony Ceciliano, Mayling Cheng, Chanel Cotto, Molly Courchesne, Aadrishma Dahal, Penelope Desjardins, Sadie Dullea, Cayla Ehrlich, Abigail Fiedler, Sydney Gage, Ella Glasgow, Mia Grandin, Emily Gray, Carrigan Henry, Samuel Jordan, Sawyer Jordan, Katherine Sarah Loban, Ompriya Maydipalle, Isabella McGuirk, Emily Perkins, Xinnaya Quee, Rachel Marie Reynolds, Rylie Rohloff, Theresa Roy, Kayzie Salmon, Sophia Schmidt, Rachael Swallow, Anabella Marie Taranto, and Georgia Tyrrell.

WORCESTER – Spotlight Design Center ensures that expert design can be afforded to everyone.

The company — which has its showroom conveniently located in downtown Worcester — leverages its experience with cabinetry, lighting and hardware to offer innovative solutions to refresh your kitchen or bathroom. Spotlight has experience with high-end, fullcustom designs, but is excited to help with any project — no matter the size.

“Design is our main focus,” Showroom Manager Morgan Vance told the Community Advocate. “While we do high-end projects, we’re also able to work with the clients to be in a price range they are comfortable in.”

With a large inventory of products at different levels, Spotlight Design Center is able to offer something to everybody. The company’s

showroom — one of the largest in the state — features five brands of cabinets to choose from, including more than 10 displays for clients to view. Spotlight also has more than 2 million lighting possibilities. Spotlight Design Center’s process starts with a complimentary, in-home consultation where the company’s skilled team of designers will take some measurements and

speak with the homeowner to determine the client’s vision and timeline. Later, the two groups meet at Spotlight’s showroom to view products, choose colors and delve deeper into the design.

In an industry that requires a keen eye, experience and attention to detail, Spotlight is there to help clients from concept to completion. It’s a hallmark of the company.

Spotlight Design Center in Worcester can help with any project. (Photo/ Courtesy)

“We don’t charge anything until we sell the product. We like the designs to sell themselves,” said Vance. “We want to cater to you. At the end of the day, it’s your kitchen. We just want to bring it to life. We’re very personable people, and we remain friends with many of our clients.”

The company’s collaborative process leads to gorgeous results. Spotlight Design Cen-

ter — which has dozens of pictures of cohesive, welllit kitchens posted on social media — takes great pride in designing a space that clients will enjoy and utilize.

“That before and after is what we love to see; the pictures are what make it so rewarding and make everything worth it. The final touches that we add — the hardware, the lighting, the backsplash — it all comes together and makes the design so incredible. Once you see the whole picture come together — it’s amazing to be a part of,” Vance said.

Spotlight Design Center is located at 86 Shrewsbury St. in Worcester. Visit the company’s website at https://www. spotlightkitchens.com/ or call (508) 762-9095 for more information. Spotlight Design Center can also be reached at spotlightkb@gmail.com. Business Profiles are advertising features designed to provide information and background about Community Advocate advertisers.

Clinton Savings Bank president and CEO to retire Papalia to offer Mobile ‘Road Show’ Trailer

CLINTON – Clinton Savings Bank recently announced that President and CEO Robert J. Paulhus Jr. will retire March 31.

Paulhus has been the driving force behind Clinton Savings Bank’s success for the past 25 years.

He spent his entire 42-year career in banking and led the commercial team at Clinton Savings Bank for nine years. He rose to become the executive vice president in 2008, and he was named the president and CEO later that year.

While Paulhus has experienced tremendous success as an executive, his greatest gift has been the opportunity to work with the talented and committed team of bankers at Clinton Savings Bank and work closely with many of their customers throughout the region.

Chairman of the Board William E. O’Neil Jr. said they were grateful for his commitment to the bank and their communities.

“While we’ll miss him being in an active role with the bank. His mentorship will help the next generation of bankers build on his exceptional legacy of leadership and service,” said O’Neil. “I will also personally miss Bob’s constant guidance and undisputed wisdom. We wish for Bob and his wife a healthy and happy new chapter in life.”

The board has elected Mary T. Dean, who is the executive vice president/ chief information officer, to become the next president and CEO.

REGION – Papalia Home Services is announcing the nearing completion of its new Mobile “Road Show” Trailer.

The trailer is a cutting-edge educational and interactive tool that is designed to bring the latest heating, cooling, electrical, water heating, water filtration, generator and smart home solutions directly to the community. It features top-of-the-line equipment from trusted manufacturers, including water filtration systems, mini-splits, traditional AC units, tankless water heaters, EV chargers and SMART panels.

Papalia Home Services is looking forward to connecting with the community and providing valuable insights into the latest home services technologies.

The Road Show Trailer will offer prospective clients an opportunity to explore these systems up close, receive hands-on experience and understand the benefit of the systems. Papalia plans to have the trailer become a staple of home shows, fairs, festivals, concerts and car shows throughout the fall and into the spring.

Robert J. Paulhus Jr.
Papalia Home Services’ Mobile “Road Show” Trailer will soon hit the road. (Photo/ Courtesy)

Umpire’s life saved by Southborough doctor

SOUTHBOROUGH – Even after a foul ball resulted in him going into cardiac arrest, umpire Korey Pontbriand can’t wait to get back on the field.

At a Little League game on July 11, Pontbriand was hit in the neck in an accident. Despite having been hit in the same place the year before, Pontbriand wasn’t immediately concerned.

“Just like every other game, I decided to keep on going. It takes a lot, and I’m very, very stubborn on getting pulled off the field,” Pontbriand said.

Dr. Jennifer LaFemina, mother of an Algonquin player and Southborough resident, observed Pontbriand struggling to walk and speak after the incident. Concerned for his well-being, she urged him to leave the field.

Suddenly, Pontbriand dropped to the ground and went into cardiac arrest. He

couldn’t breathe and his heart stopped beating. LaFemina and Emily Lutfy, her medical assistant, administered cardiopul-

monary resuscitation until the emergency medical technicians could arrive.

“In the moment, we had one

focus, which was to successfully resuscitate Mr. Pontbriand. I sincerely believe that the CPR was successful because it was

started immediately and without any delay and that those individuals who mobilized to form a team did so with excellent dynamics,” LaFemina said.

Pontbriand shared this sentiment.

“I am beyond eternally grateful for everything that every person did on that day. It wasn’t just one person; it was absolutely everybody,” he said.

Pontbriand was intubated for two days at UMass Memorial Health and in the intensive care unit for eight. He now wears a neck brace to help the tissue damage around his spinal cord. Despite this, he hopes to get back to umpiring within the month.

“If I stopped playing or being an umpire because I got hit by a baseball, I probably would have quit within the first 20 minutes of becoming an umpire,” Pontbriand said.

Being an umpire is fundamental to his life.

“It’s not even about the monUmpire | 17

Left: Jennifer LaFemina and Korey Pontriband embrace at a WooSox game on July 30. Right: Korey Pontbriand dedicated a tattoo that he got to Jennifer LaFemina and her actions. (Photos/Courtesy/UMass Memorial Health)

Umpire | from page 16 ey for me,” Pontbriand said. “I do Little League games more than high school games because, at this age, I want the kids to understand the purity of the sport and why they get to play the game. I want to show them how fun it’s supposed to be. It’s not about how many home runs or how many times you get on base; it’s about the love of the sport.”

His dedication to baseball was exemplified during the game when he took the time to encourage LaFemina’s son, Greyson, who was struggling against the Oxford team.

“Korey defines the core of Little League, and I sincerely believe that the good that came out of that night was a direct result of Korey paying it forward through his commitment to the game and the kids’ futures,” LaFemina said.

The relationship between LaFemina and Pontbriand, once strangers before the near-fatal accident, has now grown into a close bond.

“Jen is a part of my family. I talk to her at least three to four times a week. She’s always

checking on me and she’s always seeing how I’m doing,” Pontbriand said.

LaFemina also expressed her gratitude for being part of the process.

“July 11 will be the day that Korey, his wife, Jess, and I will be forever bonded through. I have been grateful to Jess and Korey’s mother, Crystal, for allowing me to be part of his recovery and this journey. We are already looking forward to the games that he will umpire for our 8-year-old and hopefully, in two years, for our team when we go to Cooperstown,” she said.

Pontbriand also eagerly anticipates those days.

“I still have a road I need to go down to get through this but I have a lot of support, a lot of love and a lot of people out here,” he said. “I’ll be out on that field before you know it, I can promise you.”

A GoFundMe was made to support Pontbriand and his family during the recovery process that people are welcome to donate to. The link: https://www.gofundme.com/f/ support-korey-pontbriandsrecovery

Duggan | from page 1

port, which she has personally experienced.

“If I can make someone else’s life easier, that’s really my job. That’s why we’re put on this Earth — to make someone’s else’s journey a little easier,” Duggan said.

In their nominating letter, members of the Junior Woman’s Club noted that Duggan helped organize the curbside Community Meals and chaired the meal for St. Bernadette’s when they returned to being held in-person.

When the new families arrived at the Econo Lodge, Duggan made sure the children were ready to attend school in the fall, helped organize clothing drives and baby showers, arranged rides for high schoolers who wanted to participate in after-school sports, and celebrated the children’s birthdays.

“We know that this is just a snip-it of the many kind and caring acts that Mary Ellen does for others in her community,” the Juniors wrote. “… Mary

Ellen ‘lives each day trying to accomplish something, not merely to exist,’ words from the Junior Woman’s Club Pledge.”

Work in schools

Duggan said her job with the Public Schools of Northborough and Southborough is great, as she’s able to interact with these helping organizations.

Duggan worked as a pediatric nurse at UMass Memorial for the first 20 years of her career before becoming a school nurse in Southborough. She served as a school nurse for about 15 years, and was then tapped to be the nurse leader and district wellness coordinator.

Superintendent Greg Martineau said that she “exemplifies unwavering dedication and commitment to NSboro students, consistently putting their needs and well-being at the forefront of her efforts.”

She was working in this role during the COVID-19 pandemic. Duggan said that if she had to pick an upside from the past five years, it would be the collaborative health and wellness initia-

tive, Be Well Northborough.

The initiative was led by town staff from numerous departments to help the community recover from the pandemic.

“Making those connections and the connections with the health departments and bringing everybody together for a common good [was great], even though it was a difficult time for everybody. I think the relationships that were formed during that were something that would never have happened,” Duggan said.

She noted that she is only one person who is involved with these organizations and this work. You can’t do anything by yourself, she said.

“There are so many ways to volunteer and help others that you might not think that you have time. It’s the season of your life how you can help. Making a meal for your neighbor who just had a baby might be your season or life, or it might be being involved with Junior Woman’s Club or Helping Hands or whatever it is,” Duggan said.

Westborough Library plans annual open house

WESTBOROUGH – The Westborough Public Library will hold its annual open house on Friday, Sept. 6, from 5 to 7 p.m.

There will be live music from the Hip Swayers, a magician, a visit from Minnie Mouse and a Minion, and free pizza and desserts.

Come and learn all the library has to offer, including

information on its eResources featuring the Palace Project and A to Z Foods, the Westborough Center for Culture and History, Library of Things, museum passes and so many other valuable resources.

You’ll also have a chance to welcome the library’s new director, Kate Coraccio.

All are welcome.

Your Money, Your Independence

Mastering the College Admissions Process

Navigating the college admissions process can be a complex and stressful experience for both students and parents.

Understanding nuances of early action and early decision, exploring merit-based aid, and utilizing 529 plans and loans effectively can impact this journey. Here’s a guide to help clarify these crucial financial aspects.

Early Action vs. Early Decision

When it comes to college applications, Early Action (EA) and Early Decision (ED) are two options usually due November 1st, but they have distinct differences.

Early Action (EA) allows students to apply earlier than the regular deadline and receive a decision sooner, but they do not have to commit immediately. This means students can apply to multiple schools under EA and weigh their options.

Early Decision (ED) is a binding commitment as students agree to attend that college if admitted. Applying ED can enhance acceptance chances because admissions committees view ED applicants as highly motivated. However, it is crucial to request any needed merit aid in the application process, as later requests of needing aid to attend can jeopardize the acceptance.

Focus on Merit-Based Aid

Merit-based aid is financial assistance awarded based on a student’s academic, athletic, or artistic achievements rather than financial need. To maximize merit-based aid:

Take The Road Less Traveled: The “trophy schools” aren’t giving a lot of merit, because they receive many applications and don’t need to incentivize top students. Therefore, look for niche colleges and/ or programs in big schools that excite your student and align to their strengths.

Build Student/Recruiter Relationships: Merit is a relationship business, where personal interactions influence rewards. Encourage students to proactively connect with local recruiters and express their interest in specific programs. Ongoing communication leads to sharing campus visit plans, allowing the recruiter to set up meetings with professor(s) and admissions. Upon applying EA or ED, your student shares with the recruiter and admissions personnel their enthusiasm, application, and calculation

of merit needed to attend. Now admissions has a personality with a name and need, plus the local recruiter is making your student’s case.

Students must lead these communications, as recruiters are turned off when parents are writing, editing, and/or speaking for the student.

Using 529 Funds

Contributions to a 529 plan grow tax-free, and withdrawals for qualified education expenses are tax-free. To use funds from a 529 plan effectively: Adjust Investment Strategies: If your child is only a couple of years from starting college, then shift a portion of future expenditures into more stable investments, such as bond funds or money markets, to help minimize future volatility and potential losses.

Qualified Expenses: Ensure that withdrawals are used for qualified expenses like tuition, fees, books, and room and board. Using funds for non-qualified expenses can result in penalties and taxation at the parent’s AGI rate.

Exploring Loan Options

Understanding the different types of loans can help in managing student debt:

Federal Student Loans: Typically offer lower interest rates and more flexible repayment terms compared to private loans. They include Direct Subsidized Loans, where the government covers interest while the student is in school, and Direct Unsubsidized Loans, where interest accrues immediately.

Parent PLUS Loans: These are federal loans parents can take out. They have a fixed interest rate and offer flexible repayment terms but place the financial burden on parents.

Private Loans: Offered by banks or private lenders, have higher interest rates and fewer repayment protections than federal loans, so they should be the last resort.

In conclusion, informed parents and proactive students can achieve better financial outcomes and a smoother transition to college life. To learn more, talk with your Certified Financial Planner.

The opinions voiced in this material are for general information only and are not intended to provide specific advice or recommendations for any individual.

Glenn Brown lives in MetroWest and is owner of PlanDynamic, LLC, www.PlanDynamic.com. He is a fee-only Certified Financial Planner™ helping motivated people take control of their planning and investing, so they can balance kids, aging parents and financial independence.

Community Snapshot

Library. I C.A.N. stands for Independent Confident, Assertive and Necessary to say “No.” The seminar addressed topics, such as removing yourself from uncomfortable situations.

Shrewsbury’s MBTA zoning plan to be discussed ahead of Town Meeting

SHREWSBURY – Shrewsbury’s MBTA zoning proposal will be in the limelight for the next few months.

At an Aug. 27 Select Board meeting, Town Manager Kevin Mizikar outlined opportunities for discussion and public feedback regarding Shrewsbury’s MBTA zoning proposal. The town — which has until Dec. 31 to pass MBTA zoning — hopes to pass the proposal at Town Meeting in November.

Shrewsbury’s MBTA zoning proposal contains three main parcels along the Route 20 corridor in southern Shrewsbury: Shrewsbury Commons, 409 South St. and Emerald Run (3369 Green St.). The zone is roughly 118 acres. Shrewsbury must zone for 1,497 potential housing units.

Here’s an overview of the timeline:

Sept. 5: Planning Board Meeting – review EOHLC feedback, request warrant article, present

compliance model.

Sept. 10: Select Board Meeting – comments, vote to send MBTA zoning to Planning Board hearing.

Oct. 3: Planning Board Meeting – present updated plan, public hearing.

Oct. 8: Select Board Meeting – sign Special Town Meeting warrant, receive updates on MBTA zoning.

Oct. 17: Finance Committee Meeting – preview Special Town Meeting warrant.

Oct. 24: Special Planning Board Meeting – vote on recommendation, public hearing, present updates to plan.

Nov. 7: Special Finance Committee Meeting – public hearing on the entire Special Town Meeting warrant.

Nov. 12: Select Board Meeting – vote on article recommendations.

Nov. 18: Special Town Meeting – Town Meeting votes on articles.

Dec. 31: Deadline to Pass MBTA zoning

Glenn Brown, CFP
SHREWSBURY – Community members gathered for an I C.A.N. seminar sponsored by America’s Best Defense at Shrewsbury Public
Pictured: Chi Arpin, Sensei Sarah, and Prisha Nair.
Westborough Public Library plans an open house on Sept. 6.

Local residents taking part in Jimmy Fund Walk

REGION – Local residents will be taking part in the annual Boston Marathon Jimmy Fund Walk, presented by Hyundai, on Sunday, Oct. 6.

“For 35 years, the Jimmy Fund Walk has continuously supported lifesaving research and cancer care at Dana-Farber [Cancer Institute]. Our goal is to build off the momentum we’ve established throughout that history, and in 2024 aim to surpass our total from last year by raising $9.5 million,” said Caitlin Fink, assistant vice president of event fundraising. “Fighting cancer is what we do. The walk unites our community under a common goal — to defy cancer together.”

Marlborough – Jessica Ashman, Debra LaFrankie, Leonardo Mercado, Andrea Escobar, Chris Weyant, Joan Morrissey, Ileana Fournier, Melody Ashman, Chris Parrinello and Catherine Glennon

Hudson – Ed Hannan, Katie Trudelle, Tom Galvin, Julia Blanchard, Jay Patel, Lori Marotta, Pauline Sciarappa, Ken Sciarappa, Rob Beairsto, Nathaly Davis, and five other residents

Shrewsbury – Julia Mazzola, Erica Hanlon, Matthew Nugent, Kimberly Rotunno, David Fish, Jessica Fish, Ann Maloney, George Delaney, Aileen Thurber, Robert Howe, and six other residents

Northborough – Linda Rawstron, Katie Apicerno, Jason Lewis, McKenzie Roy, Renee Gould, Richard Sibbick, Xavier Reilly, Kristin Boggio, Olivia Reilly, Rose Reilly, and one other resident

The Jimmy Fund Walk is the only organized walk permitted to use the Boston Marathon course, and participants have the flexibility to choose from four distance options: 5K walk (from Dana-Farber’s Longwood Medical Campus); 10K walk (from Newton); half marathon walk (from Wellesley); and marathon walk (from Hopkinton). Walkers can participate virtually as well.

Whatever route participants choose, they will be supported by hundreds of volunteers and

treated to refueling stations with refreshments throughout the course. Poster-sized photographs of patients — Jimmy Fund Walk Heroes — are the heart of the event and appear along the course as inspiration.

All routes will conclude at the Jimmy Fund Walk Finish Line powered by Schneider Electric at Boston Common,

by the corner of Charles and Beacon streets. Finish line activities will include a celebration with food, entertainment and more.

To register for the walk or to support a walker, visit www. JimmyFundWalk.org or call 866-531-9255. Registrants can enter the promo code NEWS for $5 off the registration fee.

All registered walkers will receive a bib, medal and Jimmy Fund Walk T-shirt.

The Jimmy Fund is composed of community-based fundraising events and other programs that, solely and directly, benefit Dana-Farber Cancer Institute’s mission to provide patient care and groundbreaking cancer re -

search for children and adults.

The Jimmy Fund is an official charity of the Boston Red Sox, the Massachusetts Chiefs of Police Association, the Pan-Mass Challenge and the Variety Children’s Charity of New England. Follow the Jimmy Fund on Facebook, X, and Instagram: @TheJimmyFund.

At New Horizons retirement community in Marlborough, our spacious residences and on-site amenities have aesthetic appeal and ensure comfort. Available housekeeping and transportation services, group activities, and delicious home-cooked meals add to the convenience.

Two-bedroom assisted living suites, including three homecooked meals daily, range from $4,200 to $4,900 per month, single occupancy. An additional occupant is only $100 per month.

Solomon Pond Mall welcomes Hey Kiddo’s Playtime

MARLBOROUGH – The latest business to open at Solomon Pond Mall is not a store or restaurant; it is an indoor playground space designed to be safe and welcoming for parents and children alike.

Hey Kiddo’s Playtime officially opened on Thursday, Aug. 29, in the first-floor space formerly home to Linen N Things.

A ribbon-cutting ceremony took place on Wednesday, Aug. 28, attended by officials from Berlin and Marlborough. Mayor J. Christian Dumais presented a citation to the coowners,

Cultural Arts Council invites grant applications

SOUTHBOROUGH – The Southborough Cultural Arts Council grant cycle officially opened on Sept. 1.

The town of Southborougeh has been awarded $6,400 from the state via the Massachusetts Cultural Council to be directed toward serving arts and cultural programming in the coming year to Southborough residents.

The applications close on Oct. 17. Awards will be made in the amount of $250 to $1,000 to eligible

projects.

Based on input from a community survey, the council is encouraging projects that serve families with children and senior citizens to apply. In fiscal year 2024, the council awarded fund to projects, including Arts on the Trail, Northborough Area Community Chorus’ spring and Christmas programs and Southborough Library programs. For more information, visit https://massculturalcouncil.org/local-council/southborough/.

a

Soares, and Jean and Paula de Amorim.

The co-owners were born and raised in Brazil; the Soares now live in Berlin, while the de Amorims live in Ashland. They came up with the idea for Hey Kiddo’s after trying to find suitable playground space for their children.

“Being dedicated parents, we have always sought to provide the best for our children,” according to a press release provided by Hey Kiddo’s. “However, we realized that the indoor play-

grounds available in our region did not offer the safe, stimulating and welcoming environment that we so desired.”

What’s inside

The space is divided into three age-appropriate areas – 1 to 3 years old; 3 to 6 years old; and 6 to 12 years old. There are soft play structures, a ball pit, a climbing structure and an arcade.

Hey Kiddo’s also offers a café, a seating area for parents, party rooms and a special room for STEM and robotics.

There are plans to add a podcast room in the near future.

“We have created a space where learning and playing go hand in hand, providing a complete and unforgettable experience for families,” according to the press release.

“This is edu-tainment,” said Liz Kelley, the general manager for Solomon Pond Mall.

For information about Hey Kiddo’s Playtime, call 508-2512423, or visit www.keykiddosplaytime.com.

Claudio and Graziela
Left: Co-owners Claudio and Graziela Soares, Jean and Paula de Amorim, and their children cut the ribbon for the opening of Hey Kiddo’s Playtime. Right: There’s more to Hey Kiddo’s Playtime than just playtime — there’s
room for children to engage in STEM and robotics. (Photos/Maureen Sullivan)

Moore jumps out of a plane for a cause

WORCESTER – State Sen. Michael Moore (D-Millbury) joined the executive directors of CASA Project Worcester County for a bit of skydiving on Saturday, Aug. 24, at Skydive Danielson in Connecticut.

“There is nothing I won’t do to drive awareness and funding to the issues that impact youth here in our community – even jumping out of a perfectly good airplane,” said Moore.

“The Sky’s the Limit” campaign was to raise awareness for funding for the CASA Project and Legendary Legacies. These nonprofits have intersections in supporting youth and families in the margins of society while providing advocacy, support and resources. Both organizations focus on serving Worcester and Central Massachusetts, and they have benefited from Moore’s partnership.

Julie Bowditch, executive director for CASA Project Worcester County, said, “It is an honor and privilege to have support so

State Sen. Michael Moore gets some sky as part of an awareness and fundraising campaign for CASA Project Worcester County and Legendary Legacies. (Courtesy photo)

strong that community leaders and legislators alike will put their advocacy into action to bring visibility to our work.”

“The courage to skydive is nothing compared to the resilience our participants show every day, overcoming countless obstacles,” said Ron Waddell, executive director of Legendary Legacies.

Those who joined in the skydiving event included Liz Wambui, director of diversity,

inclusion and community impact, Fontaine Bros. Inc.; Sean Brennan, associate principal/ marketing and business development director, Lamoureux Pagano Associates | Architects; and Jeanette Tozer, Affordable Housing Trust Fund manager, city of Worcester.

Donations to the campaign can be made at www.thecasaproject.org/donate, and will be split equally between CASA and Legendary Legacies.

WESTBOROUGH – Two lawyers from Westborough were selected by their peers for inclusion in “The Best Lawyers in America (2025 edition).”

Jonathan R. Sigel was recently selected in the fields of litigation — labor and employment and employment law — management. Sigel has been recognized since 2013.

He is a partner in the labor, employment and employee benefits group at Mirick O’Connell. He advises clients on a broad range of employment issues, including employment and severance agreements, handbooks and policies, and terminations and layoffs. Sigel also advises management on proper wage and hour classification.

Brian Casaceli was selected for his work in employee benefits (ERISA) law, labor and employee law — management,

and litigation — labor and employment. This is his second year listed.

Casaceli is a partner in Mirick O’Connell’s labor, employment and employee benefits group.

Casaceli focuses his practice on representing employers in federal and state courts in Massachusetts, as well as before the Massachusetts Commission Against Discrimination and the Equal Employment Opportunity Commission in defense of claims of discrimination, sexual harassment, wrongful termination, breach of contract and wage payment violations.

Since it was first published in 1983, Best Lawyers has become universally regarded as the definitive guide to legal excellence. For the 2025 edition, more than 23 million votes were analyzed, which resulted in more than 80,000 lawyers included in the 31st edition.

COMMUNITY OBITUARIES

The Community Advocate will post obituaries online (and in print, as space allows). Please send information (and a picture if desired) to tracy@communityadvocate.com. Here is a complete list of individual obituaries posted on the Community Advocate website (www. communityadvocate.com).

DEATHS

Akman, Joyce of Shrewsbury Dorr, Phyllis formerly of Westborough Dowd, Noelle formerly of Grafton Dullea, Kimberly of Shrewsbury Dumas, Ada of Shrewsbury Dusseault, Frederick former Hudson Fire Chief Findley, Deborah of Marlborough Gladu, Paul of Marlborough Gleason, Robert of Northborough Irujo, Dr. Suzanne of Marlborough MA Madden, Michael of Hudson Mangual, John of Marlborough Mastro, Claire formerly of Shrewsbury McDonough, William of Marlborough Murphy, Francis of Hudson Opacki, Cynthia of Shrewsbury Ponton III, John of Grafton Pratt, Linda of Westborough Reshamwala, Mahesh of Shrewsbury Senecal, Marie of Shrewsbury Shepherd Jr., Paul of Marlborough Zina, David of Hudson

Francis J. Murphy, 79

HUDSON - Francis Joseph “Frank” Murphy, 79, of Hudson peacefully passed away at home on August 20, 2024. Frank lived life to the fullest, extended a helping hand to anyone in need and loved with his whole heart. Frank was predeceased by his parents, Merle and Alice Murphy. He is survived by his brothers Michael Murphy and Shawn Murphy, and his sister, Rosemarie Carnes. Cherished husband of Terri Murphy of Hudson, MA. He was the loving stepfather of Kevin Ruse and his wife, Beth of Mansfield, MA and Deron Ruse and his wife Melissa of Phoenix, AZ. Beloved grandfather/Poppa/Pa of Parker, Thomas and William Ruse. He is also survived by many loving nieces, nephews, grand-nieces and grand nephews, who affectionately referred to him as

Uncle Frankenstein.

Rest in peace, Frank. You will be missed beyond measure. You leave behind a legacy of love. You will be with us always. Your spirit will live on in all who knew and loved you.

Mahesh Reshamwala, 80

SHREWSBURY - Mahesh Reshamwala, a beloved husband, father, grandfather, brother, friend and community leader, passed away on August 23, at the age of 80, succumbing to cancer. He peacefully left this world with a sound mind and was surrounded by his dear wife (Ketki) and cherished sons (Nilesh and Chetak).

Mahesh is survived by his wife Ketki, brother Dipak, sons Nilesh and Chetak, daughterin-law Amy, and grandchildren Sejal and Nikhil. We will remember Mahesh for his devotion to his family, his passion for education and development, his love for food and sharing it with others, and his joy of playing cards.

A memorial service was held Aug. 28 at the ISW India Center of Shrewsbury.

Frederick R. Dusseault, 73

STOW - Frederick R. Dusseault, 73, formerly of Hudson, MA, and a resident of 40 years in Stow, MA passed away after a tragic accident while working on his waterfront property on Saturday, August 24, 2024. He was the beloved husband of Michele M (Schrager)Dusseault, the beloved father of Jeremy P. Dusseault of Hudson, MA and beloved son-in-law of Joseph D. Schrager of Hudson, MA. Fred was born in Framingham, MA, the first of 5 children to the late J. Frederick Dusseault and Mary L. (Claffey) Dusseault. He was a big brother to Thomas Dusseault, Mary L Dusseault-Constance, Ellen Dusseault, and Maureen Morel. Along with his sisters and brother, Fred was also a brother-in-law to Donald J. Schrager, Frank Constance, Richard Morel, Gary and Karen Trainor. He was an uncle to

Olivia Schrager, Chloe(Morel) Haberstro and Nigel Morel. Tighe Hamilton Regional Funeral Home of Hudson assisted with arrangements.

Ada Dumas, 94

SHREWSBURY - Ada Whitney Dumas, age 94, a lifelong resident of Shrewsbury MA, passed away on 26 August 2024.

She leaves behind sons Joseph Dumas, John Dumas and Wayne Dumas (deceased). She leaves 3 grandchildren, four great-grandchildren, and many nieces and nephews.

The family would especially like to thank brother Bob and his wife Pam Dumas for all their loving support over the years. Also, Ms. Annamaria Nickle, Ada’s best friend in the last part of her life.

There will be a Mountain View Cemetery service, which will be announced at a later date.

Linda A. Pratt, 76

WESTBOROUGH - Linda A. Pratt, beloved daughter, sister and friend, passed away peacefully in her sleep on Saturday, August 24, 2024. She recently celebrated her 76th birthday on August 15th.

Surviving Linda is her beloved father, Frank E. Pratt and her supportive sister, Susan E. Jusseaume, both of Northborough; an aunt, Arliss Gould of Farmington, Maine, a nephew, Adam Jusseaume and a niece, Nicole Palaima and numerous cousins. Linda was preceded in death by her mother, Ethel and a brother-in-law, David Jusseaume.

Hays Funeral Home of Northborough assisted with arrangements.

John A. Mangual, 58

MARLBOROUGH - John Anthony Mangual, 58, of Marlborough, MA, passed away on Monday, August 19, 2024. He was the beloved husband for 23 years of Patricia (Devlin) Mangual.

John is survived by his wife Patricia (Devlin) Mangual; his father John Mangual; his son Matthew Mangual; his daughters Rebecca Blackburn

Scan QR code to read all of this week’s obituaries on our website.

of North Attleboro, MA, Katie Payne and her husband Jeff of Augusta, GA, and Elizabeth Borneman and her husband Brandon of Gilford, NH; his sister Maureen Larson and her husband Darryl of Marlborough, MA; as well as many aunts, uncles, cousins, nieces and countless friends. He is predeceased by his mother Lorraine (Charbonneau) Mangual.

Tighe Hamilton Regional Funeral Home of Hudson assist with arrangements.

Robert Gleason, 72

NORTHBOROUGH - Robert “Bob” Gleason, 72, passed away on August 23, 2024, surrounded by family, after a brave seven year battle with cancer. He fought courageously until the very end.

He leaves behind his loving wife of 48 years, Marsha Gleason (Martino) of Northborough, MA and his children Peter Gleason and wife Kirsten of Millbury, MA, Mara Power and her husband Keith of Hopkinton, MA, his grandchildren Keegan (21) and Ryan (19) of Milbury, MA and Ellie (16) and Anna (13) of Hopkinton, MA, his siblings Patricia Giffen and husband George of Plymouth, MA, Linda Driscoll of Hudson, MA, Marilyn Robertson of North Attleborough, MA, Brian Gleason and his wife Susan of Coventry, CT, his lifelong friend Thomas Daviau of Flanders, NJ and many nieces and nephews. In addition, Bob leaves behind many special friends who greatly enriched his life.

McGaffigan Family Funeral Home of Pepperell assisted with arrangements.

David Zina, 72

HUDSON - Hudson has lost a true champion. David Zina, known to all as Rocky, passed away on Saturday August 24th, surrounded by his family in the comfort of his home after a period of declining health. He was the cherished son of the late Arthur and Marilyn (Forance) Zina.

He leaves behind his loving wife of 26 years, Nancy (DeCenzo) Zina, and his twin sons, Robert and Liam all of Hudson. He is also survived by his brother Arthur and his wife Jan Zina of Winchester, MA, his sister Diane and her husband Gary, who was a beloved friend to Rocky throughout life and through his illness. In addition to his parents, he was predeceased by his younger brother, Robert ‘Bobby’ in 1973. He leaves behind many brothers and sisters in law as well as many nieces and nephews who he so cherished.

Tighe Hamilton Regional Funeral Home of Hudson assisted with arrangements.

Phyllis A. Dorr, 64

BURRILLVILLE - Phyllis A. Dorr, 64, of Burrillville, passed away at home on Friday, August 16, 2024. Born in Framingham, MA, and raised in Westborough, MA, she was the daughter of the late Frank and Phyllis (Sturgis) Dorr. She is survived by her sons: Sean McKeever of Westborough, MA and Carl McKeever and his wife Megan of Harrisville, along with her granddaughters: Mya and Callie McKeever; her brothers: Paul, Daniel, Denis, Thomas and Philip Dorr and her sister, Linda Cox. She was predeceased by her brothers: Carl and Peter Dorr.

The Boucher Funeral Home of Pascoag, RI.

Deborah L. Findley, 69

MARLBOROUGH - Deborah “Deb” Findley 69 of Marlborough passed away on August 22, 2024 at Marlborough Hospital after a brief illness with her loving family surrounding her. Deb was born in Burlington, Vermont to Peter and Nancy (Findley) Truehart.

Deb is survived by her children, Jesse Labossiere and his wife Elizabeth of Maine, Michael Labossiere of Marlborough, Richard Findley of Mass and Jasmine Findley of Framingham. She is also survived by her 2 grandchildren, Kayden and Chanelle, her great grandchild Victoria and her sisters Cindy Farmer and Diane Calcari (Matt) both of Greenfield, MA. She is predeceased by her sisters Kathy and Sandra.

The Short & Rowe Funeral Home assisted with arrangements.

LEGAL NOTICES

Scan QR code for rate information or to email your legal notice.

HUDSON

BODYWORK REGULATION – LEGAL NOTICE

The Hudson Board of Health is providing official notice that the “Rules and Regulations on Governing the Practice of Bodywork (Regulation # 17-1)” have been amended per a vote of the BOH on 11/01/2022. The regulations went into effect on 11/02/2022. A copy of the revised regulation is available at the BOH Office located within Town Hall at 78 Main Street Hudson, MA, as well as at www.hudsonhealthdept.org.

Allyson O’Malley Chair, Hudson Board of Health

NOTICE OF PUBLIC HEARING Petition# DSP-24-1

Notice is hereby given of a Public Hearing to be held by the Hudson Planning Board on Tuesday, September 17, 2024, at 7:00 p.m., at the Hudson Senior Center, 1st Floor.

At this time, the Hudson Planning Board will consider the application of Patrick Manzo and Carla Manzo for a Confirmatory Approval of a Definitive Subdivision Plan showing the creation of lots and the streets and ways providing access and utilities thereto as shown in plans entitled Manzo Way (AKA 200 Cox Street) ” Definitive Subdivision Plan Located in Hudson, Massachusetts,” prepared by H.S. & T. Group Inc. of Worcester, MA, dated March 5, 2018, pursuant to the provisions of Chapter 41, Section 81-T and 81-U, M.G.L. The subject property is located at 200 Cox Street, Hudson, MA, within the R40 Single-Family Residential Zoning District, Assessors’ Map 12, Parcel 38.

All petition materials are available for review in the Town Clerk’s Office during regular business hours, on the Town of Hudson website at https://go.boarddocs. com/ma/hudsonma/Board.nsf/ goto?open&id=D8HJCW4C42E2 and can be requested by calling (978) 562-2989 or by sending an email to kjohnson@townofhudson.org.

Hudson Planning Board

Robert D’Amelio, Chairman

WESTBOROUGH

LEGAL NOTICE

TOWN OF WESTBOROUGH OFFICE OF THE PLANNING BOARD NOTICE OF PUBLIC HEARING

In accordance with the provisions of MGL c.40A, Section 5, the Westborough Planning Board will hold a public hearing on Tuesday, September 17, 2024 at 6:30 P.M. regarding the two (2) proposed zoning amendments entitled “Highway Business Zoning District Development” and “Inclusionary Zoning”. The following Articles will appear on the Warrant for the October 21, 2024 Westborough Fall Town Meeting:

1. To see if Town will vote to amend the Westborough Zoning Bylaws to replace in its entirety the existing Section 6.2 of the Westborough Zoning Bylaw with entitled “Multifamily housing in Highway Business District” with a new bylaw entitled, “Highway Business Zoning District Development”. The purpose of this bylaw is to allow additional flexibility for development in the Highway Business District in exchange for providing public benefit amenities and/or a sustainable design, while maintaining an appropriate mix and scale of development.

2. To see if the Town will vote to amend the Westborough Zoning Bylaws to replace in its entirety the existing Section 6.1 of the Westborough Zoning Bylaw entitled “Multifamily dwellings” with a new bylaw entitled, “Inclusionary Zoning Bylaw”. The purpose of this

bylaw is to encourage development of new housing that is affordable to lowand moderate-income households by consolidating the affordable housing requirements throughout the existing bylaw. In addition, this bylaw shall substitute all previous references in the bylaw to affordable housing.

The public hearing will be held in the Great Hall of the Forbes Municipal Building, 45 West Main Street, Westborough, MA. Please see the Calendar on the Town of Westborough Homepage (posted 48 hours prior to the public hearing) for additional information. To access the proposal and any submitted documents, please go to our website at https://www.westboroughma.gov/1313/Town-Meeting-Zoning-Articles. Documents are also available for review in the Westborough Planning Board Office at 45 West Main St., Westborough, MA during regular business hours.

Persons unable to attend may submit comments in writing to the Westborough Planning Board in advance of the public hearing or attend the public hearing as indicated above.

WESTBOROUGH PLANNING BOARD

Hazel Nourse, Chairperson

SHREWSBURY

TOWN OF SHREWSBURY

Sealed bids are requested by the Town Manager for “SUPPLYING LIQUID DE-ICER and CALCIUM CHLORIDE FLAKE” for the towns of: Douglas, Lancaster, Northborough, Shrewsbury and Upton. Specifications may be can be downloaded from the Towns Website https://shrewsburyma.gov/bids.

All bids must be submitted on forms furnished by the Town.

All bids shall be sealed and appropriately marked: “LIQUID DE-ICER and CALCIUM CHLORIDE FLAKE.”

Sealed Bids will be received in the Town Manager’s Office, Municipal Office Building, 100 Maple Avenue, Shrewsbury MA 01545, until Friday, September 20, 2024 at 11:30 AM at which time and place they will be publicly opened and read.

Each supplier bidding on “LIQUID DE-ICER and CALCIUM CHLORIDE FLAKE” must submit with its bid a bid deposit equal to five percent (5%) of the amount bid.

The right is reserved to reject any or all bids.

TOWN OF SHREWSBURY

Kevin J. Mizikar

Town Manager

TOWN OF SHREWSBURY BOARD OF HEALTH PUBLIC HEARING LEGAL NOTICE

September 25, 2024 8:00 a.m.

The Shrewsbury Board of Health will be conducting a Public Hearing on Wednesday, September 25, 2024 at 8:00 AM, in the Selectmen’s Meeting Room at the Richard D. Carney Municipal Office Building, 100 Maple Avenue, Shrewsbury, MA 01545 to consider the designation of land at 65 Prospect Street for burial purposes in accordance with M.G.L. Chapter 114, Section 34.

A copy of the application, plans, and reports may be seen in the Office of the Planning and Economic Development Department at the Richard D. Carney Municipal Office Building, 100 Maple Avenue, Shrewsbury, MA, and on the Planning Board website at www.shrewsburyma. gov/ongoing-projects. Business hours are Monday, Wednesday, Thursday from 8:00 a.m. to 4:30 p.m.; Tuesday from 8:00 a.m. to 6:30 p.m.; and Friday from 8:00 a.m. to Noon.

Any person wishing to be heard should appear at the time and place designated above, or should send a letter to the Board of Health in time to be read during the hearing. Please note: Individuals requiring special accommodations should contact the Health Department at 508-841-8384 at least fourteen (14) days prior to the hearing date in order to facilitate your request.

TOWN OF SHREWSBURY

Sealed bids are invited for supplying ROCK

SALT requirements for the Towns of Blackstone, Boylston, Clinton, Douglas, Grafton, Lancaster, Lunenburg, Millbury, Millville, Northborough, Northbridge, Princeton, Shrewsbury, Sturbridge, Upton, Westborough and West Boylston. Specifications may be can be downloaded from the Town’s Website https://shrewsburyma. gov/bids.

Bids shall be sealed and appropriately marked “ROCK SALT”. Bids shall be received at the Town Manager’s Office, 100 Maple Avenue, Shrewsbury MA 01545, until 11:00 a.m. on Friday, September 20, 2024 at which time and place they will be publicly opened and read.

Each bidder must submit with its bid, a deposit equal to five percent (5%) of the amount bid.

The right is reserved to reject any or all bids.

TOWN MANAGERS –Shrewsbury

BOARD OF SELECTMEN – Blackstone, Boylston, Douglas, Lunenburg, Millbury, Millville, Northbridge, Princeton

TOWN ADMINISTRATOR - Grafton, Northborough

DEPT. OF PUBLIC WORKS – Shrewsbury, Clinton, Lancaster, Sturbridge, Upton, Westborough and West Boylston

PUBLIC NOTICE OF ENVIRONMENTAL REVIEW

PROJECT: Redevelopment of 193 Hartford Turnpike

LOCATION: 193 Hartford Turnpike, Shrewsbury, MA

PROPONENT: Shrewsbury Hartford Gas & Market LLC

The undersigned is submitting an Environmental Notification Form (“ENF”) to the Secretary of Energy & Environmental Affairs on or before September 3, 2024

This will initiate review of the above project pursuant to the Massachusetts Environmental Policy Act (“MEPA,” M.G.L. c. 30, ss. 61-62L). Copies of the ENF may be obtained from:

David Hewett

Epsilon Associates 3 Mill & Main Place, Suite 250 Maynard, MA 01754 dhewett@epsilonassociates.com 978-897-7100

Electronic copies of the ENF are also being sent to the Conservation Commission and Planning Board of Shrewsbury.

The Secretary of Energy & Environmental Affairs will publish notice of the ENF in the Environmental Monitor, receive public comments on the project, and then decide if an Environmental Impact Report is required. A site visit and/or remote consultation session on the project may also be scheduled. All persons wishing to comment on the project, or to be notified of a site visit and/or remote consultation session, should email MEPA@mass.gov or the MEPA analyst listed in the Environmental Monitor. Requests for language translation or other accommodations should be directed to the same email address. Mail correspondence should be directed to the Secretary of Energy & Environmental Affairs, 100 Cambridge St., Suite 900, Boston, Massachusetts 02114, Attention: MEPA Office, referencing the above project.

SECTION 00100

ADVERTISEMENT FOR BIDS

Town of Shrewsbury, Massachusetts

Sealed bids for construction of Sewer System Infiltration Rehabilitation – Contract 2024-S1 for the Town of Shrewsbury, Massachusetts, shall be received at the Town Managers Office, Town Hall, 100 Maple Avenue, Shrewsbury, Massachusetts 01545, until 11:00 a.m. prevailing time, on September 25, 2024. Said bids will be publicly opened and read aloud in the Selectboard’s Room, Town Hall, 100 Maple Av-

enue, Shrewsbury, Massachusetts, 01545.

The scope of work for Base Bid includes construction of approximately: 13,800 linear feet of cleaning and inspection of sewers; 6,600 linear feet of cleaning, inspecting, testing and sealing; 2,100 linear feet of cured-in-place pipe; 40 linear feet of cured-in-place structural short liner; open cut repairs of gravity sewers at five locations including replacement of two wyes; testing and sealing of 12 service connections; cleaning and inspection of 12 lateral service connections; curedin-place lateral liner in three lateral connections; furnish and install one precast concrete manhole; 800 vertical feet of cementitious manhole lining; 60 vertical feet of epoxy lining; furnish and install 45 manhole inflow dishes; replace 20 manhole frame and covers; reset six manhole frame and covers; raise six manhole frame and covers to grade; repair six manhole bench and inverts; repair one manhole cone; repair one manhole wall; build internal drop in seven manholes; and build three manhole bench and inverts.

The required Base Bid contract completion period is 200 consecutive calendar days. The Contractor shall complete re-test inspection and final paving within 31 consecutive calendar days of commencement of re-test inspection.

The scope of work for Alternate Bid No. 1 includes construction of approximately: 100 linear feet of sewer pipe replacement, installation of two precast concrete manholes, and abandonment of existing sewer.

The contract duration of the Base Bid plus Alternate Bid No. 1 is 205 consecutive calendar days. The contractor shall complete re-test inspection and final paving within 31 consecutive calendar days of commencement of re-test inspection.

No sooner than two months after completion of construction, but within the oneyear warranty period, the Contractor shall commence and complete re-test inspection within the required re-test period identified above. The commencement of re-test inspection shall be subject to approval by the Engineer.

Bid Security in the form of a bid bond, cash, certified check, treasurer’s or cashier’s check payable to the Owner, is required in the amount of five percent of the bid, in accordance with Section 00200, INSTRUCTIONS TO BIDDERS.

The Instructions to Bidders, Form of General Bid, Agreement, Plans, Specifications, Performance and Payment Bond, and other Contract Documents may be examined at the following: Accent Printing, Inc., 99 Chelmsford Road, North Billerica, Massachusetts Contract Documents may be viewed and downloaded as a Portable Document Format (PDF) file free of charge at www. accentblueprints.com. Copies may be obtained for a fee by completing an order online or by calling 978-362-8038 for each set. Completed orders may be picked up at the office of Accent Printing located at 99 Chelmsford Road, North Billerica, MA 01862 (978-362-8038), from 9 a.m. to 4 p.m. Copies may also be shipped to prospective bidders for an additional charge to cover handling and mailing fees. All payments for printing and shipping are nonrefundable. For addition to the project plan holder’s list to guarantee receipt of addenda, it is recommended interested bidders obtain the Contract Documents directly from Accent. Interested bidders will be prompted to register an email address with Accent to access the documents.

The selected contractor shall furnish a performance bond and a payment bond in amount at least equal to one hundred percent (100%) of the contract price as stipulated in Section 00700, GENERAL CONDITIONS of these specifications.

All bids for this project are subject to applicable bidding laws of Massachusetts, including General Laws Chapter 30, Section 39M as amended.

Prevailing Wage Rates as determined by the Director of the Executive Office of Labor and Workforce Development under the provisions of the Massachusetts

General Laws Chapter 149, Section 26 to 27H, as amended, apply to this project. It is the responsibility of the Bidder, before bid opening, to request if necessary, any additional information on Prevailing Wage Rates for those trades people who may be employed for the proposed work under this contract.

By submission of a bid, the Bidder agrees that this bid shall be good and may not be withdrawn for a period of 30 days, Saturdays, Sundays and legal holidays excluded after the opening of bids.

The Owner reserves the right to waive any informalities in bids and to reject any or all bids.

TOWN OF SHREWSBURY, MASSACHUSETTS BY ITS TOWN MANAGER

Weston & Sampson Engineers, Inc.

Reading, Massachusetts

INVITATION FOR BIDS

SUPPLY AND DELIVERY OF ITRON COMPATIBLE WATER METER AMR/AMI ENDPOINT MODULES AUGUST 29, 2024

The Town of Shrewsbury, acting through the Town Manager’s office, will receive sealed, written bids in accordance with M.G.L. Chapter 30B, at the Office of the Town Manager, 100 Maple Avenue, Shrewsbury, MA 01545, for the Supply and Delivery of Itron Compatible AMR/ AMI Water Meter Endpoint Modules until 10:00 AM on Wednesday, September 25, 2024, at which time bids will be publicly opened and read aloud.

Specifications and bid forms may be examined and/or obtained beginning at 3:00 PM on Thursday, August 29, 2024, by registering online to download bid documents at https://www.shrewsburyma. gov/bids.

The bid shall be enclosed in a sealed envelope clearly marked with “Supply and Delivery of Itron Compatible AMR/AMI Water Meter Endpoint Modules” on the outside of the envelope and addressed to the Office of the Town Manager, 100 Maple Avenue, Shrewsbury, MA 01545.

The Town of Shrewsbury, providing equal opportunity, encourages bids from minority and women owned businesses. The Town of Shrewsbury reserves the right to reject any or all proposals, to cancel this IFB or to accept any proposal deemed by them to be in the best interest of the Town of Shrewsbury.

TOWN OF SHREWSBURY

Kevin Mizikar

Town Manager

TOWN OF SHREWSBURY PUBLIC HEARING

Notice is hereby given that James Cosgrove, on behalf of Justcos LLC, d/b/a Nautical Bowls, 193 Boston Turnpike, Unit 6120, has applied to the Select Board for a Common Victualler License. The proposed hours of operation are Sunday through Saturday, 8:00 AM to 8:00 PM.

A public hearing on this application will be held on Tuesday, September 24, 2024, 7:05 PM, Richard D. Carney Municipal Office Building, Selectmen’s Meeting Room, 100 Maple Avenue, Shrewsbury. John R. Samia Chair

LEGAL NOTICE

NOTICE OF HEARING - G.L. CHAPTER 131, S. 40

Notice is hereby given in accordance with the provisions of General Laws, Chapter 131, s. 40, and the Town of Shrewsbury Wetlands Bylaw and Regulations that Mark Roberge, 26 Kingston Street, Shrewsbury, has filed a Notice of Intent for the construction of a paved driveway, garage, and associated site work within the 100foot buffer zone at 26 Kingston Street.

A public hearing will be held on the above notice at 7:00 p.m. on Tuesday Evening, September 17, 2024, in the Selectman’s Room of Shrewsbury Town Hall, 100 Maple Avenue, Shrewsbury, MA 01545.

POLICE FIRE&

Cruiser involved in rollover crash on Route 9

SHREWSBURY – Two Shrewsbury officers were transported to the hospital after their cruiser rolled over following a crash on Route 9.

On Aug. 31 at 12:55 p.m., a Shrewsbury Police Department cruiser collided with a gray 2020 Subaru Outback. As a result of the collision, the police vehicle — which contained two Shrewsbury officers — rolled over and came to rest on its roof. Both officers were able to exit the cruiser and were transported to UMass Memorial Medical Center for the treatment of non-life-threatening injuries.

There were three people inside of the Subaru; two were transported to UMass Memorial Medical Center for the treatment of non-life-threatening injuries.

According to the police department, the police cruiser was responding to assist with an incident and had its lights and sirens activated. Police were driving on Oak Street and crossing the intersection with Route 9 at the time of the crash.

The Subaru was headed westbound on Route 9. The two vehicles collided on the westbound side of Route 9.

A Central Massachusetts Law Enforcement Council (CEMLEC) crash reconstruction team responded to the scene with several officers from surrounding communities. The crash remains under investigation by the CEMLEC reconstruction team.

“The Shrewsbury Police Department would like to extend our gratitude to multiple good samaritans from our community who stopped to offer assistance to our officers and the individuals involved in the crash,” the department said in a statement.

POLICE LOG

The information in the police log is obtained directly from the official records maintained at each police station in our circulation area.Those arrested are innocent until proven guilty. The Community Advocate will publish news of acquittals upon notification and a copy of court issued documentation. The below is a representation of this week’s police log. Some calls lacking severity have been omitted due to space constraints.

Marlborough

Thursday, Aug. 22

9:13 a.m. Naugler Ave. Fraud/forgery.

11:52 a.m. Post Road Art Center/ BPRE. Fraud/forgery.

1:45 p.m. The Heights at Marlborough/Briarwood Ln. Larceny.

2:03 p.m. Briarwood Ln. MVA property damage only.

7:30 p.m. Maple St. Harassment.

10:03 p.m. Royal Crest Apartments/ Royal Crest Dr. Harassment.

Friday, Aug. 23

12:45 p.m. Victorian Guest House/ Newton St. MVA property damage only.

1:12 p.m. Marlborough Hills Health Care/Northboro Road East. Assault.

4:51 p.m. Felton St. Harassment.

5:16 p.m. Hannaford Super Market/ BPRE. MVA property damage only.

Saturday, Aug. 24

10:12 a.m. Berlin Rd. MVA property damage only.

11:45 a.m. Quest Diagnostics/Forest St. B&E into MV.

12:09 p.m. Belmont St. MVA property damage only.

1:40 p.m. Mechanic St. Fraud/forgery.

1:58 p.m. Lakeside Ave./Lincoln St. MVA property damage only.

2:52 p.m. Royal Crest Apartments/ Royal Crest Dr. B&E into MV.

3:41 p.m. Simpson Rd. Fraud/forgery.

5:45 p.m. Concord Rd. Animal complaint.

11:08 p.m. Mount Pleasant St. Harassment.

Sunday, Aug. 25

1:16 a.m. Funky Murphy’s/Main St. MVA property damage only.

8:42 a.m. Broadmeadow/Farm Rds. MVA property damage only.

11:55 a.m. East Main/Church Sts. MVA property damage only.

12:32 p.m. Linguini’s/BPRW. MVA property damage only.

2:27 p.m. Academy Knoll Apts/Broad St. Larceny.

9:10 p.m. Tremont St./Huntington Ave. MVA property damage only.

10:57 p.m. Arnold St. Larceny.

Monday, Aug. 26

3:37 p.m. Cross St. Harassment.

5:22 p.m. Park St. Harassment.

5:58 p.m. 110 Grill/Apex Dr. MVA property damage only.

6:13 p.m. Farm Rd. Harassment.

Northborough

Thursday, Aug. 22

4:24 a.m. Southwest Cut/Davis St. Hit and run.

5:59 p.m. Hudson/Allen Sts. Accident: P.D.

6:01 p.m. Pinehaven Dr. Keep the peace.

7:58 p.m. Whitney St. Animal calls. Friday, Aug. 23

11:13 a.m. Bearfoot Rd. Fraud.

11:50 a.m. Main St. Animal calls. Saturday, Aug. 24

9:48 a.m. Main St. Keep the peace.

10:45 a.m. Arrested, Michael F. Masciarelli, 43, of 15 Birch St., Apt. 1201, Milford, on warrants.

Sunday, Aug. 25

10:13 a.m. Shops Way. Shoplifting.

11:01 a.m. Crestwood Dr. Keep the peace.

Monday, Aug. 26

8:24 a.m. Pinehaven Dr. Keep the peace.

11:34 a.m. Shops Way. Fraud.

4:13 p.m. Crestwood Dr. Keep the peace.

Grafton

Sunday, Aug. 18

7:41 a.m. Bernard Rd. Damage to property.

10:46 a.m. Sampson St. Keeping the peace.

11:46 a.m. Seaver Farm Ln. Illegal dumping.

12:26 p.m. Main St. Loitering.

4:39 p.m. Arrested, Fernando Luis Jr Fuentes, 49, of 137 Greenwood St., Worcester, for carry dangerous weapon.

Monday, Aug. 19

7:15 p.m. Ray St. Road rage.

Tuesday, Aug. 20

3:24 p.m. Murray Ave. Traffic hazard.

4:09 p.m. Old Snow Rd. Illegal dumping.

7:20 p.m. Grafton Com. Erratic operator.

Wednesday, Aug. 21

5:23 p.m. Worcester St. Road rage.

6:18 p.m. Old Westboro Rd. Accident – pedestrian.

Thursday, Aug. 22

8:03 a.m. Carroll Rd. Keeping the peace.

8:12 a.m. Waterville St. Illegal dumping.

12:26 p.m. Providence Rd. Scam/ attempted scam.

1:50 p.m. Providence Rd. Road hazard.

Friday, Aug. 23

9:38 a.m. Pleasant St. Road hazard.

11:57 a.m. Stowe Rd. Road hazard.

3:13 p.m. Pleasant St. Erratic operator.

4:41 p.m. Crescent St. Harassment. 11:53 p.m. N Main St. Erratic operator. Saturday, Aug. 24

10:57 a.m. Maple Ave. Animal complaint.

Westborough

Monday, Aug. 12

6:43 a.m. Milk/Oak Sts. Road/tree. 8:15 a.m. Milk/Oak Sts. Road/tree. 11:31 a.m. North St. AC, animalassist.

12:31 p.m. W Main St. Accident property damage.

2:23 p.m. W Main St. Vandalism. 8:18 p.m. Arrested, Yale Parce Beebee, 71, of 32 Milk Porridge Cir., Northborough, for op MV with license suspended, fail to stop for police. Thursday, Aug. 15

12:36 p.m. Milk St. AC, animal assist. 1:18 p.m. Ruggles St. Road/trees. 4:32 p.m. Arrested , Luis Antonio Lopez Hernandez, 45, of 27 Belmont St., Apt. 2, Marlborough, on straight warrant, unlicensed operation of MV. 5:32 p.m. Arch St. Fire, wires down. Friday, Aug. 16

9:58 a.m. Turnpike Rd. Accident property damage.

11:21 a.m. Turnpike Rd./Milk St. Erratic operator.

5:24 p.m. Arrested, Priscilla M. Sanchez, 24, of 200 Hancock St., Apt. 6, Boston, for OUI- liquor or .08%, possess open container of alcohol in MV. Saturday, Aug. 17

8:42 a.m. Fitzpatrick Rd. AC, animalassist.

10:41 a.m. Olde Meetinghouse/Rev Thomas Hooker Rds. Accident property damage.

11:08 a.m. Otis St. Accident property damage.

8:52 p.m. Windsor Ridge Dr. Threats made.

Sunday, Aug. 18

4:03 p.m. W Main St. Fraud. 4:34 p.m. Pinecrest Dr./W Main St. Erratic operator.

6:08 p.m. W Main St. Accident – hit & run.

Shrewsbury

Friday, Aug. 23

9:20 a.m. Harriet Ave. Animal complaint.

9:32 a.m. Hartford Tpke. Trespassing. 11:26 a.m. Joyce Cir. Larceny. 1:21 p.m. Kenilworth Rd. Animal complaint.

3:24 p.m. North St. Dispute. 5:07 p.m. Boston Tpke. Animal complaint.

Saturday, Aug. 24

Scan QR code to read this week’s police and fire news on our website. Legal Notices | from page 23

SHREWSBURY CONSERVATION COMMISSION

Kenneth Polito, Chairman

LEGAL NOTICE

NOTICE OF HEARING - G.L. CHAPTER 131, S. 40

Notice is hereby given in accordance with the provisions of General Laws, Chapter 131, s. 40, and the Town of Shrewsbury Wetlands Bylaw and Regulations that Courtney Walker of the MASSDOT Highway Division, 10 Park Plaza, Room 7360, Boston, MA 02116 has filed a Notice of Intent for the installation of a new drainage pipe to improve drainage conditions along Route 20 and the Route 122 Intersection.

A public hearing will be held on the above notice at 7:00 p.m. on Tuesday Evening, September 17, 2024, in the Selectman’s Room of Shrewsbury Town Hall, 100 Maple Avenue, Shrewsbury, MA 01545.

SHREWSBURY CONSERVATION COMMISSION

Kenneth Polito, Chairman

LEGAL NOTICE

NOTICE OF HEARING - G.L. CHAPTER 131, S. 40

Notice is hereby given in accordance with the provisions of General Laws, Chapter 131, s. 40, and the Town of Shrewsbury Wetlands Bylaw and Regulations that Dan Ford, 47 Lear Street, Shrewsbury, MA has filed a Notice of Intent for the construction of a garage and pool at 47 & 51 Lear Street.

A public hearing will be held on the above notice at 7:00 p.m. on Tuesday Evening, September 17, 2024, in the Selectman’s Room of Shrewsbury Town Hall, 100 Maple Avenue, Shrewsbury, MA 01545.

SHREWSBURY CONSERVATION COMMISSION

Kenneth Polito, Chairman

LEGAL NOTICE

NOTICE OF HEARING - G.L. CHAPTER 131, S. 40

Notice is hereby given in accordance with the provisions of General Laws, Chapter 131, s. 40, and the Town of Shrewsbury Wetlands Bylaw and Regulations that Sujat Sukhankar, RentAHome LLC, 13 Morningside Drive, Shrewsbury, MA has filed a Notice of Intent for the demolition and reconstruction of a single family home at 23 Bay View Drive.

A public hearing will be held on the above notice at 7:00 p.m. on Tuesday Evening, September 17, 2024, in the Selectman’s Room of Shrewsbury Town Hall, 100 Maple Avenue, Shrewsbury, MA 01545.

SHREWSBURY CONSERVATION COMMISSION Kenneth Polito, Chairman

1:05 a.m. W Main St. Accident property damage.

1:50 a.m. Arrested, Christopher Lee Medina, 36, of 9A Gould St., Millbury, on straight warrant.

9:49 a.m. Connector Rd. AC, animal inspection.

11:07 a.m. E Main St. Fire, lock out. 11:56 a.m. Technology Dr. Assault.

1:00 p.m. Flanders Rd. AC, animal assist.

8:22 p.m. Haskell St. Accident property damage. Tuesday, Aug. 13

4:38 p.m. Flanders Rd. Erratic operator.

6:00 p.m. Elizabeth Dr. AC, animal complaint.

6:20 p.m. Milk St. Accident – hit & run. Wednesday, Aug. 14

9:53 a.m. Phillips Ave. Larceny attempt.

5:03 p.m. Boston Tpke. Animal complaint.

Sunday, Aug. 25

12:05 a.m. Walnut St. Accident with injury.

6:58 p.m. Arrested, Gonash S. Madani, 27, of 294 Providence Rd., Apt. 1, S Grafton, on warrant.

8:13 p.m. Hemlock Cir. Larceny. 10:01 p.m. Cortland Grove Dr. Road hazard – trees/wires/debris. Monday, Aug. 26

8:39 a.m. I290. Accident with injury. 11:46 a.m. Farview Ave. Animal complaint.

1:14 p.m. Spring St. Vandalism. Tuesday, Aug. 27

1:38 p.m. Egret Cir. Animal complaint. 9:16 p.m. Arrested, Bridget R. Brunell, 30, of 98 Kenberma Rd., Worcester, for possession Class B substance.

COMMUNITY CLASSIFIED

Epic storms transformed the streets of Westborough

WESTBOROUGH THEN NOW

WESTBOROUGH – Centuries

ago, gracious trees lined the streets of downtown Westborough, adding color, foliage, and character to the elegantly spaced houses. As the Industrial Revolution swept through town, buildings were erected, trolley and train lines began to encroach on horse-drawn buggies, and a number of fires destroyed the once idyllic views. Still, it wasn’t the efforts of civilization that felled the trees, but rather a series of natural disasters.

In 1922, the “Knickerbocker Storm” was nothing short of epic in its path of destruction. Twice the size of typical storm fronts of the era, the mid-winter storm coated nearly 22,400 miles of the country in two feet of snow. The Nor’easter was trailed by frigid air, and New Englanders were left with a thick sheet of ice atop the recently fallen snow.

Without modern forecasting or machinery, a storm of this proportions was paralyzing. Mature, tall trees couldn’t bear the weight of the snow and ice; they collapsed atop buildings, powerlines, roads, and railways. Access to towns was cut off, and help was slow to arrive for those in need. In Washington DC, the roof of the Knickerbocker Theatre collapsed, killing 98 people; it also left its mark on the historic trees and infrastructure in Westborough.

The next storm to leave its

South Street in downtown Westborough was impassable due to fallen trees after the 1938 hurricane.

Photo/Courtesy of Westborough Digital Archive

mark on the trees of Westborough was the Hurricane of September 1938. Described in the aftermath of the storm in The Chronotype newspaper, local journalists reported, “A hurricane of furious proportions… The steeple of the Congregational Church fell upon the ridge pole, crushing the roof of the auditorium. The steeple of the Baptist Church crashed into West Main Street and a large portion of the front of the church down as far as the doors was spread across the street as far

as Memorial Cemetery, where the iron fence was broken by the impact… Hundreds of trees were uprooted and filled the streets making it impossible for vehicles to pass. All wires were down and there was no electric light, telephone, fire alarm, or power service. The town was in complete darkness except for candlelight. Radios were also silent, and there was no sound except for the roar of the 110 mph gale of wind and the crashing of falling trees, slamming of blinds, and noise of falling debris.”

All told, the 1938 New England hurricane stole the lives of 682 people and damaged or destroyed more than 57,000 homes. A Category-3 hurricane through landfall, this hurricane would be grouped at landfall at the same strength as Hurricane Katrina (2005), and stronger than both Hurricane Sandy (2012) or Hurricane Bob (1991) when they made landfall.

The 1938 New England Hurricane had its deepest impact on the forest and trees of the region.

Yale and Harvard owned large forests in New England, and both were wiped out by the hurricane. In total, nearly 35

percent of New England’s total forest area was affected by this single storm, with 2.7 billion board feet of trees falling to the ground.

Thousands of trees in Westborough were felled by the single storm; Lyman School reported over 400 trees on their property destroyed. Downtown, trees had crashed onto houses; windows and storefronts were blown in by the gusts of wind.

The beautiful trees lining Main Street in Westborough were no match for the saturated grounds and fierce winds. Nearly all of the proud, tall trees lining Westborough’s downtown were lost once and for all. While a few saplings mix with established trees lining the roads in the center of Westborough today, they pale in comparison to the once stately trees that stretched along the roadside.

These storms of the early twentieth century are a reminder of the tremendous power and fierce nature of life in New England. While life here can be beautiful and idyllic, Mother Nature is not one to be trifled with.

COMMUNITY SCHOOLS

Hudson schools to achieve savings with bus reduction

HUDSON – With the opening of the school year for the Hudson Public Schools on Aug. 27, the School Committee looked ahead to the 2026 fiscal year budget process at its Aug. 20 meeting.

Superintendent Brian Reagan said of the beginning of school, “So things are ramping up, getting very busy. It’s an exciting time of year, too.”

He said it was a big welcome to bring energy back to the school buildings after the quiet summer months.

According to Reagan, the aim of this meeting was to prepare for the tri-board meeting between the Finance Committee and Select Board to discuss the 2026 budget. The goal from the tri-board meeting, which has a date pending, would be “walking out of there with an understanding where

the Select Board is in terms of them voting to put the override question on the ballot and in the warrant,” he said.

The leadership in the district has been watching the process so far and did not want to get ahead of the Select Board without an official move, he said.

He said, “[Executive Assistant Tom Gregory] did indicate at the last tri-board meeting [on June 18] that September was an appropriate timeframe for the board to consider … ap-

or call

Superintendent Brian Reagan projected that Hudson’s bus fleet could be reduced by one bus.

(Photo/Maureen

Sullivan)

proving it to move forward as a question for Town Meeting.”

At the July 16 School Committee meeting, Reagan introduced the big picture for the budget and used the term structural deficit, which means the operating costs are not covered by the revenue, to frame the budget planning.

The override being discussed for the 2026 budget was a Proposition 2 1/2 override, which is when a municipality is able to raise taxes by amounts

in excess of the levy limit. Proposition 2 1/2 is a law that restricts the total amount of property taxes a city can raise every year to 2.5%.

Moneywise, Reagan said, there were a few updates they could provide the other two boards with, such as working on the transportation costs in the district during the summer.

Reagan said, “We talked about looking hard at our transportation budget and seeing if there are ways for us to save money.”

He projected that the overall bus fleet could be reduced by one bus, which is “a savings of $100,000.” Those funds are already incorporated into the budget, but it would be money they are not required to spend.

He said, “When we build the fiscal ’26 budget, we can do it with that $100,000 being a reduction.”

Reagan said this reduction is keeping the walking radius

for students the same as it currently is.

“What we were able to do is reduce one bus at Farley by consolidating routes, right? There were students by the way, totally separate from this reduction, that we’ve discovered are below the walk radius who are getting a bus,” he said.

He said that those students’ transportation status did not change because of the bus reduction.

He said that the route changes due to the bus reduction has been a topic on social media, so he stated that a “relatively small number” of students were notified of the change due to living under a mile from their school.

Of reaching out to those families, he said, “We’ve had communications.”

Currently, the elementary schools have a fleet of 11 buses, while Hudson High School has 12 buses.

Class of 2025 welcomes senior year with color and tradition

WESTBOROUGH – The Class of 2025 began its final year in Westborough Public Schools on Wednesday, Aug. 28, with pom poms, tutus and lots of color.

The latest bunch of seniors congregated in the high school’s upper parking lot. After a few words from Principal Brian Callaghan and Superintendent Allison Borchers, the class headed to Mewhiney Field for the traditional group photo.

Once that was done, the seniors paraded around the school before heading to their first classes.

SHREWSBURY – School is in session in Shrewsbury. Staff and first- through 12th-grade students were excited for the first day of school on Aug. 27. Kindergarteners returned to class on Aug. 28.

The Community Advocate stopped by Calvin Coolidge Elementary School on Florence Street to watch students file

into the building.

day

“We had a very successful first week of school. When visiting our nine schools, I found that the positive energy of our students and staff was terrific. I am very grateful for the hard work that all of my colleagues did to prepare for a smooth opening, including our secretaries, cafeteria staff, custodians, bus drivers, and educators. I also want to thank our families for ensuring that their children were ready with everything they needed. We are off to a great start,” Superintendent Joe Sawyer told the Community Advocate in an email statement.

Westborough High School’s Class of 2025 celebrated its “last first day” of school on Wednesday, Aug. 28. (Photos/Maureen Sullivan)
Two Coolidge students greet a staff member on the first
of school.
(Photo/Evan Walsh)

Hastings opens for school year with new roof

WESTBOROUGH – When students and staff returned to class on Wednesday, Aug. 28, they entered buildings and grounds that have been refurbished, redone and renewed.

That includes a brand-new roof for Hastings Elementary School on East Main Street.

Kelly Giacopello, director of building and grounds, told the School Committee during

its meeting on Monday, Aug. 26, about the roof replacement and other projects that took place over the summer.

MARLBOROUGH – With the start of the fifth and final year of the bus contract with NRT, Marlborough Public Schools is trying some changes to help alleviate some long standing problems.

“We are heading into the school year both optimistic and apprehensive with regards to school transportation,” Director of Finance and Operations Matthew Wells told the School Committee during its meeting on Tuesday, Aug. 27.

MPS changed some bus stops in order to reduce run time and head off the problem of delays.

“More community bus stops have been created where neighborhood students will walk to their specific community stop located on the feeder roads,” said Wells.

“Buses will not be planned to drive into neighborhoods, and individual house stops will be minimalized,” he added.

Wells said that MPS will be

working with NRT to make sure the new routes run smoothly.

He added that as of Aug. 27, all driver positions have been filled.

Summer projects

Wells also presented to the School Committee an update on the work done by the MPS facilities team during the summer.

The heating, ventilation and air conditioning project at Whitcomb Middle School’s kitchen and cafeteria is almost done; the school’s library floor has been replaced with new carpet tiles.

The HVAC system at Jaworek Elementary School has been upgraded with additional bypass filters.

“The buildings look fantastic,” said Wells.

On the Richer Elementary school front, the building project is in the process of obtaining an owners project manager. According to Wells, seven proposals have been received. The selection process will run through early September.

Approved at Annual Town Meeting in March, the roof, which was 27 years old, with failed seams and flashing, was replaced with a multi-ply redundant assembly.

The new roof would be under warranty for 40 years, with a life expectancy of up to 50 years with proper maintenance.

The roof became an issue

in January, when heavy rain caused leaks in several areas.

The School Department was granted an emergency waiver by the Department of Capital Asset Management to expedite the replacement of the roof.

According to Giacopello, the project took about four weeks to complete, “with no change orders” and within budget.

In addition to the roof, crews installed two sets of stairs for the stage, along with

two water-filling stations with bubblers. A temporary classroom was built, and the hallways were painted.

This was the first part of the project to have Hastings comply with the Americans with Disabilities Act. More work will be done next summer, said Giacopello.

Work was also done on the following facilities. At Westborough High School the handrails at the stairway to the auditorium refinished; two chillers were replaced; and the gym floor refinished. At Gibbons Middle School, the picnic tables were repaired and the gym floor was refinished.

At Armstrong Elementary School, there will be a new bottle filler/bubbler along with VCT tile replacement and painting. At Mill Pond Elementary School, there was interior painting and the gym floor was refinished, and at Fales Elementary School the rails were painted and the gym floor was refinished.

Hastings Elementary School opened for the school year on Wednesday, Aug. 28, with a new roof. (File photo)

SHREWSBURY – Family. Work. Boosters.

It’s something Shrewsbury High School Boosters Association President Tony Tizzano has lived by since 2008, when he first joined the organization. At the time, some of his six children and stepchildren – including five football players and one cheerleader – were proud Colonials. After his last stepchild graduated from Shrewsbury High School in 2013, Tizzano decided to stick with the Boosters and continue fundraising.

He’s just as passionate about the organization today as he was when he first started. His time with the Boosters has come full circle – at the start of the school year, the first of Tizzano’s 12 grandchildren became a Shrewsbury High School freshman.

As special as Tizzano’s story is, it’s not wholly unique –Shrewsbury’s Boosters are filled with former Colonial parents who continue to volunteer and support the organization long after their children re -

tion whose third and youngest child graduated in 2019. “A piece of me always wants to give back to what was given to me. Things were a lot different when I went to school than they are now. There weren’t athletic fees. We played a sport, and they provided everything. Now, it’s changed.”

“For me, it’s knowing that what we do makes a difference. I’m not saying that without us there wouldn’t be some other thing that would fill the gap, but we know there’s a gap between what the town can afford to spend on athletics and what the kids really need,” said Vice President Jim LeMay.

ceived their diplomas.

“People say, ‘You guys don’t have any kids in school.’ No kidding. But it’s not just about that,” said Membership Coordinator Ken Ouellette, a 10year member of the organiza-

With the help of donors and several annual fundraisers, the Boosters raise upward of $120,000 per year. The funds are then spent to help the Colonials field a competitive team. The Boosters’ “crown jewel,” said members, is organizing and driving the construction of the school’s turf field in 2019, but the organization also helps pay for other hot-ticket items like HUDL, a type of software that captures and aggregates game film.

The Boosters also take pride in funding other, less-glorious items like pinnies and practice equipment.

LeMay is a 15-year Boosters veteran, and he said his five children participated in “virtually every sport” at the high school in the 2010s.

“The thing that jazzes me up is that every year this organization raises money that goes to these kids,” he said. “Everybody loves the nice shiny thing, but at the end of the day we’re here for those uniforms. We’re here for those pinnies. We’re here for those practice balls.”

When Tizzano joined the Boosters in 2008, the organization had just been reformed and had less than $3,000 in funds, he said. Now – thanks to the longevity and leadership shown by Tizzano, LeMay, Ouellette, and many others who decided to continue to support the Colonials – the group is sustainable and successful, athletic leaders said.

“It takes a village to build what you want to do. I think the big group of us that have stuck here and stayed together has made a difference. We haven’t had a lot of turnover with the board – if you have turnover every one, two years, you’ll never gain any ground,” said Secretary Paula Toti, who also serves as a physical education teacher at SHS.

“It’s been amazing. Having this group of officers that have been around for a long period of time is very unique, and I think it shows the stability of the leadership that’s there. They’re able to provide our athletes and coaches with what they need,” Athletic Director Jay Costa told the Community Advocate.

For more information, visit https://schools.shrewsburyma. gov/high/athletics/boosters/ index. The Boosters are always looking for new volunteers and donations. To support the Boosters’ latest project – a $100,000 upgrade of the high school weight room – please contact jcosta@shrewsbury. k12.ma.us.

Tony Tizzano (left) and Jim LeMay (right) in front of Shrewsbury High School’s turf field. (Photo/Evan Walsh)

SHREWSBURY – Colin

Duffy, a 16-year-old junior at Shrewsbury High School, sped to a first-in-class finish at Thompson Speedway Motorsports Park in Thompson, Connecticut, on Aug. 10. Duffy completed the race, his first Sports Car Club of America (SCCA) major event, in Class T3 driving his 2020 Mazda MX5 Global Cup.

The finish was a milestone in Duffy’s career, which started with driving go-karts as a 7-year-old racer. He graduated to cars at age 13 and by

Westborough girls soccer prepares for year ahead

WESTBOROUGH — The Westborough Rangers girls soccer team is preparing for the upcoming season with an air of excitement and a focus on team culture.

After starting the season 1-4 last year, Westborough rallied behind first-year Head Coach Scott Moroney to finish the regular season 8-6-2 and advance to the MIAA Division 2 playoffs as the No. 11 seed. The Rangers eventually fell — losing a tight contest to Mansfield in the Round of 16 — and graduated 10 seniors.

Since that point, the team has been hard at work preparing and organizing for the season ahead.

“We want to make this season last as long as possible,” said Molly Courchesne, one of the team’s three senior captains. Courchesne has committed to play soccer at the University of South Carolina Aiken next fall.

The team’s captains — Regan Sullivan, Addi Potenti and Courchesne — have “taken charge,” said Moroney, and started focusing on improving the program immediately after last year’s banquet. As part of that effort, the captains and several other Rangers ran the Westborough Soccer Development Program in the offseason, volunteering to lead free clinics for younger athletes in the area.

After “putting the ‘we’ in Westborough” last year, the

Rangers are adding a new motto this season: “compete, confidence, and commitment.”

The slogan, said Moroney, is designed to establish expectations and keep players accountable over the course of the year. If the athletes give full effort while competing in practices and games, have confidence in themselves and one another, and remain committed to teammates, the Rangers should find success, he said.

“Some of our expectations are to have a good team culture, like we’ve had every year. It’s definitely special to [us seniors] this year since it’s our final run. We’re hoping to get some wins, and we’re hoping that everyone is good teammates to each other,” Potenti told the Community Advocate.

“We’re super excited for this season. It’s [the seniors’] last year, so we’re excited to hopefully get some wins. We’ve grown really close with our teammates — we’ve been playing with the same group of girls for a while now — so we’re excited to grow together and get some good wins this season,” added Sullivan.

The team opened its season on Sep. 3 against soccer powerhouse Acton-Boxborough. Coming off his first full year with the program, Moroney praised the leadership of his captains and said he was excited about the opportunity to keep moving the program forward.

“They’re setting standards, being mentors, and being available to people … I’m re -

ally confident and feeling like we’ll go into the season and be competitive again … I think the captains have also grown as leaders themselves. They each bring something a little bit different,” he said.

age 16, as many of his Shrewsbury peers earned their driver’s permits, Duffy received his full competition license. He races for Team Duffy, which includes his siblings Hayden and Bridjet.

“I’ve always been interested in racing,” Duffy told the Community Advocate.

“It’s the insane level of competition. You can always move into a higher league. You can never be too good. There’s different cars. There’s different series you can race in. I love driving. I love cars. I love being around it. It’s a passion for me.”

The Aug. 10 race — the final, and most meaningful, in a series of races that started the previous day — was a 35-minute bout in the blazing sun. Duffy started the race

second in his class, trailing an all-wheel-drive WRX for some time. However, as the race progressed, Duffy managed his tires effectively to pull ahead of the other car.

“There’s a lot going on in racing. Tires wear quickly. Also you can change the set-up, how the car handles, how it corners, the suspension, the speed. In that race, I was in the car for 35 minutes, so you have to manage your tires. You have to save your tires if you’re in it for the long run, not just shooting them all in the first few laps,” he said.

The heat made the racing more difficult. The area around the driver’s seat can reach up to 120 degrees Fahrenheit, said Duffy. The sport demands both physical and mental toughness, he said.

Duffy will be back in action at Palmer Motorsports Park on Sept. 7 and Sept. 8, followed by the SCCA-NER season finale at Thompson Speedway Motorsports Park Oct. 18 and Oct. 19.

Shrewsbury High School student Colin Duffy recently competed at Thompson Speedway Motorsports Park. (photo/Courtesy)

Turn static files into dynamic content formats.

Create a flipbook
Issuu converts static files into: digital portfolios, online yearbooks, online catalogs, digital photo albums and more. Sign up and create your flipbook.