Colony Homes | Beacon Limited 2023

Page 1

BEACON LIMITED

DT1006P

2
2848 Approx. 1280 Sq. Ft.
BEACON LIMITED www.colony-homes.com 3 DT1007P 2852
1387 Sq. Ft. DT1008P 2860
Approx.

DT1012P

4
2848 Approx. 1280 Sq. Ft.
BEACON LIMITED www.colony-homes.com 5 DT1013P 2852 Approx. 1387 Sq. Ft.
6
DT1014P
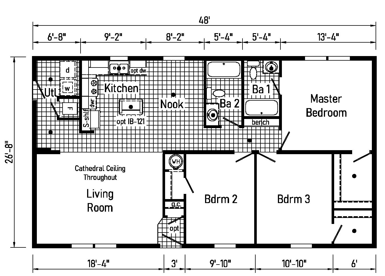
2856 Approx. 1493 Sq. Ft.
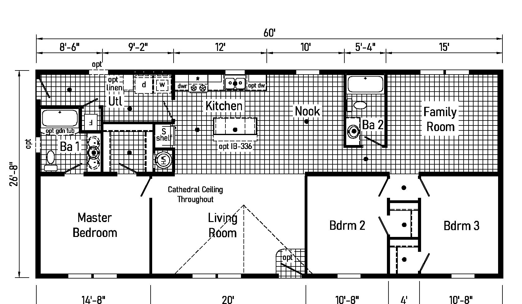
BEACON LIMITED www.colony-homes.com 7 DT1015P 2860 Approx. 1600 Sq. Ft.
All descriptive representations of the products on this brochure are believed to be correct at the time of publication. However, due to continued product improvement and changes in suppliers design and production, accuracy cannot be guaranteed. Therefore, equipment colors, material specifications, prices and model availability are subject to change without notice. All information and images contained in this brochure are property of Commodore Homes and for the use by active dealers of the company only. © 051923 Your purchase contract including options is with your retailer who is an independent contractor, not our agent, and is responsible totally for any alterations, exchanges, additions or attachments made in or to your home. 20510 Paint Blvd Shippenville PA 16254 814-226-9590 info@colony-homes.com www.colony-homes.com Your Independent Builder is: www.colony-homes.com/inhouse-experience

Turn static files into dynamic content formats.

Create a flipbook
Issuu converts static files into: digital portfolios, online yearbooks, online catalogs, digital photo albums and more. Sign up and create your flipbook.