Arch 3050 Portfolio 4/18

Page 1

Cody Beckwith

Arch 3050 Architecture Portfolio

12x12 Cube Elements

In the proejct we had to create a 12ft by 12ft space that involved one of the 4 main elemtents (Earth, Wind, Fire and Water).

Element: Earth

Site plan Floor plan West Section East Elevation

Element: Wind

Floor plan All Elevations North,South Section East,West Section

Element: Fire

Site plan South Elevation North Elevation North-South Section

Element: Water

Floor plan South Elevation East Elevation West Elevation

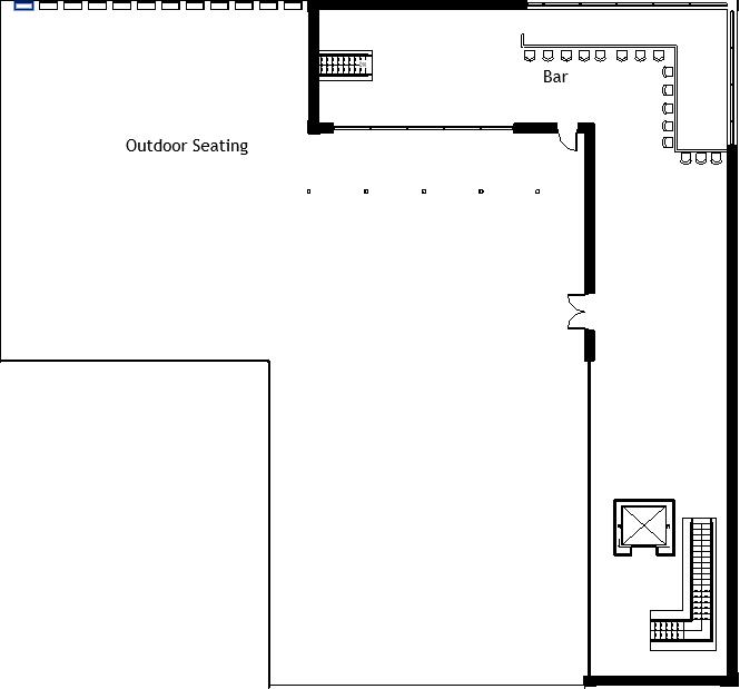
Farm to Table Restaurant

The farm-to-table restaurant situated in Pittsburgh, PA, within the Heinz Lofts, was conceived with a vision to seamlessly integrate nature into its architecture.

Positioned at the northeast corner of the site, the restaurant o ers view of the city skyline and a serene view of the river to the south.

Opting for a Japanese-style garden design, I aimed to infuse the site with a natural surrounding. The essence of this garden and the restaurant is to evoke a sense of tranquility, simplicity, and coherence for the customers.

West Elevation East Elevation 1st Floor 2nd Floor

Farm to Table Restaurant

Russian Constructivist Construction

For this project we were given a russian painting that we had to recreate in our own way. The top view had to be the same as the painting but we could change what was underneath in any way we choose. There was 2 steps to this proejct.

Creating 3 iterations of the painting in sketch-up, then choosing our favourite iteration and creating a hand done model of the iteration. I chose my second iteration for this project because that one is the most interesting and one that felt most like the whole point of the project

Iteration 1

Iteration 2

Iteration 3

Hand done Models of Iteration 2 Supremus 2 - Kazimir Malevich 1915 Sketch-up model of Iteration 2

Turn static files into dynamic content formats.

Create a flipbook
Issuu converts static files into: digital portfolios, online yearbooks, online catalogs, digital photo albums and more. Sign up and create your flipbook.