Carlos Meza Lacouture Portfolio

Page 1


architecture portfolio

H House

Acción Urbana - 2021

TSA Fundación Santa Fé

El Equipo Mazzanti - 2019

Universitá Campus Bio-Medico

El Equipo Mazzanti - 2018

Centro Antártico Internacional

4 Schools in Kosovo Alcor

El Equipo Mazzanti - 2019 Acción Urbana - 2022

Acción Urbana - 2024

Acción Urbana - 2023 El Equipo Mazzanti - 2017 El Equipo Mazzanti - 2017

Centro Médico Internacional Casa LZ

Centro Deportivo el Tunal

Urbana - 2024

Colegio la Enseñanza Casa Santuario

El Equipo Mazzanti - 2018

Acceso Carrera 8 Caujaral

Acción Urbana - 2024

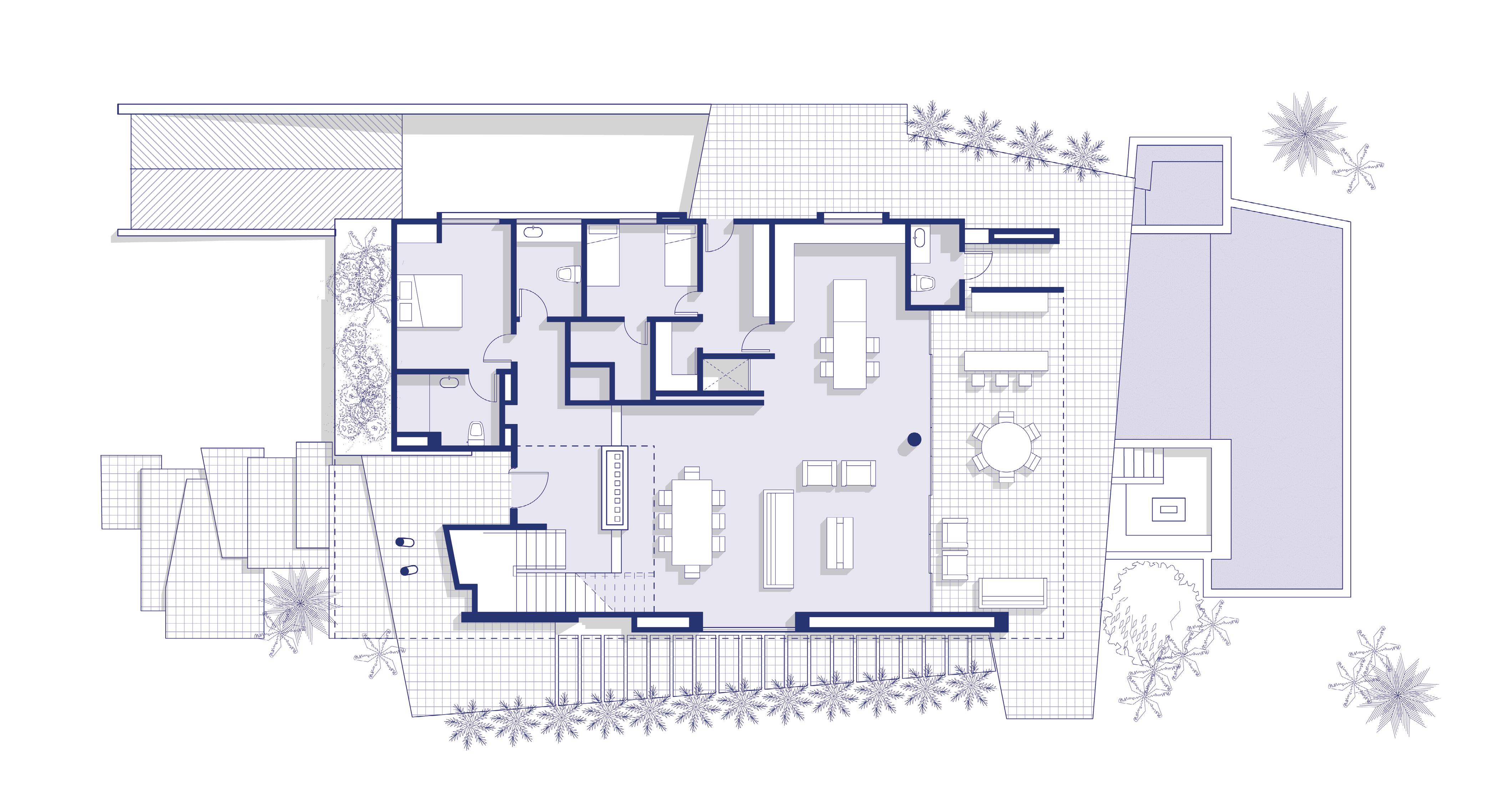
H House

Barranquilla, Colombia

Role: Head Architect

Design & Build project located in the outskirts of the city of Barranquilla, Colombia. The design features a interior garden with an existing tree which seamlessly integrates with the architecture. Working hand by hand with a landscaping expert, the house’s foundation was designed in such a way so the reinforced concrete beams would not interfere with the tree’s long roots. To protect the foundation from the growing roots, a containing wall was built around them.

The house’s footprint has an H form which allowed for this center garden to take place, as well as allowing all spaces to either look outwards to the golf course to the north, or inwards to the existing tree.

The client requested a quiet and isolated space to practice yoga, which was also connected to nature. A sort of private sanctuary in which she could be outdoors but protected from the sun at all times. Given these specifications, the designated space was placed in the second floor, an outdoor terrace far from the social spaces and only accesible through a bridge that overlooks the inner garden. The reinforced concrete slab was designed with a square dent which lets the existing tree pass past the slab and into the terrace, through the stainless steel railings, it´s pattern was designed in-situ following the trees branches.

Poolhouse
Sauna
Main Terrace
Laundry Room
Open Kitchen
Dining
Main Living Room
TV Room
Foyer
Bedroom
1. Garden Terrace
Family Room
WC
Tech
Master Terrace 6. Master Bathroom 7. Master Bedroom 8. Closet 9. Yoga Terrace 10. Bedroom

Fundación Santa

Fé de Bogotá

Outpatient Services Tower

Bogotá, Colombia

2019

El Equipo Mazzanti

Role: Project Architect

As a further expansion to the award winning hospitalization wing for FSFB, this new tower of outpatient services sets itself in the FSFB environment seamlessly. Expanding on the idea of the lattice façade present on the existing hospitalization wing, we developed a product with internationally renowed manufactureres that allowed us to create a new type of façade while preserving the traditional FSFB aesthetics. UHPC concrete with fiber glass and a terracota colorant was poured in a special mold designed by the architecture team to create a modular piece of cylinders that was then mounted on the reinforced concrete structure.

Typical healthcare buildings in Colombia and generally around the world contain very boring spaces that inspire nothing. White lighting, poor acoustic control and little to none interior design. Add to this the fact that they are normally the stage for bad news or sick people. This building transmforms this concept: Every floor’s waiting room is located in a different corner of the building and is designed and decoratedin line to which service is present in that floor. For example, the pediatric floor has bleachers and a projection screen that plays movies for kids. This disposition of waiting rooms let the tower’s users to roam and explore the building. They are encouraged at the entrance to take the elevator to the top floor and walk all the way down, expriencing different designs of stairs and waiting rooms.Additionally, a fresh color palette and lighting make for a very cozy and pleasent waiting space

Universitá Campus

BioMédico

Rome, Italy

2018

El Equipo Mazzanti

Role: Project Architect

Competition entry for Universitá Campus BioMedico of Rome expansion and master plan. Integrated with its natural surroundings, a system of petal-shaped buildings contain classrooms, labs, auditoriums, student residencies and much more. This modular system allows for two main advantages: Flexible spaces that can host many different activities, and a flexible general layout that allows for a measured growth. It is possible to build one, two or five petals at one time, keeping up the university´s needs.

A cylindrical clay brick facade on top of a lightweight metalical structure generates the feeling of a non-invasive building that seamlessly intetgrates itself with nature. As opposed to a heavy building that imposes itself in its location.

Casa El Santuario

Atlántico, Colombia

2023

Acción Urbana

Role: Head Architect

Design & Build project located in the outskirts of the city of Barranquilla, Colombia. Sited in a privileged place, on top of a hill 88 meters above sea level but just a couple hundred away from the coastline, the layout of the house had to take advantage of the stunning views. For this reason an elongated rectangular shape was chosen for the footprint, and having two levels, both social and private spaces enjoy a west view to the Caribbean Sea.

A modern vs rustic and light vs heavy game makes evident a balancing act of contrasts in the design, combining natural rock facades (Rustic and Heavy) with black profile glass windows (Light and modern), amongst others.

Foyer
Bedroom
Mec/Elec
Main Living Room
Dining
Wine Bar 9. Main Terrace 10. Kitchen 11. Laundry Room 12. Pool WC 13. Parking Garage
Stroage
Gym 16. BBQ Terrace 17. Jacuzzi 18. Pool

A bridge on the second floor is the only structure within a large double-height space that contains the main entrance and living room. The smaller family room overlooks this expansive area, allowing it to be bathed in natural light from all sides and take advantage from the stunning west and east views. Rock details are also incorporated into the interior to maintain a rustic ambiance.

Level 2 Floor Plan
1. Master Bedroom
2. Master Balcony
3. Master Bathroom
4. Closet
5. Bedroom
6. Bedroom Hall / Gallery
7. Second Floor Terrace
Family Room
Bridge

Centro Antártico

Internacional

Punta Arenas, Chile

2017

El Equipo Mazzanti

Role: Project Architect

Design & Build project located in the outskirts of the city of Barranquilla, Colombia. The design features a interior garden with an existing tree which seamlessly integrates with the architecture. Assesed by an expert, the house´s foundation was designed in such a way for the foundation beams could avoid the tree’s long roots. To protect the foundation from the trees growing roots, a containing wall was built around them.

PLANTA PISO 2 (N. +9.00) 1: 500

Módulo 4.

B.4. UNIDAD DE EXPOSICIONES

B.4.1

B.4.2

B.4.3

B.4.4

B.4.5

B.4.6 Diseñador

B.4.7 Coordinador

B.4.8

Módulo 5.

B.5.

B.5.1 Oficina Director de logística

B.5.2 Supervisor bosque

B.5.3 Técnico bosque

B.5.4 Supervisor de auditorios y salones

SISTEMA MODULAR

B.5.5 Encargado de operaciones audiovisuales

B.5.6 Supervisor de acuarios

B.5.7 Asistente acuarios

B.5.8 Curador

B.6. ÁREAS COMUNES

B.6.1. Sala de reuniones dirección

B.6.2. Sala de reuniones científicos

B.6.4. Baño mujeres para el personal

B.6.5. Baño hombres para personal

B.6.9. Recepción

B.6.10. Sala de espera

B.6.12. Hall acceso

Módulo 6.

B.1.UNIDAD ADMINISTRACIÓN

B.1.1. Oficina Director General

B.1.2. Asistente

B.1.3. Encargado de personal

B.1.4. Encargado de adquisiciones

B.1.5. Encargado de logística

B.1.6. Supervisor mantenimiento edificio

B.1.7. Supervisor mantenimiento máquinas

B.1.8. Supervisor mantenimiento equipos

B.2. PROGRAMAS EDUCACIONALES

B.2. Oficina Coordinador de programas de educación

B.3. INVESTIGACIÓN Y LABORATORIOS

B.3.1. Director de investigación

B.3.2. Encargado de paleontología

B.3.3. Encargado de biotecnología

B.3.4. Encargado de ecología y evolución

B.3.5. Encargado de hielo, clima

B.3.6.Encargado de instrumental

B.3.7. Encargado de programas y servicios

B.6. ÁREAS COMUNES

El proyecto está pensado con una estrategia modular que permite pensar el proyecto como un sistema inacabado que puede crecer en el tiempo. Se propone así una arquitectura que se hace más que una arquitectura acabada y cerrada. El proyecto se transforma en una estrategia de desarrollo compuesta por módulos capaces de adaptarse a las más diversas situaciones. Se piensa en un módulo básico compuesto por dos círculos que se unen para generar un espacio a alargado que permite albergar los diferentes programas del C.A.I. El proyecto se transforma de esta manera en el diagrama programático del Centro ya que la secuencia y los tamaños de los módulos mismos responden directamente a las necesidades del programa. Los módulos del Centro Interactivo se conectan entre sí para generar un recorrido continuo de espacios expositivos.

B.6.3. Sala de reuniones general

Módulos 7-8.

C.4. ÁREA BIOTECNOLOGÍA

C.4.1. Laboratorio de microbiología

C.4.2. Laboratorio de biología molecular y genómica

C.4.3. Laboratorio de bioquímica

C.4.4. Sala de colección de organismos

C.4.5. Laboratorio de bioinformática

C.4.6. Sala de estudiantes

Módulos 9-10.

C.3. ÁREA GEOLOGÍA, PALEONTOLOGÍA Y PALEOCLIMA

C.3.1. Paleoreconstrucción

C.3.2.Sala scaner 3D

C.3.3. Sala megafósiles

C.3.4. Palinología

C.3.5. Dendrocronología

C.3.6. Sedimentología

C.3.7. Sala de preparación y cortes

C.3.8. Microscopía

C.3.9. Petrografía

C.3.10. Isotopía y geoquímica

C.3.11. Sala de modelamiento

C.3.12. Sala de colección de fósiles y rocas

C.3.13. Sala estudiantes

Módulos 18-19.

C.1. ÁREA HIELO, ATMÓSFERA, OCÉANO

C.1.01. Sala fría normal

C.1.02. Sala fría limpia

C.1.03. Antesala a sala fría limpia

C.1.04. Laboratorio temperatura ambiente

C.1.05. Instrumental físico

C.1.06. Instrumental biológico

C.1.07. Bodega fría de almacenamiento

C.1.08. Bodega

Fachada externa doble con lamas de madera y paños de vidrio

Fachada interna con paños de vidrio

Los módulos se organizan siempre con una circulación perimetral lo cual permite que los espacios interiores estén protegidos con un sistema de doble fachada, minimizando así la perdida de temperatura.

Topografía: El proyecto se apoya sobre una topografía que permite crear una barrera natural entre la playa y el edificio y crear un espacio de estacionamientos y áreas técnicas sin tener que escavar la tierra.

B.1.3.

SISTEMA MODULAR

tamaños de los módulos mismos responden directamente las necesidades del programa.

Los módulos del Centro Interactivo se conectan entre sí para generar un recorrido continuo de espacios expositivos.

Volumetría de las cápsulas

N. +5,2 / +15 m

(C) Contacto con el suelo y base

N. +5,2 m

(D) Paisaje interior y recorridos

N. +0 / +5,2m

AXONOMETRIA

D.D.
C.5.
Módulo
D.C.5.
Módulo
D.C.5.
Módulo
D.C.3.
Módulos
D.C.1.
Módulo
D.C.4.
D.C.4.1.
Módulo
D.C.6.
D.C.7.
Módulos
C.2. C.1.
(A) Cubierta de vidrio con vigas Fink de acero
N. +13 m
(B)

Alcor

Barranquilla, Colombia

2022

Architectural and urban designs for a luxury housing development in the outskirts of the city of Barranquilla, Colombia. The master plan design proposes a shared-space approach insipired by modern dutch cities. A system of bollards combined with the fact that the street and the sidewalk are at the same height level, makes for more drivers to be more cautious and pedestrians to feel safer.

A solar panel plant at the south end of the project will feed all the public ilumination, which will have all of its pipes underground to keep a natural and aesthetically pleasing environment, achieving a seamless integration between nature and the built environment.

HABITACIÓN 1

FAMILY ROOM / OFICINA HABITACIÓN 3
HABITACIÓN 2
HABITACIÓN
HABITACIÓN 1 FAMILY ROOM
HABITACIÓN 3

4 Schools in Kosovo

2019

How do you design a building that could adapt itself to as many sites as possible, considering differences in plot shapes, topography, sun and wind direction, views, etc. ? This question is explored extensively in this project in which the government of Kosovo was to build schools in different cities as a social program. The answer: Modules.

The project is an open structure ready to adapt to the new educational, pedagogical, and economic conditions of Kosovo over the next years. More than a closed and fixed object, we look for an open architecture understood as a diagrammatic strategy composed of rules and properties. Rules are assigned to each of the modules making them compatible, allowing each school to adapt accordingly to the site and the conditions of the future. An architecture closer to human being, to a molecular structure with precise properties that can react to the external and internal conditions of the system

Pristina, Kosovo (Eastern Europe)

A modular system allows for infinite possibilities for the building distribution, regular or irregular shapes, adapting to every site´s conditions. This system also allows for flexibility in several aspects: the schools could be built by phases, in response to the real demand of students of each city at any given time. The standarization of materials, components such as windows and doors also reduces the general cost of the building.

02. Arberia

04. Pristina

C2perforated clay brick C

E4Perforated metal panel

E13Insulated trapezoidal metal cladding facade with anti-rust coating paint. Self-extinguishing insulation

F1Insulated trapezoidal metal roofing sheets with anti-rust coating paint. Self-extinguishing insulation

G9Sports hall & Multipurpose wooden flooring - Traffic resistant. Fire-Retardant-Treated Wood

H3Wood solid handrail. Fire-Retardant-Treated Wood H

J2Double glazed vertical windows - Facade

J3Double glazed horizontal windows - Facade

J11Flat Circular Skylight with venting self flashing - Manually operated - Roof

J12Shatterproof and impact resistant glass - Sports Hall

Casa LZ

Barranquilla, Colombia

2024

Design & Build project on the outskirts of the city of Barranquilla. This house features a concrete facade and interior detailings due to the fact that the client owns a concrete manufacturing and pouring company. Very present in the design process, the client contributed key insights referring to the technicalities of this material and intricacies of formwork.

When the main structured is poured, various facade details will be formed with it and poured simoultaneously, allowing for a monolithic structure that boasts a uniform concrete color and texture.

El Equipo Mazzanti

Role: Project Architect

This competition entry aimed to create an invisible building. A building that camouflages itself inside of a massive park. Following its exiting paths and also sinking part of its program to make as little in height as possible, this building tries to insert itself quietly in its site. Its long horizontal shape also makes it get lost in between the trees.

Long ramps connect the park’s ground floor with the building’s roof which created more park space with urban furniture, rooftop gardens and walkways, while being able to look downwards and into the building where several sporting events would take place.

Bogotá, Colombia

Centro Médico Internacional

Barranquilla, Colombia

2024 (WIP)

Architectural design project in Barranquilla. Two towers of different heights are connected by a platform which also functions as an entrance frame and a terrace in upper floors. A glass facade allows for uninterrupted views to the Caribbean sea to the north and a local park to the east.

The project consists of medical facilities on the first through fourth floor, and medical offices from the fifth all the way to the 12th floor.

Pre-Escolar La Enseñanza

Cajicá, Cundinamarca

El Equipo Mazzanti

Role: Project Architect

“Its all about the journey, not the destination”. This competition entry consisted of and endless loop which would serve as the school’s main circulation and classroom hall. Alonside of it, this hall would have different facade treatments so that every step is a new experience. A wavy snake shape also offers different views from each part of the hall.

In the spaces between the wavy hall, circles would form and create the classrooms, multiple use rooms, labs, etc. This would be the standarized portion of the building which will allow for further expansion and cost reduction.

Lomas de Caujaral

Barranquilla, Colombia

2024

Architectural design for a gated community’s entrance. A mix of natural materials like clay bricks and wooden wooden slats with signature slanted columns make for a modern but rustic design in accordance with the gated community´s character. The window was placed on the corner of the structure so the guard had an uninterrupted vision of the entrance.

Noticing a small enbankment on one side of the road, the design places slanted columns mirroring the slope and positioning the building seamlessly with it´s topography and location. A clearance of 4,20 meters was necessary for concrete mixers and other tall vehicles to be able to enter the community.

C01C01

Cubierta en lámina metálica ondulada

C02C02

Canaleta

E04E04

Perfíl estructural 350x80

M2FM2F

Muro en superboard acabado en pintura exterior

E03E03

Perfíl estructural 250x150

A04A04

Cielorraso en placa de superboard y subestructura en perfilería de aluminio

A03A03

Lamas en WPC

E02E02

Placa en concreto 10 cm

A02A02

Cielorraso en placa de yeso y subestructura en perfilería de aluminio

M2CM2C

Muro de bloque con pañete, estuco y pintura interior 15 cm

M2AM2A

Muro en ladrillo gran formato

39 x 12 ladrillera Santa Fé referencia Tierra. Pañete, estuco y pintura al inetrior

P01P01

Puerta de madera entamborada de 0.75 x 2.20 m

A01A01

Piso porcelanato 3cm sobre plantilla de 5 cm

E01E01

Placa de contrapiso espesor según diseño estructural

Muro en ladrillo gran formato

Turn static files into dynamic content formats.

Create a flipbook
Issuu converts static files into: digital portfolios, online yearbooks, online catalogs, digital photo albums and more. Sign up and create your flipbook.