2022 Graduate Comprehensive Studio | PART 02

Page 1

PROTOTYPES FORRESILIENT COASTAL SETTLEMENTS: U.S. COAST GUARD_BASE CHARLESTON SPRING 2022: GRADUATE COMPREHENSIVE STUDIO I CLEMSON UNIVERSITY SCHOOL OF ARCHITECTURE PART 02

This book contains the work of the 2022 Graduate Comprehensive Studio at Clemson University. This project involved a close collaboration with the United States Coast Guard and its Base Charleston. This was the third in a series of design studies conducted at Clemson University, in which students and their faculty explored the use of highly-sustainable, advanced timber systems for Department of Defense and Department of Homeland Security buildings. This work was conducted in conjunction with Clemson’s multidisciplinary Wood Utilization + Design (WU+D) Institute, and it was funded by the U.S. Endowment for Forests and Communities. Concurrent studios, looking at other DOD / DHS sites, were conducted at the Universities of Arkansas and Oregon. Together, we thank the U.S. Endowment for Forests and Communities for its generous support.

INTRODUCTION i

As the United States Coast Guard undertakes the largest construction program in our Service’s history, the Clemson University School of Architecture students brought a unique blend of creativity, advances in technology, and out of the box thinking to this project. Their presentations combined conventional concepts of space planning and resiliency with innovative ones like sustainability and carbon emission avoidance. This approach has made us think differently about the way we construct future shore facilities in Charleston and around the globe.”

- Captain John Berry, Commanding Officer USCG Facilities Design and Construction Center

Thank you to the staff and students at Clemson University’s School of Architecture for the remarkable partnership while designing facilities and infrastructure in support of the United States Coast Guard Base Charleston build-out. The proposed site presents unique challenges related to environmental impact, project phasing, coastal resiliency, and user experience. All of the final presentations exceeded expectations, incorporating creative design features and cutting edge practices that would ensure mission support and operational success at an installation positioned to become the premier Coast Guard center of gravity on the east coast.

INTRODUCTION iii
- Lieutenant John Houk, USCG Base Charleston Facilities Engineer

MULTIFAMILY HOUSING - NICK HAROLD, BAKER RODDEY, LANDON HANNAH

10 CHILD DEVELOPMENT CENTER - MOLLY PARK, SARAH MILEY

28 CHILD DEVELOPMENT CENTER ALTERNATE - MATTHEW BOUREAN

46 SECTOR COMMAND - BRITTANY LAPPLE, MICHAELA CHRISMAN

88 MULTIFAMILY HOUSING - HAILEY KRABBE, LYDIA LEHMAN

96 CHILD DEVELOPMENT CENTER - JENN DUTT, TAYLOR WAHLER

SECTOR COMMAND - COLIN BLAND, ERIC BELL

134 BASE COMMAND - CARLEY DOWNS, DANNY CASANOVA, RJ GROSS

vi
...........................................................................................
.................................................................................................................
.........................................................................................................................
.............................................................................................................
...................................................................................................................................
TABLE OF CONTENTS PROJECT SITE AND AREA OF FOCUS
viii PROJECT BACKGROUND
xii STUDIO OVERVIEW
xiv PROJECT PROGRAMMING
xvi SUPERTEAM 1
2
......................................................................................
.................................................................................................................................
.....................................................................................................................
.....................................................................................................................................
..................................................................................................
................................................................................................................
.......................................................................................................
............................................................................................................ 52 BASE COMMAND - THALY JIMENEZ, TATE DELUCCIA................................................................................................................................. 70 SUPERTEAM 2
............................................................................................................114
152

MULTIFAMILY HOUSING - ADRIANNA SPENCE, DIEGO BAZZANI

CHILD DEVELOPMENT CENTER - IAN KORDONIS, JOHN OWENS ...........................................................................................................196

SECTOR COMMAND - VINCENT CHRISTOPHER II, TUYEN TRAM .............................................................................................................218 BASE COMMAND - XIN GAO, JOSIAH KINNEY, ZACH SI

MULTIFAMILY HOUSING - COURTNEY WOLFF, GEOFFREY POWELL, ZACHARY STUEMER

CHILD DEVELOPMENT CENTER - DANIEL MECCA, LAUREN PRAEUNER

SECTOR COMMAND - SYDNEY PARKER, EMMA GIBSON

BASE COMMAND - JESSICA LONGHURST, KIMANI GRAYSON

INTRODUCTION vii
SUPERTEAM 3 ...............................................................................................................................170
............................................................................................................. 178
............................................................................................................................238 SUPERTEAM 4 .............................................................................................................................. 258
...................................................................268
................................................................................................288
.........................................................................................................................306
.................................................................................................................326

Resilience

as their dwelling should be able to serve the community and be prepared to serve the needs of

SUPERTEAM 2

we design a community that is inclusive to future communities?

own sense of community within their walls. Comfort and a feeling of home is especially important on a military base, so the design should encourage interaction between residents to facilitate a sense of family.

Point of Inquiry | How can we design a building that encourages community and interaction among residents provide a feeling of comfort, belonging and family?

Community Engagement

Building design that not only serves the intended expansion and unknowns to flourish.

MULTI FAMILY HOUSING CHILD DEVELOPMENT SECTOR COMMAND BASE COMMAND

Proposed Response | Community gathering spaces interspersed throughout the public wing of the building gives the occupant opportunities for varying levels of interaction.

Focus topics |

Engagement and Gathering

Multi-family apartment buildings provide their their walls. Comfort and a feeling of military base, so the design should residents to facilitate a sense of family.

Accessibility Accessibility

design a building that encourages among residents provide a feeling of comfort,

Community gathering spaces interspersed building gives the occupant of interaction.

Communal gathering in many forms Community Garden

Private

Porches gathering in many forms

Garden

We wanted to make sure we represented the connection of the existing master plan and the grid of the existing piers. What you’ll see most prominently in our project is diagonal axes that align with the piers used to organize our site. We wanted to do this because of the location and programing being for the United States Coast Guard and alter the existing master plan to bring more of the essence of the piers into the site. We then overlaid these axes over the existing master plan’s gird to create a grid for us to follow.

The new construction on the site is used to create familiar experiences to the existing plan while allowing for new orientations. We studied the flood zone areas and made sure to design in a safe zone that would not be affected by frequent flooding and raised our buildings by 15’ above the ground to flood damage. Everything that we developed on the ground level is designed to be flooded by creating outdoor spaces and using concrete.

We took about 50 of the parking spaces away from the existing site that we deemed unnecessary to give us extra space to develop. We then sectioned off the site into phase zones to see how our buildings would fit in with the rest of the site.

LYDIA LEHMAN TAYLOR WAHLER JENN DUTT CARLEY DOWNS DANNY CASANOVA RJ GROSS COLIN BLAND ERIC BELL
SUB-MASTERPLAN OVERVIEW
89 SUPERTEAM 2
STATES
| BASE CHARLESTON
UNITED
COAST GUARD
FULL SITE VIEW
90 RESEARCH | SITE ANALYSIS
FLOODING ON SITE
SITE MORPHOLOGY
91 SUPERTEAM 2
SITE PHASING
PARKING ON SITE
92 SITE PLANS
ORGANIZATIONAL SITE GRID
93 SUPERTEAM 2 SITE PLAN
94 SITE SECTIONS
95 SUPERTEAM 2

Point of Inquiry | How can we design a community that is inclusive to those in the current and the future communities?

Point of Inquiry | How can we design a community that is inclusive to those in the current and the future communities?

Point of Inquiry | How can we design a building that encourages community and interaction among residents provide a feeling of comfort, belonging and family?

Point of Inquiry | How can we design a building that encourages community and interaction among residents provide a feeling of comfort, belonging and family?

MULTIFAMILY HOUSING

Proposed Response | Building design that not only serves the intended purpose well, but allows for expansion and unknowns to flourish.

Proposed Response | Building design that not only serves the intended purpose well, but allows for expansion and unknowns to flourish.

Focus topics |

Focus topics |

Proposed Response | Community gathering spaces interspersed throughout the public wing of the building gives the occupant opportunities for varying levels of interaction.

Proposed Response | Community gathering spaces interspersed throughout the public wing of the building gives the occupant opportunities for varying levels of interaction.

FOR SUPERTEAM 2 SUB-MASTERPLAN

Community Resilience

Community Resilience

Community Engagement and Gathering

Community Engagement and Gathering

Mobility and Accessibility

Mobility and Accessibility

Equal Amenity Accessibility

Equal Amenity Accessibility

Position + Assertion

Focus topics |

Focus topics |

Public and Private Porches

Public and Private Porches

Communal gathering in many forms

Communal gathering in many forms

Community Garden

Community Garden

Mixed use buildings, especially those that are going to be serving families as their dwelling should be able to serve the current needs of the community and be prepared to serve the needs of communities to follow.

Multi-family apartment buildings provide their own sense of community within their walls. Comfort and a feeling of home is especially important on a military base, so the design should encourage interaction between residents to facilitate a sense of family.

Point of Inquiry

How can we design a community that is inclusive to those in the current and the future communities?

Proposed Response

Building design that not only serves the intended purpose well, but allows for expansion and unknowns to flourish.

How can we design a building that encourages community and interaction among residents provide a feeling of comfort, belonging and family?

Community gathering spaces interspersed throughout the public wing of the building gives the occupant opportunities for varying levels of interaction.

The 70,000 square foot USCG Multi-family housing building provides a design for equitable communities and community engagement. Its goal is to serve the community’s needs to benefit them in both the present and the future. Comfort and a feeling of home areessential on a military base, so the design encourages interaction between residents to facilitate a sense of family. It will also provide equal access to people of all physical abilities.

The apartment building and amenity building work together to provide a comprehensive experience for the residents, including access to a post office, storage units, a dog park, outdoor communal space, a rooftop garden, a gym, and 2 & 3 bedroom apartment options. The apartments offer different options for privacy, including an entirely private balcony on the south side of the building and a semi-public porch on the north side of the building that allows residents to interact with the exterior corridor. Along the corridor are public porches that overlook the outdoor community spaces, permeable parking lot, and docks beyond and encourage passing conversation among residents. The units have movable screens that allow the residents to control varying levels of privacy and access to fresh air on both ends of the apartment. The rooftop community garden is designed to accommodate all levels of physical ability and provides a space for collaboration, socialization, and community among the residents.

96
MULTIFAMILY HOUSING |
HAYLEY KRABBE + LYDIA LEHMAN
97 SUPERTEAM 2
HOUSING LOCATION ON SITE BUILDING FORM EVOLUTION
MULTIFAMILY

PROGRAM BREAKDOWN

POST OFFICE TOTAL: 1,140 ft2 FRONT: 508 ft2 BACK: 632 ft2

STORAGE TOTAL: 1,580 ft2 EACH: 790 ft2

RESIDENTIAL ENTRY

PARKING LOT: 77 SPACES DOG PARK

CHILDREN'S PLAY AREA BOCCE BALL + CORNHOLE GRILLING SEATING TRASH PICK-UP

98 GROUND FLOOR PLAN
UP UP UP
MULTIFAMILY HOUSING |
+ LYDIA LEHMAN
HAYLEY KRABBE

OVERALL

99 SUPERTEAM 2 FLOOR PLANS 2-5 DN DN UP DN
PROGRAM
GUEST
4 GUEST STUDIO UNITS PROVIDED 3
2 UNITS ON EACH FLOOR 8 UNITS TOTAL 2 BEDROOM UNIT:
9 UNITS ON EACH FLOOR 36 UNITS TOTAL COMMUNITY GATHERING: 1,136 ft2 TRASH ROOMS, SITTING AREAS, LAUNDRY, DINING LEVEL 2-5 RESIDENTIAL FLOOR PLAN LEVEL 2 AMENITY FLOOR PLAN LEVEL 3 AMENITY FLOOR PLAN LEVEL 5 AMENITY FLOOR PLAN
UNIT FLOOR PLANS
BREAKDOWN LEASING OFFICES: 849 ft2
STUDIO: 321 ft2
BEDROOM UNIT: 1,259 ft2
1,168 ft2
GYM + REC SPACE: 2,797 ft2 ROOFTOP + GARDEN: 4,491 ft2
100 BUILDING SECTION | WALL SECTION THROUGH APARTMENTS B G F A E D C LIVING ROOM KITCHEN DINING ROOM SEMI-PUBLIC PORCH EXTERIOR BREEZEWAY PRIVATE PORCH LIVING ROOM KITCHEN DINING ROOM SEMI-PUBLIC PORCH EXTERIOR BREEZEWAY PRIVATE PORCH PUBLIC PORCH COVERED EXTERIOR RECREATIONAL SPACE COVERED EXTERIOR RECREATIONAL SPACE 13' 0" 12' 0" 15' 0" FREEBOARD BASE FLOOD 0' 0" GROUND 1/4" = 1'-0" APARTMENT BUILDING SECTION B A D REFRIGERANT LINES MINI-SPLIT ROOFTOP UNIT MINI-SPLIT INDOOR UNIT HEAVY TIMBER POST + BEAM STRUCTURE SEMI-PUBLIC PORCH CONCRETE FOOTING BEYOND PILING BEYOND CONCRETE GRADE BEAM COVERED EXTERIOR RECREATIONAL SPACE OPERABLE TRANSOM WINDOWS EXTERIOR BREEZEWAY NATURAL VENTILATION COPING + FLASHING METAL STUD SHEATHING STUCCO FLASHING ROOF MEMBRANE RIGID INSULATION WEATHER BARRIER CLADDING 5-PLY CLT INSULATED METAL STUD SOFFIT GYPSUM WALL BOARD AIR SUPPLY AND RETURN REFRIGERANT LINE DUCTWORK BEYOND HEAVY TIMBER BEAM GYPSUM WALL BOARD INSULATED METAL STUD SHEATHING SHEATHING MEMBRANE GYP-CRETE ACOUSTIC MAT 5-PLY CLT EXTERIOR BREEZEWAY CONCRETE POST + BEAM STRUCTURE DRAIN TO CISTERN 4" CONCRETE SLAB SEMI-PUBLIC PORCH PUBLIC PORCH PUBLIC PORCH C STUCCO DOWNSPOUT INTEGRATED GUTTER SLOPE GRAVEL FILL BOXED FOOTER MULTIFAMILY HOUSING | HAYLEY KRABBE + LYDIA LEHMAN BUILDING ENVELOPE
101 SUPERTEAM 2
RENDERED SECTION PERSPECTIVE THROUGH APARTMENTS
102 AA AB AC AE GYM ROOFTOP GARDEN STUDIO GUEST ROOM POST OFFICE FRONT POST OFFICE BACK PUBLIC RESTROOM EXTERIOR CORRIDOR EXTERIOR CORRIDOR 15' 0" 13' 0" 12' 0" FREEBOARD SEA LEVEL RISE BASE FLOOD 0' 0" GROUND AD 1/4" = 1'-0" 1 AMENITY BUILDING SECTION 5-PLY CLT RIGID INSULATION HEAVY TIMBER POST + BEAM STRUCTURE 6 MIL WATER BARRIER WATER BARRIER PLYWOOD SHEATHING BATT INSULATION 5/8" GYPSUM WALLBOARD ROOF WATER DRAINAGE 5-PLY CLT ACOUSTIC MAT 2" GYPCRETE 5-PLY CLT ACOUSTIC MAT 2" GYPCRETE CONCRETE BEAM 3 5/8" METAL STUD BATT INSULATION 5/8" GYPSUM CEILING MINI-SPLIT INDOOR UNIT STEEL TUBE BEYOND GALV. STEEL CHANNEL 1/2" COVERBOARD DOUBLE LAYER TPO MEMBRANE PEDESTAL + IPE PAVER SYSTEM GLASS RAILING AIR SUPPLY + RETURN GYM ROOFTOP GARDEN STUDIO GUEST ROOM POST OFFICE FRONT POST OFFICE BACK WATER PROOFING MEMBRANE 4" CONCRETE WALKWAY GRAVEL FILL GUTTER + DRAIN TO CISTERN CONCRETE FOOTING PILES BEYOND RIGID INSULATION GRAVEL FILL 4" CONCRETE SLAB OPERABLE WINDOW 3 5/8" METAL STUD DUCT BEYOND CONCRETE COLUMN CONCRETE GIRDER CONCRETE WALL INSULATED ALUMINUM PANELS 2 1/2" AIR GAP METAL PANEL JOINT FLASHING SEAL FLASHING DRIP EDGE BOXED FOOTER BOXED HEADER DOWNSPOUT BEYOND 1" 1'-0" AMENITY WALL SECTION MULTIFAMILY HOUSING | HAYLEY KRABBE + LYDIA LEHMAN BUILDING SECTION | WALL SECTION THROUGH APARTMENTS BUILDING ENVELOPE
103 SUPERTEAM 2
RENDERED SECTION PERSPECTIVE THROUGH APARTMENTS

STRUCTURE

The use of Cross Laminated Timber and Glu-lam as the primary construction materials is a sustainable way to add to the built environment of Charleston. Concrete construction on the ground level ensures protection from flooding on the coast. The apartment building’s roof has enough solar panels to power 48% of the apartment units and cisterns on the ground level to collect and harvest rainwater used in the rooftop garden.

IV. ROOF + FRAMING: 1. CLT LOAD BEARING WALLS + COLUMNS 2. GLULAM GIRDERS

GLULAM BEAMS

CLT ROOF

NON-STRUCTURAL WALLS

III. LEVEL 3 + FRAMING: 1. CLT LOAD BEARING WALLS + COLUMNS 2. GLULAM GIRDERS

GLULAM BEAMS 4. CLT FLOOR 5. NON-STRUCTURAL WALLS

II. LEVEL 2 + FRAMING: 1. CONCRETE WALLS + COLUMNS

CONCRETE GIRDERS

CONCRETE BEAMS 4. CLT FLOOR

NON-STRUCTURAL WALLS

I. FOUNDATION: 1. PILES + PILE CAPS 2. FOUNDATION WALLS

STRUCTURE SECTIONS THROUGH AMENITIES

104
3. CONCRETE SLAB
2.
3.
5.
3.
3.
4.
5.
MULTIFAMILY HOUSING | HAYLEY KRABBE + LYDIA LEHMAN
105 SUPERTEAM 2 B A D C I. FOUNDATION: 1. PILES + PILE CAPS 2. GRADE BEAMS 3. CONCRETE SLAB II. LEVEL
+
1. CONCRETE
+ COLUMNS 2. CONCRETE
3. CONCRETE
4. CLT
III.
1. CLT
+
2.
3.
4. CLT
5.
IV. LEVEL
1. CLT
+
2.
3. GLULAM
4. CLT
5. NON-STRUCTURAL
V.
1. CLT
+ COLUMNS 2.
3.
4. CLT
5. NON-STRUCTURAL
1.
+
2.
3.
4.
5.
6.
STRUCTURE SECTION THROUGH APARTMENTS
2
FRAMING:
WALLS
GIRDERS
BEAMS
FLOOR
LEVEL 3 + FRAMING:
LOAD BEARING WALLS
COLUMNS
GLULAM GIRDERS
GLULAM BEAMS
FLOOR
NON-STRUCTURAL WALLS
4 + FRAMING:
LOAD BEARING WALLS
COLUMNS
GLULAM GIRDERS
BEAMS
FLOOR
WALLS
LEVEL 5 + FRAMING:
LOAD BEARING WALLS
GLULAM GIRDERS
GLULAM BEAMS
FLOOR
WALLS VI. ROOF + FRAMING:
CLT LOAD BEARING WALLS
COLUMNS
GLULAM GIRDERS
GLULAM BEAMS
CLT ROOF
NON-STRUCTURAL WALLS
PARAPET WALLS

STRUCTURE

STRUCTURE AXONOMETRICS

106
MULTIFAMILY HOUSING | HAYLEY KRABBE + LYDIA LEHMAN

ENVIRONMENTAL SYSTEMS

108
HVAC AXONOMETRIC MULTIFAMILY HOUSING | HAYLEY KRABBE + LYDIA LEHMAN
109 SUPERTEAM 2 G 3 5 6 7 9 10 11 12 13 A2 A4 A5 AA AC AD A1 14 15 16 17 18 19 20 21 22 23 24 A E A3 D A6 C B G 1 3 4 8 10 11 12 13 A2 A4 A5 AA AB AC AD A1 14 15 16 17 18 19 20 21 22 23 24 2 A3 D A6 3/32" 1'-0" LEVEL -HVAC G 4 5 7 10 11 12 13 A2 A4 A5 AA AB AC AD A1 14 15 16 17 18 19 20 21 22 23 24 A A3 D A6 C G 4 5 6 8 9 10 12 13 14 15 16 17 18 19 20 21 22 23 24 A E D C 3/32" 1'-0" B G 3 5 7 8 10 11 12 13 F 14 15 16 17 18 19 20 21 22 23 24 E D C SL E DOWNSPOUT INTEGRATED GUTTER DRAIN TO DOWNSPOUT MINI-SPLIT ROOFTOP UNIT MINI-SPLIT ROOFTOP UNIT 12' x 7' x 4' VAV SINGLE PACKAGED UNIT PARAPET WALL ROOFTOP ACCESS (508) 250 WATT SOLAR PANELS 3/32" = 1'-0" LEVEL 1 HVAC LEVEL 2 HVAC LEVEL 3 HVAC LEVEL 4 HVAC LEVEL 5 HVAC ROOF HVAC + PV LAYOUT
110
DYESS AVENUE FACADE ROOF COMMUNITY GARDEN MULTIFAMILY HOUSING | HAYLEY KRABBE + LYDIA LEHMAN
111 SUPERTEAM 2
PORCH IN CORRIDOR EXTERIOR CORRIDOR AND UNIT
112
VIEW FROM PARKING COURTYARD MULTIFAMILY HOUSING | HAYLEY KRABBE + LYDIA LEHMAN
113 SUPERTEAM 2 PHYSICAL MODEL

CHILD DEVELOPMENT CENTER

Educational facilities host a unique opportunity to design for many learning types within one building. Spaces must be flexible and engaging without feeling too enclosed and cut off. Mixing academic areas with spaces designed to host public functions provides an exciting opportunity to foster a sense of community and engagement. My goal is to offer these dual levels that foster a sense of community while providing a synthesis of interior and exterior learning spaces.

Schools provide the unique opportunity to create a learning environment that positively impacts the education of its users. Classrooms are traditional rooms that are artificially lit and closed off from the remainder of the building. These spaces often diminish enthusiasm for teaching. Successful classrooms should encourage a sense of discovery and exploration through various sensory experiences that engage the mind and influence the soul. This center should be a space for all to create and learn. My goal is to create flexible spaces that allow students the opportunity to develop their learning environment and recultivate a love of learning. The center should also be a haven for collaboration and community.

How can architecture provide a sense of community engagement and play to the occupants without sacrificing safety and wellbeing? Can our building foster a sense of community between the various occupant types?

How can the architecture create a multisensory experience that encourages a need for discovery and fosters an environment for learning?

Introducing mezzanine spaces that change space dynamics and allow students to overlook various activities taking place throughout the building and incorporate open and flexible learning spaces.

Provide flex spaces that encourage group involvement and foster a sense of play to fit various needs while keeping children engaged.

114
CHILD DEVELOPMENT CENTER | JENN DUTT + TAYLOR WAHLER
FOR SUPERTEAM 2 SUB-MASTERPLAN
JENN DUTT
Position + Assertion Point of Inquiry Proposed Response
TAYLOR WAHLER

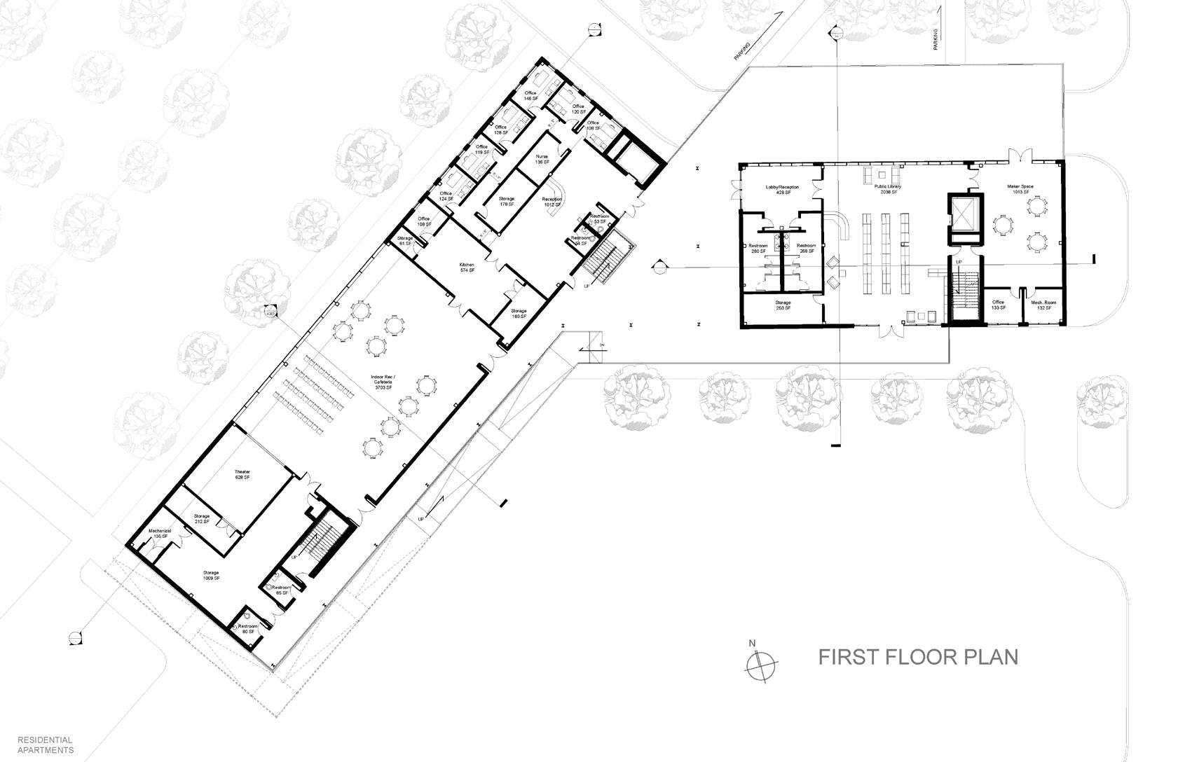
The Child Development Center from Superteam 1 intends to explore the relationship between visibility and flexibility while tackling the deteriorating site conditions that climate change accelerates. Located on the northeastern corner of the site, the CDC is two separate buildings connected by an exterior steel deck that provides views of the ships and moments of exterior learning space. The larger building, the education building, is aligned with the axis of the piers, and the smaller public structure aligns with the street grid. The education building aims to create moments of discovery and community while providing visibility to the ships for reduced child anxiety. There is 30,000 sqft dedicated to flexible educational facilities. Classrooms on the upper floor contain popouts that frame the docks and partitions that can open up to allow a view of the ships from one end of the building to the other. The public building contains a double-height library and maker space accessible from the first-floor deck. Both buildings are elevated 15’ above the ground due to frequent flooding, accessible by either ramp or stairs. Minimal facilities are located on the ground floor, ensuring continued operation in the face of natural disasters. Heavy timber is utilized above the floodplain to help improve indoor air quality by moderating humidity levels and reducing the sympathetic nervous system in children already experiencing high-stress levels. Plenty of windows allow direct views of the exterior, a flood of natural daylight, and a connection to the locations of their parents. Designed with the end-user in mind, the Childcare Development Center provides malleable moments for child creativity and learning while handling constraints given by site conditions and the federal agency.

115 SUPERTEAM 2
CHILD DEVELOPMENT CENTER LOCATION ON SITE
116 CHILD DEVELOPMENT CENTER | JENN DUTT + TAYLOR WAHLER
117 SUPERTEAM 2
118 CHILD DEVELOPMENT CENTER | JENN DUTT + TAYLOR WAHLER PARTI DIAGRAM
119 SUPERTEAM 2 BUILDING SECTIONS + PRECEDENTS

STRUCTURE

120 CHILD DEVELOPMENT CENTER |
+
JENN DUTT
TAYLOR WAHLER LOAD TRACING

STRUCTURE AXON

121 SUPERTEAM 2

STRUCTURE

122 CHILD DEVELOPMENT CENTER | JENN DUTT + TAYLOR WAHLER
123 SUPERTEAM 2

ENVIRONMENTAL SYSTEMS

ACTIVE SYSTEMS

124 CHILD DEVELOPMENT CENTER | JENN DUTT + TAYLOR WAHLER

WATER MANAGEMENT | PASSIVE SYSTEMS

125 SUPERTEAM 2

BUILDING ENVELOPE

WALL SECTION AT EDUCATION WING

126 CHILD DEVELOPMENT CENTER | JENN DUTT + TAYLOR
WAHLER
127 SUPERTEAM 2 EDUCATION WALL DETAILS

BUILDING ENVELOPE

WALL SECTION AT PUBLIC WING

128 CHILD DEVELOPMENT CENTER | JENN DUTT + TAYLOR
WAHLER
129 SUPERTEAM 2 PUBLIC WALL DETAILS
130 CHILD DEVELOPMENT CENTER |
JENN DUTT + TAYLOR WAHLER BUILDING SECTION
131 SUPERTEAM 2
132
MULTIPURPOSE SPACE CHILD DEVELOPMENT CENTER | JENN DUTT +
EXTERIOR RAMP
TAYLOR WAHLER
133 SUPERTEAM 2
LIBRARY
CLASSROOM

SECTOR COMMAND

FOR SUPERTEAM 2 SUB-MASTERPLAN

Position + Assertion

The US Armed Services has a long history of discrimination inside of its ranks. Policies like “don’t ask, don’t tell” have shaped the careers and experiences of individuals who enlist. Federal buildings that protect gender and sexual minorities are critical for LGBTQ+ individuals who are likely to feel discomfort in a culture that is slow to change despite being protected by the law.

Performative buildings, which are facilities that constantly work to reduce their negative environmental impact, are better for the environment and inhabitants. Additionally, through lighting and conditioning strategies, office design that emphasizes the comfort of inhabitants positively affects employee productivity and well-being.

Point of Inquiry

How does an office building protect individuals beyond sheltering them? How does an office building facilitate a spectrum of working experiences that range from very visible to very protective for LGBTQ+ individuals in varying levels of comfort?

How can we design more responsibly? How can we introduce new materials and methods that reduce our impact? How can we strengthen the support for passive and eco-friendly strategies from construction through the entire lifecycle of our buildings? How can we use these strategies to prioritize occupant well-being and productivity to create an atmosphere of comfort?

Proposed Response

The design will offer different scales of programmatic spaces that empower users to determine where to engage in certain activities, how much privacy they desire, and how much distance/visibility they prefer.

The design explores ways to a) reduce sun exposure, responsible water management, land reclamation, and revitalization, b) implement passive and robust lighting strategies and micro-climate creation, and c) provide ample and effective spaces for reprieve.

134
SECTOR COMMAND | COLIN BLAND + ERIC BELL
COLIN BLAND ERIC BELL

Inspired by the ships it serves, the Sector Command building from Superteam 1 explores questions about what quality, 21stcentury office space looks like while grappling with the threats of climate change in Charleston, SC. The Sector Command facility aligns with the piers servicing the fleet of Coast Guard ships patrolling the US coast. The Northeast ends of the building frame uninterrupted views into the harbor where members of the Coast Guard maintain direct visual connections with the shores they protect from within this headquarters. At 221 feet long, this building provides 60,000sqft of office space for the Coast Guard and their local port partners. The building consists of two masses connected by a bridge. The larger mass, Building A, hosts the Coast Guard office suite and its ancillary functions. The smaller mass, Building B, hosts the suite dedicated to local partners like law enforcement. Both Building A and Building B are elevated 20’ off the ground in response to the threat of devastating flooding in the area, ensuring that portions of the facility may remain operational in the event of a natural disaster. While utilitarian from the exterior, the Sector Command facility celebrates the heavy timber structural system by exposing the wood grains and bathing them in filtered light from the southeast. The 68 offices and 100+ workstations throughout the building all maintain visual access to the outdoors with ample daylight for conducting tasks. Designed from the inside out, the Sector Command facility provides exceptional user experience while juggling the constraints imposed by a security-driven federal agency.

135 SUPERTEAM 2
SECTOR COMMAND LOCATION ON SITE

CONCEPT DEVELOPMENT

136
BUILDING FORM EVOLUTION
SECTOR COMMAND | COLIN BLAND + ERIC BELL
137 SUPERTEAM 2
138 SECTOR COMMAND | COLIN BLAND + ERIC BELL
GROUND FLOOR PLAN

LEVEL 01 LEVEL 02

LEVEL 03

139 SUPERTEAM 2
140 SECTOR COMMAND | COLIN BLAND + ERIC BELL
141 SUPERTEAM 2 SECTION PERSPECTIVES

STRUCTURE

142
LOAD PATH AND PASSIVE CONDITIONING DIAGRAM
SECTOR COMMAND | COLIN BLAND + ERIC BELL STRUCTURE
AXONOMETRICS

FOUNDATION PLAN LEVEL 1 FRAMING PLAN LEVEL 2 FRAMING PLAN LEVEL 3 FRAMING PLAN

143 SUPERTEAM 2
ROOF FRAMING PLAN

ENVIRONMENTAL SYSTEMS

LEVEL 2 HVAC LEVEL 3 HVAC

144
SECTOR COMMAND | COLIN BLAND + ERIC BELL
ROOF HVAC
145 SUPERTEAM 2
ENVELOPE DETAIL SHOWING LOUVER FACADE SYSTEM
146 WALL SECTION 1 SECTOR COMMAND | COLIN BLAND + ERIC BELL
DETAIL
BUILDING
DETAIL 1.1
1.2
ENVELOPE
147 SUPERTEAM 2 WALL SECTION 2
DETAIL
DETAIL 2.1
2.2
148
COMMUNITY
SECTOR COMMAND | COLIN BLAND + ERIC BELL
FACADE FACING MULTIMODAL PATHWAY
ROOM
149 SUPERTEAM 2
OFFICE A OPEN OFFICE B
OPEN
150
SECTOR COMMAND | COLIN BLAND + ERIC BELL
INTERIOR COURTYARD VIEW
151 SUPERTEAM 2
PHYSICAL MODEL

BASE COMMAND

FOR SUPERTEAM 2 SUB-MASTERPLAN

Position + Assertion

Due to frequent flooding, large amounts of traffic (pedestrian and vehicle), and zoning and setback requirements, this project poses unique challenges to designing an organizationally and sustainably efficient building that can adapt to future users’ needs and is equipped for potential natural disasters.

A design that allows users to reconnect with nature can provide opportunities to live and work in healthy spaces with less stress and achieve better health and well-being. Incorporating biophilic design can improve well-being, cognitive function, and creativity while also expediting healing.

Mixed-use buildings provide multiple functions to different users. Each programmable space has a purpose. An office is for work, a classroom is for learning, and a store is for shopping. However, combining multiple functions in one building brings different users to the same space.

Point of Inquiry

What can we implement within the design to maintain a relevant architectural language while designing for sustainability, adaptability, and safety?

Proposed Response

Raising the structure provides resiliency to potential flooding threats. A design that responds to hot and humid temperatures through natural light and crossventilation. Lastly, providing additional interior space equips the building’s programmatic capacity to grow over time.

How can the design foster the well-being and health of occupants inside and outside the building? How can biophilic design enhance the well-being of users?

How can we design a building that promotes community engagement, inclusion, and human connection?

A biophilic design throughout our building can enhance our occupants’ well-being and cognitive function.

Mixing program spaces throughout the building can bring users together that may not normally interact. An implementation of this would be the mini-mart or other public programming.

152
BASE COMMAND |
CARLEY DOWNS + DANNY CASANOVA + RJ GROSS
CARLEY DOWNS DANNY CASANOVA RJ GROSS

The design of the Base Command building at the North Charleston Coast Guard Base focuses on building efficiency and adaptability, occupant wellbeing, and promoting social interactions with user groups on base. The altered master plan establishes a grid that aligns with the piers on site and existing roadways. South Hobson Avenue, the diagonal pier grid, and the adjacent buildings shape the Base Command building’s footprint. The structure’s form accommodates privacy in the offices and sun mitigation on the south side through an aluminum facade and vegetation wall. Strategically placed windows on the north side allow for views of the piers and Coast Guard Cutters. For additional programming, the concrete pedestal base of the building houses storage and mercantile programming. The raised floor system on the first and second floors conceals mechanical and geothermal flooring systems. Structurally, the floors and roofs comprise Cross-Laminated Timber panels, a thin concrete topping, Glulam columns (with a steel knife plate connection), beams, and girders. A glass curtain wall system and ACM aluminum panels are the main components of the structural envelope. The structure has two sloping roofs with PV panels, while the flat portion holds the mechanical room and a large green roof. Programmatically, the building functions as office space but also includes a mini-mart, storage areas, doubleheight lobby, classrooms, lecture hall, armory, and a flex space for events with a terrace.

BASE COMMAND LOCATION ON SITE

153 SUPERTEAM 2

CONCEPT DEVELOPMENT

154
BASE
COMMAND | CARLEY DOWNS + DANNY CASANOVA + RJ GROSS USER DIAGRAM CONCEPT DIAGRAM

BUILDING FORM EVOLUTION

155 SUPERTEAM 2
PRIVACY DIAGRAM PROGRAM DIAGRAM
156 BASE COMMAND
|
CARLEY DOWNS + DANNY CASANOVA + RJ GROSS GROUND FLOOR PLAN
157 SUPERTEAM 2 LEVEL 01 LEVEL 02
158 BASE COMMAND |
CARLEY DOWNS +
DANNY
CASANOVA + RJ GROSS
159 SUPERTEAM 2
BUILDING AXONOMETRIC VIEW
160
BASE COMMAND
LOAD TRACING DIAGRAM STRUCTURAL AXONOMETRIC
STRUCTURE
|
CARLEY DOWNS + DANNY CASANOVA + RJ GROSS

FOUNDATION PLAN GROUND FLOOR FRAMING PLAN

LEVEL 1 FRAMING PLAN LEVEL 2 FRAMING PLAN

161 SUPERTEAM 2
ROOF
FRAMING PLAN

ENVIRONMENTAL SYSTEMS

SOLAR RADIATION AND WIND DIRECTION ENVIRONMENTAL ANALYSIS

162
BASE
COMMAND | CARLEY DOWNS +
DANNY CASANOVA + RJ GROSS

RADIANT FLOORING SYSTEM A

RADIANT FLOORING SYSTEM B

SECTION HIGHLIGHTING NATURAL VENTILATION AND THERMAL SYSTEM

ENVIRONMENTAL SYSTEM DIAGRAM

163 SUPERTEAM 2

BUILDING ENVELOPE

WALL SECTION 1

164
BASE
|
COMMAND
CARLEY DOWNS + DANNY CASANOVA + RJ GROSS
165 SUPERTEAM 2 WALL SECTION 2
166
OFFICE SPACE
COURTYARD VIEW BASE COMMAND | CARLEY DOWNS + DANNY CASANOVA + RJ GROSS
167 SUPERTEAM 2
VIEW OF PIER FROM LECTURE HALL LOBBY
168
BASE
VIEW FROM SOUTH HOBSON AVENUE COMMAND
|
CARLEY DOWNS + DANNY CASANOVA + RJ GROSS
169 SUPERTEAM 2 PHYSICAL MODEL

Turn static files into dynamic content formats.

Create a flipbook
Issuu converts static files into: digital portfolios, online yearbooks, online catalogs, digital photo albums and more. Sign up and create your flipbook.