POE MILL THRIVING
RESILIENT NEIGHBORHOOD DEVELOPMENT WITHIN GREENVILLE’S TEXTILE CRESCENT FALL 2023 FLUID STUDIO | CLEMSON UNIVERSITY SCHOOL OF ARCHITECTURE + TECHNISCHE



![]()



This driving concept of this master plan is to restore Poe Mill’s historical roots by designing an active “new village” in and around the former mill. By providing resources and opportunities for community improvement, this gives residents a chance to interact with one another without worrying about the negative stigmas typically associated with low-income neighborhoods. Instead, the people here will become active participants in the restoration of their collective identity, while improving the reputation and wellbeing of individuals over time. We were originally inspired by the vision of Rashida Jeffers Campbell, community planner and long-time resident of Poe Mill, to transform the run-down neighborhood into a place that rightfully matches the strong dignity of each resident living there.
One of the goals of this Master Plan is to connect with neighboring communities. Here you see the figure ground overlayed by historic map information stemming from the 1920’s Sanborn Map and the 1882 Kyser Map. When combined, they tell the story of displacement and gentrification in Greenville’s mill history. The 1920’s Sanborn map overlaps the figure ground of Poe Mill to visualize what territory the old Poe Mill covered.
Even more, our goal for Poe Mill Village is grassroots community revitalization. Our master plan does not dictate exactly how every space is used because it encourages autonomy in how they use the spaces such as adu’s for rentals and green spaces for food trucks and events. This also facilitates more creative partnerships with community service agencies and area churches. Community partnerships will facilitate and host business cooperatives such as ones targeted for community agriculture, art, and building trades.




BRUTON’S SHOP ON KYSER’S 1882 MAP:
















Brittany Holladay & Natalie Wade
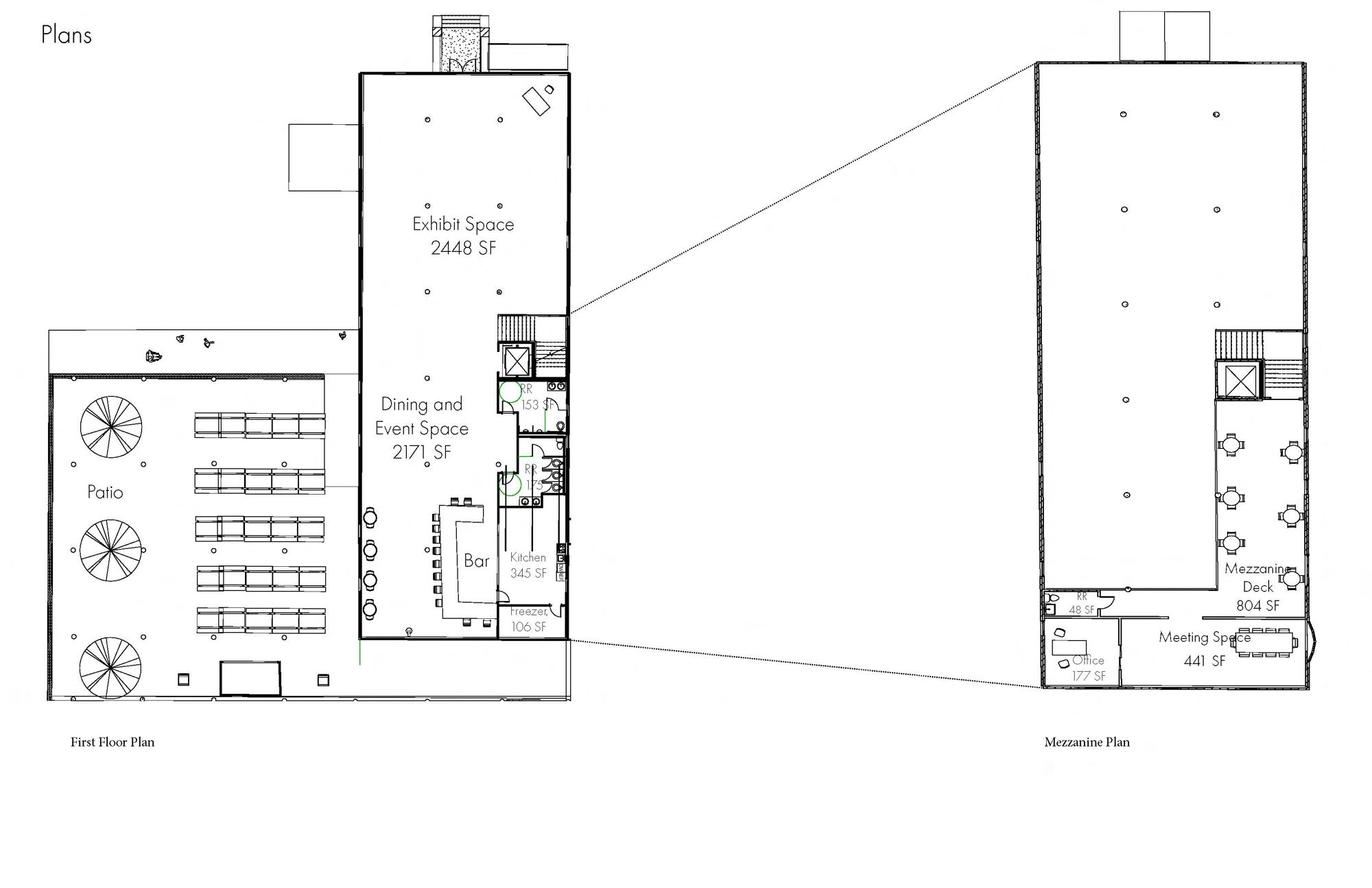
The Community Resource Center is Designed to be a free space for exploration, education, and community interaction. It will be directly connected to a childcare center, public garden, and recreational park located along “A” street. As visitors enter the building they are encouraged to explor activities happening on either floor. The west side of the building hosts the most active programs, including a woodworking shop, teaching kitchen, and children’s library. The east side of the building houses quieter actvities, like a resource library, offices, and a private event space. Inside, there is a central atrium that anchors both spectrums of activity.
The best thing about the center is its flexibility, and ability to adapt to any event, public or private, that might benefit neighborhood growth. As visitors exit the building, they are greeted by the well-known smokestacks, which symbolize the rich heritage and resilience of Poe Mill.








A public resource library will help residents of all incomes find resources that aid in starting small businesses or giving crucial financial advice for balancing work and family demands




An indoor/outdoor event space will allow small businesses and community members to hold events, invite guest speakers, or even throw birthday celebrations. This area can be open after library hours for private night events as well. This space will give residents a taste of the downtown Greenville atmosphere, while keeping the dignity of their neighborhood roots intact
A teaching kitchen will provide kids and adults with a place to learn new culinary skills and make healthier choices. They will also sustainably source fresh food while learning other valuable life skills like time management


A woodworking space will offer Poe Mill residents the resources and means to learn basic construction techniques, offering a direct opportunity to improve skills for home renovation projects. This will be a unique way to promote community involvement for the “New Village.” With mostly double-height space, this gives opportunity for a glazed mezzanine, for curious kids to explore from the library above



BECAUSE OF THE NATURE OF THE SITE AND THE AVAILABILITY OF RESOURCES IN THE COMMUNITY, WE DECIDED TO USE AFFORDABLE, BUT RESILIENT MATERIALS THROUGHOUT THE BUILDING. BY USING STEEL C-STUDS AND TWO SUBSTANTIAL LAYERS OF INSULATION, WE CAN KEEP THE STRUCTURE LIGHTWEIGHT WHILE PREVENTING HEAT LOSS AND AIR INFILTRATION THROUGH THE BUILDING ENVELOPE. TO FIT IN WITH THE HISTORICAL FEEL OF THE NEIGHBORHOOD WHILE SHOWCASING SUSTAINABLE CONSTRUCTION PRACTICES, WE CHOSE TO IMPLEMENT A VERTICAL WOOD SIDING THAT AGES NATURALLY AS THE SURROUNDING TREES FROM THE FORMER MILL.


Morgan Shawen
Poe Mill is a small mill village community near Downtown Greenville, South Carolina. It is a tightknit neighborhood with people who look out for each other, but lacks a lot of support resources other communities have and need. When visiting the site, it was mentioned that Poe Mill does not have access to a preschool or childcare for infants and toddlers, and that is something they have been specifically looking into. My proposal is for a childcare development center on a currently vacant lot across from the where the old mill once stood.
The center would sit between a renovated museum and a new community center, and across from the renovated mill site, all of which are being proposed by my groupmates. The center is planned to accommodate children from the age of six weeks through kindergarteners (five-six years). After this age, the nearby community of Brutontown has resources for elementary age children. The facility is also sized to accommodate the young children of Brutontown.







When visiting, parents will see eight classrooms, each with their own storage. The four youngest classes have attached nap rooms, and the four oldest have attached restrooms with child sized facilities. Other interior spaces include a gym space for poor weather, a kitchen, a cafeteria for use by the older children, an art room, music room, and library that works alongside the community center. Lastly, the admin space overlooks the entry, which features a dual door system. Outside, two courtyards fit within the building’s footprint to allow for outdoor play on a raised, flat surface. Two playgrounds, one for younger children and one for older, and a garden finish off the amenities available to the children.

Materials
Composite Panels
-Can be made to look like wood
- Keep the outside neutral to better match surroundings
Painted Gypsum
- Inside painted fun colors for the children
Cork Tiles
- Can be used in exterior and interior spaces
- Tends to keep surface cooler
- Known to be durable
- Resistant to mold, mildew, and termites
- Repels dirt, dander, and dust mites
Linoleum
- Used for interior spaces
- Smooth surface makes it easy to clean and disinfect








Cierra Davies
From the inception of Poe Mill, the office building served as a place for business and community events. Overtime, it has played host to other uses. It was once a museum and it currently serves as apartments for transitional living.
I am now proposing that it be transformed into a socially-engaging art and community space. To achieve this, the building will be heavily renovated on its interior, while retaining the original structural beams and columns. By opening up the interior, it will allow natural light to easily enter enliven the spaces. The openness of inside will also promote views and connection to the cultural activities that spill over to the outside areas around the building.







Double Height Mueseum Space



Double Height Bar and Dance Floor with Mezzanine



Outdoor Kitchen and Patio Space




Outdoor Amphitheatre and Mural Space


Hayden Holt
The mission of the design is to strengthen and foster Poe Mill’s cultural identity through recreational and flexible programs. These programs have long been needed for the neighborhood. Back when the mill village was founded many of these elements were facilitated by the Mill Company. However now decades after the mill has closed they have all but diminished or been established outside of the neighborhood. Giving a cultural foundation back to the community through these spaces will help Poe Mill grow to its full potential in an economically healthy way.
Including large greenspaces, an expanded skatepark and shop, and recreational center, the design encourages community activity and cultural growth that gives Poe Mill a foundation to grow its already existing identity. A combination of live/ work, market-rate housing and flexible co-working space anchors the eastern corner of the site helping stabilize housing for the area, providing alternative living options for Poe Mill residents.








The Poe Mill Community is resilient and has many strengths and opportunities. This masterplan aims to revive the community through three phases that use the existing strengths as anchors and take advantage of the opportunities that lie within the community already.
Harness: A proactive and purposeful approach to bring about positive change and growth by channeling the community’s strengths and capabilities.
Harbor: To provide a protective and nurturing environment where the community can find safety, stability, and support, fostering a sense of security and well-being to facilitate its revitalization and growth.
Hinge: To suggest a pivotal point or action that brings together various elements within the community, emphasizing an essential role in connecting and facilitating growth, renewal, and positive change.
The goal for each phase is to improve upon an existing part of the community, and add new programs and resources that support the improvement. The new programs take advantage of vacant lots to respect the neighborhood and how it has developed over time, while also spreading across the neighborhood to increase interaction among the entire community.

A proactive and purposeful approach to bring about positive change and growth by channeling the community's strengths and capabilities.
A proactive and purposeful approach to bring about positive change and growth by channeling the community's strengths and capabilities.
To provide a protective and nurturing environment where the community can find safety, stability, and support, fostering a
To provide a protective and nurturing environment where the community can find safety, stability, and support, fostering a


To suggest a pivotal point or action that brings together various elements within the community, emphasizing its essential role in connecting and facilitating growth, renewal, and positive change.
To suggest a pivotal point or action that brings together various elements within the community, emphasizing its essential role in connecting and facilitating growth, renewal, and positive change.



Kayla Pratt
The Poe Mill Plaza is aimed to work with our “For the People” masterplan by embracing two of the greatest strengths of the Poe Mill community - community and resilience. Poe Mill residents have a strong sense of community and are always helping each other through adversities. I felt that this site needed to enhance the sense of community and resilience.
By looking at the previous mill footprint and the existing site conditions, a grid was created and overlaid onto the site. This grid influenced the placement and size of the proposed structures, which then were used to create a more dense grid and a ‘woven’ path between the old and new features of the site. The grid and paths were then used to designate specific areas of the site with different hard and soft - scapes. This strategy allows the site to relate back to its origins while also embracing the proposed additions.









These programs benefit the community by providing spaces for gathering, recreation, production, and living. The skate shop provides support for the existing skate park and could also be a gathering space for skaters and non-skaters alike. The commercial space provides an area for community members to start their own businesses, along with a cafe and some public services. The plaza allows for different types of events and gatherings as it can support both pedestrian and vehicular traffic, opening up opportunities for community meetings, festivals, markets, etc. The resource center is a large workshop that allows users to rent tools, purchase materials, learn new skills, and even work on projects for their homes or businesses. The resource center also includes a greenhouse and storage space that not only provides tools and plants for gardening but also supports the community garden. The community garden provides fresh food for the community and also serves as an example of how to garden so community members can create their own gardens at home or teach others how to garden. The multifamily housing provides much needed affordable housing for the community.
All of these programs benefit the community by providing spaces for gathering, recreation, production, and living. The skate shop provides support for the existing skate park and could also be a gathering space for skaters and non-skaters alike. The commercial space provides an area for community members to start their own businesses, along with a cafe and some public services. The plaza allows for different types of events and gatherings as it can support both pedestrian and vehicular traffic, opening up opportunities for community meetings, festivals, markets, etc. The resource center is a large workshop that allows users to rent tools, purchase materials, learn new skills, and even work on projects for their homes or businesses. The resource center also includes a greenhouse and storage space that not only provides tools and plants for gardening but also supports the community garden. The community garden provides fresh food for the community and also serves as an example of how to garden so community members can create their own gardens at home or teach others how to garden. The multifamily housing provides much needed affordable housing for the community. It has a combination of affordable housing, workforce housing, and market-rate housing. The buildings also serve as an edge to the site that is both protective to those inside the site and inviting to those outside the site. There are breaks between the buildings that allow passersby a glimpse of the community garden, which aims to invite them into the site.




The south-west orientation of the saw-tooth roof, allows for the use of PV panels to produce energy for the buildings on site. The orientation of the saw-tooth roof also allows for natural ventilation. Winds from the south-west can come in through the large openings on the ground floor and then exit through the vertical portions of the roof. There is also an opportunity for water collection from the roof via gutters along the span of the roof. This water can then be used throughout the site for irrigation. The structure of the building is comprised of timber members joined by steel, knife plate connections. Timber contains stored CO2 and using it as a building material keeps that stored CO2 out of the atmosphere.
The south-west orientation of the saw-tooth roof, allows for the use of PV panels to produce energy for the buildings on site. The orientation of the saw-tooth roof also allows for natural ventilation. Winds from the south-west can come in through the large openings on the ground floor and then exit through the vertical portions of the roof. There is also an opportunity for water collection from the roof via gutters along the span of the roof. This water can then be used throughout the site for irrigation.
Roof Assembly: PV panels, standing seam metal roof, EPDM membrane, cover board, rigid foam insulation, vapor barrier, 3 ply CLT panel
The structure of the building is comprised of timber members joined by steel, knife plate connections. Timber contains stored CO2 and using it as a building material keeps that stored CO2 out of the atmosphere.
Roof Assembly: PV panels, standing seam metal roof, EPDM membrane, cover board, rigid foam insulation, vapor barrier, 3 ply CLT panel
Wall Assembly: brick veneer, air gap, sheathing, rigid insulation, metal stud with batt insulation, drywall
Wall Assembly: brick veneer, air gap, sheathing, rigid insulation, metal stud with batt insulation, drywall
Structure: timber members with knife plate connections
Structure: timber members with knife plate connections

Karlene Dahlman & Sheldon Johnson
In the heart of Poe Mill, where history echoes alongside the resilience of its community, our focus was to create a transitional housing project that not only offers shelter but also cultivates a sense of belonging and sustainability. Our approach to doing so was through the historic usage of Poe MIll’s Textile Mill’s original practice. This was done through the use of analyzing their weaving methods and tools to symbolically weave Poe Mill’s rich community back together by a single thread of intentional design decisions.

The modular unit design is a testament to adaptability and community integration. The single unit, carefully crafted, seamlessly transforms into both shared and family units, providing flexibility to meet diverse resident needs. Drawing inspiration from the historic cloth pattern associated with Poe Mill’s site, a grid was meticulously woven for unit placement and pathways, establishing a structured yet interconnected layout.





The use of the duck cloth fabric pattern as a grid system in the site plan design of a project not only adds a historical narrative to the architectural design but also connects deeply with the site's past. This pattern serves a dual purpose by offering a practical advantage in systematically organizing spaces and structures, promoting efficiency and effective spatial organization. The residences stand opposite each other, featuring open and inviting porches, fostering a sense of community while prioritizing safety. By drawing inspiration from the historical context, the grid system not only serves as a practical tool but also honors the site's legacy, seamlessly integrating the project within its cultural and historical milieu.
The use of the duck cloth fabric pattern as a grid system in the design of the site plan adds a historical narrative to the architectural design, and connection to the site’s past. This pattern serves a dual purpose by offering a practical advantage in systematically organizing spaces and structures, and promoting efficiency and effective spatial organization. The residences stand opposite each other, featuring open and inviting porches fostering community and safety.












Taped And Painted ½” Gypsum Wall Board As
OSB Interior Panel EPS Insulation Core
OSB Exterior Panel

POE MILL, GREENVILLE, SC
Our commitment to sustainability goes beyond aesthetics, encompassing practical methods such as solar panels, daylighting with skylights, optimal window placements, natural ventilation through operable windows, and breezeways between units. In every aspect of our design, we strive to create a nurturing and sustainable haven that reflects the strength and vibrancy of the Poe Mill community, both historically and into the future.





Knitted materials gracefully traverse the spaces between units, illustrating both large and small connections that bind the Community together.
Sliding slats offer residents the freedom to transition effortlessly from privacy to openness, empowering them to shape their living environment according to their needs.
The roof, a canvas for sustainability, proudly hosts solar panels facing the southwest direction to harness the full potential of sunlight. With only two homes in the neighborhood currently utilizing solar panels, our design encourages widespread adoption of this eco-friendly practice.

Skylights dot the roof, infusing natural light into the living spaces below and contributing to energy conservation.



SHARED AMENITIES | CONCEPT + SITE PLAN POE MILL, GREENVILLE, SC





