



![]()




Charles Eames (1907–1978) and Ray Kaiser Eames (1913–1988) met while attending the Cranbrook Academy of Art in Bloomfield Hills, Michigan, and they married in 1941. From the beginning of their collaborative partnership, they focused on creating multifunctional modern designs. While at Cranbrook, Charles collaborated with Eero Saarinen on a group of wood furniture designs that won the Museum of Modern Art’s 1940 “Organic Design in Home Furnishings” competition.
Charles and Ray Eames constructed the Eames House as part of the Case Study House Program for Arts & Architecture magazine. Designed by Charles and Eero Saarinen during World War II, it was designated as Case Study #8. To address the material shortages of the time, they utilized reused materials.
Where is it located?
The Eames House is a landmark of mid-20th century modern architecture located at 203 North Chautauqua Boulevard in the Pacific Palisades neighborhood of Los Angeles. It was constructed in 1949, by husband-and-wife design pioneers Charles and Ray Eames, to serve as their home and studio.


Sources: https://www.eamesoffice.com/the-work/case-study-house-8/ https://www-bloomsburyvisualarts-com.proxy.the-bac.edu/encyclopedia-chapter?docid=b-9781350045743&tocid=b-978135 0045743-chapter3&st=Eames+House
https://en.wikipedia.org/wiki/Eames_House
203 Chautauqua Blvd, Pacific Palisades, CA 90272








Columns/Beams
• Steel H-Columns
• Horizontal Beams for extra strength

Floors
• Concrete Floor
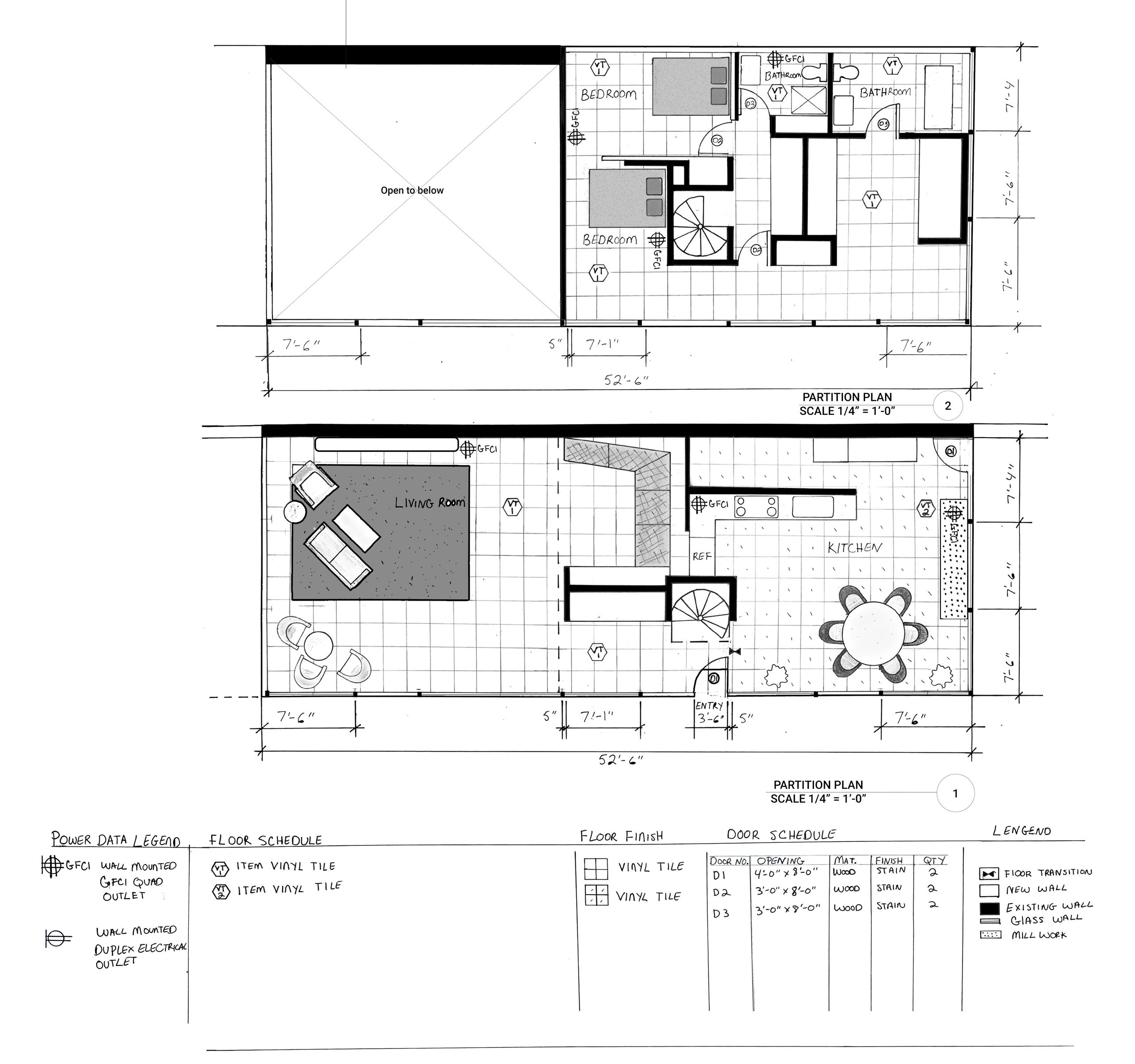
• In 1950, the floor was covered in white vinyl tiles
Walls
• Retaining Wall - has the retainer wall to prevent mud slides8 feet tall
• Interior - wall was made of floor-to-ceiling vertical wood paneling
• Exterior - Plywood panels with white stucco, some are colored with blue, and orange. Similarities to Piet Mondrians painting. De Stiji art movement


Roof
• Horizontal roof beams were placed between the columns
• Two rods columns to attach the H-columns and the roof
• Steel material for the roof
Doors/Windows
• Sliding glass doors and windows allow for a large amount of light, transparency of space, and a view of the outdoors
• Panels of windows













The Eames House, also known as Case Study House No. 8, in California was designed in a similar way in 1949. Home to Charles and Ray Eames, it consisted of two rectangular blocks – a residence and a studio. Just like Mondrian did in his paintings, Rietveld and the Eameses also stripped all unnecessary adornment off the facades of the houses in order to highlight certain elements using only vertical and horizontal lines and primary colors. They achieved a balance through asymmetry.
The rectilinear, window clad walls features areas of primary colors and white and black that gives the feel of a Mondrian painting. The windows, however, are broken up visually, not only by the solid, rectangular areas but by a large number of mullions framing the glass.
