

Visual Thinking Fall 2024
By: Clarissa Fletcher
Hi I’m Clarissa Fletcher.

Profession: Graphic Designer
Student: MIA, Interior Architecture
Clarissa Fletcher
I am Clarissa Fletcher, a talented graphic designer, content creator, and author from Houston, Texas. My passion for drawing has been with me since childhood. With a strong academic background in Art and Digital Media, I have developed a varied portfolio and have had the opportunity to lead design projects in the entertainment sector as well as for several non-profit organizations. My skills include visual design, social media management, content creation, and visual storytelling.
Currently, I am working towards my Master’s degree in Interior Architecture at the Boston Architectural College, where I am immersed in a wide range of architectural and interior design courses. I aim to complete my Master of Interior Architecture program by May 2027.
Orthographic Drawing




Object #1: Tape
Object #2: Rectangular pen holder
Object #3: Table plant


Clarissa Fletcher
Assignment:
Use a sheet of 18” x 24” white paper to to draft construction lines of a plan, side elevations and front elevations. The drawings were made at full scale: 1”=1”. 4H lead for construction lines, followed by thick and thin technical pens for the final lines.
Drafting for Presentation

Clarissa Fletcher
Precedent: Barcelona Pavilion
Location: Barcelona, Spain

Assignment:
-Choose a precedent to draw a scale
-Use appropriate line weights
-Display level of details
-Use heavy, dark poche
Drafting for Presentation 02

Assignment:
-Draft The Eames House at a scale
-Use appropriate line weights
-Display level of details
-Use heavy, dark poche
Precedent: The Eames House
Location: Pacific Palisades, California

Clarissa Fletcher
Light, Shade and Shadow:
Assignment:
Show shadow casts from each drawn shape.



2D Operative Verb
Assignment:
On 8” x 8” canvases create three iterations of Bend, Lift and Twist. Use 50% black, 50% gray and no gradients to illustrate each word.

Clarissa Fletcher









Twist
3D Operative Words
Assignment:
On 8” x 8” trace paper create three iterations of Bend, Lift and Shift in 3D. Use a cube to illustrate the 3D words.

Clarissa Fletcher









Formal Abstraction
Assignment:
Choose an insect to observe and show abstractions in illustrator

Clarissa Fletcher
Plate 1-3









Plate 4-6
Plate 7-9
Formal Abstraction 02
Assignment:
Choose an inset to observe and show abstractions in illustrator

Clarissa Fletcher
Plate 1-3









Plate 4-6
Plate 7-9
Two Point Perspective

Clarissa Fletcher
Assignment:
Draw lines from the right elevation on the perspective to the left vanishing point.

Drafting for Presentation Drawing


Precedent: Texas Hill Road Residence
Location: Craryville, New York

Clarissa Fletcher
Assignment:
Draft a perspective drawing of The Texas Hill Road Residence


Perspective Collage
Precedent: Texas Hill Road Residence
Location: Craryville, New York

Clarissa Fletcher
Assignment:
Show a theme collage of a perspective drawing of The Texas Hill Road Residence
Theme: Small Town and Osais
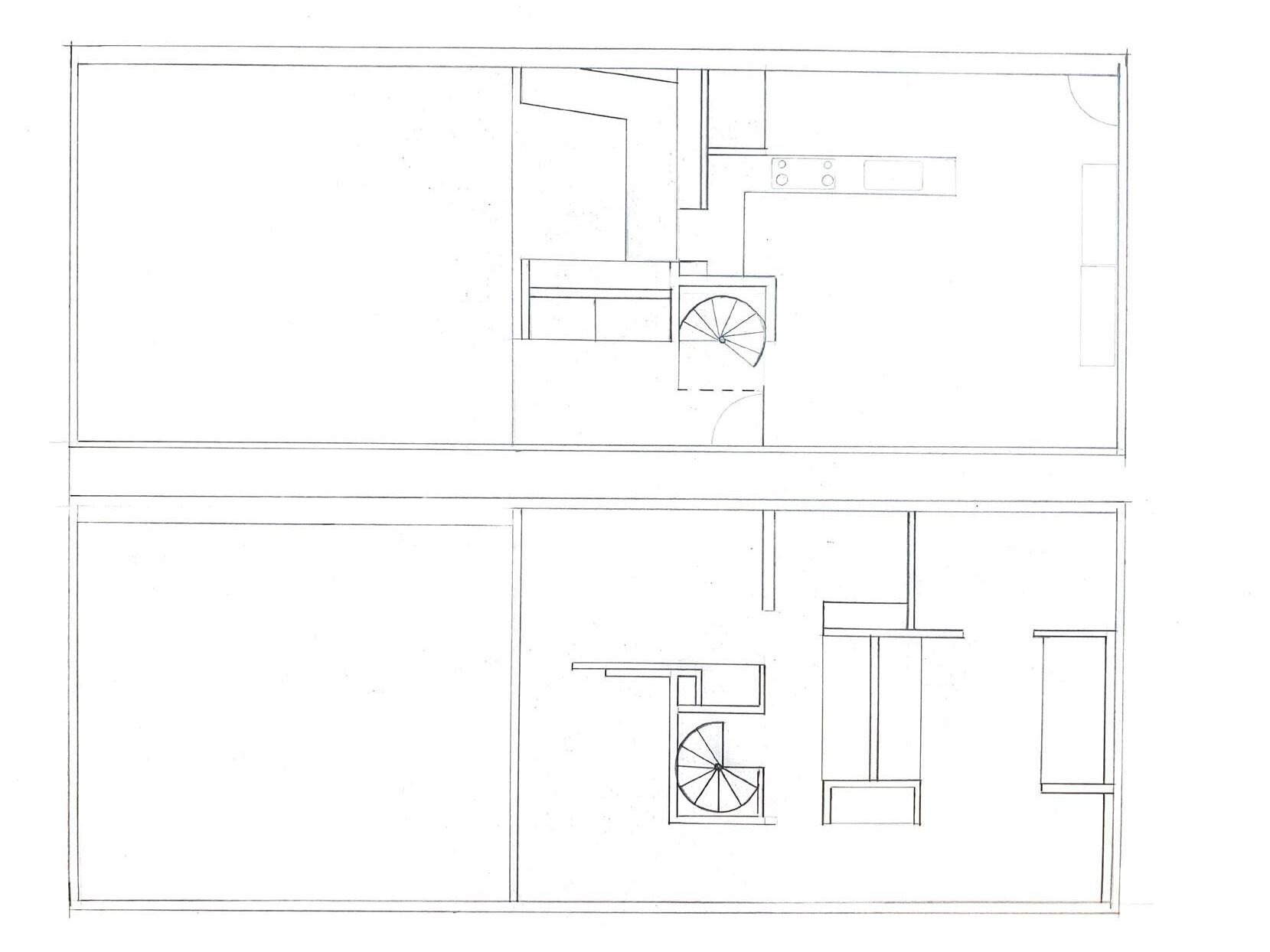
Axonometric Projection
Assignment:
Project stairs from different vantage points

Clarissa Fletcher
Practice Hand Lettering
Assignment:
Practice drafting words in a architectural hand lettering.

Reflection
I thoroughly enjoyed acquiring a range of skills from the Visual Thinking Course led by Spirit. By the end of the course, I felt my drafting abilities with various tools had significantly improved. Thank you for an excellent learning experience!
Clarissa Fletcher