Panorama Niša

Page 1

Neodoljiv pogled na grad koji ćete obožavati.

Jovana Apela bb - Niš, Palilula

Dugogodišnje porodično iskustvo

Tokom dugogodišnjeg iskustva u izvođenju radova, investitor je izgradio više stambenih objekata u Beogradu i Nišu. Poslednji objekat nalazi se u ulici Hajduk Stanka pod brojem 8. Ovoga puta, kupcima obezbeđuje pogled na grad iz novog, stambenog kompleksa „Panorama Niša”. Na opštini Palilula, u mirnoj ulici poznatoj po Jovanu Apelu, gradi se stambeni kompleks koji će budućim stanarima, pored pogleda, pružiti i tišinu i udobnost.

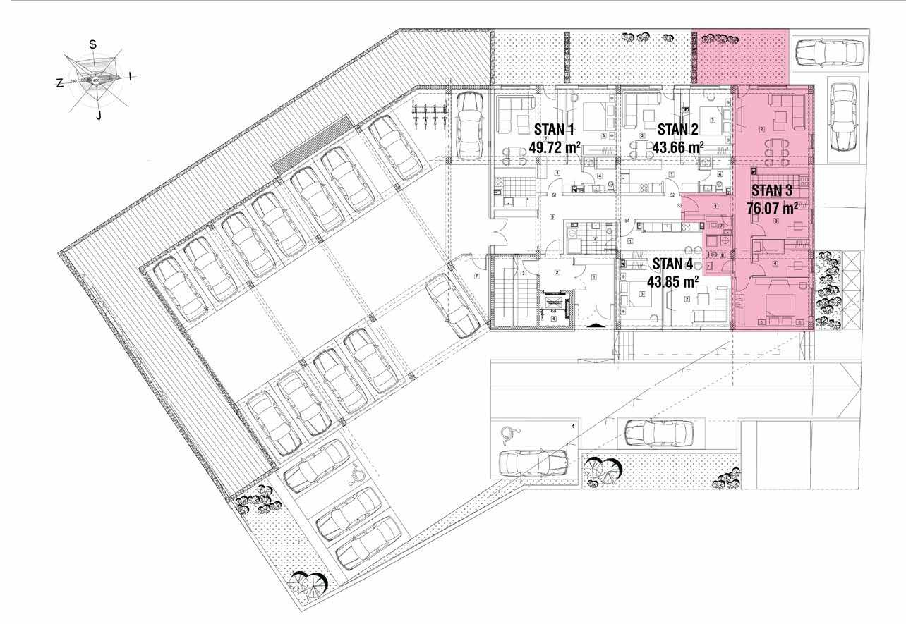
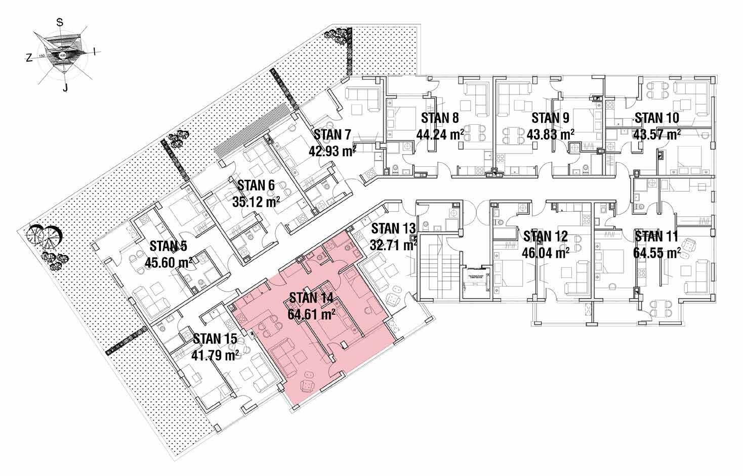
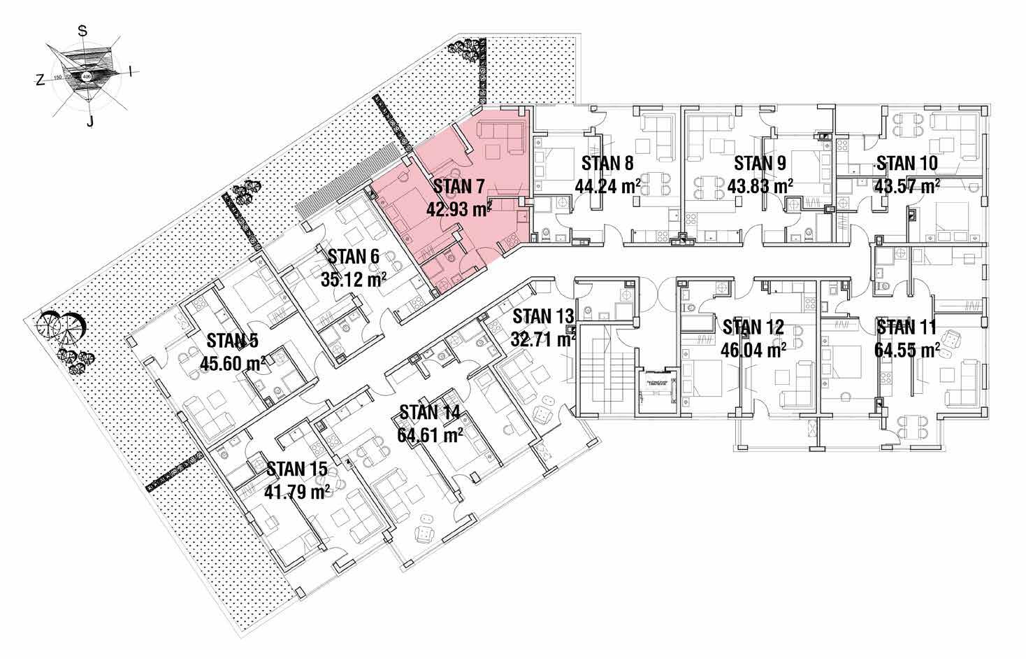
Stambeni kompleks poseduje 48 stanova kvadrature od 33 m² do 76 m². Kompleks poseduje i rampu za osobe sa posebnim potrebama, interfon, alarm i lift. Svaki stan projektovan je tako da su sve prostorije dobro organizovane i osvetljene.

O
INVESTITORU
PO+P+PK etažno grejanje 2.300 m stambene površine 2 48 stanova P + 4 lift etažno grejanje rampa za invalide

LOKACIJA

Miran kraj bogat sadržajem

Stambeni kompleks se gradi u mirnom delu Niša, sa pogledom na ceo grad. Pružiće porodicama mirno okruženje, a pojedincima da uživaju u udobnosti svoga doma.

U blizini objekta nalaze se:

Prodavnica, 200 m

Autobuska stanica, 250 m

Vrtić, 500 m

Ambulanta, 800 m

Pijaca, 1km

Osnovna škola, 1.6 km (na 100 m je u pripremi za izgradnju škole)

TEHNIČKA OPREMLJENOST

Prepoznatljiv kvalitet novog doma

Stambeni kompleks „Panorama Niša” se gradi od najkvalitetnijih materijala, poštujući svetske standarde gradnje. Za fasadu se koristi kamena vuna i stiropor. Fasada će biti bele boje sa dekorativnom ciglom. Svaki stan će imati dodatnu, pripadajuću ostavu.

Opremljenost stanova:

• Aluminijumska stolarija

• Kvalitetan hrastov ili bukov parket

• Etažno grejanje na struju sa kotlovima

• Aluminijumski radijatori

• Sigurnosna ulazna vrata

• Unutrašnja vrata od medijapana

• Keramika u kuhinji i kupatilu prve klase evropskih proizvođača

JEDNOSOBNI DVOSOBNI

PONUDA STANOVA
2 2 32 m², svi spratovi 41 m², 42 m², 43 m², svi spratovi

DVOIPOSOBNI

ČETVOROIPOSOBNI

44 m², 45 m², 49 m², 64 m², 72 m², prizemlje, svi spratovi

76 m², prizemlje

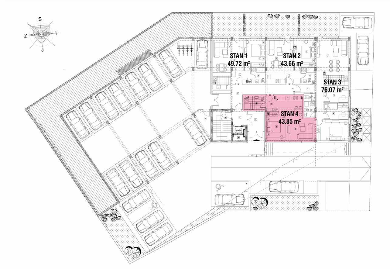
GSPublisherVersion 0.0.100.100 * S3 1 2 3 4 6 7 5 S J Z 406 50 100 150 2 465 195 499 302 10 240 10 244 10 470 169 10 102 10 358 319 97 10 358 95 370 236 10 112 10 122 PRIZEMLJE 76.07 m²
ČETVOROIPOSOBAN GSPublisherVersion
NETO POVRŠINA 78.42 - 3% = 76.07 1 2 OZ PROSTORIJA P/m2 HODNIK 9 94 31 30 8 56 5 8 66 4 SPAVAĆA SOBA 14.16 3 DNEVNA SOBA SA TRPEZARIJOM I KUHINJOM SPAVAĆA SOBA SPAVAĆA SOBA STAN 3 6 KUPATILO 3 91 7 TOALET 1 89
S 4 4 * 2 3 1 S J Z I 406 50 100 150 3 2 1 310 10 150 10 376 270 10 425 320 340 420 10 230 200 PRIZEMLJE 43.85 m²
DVOIPOSOBAN GSPublisherVersion 0.0.100.100
NETO POVRŠINA 45.21 - 3% = 43.85 1 2. OZ PROSTORIJA P/m2 HODNIK 3 45 24.72 5.94 11.10 4 3 DNEVNA SOBA SA TRPEZARIJOM I KUHINJOM SPAVAĆA SOBA KUPATILO STAN 4
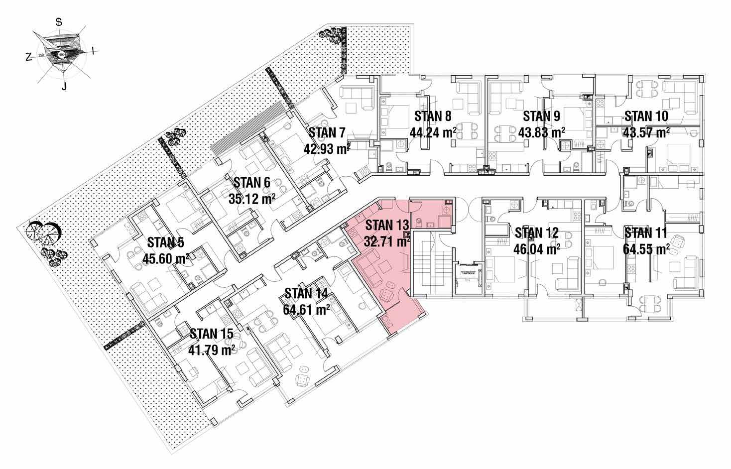
GSPublisherVersion 0.0.100.100 S 13 1 2 3 4 * S J Z I 406 50 100 150 3 2 1 284 195 10 280 200 255 431 156 669 SVI SPRATOVI 32.71 m²
JEDNOSOBAN
NETO POVRŠINA 33.72 - 3% = 32.71 1 2 OZ PROSTORIJA P/m2 HODNIK 3 36 21 52 3.47 5.37 4 3 DNEVNA SOBA SA TRPEZARIJOM I KUHINJOM SPAVAĆA SOBA KUPATILO STANOVI: 13, 24, 35 i 46
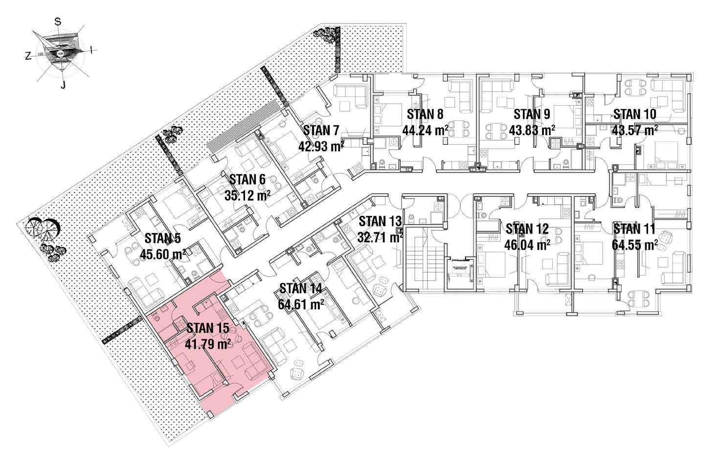
GSPublisherVersion 0.0.100.100 S15 * 1 2 3 4 5 S J Z I 406 50 100 150 3 2 1 210 10 399 210 10 90 180 322 20 232 453 252 10 120 222 10 453 32 138 SVI SPRATOVI 41.79 m²
DVOSOBAN GSPublisherVersion 0.0.100.100 NETO POVRŠINA 43.09 - 3% = 41.79 1. 2 OZ PROSTORIJA P/m2 HODNIK 5 82 20 37 4 57 5 9 48 4 LOĐA 2 85 3 DNEVNA
SA TRPEZARIJOM I KUHINJOM SPAVAĆA
KUPATILO STANOVI: 15, 26, 37 i 48
SOBA
SOBA
GSPublisherVersion 0.0.100.100 S7 5 * 1 2 3 4 6 S J Z I 406 50 100 150 3 2 1 270 32 208 32 145 273 221 10 149 197 175 10 470 430 512 32 131 SVI SPRATOVI 42.93 m²
DVOSOBAN GSPublisherVersion 0.0.100.100 NETO
44.26 - 3% = 42.93 1 2 OZ
P/m2 HODNIK 3 60 17 68 3.82 5 12 24 4 KUPATILO 2 72 3 DNEVNA
SA TRPEZARIJOM SPAVAĆA SOBA STANOVI: 7, 18, 29 i 40 6 LOĐA KUHINJA 4 20
POVRŠINA
PROSTORIJA
SOBA
GSPublisherVersion 0.0.100.100 S 9 1 * 2 3 4 5 S J Z I 406 50 100 150 3 2 1 423 20 286 381 12 332 271 10 212 10 223 159 10 338 42 118 210 450 43.83 m² SVI SPRATOVI
DVOSOBAN GSPublisherVersion 0.0.100.100 NETO
45.19 - 3% = 43.83 1 2 OZ
P/m2
4.08 22 87 3 94 5 10 92 4 LOĐA 3 38 3 DNEVNA
SA TRPEZARIJOM I KUHINJOM SPAVAĆA
KUPATILO
2, 9, 20, 31
42
POVRŠINA
PROSTORIJA
HODNIK
SOBA
SOBA
STANOVI:
i
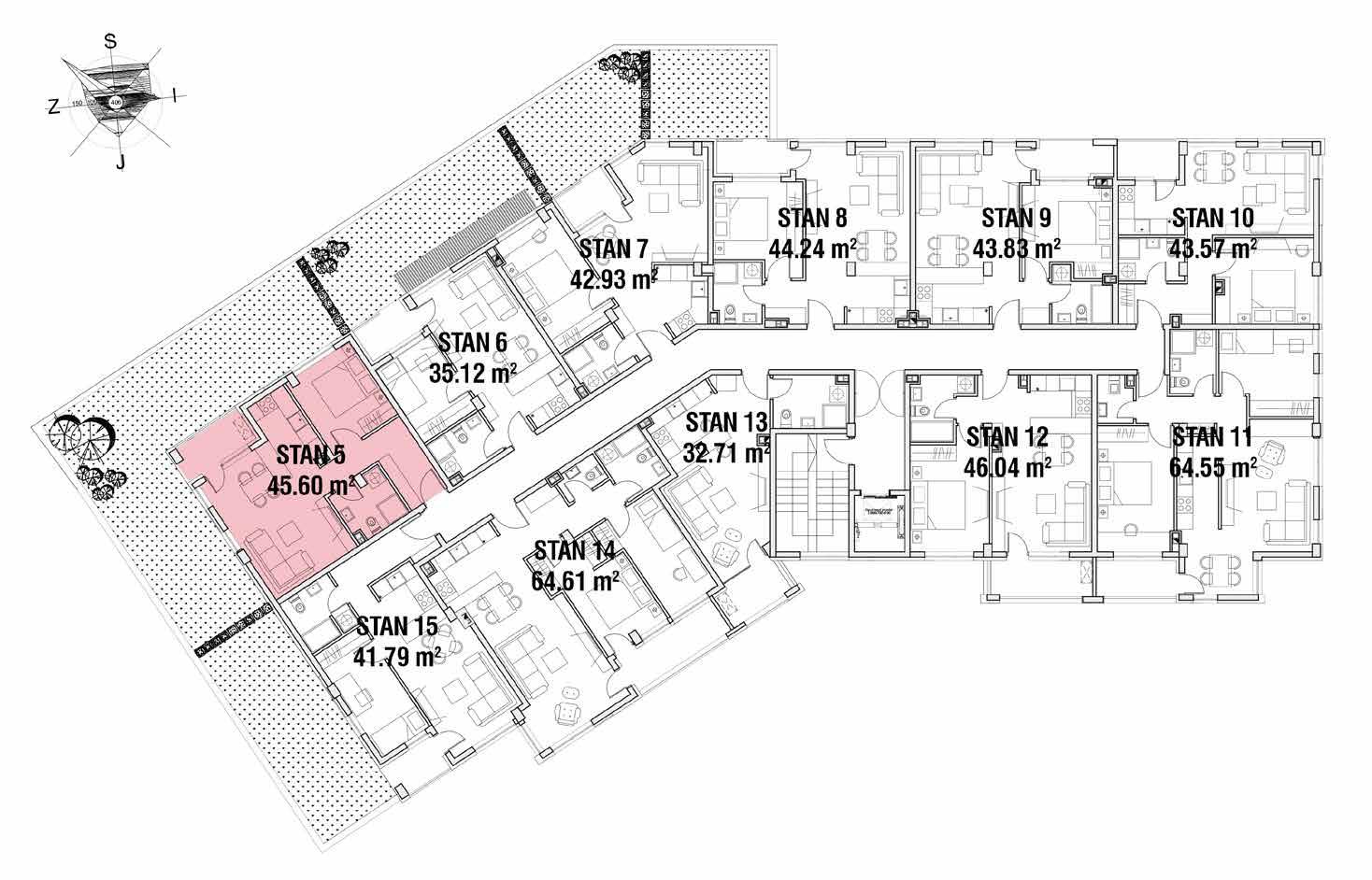
GSPublisherVersion 0.0.100.100 S5 1 2 3 4 5 * S J Z I 406 50 100 150 3 2 1 320 10 325 282 10 220 246 281 361 10 220 10 157 294 41 95 12 213 131 32 512 SVI SPRATOVI 45.60 m²
DVOIPOSOBAN GSPublisherVersion 0.0.100.100 NETO POVRŠINA 47 01 - 3% = 45 60 1 2 OZ PROSTORIJA P/m2 HODNIK 6 86 22 94 4.41 5 9 08 4. LOĐA 3 72 3 DNEVNA SOBA SA TRPEZARIJOM I KUHINJOM SPAVAĆA SOBA KUPATILO STANOVI: 5, 16, 27 i 38
GSPublisherVersion 0.0.100.100 S 21 1 2 3 5 4 * S J Z I 406 50 100 150 3 2 1 720 347 10 363 20 147 245 408 322 10 328 150 10 162 10 328 SVI SPRATOVI 49.55 m²
DVOIPOSOBAN NETO POVRŠINA 51 08 - 3% = 49.55 1 2 OZ PROSTORIJA P/m2 HODNIK 6 73 23 51 3 87 5 11 47 4 LOĐA 5 50 3 DNEVNA SOBA SA TRPEZARIJOM I KUHINJOM SPAVAĆA SOBA KUPATILO STANOVI: 21, 32 i 43
GSPublisherVersion 0.0.100.100 S14 * 1 2 3 4 5 6 7 S J Z I 406 50 100 150 3 2 1 269 10 302 10 172 10 186 210 15 258 10 330 422 20 382 215 610 470 10 185 225 10 430 32 135 107 SVI SPRATOVI 64.61 m²
DVOIPOSOBAN GSPublisherVersion 0.0.100.100 NETO POVRŠINA 66.61 - 3% = 64 61 1 2 OZ PROSTORIJA P/m2 HODNIK 7 10 26 68 9 80 5 11 53 4 KUPATILO 4 19 3 DNEVNA SOBA SA TRPEZARIJOM I KUHINJOM SPAVAĆA SOBA SPAVAĆA SOBA STANOVI: 14, 25, 36 i 47 6 TOALET 1 77 7 TE ASA 5 54
GSPublisherVersion 0.0.100.100 S 22 1 5 2 3 4 7 6 * 8 S J Z I 406 50 100 150 3 2 1 294 32 252 282 10 505 32 135 133 10 408 170 10 509 301 31 258 495 10 325 590 10 40 100 10 240 135 32 470 10 180 SVI SPRATOVI 72.47 m²
DVOIPOSOBAN GSPublisherVersion 0.0.100.100 NETO POVRŠINA 74.71 - 3% = 72.47 1 2 OZ PROSTORIJA P/m2 HODNIK 5 40 27 31 13 16 5 14 51 4 KUPATILO 4 08 3 DNEVNA SOBA SA TRPEZARIJOM I KUHINJOM SPAVAĆA SOBA SPAVAĆA SOBA STANOVI: 22, 33 i 44 6 TOALET 2 24 7 TE ASA 3.97 8 TE ASA 4 04

Zašto Kreditni savetnik?

Najpovoljnije ponude svih banaka

Odobrenje kredita već za 2 nedelje

Specijalni uslovi kreditiranja

Pomoć u procesu dokumentacije

Brzo • Sigurno • Besplatno

Kod nas dobijate najpovoljniji stambeni i keš kredit!

Kako do najpovoljnijeg kredita?

Korak 1 Pozovite nas ili aplicirajte online Korak 2 Dobijate personalizavane ponude svih banaka Korak 3 Odobravanje kredita i plasiranje sredstava

Naš tim čine ekonomski stručnjaci sa višegodišnjim iskustvom u bankarskom sektoru. Pronalazimo najpovoljniji stambeni i keš kredit, pomažemo u celokupnom procesu kreditiranja i dajemo odgovore na sve nejasnoće.

Brojke govore više od reči:

godina iskustva 10k+ zadovoljnih klijenata Besplatna i sigurna usluga

Bez odlaska u banku i čekanja

miliona € obrađenih stambenih kredita

miliona RSD obrađenih gotovinskih kredita

Ponude svih banaka su na poziv od vas: 011 44 25 000 svakog radnog dana od 9 do 17h. Za više informacija posetite www.kreditnisavetnik.rs .

20+
100+
25+
011 44 26 000 novogradnja@cityexpert.rs www.cityexpert.rs Ekskluzivno preko City Experta kupite stan direktno od investitora, bez plaćanja provizije!

Turn static files into dynamic content formats.

Create a flipbook
Issuu converts static files into: digital portfolios, online yearbooks, online catalogs, digital photo albums and more. Sign up and create your flipbook.
Panorama Niša by CityExpertGlobal - Issuu