

Višnjička 74, Belgrade
![]()


Višnjička 74, Belgrade
In the heart of Belgrade’s exciting transformation, nestled between the future linear park and the scenic Ada Huja promenade,Omni Plaza is coming to life – a vibrant new residential-business complex where the comfort of home, city buzz, and riverside charm come together in perfect harmony.
114 apartments | 19 business suites | 3 commercial units

Private garage – including spaces for people with disabilities
Bicycle room and additional outdoor parking
Access control via SMART intercom system
Retail units between the buildings – for everyday needs
Separate entrances for residential and business sections

Apartments at Omni Plaza o er stunning views of the Danube, immediate access to the BIG Fashion shopping center, and Ada Huja’s scenic walkways.
All this, only ten minutes from the heart of Belgrade.
Omni Plaza brings together the vibrant rhythm of the city and the serenity of nature — without compromise.
Omni Plaza’s prime location ensures excellent connectivity and an exceptional quality of life. Just steps away is BIG Fashion, one of Belgrade’s most popular shopping centers, while the Danube promenade invites you to relax, walk, or cycle in a scenic setting.
The upcoming linear park, set to connect this neighborhood with Belgrade Waterfront and the city center, will further enhance everyday living. Families will value the nearby kindergartens, schools, and essential services, while the downtown core and major universities are only a ten-minute drive away.

As a freestanding building, Omni Plaza o ers unobstructed views and abundant natural light, fostering a strong connection with the surrounding environment. Behind the complex, thoughtfully designed green areas with a variety of plant species improve air quality and create a pleasant outdoor space for residents.



Premium security and interior doors (2.2m height)
Electric ALU shutters with SMART control system
Multi-split inverter air conditioning with WiFi control
Central heating with individual consumption monitoring
Premium bathroom fittings: Villeroy & Boch/Laufen sanitaryware, Hansgrohe faucets, Geberit in-wall cisterns, Ariston water heater with WiFi



Multi-layered oak parquet (Tarkett)
Sophisticated common areas with a blend of wood, marble, mirrors, and ambient lighting




ALU windows with triple glazing








Large-format granite tiles (60x120 cm)



YOUR HOME. YOUR INSPIRATION.







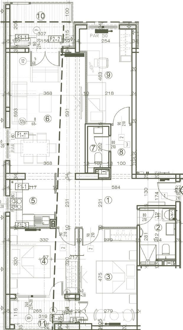
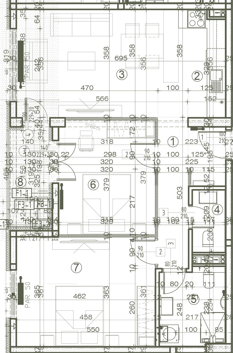
Lamella A | Floor II-VII | Apt. 1, 10, 19,28, 37,



Lamella A | Floor II-VII | Apt. 2, 11, 20, 29, 38, 47



A | Floor II-VII | Apt. 3, 12, 21, 30, 39, 48


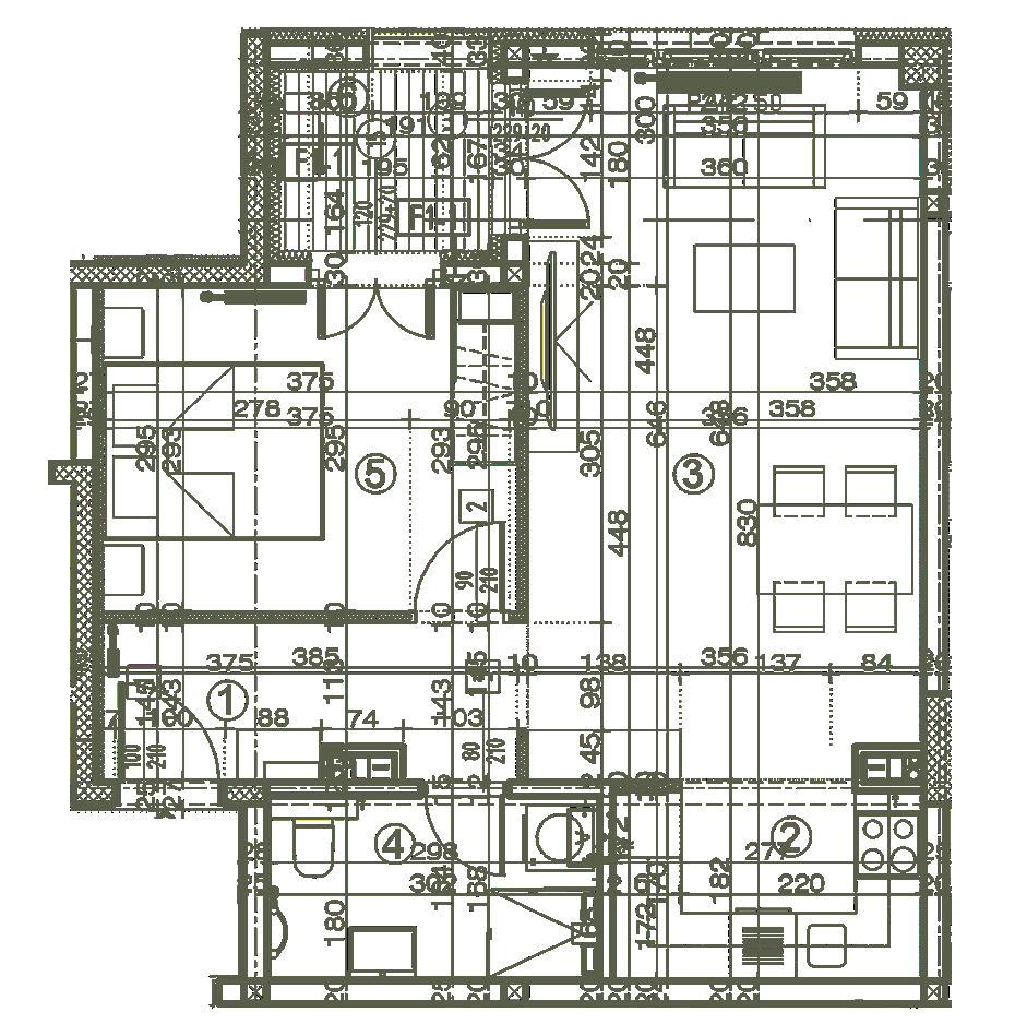
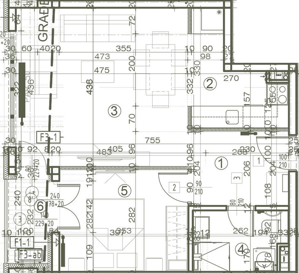
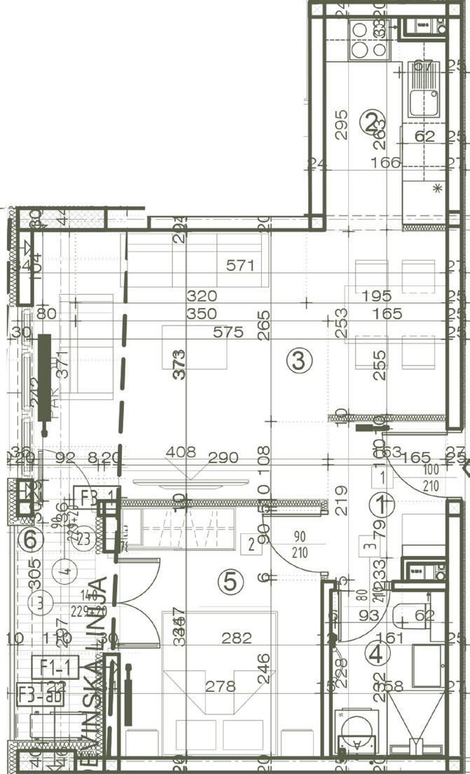
area of the apartment 93 m2

A | Floor II-VII | Apt. 4,



Lamella A | Floor II-VII | Apt. 5, 14, 23, 32, 41, 50



ONE-BEDROOM | 43.69 m2
Lamella A | Floor II-VII | Apt. 6, 15, 24, 33, 42, 51



A | Floor II-VII | Apt. 7, 16, 25,34, 43 52



Lamella A | Floor II-VII | Apt. 8, 17, 26, 35, 44, 53



A | Floor II-VII | Apt. 9, 18, 27, 36, 45, 54



TWO-BEDROOM | 85.52 m2
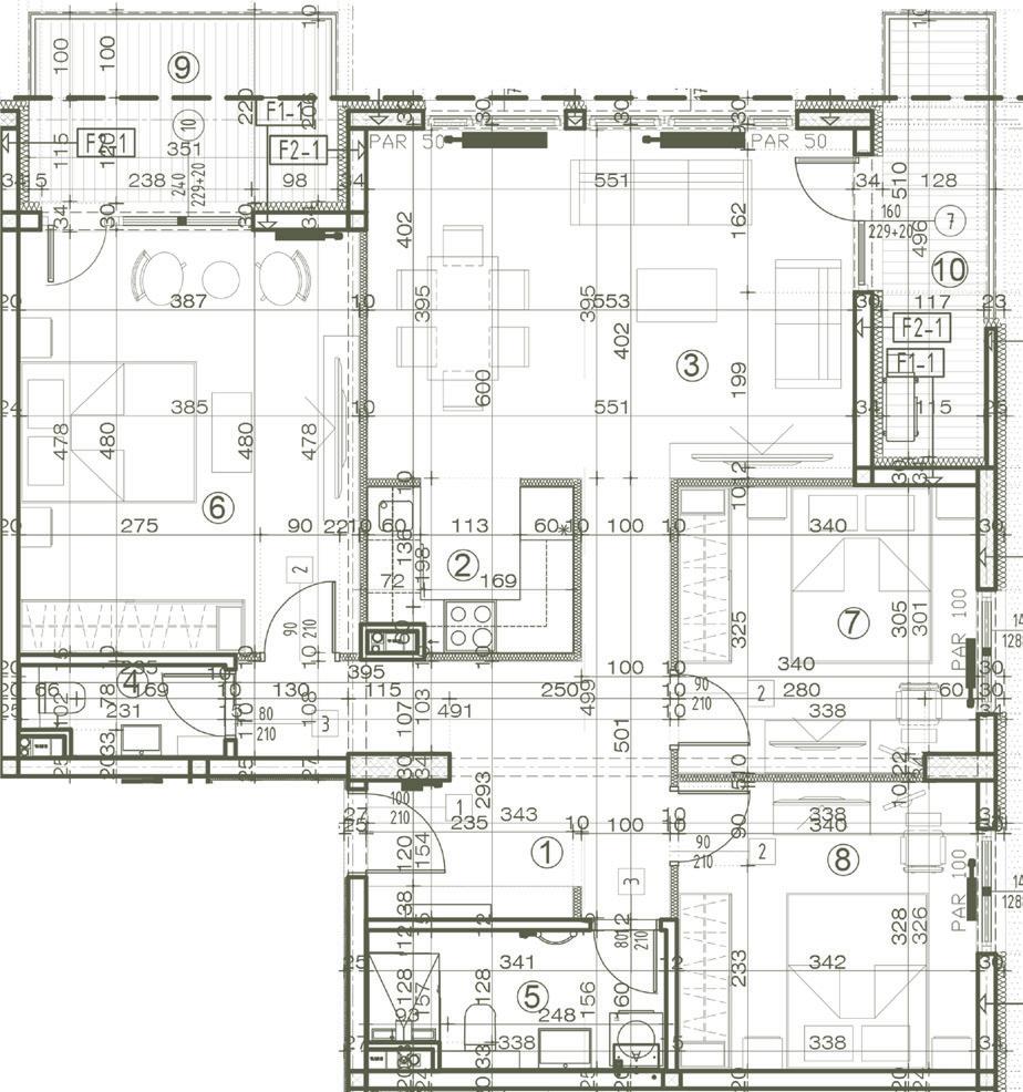
Lamella B | Floor II-VII | Apt. 1, 11, 21, 31, 41, 51


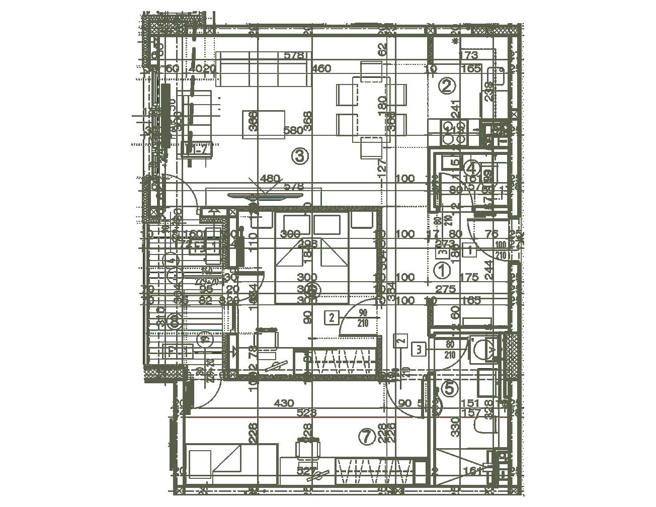
Total area of the apartment 85.52 m2

ONE-BEDROOM | 45.37 m2
Lamella B | Floor II-VII | Apt. 2, 12, 22, 32, 42, 52



ONE-BEDROOM | 45.91 m2
Lamella B | Floor II-VII | Apt. 3, 13, 23, 33, 43, 53



ONE-BEDROOM | 52.42 m2
Lamella B | Floor II-VII | Apt. 4, 14, 24, 34, 44, 54



ONE-BEDROOM | 44.37 m2
B | Floor II-VII | Apt. 5, 15, 25, 35, 45, 55



Lamella B | Floor II-VII | Apt. 6, 16, 26, 36, 46, 56



Lamella B | Floor II-VII | Apt. 7, 17, 27, 37, 47, 57






| 100.42 m2
Lamella B | Floor II-VII | Apt. 9, 19, 29, 39, 49, 59


area of the apartment

B | Floor II-VII | Apt. 10, 20, 30, 40, 50,


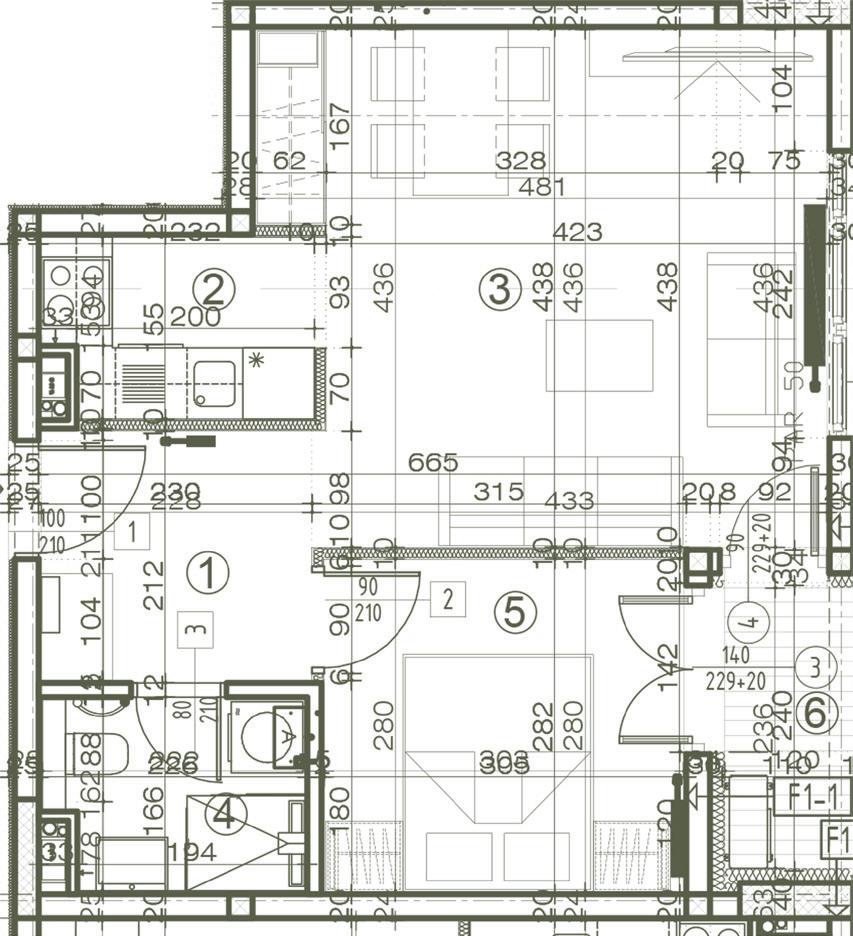
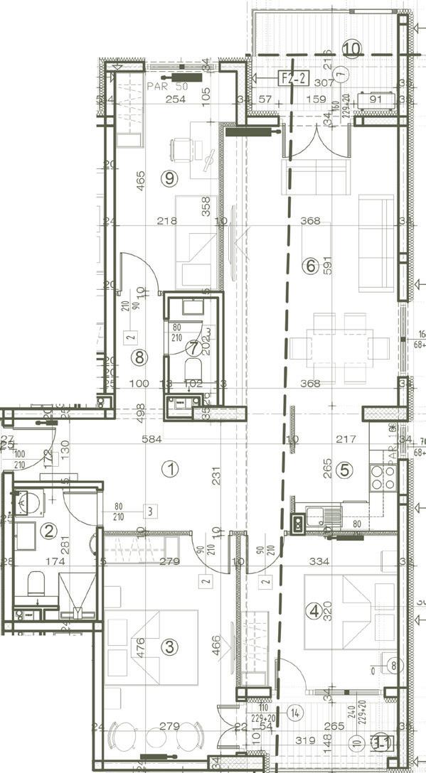
Omni Plaza o ers thoughtfully designed apartments ranging from 39 m2 to 100 m2, each crafted for optimal comfort and functionality.
Established in 1993 in Valjevo and now headquartered in Belgrade, Ingrap-Omni is a respected leader in civil, structural, and hydro engineering. The company o ers comprehensive services — from building roads, railways, tunnels, bridges, and overpasses to producing concrete, aggregates, and asphalt. With a strong commitment to quality, innovation, and sustainability, Ingrap-Omni is a trusted partner for complex infrastructure projects. Backed by decades of experience and technical expertise, the company is now proudly stepping into the residential construction sector.
Your home, our mission
Buy an apartment with no commission!
011 442 6000 info@cityexpert.rs
Kneza Mihaila 1-3
11002 Belgrade
Buying with a mortgage?
Get a free consultation!
011 44 25 000
Our mortgage advisors are a team of financial professionals with years of experience in the banking sector. They will find the best housing, car, or cash loans and help clarify any doubts.
25+ years of experience
10k+ satisfied clients
20+ million in processed housing loans
100+ million RSD in processed cash loans