Maarten Mechelen, Fase 3, Plannenbundel

Page 1

PLANNENBUNDEL

| JULES | MIMY | ODILE | TRES
ANNA
Tres Willem Rosierstraat Willem Herreysstraat Leopoldstraat Vaartdijk Odile Mimy
Appartementen Woningen N
Jules Anna

3 woningen

6 appt.

5 woningen

Mimy 6 woningen Tres 6 appt. Odile Anna Jules

WONINGEN

jules WONINGEN

# slaapkamers 3

Opp. niv. +0 63m2

Opp. niv. +1 55m2

Opp. niv. +2 52m2

Oppervlakte : M3 (Jules) 0.01 -niv.+0

Terras 1 27m2

Terras 2 3m2

M3 (Jules) 0.01 -niv.+1 & 2

Oppervlakte

woning niv. +063 m² woning niv. +155 m² woning niv. +252 m² terras 1 27 m² terras 2 3 m²

plan niv.+1

plan niv.+2

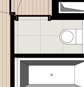
10 10 488 INKOMHAL LEEFRUIMTE BERGING 1 388 TERRAS 1 FIETSENSTALLING WC 1 201 198 927 473 502 330 234 145 90 TELLERS opstap MAARTEN -Mechelen Er kunnen geen rechten ontleed worden aan de tekening. Alle maten op de tekening aangegeven kunnen afwijken van de uiteindelijke uitvoeringsplannen, alsook (bruto-oppervlaktes die indicatief zijn). De meubels en keukeninrichting louter ter informatie, onder voorbehoud van de uitvoeringsplannen en detailplan keuken. De terrasafwerking ligt lager dan de binnenvloerafwerking. De hoogte kan afwijken in functie van de gekozen vloerafwerking.
woning
woning
woning
terras
m² terras
m² grondplan N WONING voorgevel achtergevel plan niv.+0 VIDE SLAAPKAMER 1 BADKAMER 1 TERRAS 2 NACHTHAL 1 TECHNISCHE BERGING BUREAU WC 2 277 201 217 488 247 204 183 483 120 257 307 90 DAK DAK SLAAPKAMER 2 BADKAMER 2 NACHTHAL 2 SLAAPKAMER 3 GANG 278 200 278 200 394 483 287 201 389 MAARTEN -Mechelen
niv. +063 m²
niv. +155 m²
niv. +252 m²
1 27
2 3
Er kunnen geen rechten ontleed worden aan de tekening. Alle maten op de tekening aangegeven kunnen afwijken van de uiteindelijke uitvoeringsplannen, alsook (bruto-oppervlaktes die indicatief zijn).
WONING
N grondplan voorgevel achtergevel
JULES 0.01

voorgevel linker

achtergevel

11 11 315 683 998 1034 1034 1033 1033 315 683 998 M3 (Jules) 0.01 -gevels
WONING
zijgevel

M3 (Jules) 0.02 -niv.+0

Oppervlakte :

niv. +063 m²

niv. +155 m²

niv. +252 m²

1 26 m²

2 3 m²

M3 (Jules) 0.02 -niv.+1 & 2 woning niv. +063 m² woning niv. +155 m² woning niv. +252 m² terras 1 26 m² terras 2 3 m²

Oppervlakte

12 12 488 INKOMHAL TERRAS 1 LEEFRUIMTE FIETSENSTALLING WC 1 388 201 255 927 468 502 330 90 145 TELLERS BERGING 1 opstap MAARTEN -Mechelen Er kunnen geen rechten ontleed worden aan de tekening. Alle maten op de tekening aangegeven kunnen afwijken van de uiteindelijke uitvoeringsplannen, alsook (bruto-oppervlaktes die indicatief zijn). De meubels en keukeninrichting louter ter informatie, onder voorbehoud van de uitvoeringsplannen en detailplan keuken. De terrasafwerking ligt lager dan de binnenvloerafwerking. De hoogte kan afwijken in functie van de gekozen vloerafwerking.
woning
woning
woning
terras
terras
N grondplan voorgevel achtergevel WONING plan niv.+0 VIDE BUREAU NACHTHAL 1 WC 2 SLAAPKAMER 1 TECHNISCHE BERGING BADKAMER 1 TERRAS 2 307 90 483 183 204 247 201 277 217 488 120 261 DAK DAK GANG SLAAPKAMER 3 NACHTHAL 2 SLAAPKAMER 2 BADKAMER 2 200 278 200 278 287 201 389 394 483 MAARTEN -Mechelen
Er kunnen geen rechten ontleed worden aan de tekening. Alle maten op de tekening aangegeven kunnen afwijken van de uiteindelijke uitvoeringsplannen, alsook (bruto-oppervlaktes die indicatief zijn).
N grondplan voorgevel achtergevel plan
WONING
Opp.
Opp.
Opp.
26m2 Terras
3m2 JULES 0.02
niv.+2 plan niv.+1
# slaapkamers 3
niv. +0 63m2
niv. +1 55m2
niv. +2 52m2 Terras 1
2
13 13 1034 1034 315 683 998 1033 1033 315 683 998 M3 (Jules) 0.02 -gevels
linker zijgevel WONING
achtergevel voorgevel

M3 (Jules) 0.03 -niv.+0

Oppervlakte :

woning niv. +063 m² woning niv. +155 m² woning niv. +252 m² terras 1 27 m² terras 2 3 m²

M3 (Jules) 0.03 -niv.+1 & 2 woning niv. +063 m² woning niv. +155 m² woning niv. +252 m² terras 1 27 m² terras 2 3 m²

Oppervlakte

14 14 TELLERS 488 TERRAS 1 LEEFRUIMTE INKOMHAL FIETSENSTALLING WC 1 388 253 201 213 927 468 502 330 145 90 BERGING 1 opstap MAARTEN -Mechelen Er kunnen geen rechten ontleed worden aan de tekening. Alle maten op de tekening aangegeven kunnen afwijken van de uiteindelijke uitvoeringsplannen, alsook (bruto-oppervlaktes die indicatief zijn). De meubels en keukeninrichting louter ter informatie, onder voorbehoud van de uitvoeringsplannen en detailplan keuken. De terrasafwerking ligt lager dan de binnenvloerafwerking. De hoogte kan afwijken in functie van de gekozen vloerafwerking.
grondplan N voorgevel achtergevel WONING plan
VIDE BUREAU SLAAPKAMER 1 TECHNISCHE BERGING TERRAS 2 BADKAMER 1 WC 2 NACHTHAL 1 488 217 183 204 247 483 120 307 90 277 201 DAK DAK SLAAPKAMER 3 GANG NACHTHAL 2 SLAAPKAMER 2 BADKAMER 2 278 200 278 200 483 394 287 201 389
niv.+0
plan niv.+2 plan niv.+1 WONING # slaapkamers 3 Opp. niv. +0 63m2 Opp. niv. +1 55m2 Opp. niv. +2 52m2 Terras 1 27m2 Terras 2 3m2 JULES 0.03
15 15 1034 1034 315 683 998 1033 1033 315 683 998 M3 (Jules) 0.03 -gevels
linker zijgevel WONING
achtergevel voorgevel

M3 (Jules) 0.04 -niv.+0

Oppervlakte :

niv. +063 m²

niv. +155 m²

niv. +252 m²

1 26 m²

2 3 m²

M3 (Jules) 0.04 -niv.+1 & 2

Oppervlakte

niv. +063 m² woning niv. +155 m² woning niv. +252 m² terras 1 26 m² terras 2 3 m²

16 16 TELLERS 488 TERRAS 1 LEEFRUIMTE FIETSENSTALLING INKOMHAL WC 1 488 201 255 198 927 468 502 330 90 145 BERGING 1 opstap MAARTEN -Mechelen Er kunnen geen rechten ontleed worden aan de tekening. Alle maten op de tekening aangegeven kunnen afwijken van de uiteindelijke uitvoeringsplannen, alsook (bruto-oppervlaktes die indicatief zijn). De meubels en keukeninrichting louter ter informatie, onder voorbehoud van de uitvoeringsplannen en detailplan keuken. De terrasafwerking ligt lager dan de binnenvloerafwerking. De hoogte kan afwijken in functie van de gekozen vloerafwerking.
woning
woning
woning
terras
terras
N grondplan voorgevel achtergevel WONING plan niv.+0 VIDE BUREAU TERRAS 2 BADKAMER 1 WC 2 SLAAPKAMER 1 NACHTHAL 1 TECHNISCHE BERGING 488 307 90 201 483 183 204 247 277 120 217 261 DAK DAK BADKAMER 2 SLAAPKAMER 2 NACHTHAL 2 GANG SLAAPKAMER 3 200 267 200 267 389 201 287 483 394 MAARTEN -Mechelen
Er kunnen geen rechten ontleed worden aan de tekening. Alle maten op de tekening aangegeven kunnen afwijken van de uiteindelijke uitvoeringsplannen, alsook (bruto-oppervlaktes die indicatief zijn).
N grondplan voorgevel achtergevel plan
plan
WONING # slaapkamers
Opp. niv. +0 63m2 Opp. niv. +1 55m2 Opp. niv. +2 52m2 Terras 1 26m2 Terras 2 3m2 JULES 0.04
woning
niv.+2
niv.+1
3
17 17 1034 1034 315 683 998 1033 1033 315 683 998 M3 (Jules) 0.04 -gevels
linker zijgevel WONING
achtergevel voorgevel

niv. +1 58m2

M3 (Jules) 0.05 -niv.+0

Oppervlakte :

niv. +066 m²

niv. +158 m²

niv. +254 m²

1 27 m²

2 3 m²

M3 (Jules) 0.05 -niv.+1 & 2 woning niv. +066 m² woning niv. +158 m² woning niv. +254 m² terras 1 27 m² terras 2 3 m²

Oppervlakte

18 18 TELLERS 488 TERRAS 1 LEEFRUIMTE INKOMHAL FIETSENSTALLING WC 1 388 252 201 197 927 415 463 502 330 91 145 BERGING 1 opstap MAARTEN -Mechelen Er kunnen geen rechten ontleed worden aan de tekening. Alle maten op de tekening aangegeven kunnen afwijken van de uiteindelijke uitvoeringsplannen, alsook (bruto-oppervlaktes die indicatief zijn). De meubels en keukeninrichting louter ter informatie, onder voorbehoud van de uitvoeringsplannen en detailplan keuken. De terrasafwerking ligt lager dan de binnenvloerafwerking. De hoogte kan afwijken in functie van de gekozen vloerafwerking.
woning
grondplan N voorgevel achtergevel WONING plan niv.+0 VIDE BUREAU TECHNISCHE BERGING SLAAPKAMER 1 WC 2 BADKAMER 1 NACHTHAL 1 488 120 483 183 217 204 247 90 307 277 201 260 DAK DAK SLAAPKAMER 2 SLAAPKAMER 3 BADKAMER 2 NACHTHAL 2 GANG 277 201 277 201 483 394 287 201 389 MAARTEN -Mechelen
woning
woning
terras
terras
Er kunnen geen rechten ontleed worden aan de tekening. Alle maten op de tekening aangegeven kunnen afwijken van de uiteindelijke uitvoeringsplannen, alsook (bruto-oppervlaktes die indicatief zijn).
N grondplan voorgevel achtergevel
WONING
Opp.
Opp.
Opp.
JULES 0.05
plan niv.+2 plan niv.+1
# slaapkamers 3
niv. +0 66m2
niv. +2 54m2 Terras 1 27m2 Terras 2 3m2
19 19 1034 1034 315 683 998 1033 1033 315 683 998 M3 (Jules) 0.05 -gevels
linker zijgevel WONING
achtergevel voorgevel

WONINGEN

MIMY

M4 (Mimy) 0.01 -niv.+0

# slaapkamers 4

niv. +0 68m2

niv. +1 54m2

niv. +2 54m2

Oppervlakte :

Fietsenstalling 15m2 Terras 1 9m2 Tuin 33m2

M4 (Mimy) 0.01 -niv.+1 & 2

woning niv. +068 m²

woning niv. +154 m²

woning niv. +254 m² fietsenstallling15 m² terras 1 9 m² tuin 33 m²

24 24 TELLERS LEEFRUIMTE INKOMHAL WC 1 TERRAS BERGING 1 501 795 301 200 464 291 201 178 91 153 TERRAS TUIN FIETSENSTALLING 229 550 200 523 464 MAARTEN -Mechelen
Er kunnen geen rechten ontleed worden aan de tekening. Alle maten op de tekening aangegeven kunnen afwijken van de uiteindelijke uitvoeringsplannen, alsook (bruto-oppervlaktes die indicatief zijn). De meubels en keukeninrichting louter ter informatie, onder voorbehoud van de uitvoeringsplannen en detailplan keuken. De terrasafwerking ligt lager dan de binnenvloerafwerking. De hoogte kan afwijken in functie van de gekozen vloerafwerking.
N voorgevel achtergevel plan niv.+0
m² woning
woning
m² fietsenstallling15
terras
m² tuin 33 m² grondplan WONING VIDE NACHTHAL 1 WC 2 BADKAMER 1 BUREAU/HOBBY TECHNISCHE BERGING SLAAPKAMER 1 501 201 291 90 241 511 205 142 218 291 DAK SLAAPKAMER 2 SLAAPKAMER 4 NACHTHAL 2 BADKAMER 2 SLAAPKAMER 3 231 261 341 451 160 277 291 291 201 MAARTEN -Mechelen
Er kunnen geen rechten ontleed worden aan de tekening. Alle maten op de tekening aangegeven kunnen afwijken van de uiteindelijke uitvoeringsplannen, alsook (bruto-oppervlaktes die indicatief zijn). De meubels en keukeninrichting louter ter informatie, onder voorbehoud van de uitvoeringsplannen en detailplan keuken. De terrasafwerking ligt lager dan de binnenvloerafwerking. De hoogte kan afwijken in functie van de gekozen vloerafwerking.
woning niv. +068
niv. +154 m²
niv. +254
1 9
Oppervlakte
WONING plan niv.+1 plan niv.+2 N voorgevel achtergevel
grondplan
Opp.
Opp.
Opp.
MIMY 0.01
25 25
966 663 303 966
966
M4 (Mimy) 0.01 -gevels
303 663 966
achtergevel voorgevel
WONING
zijgevel

M4

(Mimy) 0.02 -niv.+0

# slaapkamers 4

niv. +0 65m2 Opp. niv. +1 54m2

niv. +2 54m2

Oppervlakte :

Fietsenstalling 14m2 Terras 1 9m2 Tuin 31m2

M4 (Mimy) 0.02 -niv.+1 & 2

woning niv. +065 m²

woning niv. +154 m²

woning niv. +254 m² fietsenstallling14 m² terras 1 9 m² tuin 31 m²

26 26 TELLERS TERRAS LEEFRUIMTE INKOMHAL BERGING 1 501 WC 1 301 795 200 464 201 291 178 91 153 TERRAS TUIN FIETSENSTALLING 229 550 200 494 464 MAARTEN -Mechelen
Er kunnen geen rechten ontleed worden aan de tekening. Alle maten op de tekening aangegeven kunnen afwijken van de uiteindelijke uitvoeringsplannen, alsook (bruto-oppervlaktes die indicatief zijn). De meubels en keukeninrichting louter ter informatie, onder voorbehoud van de uitvoeringsplannen en detailplan keuken. De terrasafwerking ligt lager dan de binnenvloerafwerking. De hoogte kan afwijken in functie van de gekozen vloerafwerking.
N voorgevel achtergevel
woning
woning
terras
tuin
m² grondplan plan niv.+0 WONING VIDE NACHTHAL 1 SLAAPKAMER 1 TECHNISCHE BERGING BUREAU/HOBBY WC 2 BADKAMER 1 501 291 201 291 511 205 142 218 241 90 DAK SLAAPKAMER 4 SLAAPKAMER 2 BADKAMER 2 NACHTHAL 2 SLAAPKAMER 3 261 231 341 451 160 277 201 291 291 MAARTEN -Mechelen
Er kunnen geen rechten ontleed worden aan de tekening. Alle maten op de tekening aangegeven kunnen afwijken van de uiteindelijke uitvoeringsplannen, alsook (bruto-oppervlaktes die indicatief zijn). De meubels en keukeninrichting louter ter informatie, onder voorbehoud van de uitvoeringsplannen en detailplan keuken. De terrasafwerking ligt lager dan de binnenvloerafwerking. De hoogte kan afwijken in functie van de gekozen vloerafwerking.
woning niv. +065 m²
niv. +154 m²
niv. +254 m² fietsenstallling14 m²
1 9 m²
31
Oppervlakte
WONING plan
plan
N voorgevel achtergevel
niv.+1
niv.+2
grondplan
Opp.
Opp.
MIMY 0.02

achtergevel voorgevel

27 27 966
966
663 303
M4 (Mimy) 0.02 -gevels
966
303 663 966
WONING
zijgevel

M4 (Mimy) 0.03 -niv.+0

Oppervlakte :

woning niv. +065 m²

woning niv. +154 m²

woning niv. +254 m² fietsenstallling14 m² terras 1 9 m² tuin 31 m²

28 28 TELLERS TERRAS LEEFRUIMTE INKOMHAL BERGING 1 501 WC 1 795 301 200 464 291 201 91 180 151 TERRAS TUIN FIETSENSTALLING 229 550 200 494 464 MAARTEN -Mechelen
Er kunnen geen rechten ontleed worden aan de tekening. Alle maten op de tekening aangegeven kunnen afwijken van de uiteindelijke uitvoeringsplannen, alsook (bruto-oppervlaktes die indicatief zijn). De meubels en keukeninrichting louter ter informatie, onder voorbehoud van de uitvoeringsplannen en detailplan keuken. De terrasafwerking ligt lager dan de binnenvloerafwerking. De hoogte kan afwijken in functie van de gekozen vloerafwerking.
N voorgevel achtergevel woning niv.
m² woning niv.
m² woning niv. +254 m² fietsenstallling14
terras
9 m² tuin 31 m² grondplan plan niv.+0 WONING VIDE SLAAPKAMER 1 TECHNISCHE BERGING BUREAU/HOBBY NACHTHAL WC 2 BADKAMER 1 501 201 291 241 90 511 205 291 142 218 DAK SLAAPKAMER 2 SLAAPKAMER 4 NACHTHAL 2 BADKAMER 2 SLAAPKAMER 3 231 261 341 451 160 277 291 201 291 MAARTEN -Mechelen Oppervlakte Er kunnen geen rechten ontleed worden aan de tekening. Alle maten op de tekening aangegeven kunnen afwijken van de uiteindelijke uitvoeringsplannen, alsook (bruto-oppervlaktes die indicatief zijn). De meubels en keukeninrichting louter ter informatie, onder voorbehoud van de uitvoeringsplannen en detailplan keuken. De terrasafwerking ligt lager dan de binnenvloerafwerking. De hoogte kan afwijken in functie van de gekozen vloerafwerking. M4 (Mimy)
WONING plan niv.+1 plan niv.+2 N voorgevel achtergevel
+065
+154
1
0.03 -niv.+1 & 2
grondplan # slaapkamers 4 Opp. niv. +0 65m2 Opp. niv. +1 54m2 Opp. niv. +2 54m2 Fietsenstalling 14m2 Terras
Tuin 31m2 MIMY 0.03
1 9m2

achtergevel voorgevel

29 29 966 663 303 966
663 966 M4 (Mimy) 0.03 -gevels
966 303
WONING
zijgevel

M4 (Mimy) 0.04 -niv.+0

# slaapkamers 4 Opp. niv. +0 65m2 Opp. niv. +1 54m2 Opp. niv. +2 54m2

Oppervlakte :

Fietsenstalling 14m2 Terras 1 9m2 Tuin 31m2

M4 (Mimy) 0.04 -niv.+1 & 2

niv.+2

woning niv. +065 m²

woning niv. +154 m²

woning niv. +254 m² fietsenstallling14 m² terras 1 9 m² tuin 31 m²

30 30 TELLERS TERRAS LEEFRUIMTE INKOMHAL BERGING 1 501 WC 1 301 795 200 464 201 291 91 180 151 TERRAS TUIN FIETSENSTALLING 229 550 200 494 464 MAARTEN -Mechelen
Er kunnen geen rechten ontleed worden aan de tekening. Alle maten op de tekening aangegeven kunnen afwijken van de uiteindelijke uitvoeringsplannen, alsook (bruto-oppervlaktes die indicatief zijn). De meubels en keukeninrichting louter ter informatie, onder voorbehoud van de uitvoeringsplannen en detailplan keuken. De terrasafwerking ligt lager dan de binnenvloerafwerking. De hoogte kan afwijken in functie van de gekozen vloerafwerking.
N voorgevel achtergevel woning
woning
woning
m² fietsenstallling14
terras
9 m² tuin 31 m² grondplan plan niv.+0 WONING VIDE NACHTHAL TECHNISCHE BERGING BUREAU/HOBBY WC 2 BADKAMER 1 SLAAPKAMER 1 501 291 201 291 511 205 142 218 241 90 DAK SLAAPKAMER 4 SLAAPKAMER 2 BADKAMER 2 NACHTHAL 2 SLAAPKAMER 3 261 231 160 277 451 341 201 291 291 MAARTEN -Mechelen
Er kunnen geen rechten ontleed worden aan de tekening. Alle maten op de tekening aangegeven kunnen afwijken van de uiteindelijke uitvoeringsplannen, alsook (bruto-oppervlaktes die indicatief zijn). De meubels en keukeninrichting louter ter informatie, onder voorbehoud van de uitvoeringsplannen en detailplan keuken. De terrasafwerking ligt lager dan de binnenvloerafwerking. De hoogte kan afwijken in functie van de gekozen vloerafwerking.
niv. +065 m²
niv. +154 m²
niv. +254
1
Oppervlakte
WONING
N voorgevel achtergevel
plan niv.+1 plan
grondplan
MIMY 0.04
31 31
966 663 303 966
966
M4 (Mimy) 0.04 -gevels
303 663 966
achtergevel voorgevel
WONING
zijgevel

M4 (Mimy) 0.05 -niv.+0

Oppervlakte :

woning niv. +065 m²

woning niv. +154 m²

woning niv. +254 m² fietsenstallling14 m² terras 1 9 m² tuin 31 m²

32 32 TELLERS TERRAS LEEFRUIMTE INKOMHAL BERGING 1 501 301 795 WC 1 200 464 291 201 91 180 151 TUIN TERRAS FIETSENSTALLING 229 550 200 494 464 MAARTEN -Mechelen
Er kunnen geen rechten ontleed worden aan de tekening. Alle maten op de tekening aangegeven kunnen afwijken van de uiteindelijke uitvoeringsplannen, alsook (bruto-oppervlaktes die indicatief zijn). De meubels en keukeninrichting louter ter informatie, onder voorbehoud van de uitvoeringsplannen en detailplan keuken. De terrasafwerking ligt lager dan de binnenvloerafwerking. De hoogte kan afwijken in functie van de gekozen vloerafwerking.
N voorgevel achtergevel woning niv.
m² woning niv.
m² woning niv. +254 m² fietsenstallling14
terras 1 9 m² tuin 31 m² grondplan plan niv.+0 WONING VIDE TECHNISCHE BERGING BUREAU/HOBBY SLAAPKAMER 1 WC 2 NACHTHAL BADKAMER 1 501 201 291 241 90 511 205 142 218 291 DAK SLAAPKAMER 2 SLAAPKAMER 4 BADKAMER 2 NACHTHAL 2 SLAAPKAMER 3 231 261 341 451 160 277 291 201 291 MAARTEN -Mechelen Oppervlakte Er kunnen geen rechten ontleed worden aan de tekening. Alle maten op de tekening aangegeven kunnen afwijken van de uiteindelijke uitvoeringsplannen, alsook (bruto-oppervlaktes die indicatief zijn). De meubels en keukeninrichting louter ter informatie, onder voorbehoud van de uitvoeringsplannen en detailplan keuken. De terrasafwerking ligt lager dan de binnenvloerafwerking. De hoogte kan afwijken in functie van de gekozen vloerafwerking.
WONING plan niv.+1 plan niv.+2 N voorgevel achtergevel
+065
+154
M4 (Mimy) 0.05 -niv.+1 & 2
grondplan # slaapkamers 4 Opp. niv. +0 65m2 Opp. niv. +1 54m2 Opp. niv. +2 54m2 Fietsenstalling
Terras
MIMY 0.05
14m2
1 9m2 Tuin 31m2

achtergevel voorgevel

33 33 966 663 303 966
M4 (Mimy) 0.05 -gevels
966 303 663 966
WONING
zijgevel

M4 (Mimy) 0.06 -niv.+0

# slaapkamers 4 Opp. niv. +0 68m2 Opp. niv. +1 57m2 Opp. niv. +2 57m2

Oppervlakte :

woning niv. +068 m²

niv. +157 m²

niv. +257 m²

1 9 m²

Fietsenstalling 15m2 Terras 1 9m2 Tuin 33m2

M4 (Mimy) 0.06 -niv.+1 & 2

woning niv. +068 m²

woning niv. +157 m²

woning niv. +257 m² fietsenstallling15 m² terras 1 9 m² tuin 33 m²

plan niv.+1 plan niv.+2

34 34 TELLERS TERRAS LEEFRUIMTE INKOMHAL BERGING 1 501 301 795 WC 1 200 464 201 291 91 180 151 TERRAS TUIN FIETSENSTALLING 229 550 200 523 464 MAARTEN -Mechelen
Er kunnen geen rechten ontleed worden aan de tekening. Alle maten op de tekening aangegeven kunnen afwijken van de uiteindelijke uitvoeringsplannen, alsook (bruto-oppervlaktes die indicatief zijn). De meubels en keukeninrichting louter ter informatie, onder voorbehoud van de uitvoeringsplannen en detailplan keuken. De terrasafwerking ligt lager dan de binnenvloerafwerking. De hoogte kan afwijken in functie van de gekozen vloerafwerking.
N voorgevel achtergevel
woning
woning
terras
tuin
grondplan plan niv.+0 WONING VIDE BUREAU/HOBBY TECHNISCHE BERGING NACHTHAL WC 2 SLAAPKAMER 1 BADKAMER 1 501 291 291 201 511 205 142 218 241 90 DAK SLAAPKAMER 4 SLAAPKAMER 2 BADKAMER 2 NACHTHAL 2 SLAAPKAMER 3 261 231 451 160 277 341 201 291 291 MAARTEN -Mechelen
Er kunnen geen rechten ontleed worden aan de tekening. Alle maten op de tekening aangegeven kunnen afwijken van de uiteindelijke uitvoeringsplannen, alsook (bruto-oppervlaktes die indicatief zijn). De meubels en keukeninrichting louter ter informatie, onder voorbehoud van de uitvoeringsplannen en detailplan keuken. De terrasafwerking ligt lager dan de binnenvloerafwerking. De hoogte kan afwijken in functie van de gekozen vloerafwerking.
fietsenstallling15
33 m²
Oppervlakte
WONING
N voorgevel achtergevel
grondplan
MIMY 0.06

voorgevel

achtergevel

35 35 966
966
663 303
M4 (Mimy) 0.06 -gevels
966 303 663 966
WONING
zijgevel
36 36

ODILE WONINGEN

plan niv.+0

# slaapkamers 4 Opp. niv. +0 67m2 Opp. niv. +1 67m2 Opp. niv. +2 67m2

V1 (Odile) 0.01 -niv.+0

Oppervlakte :

woning niv. +067 m²

woning niv. +167 m²

woning niv. +267 m²

fietsenstallling11 m²

terras 1 8 m²

terras 2 8 m²

tuin 1 21 m²

tuin 2 9 m²

Fietsenstalling 11m2 Terras 1 8m2 Terras 2 8m2 Tuin 1 21m2 Tuin 2 9m2

V1 (Odile) 0.01 -niv.+1 & 2 WONING

Oppervlakte :

woning niv. +067 m²

woning niv. +167 m² woning niv. +267 m² fietsenstallling11 m² terras 1 8 m² terras 2 8 m² tuin 1 21 m² tuin 2 9 m²

plan niv.+1 plan niv.+2

N

40 799 340 171 9 1 161 161 299 358 100 469 222 406 354 309 LEEFRUIMTE INKOMHAL WC 1 TERRAS VOORTUIN TUIN FIETSENBERGING 238 250 TELLERS TELLERS MAARTEN -Mechelen Er kunnen geen rechten ontleed worden aan de tekening. Alle maten op de tekening aangegeven kunnen afwijken van de uiteindelijke uitvoeringsplannen, alsook (bruto-oppervlaktes die indicatief zijn). De meubels en keukeninrichting louter ter informatie, onder voorbehoud van de uitvoeringsplannen en detailplan keuken. De terrasafwerking ligt lager dan de binnenvloerafwerking. De hoogte kan afwijken in functie van de gekozen vloerafwerking.
N
WONING
voorgevel achtergevel zijgevel grondplan BUREAU / HOBBY TECHNISCHE BERGING BADKAMER 1 NACHTHAL 1 SLAAPKAMER 1 273 60 156 91 191 358 469 469 101 100 249 188 249 SLAAPKAMER 3 SLAAPKAMER 4 SLAAPKAMER 2 NACHTHAL 2 BADKAMER 2 WC 2 387 498 181 91 358 469 210 249 188 249 110100
voorgevel achtergevel zijgevel grondplan ODILE 0.01

voorgevel

rechter zijgevel

achtergevel

41 41 726 307 1031 1037 1033 V1 (Odile) 0.01 -gevels
WONING

plan niv.+0

V1 (Odile) 0.02 -niv.+1 & 2

V1 (Odile) 0.02 -niv.+0

Oppervlakte :

woning niv. +058 m²

woning niv. +166 m²

woning niv. +248 m²

ODILE 0.02

Oppervlakte :

woning niv. +058 m²

3 Opp. niv. +0 58m2 Opp. niv. +1 66m2 Opp. niv. +2 48m2

fietsenstallling8 m²

terras 1 8 m²

tuin 1 27 m²

terras 2 18 m²

Fietsenstalling 8m2

Terras 1 8m2

Terras 2 18m2 Tuin 1 27m2

woning niv. +166 m² woning niv. +248 m² fietsenstallling8 m² terras 1 8 m² tuin 1 27 m² terras 2 18 m²

MAARTEN -Mechelen

voorgevel achtergevel grondplan

N

MAARTEN -Mechelen

Er kunnen geen rechten ontleed worden aan de tekening. Alle maten op de tekening aangegeven kunnen afwijken van de uiteindelijke uitvoeringsplannen, alsook (bruto-oppervlaktes die indicatief zijn).

De meubels en keukeninrichting louter ter informatie, onder voorbehoud van de uitvoeringsplannen en detailplan keuken.

De terrasafwerking ligt lager dan de binnenvloerafwerking. De hoogte kan afwijken in functie van de gekozen vloerafwerking.

Er kunnen geen rechten ontleed worden aan de tekening. Alle maten

42 42 830 180 186 90 113 490 90 389 430 222 406 241 LEEFRUIMTE WC INKOMHAL TERRAS FIETSENBERGING TUIN BERGING 1 TELLERS
WONING
SLAAPKAMER 1 BADKAMER 1 TECHNISCHE BERGING NACHTHAL 1 LEEFRUIMTE 320 200 152 490 219 100100 280 490 463 SLAAPKAMER 3 BADKAMER 2 NACHTHAL 2 SLAAPKAMER 2 TERRAS 321 110 320 297 367 80 201 280 219 100 200 280 219 2 9 0 471 opstap
op de tekening aangegeven kunnen afwijken van de uiteindelijke uitvoeringsplannen, alsook (bruto-oppervlaktes die indicatief zijn). De meubels en keukeninrichting louter ter informatie, onder voorbehoud van de uitvoeringsplannen en detailplan keuken. De terrasafwerking ligt lager dan de binnenvloerafwerking. De hoogte kan afwijken in functie van de gekozen vloerafwerking.
WONING N plan niv.+1 plan niv.+2
voorgevel achtergevel grondplan
# slaapkamers

voorgevel

rechter zijgevel

achtergevel

43 43 726 307 1031 1037 1033 V1 (Odile) 0.02 -gevels WONING

WONING

V1 (Odile) 0.03 -niv.+1 & 2

Oppervlakte : V1 (Odile) 0.03 -niv.+0

woning niv. +063 m²

woning niv. +166 m² woning niv. +248 m² fietsenstallling8 m²

Oppervlakte :

+063 m²

niv. +166 m²

niv. +248 m² fietsenstallling8 m² terras 1 8 m² tuin 1 38 m² terras 2 17 m²

terras 1 8 m²

tuin 1 38 m²

terras 2 17 m²

+1 66m2 Opp. niv. +2 48m2 Fietsenstalling 8m2 Terras 1 8m2 Terras 2 17m2 Tuin 1 38m2

plan niv.+0

MAARTEN -Mechelen

voorgevel achtergevel grondplan

Er kunnen geen rechten ontleed worden aan de tekening. Alle maten op de tekening aangegeven kunnen afwijken van de uiteindelijke uitvoeringsplannen, alsook (bruto-oppervlaktes die indicatief zijn).

De meubels en keukeninrichting louter ter informatie, onder voorbehoud van de uitvoeringsplannen en detailplan keuken.

44 44 TELLERS 792 167 90 121 202 390 90 490 464 222 406 241 188 LEEFRUIMTE INKOMHAL WC TERRAS FIETSENBERGING TUIN BERGING 1
N
LEEFRUIMTE TECHNISCHE BERGING BADKAMER 1 NACHTHAL 1 SLAAPKAMER 1 320 200 152 430 490 280 219 100 490 SLAAPKAMER 3 SLAAPKAMER 2 NACHTHAL 2 BADKAMER 2 TERRAS 320 110 320 245 100 134 279 201 219 100 279 201 219 2 9 0 471 opstap
-Mechelen
MAARTEN
Er kunnen geen rechten ontleed worden aan de tekening. Alle maten op de tekening aangegeven kunnen afwijken van de uiteindelijke uitvoeringsplannen, alsook (bruto-oppervlaktes die indicatief zijn). De meubels en keukeninrichting louter ter informatie, onder voorbehoud van de uitvoeringsplannen en detailplan keuken. De terrasafwerking ligt lager dan de binnenvloerafwerking. De hoogte kan afwijken in functie van de gekozen vloerafwerking.
woning
voorgevel achtergevel grondplan ODILE 0.03 # slaapkamers
niv.
Opp.
WONING N plan niv.+1 plan niv.+2 woning niv.
woning
3 Opp.
+0 63m2
niv.

voorgevel

rechter zijgevel

achtergevel

45 45 726 307 1031 1037 1033 V1 (Odile) 0.03 -gevels
WONING
46 46

APPARTEMENTEN

ANNA APPARTEMENTEN

51 51 LEEFRUIMTE SLAAPKAMER 1 SLAAPKAMER 2 INKOMHAL BADKAMER TECHNISCHE BERGING WC TUIN 795 142 252 100 538 220 377 141 100 188 201 200 534 478 142 368 252 N plan niv.+0 # slaapkamers 2 Opp. appt. 96m2 Terras 11m2 Tuin 39m2 ANNA 0.01 LEEFRUIMTE SLAAPKAMER 1 SLAAPKAMER 2 INKOMHAL BADKAMER TECHNISCHE BERGING WC TUIN 795 142 252 100 538 220 377 100 188 201 200 534 142 368 252 Datum: MAARTEN -Mechelen Plan Oppervlakte : GELIJKVLOERS Er kunnen geen rechten ontleed worden aan de tekening. Alle maten op de tekening aangegeven kunnen afwijken van de uiteindelijke uitvoeringsplannen, alsook (bruto-oppervlaktes die indicatief zijn). De meubels en keukeninrichting louter ter informatie, onder voorbehoud van de uitvoeringsplannen en detailplan keuken. De terrasafwerking ligt lager dan de binnenvloerafwerking. De hoogte kan afwijken in functie van de gekozen vloerafwerking. APPARTEMENT M4 (Anna) 0.01 20230908 APPARTEMENT M4 (Anna) 0.01 achtergevel N appartement96 m² terras 1 11 m² tuin 39 m² plan niv.+0 grondplan zijgevel SLAAPKAMER 1 SLAAPKAMER 2 INKOMHAL BADKAMER TECHNISCHE BERGING WC 142 252 100 220 377 141 100 188 201 142 368 252 Datum: MAARTEN -Mechelen Plan Er kunnen geen rechten ontleed worden aan uiteindelijke uitvoeringsplannen, alsook (bruto-opp De meubels en keukeninrichting louter ter informati De terrasafwerking ligt lager dan de binnenvloerafw APPARTEMENT M4 (Anna) 0.01 20230908 achtergevel N plan grondplan zijgevel
52 52 LEEFRUIMTE BADKAMER SLAAPKAMER 2 SLAAPKAMER 1 TECHNISCHE BERGING WC INKOMHAL TERRAS 655 327 182 198 100 270 387 741 256 406 261 130 330 261 161 330 227 504 N plan niv.+0 # slaapkamers 2 Opp. appt. 101m2 Terras 10m2 ANNA 0.02 LEEFRUIMTE BADKAMER SLAAPKAMER 2 SLAAPKAMER 1 TECHNISCHE BERGING WC INKOMHAL TERRAS 655 327 182 198 100 270 387 741 256 261 130 330 261 161 330 227 Datum: MAARTEN -Mechelen Plan Oppervlakte : GELIJKVLOERS Er kunnen geen rechten ontleed worden aan de tekening. Alle maten op de tekening aangegeven kunnen afwijken van de uiteindelijke uitvoeringsplannen, alsook (bruto-oppervlaktes die indicatief zijn). De meubels en keukeninrichting louter ter informatie, onder voorbehoud van de uitvoeringsplannen en detailplan keuken. De terrasafwerking ligt lager dan de binnenvloerafwerking. De hoogte kan afwijken in functie van de gekozen vloerafwerking. APPARTEMENT M4 (Anna) 0.02 20230908 APPARTEMENT M4 (Anna) 0.02 appartement101 m² terras 1 10 m² plan niv.+0 grondplan zijgevel voorgevel zijgevel LEEFRUIMTE BADKAMER TECHNISCHE BERGING WC INKOMHAL 655 182 198 100 741 261 130 261 161 227 504 Datum: MAARTEN -Mechelen Plan Er kunnen geen rechten ontleed worden aan uiteindelijke uitvoeringsplannen, alsook (bruto-opp De meubels en keukeninrichting louter ter informati De terrasafwerking ligt lager dan de binnenvloerafw APPARTEMENT M4 (Anna) 0.02 20230908 plan niv.+0 grondplan voorgevel zijgevel
53 53 DAK opstap TECHNISCHE BERGING WC INKOMHAL BADKAMER SLAAPKAMER 1 SLAAPKAMER 2 LEEFRUIMTE TERRAS 155 129 230 180 175 100 609 345 338 190 308 220 907 124 566 155 440 plan niv.+1 N # slaapkamers 2 Opp. appt. 118m2 Terras 11m2 ANNA 1.01 DAK opstap WC INKOMHAL BADKAMER SLAAPKAMER 1 SLAAPKAMER 2 LEEFRUIMTE TERRAS 155 129 230 180 175 100 609 345 338 190 308 220 907 124 566 155 440 Datum: MAARTEN -Mechelen Plan Oppervlakte : 1° VERDIEPING Er kunnen geen rechten ontleed worden aan de tekening. Alle maten op de tekening aangegeven kunnen afwijken van de uiteindelijke uitvoeringsplannen, alsook (bruto-oppervlaktes die indicatief zijn). De meubels en keukeninrichting louter ter informatie, onder voorbehoud van de uitvoeringsplannen en detailplan keuken. De terrasafwerking ligt lager dan de binnenvloerafwerking. De hoogte kan afwijken in functie van de gekozen vloerafwerking. APPARTEMENT M4 (Anna) 1.01 20230908 APPARTEMENT M4 (Anna) 1.01 plan niv.+1 appartement118 m² terras 1 11 m² N achtergevel voorgevel grondplan zijgevel DAK TECHNISCHE BERGING WC INKOMHAL BADKAMER SLAAPKAMER 1 SLAAPKAMER 2 155 129 230 180 175 100 345 338 190 308 220 155 440 Datum: MAARTEN -Mechelen Plan Er kunnen geen rechten ontleed worden aan uiteindelijke uitvoeringsplannen, alsook (bruto-opp De meubels en keukeninrichting louter ter informati De terrasafwerking ligt lager dan de binnenvloerafw APPARTEMENT M4 (Anna) 1.01 20230908 plan achtergevel voorgevel grondplan
54 54 LEEFRUIMTE SLAAPKAMER 2 SLAAPKAMER 1 BADKAMER TECHNISCHE BERGING INKOMHAL TERRAS 378 212 327 270 387 655 182 198 100 261 130 741 504 330 330 261 161 230 WC plan niv.+1 N # slaapkamers 2 Opp. appt. 101m2 Terras 10m2 ANNA 1.02 LEEFRUIMTE SLAAPKAMER 2 SLAAPKAMER 1 BADKAMER TECHNISCHE BERGING INKOMHAL 212 327 270 387 655 182 198 100 261 130 741 504 330 330 261 161 230 WC Datum: MAARTEN -Mechelen Plan Oppervlakte : 1° VERDIEPING Er kunnen geen rechten ontleed worden aan de tekening. Alle maten op de tekening aangegeven kunnen afwijken van de uiteindelijke uitvoeringsplannen, alsook (bruto-oppervlaktes die indicatief zijn). De meubels en keukeninrichting louter ter informatie, onder voorbehoud van de uitvoeringsplannen en detailplan keuken. De terrasafwerking ligt lager dan de binnenvloerafwerking. De hoogte kan afwijken in functie van de gekozen vloerafwerking. APPARTEMENT M4 (Anna) 1.02 20230908 APPARTEMENT M4 (Anna) 1.02 voorgevel zijgevel plan niv.+1 grondplan zijgevel appartement101 m² terras 1 10 m² LEEFRUIMTE BADKAMER TECHNISCHE BERGING INKOMHAL 655 182 198 100 261 130 741 504 261 161 230 WC Datum: MAARTEN -Mechelen Plan Er kunnen geen rechten ontleed worden aan uiteindelijke uitvoeringsplannen, alsook (bruto-opp De meubels en keukeninrichting louter ter informati De terrasafwerking ligt lager dan de binnenvloerafw APPARTEMENT M4 (Anna) 1.02 20230908 voorgevel zijgevel plan niv.+1 grondplan
55 opstap TECHNISCHE BERGING WC INKOMHAL BADKAMER SLAAPKAMER 2 SLAAPKAMER 1 LEEFRUIMTE TERRAS 155 129 230 240 430 907 155 1123 491 355 290 609 189 100 175 155 190 178 156 418
N # slaapkamers 2 Opp. appt. 106m2 Terras 25m2 ANNA 2.01 opstap TECHNISCHE BERGING WC INKOMHAL BADKAMER SLAAPKAMER 2 SLAAPKAMER 1 LEEFRUIMTE TERRAS 155 129 230 240 430 907 155 1123 491 355 290 189 100 175 155 190 178 156 418 Datum: MAARTEN -Mechelen Plan Oppervlakte : 2° VERDIEPING Er kunnen geen rechten ontleed worden aan de tekening. Alle maten op de tekening aangegeven kunnen afwijken van de uiteindelijke uitvoeringsplannen, alsook (bruto-oppervlaktes die indicatief zijn). De meubels en keukeninrichting louter ter informatie, onder voorbehoud van de uitvoeringsplannen en detailplan keuken. De terrasafwerking ligt lager dan de binnenvloerafwerking. De hoogte kan afwijken in functie van de gekozen vloerafwerking. APPARTEMENT M4 (Anna) 2.01 20230908 APPARTEMENT M4 (Anna) 2.01 appartement106 m² terras 1 25 m² achtergevel voorgevel grondplan N zijgevel TECHNISCHE BERGING WC INKOMHAL BADKAMER SLAAPKAMER 2 SLAAPKAMER 1 TERRAS 155 129 230 240 430 1123 355 290 189 100 175 155 190 178 156 418 Datum: MAARTEN -Mechelen Plan Er kunnen geen rechten ontleed worden aan uiteindelijke uitvoeringsplannen, alsook (bruto-opp De meubels en keukeninrichting louter ter informati De terrasafwerking ligt lager dan de binnenvloerafw APPARTEMENT M4 (Anna) 2.01 20230908 plan niv.+2 achtergevel voorgevel grondplan
plan niv.+2
56 56 239 394 LEEFRUIMTE BADKAMER TECHNISCHE BERGING SLAAPKAMER 2 SLAAPKAMER 1 INKOMHAL TERRAS 327 270 387 655 182 198 100 330 261 130 741 504 330 261 161 230 WC plan niv.+2 N # slaapkamers 2 Opp. appt. 101m2 Terras 10m2 ANNA 2.02 239 LEEFRUIMTE BADKAMER TECHNISCHE BERGING SLAAPKAMER 2 SLAAPKAMER 1 INKOMHAL TERRAS 327 270 387 655 182 198 100 330 261 130 741 504 330 261 161 230 WC Datum: MAARTEN -Mechelen Plan : Oppervlakte : 2° VERDIEPING Er kunnen geen rechten ontleed worden aan de tekening. Alle maten op de tekening aangegeven kunnen afwijken van de uiteindelijke uitvoeringsplannen, alsook (bruto-oppervlaktes die indicatief zijn). De meubels en keukeninrichting louter ter informatie, onder voorbehoud van de uitvoeringsplannen en detailplan keuken. De terrasafwerking ligt lager dan de binnenvloerafwerking. De hoogte kan afwijken in functie van de gekozen vloerafwerking. APPARTEMENT M4 (Anna) 2.02 20230908 APPARTEMENT M4 (Anna) 2.02 appartement101 m² terras 1 10 m² plan niv.+2 voorgevel zijgevel grondplan zijgevel LEEFRUIMTE BADKAMER TECHNISCHE BERGING SLAAPKAMER SLAAPKAMER INKOMHAL 655 182 198 100 261 130 741 504 261 161 230 WC Datum: MAARTEN -Mechelen Plan Er kunnen geen rechten ontleed worden aan uiteindelijke uitvoeringsplannen, alsook (bruto-opp De meubels en keukeninrichting louter ter informati De terrasafwerking ligt lager dan de binnenvloerafw APPARTEMENT M4 (Anna) 2.02 20230908 plan niv.+2 voorgevel zijgevel grondplan
TRES APPARTEMENTEN
59 INKOMHAL SLAAPKAMER 1 SLAAPKAMER 2 NACHTHAL BADKAMER TECHNISCHE BERGING LEEFRUIMTE WC TERRAS 182 603 464 122 90 110 300 42 250 313 204 313 362 392 407 330 312 60 363 60 276 140 181 146 301 651 85 plan niv.+0 N INKOMHAL SLAAPKAMER 1 SLAAPKAMER 2 NACHTHAL BADKAMER TECHNISCHE BERGING LEEFRUIMTE WC TERRAS 182 603 464 122 90 110 300 42 250 313 204 313 362 392 407 330 312 60 363 60 276 140 181 146 301 651 85 MAARTEN -Mechelen Oppervlakte GELIJKVLOERS Er kunnen geen rechten ontleed worden aan de tekening. Alle maten op de tekening aangegeven kunnen afwijken van de uiteindelijke uitvoeringsplannen, alsook (bruto-oppervlaktes die indicatief zijn). De meubels en keukeninrichting louter ter informatie, onder voorbehoud van de uitvoeringsplannen en detailplan keuken. De terrasafwerking ligt lager dan de binnenvloerafwerking. De hoogte kan afwijken in functie van de gekozen vloerafwerking. APPARTEMENT V2 (Tres) 0.01 appartement114 m² terras 1 9 m² plan niv.+0 N zijgevel voorgevel grondplan # slaapkamers 2 Opp. appt. 114m2 Terras 9m2 TRES 0.01
60 INKOMHAL NACHTHAL SLAAPKAMER 1 SLAAPKAMER 2 WC BADKAMER TECHNISCHE BERGING LEEFRUIMTE TERRAS 181 603 464 301 312 330 407 362 392 651 42 250 312 300 122 204 313 140 90 110 60 363 60 276 85 181 146 plan niv.+1 N INKOMHAL NACHTHAL SLAAPKAMER 1 SLAAPKAMER 2 WC BADKAMER TECHNISCHE BERGING LEEFRUIMTE TERRAS 181 603 464 301 312 330 407 362 392 651 42 250 312 300 122 204 313 140 90 110 60 363 60 276 85 181 146 appartement114 m² terras 1 9 m² plan niv.+1 N MAARTEN -Mechelen Oppervlakte 1° VERDIEPING Er kunnen geen rechten ontleed worden aan de tekening. Alle maten op de tekening aangegeven kunnen afwijken van de uiteindelijke uitvoeringsplannen, alsook (bruto-oppervlaktes die indicatief zijn). De meubels en keukeninrichting louter ter informatie, onder voorbehoud van de uitvoeringsplannen en detailplan keuken. De terrasafwerking ligt lager dan de binnenvloerafwerking. De hoogte kan afwijken in functie van de gekozen vloerafwerking. APPARTEMENT V2 (Tres) 1.01 zijgevel voorgevel grondplan # slaapkamers 2 Opp. appt. 114m2 Terras 9m2 TRES 1.01
61 INKOMHAL SLAAPKAMER 1 BADKAMER 231 appartement104 m² MAARTEN -Mechelen 1° VERDIEPING Er kunnen geen rechten ontleed worden aan de tekening. Alle maten op de tekening aangegeven kunnen afwijken van de uiteindelijke uitvoeringsplannen, alsook (bruto-oppervlaktes die indicatief zijn). De meubels en keukeninrichting louter ter informatie, onder voorbehoud van de uitvoeringsplannen en detailplan keuken. De terrasafwerking ligt lager dan de binnenvloerafwerking. De hoogte kan afwijken in functie van de gekozen vloerafwerking. APPARTEMENT V2 (Tres) 1.02 grondplan LEEFRUIMTE INKOMHAL SLAAPKAMER 2
1 BADKAMER TECHNISCHE BERGING WC TERRAS 162 90 342 290 181 182 186 231 121 100 156 239 60 409 559 5 0 7 110 257 300 191 5 0 1 215
SLAAPKAMER
N # slaapkamers 2 Opp. appt. 104m2 Terras 14m2 TRES 1.02
plan niv.+1
62 TECHNISCHE BERGING INKOMHAL WC BADKAMER SLAAPKAMER 2 LEEFRUIMTE SLAAPKAMER 1 TERRAS 142 202 140 218 114 104 317 202 100 407 330 312 470 290 820 411 60 110 173 434 95 190 90 312 plan niv.+2 N TECHNISCHE BERGING INKOMHAL WC BADKAMER SLAAPKAMER 2 LEEFRUIMTE SLAAPKAMER 1 TERRAS 142 202 140 218 114 104 317 202 100 407 330 312 470 290 820 411 60 110 173 434 95 190 90 312 appartement97 m² terras 1 9 m² plan niv.+2 N MAARTEN -Mechelen Oppervlakte 2° VERDIEPING Er kunnen geen rechten ontleed worden aan de tekening. Alle maten op de tekening aangegeven kunnen afwijken van de uiteindelijke uitvoeringsplannen, alsook (bruto-oppervlaktes die indicatief zijn). De meubels en keukeninrichting louter ter informatie, onder voorbehoud van de uitvoeringsplannen en detailplan keuken. De terrasafwerking ligt lager dan de binnenvloerafwerking. De hoogte kan afwijken in functie van de gekozen vloerafwerking. APPARTEMENT V2 (Tres) 2.01 zijgevel voorgevel grondplan # slaapkamers 2 Opp. appt. 97m2 Terras 9m2 TRES 2.01
63 LEEFRUIMTE TERRAS INKOMHAL BADKAMER TECHNISCHE BERGING SLAAPKAMER 1 SLAAPKAMER 2 WC TECHNISCHE BERGING 449 201 239 519 161 181 181 100 156 227 187 97 188 90 330 302 398 383 418 102 4 8 4 5 0 1 226 plan niv.+2 N # slaapkamers 2 Opp. appt. 98m2 Terras 14m2 TRES 2.02 LEEFRUIMTE TERRAS INKOMHAL BADKAMER TECHNISCHE BERGING SLAAPKAMER 1 SLAAPKAMER 2 WC TECHNISCHE BERGING 449 201 239 519 161 181 181 100 156 227 187 97 188 90 330 302 398 383 418 102 4 8 4 5 0 1 226 appartement98 m² terras 1 14 m² plan niv.+2 N MAARTEN -Mechelen Oppervlakte : 2° VERDIEPING Er kunnen geen rechten ontleed worden aan de tekening. Alle maten op de tekening aangegeven kunnen afwijken van de uiteindelijke uitvoeringsplannen, alsook (bruto-oppervlaktes die indicatief zijn). De meubels en keukeninrichting louter ter informatie, onder voorbehoud van de uitvoeringsplannen en detailplan keuken. De terrasafwerking ligt lager dan de binnenvloerafwerking. De hoogte kan afwijken in functie van de gekozen vloerafwerking. APPARTEMENT V2 (Tres) 2.02 zijgevel voorgevel achtergevel grondplan

3° VERDIEPING

3° VERDIEPING

Oppervlakte :

Oppervlakte :

1 terras 2

V2 (Tres) 3.01 appartement134 m² terras 1 44 m² terras 2 9 m²

64 opstap opstap INKOMHAL WC BADKAMER TECHNISCHE BERGING BADKAMER NACHTHAL SLAAPKAMER 1 SLAAPKAMER 3 SLAAPKAMER 2 LEEFRUIMTE TERRAS 1 TERRAS 2 408 60140 313 223 223 100 198 120 198 197 100 207 407 317 290 5 0 8 423 809 500 359 252 90 380 374 390 281 154 241 195 255 155 102 137 124 283 MAARTEN -Mechelen
APPARTEMENT V2 appartement134
N opstap opstap INKOMHAL WC BADKAMER TECHNISCHE BERGING BADKAMER NACHTHAL SLAAPKAMER 1 SLAAPKAMER 3 SLAAPKAMER 2 LEEFRUIMTE TERRAS 1 TERRAS 2 408 60140 313 223 223 100 198 120 198 197 100 207 407 317 290 5 0 8 423 809 500 359 252 90 380 374 390 281 154 241 195 255 155 102 137 124 283 MAARTEN -Mechelen Er kunnen geen rechten ontleed worden aan de tekening. Alle maten op de tekening aangegeven kunnen afwijken van de
terras
plan niv.+3 N zijgevel voorgevel achtergevel grondplan zijgevel # slaapkamers 2 Opp. appt. 114m2 Terras 9m2
3.01
APPARTEMENT
TRES
66 66 Herkenrodesingel 4b B-3500 Hasselt +32 11 859 713 www.ciril.be info@ciril.be

Turn static files into dynamic content formats.

Create a flipbook
Issuu converts static files into: digital portfolios, online yearbooks, online catalogs, digital photo albums and more. Sign up and create your flipbook.