WIT-H-IN DECA-YADDI-C-TIVE.
SAMPLE WORKS
Hanyan Chen
University of Pennsylvania
Masters of Architecture
Class of 2023

SAMPLE WORKS
Hanyan Chen
University of Pennsylvania
Masters of Architecture
Class of 2023
Decadence and Degradation, a design of a Bath House
Academic Design Project
Philadelphia, PA
Jan-May 2022
Team Project | Co-Designer
Teammate | Jingwen Wu, Michael Ting
Professor | Daniel Markiewicz
TA | Umar Mahmood
Facade Detail Dominant Project
“The eroding qualities of water”
LoLux Commons | A renovation of residence focusing on Public Common Space
Academic Design Project
Brooklyn, New York
Sept-Dec 2021
Individual Project
Professor | Jonas Coersmieier
TA | Danny Ortega
Material and Programming Dominant Project
Healthcare related project, designing for waiting rooms for patients
Academic Design Project Philadelphia, PA
Sept-Dec 2022
Team Project | Co-Designer
Teammate | Zihua Mo, Li Yang
Professor | Mikael Avery
Office
Entrance Hallway
Reception
Seating Area
Building Lobby
Hallway to Consulting Room
Seat Cusion
Seat Cusion
Floor Seams
Airdry Plants
Ceiling Plan
Carvings and Aggregates, New Prototypes for Cappadocia's Rock Architecture
Academic Design Project
Cappadocia, Turkey
Sept-Dec 2022
Team Project | Co-Designer
Teammate | Xinru Tan
Professor | Ferda Kolatan
TA | Caleb Ehly
ZBrush Modeling - Project
Academic Design Project Philadelphia, PA
Sept-Oct 2020
Team Project | Co-Designer
Teammate
Academic Design Project Philadelphia, PA
Sept-Dec 2020
Individual Project
Professor | Brian De Luna
TA | Bingyu Guo
Project
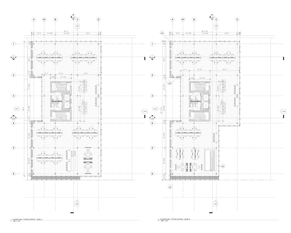
Seleted Revit Construction and detail drawings 1901 Walnut Street, Philadelphia, PA