Guest Bathroom Design

This project does not involve any structural changes.
•Plumbing - Shower valve, shower trim kit, drain replacement, no relocation, replace old bathtub with the new one.
•Demolition - remove old light fixtures, vanity, sink, toilet, tub, flooring, drywall
•Light fixture replacement - does not involve wiring, replace old light fixture with a new one. Positioning stays the same.



Option1
This project does not involve any structural changes.
•Plumbing - Shower valve, shower trim kit, drain replacement, no relocation, replace old bathtub with the new one.
•Demolition - remove old light fixtures, vanity, sink, toilet, tub, flooring, drywall
•Light fixture replacement - does not involve wiring, replace old light fixture with a new one. Positioning stays the same.

Keep the original floor tile the same


tile

Placement Side

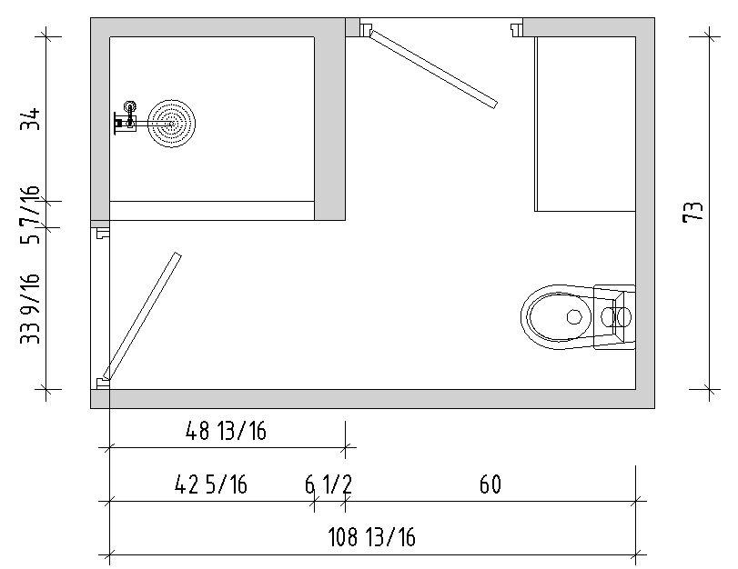
Shower Floor - Niche

TILE 12*24 - Shower Wall KEEPTHE SAME: - Original wood floor - Vanity - Toilet - Wall Paint






Fold Down Shower Seat


SHOWER SET

Confirm with Contractor:





WallMounted Fold Down Shower Seat









Option 2





Shower Floor - Niche


12*24
Shower Wall KEEPTHE SAME:

Original wood floor
Vanity - Toilet - Wall Paint







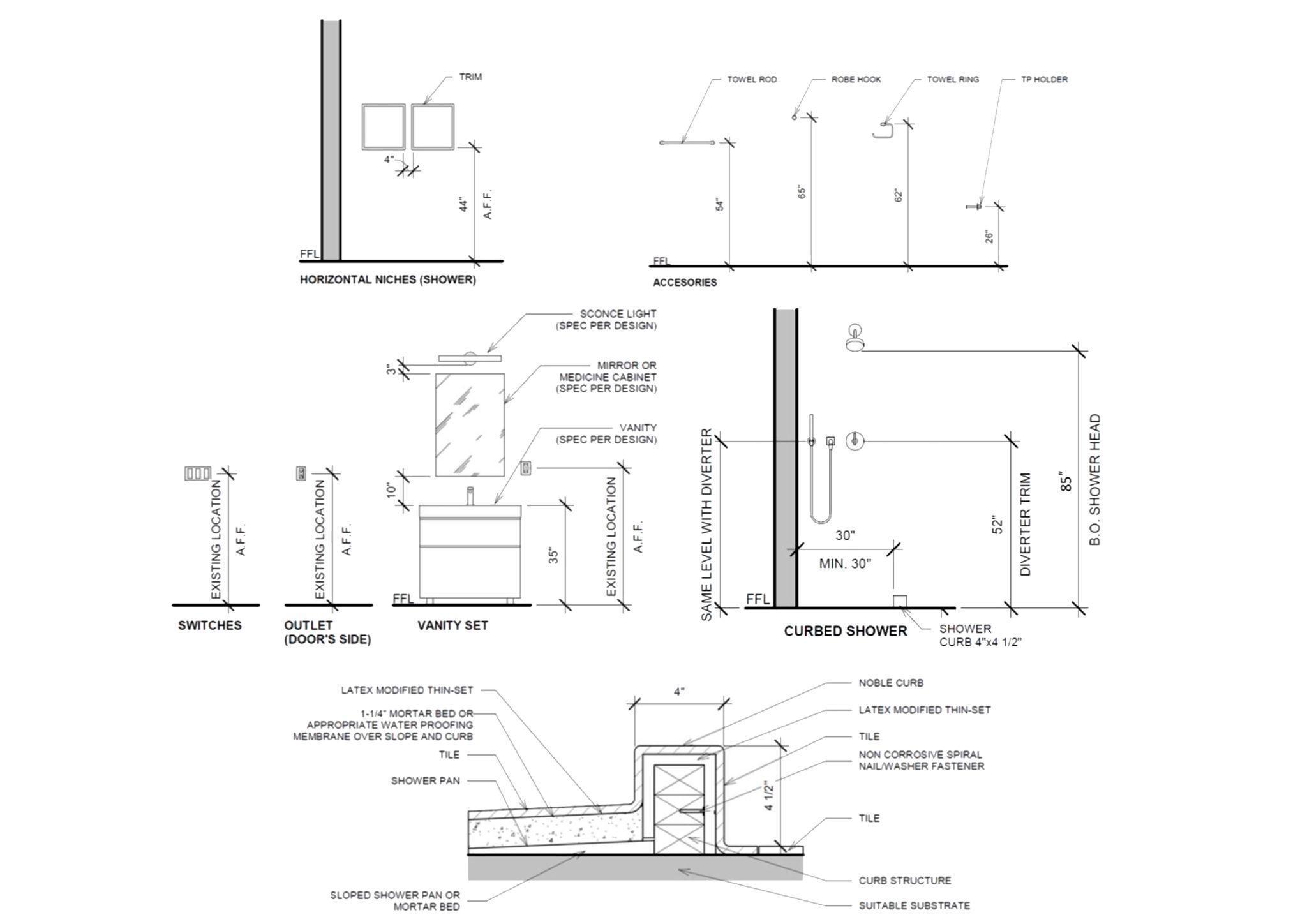
Typical mounting heights & dimensions
This project does not involve any structural changes.
•Plumbing - Shower valve, shower trim kit, drain replacement, no relocation, replace old bathtub with the new one.
•Demolition - remove old light fixtures, vanity, sink, toilet, tub, flooring, drywall
•Light fixture replacement - does not involve wiring, replace old light fixture with a new one. Positioning stays the same.


Typical mounting heights & dimensions




Licence number: 1070785

Christina interior designer amdconstruct.us