


Master’s thesis: Wave phenomenon / Frequency /New architecture environment 2024


Bachelor’s thesis: Urban regeneration/ /Building typologies/ Public space 2019

PROFESSIONAL



Hotel renovation project BKK, Thailand 2020


Residential project Kanagawa, Japan 2021

Civil and culture mixed use Sakaeo, Thailand 2020


Project brief :
This project focuses on using sound wave principles in architectural design and environmental control. It proposes a unique architectural system that considers sound a fundamental force shaping particle-based environments.
My primary responsibilities involved researching and creating physical prototypes of speakers, ultrasonic models, and digital simulations using Houdini and Unity C#. I gained hands-on experience in prototype building, interdisciplinary collaboration, technical development, project management, and teamwork.

The research aims to explore the complex relationship between frequency, vibration, and particles to achieve precise particle manipulation for creating dynamic and responsive spaces. The project investigated how frequency and vibration interact with particles and discovered unique natural frequencies associated with particle composition. Higher frequencies provided more precise control at a local scale. We studied standing waves in tubes and the effect of rigid boundaries in spheres, developing methods for manipulating particles in closed-loop systems with human interaction.
The goal was precise particle control using sound frequency. Ultrasound waves created controlled acoustic fields for structuring particles, tested through digital simulations to understand spatial formation. The research highlights the potential of sound frequency in orchestrating particle systems, advancing our understanding and control of our environment through technology.

In the material experiments phase, we discovered that the movement of particles can be affected by the frequency, depending on the material’s properties. Adjusting the frequency can alter the arrangement of the particles, offering the potential to create desired environmental conditions.
There are three types of close boundary prototypes: one axis, 2D Axis, and 3D Axis. We introduced boundary conditions as external parameters to examine their effects on particle behaviour. This experiment helped us understand the characteristics of sound waves between 80 to 200 Hz.
The ultrasonic frequency generated by the opposing speakers creates a standing wave pattern in the space between them. We conducted experiments to compare the behaviour of different states’ materials in an acoustic field. By aligning 256 ultrasonic emitters, we could generate multiple focal points, and a complicated algorithm enabled us to control either all the particles together or individual particles as required.

The Centre Pompidou was considered a competition site that presented architectural possibilities in 1971. We propose its volume as if it were a vast particle volume. Applying ultrasonic frequency force can control particle formation within this conceptual framework. We view the building volume as essentially empty, so any material inside can be subjected to the influence of an invisible force. This approach challenges the concept of invisible transformation and emphasises public engagement. The building’s potential lies in its volume, serving as both a display and engaging people as both audience and user. As its own curator, the building facilitates continuous change and transformation of information.

Architecture is evolving into an organic form, breaking away from the conventional function of forming fixed space. Physical boundaries of architecture have to be broken. Buildings should go beyond containers containing. Our research on architecture influenced by sound wave frequency is combined with technology to form and systematise a new architectural concept.

Project brief :
The project examines Privately Owned Public Spaces (POPS) in Silom, Bangkok, focusing on ownership ambiguity, stakeholder roles, and economic impact. It proposes architectural solutions for transforming this dense urban area into a dynamic, publicly accessible environment, exploring building typologies like row houses, hotel-office buildings, and malls.

The project aims to support public accessibility through architectural design, using three building typologies: row houses, hotel-office buildings, and malls. It also focuses on initiating a real POPS area in Bangkok’s old city center, emphasizing public-private negotiation and engagement.

The experiment aims to identify information contexts and analyse public and private ownership in the area. This will help determine the maximum volume allowed. The proposal seeks to create privately owned public spaces for each building type by cutting, inserting, and extending spaces, providing a more public-facing interface to benefit the private owner.

With the addition of a public interface to a high-rise building, particularly focused on the parking area, the design aims to connect it to the building. This new interface will create a commercial area, offering valuable open space while preserving the daily use of the existing mixed-use core.

Project brief :
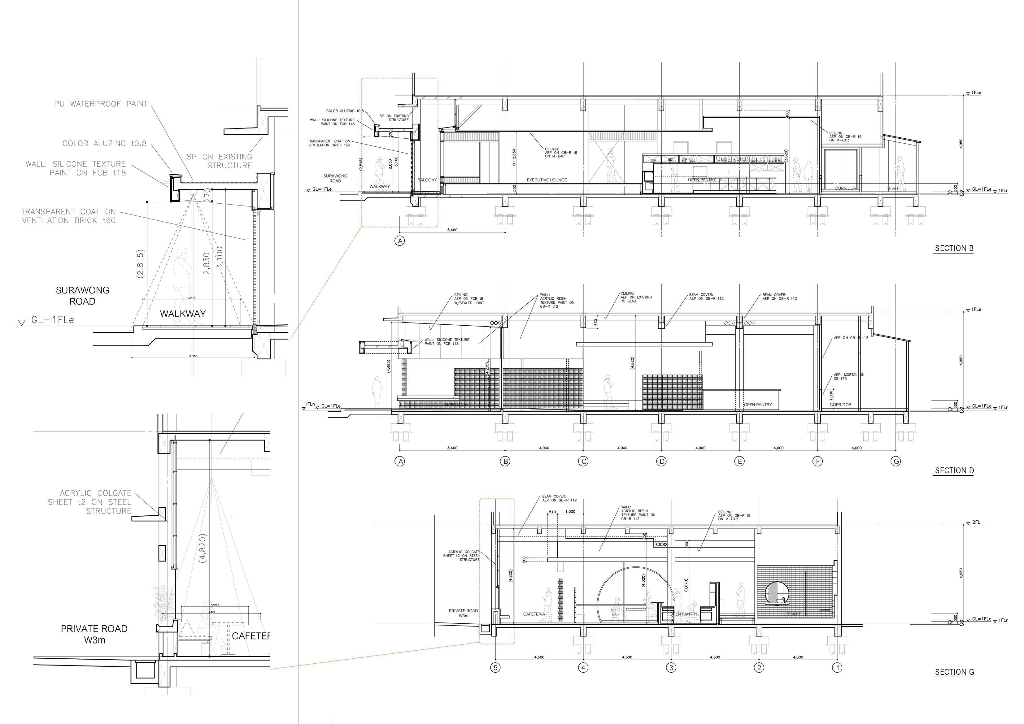
The Beanstalk Revitalisation project is located at the intersection of Charoen Krung and Sathorn. It aims to transform a hotel that has existed since the 1950s, enhancing its functionality and aesthetic appeal while preserving the structure’s original elements. The project seeks to create a peaceful retreat in the city, blending historical charm with contemporary design.

Surawong Road is one of Bangkok’s busiest roads. As a part of the renovation, there is a plan to incorporate a buffer area for the existing hotel to protect its lobby zone from noise and traffic. The design focused on creating the hotel’s facade as a screen element representing the hotel’s new characteristics and adding new materials to the building while ensuring the structure’s capacity and load are sufficient.

Various types of materials were studied for the facade of the building. The chosen material for the facade is ventilation brick due to its unique characteristics. This type of brick is made from clay and is burnt to a black colour, resulting in each cube having a different shade and durability. The perforated brick facade provides several benefits, including passive ventilation, shading, and unique aesthetics. The alignment and planning of the facade were also carefully studied to cater to the hotel users and the neighbourhoods.

The design posed the challenge of seamlessly integrating new construction details into the existing structure, requiring concurrent development of detailed drawings during site construction. Our approach prioritises retaining and incorporating original elements, serving as ornamental features within the modern context. Working on this renovation project proved to be a captivating and inspiring design process, where the fusion of the current structure with the new design unfolded as a fascinating exploration.


Based on the shadow patterns at different times of day and the shape of the roof, we determine the optimal height and shape for a house in Ikuta according to building regulations.

This project is designed for a young family’s first home, which aims to make the most of the site’s area. The idea was to create a house where the owner could enjoy natural light, wind, and the outdoors while being indoors. The client requested that all areas of the home be connected to care for their children and to prepare flexible unit rooms for when they grow up.
The building code in Ikuta specifies property boundaries and the number of hours that shadows can fall on neighbouring houses. The degree of sunlight was studied to determine the shadows and bring natural light into the house while ensuring that the house’s shape doesn’t cause any disturbance to the neighbours.
A void from the living space connects the common area on the second floor and the bedroom on the third floor. The second and third floors are connected by a stair hall that allows the client to enjoy while staying between the individual living and shared areas. The dimensions and materials were studied through detailed meetings with the client based on their needs.

Project brief :
The Crown Prince Hospital project aims to elevate medical standards in rural areas across 21 provinces. The design emphasises simplicity, durability, and applicability, featuring a central hub with health clinics, a commemoration hall, and recreational spaces. It addresses rural hospital challenges with phased improvements for better airflow and functionality. The standardised, cost-efficient design adapts to each location, integrating with natural elements

This workshop investigated the behaviour of piano wire, with a focus on its bending properties. Various aspects, such as flexibility, elasticity, tension, and transferability, were explored through experimentation. The ultimate achievement was developing a robust and flexible structure capable of assuming diverse orientations and generating a variety of morphologies.

From this project, I gained insights into material observation and experimentation. Additionally, I honed my skills in using digital tools such as Rhino and Grasshopper to simulate and create physical models.

This workshop focused on structure actuation. The goal was to design a structure that can transition between states, controlled by an Arduino-connected servo motor. Inspiration often came from biomimicry, with the octopus serving as a key influence.
In the final version, the servo motor connects to the structure’s end via wires, which function similarly to tendons. When the servo activates, the structure curls inward while simultaneously growing laterally. The reverse occurs when the structure relaxes. This project taught me how different shapes can be manipulated to form intricate dynamic structures, and I acquired new skills by working with various materials, components, and construction techniques.

The Trees Bank Pavilion project aims to improve visitor amenities and community engagement by constructing a flexible structure in a scenic setting surrounded by local houses, historical buildings, art, and pine trees.
The site hosts an annual music event that attracts many tourists but needs more visitor amenities. The project aims to introduce a versatile, adaptable structure to increase capacity and serve as a community hub for locals and a tourist hub during festivals. The versatile structure will act as an in-between space, guiding visitors to village
The Tree Bank is a system of portable units designed to transform temporary spaces and redefine the relationship between green areas and village public spaces. It aims to establish green areas as extensible natural entities and encourage garden ownership among villagers.

In addition to attracting tourists, the Tree Bank promotes the creation of meditation areas for older residents. This user-friendly system embraces the poetics of sacred space, making it ideal for meditation and contemplation.
Project brief :
The Linking Park project is a visionary initiative located in the heart of Kuala Lumpur. It aims to transform a vast botanical garden surrounded by towering skyscrapers into a vibrant hub that attracts locals and tourists. Despite being centrally located, the garden has remained unnoticed for a long time, prompting the need for revitalisation.


The project’s primary objective is to breathe life into the botanical garden and redefine its role in the urban landscape. The initiative also looks beyond its immediate goals. It introduces a ground breaking macro context, envisioning a network of interconnected parks across Malaysia, drawing inspiration from the country’s rich biodiversity and global counterparts. The strategic goal is to create a network of interlinked parks that utilise existing green without requiring additional land mass. The proposal anticipates future transportation evolution and seeks to redefine green spaces. This forward-thinking approach underlines the architect’s responsibility to anticipate outcomes, ensuring the sustainability and longevity of parks.

Project brief :
This project aims to enhance Khonkhan Airport by expanding functional areas and integrating sustainable design. It demonstrates my early skills in schematic prototyping and architectural drawing.
A primary focus is on maximising natural light and ensuring good ventilation. To achieve this, the airport’s roof is equipped with north-facing skylights that provide ample daylight to the departure hall. The hold rooms and retail spaces are also designed to be filled with natural light, creating a relaxing atmosphere for departing passengers.

Project brief :
This project aims to create an adaptable, integrated hospital and wellness centre in Bangkok to meet the unique needs of the city’s elderly population. It demonstrates my early skills in digital modelling and drawing.
The design blends functionality, adaptability, and a calming atmosphere. The hospital uses an innovative layering technique to adapt to various requirements while fitting the neighbourhood’s scale. This creates flexible spaces that can open or close based on specific functions. The wellness centre extends the hospital and prioritises open river views, providing a serene environment for elderly users to engage in rehab activities and enhance their well-being.

Screen Printing is the interest of mine because I find it fascinating; unpredictable outcomes are achieved through the process. This project aims to craft various shades and forms using three distinct colours: yellow, pink, and blue. I began by choosing this image from my Master’s thesis project and fine-tuned multiple parameters in the printing process, including frame alignment and protecting specific areas on the frame to create forms and patterns. This methodology delivers the skill of foreseeing the final image based on the process and introduces a unique approach for each print. The critical aspect lies in realising that, despite our efforts to control the outcome, the final result is unpredictable, leaving room for imagination fuelled by the technique and the printing process.
