CESAR AUGUSTO PORTFOLIO 2023

Page 1

Creative and detail-oriented professional Architecture student seeking an internship. I am inclined towards creating better environments and memorable experiences for people.

I believe that great design is the result of a collaborative effort along with innovative and sensitive values that respond to the needs of the user.

I look foward to pursuing a challenging and rewarding career with an organization that allows me to grow my knowledge and skills.

|CONTENTS
01 02 Museum of Contemporary Art (MOCA) Performing Arts and Dance Center 03 04 Architectural Collages AIA Mug Competition

/ MOCA - MUSEUM OF CONTEMPORARY ART

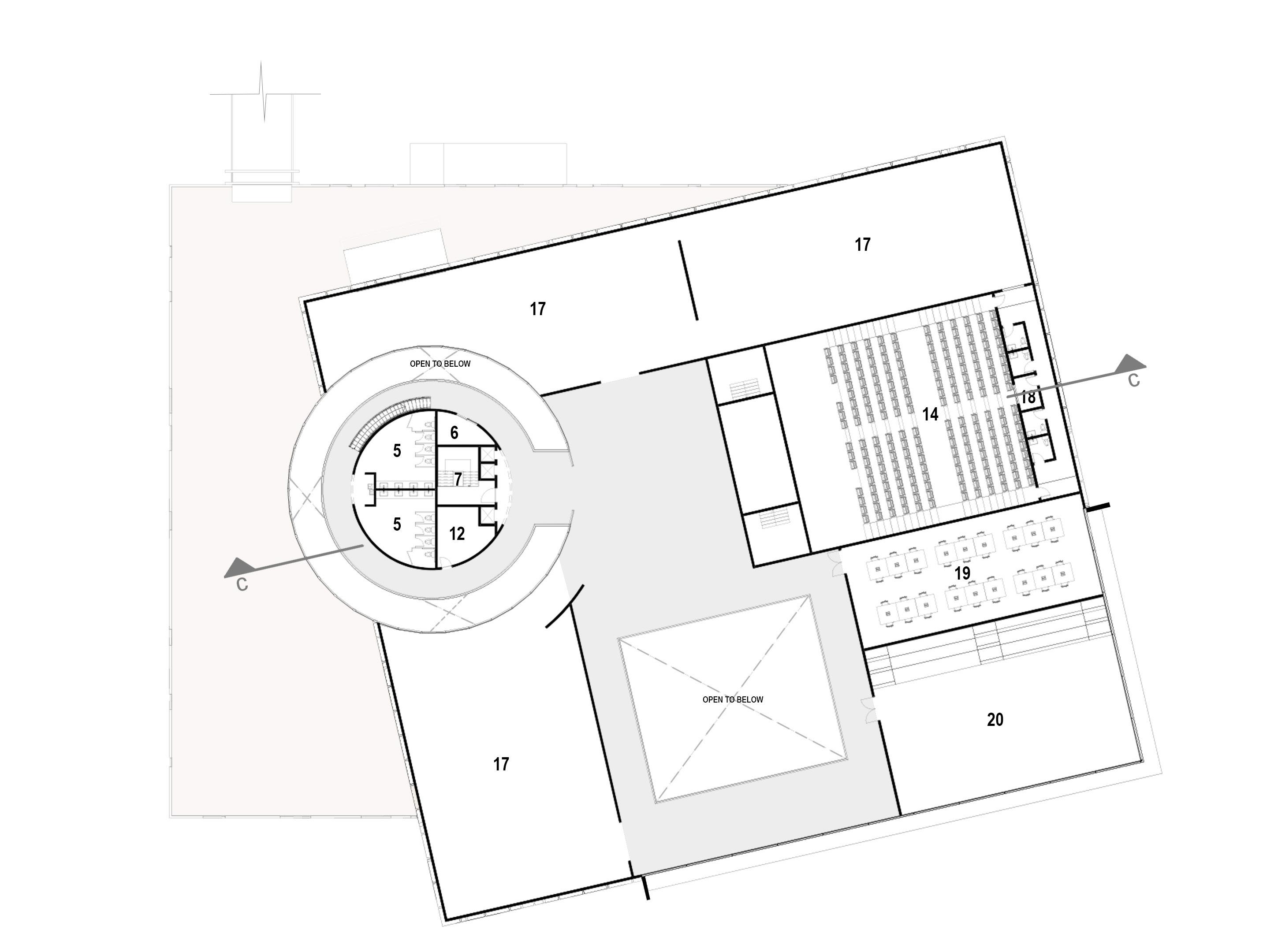
The board of directors of the Guggenheim Museum wishes to build a new museum in Old Town Alexandria, VA, near the waterfront. They feel that Old Town Alexandria is a strong attraction to visitors and tourists due to its appreciation of the arts and the many artists who reside and work in the area. MOCA is the idealization of their wishes. This project consists of a 4-story building with multiple gallery spaces, a 200+ seat lecture hall that will operate after regular gallery hours, a gift shop, cafe, cultural center, learning center, and a stunning outdoor sculpture garden. The idea is to have the museum function as a local community focal point, connecting residential and commercial activity.

01

The conceptual idea was to have two boxes overlap, bringing simplicity and function to the final shape of the building.

A second angled box provides balconies and welcoming spaces for after-hours use of the museum.

It also provides the creation of welcoming and inviting canopies.

Core placed to provide vertical circulation and access to upper levels.

The core made out of glass brings function and light into the building.

Final shape.

01 / MOCA - MUSEUM OF CONTEMPORARY ART
1. Receiving 2. Gift Shop 3. Cafe 4. Workshop Rooms 5. Restrooms 6. Storage Rooms 7. Stair Shaft 8. Mechanical Room 9. Main Lobby 10. Gathering Area 11. Painting Galleries 12. Multi-use Rooms 13. Administration 14. Auditorium 15. After Hours Lobby 16. Deck 17. Sculpture Galleries 18. Tech Room 19. Learning Center 20. Cultural Center
01 / MOCA - MUSEUM OF CONTEMPORARY ART
01 / MOCA - MUSEUM OF CONTEMPORARY ART
Vertical Circulation Sun Path
01 / MOCA - MUSEUM OF CONTEMPORARY ART A B

The Sculpture Garden

Its simple shape provides a flawless extension of the museum, penetrating the water and connecting indoors/outdoors. This ample space allows local artists to exhibit their work and create an inviting atmosphere. In addition, a ramp gives access to the ferry that goes towards Washington, D.C.

01 / MOCA - MUSEUM OF CONTEMPORARY ART
Main Lobby Painting Gallery
Mezzanine
01 / MOCA - MUSEUM OF CONTEMPORARY ART
Auditorium
01 / MOCA - MUSEUM OF CONTEMPORARY ART

02 / PERFORMING ARTS AND DANCE CENTER

The Flamenco is a dance that encompasses fluidity of movement, intensity of sound and color, and dynamic rhythm. This dance is what inspired my design for this Perminging Arts and Dance Center. The bright red dress with long flowing frills, often worn by flamenco performers, is a staple of this Spanish origin dance. The frills and brightness of the dress delivery an unforgettable sight that inspires those who are watching. This bright red, along with the fluidity of the dance’s movements, is the hallmark of my design.

02 / PERFORMING ARTS AND DANCE CENTER
02 / PERFORMING ARTS AND DANCE CENTER
02 / PERFORMING ARTS AND DANCE CENTER
02 / PERFORMING ARTS AND DANCE CENTER
02 / PERFORMING ARTS AND DANCE CENTER
02 / PERFORMING ARTS AND DANCE CENTER
02 / PERFORMING ARTS AND DANCE CENTER
02 / PERFORMING ARTS AND DANCE CENTER

03 / ARCHITECTURAL COLLAGES

HOUSE IN THE WOODS

Composition developed in photoshop using techniques such as masking, overlapping textures, patterns, and graphic elements for the final touch.

03 / ARCHITECTURAL COLLAGES
04
cesaraugusto.borgesd@udc.edu (571) 218-8662

Turn static files into dynamic content formats.

Create a flipbook
Issuu converts static files into: digital portfolios, online yearbooks, online catalogs, digital photo albums and more. Sign up and create your flipbook.
CESAR AUGUSTO PORTFOLIO 2023 by ce_saraugusto - Issuu