


MANOMET POINT ROAD - OCEANFRONT LEGACY PROPERTIES
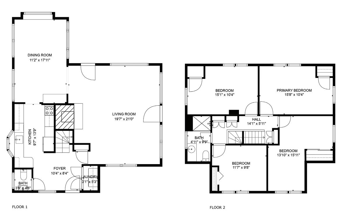
Rare opportunity. The most iconic oceanfront beach house on Historic Manomet Point. First time on the market in 100 years. This one-ofa-kind property offers unparalleled 150 feet of coastline frontage with over .46 combined acre (2 lots) with an expansive, manicured laws. Property is uniquely situated to offer kaleidoscope sunsets and sweeping, panoramic views of White Horse Beach, Seal Rock Estuary and Cape Cod Bay. Convenient beach access onto a pristine, sugarsand beach that rivals the Caribbean. Super Stone Seawall. Newer (2022) 6 bedroom Title V septic system. The outdoor deck and patio creates a spa like private sanctuary space complete with firepit and oversized cedar shower. The 3 sided wrap-around Victorian porch is a hallmark of this property. The detached 2 car garage and paneled basement with 12 foot ceilings adds to the amenities of this unique property. Newer underground electrical service and upgraded plumbing system. Income opportunity with long term rental history. Buildable lot area provides potential for significant expansion to create an impressive, flagship property. Perfect oceanfront family compound potential as 208 Manomet Point is zoned for a 2 family and has approved septic plans. Mooring potential as well just 1 property away from the boat ramp. Make this legacy property your own private paradise.



































































