Arquitetura & Aço nº 13 - Edifícios de Múltiplos Andares

Page 1

ARQUITETURA ARQUITETURA AÇO AÇO

Uma publicação do Centro Brasileiro da Construção em Aço número 13 março de 2008

Uma publicação do Centro Brasileiro da Construção em Aço número 13 março de 2008

Edifícios de múltiplos andares

Edifícios de múltiplos andares

&
sumário 08.14.12.16. 20. 24. 27. 30. Foto da capa: no Itaú Cultural, em São Paulo, o aço é solução estrutural e estética Arquitetura & Aço nº 13 março 2008 Foto Sidnei Palatnik 04.

04. A racionalização da estrutura metálica existente, aliada à inserção de novos elementos em aço, transformaram o edifício do Itaú Cultural, em São Paulo. 08. No Centro Empresarial Aeroporto, em Porto Alegre, a estrutura metálica permitiu a ampliação da área útil do edifício. 12. O Hotel Ibis Maringá, inaugurado em 2005, é o primeiro edifício de múltiplos andares do Paraná executado totalmente com estrutura em aço. 14. No Colégio

Objetivo de Ribeirão Preto, o aço é utilizado na estrutura do edifício e na ampla cobertura envidraçada do átrio central.

16. O Multimídia Trade Center , em São Paulo, é um exemplo da agilidade construtiva permitida pela estrutura em aço. 20. No edifício da Uninove, em São Paulo, a implantação em etapas permitiu a ocupação paralela às obras. 24. Memória: em Brasília, duas das mais conhecidas obras de Oscar Niemeyer são construídas com aço. 27.

Torre de escritórios na Marginal Pinheiros, em São Paulo, investe no aço como meio de atingir a sustentabilidade. 30.

Construção Industrializada constitui o diferencial do edifício Delta Ville, em Contagem, MG.

Cultura em evidência

P rojeto de reforma assinado P or r oberto L oeb transforma fachada , estrutura e circu L ações de centro cu Ltura L

Em consonância com o projeto arquitetônico do edifício, elementos em aço como o balcão de informações permeiam os interiores do Itaú Cultural (acima). O acesso principal do edifício foi realçado com a inserção de uma marquise metálica (à esquerda e no alto da página ao lado). No pé da página ao lado, destaque para a amplitude do espaço, obtida com a substituição dos pilares centrais por tirantes embutidos em painéis de alumínio composto

Fotos Eduardo Castanho

Ao elAborAr o projeto de reformA do Itaú Cultural, localizado na Avenida Paulista, em São Paulo, o arquiteto Roberto Loeb tinha como desafio fazer um projeto de arquitetura que cativasse

o público. Um logotipo em fibra de vidro com 5 m de balanço anuncia à cidade a presença do centro cultural que, depois da transformação, passou a contar com espaços mais abertos e integrados. Pilares, pórticos e caixilharias foram postos abaixo com a intervenção, que interferiu na estrutura metálica e racionalizou as circulações do edifício.

Eduardo Castanho Sidnei Palatnik

Uma das alterações mais significativas foi a criação de uma escadaria metálica branca junto à caixa de elevadores, na fachada principal do prédio. “O projeto exigiu um trabalho de engenharia delicado e competente”, explica Loeb, se referindo aos recortes feitos nas lajes protendidas para a passagem das novas circulações.

Outro desafio técnico foi liberar o térreo de dois pilares que ocupavam o centro da planta. Para tanto, foram instalados tirantes que percorrem uma viga metálica e transferem as cargas verticais para as treliças de aço do edifício.

Para Roberto Loeb, além de evidenciar o prédio na paisagem urbana, o projeto tinha como desafio adequá-lo às novas demandas

dos espaços expositivos de arte contemporânea, respeitando as características da construção original, projetada pelo engenheiro Ernest Mange. O vidro fumê da fachada foi substituído por placas de alumínio composto branco, cor que caracteriza também a estrutura, marquise de acesso e teto escamoteável no recuo lateral. “Além da cor absorver menos calor solar, o projeto original previa o branco”, conclui o arquiteto. (V.F.) M

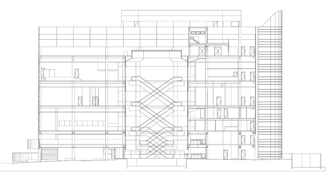
Acima, arena de múltiplo uso, localizada sobre a laje do auditório (veja corte na página ao lado), onde são realizadas oficinas, cursos e pequenos shows; a cobertura é retrátil, toda ela basculante em estrutura metálica coberta por lona Roberto Loeb e Associados Fotos Eduardo Castanho

Acima, o corte longitudinal destaca a nova escada metálica criada junto à caixa de elevadores, na fachada principal do edifício: sua construção, segundo o engenheiro calculista Jorge Zaven, foi a parte mais complexa de toda a obra, exigindo o corte das lajes protendidas.

Na página ao lado, embaixo, vista da nova escada no trecho rumo ao subsolo. Na seqüência, o restaurante; destaque para a cobertura em balanço, construída pelo prolongamento da laje do prédio.

Nesta página, abaixo, uma das salas de exposição; na seqüência, a nova fachada do edifício, que ganhou leveza com a estrutura metálica na cor branca, prevista originalmente no projeto

> Projeto arquitetônico: Roberto Loeb (Roberto Loeb e Associados)

> Colaboradores: Luis Capote, Nicola Pugliese, Francisco Cassimiro e Fernanda Pinha

> Área construída: 10 mil m²

> Aço empregado: ASTM A572

> Cálculo estrutural: Kurkdjian & Fuchtengarten

> Fornecimento da estrutura metálica: Icopel

> Execução da obra: Método Engenharia

> Local: São Paulo, SP

> Data do projeto: 2001

> Conclusão da obra: 2002

corte longitudinal

Tempo mínimo, aproveitamento

máximo

D as lajes ao fechamento , estrutura metálica é a solução para ampliar espaços e garantir quali D a D e e rapi D ez na construção D e e D ifício empresarial próximo a aeroporto D a capital gaúcha

 &ARQUITETURA AÇO

Para o fechamento, elaborou-se um sistema de painéis de concreto pré-fabricados, placas de granito fixadas por inserts metálicos e painéis compostos por duas chapas de aço tipo sanduíche, preenchidos com poliuretano expandido. Entre os painéis e placas, uma câmara de ar ventilada otimiza o isolamento térmico do prédio e, para reduzir a troca térmica nas aberturas, utilizou-se janelas de PVC com vidros duplos. Na página ao lado, o pórtico de entrada do edifício, executado em aço, remete à importância da estrutura metálica no projeto

PARA ERGUER UM EDIFÍCIO NO ENTORNO de aeroportos deve-se obedecer não apenas as diretrizes da prefeitura e do corpo de bombeiros locais, como também as determinações da Aeronáutica. A construção do Centro Empresarial Aeroporto, localizado nas proximidades do Aeroporto Internacional Salgado Filho, em Porto Alegre, teve, portanto, que cumprir tais normas e também levar em conta outros fatores, como prazo apertado e certas características do terreno. Mas todas estas condicionantes não foram um

&ARQUITETURA AÇO 9
Fotos Alvaro Moraes

empecilho para a edificação de um centro empresarial de 9 mil m2 Grande parte do sucesso deve-se ao aço, revela o arquiteto responsável Alvaro Moraes.

O aço possibilitou rapidez construtiva, canteiro reduzido de obras, maior precisão dos gastos e um melhor aproveitamento do terreno de pouco mais de 2,5 mil m2. O arquiteto revela como conseguiu ampliar a área útil do edifício: “Como as vigas da estrutura de aço são mais esbeltas que as de concreto, a economia na altura permitiu a construção de mais um pavimento de escritórios, com pé-direito adequado e com todas as instalações sobre o forro”.

Assim, mesmo com a limitação de altura (45 m) estabelecida pela Força Aérea Brasileira e apesar da existência do lençol freático muito elevado, que inviabiliza a construção no subsolo, a questão de espaço foi plenamente equacionada. Constituído por dois volumes – um vertical (uma torre com 12 pavimentos) e outro horizontal (uma base com três pavimentos) –, o desenho arquitetônico equilibra formas orgânicas e geométricas.

O pavimento térreo reúne foyer, café, sala de eventos, outros espaços sociais e áreas de serviço condominiais, além de abrigar parte do estacionamento. E para atender plenamente aos usuários do complexo de escritórios, o segundo e terceiro pavimentos também são constituídos basicamente de vagas para carros. Com isso, os três primeiros andares têm a função principal de acesso

à torre. E cada um dos nove andares de escritório, localizados do 4º ao 12º, possui área de 513,10 m2 e pavimentotipo com plantas quadradas idênticas, subdivididas em quatro quadrantes que proporcionam vista panorâmica da cidade.

Toda sua estrutura foi executada com perfis laminados e perfis soldados, em vigas e pilares. Além disso, todas as lajes são do tipo steel deck, com exceção das rampas de acesso ao estacionamento. De acordo com Alvaro Moraes, a utilização da estrutura metálica e dos componentes industrializados apresentaram vantagens claras para a obra, que foi finalizada em apenas 12 meses. Ainda segundo o arquiteto, o aço é um produto altamente competitivo no mercado da construção civil, indicado principalmente nos casos em que rapidez e qualidade são fatores determinantes. (i g.) M

O edifício, com dois volumes básicos, destaca-se na paisagem urbana. Abaixo, à extrema esquerda, em destaque a curva do volume horizontal que comporta vagas para carros e, logo abaixo o térreo que agrega áreas de convivência. Na seqüência, duas vistas da estrutura metálica, ainda em fase de construção

Acima, vista geral do edifício, com três andares de garagem e 12 pavimentos de escritório, que foi construído em um prazo de 12 meses. A execução rápida deveu-se à compatibilidade da tecnologia construtiva da estrutura de aço, com complementos industrializados, como: lajes steel deck, painéis compostos de aço tipo sanduíche, entre outros

> Projeto arquitetônico: Alvaro Moraes

> Colaboradores: Gustavo Bassani, Daniel Moraes, Giovana Zereu, Jeane Alves e Leticia Barbosa

> Área construída: 9.622 m²

> Aço empregado: ASTM A572

> Cálculo estrutural: Ildony Bellei (IHB Engenharia e Consultoria S/C Ltda)

> Fornecimento e montagem da estrutura metálica: Medabil

Sistemas Construtivos

> Execução da obra:

Construtora Tedesco

> Local: Porto Alegre, RS

> Data do projeto: 2003

> Conclusão da obra: 2005

&ARQUITETURA AÇO 11
Fotos Alvaro Moraes

Referência

E RGUIDO COM RECURSOS TECNOLÓGICOS DE ÚLTIMA GERAÇÃO , O HOTEL I BIS M ARINGÁ INAUGURA O USO DO AÇO ESTRUTURAL EM EDIFÍCIOS DE MÚLTIPLOS ANDARES NO P ARANÁ

O INVESTIMENTO INICIAL pode parecer mais alto, mas quem aposta em sistemas construtivos industrializados garante: ao longo da obra, o retorno é garantido. É o caso dos arquitetos paranaenses Manuel Dória, José Vicente Lopes e Waldeny Fiuza, do escritório Dória Lopes Fiúza Arquitetura, que estão acostumados a lançar mão de soluções pioneiras – e exemplares – para garantir obras mais rápidas, sem desperdícios de materiais e livres de falhas de execução.

O hotel Ibis Maringá, assinado pelo trio, seguiu à risca este conceito. Da escolha dos materiais à seleção de mão-de-obra, todos os detalhes foram pensados para otimizar os recursos disponíveis e aumentar a produtividade no canteiro. Segundo o arquiteto Waldeny Fiuza, a opção pela estrutura metálica foi fundamental para cumprir este objetivo – além de render ao empreendimento o título de primeiro edifício de múltiplos andares do estado a adotar o aço como solução estrutural.

O detalhamento foi feito com um software para estruturas que permite a criação de maquetes eletrônicas tridimensionais e propicia um minucioso detalhamento da estrutura, detectando quaisquer interferências ou desajustes entre os elementos que a compõem.

Para os revestimentos, a escolha também recaiu sobre as solu-

ções industrializadas. As divisórias internas são do tipo drywall, com painéis de gesso acartonado, propiciando flexibilidade nas configurações do hotel. As paredes externas, de blocos de concreto celular, são mais leves e fáceis de montar do que a alvenaria comum, o que alivia a carga sobre as fundações e dispensa equipamentos pesados para transporte e fixação. Já o piso destaca-se pelo sistema de controle acústico, constituído a partir de laje maciça moldada in loco e recheada por uma manta de microfibras de elastômeros.

Para acomodar o extenso programa exigido pela rede Ibis em um terreno de 26x40 m, a estratégia foi investir na verticalização: no total, foram executados 11 pavimentos (nove andares e

12 &ARQUITETURA AÇO
local

> Projeto arquitetônico: Manuel Dória, José Vicente Lopes e Waldeny Fiuza (Dória Lopes Fiuza Arquitetura)

> Colaboradores: Gustavo Bassani, Daniel Moraes, Giovana Zereu,

cutados 11 pavimentos (nove andares e dois subsolos), que totalizam 6 mil m2 de área construída. A torre, estreita e comprida, chama ainda a atenção pela fachada de linhas contemporâneas e marcantes, que exibe elementos aparentes da estrutura metálica – inclusive os contraventamentos – pintados na cor vermelha. Entregue em apenas 12 meses, o empreendimento foi inaugurado em agosto de 2005. (C.P.) M

Ao lado, corte longitudinal: o estudo minucioso da estrutura, realizado com software de última geração, foi essencial para o ajuste perfeito entre as vigas e perfis metálicos. Acima, os registros de um canteiro limpo e organizado. Na página ao lado, o resultado final: em poucos meses, o Paraná ganhou seu primeiro grande edifício em aço

Jeane Alves e Leticia Barbosa

> Área construída: 5.600 m²

> Aço empregado: ASTM A36

> Cálculo estrutural: Celso Pasqual

> Fornecimento e montagem da estrutura metálica: Brafer

> Execução da obra: Zenith Engenharia Ltda.

> Local: Maringá, PR

> Data do projeto: junho de 2001

> Conclusão da obra: junho de 2002

corte longitudinal

&ARQUITETURA AÇO 13
Fotos divulgação

Parceria

inteligente

M ESCLANDO AÇO E CONCRETO PARA USUFRUIR AO MÁXIMO AS VANTAGENS DE CADA MATERIAL , PROJETO DE COLÉGIO NO INTERIOR DE S ÃO P AULO PRESENTEIA OS ALUNOS COM ESPAÇOS SOB MEDIDA PARA APRENDER ... E VIVER

O partido do colégio foi definido a partir de quatro volumes. Ao norte e ao sul, pavilhões brancos (metálicos) acomodam as salas de aula. Nas laterais da construção, os volumes azuis (em concreto) abrigam os anfiteatros. Os quatro módulos foram implantados ao redor de um vazio central com jardim, que funciona como área de convívio (à esquerda)

COM PROGRAMAS CADA VEZ MAIS extensos e complexos, as edificações destinadas aos ensinos médio e fundamental começam a ganhar ares de universidade. Os novos projetos vão muito além do esquema pátio/salas de aula e surgem com ginásios poliesportivos, anfiteatros, praça de alimentação e, sobretudo, amplas áreas de convívio. Por isso mesmo, pedem prédios maiores e configurações contemporâneas.

Com base nesta tendência, o arquiteto Luiz César Barillari definiu o partido arquitetônico do Colégio Objetivo de Ribeirão Preto (SP). Pertencente ao mesmo grupo educacional da Unip (Universidade Paulista), o empreendimento foi construído no campus da instituição, que já contava com dois blocos, também desenhados por Barillari.

A opção pela organização do edifício em quatro blocos (dois em aço e dois em concreto) ajudou a criar uma afinidade construtiva entre o novo volume e os prédios preexistentes, reforçando a identidade visual do conjunto. Além disso, segundo o arquiteto, o aço foi fundamental para garantir agilidade na execução, o que era uma das maiores exigências do cliente.

Formalmente, o programa foi distribuído em quatro módulos: dois metálicos e dois convencionais. O aço foi o

14 &ARQUITETURA AÇO

Segundo o plano diretor do campus, desenvolvido pelo próprio arquiteto, o projeto deveria seguir alguns conceitos básicos, como modulação, estrutura metálica e instalações aparentes. A estrutura em aço ganhou proteção com tinta intumescente e, os fechamentos de alvenaria, com tinta acrílica. Na cobertura, foram utilizadas telhas de aço pré-pintadas, com alto desempenho termoacústico

escolhido para dar vida aos pavilhões principais – implantados ao norte e ao sul – que acomodam as instalações administrativas e 24 salas de aula. A leste e a oeste, surgem os volumes de concreto, erguidos neste material para facilitar a implantação das arquibancadas dos oito anfiteatros que compõem o setor.

No centro do colégio, um átrio ajardinado recebe iluminação zenital através de uma cobertura envidraçada, montada sobre estrutura em aço. A solução amplia a área de convívio e qualifica os espaços destinados ao público jovem. Na fachada, brises metálicos propiciam claridade também para as salas de aula, além de reforçar a ventilação natural, essencial ao clima abafado do interior paulista.

Resolvido em cinco andares (térreo, três pavimentos-tipo e subsolo), o edifício totaliza 10 mil m2 de área construída e, apesar das medidas generosas, foi erguido em menos de quatro meses. Tudo para garantir a volta às aulas o mais rápido possível. (C.P.) M

> Projeto arquitetônico: Luiz César Barillari (Barillari Arquitetura e Planejamento)

> Colaboradores: Marcus Cley, Fabiana Barillari Franchi, Rafael Lisboa Péra e Christiano dos Santos Pessoa

> Área construída: 10 mil m²

> Aço empregado: ASTM A36, ASTM A572 GR50

> Cálculo estrutural: Eng. Waldecyr Pereira

da Silva (A36 – Projetos Industriais)

> Fornecimento da estrutura metálica: MCM e A36 – Projetos Industriais

> Execução da obra: Marcelo Costa Construções

> Local: Ribeirão Preto, SP

> Data do projeto: janeiro de 2002

> Conclusão da obra: abril de 2002

&ARQUITETURA AÇO 15
Corte transversal Fotos divulgação

Ritmo

A AGILIDADE DA CONSTRUÇÃO METÁLICA FOI A ESCOLHA ACERTADA PARA ERGUER, EM MENOS DE SEIS MESES, O MONUMENTAL MULTIMÍDIA TRADE CENTER – UM DOS MAIORES CENTROS DE NEGÓCIOS FONOGRÁFICOS DA A MÉRICA L ATINA

A linha do tempo à esquerda mostra a rapidez com que a estrutura metálica, fornecida e executada pela Medabil, foi erguida: todo o processo durou menos de dois meses, com o canteiro funcionando 24 horas por dia, apenas com folga aos domingos. Durante este período, a obra consumiu 1.300 toneladas de aço ASTM A572 GR50 para as vigas e perfis, e mais de 200 toneladas de steel deck, para as lajes. Para a vedação da estrutura, a escolha recaiu sobre painéis pré-moldados de concreto, com acabamento em granito. Além de agilidade, a combinação de sistemas trouxe economia e organização à obra

03/2004 05/2004
acelerado

Voltada para o sul, com pouca incidência de raios solares, a fachada acima pôde ganhar uma face envidraçada, sem preocupação com a carga térmica. O prédio foi construído ao redor de uma imponente paineira de 10 m: a idéia inicial era eliminá-la, mas durante o desenvolvimento do projeto a equipe percebeu que poderia conservá-la em um vazio central

PROGRAMA COMPLEXO, CRONOGRAMA APERTADO: diante deste duplo desafio, a equipe de arquitetos do escritório paulista Alcindo Dell’Agnese tomou duas importantes decisões ao receber a encomenda de uma nova sede para o grupo A Universal Fonográfica. A primeira foi iniciar a construção do edifício, que recebeu o nome de Multimídia Trade Center, com o projeto ainda em fase de desenvolvimento. A segunda, fundamental para que esta ousada estratégia funcionasse, foi optar pela estrutura metálica, o que garantiu extrema precisão e rapidez à obra.

Multifuncional, o prédio deveria reunir o Museu da Música Brasileira, uma megaloja de CDs e DVDs, gravadora, estúdio, área para shows e eventos, teatro, escritórios, centro de distribuição de produtos, restaurante e, ainda, uma área de lazer para mais de 350 funcionários. Para atender a necessidades tão diferentes, o programa foi desenvolvido em seis pavimentos e dois mezaninos, chegando a quase 20 mil m2 de área total construída. O prazo era mínimo: apenas oito meses, para a concepção e a execução do projeto.

A largada foi dada em março de 2004. Em menos de 60 dias, a estrutura metálica já estava pronta. Entre vigas e pilares, foram consumidas 1.300 toneladas de aço, e mais 200 toneladas de steel deck. Para o fechamento da estrutura, optou-se pela fixação de painéis pré-moldados de concreto. Segundo os arquitetos, esta combinação foi essencial para a racionalização do canteiro, implantado em um terreno exíguo – de pouco mais de 6 mil m2 – na Marginal

&ARQUITETURA AÇO 17
Fotos Arq. Claudia Jacoponi

> Projeto arquitetônico: Alcindo Dell’Agnese, Cláudia Jacoponi e Jacqueline Paro (Alcindo Dell’Agnese Arquitetos Associados)

> Colaboradores: Cláudio Jadão, Luiz Eugênio Ciampi, Rita Schiripa e Gisela Maffei

> Área construída: 17.300 m2

> Aço empregado: ASTM

A572 GR50

> Cálculo estrutural: Eng. Fabiano Fincatto (Medabil)

> Fornecimento e montagem da estrutura metálica: Medabil

> Execução da obra: Racional Engenharia

> Local: São Paulo, SP

> Data do projeto: março de 2004

> Conclusão da obra: novembro de 2004

Tietê, em São Paulo. “Ao chegarem as peças, a montagem era muito rápida e a obra manteve-se sempre organizada”, lembram os profissionais.

A corrida contra o tempo foi vencida: o prédio foi entregue em novembro de 2004, atendendo às expectativas do cliente. Quanto à qualidade dos espaços, a missão também foi cumprida: além de acomodar o extenso programa de maneira organizada e funcional, o edifício ainda chama atenção pelo dinamismo da fachada de linhas curvas, pela amplitude e iluminação dos espaços internos e pelas soluções relacionadas ao conforto acústico – como caixilhos insulados e vidros duplos –, imprescindíveis a um edifício destinado exclusivamente ao universo musical. (c.P.) M

Os cinco pavimentos do Multimídia Trade Center organizam um programa de necessidades que compreende gravadora, estúdio, lojas, escritórios, call center, bar, teatro, restaurantes e centro de distribuição e estocagem de produtos. Para garantir o bem-estar dos visitantes e funcionários, a amplitude dos ambientes e a iluminação natural foram priorizadas

18 &ARQUITETURA AÇO
Arq. Claudia Jacoponi

Obra rápida e discreta

ANTES MESMO DE INICIAR o anteprojeto do campus Memorial da América Latina do Centro Universitário Nove de Julho (Uninove), os arquitetos Marcos Paravela e Maria Regina Lagonegro já sabiam como seria o sistema estrutural do edifício: em aço. Devido às suas vantagens construtivas, a estrutura metálica é comum a todos os edifícios da rede, embora a linguagem arquitetônica se modifique em cada caso.

Com 15 pavimentos – incluindo três subsolos – o prédio, é sustentado por perfis de aço aparafusados e utiliza lajes em steel deck (lajes-fôrma). A opção por este sistema construtivo assegurou uma

obra rápida e, dessa forma, o retorno do investimento num tempo curto.

O campus entrou em funcionamento mesmo antes de estar totalmente concluído. Daí a importância da execução do prédio em etapas. “A obra deveria ter seus prazos e custos otimizados, aproveitando o máximo do coeficiente do terreno, trazendo materiais e tecnologia contemporâ-

E M UNIVERSIDADE PAULISTANA , A OPÇÃO PELA ESTRUTURA EM AÇO FAVORECEU A EXECUÇÃO DO PRÉDIO EM ETAPAS E SUA OCUPAÇÃO SIMULTÂNEA À OBRA
20 &ARQUITETURA AÇO

Acima, as fachadas principal e lateral do edifício, com fechamento em vidro e painéis de alumínio composto. Na página ao lado, vista do hall de circulação dos pavimentos-tipo, com lajes tipo steel deck e pilares metálicos revestidos com alvenaria para proteção contra fogo: destaque para os grandes vãos e espaços generosos permitidos pela estrutura em aço

neos e a possibilidade de uma ocupação simultânea ao andamento da obra”, afirmam os arquitetos, cujo grande desafio foi desenvolver o projeto em apenas dois meses.

Além de dar estabilidade à estrutura, os contraventamentos metálicos caracterizam a composição arquitetônica, marcando, sobretudo, os espaços internos. Externamente, a universidade se destaca pela volumetria horizontalizada, cuja maior fachada poderia ser descrita como “uma grande lâmina curva que é secionada em sua área central por uma estrutura metálica composta por vigas alveolares que fazem parte do contraventamento”, nas palavras dos

&ARQUITETURA AÇO 21
Fotos Handmade Design

Na página ao lado, vista do vão criado para trazer ventilação e luz natural ao hall de distribuição dos elevadores, em todos os pavimentos; o contraventamento em "X" e os perfis “I” alveolares assumem função estética no projeto. À direita, vista da biblioteca, que apresenta um contraventamento bastante original; segundo o arquiteto Marcos Paravela, esta é a primeira obra da Uninove que apresenta este tipo de solução

arquitetos. O vão central que percorre verticalmente o edifício leva luz natural ao hall de circulação dos pavimentos.

A horizontalidade do prédio é reforçada pelas fachadas, que expõem uma seqüência de linhas simétricas horizontais resultantes do uso intercalado de panos de vidro (structural glazing) e faixas curvas revestidas com painéis de alumínio composto. Apesar dos componentes industrializados, sistemas construtivos tradicionais, como a alvenaria, foram utilizados como vedação parcial das fachadas e para proteger as colunas da edificação contra o fogo. Também foram empregados outros métodos de proteção contra incêndio. Nas salas de aula, por exemplo, a alma das vigas foi protegida com lã de rocha e as abas com tinta intumescente. Já nos subsolos, os perfis foram revestidos com argamassa projetada a base de gesso, fibras de celulose e cargas inertes. (V.F.) M

> Projeto arquitetônico: Marcos Paravela e Maria Regina Lagonegro (Studio Brasil Arquitetura e Design)

> Colaboradores: Alessandra Hurtado e Vanessa de Carvalho Junqueira

> Área construída: 30 mil m²

> Aço empregado: ASTM A572 GR50

> Cálculo estrutural: Bruno Cugini (BMC Engenharia e Construção)

> Fornecimento da estrutura metálica: BMC Engenharia e Construção

> Execução da obra: CJW Engenharia

> Local: São Paulo, SP

> Data do projeto: 2000

> Conclusão da obra: fevereiro de 2006

&ARQUITETURA AÇO 23
Fotos Handmade Design 1. Laboratórios 2. Hall dos elevadores 3. Salas de aula
3 3 3 3 3 3 3 3 3 3 3 3 3 3 3 3 3 3 3 3 3 3 3 3 4 22 4 1 1 1 1 1 1
4. Hall

O açO e o maiOr arquiteto brasileiro

N o fi N al da década de 1950, o scar N iemeyer tira partido do aço para cumprir os prazos de co N strução do c o N gresso N acio N al e e spla N ada dos m i N istérios , edificações de seu mais importa N te trabalho , b rasília

Ousadia, tenacidade, inventividade. Estas três palavras descrevem o processo pelo qual passou a criação de Brasília, há 51 anos. No centro-oeste brasileiro, praticamente inóspito no ano de 1957, o arquiteto Oscar Niemeyer colocou em prática sua nova concepção estética, adquirida após uma longa viagem em contato com as grandes edificações européias, sem, contudo, renunciar aos princípios fundamentais que até então nortearam sua obra: a exploração da flexibilidade do concreto e a linguagem incessantemente renovada por sua fértil imaginação plástica.

O trabalho de Niemeyer em Brasília pode ser dividido em três categorias distintas: os palácios de pórticos, os edifícios compos-

24 &ARQUITETURA AÇO
Fotos Marcelo Micali

tos por jogos de volumes simples e os edifícios religiosos de planta centrada. Destes grupos, o mais inesperado e homogêneo em sua inigualável originalidade é o primeiro. E é no segundo grupo que se encontra um aspecto também inesperado na obra do mais renomado arquiteto brasileiro: o aço.

Defensor do uso do concreto na arquitetura, Niemeyer tirou partido pela primeira vez das estruturas em

aço ao se defrontar com o prazo exíguo da construção da nova capital do Brasil. Um dos seus primeiros projetos, então, foi o Brasília Palace Hotel, inaugurado em 1958 e cujas estruturas metálicas contabilizaram 905 toneladas de aço, fabricadas em Volta Redonda e transportadas de trem até Anápolis (GO) e por rodovia até Brasília, onde foram montadas até dezembro de 1957.

A segunda vez em que as estruturas metálicas novamente foram necessárias para que ele cumprisse o compromisso de construir Brasília em prazo recorde foi para agilizar as obras dos Ministérios e do Anexo do Congresso Nacional. Fabricadas nos Estados Unidos pela Bethleheim Steel, as estruturas tinham 15 mil toneladas e desembarcaram no porto do Rio de Janeiro. Para chegarem até o canteiro de obras, percorreram o mesmo caminho daquelas utilizadas no Brasília Palace Hotel e a responsabilidade da montagem ficou a cargo da empresa norte-americana Reymond Pill, especializada em fundações e que no Brasil se estabeleceu sob o nome de Construtora Planalto.

Devido ao pouco conhecimento sobre a edificação em aço na época, a maior dificuldade encontrada por Niemeyer foi o despreparo da mão-de-obra, a qual, diante das dificuldades da montagem da estrutura, precisou receber, de forma quase que precária, os rudimentos da técnica de construção em aço.

A obra de maior complexidade foi o edifício do Anexo do Congresso Nacional, com 29 pavimentos, iniciada quando as obras do edifício principal já estavam bem adiantadas e que recebeu estruturas metálicas no lugar das de concreto para agilizar o processo.

Na Esplanada dos Ministérios, situada de ambos os lados do Eixo Monumental, foram dispostos os 11 primeiros edifícios ministeriais, todos com estrutura metálica. Cada edifício compreende, além do térreo, mais oito pavimentos-tipo, com 16 mil m² de área construída, na qual foram empregadas 1.080 toneladas de estruturas metálicas.

A história de Brasília é, portanto, a prova da ousadia, tenacidade e inventividade de Oscar Niemeyer, que visualizou o aço como meio para chegar aos seus objetivos construtivos. Afinal, ele afirmou que “antigamente quando se terminava uma estrutura via-se apenas lajes e apoios. A arquitetura vinha depois, como uma coisa secundária e eu queria o contrário, essa junção das estruturas com a arquitetura; queria que elas nascessem juntas e fossem bastante sem nenhum detalhe para demonstrar o projeto de arquitetura”.(d.P.) M

Em sentido horário: o Congresso Nacional hoje e a construção do edifício anexo com 29 pavimentos, que recebeu estrutura em aço quando as obras já haviam se iniciado; na seqüência, as obras dos prédios ministeriais, que receberam 1.080 toneladas de estruturas metálicas e a Esplanada dos Ministérios nos dias atuais

&ARQUITETURA AÇO 25
memória Fotos Arquivo Público do Distrito Federal

Maquetes

Com localização privilegiada, em um dos maiores centros financeiros da cidade de São Paulo, o WTorre Nações Unidas deverá ser inaugurado em julho de 2008. O projeto elaborado pelo escritório Edo Rocha Espaços Corporativos agregou conceitos da chamada “construção verde”, em que o desenho e a funcionalidade dos edifícios visam a eficiência energética, uso racional da água, entre outros quesitos

O PÇÃO PELA ESTRUTURA METÁLICA EM NOVO EMPREENDIMENTO CORPORATIVO NA CIDADE DE S ÃO P AULO É FORTE ALIADA NA BUSCA DE UM PADRÃO INTERNACIONAL DE SUSTENTABILIDADE
Uma escolha
sustentável
eletrônicas Edo
ativos
Rocha Espaços Corpor

> Projeto arquitetônico: Edo Rocha

> Colaboradores: Mauro Halluli (coordenação de projeto), Anderson Oliveira, Andrea Lopes, Fernanda Boggi, Marcio Leme, Paula Oliveira (colaboração), Márcia Rizzo (coordenação de arquitetura de interiores), Camila Gama e Daniela Oliveira (colaboração)

> Área construída: 63.316,76 m2

> Aço empregado: ASTM

A572 GR50

> Cálculo estrutural: Janaína Soraya Machado e equipe da Codeme Engenharia/VMC

> Fornecimento da estrutura metálica: Codeme Engenharia / VMC

> Execução da obra: WTorre Engenharia

> Local: São Paulo, SP

> Data do projeto: dezembro de 2006

> Data de conclusão da obra: junho de 2008 (previsão)

Abaixo, corte longitudinal do complexo corporativo: à esquerda, a torre com 13 andares e, à direita, a torre com dez andares. Acima, as fotos mostram detalhes construtivos das passarelas estruturadas em treliças de aço que interligam os prédios e os funde em um único conjunto harmônico. A estrutura em aço permite vencer os vãos de maneira precisa, uma vez que as peças são projetadas, fabricadas e numeradas uma a uma

28 &ARQUITETURA AÇO
corte longitudinal
Fotos Mauro Halluli

ECONOMIA DE RECURSOS, PRESERVAÇÃO ambiental, reciclagem...

Há algum tempo estes e outros conceitos já não são temas restritos apenas a ecologistas. Diversos segmentos industriais passaram a adotá-los, seja para atender a um novo perfil de consumidor ou devido à conscientização de questões como o aquecimento global. No setor da construção civil não é diferente. A “onda verde” que começou nas residências, aos poucos começa a ganhar novos adeptos do setor corporativo. Um exemplo disso é o projeto que está sendo executado pela WTorre Engenharia em São Paulo.

Batizado de WTorre Nações Unidas, por estar localizado na avenida de mesmo nome, o projeto concebido pelo escritório Edo Rocha Espaços Corporativos segue padrões da chamada “construção verde”, que tem entre suas premissas a otimização energética e a minimização do impacto ambiental. Tanto assim, que o empreendimento busca conquistar a certificação internacional LEED (Leadership in Energy and Environmental Design) junto ao USGBC (United States Green Building Council).

Em um terreno de 8.929,50 m2, totalizando 63.316,76 m2 de área construída, os edifícios que compõem o empreendimento são padrão AAA, de estrutura com solução mista (pilares mistos de aço e concreto e vigas de aço), com lajes em steel deck. Segundo o arquiteto Mauro Halluli, da Edo Rocha, a diretriz construtiva adotada veio atender às necessidades de mercado em termos de eficiência energética, otimização das instalações, reuso de água, geração de energia para consumo próprio e demais conceitos de sustentabilidade. Neste sentido, a escolha do aço deveu-se não apenas ao prazo exíguo e à maior precisão da obra, como também ao menor desperdício de material.

Além de estar presente no sistema estrutural do edifício, o aço foi utilizado para a execução dos subsolos, revela a arquiteta Rosa Pezzini, do grupo WTorre. “Esta opção, apesar de ter o custo um pouco mais elevado que o de uma estrutura em concreto, possibilitou maior rapidez”, explica. O material é utilizado ainda na fachada (na qual elementos com padrão de madeira serão fixados em subestruturas de aço galvanizado), no revestimento em aço inoxidável dos pilares do térreo e nas marquises e peças de fixação (treliças metálicas) nos áticos.

Constituído por dois edifícios – o primeiro com 13 andares e o segundo com dez – interligados por passarelas estruturadas em treliças de aço que vencem um vão de 20 m, o complexo deverá ser concluído em junho deste ano. (I.G.) M

Adotou-se o sistema construtivo misto: vigas metálicas e pilares mistos de aço e concreto. As formas metálicas reaproveitáveis permitiram a execução do concreto com precisão e economia. Segundo os responsáveis pela obra, o aço foi a opção acertada para o cumprimento dos prazos exíguos, execução de uma obra “limpa e seca”, de forma mais industrializada. Nas fotos é possível, ainda, observar as lajes tipo steel deck que, por serem mais leves, permitiram a redução do peso da estrutura

&ARQUITETURA AÇO 29
Fotos Mauro Halluli

A sustentável leveza

da industrialização

A o se decidir pel A utiliz A ção de tecnologi A s construtivA s como A estrutur A em A ço , A c A stro p imentA ergue , em m in A s g er A is , edifício de A pA rtA mentos em tempo recorde

Introduz I r gradat I vamente a industrialização em suas obras. Este foi um dos objetivos da Construtora Castro Pimenta ao tirar partido das estruturas em aço e do drywall em seus projetos. Um dos primeiros exemplos desta aplicação da construtora mineira, que atua na Grande Belo Horizonte há quase duas décadas, é o edifício residencial Delta Ville, localizado em Contagem.

Iniciado em 2003 e finalizado em 2005, o edifício é considerado um dos mais industrializados do Brasil, e contou com parceria técnica da Usiminas em várias fases da construção (da análise do peso da obra e quantidade de aço, até a escolha do fabricante). "A etapa da estrutura, fachada e esquadrias levou apenas nove meses para ser finalizada", afirma Alaor Pimenta, diretor da Castro Pimenta.

A obra reúne 200 toneladas de aço, utilizado na estrutura, lajes, estruturas de parede e teto (drywall), estrutura da fachada (painéis de concreto aerado, revestidos de granito, e aparafusados na estrutura de aço) e portões. “A veda-

Fotos Divulgação

ção externa é de granito e a interna, de gesso acartonado, tipo drywall, sustentadas por estruturas metálicas”, exemplifica Pimenta.

O que chama a atenção num projeto deste porte, uma torre de apartamentos de 12 pavimentos, além da dimensão do terreno, de 600 m2, é que a tecnologia construtiva permitiu à Castro Pimenta utilizar menos processos, menos transporte interno e menos mão-de-obra, além de gerar menos desperdícios e exigir menos tempo para a conclusão da obra.

Um dos destaques do edifício Delta Ville é seu peso total: apenas 1.600 toneladas, uma vez que não há blocos de alvenaria, com exceção das paredes curvas da caixa de escadas e na vedação das garagens. “Se tivéssemos optado pelo concreto, a obra teria mais de 5 mil toneladas”, destaca Pimenta. “Precisamos parar de mexer com o concreto, amarrar com arame, dobrar ferro. A tecnologia construtiva do aço é muito mais adequada, pois o metal já vem pronto da usina e a montagem da estrutura é feita com mão-de-obra especializada”, finaliza. (d.P.) M

> Projeto arquitetônico: Construtora Castro Pimenta

> Área construída: 3.200 m2

> Aço empregado: ASTM A572 GR50 (vigas e pilares); ZAR 280 (steel deck); ZAR 230 (perfil para drywall)

> Cálculo estrutural: Açominas

> Fornecimento da estrutura

metálica: Pórtico e Metform (steel decks)

> Montagem da estrutura

metálica: Pórtico

> Execução da obra: Construtora Castro Pimenta

> Local: Contagem, MG

> Data do projeto: 2003

> Conclusão da obra: 2005

&ARQUITETURA AÇO 31
Acima, à esquerda, vista da estrutura em aço junto ao fechamento; à direita, vista da janela do apartamento. Na página ao lado, a fachada principal do edifício Delta Ville, revestida em granito aerado aparafusado na estrutura em aço Acima, o edifício durante as obras; a opção pela estrutura em aço, combinada com o uso de drywall e painéis de granito no lugar dos tradicionais blocos de alvenaria, resultou em um edifício bastante leve

Apoio:

expediente

Revista Arquitetura & Aço

Uma publicação trimestral da Quadrifoglio Editora para o CBCA (Centro Brasileiro da Construção em Aço)

CBCA: Av. Rio Branco, 181 – 28º andar 20040-007 – Rio de Janeiro/RJ Tel.: (21) 2141-0001 cbca@ibs.org.br www.cbca-ibs.org.br

Conselho Editorial

Catia Mac Cord Simões Coelho – CBCA/IBS

Marcelo Micali – CSN

Números aNteriores:

Os números anteriores da revista arquitetura & aço estão disponí­veis para download na área de biblioteca do site: www.cbca-ibs.org.br

Próximas ediçÕes:

Equipamentos urbanos – junho de 2008

Escadas e marquises – setembro de 2008

Coberturas e fechamentos – dezembro de 2008

Paulo Cesar Arcoverde Lellis – Usiminas

Roberto Inaba – Cosipa

Ronaldo do Carmo Soares – Gerdau Açominas

Silvia Scalzo – ArcelorMittal Tubarão

Supervisão Técnica

Sidnei Palatnik

Publicidade

Sidnei Palatnik – Tel.: (11) 8199-5527 arquiteturaeaco@ajato.com.br cbca@ibs.org.br

Quadrifoglio Editora

Rua Lisboa, 493 – 05413-000 – São Paulo/SP Tel.: (11) 6808-6000 cbca@arcdesign.com.br

material Para Publicação:

Contribuições para as próximas edições podem ser enviadas para o CBCA e serão avaliadas pelo Conselho Editorial de arquitetura & aço. Entretanto, não nos comprometemos com a sua publicação. O material enviado deverá ser acompanhado de uma autorização para a sua publicação nesta revista ou no site do CBCA, em versão eletrônica. Todo o material recebido será arquivado e não será devolvido. Caso seja possí­vel publicá-lo, o autor será comunicado.

É necessário o envio das seguintes informações em mí­dia digital: desenhos técnicos do projeto, fotos da obra, dados do projeto (local, cliente, data do projeto e da construção, autor do projeto, engenheiro calculista e construtor) e dados do arquiteto (endereço, telefone de contato e e-mail).

Direção

Cristiano S. Barata

Coordenação Editorial

Winnie Bastian

Redação

Carine Portela, Deborah Peleias, Isabel Silvares, Isis Gabriel e Valentina Figuerola

Revisão

Deborah Peleias

Projeto Gráfico e Editoração

Cibele Cipola e Jefferson Moura (estagiário)

Pré-impressão e Impressão

Copypress

Endereço para envio de material:

Revista Arquitetura & Aço – CBCA

Av. Rio Branco, 181 – 28º andar 20040-007 – Rio de Janeiro/RJ cbca@quadried.com.br

É permitida a reprodução total dos tex­tos, desde que mencionada a fonte. É proibida a reprodução das fotos e desenhos, ex­ceto mediante autorização ex­pressa do autor.

32 ARQUITETURA&AÇO

Perfis Estruturais Laminados. Velocidade na obra. Rapidez no resultado.

Feitos no Brasil, na quantidade e com a qualidade que você precisa.

• Pronta entrega

• Preços competitivos

• Ampla variedade de bitolas: de 150mm a 610mm

• Melhor relação peso x resistência

• Padrões e especificações

ASTM A6/A6M

• Aço estrutural de alta resistência com fy=345 MPa

Principais aplicações:

• Estruturas de edifícios

• Galpões

• Estacas metálicas

• Indústria de máquinas e equipamentos

• Navios e plataformas

• Chassis de veículos

Vendas: (11) 3094-6550 • perfis@gerdau.com.br www.gerdau.com/perfisgerdauacominas

disponÍveis nos distribuidores de todo o brasil

Turn static files into dynamic content formats.

Create a flipbook
Issuu converts static files into: digital portfolios, online yearbooks, online catalogs, digital photo albums and more. Sign up and create your flipbook.
Arquitetura & Aço nº 13 - Edifícios de Múltiplos Andares by cbca-acobrasil - Issuu