

![]()












resurfaced pool deck
new lifeguard check in new towel check out larger pergolas with shade updated pool shade
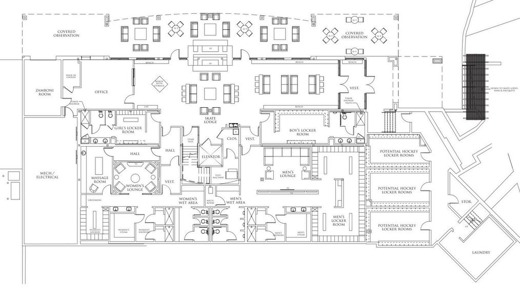
updated skate office
updated warming room
3 new hockey locker rooms
additional bathroom near new locker rooms
new outside flooring
smaller pillars for better viewing additionally seating
refreshed look
hospitality counter
Pilates located in the workout area
reworked layout
additional square footage in weight area
indoor stair exit staircase
refreshed look
reconverted ladies locker room to add spa like massage room
new pool entry
new lower level entry
improved look from stateline road and ward parkway

new family sky box:
additional 4 tables
additional 20 seats
new adult sky box:
Additional 4 tables
additional 16 seats
soft seating
2 tv’s
new adult Zamboni: 8 barstools
9 tables
32 seats
soft seating
double sided fireplace
5 tv’s
Brand new snack bar:
new ice cream machine with two flavors
smoothie and milkshake program
grab and go cooler
professional barista like coffee machine
popcorn machine
slushie machine
4 kid tables (16) barstools
2 kid counters (8) barstools
2 tv’s
brand new kitchen:
more cooler space
more freezer space
expo line in kitchen, away from membership
larger dish area
double oven addition
more efficient kitchen layout
additon of server side station
larger expo line
updated equipment
brand new bar:
more wine space to expand win selection
adult slushy machine
12 line draft beer system
back up liquor, wine and beer
glass chiller
glass rinser
glass chiller on command
large ice cubes
new bar layout
Bathroom updates:
3 ladies stalls
4 mens stalls
changing room/nursing room






what is happening this phase?
the main focus on phase one is starting the building of the new additions. during this phase we will start resurfacing the pool deck. the existing foot print of the warming room, locker room, and dining spaces will be remodeled to get ready for the ice season.



Coach house limited menu begins: July 28th

coach house closed for season: August 4th
pool last day for season: August 4th
warming room closed (limited walkway to the elevator available for gym access): August 4th
locker rooms closed: august 4th (lockers will not be available after July 17th)
ramp from the upper lot to the lower lot closed: during all three phases
What will be open?
Gym: open as normal
Racquets: open as normal
Banquets: open as normal
Main Dining Room Tuesday through Saturday lunch 11:00 AM-2:00 PM happy hour 3:00 PM-6:00 PM dinner 5:00 PM-9:00 PM




the pink “fence” area is where the contractors will be set up during phase one. the ramp will be closed. you will only be able to enter the lower parking lot off ward parkway there will be limiting parking in the lower parking lot.
the pool deck will be closed. you will no be able to use the walking ramp to th pool deck from the middle parking lot
please note to allo for extra time to g to the gym or racquets during construction
be on the look out for a new dining room menu starting in august
We have many great specials planned for the dining room during the renovation! please make sure to join us during this time!
Tuesday kids eat free night
Wednesday pasta night 1/2 off wine bottles (by the glass list only) Thursday Burger







KANSAS CITY, MO 64112

EXECUTIVE COMMITTEE
ILLINOIS BLASDEL - PRESIDENT
SAHRENE BUCKWALTER - FIRST VICE PRESIDENT
JUSTIN BEGNAUD - SECOND VICE PRESIDENT
RAJ BHALA - TREASURER
ANNIE HOULEHAN - SECRETARY
BOARD OF DIRECTORS
MATT ADAM, ERIK BECKER, ERIN BERGER, KEITH CONNOR, SCOTT DUBA, ANTHONY HART, JEAN MCPHERSON, SALLY SALLEE, ABBY WENDEL
COMMITTEE
BUILDING
ENTERTAINMENT
FINANCE & LEGAL
FITNESS
FOOD & WINE
HOUSE & GROUNDS
ICE
CHAIR
ERIK BECKER
JUSTIN BEGNAUD
RAJ BHALA
RAJ BHALA
ANTHONY HART
KEITH CONNOR
ABBY WENDEL
LONG-RANGE PLANNING ILLINOIS BLASDEL
MEMBERSHIP
POOL
RACQUET
ANNIE HOULEHAN
ERIN BERGER
KEITH CONNOR