Perfil profesional.
Sobre mí:
Apasionada por el diseño de interiores, disfruto transformar espacios para mejorar la experiencia de quienes los habitan. Me comprometo a cumplir con las expectativas del cliente, entregando resultados de calidad a tiempo y colaborando con equipos para lograr el éxito de cada proyecto.
Me enfoco en crear espacios que sean tanto funcionales como estéticamente atractivos. Tengo habilidades sólidas en el uso de software de planificación y diseño como Archicad y AutoCAD, lo que me permite materializar ideas de forma eficiente.
Cuento con total disposición para integrarme de inmediato, asumir nuevos retos y contribuir activamente en cada fase del trabajo con responsabilidad y compromiso
Educacion
2020-2025 Arquitectura
Softwares
2D Drawing
Modelling
Render
Adobe
Universidad Cristóbal
Colón

Autodesk AutoCAD
Archicad / SketchUp
Enscape/ VRay / Twinmotion
Adobe Photoshop
Adobe InDesign
Adobe Illustrator
Idiomas
Conte nido .
01 Parque Jade.

Parque Jade es un proyecto de regeneración urbana diseñado para transformar y revitalizar la colonia Ignacio Zaragoza en Veracruz. Con un enfoque integral, el parque busca mejorar la calidad de vida de sus habitantes a través de la creación de espacios públicos funcionales, sustentables y accesibles.
El objetivo de Parque Jade es fomentar la cohesión social y el desarrollo urbano sostenible mediante la rehabilitación de espacios deteriorados y la incorporación de infraestructura moderna que favorezca la convivencia, el comercio local y la integración con el medio ambiente.
SITIO A INTERVENIR
Colonia Ignacio Zaragoza Veracruz, Mexico.


• Concepto del Proyecto
Parque Jade es un proyecto de regeneración urbana diseñado para transformar y revitalizar la colonia Ignacio Zaragoza en Veracruz. Con un enfoque integral, el parque busca mejorar la calidad de vida de sus habitantes a través de la creación de espacios públicos funcionales, sustentables y accesibles.
• PROCESO DE DISEÑO
Se realizaron tres mallas paralelas al perímetro del terreno en diferentes grados, creando formas irregulares mediante su yuxtaposición. Esto generó planos y vectores que delimitan los espacios para las distintas zonas. Inicialmente, se consiguió una composición con una figura regular central que se abre hacia los extremos, generando conexiones entre sí.

• PROPUESTA
Se zonifico en base a la trama resultante estableciendo las áreas de pasillo y aplicando la zonificación correspondiente. Dejando 2.5 m de pasillo entre las zonas para implementar mobiliario urbano y que haya circulaciones amplias así como también áreas destinadas a diferentes actividades,
• PROPUESTA
1.
2.
3.
4.
5.
6.
7.
• CORTES DE NIVEL




• PLANTA DEL PARQUE
• ISOMETRICOS DE ÁREAS
Área de juegos
Área deportiva
Área comercio

Área picnic










02 Centrocomunitario.


El Centro Comunitario Jade es un proyecto de integración urbana enfocado en fortalecer el tejido social de la colonia Ignacio Zaragoza en Veracruz. Concebido como un espacio accesible, seguro y funcional, este centro busca convertirse en un punto de encuentro para la comunidad, promoviendo la participación ciudadana y el bienestar colectivo.
El objetivo del centro es ofrecer actividades culturales, educativas y recreativas que fomenten el desarrollo integral de los habitantes, al mismo tiempo que incorpora estrategias sostenibles como áreas verdes, ventilación natural y materiales locales. A través de este proyecto se impulsa la convivencia, el sentido de pertenencia y la regeneración urbana con un enfoque humano y ambiental.
SITIO A INTERVENIR
Colonia Ignacio Zaragoza Veracruz, Mexico.


• Concepto del Proyecto
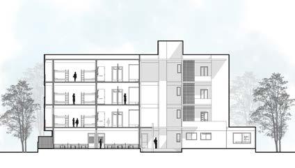
El diseño del Centro Comunitario Jade parte de una organización espacial clara y jerárquica, basada en la superposición de niveles que responden a diferentes usos y dinámicas comunitarias. El proyecto se concibe como una estructura abierta y flexible, en donde la circulación vertical articula los distintos espacios funcionales, facilitando la interacción entre usuarios.
Uno de los conceptos clave fue la accesibilidad universal, permitiendo que personas de todas las edades y capacidades puedan utilizar el centro sin restricciones. Además, se priorizó la transparencia visual y la conectividad espacial, lo cual se refleja en la disposición estratégica de los vacíos, las escaleras abiertas y las visuales cruzadas entre niveles.
El lenguaje arquitectónico se mantiene sobrio y funcional, con volúmenes puros, materiales neutros y una paleta clara que refuerza la sensación de orden, limpieza y apertura. La modulación del edificio permite una estructura versátil, pensada para adaptarse a las necesidades cambiantes de la comunidad.

1. Trazado inicial:
Se definen recorridos peatonales diagonales que estructuran el proyecto y conectan diferentes zonas del sitio.
2. Generación de huella:
A partir de los caminos, se forma una planta con geometría quebrada que guía la futura volumetría.
3. Volúmenes base:
Se colocan tres cuerpos principales sobre la huella: dos extremos y uno central, generando patios y accesos.
4. Elevación de volúmenes:
Los bloques laterales se verticalizan para distribuir los usos por niveles, manteniendo el volumen central como articulador.
5. Conexión vertical:
Se incorpora un núcleo abierto de escaleras que une los niveles, promoviendo circulación fluida y visuales integradas.


• PLANTA DEL PARQUE








• RENDERS








03 Baño Nora.

Este proyecto de interiorismo propone un baño contemporáneo que combina funcionalidad y estética en un espacio de relajación y bienestar. El diseño se basa en una paleta neutra con materiales naturales, como la cerámica blanca, detalles en madera clara y acentos dorados que aportan calidez y elegancia.
El objetivo fue crear un ambiente acogedor y sofisticado, con elementos que potencien la iluminación natural y mejoren la percepción del espacio. La integración de vegetación, espejos redondos y texturas suaves refuerza la conexión con lo orgánico, generando una atmósfera equilibrada que invita al confort diario.
• Concepto del Proyecto
Distribución eficiente: El baño se organiza de manera compacta, maximizando el uso del espacio sin perder comodidad ni estética.
Ducha abierta: Cuenta con una ducha tipo walkin, delimitada por un muro curvo que brinda privacidad sin bloquear la continuidad visual.
Área de lavabos doble: Se integran dos lavabos sobre una base de almacenaje, ideales para uso compartido. Cada lavabo cuenta con su espejo individual y luminarias empotradas.
Almacenamiento vertical: Se incorpora un mueble alto tipo estantería para organización de toallas, productos de higiene o decoración.
Iluminación y ventilación: El diseño contempla una doble altura que favorece la entrada de luz natural y permite una mejor ventilación del espacio.
Estilo neutro y natural: Aunque no se muestra el material en el isométrico, se sugiere un acabado claro, limpio y minimalista, acorde con las imágenes de referencia.
Elementos de confort: Un banco o taburete dentro del área de ducha refuerza la comodidad y el carácter relajante del espacio.
• Materiales




03 Concurso CMIC.

Proyecto realizado como propuesta para concurso. Se planteó la renovación integral de la fachada posterior de las oficinas de la Cámara Mexicana de la Industria de la Construcción (CMIC), incorporando una envolvente contemporánea a base de celosías verticales metálicas que brindan protección solar y ritmo visual. La propuesta busca dignificar la imagen institucional, mejorar la iluminación natural y reforzar la identidad del edificio dentro del entorno urbano.
Edificio CMIC
Boca del Río, Veracruz.
• ANÁLISIS BIOCLIMÁTICO
La fachada se orienta hacia el este, lo que en el clima cálido-húmedo de Veracruz representa una ventaja térmica, ya que recibe sol únicamente durante las primeras horas del día, evitando la fuerte radiación del mediodía y la tarde. Esto reduce significativamente la ganancia térmica directa, manteniendo más fresco el interior.
• DIAGRAMAS DE FORMA
Se conservaron las ventanas existentes para aprovechar los vientos dominantes del noreste. La integración de la doble fachada con vegetación y lambrines metálicos actúa como filtro solar adicional, creando un juego de luces al interior y mejorando la estética del edificio. 1 2 3 4
• ISOMÉTRICO DE PROPUESTA DE FACHADA
• DESPIECE DE FACHADA
El diseño de la nueva fachada parte del respeto y conservación de los elementos existentes en la fachada principal, particularmente las formas geométricas originales y los lambrines metálicos, los cuales se reinterpretan como parte del lenguaje arquitectónico para mantener coherencia visual y fortalecer la identidad del edificio.
Con el objetivo de aportar mayor calidez y contemporaneidad, se introdujo una combinación de acabados de concreto aparente y madera, generando un contraste controlado entre lo industrial y lo natural. Esta dualidad material enriquece la percepción del conjunto y mejora la experiencia del usuario desde el exterior.
• DETALLE DE SOBREESTRUCTURA
II. Sistema de anclaje estructural al muro mediante placa base de acero al carbón de 1/4” de espesor, con dimensiones mínimas de 20 x 20 cm, soldada a los extremos del bastidor.
III. Bastidor estructural intermedio, también con PTR de 4” x 2” x 1/8”, colocado horizontalmente, soldado a ménsulas estructurales.
IV. Pernos de anclaje estructurales de acero inoxidable grado AISI 304 o galvanizados grado 5, tipo perno cabeza hexagonal con tuerca y arandela. Diámetro mínimo de 1/2”, fijados mediante soldadura o atornillados a través de placas de anclaje.
V. Lambrines de fachada compuestos por perfiles PTR de 6” x 3” x 1/8”, dispuestos verticalmente con una separación uniforme de 0.20 m entre centros. Fijados directamente al bastidor estructural mediante soldadura por puntos o tornillería de acero inoxidable. Acabado con pintura epóxica negra de alta resistencia con inhibidores de corrosión, asegurando durabilidad y resistencia a intemperie.
1.Bastidor estructural principal conformado por perfiles PTR de 4” x 2”, colocados horizontalmente acabado en pintura epóxica negra con inhibidores de corrosión.
2.Revestimiento de Tablaroca con acabado tipo concreto aparente DE 0.10 m de grosor.
3.Amarre intermedio entre lambrines metálicos, conformado por PTR de 6” x 3”.
4.Revestimiento de Tablaroca con acabado tipo concreto aparente DE 0.10 m de grosor.
5.Lambrines de PTR de 6” x 3” con separación de 0.20 m entre ellos fijados a la estructura metaliza de bastidores estructurales tipo PTR de 4” x 2” acabado en pintura epóxica roja con inhibidores de corrosión.
6.Cerramiento estructural secundario con PTR de 4” x 2”, anclado a la estructura del mismo tipo previamente especificada acabado en pintura epóxica negra con inhibidores de corrosión.
7.Cancelería metálica integrada acabado en pintura negro.
8.Revestimiento de Tablaroca con acabado tipo concreto aparente DE 0.15 m de grosor.
9.Vegetacion de bajo mantenimiento
10.Jardinera con capas de drenaje, sustrato especializado y sistema de impermeabilización.
11.Perfil IPR de 12” x 6” como parte de la estructura de material WPC (congloremado de madera y PVC para exteriores) Acabado en nogal semimate.
12.Marco de concreto que aloja las jardineras; incluye tratamiento impermeabilizante en superficies internas para evitar filtraciones hacia la estructura base.
13.Revestimiento de columnas con sistema de tablaroca de 0.10 m de espesor.


