PO RTF OLIO

CARMINA CASASOLA





![]()






Julio 8 del 2003
ig: @casarq.ds
Soy una persona responsable Y creativa en busca de oportunidades para desarrollar mis habilidades como arquitecta. Mi pasión por el diseño y la construcción me ha llevado a estudiar arquitectura y deseo contribuir al desarrollo deproyectosinnovadoresyfuncionales.
2022-2026
UNIVERSIDAD DEL ITSMO
GRADO EN ARQUITECTURA
EXPERIENCIA
2023-ACTUALIDAD
FREELANCER ARQUITECTURA VISUAL Y DESARROLLO DE PROYECTOS
REALIZACIÓN DE VISUALIZACIONES ARQUITECTÓNICAS Y DESARROLLO/ CASARQ ARCHITECTURE

ARQUITECTA INTERNA EN BROISSIN ARCHITECTS POLANCO, CDMX
REALIZACIÓN DE VISUALIZACIONES ARQUITECTÓNICAS Y DESARROLLO
ARQUITECTA INTERNA EN SYPCON CONSTRUCTURA CDAD GT
REALIZACIÓN DE VISUALIZACIONES ARQUITECTÓNICAS Y DESARROLLO
COMPETENCIAS
2023-ACTUALIDAD
DESARROLLO INMOBILIARIO
CONCETRACIÓN EN DESARROLLO INMOBILIARIO
FOTOGRAFÍA PROFESIONAL
FOTOGRAFÍA DE ARQUITECTURA / CASARQ FOTOGRAPHY
IDIOMAS
ESPAÑOL
NATIVO
INGLES
NIVEL C1 (AVANZADO)
HABILIDADES
01
PABELLÓN CULTURAL
CONCURSO 2024 CATEDRA JORGE MONTES

02
CASA VISTA
VIVIENDA DISEÑO ARQUITECTÓNICO

03 COMPETENCIA DE DISEÑO
04
MERCADO MUNICIPAL

OASIS SACRO
ESPACIO CULTURAL Y RELIGIOSO

INTERLOMAS CDMX
05 COLABORACIÓN CON BROISSIN ARCHITECTURE

06
FOTOGRAFIA
FOTOGRAFÍA DE URBANIZACIÓN DE ARQUITECTURA Y EDIFICACIONES








TRABAJO PARA CONCUROSO CATEDRA JORGE MONTES
TIPO
ACADÉMICO
EL MIRADOR SE ENCUENTRA EN EL ENTORNO DEL CONJUNTO RECREATIVO “HIPÓDROMO DEL NORTE” CIUDAD DE GUATEMALA. EL PROYECTO PLANTEA EL APROVECHAMIENTO DE PARTE DEL SUELO PARA LA FUTURA IMPLEMENTACIÓN DEL MIRADOR ULEW. (QUE EN LENGUA MAYA SIGNIFICA MIRADOR DE LA TIERRA), EL OBJETIVO ES PLANTEAR UNA PROPUESTA QUE ENALTEZCAN EL MAPA EN RELIEVE Y A LA VEZ ES UN CENTRO TURÍSTICO QUE ATRAIGA A MÁS GUATEMALTECOS Y EXTRANJEROS A CONOCER A NUESTROPAÍSENUNMAPAQUEREPRESENTANUESTRATIERRA.






































RAMPAS DE ACCESO
DISEÑADAS PARA PROPORCIONAR UNA TRANSICIÓN SUAVE ENTRE DIFERENTES NIVELES, FACILITANDO EL ACCESO PARA PERSONASCONMOVILIDADREDUCIDA.

CENTRO DE VISITANTES
UN ESPACIO DISEÑADO PARA RECIBIR, INFORMAR Y ORIENTAR A LOS VISITANTES SOBRE EL ENTORNO, LAARQUITECTURAYLAHISTORIA.
PISOS DE VIDRIO
APORTAN UN ELEMENTO MODERNO Y ELEGANTE AL DISEÑO, CREANDO UN IMPACTO VISUAL QUE PUEDE SER TANTO FUNCIONAL COMO DECORATIVO.
ESTASEXHIBICIONESSUELENSER DE CARÁCTER TEMPORAL Y PRESENTAN TEMAS VARIADOS, A MENUDO COMPLEMENTANDO LA COLECCIÓN PERMANENTE DEL LUGAR. ÁREA DE EXHIBICIONES TEMPORALES

CONEXIÓN POR MEDIO DE PUENTES
LOS PUENTES PERMITEN EL TRÁNSITO SEGURO Y CONTINUO ENTRE DISTINTOS ESPACIOS.
ÁREA DE MIRADOR
DISEÑADO PARA OFRECER VISTAS PANORÁMICAS DEL ENTORNO.
ESPEJOS DE AGUA
PARA MEJORAR LA ESTÉTICA DE DEL ESPACIO, AGREGAR UNA SENSACIÓN DE CALMA, RESALTAR LAS ESTRUCTURAS Y PAISAJES CIRCUNDANTES.

RESTAURANTE
BUSCA CREAR UN ENTORNO DONDE LOS CLIENTES SE SIENTAN TAN CÓMODOS QUE QUIERAN QUEDARSE MÁS TIEMPO.

UMBRAL DE ACCESO
DA ACCESO AL INTERIOR DEL EDIFICIO, Y ES UN ELEMENTO
MARCOS ESTRUCTURALES
SE COMPONEN DE COLUMNAS Y VIGAS CONECTADAS EN PUNTOS CLAVE LLAMADOSNODOSOUNIONES.JUNTAS, ESTAS PIEZAS FORMAN UNA RED QUE DISTRIBUYE LAS FUERZAS A LO LARGO DELAESTRUCTURA.

CELOSIA
PERMITEN EL PASO DE LA LUZ Y EL AIRE MIENTRAS OFRECEN PRIVACIDAD Y PROTECCIÓN CONTRA ELSOL.

VOLADIZO
EL VOLADIZO SE EXTIENDE HORIZONTALMENTE MÁS ALLÁ DE SU PUNTO DE SOPORTE, CREANDO UN ESPACIO DEBAJO SIN COLUMNAS NI PILARES DE SOPORTEADICIONALES.

TRABAJO ESPECIAL DE GRADO TIPO
ACADÉMICO
LA"CASAVISTA"SITUADAENMUXBAL,CIUDADDEGUATEMALA,ES UN PROYECTO RESIDENCIAL QUE ARMONIZA PERFECTAMENTE CON SU ENTORNO NATURAL. DISEÑADA CON UN ENFOQUE EN LA INTEGRACIÓN DE ESPACIOS INTERIORES, ESTA VIVIENDA UNIFAMILIAR SE DESARROLLA A TRAVÉS DE DOS MÓDULOS
DISTINTOS, UNO DESTINADO A ACTIVIDADES SOCIALES Y OTRO RESERVADOPARAESPACIOSPRIVADOS.LADISPOSICIÓNDEESTOS MÓDULOS NO SOLO FACILITA UNA SEPARACIÓN FUNCIONAL DE LOS AMBIENTES, SINO QUE TAMBIÉN RESALTA LAS VISTAS PANORÁMICASHACIAELVOLCÁNDEAGUA.


14°33'34.9"N 90°28'15.9"W
CONDOMINIO JACARANDAS 1

VISTAS PRINCIPALES
ENTRADA A CONDOMINIO
CC MINUTO MUXBAL
CARRETERA PRINCIPAL CONDOMINIO VECINO
MARGÓ
VISTAS PRINCIPALES
TERRENO DESIGNADO
BOSQUE
CONDOMINIO VECINO
ANÁLISIS EN UN RADIO DE 200 M
BOSQUE







TRABAJO ESPECIAL DE GRADO
TIPO
ACADÉMICO
EL DISEÑO ESTÁ SITUADO EN LA CIUDAD DE QUETZALTENANGO, SOBRE LA AUTOPISTA NACIONAL LOS
ALTOS. EL PROYECTO TIENE COMO OBJETIVO PRINCIPAL
UNIFICAR A LA POBLACIÓN LOCAL MEDIANTE UN MERCADO
QUE NO SOLO FOMENTE LA ACTIVIDAD COMERCIAL, SINO
QUE TAMBIÉN OFREZCA ESPACIOS AMPLIOS Y LUMINOSOS
PARALACONVIVENCIACOMUNITARIA.


























SUROESTE-NORESTE
DISPONE SUS FACHADAS CORTAS ENFRENTADAS AL ASOLEAMINENTO PARA MINIMIZAR GANANCIA TERMINCA ORIENTACIÓN
PLAZA Y ATRIO
ILUMINACION NATUAL CONTROLADA A PARTIR DE ESPACIOS DE RECREACION Y ELEMTOS EN CUBIERTAS RECIBIENDO LUZ INDIRECTA
QUIEBRASOLES
TRATAMIENTOS EN FACHADA QUE PERMITAN CONTROL SOBRE EL PASO DE LA LUZ AL INTERIOR Y PRIORIZANDO LA TRASPARENCIA DE LOS ESPACIOS FACHADS
SUPERRFICIES VERDES
MATERIALES CON BAJA INERCIA TERMICA
FACHADAS
TERMODISIPADORAS
FACHAS DISIPADORAS DE CALOR
TECHOS DISEÑADOS
TRATAMIENTOS EN LOS TECHOS QUE PERMITAN CONTROL SOBRE EL PASO DE LA LUZ AL INTERIOR Y PRIORIZANDOLA VENTILACION CRUZADA DEL INERIOR DEL EDIFICIO













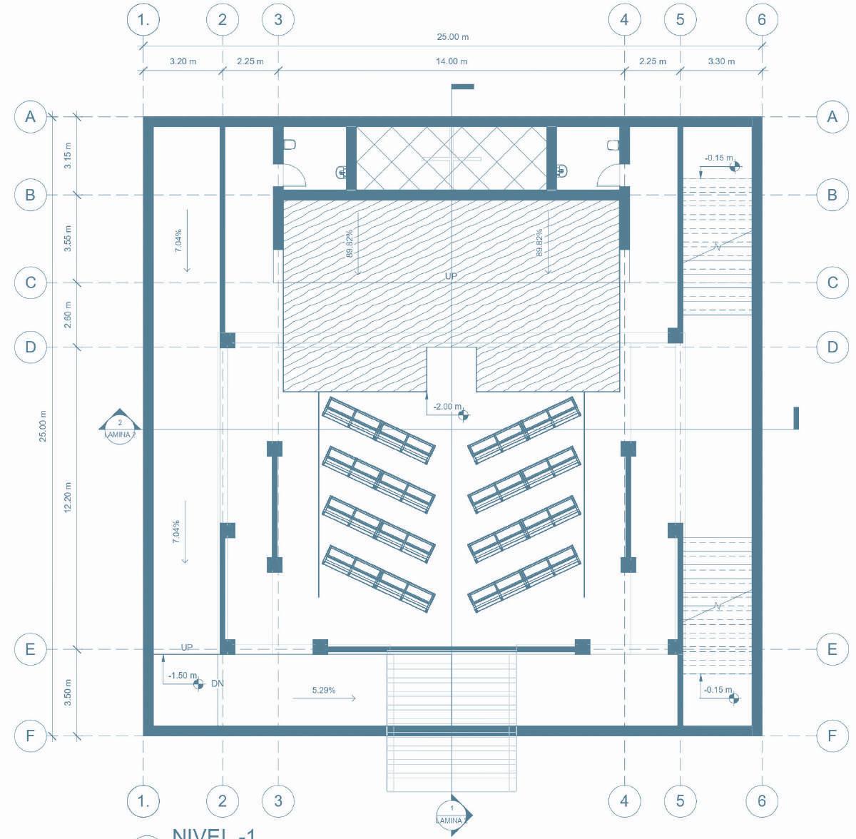
Area total del terreno: 3136m2 Area de construcción: 2576m2
Permeabilidad:25%
Comercio:873m2
Atrio: 280 m2
Circulación: 260m2








TRABAJO ESPECIAL DE GRADO
TIPO
ACADÉMICO
UNA CAPILLA SITUADA EN LA HISTÓRICA CIUDAD DE ESQUIPULAS INVITA A LA MEDITACIÓN Y REFLEXIÓN PROFUNDAENLAFECATÓLICA,CREANDOUNAEXPERIENCIA
QUE UNE EL ENTORNO NATURAL CON LOS ESPACIOS ARQUITECTÓNICOS DE MANERA ARMONIOSA. ESTE ESPACIO CREA MEDIANTE UN DISEÑO DETALLADO, INTEGRA ELEMENTOS NATURALES DEL ENTORNO, COMO LA LUZ, EL VIENTO Y LA VEGETACIÓN, PARA ENRIQUECER LA EXPERIENCIA DE ESPIRITUALIDAD. CON SUS PAREDES SERENAS Y ABIERTAS AL PAISAJE, SUS ESPACIOS ESTÁN PENSADOSPARAGUIARALOSVISITANTESHACIAUNESTADO DEPAZYRECOGIMIENTO.




VISTAS DE LA TERRAZA
DESDE LA TERRAZA SE APRECIA LA ESCULTURA DE LA CRUZ Y LA JARDINE

ESTA SOBRE PUESO HACIENDO REFERENCIA A CON JUSUS CAMINO EN LAS AGUAS
ESTE ESPACIO ESTA DISEÑADO PARA COMBINAR LAS TRADICIONES QUE SE PRACTICAN EN LA CUEVA CON LA CAPILLA, EN LA TERRAZA SE PODRAN PRACTIC CANTOS SAGRADOS QUE A A SU VEZ, SE ESCUCHARA DENTRO DE LA CAPILLA TERRAZA
JARDINERA Y MANATIAL DE LA CRUZ
FUE DISEÑADO HACIENDO REFERENCIA A ISAÍAS 58:11
“Y EL SEÑOR TE GUIARÁ CONTINUAMENTE, SACIARÁ TU DESEO EN LOS LUGARES
ÁRIDOS Y DARÁ VIGOR A TUS HUESOS; SERÁS COMO HUERTO REGADO Y COMO MANANTIAL CUYAS AGUAS NUNCA FALTAN.”

EL ESPEJO DE AGUA FUE DISEÑADO HACIENDO REFERENCIA A JUAN 4:14
“MAS EL QUE BEBIERE DEL AGUA QUE YO LE DARÉ NO TENDRÁ SED JAMÁS, SINO QUE EL AGUA QUE YO LE DARÉ SERÁ EN ÉL UNA FUENTE DE AGUA QUE BROTE PARA VIDA ETERNA.” ESPEJO DE AGUA

LA CAPILLA FUE DISEÑADA PARA BRINDAR SIMILARES SENSACIONES A LAS QUE SE GENRAN EN LA CUEVA, LA PROVASIDAD LA INTEGRACION CON LA NATURALEZA Y EN ESPECIAL LA PRIVACIDAD CONCEPTO DE CUEVA




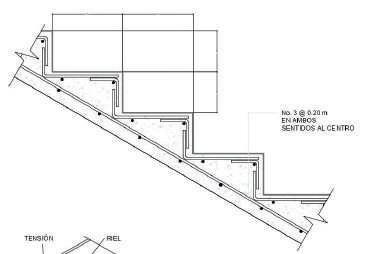
DETALLE DE LOSA TRADICIONAL

DETALLE DE LOSA


DETALLE DE COLUMNA



CIMENTACIÓN GRADAS DE CONCRETO


COLABORACIÓN CON BROISSIN
TIPO
VIVIENDA Y COMERCIO
ESTE PROYECTO FUE EJECUTADO EN COLABORACIÓN CON LA FIRMA DE ARQUITECTOS BROISSIN. SE TRATA DE UN DESARROLLO DE VIVIENDA DISEÑADO PARA ESTUDIANTES DE LA UNIVERSIDAD ANÁHUAC MÉXICO. LA PROPUESTA CONTEMPLA UN EDIFICIO RESIDENCIAL, DONDE EL PRIMER NIVEL SE DESTINARÁ A COMERCIO Y ÁREAS SOCIALES, MIENTRAS QUE LOS NIVELES RESTANTES ESTARÁN DESTINADOS A APARTAMENTOS. DURANTE EL PROCESO, SE COLABORÓ EN LA EVALUACIÓN Y EL DIBUJO DE PLANOS, LO QUE PERMITIÓ OPTIMIZAR EL DISEÑO Y LA FUNCIONALIDAD DELESPACIO.












FOTOGRAFÍA DE URBANIZACIÓN DE ARQUITECTURA Y EDIFICACIONES
TIPO
FREELANCE/ FOTOGRAFA PROFECIONAL
ME APASIONA LA FOTOGRAFÍA DE ARQUITECTURA Y HE COMPLETADO UN CURSO DE FOTOGRAFÍA PROFESIONAL. MI
ESPECIALIDAD ABARCA DIVERSOS ASPECTOS, INCLUYENDO LA FOTOGRAFÍA DE INTERIORES Y EXTERIORES, ASÍ COMO LA HISTORIA Y LA URBANIZACIÓN. A CONTINUACIÓN, PRESENTARÉ UNA SELECCIÓN DE FOTOGRAFÍAS TOMADAS POR MÍ, QUE REFLEJAN DISTINTOS ESTILOS Y TIPOS DE ARQUITECTURA.




TIPO
CONCURSO DE FOTOGRAFÍA
La inspiración para esta imagen surgió al observar cómo en el parque “Alamo Square" de San Francisco se entrelaza la vida cotidiana con la historia de la ciudad. Desde este punto alto, se puede apreciar en primer plano la interacción urbana con la naturaleza, luego las casas originales, y al fondo, la evolución de la ciudad con rascacielos y edificios de vanguardia. Lo que más me llamó la atención fue la forma en que la foto se divide en tres planos.
En el primero, vemos a las personas interactuando: algunas comiendo, otras caminando, jugando o simplemente conversando. A pesar de sus distintas actividades, todos parecen estar mirando hacia la historia de su ciudad.
El segundo plano muestra las coloridas casas victorianas conocidas como "The Painted Ladies", un símbolo arquitectónico icónico de San Francisco, ubicadas en Steiner Street. Este plano representa los inicios arquitectónicos que han brindado el valor histórico a este parque desde 1860.
Finalmente, el tercer plano está dominado por la ciudad moderna, con edificios emblemáticos como “Pirámide Transamerica”, “Salesforce Tower", “181 Fremont” y “101 California Street". Este plano representa los avances arquitectónicos que han transformado el horizonte de la ciudad a lo largo del tiempo.
La combinación de estos tres planos destaca la interacción entre la arquitectura, las personas y la historia en un solo mirador natural. La perspectiva de la pareja que observa el paisaje refleja el ECO visual de una historia en constante evolución, mientras que la arquitectura captura las huellas de cada época. Un día despejado y soleado realza aún más esta escena, permitiendo observar más allá de la superficie, cada plano a su totalidad, revelando así por medio de un Anfiteatro Vegetal, la esencia de la ciudad, su historia y sus habitantes.



