USYD Architecture 2023 | MARC5000 - A Huge House II "House of Non-Type" by Haitian Jin & Iris Guo

Page 1


HOUSE OF NON-TYPE

481 Wilson street, 2023

Index

Project statement

Site plan

Model image

Ground floor plan

External view

Typical plan I

Plan diagrams

Typical plan II

Plan diagrams

Section

Sectional diagrams

Elevation

Model image II

Unit plan

Model image III

Plan diagrams II

Façade detail

Façade axonometric

Material palette

Considerations Of Country

Model image IV

Interior image

Preliminary budget

Postscript

A Huge House of Non-Type

“We shape our buildings; thereafter they shape us.” Winston Churchill

Introduction

Architecture provides us with a phenomenon, illuminating the fact that the physical environment is a static artifact and continues to transform us long after construction. Inspired by the aboriginal concept of “If we care for Country, it will care for us”, the project envisioned a reciprocal relationship between the building and students. We imagine living in the huge house as a dynamic process, in which the building and the student shape, influence, and evolve together. It is a huge house, a test ground, and a receptacle for multiple, unexpected moments to happen.

Notion 1 – The Non-Type Way of Living

Student housing is an old program, an archaic type, a prototype for the repeatability of modern living. It usually provides a living module equipped with a bed, a desk, a bathroom, and a kitchen, and places them within a rigid grid. While the spaces are divided and used efficiently regarding their functions, it also results in a lack of flexibility and human interaction.

The proposal tries to break this conventional typology of living modules by separating the bathroom and living spaces from the bedroom, minimizing the space of basic modular units, and enlarging the shared, open living space. The proposal also considers the degree of intervention from an architect’s perspective – what can be designed and what cannot, and should not be defined

by the architect. Inspired by Jacques Tati’s filming view of the identical, modernist window frames within each frame happening something differently, the modules are designed with identical characteristics, yet we proposed the rest of the space open for interpretation by the students, leaving the room for their unique ways of living.

Notion 2 – The Grid and Grid Breaking

The notion of a grid is interpreted in the proposal as a rigorous structural grid and the restricting rules and conventions of the way of living. What is visible is the structural grid – we propose a rigid concrete column system, which preserves the level of efficiency in planning and constructing; yet we break the cognition of the repetitive way of living style by dividing the bedroom and other functional spaces into two levels. The bedrooms are placed and aligned within the rigid grid with private and intimate spaces in between; and the bathroom modules are placed and oriented with more flexibility on the lower level, which increases the level of interaction and possibilities for unexpected encountering. The proposal also shows recognition and respect for the Country by integrating the concept of land, skies, and waters through the ochre and water grid on the ground, metaphorizing the indigenous culture as roots and threads connecting all lives in the building.

Conclusion

As John Dewey states, “A thing is more significantly what it makes possible than what it immediately is.” The huge house is a proposal that respects the past, responds to the present, and draws aspirations for the coming future. The proposal is an answer and also opens up more questions, encouraging more people to think of the future of the individual and collective way of living.

The site is located at 481 Wilson St, Eveleigh, having the Redfern train station to the south and the University of Sydney to the north. The proposal occupies a limited area in a regular shape within the site boundary.

From the outside, the building itself is a representation of rigorous – the rectangular shape and rigid grid façade; from the inside, the placement of functional modules creates multiple open, semi-open, and enclosed spaces, which addresses a big contrast to the building character. It is like a kaleidoscope, with all the amazing and beautiful moments happening inside a banal container.

EXTERNAL VIEW

The ground floor illustrates a multiplicity of spatial utilities – lounges for visitors, gallery spaces for aboriginal arts or any other exhibition, open space for private markets, small gardens, and gathering spaces in a natural environment. The floor is designed with ochre stone and a water grid, recognizing and respecting the indigenous culture as roots and threads through the site. The transition between the interior and exterior is blurred by full-height glazing and sliding doors.

Selecting the wire mesh façade as the building envelope, the view from the ground level can see through the activities inside. Framing the view by the façade structure, a diversity and multiplicity of living styles of the individual and collective are revealed in a modern setting. 1/400

The bedrooms are placed and aligned within the rigid grid with private and intimate spaces in between. Each module is prefabricated with the same spatial settings, construction methods, and materials. Yet the rest of the design is open for interpretation by the students, leaving room for the imagination of various ways of living in contrast to the repetitive characteristic of modular units.

Individual bedroom modules are placed on the perimeter with service modules in between and a service core in the center. The spaces are intentionally designed with rigor arrangement to create a contrasting feature to the lower level and try to encourage more wild, crazy ideas in this banal environment.

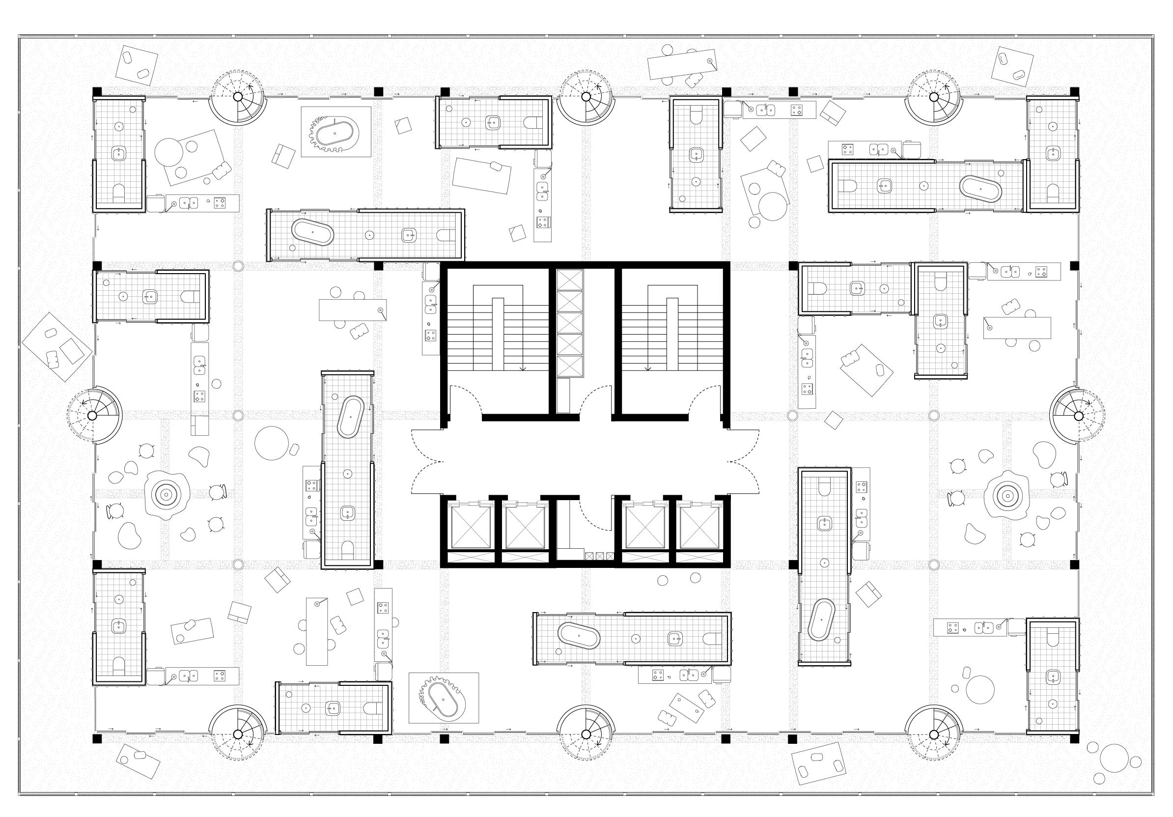
The plan proposes a rigid concrete column system, preserving the level of efficiency in planning and constructing, yet the cognition of the repetitive way of living style is broken by placing and orientating bathroom modules with flexibility, which increases the level of interaction and possibilities for unexpected encountering.

The level presents a mixture of bathroom modules, open kitchens, living rooms, and more undefined spaces across the plan, and a service core in the center. The degree of individuality and collectively is blended within the mixture of functional spaces with free circulation.

SECTIONAL DIAGRAMS

The project proposed forty levels of accommodation with one bedroom and one bathroom level as a set, showing a generous spatial quality. The individual modules represent an image of climbing and growing up to the sky in an unrestricted manner, yet still within a rigid constraint at the perimeter.

In summer with the sun at a 75-degree angle, the extended concrete slab for the facade will avoid the harsh direct sunlight and the ventilation can be passive relies on natural air movements to release the hot air out from the metal mesh facade. Active ventilation involves the use of the heating system to allow the warm flow of air through the space internal spaces of the building.

This kind of design with natural ventilation can be a sustainable and energy-efficient solution for building design, providing a comfortable indoor environment while reducing energy consumption and associated costs.

ELEVATION

Car parking is placed at the ground entry, and the bike parking is placed on the first level which can be accessed by a long ramp from the west. The roof is designed as an open garden with causal lounges surrounding the service utilities in the center.

The lower wire mesh panels are elevated from the ground, representing a welcoming atmosphere.

UNIT PLAN

The two bedrooms are individual units with foldable beds and basic furniture. The space can be potentially used as a private workplace, meeting room, etc. The platform in between can be used as a living room and balcony. The project proposes flexibility in how the students themselves interpret the space by avoiding specific definitions of all the spaces.

1/50

The bedroom and bathroom modules are cladded with painted corrugated metal, presenting a tough and metallic character. A lightweight steel staircase with a strong concrete column is placed for accessibility and structure considerations.

To break the grid of arrangement of rooms, we tried to create a space that offers options for people to explore, a space to think alone, and an atmosphere to gather, and the arrangement can be diffierent at each level based on actual needs. With the big contrast between the bedroom floor and bathroom floor, a balance from disorder to order, the meaning of being an individual to collective will be found. After breaking the function down into areas, small modular furniture in the space shows the flexibility to form a home space, activity space, workshop space, gathering space, sleeping space, reading space, and singing space...

In summer, the high sun and northern side glare can be avoided by the extended concrete slab for the facade corridor. To reach thermal comfort, the cooperation of HVLS fans and windows can enhance natural cooling ventilation by allowing fresh air convection.

In winter, the winter low sun can be received from the facade. To reach thermal comfort, the opening at the corridor enclosed provide internal ventilation to the spaces of a building. The main function is allowing for the warm flow of air through the space with the cooperation of the heating module.

Overall, the design with natural ventilation can be a sustainable and energy-efficient solution for the building, providing a comfortable indoor environment while reducing energy consumption and associated costs.

MATERIAL PALETTE CONSIDERATIONS OF COUNTRY

This building combines a concrete system and self-insulated prefab modules clad with corrugated metal sheets, creating a visually harmonious blend of brutality and intimacy. It showcases efficient construction techniques and offers flexible spaces, and the prefab timber modules can be disassembled to promote multi-use, reusable, and resource-efficient construction for future development.

1 Ochre Terrazzo Grid

Recognition of aboriginal land using ochre stone grinded into terrazzo with integration with structural grid on each floor.

2 Gathering/Ceremony Spaces

Places for casual gatherings, ceremonies around fireplaces and natural environments with stones, plants, etc.

3 Water Grid

Recognition of water as a symbol of healing through the integration of a water grid on site.

4 Gallery Space

Spaces on the ground floor can be potential gallery spaces for aboriginal arts and any other exhibitions.

Based on the research of Designing with Country, the project considers several aspects of the Country – the connection to place & Country by engaging with stone and water; healing Country & people by providing gathering and ceremony spaces within the natural environment; early engagement of aboriginal arts by placing gallery spaces on the ground floor.

Each of the modules is like a small house within a larger house. The balance between individuality and collectively is played in the spatial relationship, as well as the relationship between the students.

In principle, each bedroom is equipped with one bathroom underneath with a kitchen and open living spaces. The concept of boundary is blurred – the interior and exterior, the division of spaces, and the line between individual and collective living – to encourage more interaction.

PRELIMINARY BUDGET

The project presents a contrasting idea from the conceptual approach to physical appearance. The contrast can be interpreted as an integration of different characteristics that might not happen in real life. Like the combination of the rigorous building envelope and the growing modules inside, the regular and irregular placement of spaces, and the metallic materiality and intimate phenomenon. In this experimental and unrealistic sense, the proposal is an answer and also opens up more questions, encouraging more people to think of the future of the individual and collective way of living.

HOUSE OF NON-TYPE

Haitian Jin & Iris Guo Nettie Ni

Turn static files into dynamic content formats.

Create a flipbook
Issuu converts static files into: digital portfolios, online yearbooks, online catalogs, digital photo albums and more. Sign up and create your flipbook.
USYD Architecture 2023 | MARC5000 - A Huge House II "House of Non-Type" by Haitian Jin & Iris Guo by Haitian Jin - Issuu