FASCÍCULOS














































































































![]()












































































































































Propietario Colegio de Arquitectos de la Provincia de Buenos Aires
Director Arq. Ramón Rojo
Consejo editor Arqs. Juan Carlos Sánchez y Mario Pérez
Direccion de arte y diseño Estudio RO-K
Producción publicitaria Arq. Máximo Frederic
Revista del Colegio de Arquitectos de la Provincia de Buenos Aires
CAPBA FASCÍCULOS integra la red de medios de comunicación del Colegio de Arquitectos de la Provincia de Buenos Aires Los artículos publicados expresan los puntos de vista de sus autores y no necesariamente representan los de la institución propietaria. Los artículos sin firma son conocidos por el Consejo Editor y su responsabilidad última recae en el Director Responsable. CAPBA FASCÍCULOS autoriza la reproducción total o parcial de los artículos contenidos en la misma con el compromiso de citar la fuente. Envio digital a 15.000 matriculados CAPBA e instituciones nacionales e internacionales.

“…evidenciar la continuidad del tejido urbano, entendiendo que la construcción de la ciudad se debe a la repetición de lo uniforme, y ello se logra replicando buenos y sencillos edificios.” _De la memoria de los autores de “Casa+Terrazas”, publicada en las páginas que siguen
Las obras que hemos elegido no necesariamente reflejan esta idea, y no fueron seleccionadas con ese fin. Intentan, más bien, ser una muestra, aunque intencionada, de un registro de época. La vivienda unifamiliar urbana ya no constituye el grueso de los encargos profesionales, hoy más orientados hacia nuevas urbanizaciones -sean estas cerradas o abiertas-, alejadas de los cascos urbanos. Sucede así en las ciudades grandes y en las ciudades intermedias, en toda la provincia.
Se ha discutido mucho -se discutirá siempre- sobre el sentido de lo urbano. No podemos -tampoco lo deseamos- ahondar en una complejidad que largamente excede las pretensiones de este breve texto. Nuestro interés está en indagar en los tópicos comunes que vamos encontrando en las nuevas viviendas que estamos construyendo en el interior de nuestras ciudades.
Sin ser originales -búsqueda que no nos representa-, cabe preguntarse acerca de las razones que dan soporte a una decisión proyectual muy extendida: edificios cerrados -en menor y mayor grado- hacia la calle, es decir, hacia el espacio público por excelencia de la ciudad. Si la explicación está en la seguridad personal de sus habitantes, podría entenderse en las grandes ciudades, pero ocurre también en ciudades medianas y pequeñas, cuyo contexto es otro. Puede que la centralidad de las áreas metropolitanas presione y modifique las tradiciones y gustos de sitios alejados; puede también que el espacio privado se haya convertido en una directriz proyectual primordial, que nos atraviesa a todos por igual, vivamos donde vivamos. Si esta tendencia persiste… ¿qué ocurrirá con aquellos entornos urbanos valiosos -con alta calidad del espacio público- que está en el origen mismo de la decisión de vivir en la ciudad? ¿Qué sucederá con la vida en comunidad?… No son cuestiones que pueda resolver la arquitectura, desde ya, aunque resulta imposible mantenerse al margen. Quizá los ¿nuevos? paradigmas que apuntan a la ciudad de los servicios básicos de proximidad, del trabajo a distancia, de los efectos de la pandemia del COVID 19, de los perjuicios
comprobados de permanecer aislados, impliquen una reversión de un proceso que no es nuevo, pero fuertemente instalado. En los encuentros disciplinares es habitual escuchar discursos que ponen el foco en la puesta en valor del espacio público -del espacio compartido-, como dispositivo ineludible para mejorar las condiciones de la vida individual y colectiva; sin embargo, en ocasiones, la práctica profesional va en otro sentido. Discurso y práctica debieran, creemos, encontrar un cauce común, que los legitime como componentes de un mismo sistema. Parece complejo construir un saber disciplinar de referencia si se elige el camino opuesto.
Las obras que publicamos, una vez atravesado el umbral urbano, despliegan el mejor de los repertorios de los que disponemos los arquitectos, con espacios ordenados, precisos y funcionales, inundados de luz natural, bien construidos, donde interior y exterior suelen confundirse. Llenos y vacíos son comprendidos como un todo, interdependientes y equilibrados. El espacio abierto nunca es residual.
De todas ellas, quizá Casa+Terrazas sea la obra que mejor diálogo consigue entre ciudad y espacio privado, un equilibrio esquivo, pero al que no debiéramos renunciar.
Quienes habitan -o han habitado- en alguna de las pequeñas ciudades de la provincia pueden dar testimonio que este equilibrio no es una excepción. La configuración de sus frentes urbanos, el cuidado que sus habitantes les dispensan, el tiempo que transcurren en ellos conversando amablemente con algún transeúnte ocasional, mate en mano, hablan de una extendida voluntad colectiva. Prestar atención allí, no parece solo una opción más, puede que sea una necesidad imperiosa. No se trata de inventar nada. Es, más bien, ampliar la mirada sobre un proceso que lleva largo tiempo, que es propio, que sucede a poca distancia de nuestras grandes ciudades y, sobre todo, ha dado buenos resultados. El cambio en las tendencias migratorias internas hacia estas pequeñas ciudades algo dice. Carlos Moreno, cuando expone sobre la “ciudad de los 15 minutos”, afirma: “Si el siglo XIX fue el siglo de los imperios, el siglo XX fue el siglo de los estados naciones, y el siglo XXI es el siglo de las ciudades”. Si está en lo cierto, será muy difícil, en el futuro, atender solamente a las condiciones particulares de la parcela en que nos toca actuar. Sin pretensiones de verdad, nos despedimos hasta nuestro próximo encuentro.

La ley de Propiedad Horizontal (1948) y el Plan Eva Perón (1952) dan una vuelta de página en el desarrollo de la vivienda popular nacional, y en especial, en el territorio suburbano bonaerense de mediados del siglo pasado. Importantes sectores de la sociedad hacen realidad el “sueño de la casa propia”, y al compás de nuevos inversores y políticas públicas que propenden a una mayor equidad social y urbana, se desarrollan rápidamente dos tipologías novedosas: el edificio de departamentos y la vivienda cajón. Estos modelos y todas sus variantes serán los agentes del desarrollo suburbano durante la segunda mitad del siglo 20. Sobre la casa cajón, también denominada “californiana” o “modernista” -como la publicitaban los medios de la época-, el Diccionario de Arquitectura en la Argentina (F. Liernur y F. Aliata) informa que “reemplazó a la casa de patio lateral o casa chorizo como tipo autoconstruido, adoptado por los sectores populares”, señalando sus rasgos principales, en contraposición con el modelo que sustituyó:
1/ la introversión, entendida como la inclusión de todas las circulaciones, baños y cocina al interior de la vivienda.
2/ la compacidad de los ambientes, de dimensiones estrictamente necesarias,
3/ la diferenciación funcional de las habitaciones, en su orientación, localización y dimensiones,
4/ la implantación en el centro del lote, ocupando todo o casi todo su ancho, y
5/ costos mínimos respecto a modelos anteriores por reducción de superficies y perímetros.
En este punto, se propone un ejercicio: analizar las seis viviendas de este fascículo -una de ellas paulista, con rasgos compartidos con las obras bonaerenses-, insertas en tramas urbanas y delimitadas por medianera, con los parámetros que midieron la casa cajón respecto a su antecesora. ¿Las viviendas contemporáneas más valoradas en los tejidos suburbanos son, en muchos casos, la expresión antitética del modelo del siglo anterior? ¿Exaltan algunas de sus características? ¿O cumplen ambas condiciones a la vez?
El lector juzgará -eso sí, con una pequeña muestra elegida de publicaciones de los últimos 10 años-, cuál interrogante es el acertado, o si surge alguna interpretación inesperada.
LA INTROVERSION.
Este rasgo adopta en las viviendas publicadas otro sentido: abren generosamente sus espacios interiores hacia el exterior, pero son introvertidas, en distinta medida, respecto a la calle y el entorno urbano.
“Ahora hay una casa en donde interior y exterior son lo mismo, en donde patio y living son lo mismo”, afirman los autores de “Casa+patio”.
En la “Casa+pérgola”, “… un espacio adentro y un espacio afuera se relacionan en forma física y visual con solución de continuidad: siempre estamos adentro y afuera y siempre es… un solo lugar.”
La estrategia que organiza Casa+terrazas incluye “terrazas y logias que se posicionan en los pisos superiores para lograr la mayor relación visual hacia el parque”.
En Chivilcoy, “el bloque construido pretende ocupar la menor superficie en planta baja con el fin que los espacios exteriores tengan mayor superficie y se articulen de manera directa con el interior según su uso y ubicación.”
El proyecto sustentable de la casa MeMo plantea que “los metros cuadrados de la huella del edificio vuelvan en un jardín en tres dimensiones, vinculando a través del mismo todas las plantas de arquitectura.”
Los colegas paulistas proponen “rodear la casa de jardines, terrazas, balcones que se extienden hacia los interiores, formando un entorno único”.
Hay certeza respecto a las demandas de espacios verdes, de
jardines -mínimos en casos de localización en esquinas- y el máximo contacto posible entre interior y exterior: de los relatos de los profesionales surge que la sustentabilidad y el contacto diario con la naturaleza ya forman parte de las necesidades de un amplio sector de la población. Si algunas decisiones proyectuales responden a estos deseos, ¿es el temor lo que justifica los muros y cerramientos que, sobre línea municipal, separan lo público y lo privado en varios proyectos? Poco o nada se menciona en las memorias, pero se puede intuir que la inseguridad -real o imaginada- es una causa. El resguardo de miradas indiscretas y, por qué no, decisiones vinculadas con la estética, pueden ser otras respuestas. En “Casa+terrazas”, los arquitectos Falcón y Pinto Da Mota plantean que “potenciar el perímetro de contacto de la vivienda con el exterior, entendiendo el lleno y vacío como un todo continuo, da sentido a este monovolumen en esquina, articulando el vacío y evidenciando la vocación urbana del proyecto”. Una posición diferente a las anteriores.
LA COMPACIDAD Y LA DIFERENCIACION FUNCIONAL.
La cantidad de metros cuadrados en los proyectos ha aumentado como respuesta a las nuevas funciones que se incorporan a la vivienda contemporánea. Un espacio para el trabajo hogareño, hoy en día, es tan indiscutible como un dormitorio o una cocina: no es novedad que la pandemia ha afianzado definitivamente esta modalidad laboral. Sin embargo, todavía es una deuda en los programas residenciales, que comienza a saldarse en los proyectos de los últimos tres o cuatro años
Por otro lado, las expansiones exteriores, los ámbitos lúdicos, los patios interiores, forman parte de los programas residenciales desde hace décadas, pero su presencia se ha consolidado definitivamente.
Como alternativa, una estrategia de diseño puede incorporar nuevos espacios y mejorar las condiciones de habitabilidad demoliendo superficie construida. “La operación curiosa que les propusimos fue, en lugar de agrandar la casa, achicarla y optimizarla. Con una operación de vaciado, dimos luz a un dormitorio y la posibilidad de entrada de luz desde dos orientaciones al estar.” Spinelli y López explican con estas palabras la intervención en “Casa+patio”
La estricta diferenciación de funciones que, desde la ciudad al ámbito doméstico propuso la modernidad, es cuestionada por los conceptos contemporáneos de flexibilidad y complejidad.
Sin embargo, no parecen reflejarse en las obras presentadas, salvo algún espacio diferenciado para estudiar o trabajar en un dormitorio o las integraciones de cocina/comedor/estar en las viviendas más pequeñas.
LA IMPLANTACION.
Como la casa cajón, las viviendas se implantan conservando un espacio abierto al frente y otro al fondo, pero a diferencia de aquella, incorporan patios interiores o laterales, en este último caso remedando las viejas casas chorizo de principios del siglo 20. La excepción es “Casa+terrazas”, vivienda en esquina que ocupa la totalidad del lote y propone espacios exteriores en las dos plantas superiores, en la búsqueda de visuales hacia el parque cercano. Si bien el interés por las mejores orientaciones incide como premisa, la implantación se condiciona -plantas y fotos parecen demostrarlo- al vínculo interior-exterior que se ha mencionado anteriormente.
COSTOS MINIMOS.
Si es muy difícil comparar costos por metro cuadrado con 70 años de diferencia, en Argentina se transforma en una tarea casi imposible. En la publicación mencionada al inicio de la nota, se indica un costo de 900 pesos por metro cuadrado, en 1950, para un modelo de casa cajón. Se ha realizado un cálculo, a partir de la puesta en vigencia del peso argentino, que brinda algún indicio: 900 pesos de enero de 1992 representan $ 306.000 en abril de 2023. Una estimación a la que habría que agregar unos 40 años más, desde 1950 hasta el año del cálculo, de incrementos de precios, incluidos dos procesos hiperinflacionarios (1975 y 1989).
Si consideramos que las viviendas de 1950 y 2020 respondían y responden a las necesidades históricas del momento, la comparación de costo unitario parece favorable a las viviendas del siglo 21.
BREVE CONCLUSION.
La asociación del término “casa” con espacios exteriores para denominar cada obra, adoptada para esta ocasión, es ilustrativa de la premisa central que ha guiado a los autores: el esfuerzo por vincular interior y exterior de la manera más fluida posible, apelando a la sustentabilidad como herramienta fundamental de diseño. Incorporar la naturaleza a la vivienda y considerar el cuidado del medio ambiente son ideas en pleno proceso de consolidación en comitentes y profesionales.

COLABORADOR ARQUITECTO PABLO VILLARREAL


FICHA TECNICA
UBICACION LOBOS 1662 / CASTELAR
SUPERFICIE LOTE 367,44 M2
SUPERFICIE CUBIERTA / SEMICUBIERTA 211 M2
FECHA DE FINALIZACION 2017
CREDITOS FOTOGRAFICOS FEDERICO KULEKDJIAN

MEMORIA
La vivienda se ubica sobre un lote de 8.66 x 40 metros en un barrio de clase media de casas bajas, calles y veredas angostas. Está flanqueada a su izquierda (lado sur) por una vivienda de dos plantas retirada cinco metros de la línea municipal, y a su derecha (lado norte), por una de planta única y sobre línea municipal. La demanda de los comitentes constaba de un sector compuesto por cocina, lavadero, comedor diario y estar-comedor, y otro, de usos privados, compuesto por un dormitorio principal en suite con expansión, un lugar único para dormir o estudiar con la posibilidad de dividirse en dos ámbitos de uso autónomos. Por otra parte, solicitaron un estacionamiento no cubierto para un vehículo y un sector de parrilla semicubierto. Dadas las dimensiones del terreno y su preferencia por el disfrute de los lugares verdes y soleados, requirieron liberar la mayor cantidad posible de superficie a este efecto. De igual modo, deseaban espacios interiores muy iluminados, diáfanos y con fluida relación con el exterior. Este requerimiento tan determinado nos llevó a proponer un volumen construido, por una parte, y un sector francamente libre, por la otra (fondo libre).
El tratamiento del volumen se generó entonces a partir de una compleja ambigüedad, donde un espacio adentro y un espacio afuera se relacionan en forma física y visual con solución de continuidad: siempre estamos adentro y afuera y siempre es… un solo lugar.
En el mismo volumen dialogan un ámbito de dos niveles con las funciones sociales abajo y las privadas arriba, y otro de doble altura, con carácter semicubierto otorgado por la piel metálica que lo envuelve, pretendida “pérgola” que en el futuro será soporte de jazmines y glicinas entre otras variedades verdes. Un plano de carpinterías de aluminio vidriadas recorre todo el borde de contacto entre ambos en la planta baja, constituye un límite con una intencionada levedad que enfatiza, sin dejar lugar a dudas, la idea de único espacio poniendo en claro las contradicciones sensoriales buscadas.
Los lugares de planta alta miran esta situación de otra manera valiéndose de aberturas y barandas que remiten a un carácter doméstico, reforzado el mismo por la expansión de la suite que promete placenteros momentos en contacto con el espacio libre del jardín.
La materialidad de la propuesta se determina en la utilización de una estructura de hormigón armado convencional, que no solo actúa como elemento resistente sino también con un fuerte contenido simbólico: emerge del ámbito cubierto como una mano que sostiene con sus dedos, expresados en placas, el segmento semicubierto. La malla metálica completa esta idea, además de otorgar la necesaria cuota de seguridad a toda la vivienda, evitando la utilización de rejas en las aberturas. La mampostería de muros dobles y carpinterías con DVH aportan lo suyo en cuanto a confortabilidad de los espacios interiores.










VICTORIA MARIA FALCON Y ARQUITECTO NICOLAS PINTO DA MOTA
AUTORA/OR ARQUITECTA
COLABORADORES ARQUITECTOS MATIAS COSENZA Y ESTEBAN UNJOLD / AGUSTIN AGUIRRE, TADEO ITZCOVICH Y HERNAN SANCHEZ
EL SITIO
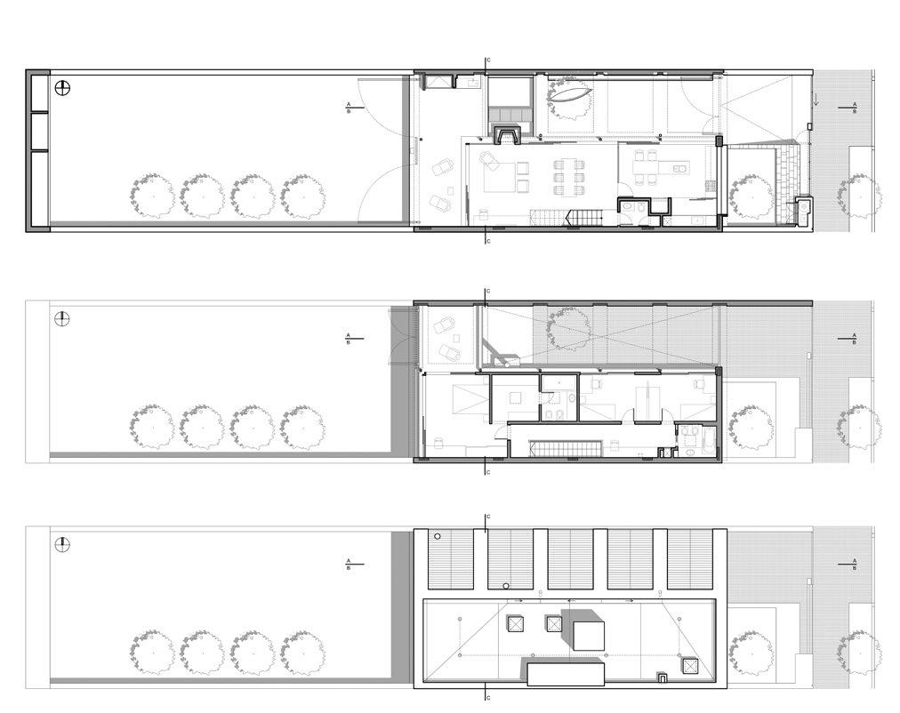
La vivienda se desarrolla en una zona urbana de la ciudad de Buenos Aires, un barrio que conserva la escala de vivienda unifamiliar por cada lote que posee; esto generó una primera aproximación de escala. El terreno de 9,13 metros se caracteriza por dos condicionantes muy fuertes: por un lado, la relación hacia el parque vecino, y por otro, su posición en la esquina de la manzana.
LA FORMA
FICHA TECNICA
UBICACION SAENZ VALIENTE 1105 / C.A.B.A.
SUPERFICIE LOTE 171,92 M2
SUPERFICIE CUBIERTA Y SEMICUBIERTA 266 M2
FECHA DE FINALIZACION 2016
Este tema es de vital importancia, ya sea ahuecando un sólido, compartimentando un único volumen, yuxtaponiendo varios o repartiendo el programa en una serie de volúmenes separados, todos tienen la misma búsqueda: evidenciar la continuidad del tejido urbano, entendiendo que la construcción de la ciudad se debe a la repetición de lo uniforme, y ello se logra replicando buenos y sencillos edificios. La estrategia principal responde a estas condiciones con terrazas y logias que se posicionan en los pisos superiores para lograr la mayor relación visual hacia el parque; este deseo de maximizar la sensación de amplitud da sentido a toda la estrategia. Potenciar el perímetro de contacto de la vivienda con el exterior, entendiendo el lleno y vacío como un todo continuo, da sentido a este monovolumen en esquina, articulando el vacío

y evidenciando la vocación urbana del proyecto. La aplicación de estas operaciones que el volumen evidencia, buscan la uniformidad de un conjunto, una solución de simplicidad formal en la cual radica precisamente su claridad y eficacia.
El programa de la vivienda se fracciona en vertical, ubicando lo público en el piso intermedio (estar, comedor, cocina, terraza); en planta baja, hijos (dormitorios, play, hall acceso); y en planta alta, padres (dormitorio, estudio, terraza). Los servicios y circulaciones verticales se compactan contra el borde menos favorecido por las visuales.
La producción masiva de la arquitectura, en esta región, está ligada a una mano de obra que tiene su mayor destreza vinculada a materiales como el mampuesto o el hormigón in-situ. Estos materiales evidencian aspectos monolíticos que, por su densidad y dimensiones, expresan mejor la idea de permanencia. Este tema es de vital interés, como también la utilización de un material en función de la claridad geométrica de los espacios y la continuidad de los mismos. En este sentido, el interés prioritario no está en aquello que se construye sino en el espacio que, mediante esta construcción, se define y configura. El ladrillo resume todo el volumen y se incorpora naturalmente en el tejido de viviendas que el barrio posee.










GONZALO
AUTORES BAM! ARQUITECTURA / ARQUITECTOS
BARDACH Y MATIAS MOSQUERA
COLABORADORES/A MARCOS GONZALEZ MAZZA Y ANGELICA WEISSHEIM / BAM! + BULLA / PEDRO GEA
FICHA TECNICA
UBICACION SAN ISIDRO
SUPERFICIE CUBIERTA 215 M2
SUPERFICIE SEMICUBIERTA 32 M2
SUPERFICIE CUBIERTAS VERDES 133 M2
FECHA FINALIZACION 2016
CREDITOS FOTOGRAFICOS JAVIER AGUSTIN ROJAS
La casa MeMo, implantada en un terreno en San Isidro, zona norte de la provincia de Buenos Aires, surge con la premisa de una clienta apasionada por el paisajismo con fuerte convicción sobre la sustentabilidad y el cuidado del medio ambiente, de realizar un proyecto en un lote entre medianeras, reduciendo al máximo la pérdida de espacios verdes por la construcción de su vivienda. Frente a la propuesta, nos propusimos con BAM! construir arquitectura y paisaje en forma simultánea. Los metros cuadrados de la huella del edificio vuelven en un jardín en tres dimensiones, vinculando a través del mismo todas las plantas de arquitectura. El diseño morfológico nace frente a la decisión de no desaprovechar metros cuadrados de suelo vegetal, por un lado, y de generar una entrada de luz mediante un patio al tratarse de un terreno entre medianeras, por otro. Frente a esta disposición, se genera un juego topográfico mediante un sistema de rampas verdes que conectan el nivel cero con el primer piso y la cubierta, creando una continua terraza jardín.
MeMo es un proyecto donde el recorrido arquitectónico juega un rol decisivo, teniendo en cuenta al usuario habitual y al ocasional, a los que se les brinda un espectáculo, no solo una imagen fija, sino una serie de imágenes que se solapan, y donde cada cuadro de la escena fue pensado.
Concebimos a la sustentabilidad del proyecto como un camino y no como una meta, tomando las normas LEED como base e incorporando la durabilidad y la economía, conceptos que para nosotros son fundamentales en nuestras obras de arquitectura, satisfaciendo de esta forma las necesidades de las generaciones presentes sin comprometer las posibilidades de las futuras, de forma tal que se reduce de manera significativa el impacto sobre el medioambiente y sus habitantes.
En primer lugar, abordamos el camino de la sustentabilidad mediante la elección de un lote sostenible -donde la propietaria se puede desenvolver a pie o en bicicleta para la mayoría de sus actividades-, como así también mediante la utilización de vegetación nativa en sus jardines y cubiertas, restaurando el paisaje natural y reduciendo el efluente pluvial. Luego iniciamos el diseño con impronta bioambiental, cuidando en el proyecto, desde la ubicación en el terreno, su orientación, la morfología del volumen construido respecto del recorrido del sol y su incidencia en los espacios para aprovechar su energía, la ubicación estratégica de vegetación nativa, hasta la elección de los materiales aislantes de la envolvente arquitectónica. Una vez que determinamos la volumetría del edificio, empezamos con intervenciones más puntuales. Primero, con el uso eficiente del agua por medio de tecnología eficaz en aguas residuales, como así también mediante la reducción del consumo de agua utilizando la de lluvia para el riego de las especies nativas, las cuales tienen un requerimiento mínimo de hidratación. Con respecto a la eficiencia energética, dispusimos paneles solares para el suministro de energía eléctrica, como así también para la alimentación de la climatización. A lo citado se agrega el correcto aventanamiento, utilizando vidrios con DVH y aumentando la aislación térmica. Ambas medidas adoptadas nos permiten reducir el consumo de energía. Para brindar condiciones óptimas de calidad del ambiente interior, diseñamos teniendo como condición el ingreso de luz natural pareja en todos los ambientes, ventilaciones cruzadas y controladas, como así también visuales abiertas al jardín constantemente, brindando un mejor confort térmico. Haciendo foco sobre los materiales, nos es importante hablar de los recursos y la reutilización. Buscamos en todo momento trabajar con materiales de la zona y tratar de generar la menor cantidad de residuos, reutilizando todos los sobrantes. El ejemplo más claro se ve al ingresar por la reja construida con los sobrantes de la estructura. También se diseñó la recolección y separación de residuos reciclables, y la creación de una compostera en el jardín para todos los desechos biodegradables, junto a un lumbricario. Es importante destacar que tuvimos como eje el concepto de durabilidad y economía en la materialidad, buscando garantizar un mantenimiento mínimo mediante la construcción de muros de hormigón armado y almas de EPS como aislante térmico. El resultado termina siendo un innovador proyecto, con una calidad espacial óptima con el mínimo empleo de recursos, y con impactos benéficos sobre el ambiente y la salud de sus usuarios. Un usuario dinámico nos brindó un programa de necesidades particular. Esto resultó ser un gran desafío a la hora de diseñar, ya que la casa es para una mujer que vive el mayor tiempo sola pero que requería contar con espacios para recibir a sus clientes y amigos, por un lado, y espacios para alojar a sus hijos que viven en el exterior y la visitan con frecuencia, por otro. La consecuencia es una casa flexible, que a veces es para una sola persona y otras veces para muchas, plasmado es una zona pública amplia e integrada para el disfrute en familia y amigos, y una zona privada con cuartos en suite que brindan independencia para sus usuarios.
El diseño del paisaje se ha construido en un proceso de investigación y autoconstrucción, afrontando un triple desafío: generar un jardín que funcione como productor de alimentos vegetales, construirlo a partir de premisas sustentables y realizar un aporte considerable a la ecología urbana a partir del uso de especies nativas, construyendo un micro parche urbano constituido por comunidades vegetales originarias.
Se realizó un minucioso estudio botánico de especies propias de la eco-región en cuestión, limítrofe de la pampa y los bosques ribereños, las cuales fueron propagadas, colectadas y plantadas por la comitente de esta casa y jardín.






CONTRAFRENTE






AUTOR ARQUITECTO GONZALO CALLEGARI
COLABORADORES ARQUITECTOS PABLO A.
LANGELLOTTI Y MARTIN PIBERNUS
FICHA TECNICA
UBICACION PUEYRREDON 281 / CHIVILCOY
SUPERFICIE LOTE 345 M2
SUPERFICIE CUBIERTA 223 M2
SUPERFICIE SEMICUBIERTA 84 M2
FECHA FINALIZACION 2014
En una cuadricula rígida y ortogonal, como es el tejido urbano de la ciudad de Chivilcoy, la ubicación del terreno y sus dimensiones son el punto de partida y disparador primordial para el planteo de la obra. Más aún si se trata de una vivienda unifamiliar, donde los distintos ambientes tienen diversas condiciones de asoleamiento y ventilación.
En este encargo nos encontramos con un terreno de poca profundidad y un ancho inusual, en una manzana céntrica de la planta urbana de la ciudad, con la mejor orientación sobre línea municipal. Se implantó la casa cruzada definiendo dos patios, el anterior de uso principal y el posterior de servicio
El bloque construido pretende ocupar la menor superficie en planta baja con el fin que los espacios exteriores tengan mayor superficie y se articulen de manera directa con el interior según su uso y ubicación.












S. LOPEZ
AUTORES ARQUITECTOS EZEQUIEL SPINELLI Y FACUNDO
COLABORADORAS/ES MIRELLA VILLANUEVA Y JULIAN KELIS / JOAQUIN TRAVERSO, GIOVANNI MARIO PEMINTEL LINES Y JOSEFINA BATIZ / JULIAN LAFUENTE y GASTON FLORES
FICHA TECNICA
UBICACION CALLE 21 ESQ 66 / LA PLATA
SUPERFICIE LOTE 145.50 M2
SUPERFICIE CUBIERTA 54 M2
SUPERFICIE SEMICUBIERTA 12 M2
FECHA DE FINALIZACION 2019

Esta es una pequeña remodelación, ubicada en el casco de la ciudad de La Plata, provincia de Buenos Aires. Una vivienda en esquina que no servía a las necesidades de una pareja joven que quería hacerse su casa.
La operación curiosa que les propusimos fue, en lugar de agrandar la casa, achicarla y optimizarla. Con una operación de vaciado, dimos luz a un dormitorio y la posibilidad de entrada de luz desde dos orientaciones al estar. Un espacio todo lo largo y ancho que se pudo, abierto enteramente hacia un patio, que coincide en tamaño. Una viga de 12 metros de luz, en apariencia innecesaria para una casa de 50 metros cuadrados, nos asegura la inexistencia de columnas, de mediaciones entre el interior y el exterior. Las carpinterías pueden abrirse y el espacio del estar, exiguo, se duplica en el patio.
Ahora hay una casa en donde interior y exterior son lo mismo, en donde patio y living son lo mismo. Un muro que es blanco hacia adentro y negro hacia afuera, limita las visuales y da protección a ese patio.
La casa necesitaba ese patio claro, tranquilo, aislado de la ciudad que está afuera. Sin embargo, la mirada del diseño sobre lo constructivo, sigue siendo la clave del proyecto. Esa viga, solo posible gracias al hormigón armado, produce la apertura y un alero que otorga la protección de sombra hacia el norte. Como las galerías del rancho de la pampa argentina. Aquí, la ausencia de espacio, de perspectivas infinitas de llanura, se reemplaza por la neutra imagen blanca del muro revocado. El usuario imaginará sobre ese lienzo blanco cualquier amplitud que desee.










AUTORA/OR UNA / ARQUITECTA CRISTIANE MUNIZ Y ARQUITECTO FERNANDO VIEGAS
COLABORADORES/AS JOAQUIN GAK, JULIA JABUR, LARISSA URBANO, MANUELA
RAITELLI, MARIE LARTIGUE Y MATHEUS PARDAL
MEMORIA
Imaginamos que quien construye una casa en San Pablo busca diluir los límites entre espacios abiertos y cerrados, adentro y afuera, cubiertos y descubiertos, aprovechando nuestro clima. El proyecto interpreta este deseo en un lote de diez metros de ancho, típico del simpático barrio Jardim Paulistano, un lugar privilegiado de la ciudad con comercio, servicios, arbolado e infraestructura. El diseño pretende rodear la casa de jardines, terrazas, balcones que se extienden hacia los interiores, formando un entorno único. La operación principal fue disponer la construcción longitudinalmente sobre el terreno, de forma lineal, manteniendo la mitad del ancho libre con cinco metros. Así, la vegetación se encuentra en la parte norte, asegurando un retiro para la luz solar y la aireación permanente de la casa que se apoya en el borde opuesto. El lote se expande, quedando libre la mayor longitud, reforzando esta percepción de amplitud con balcones, patios y la transparencia de la sala. Esta implantación podría convocarse como norma para la ocupación de estos barrios de dos plantas.
FICHA TECNICA
UBICACION JARDIM PAULISTANO, SAN PABLO SUPERFICIE CUBIERTA 364 M2 FECHA FINALIZACION 2019 CREDITOS FOTOGRAFICOS JAVIER AGUSTIN ROJAS
El techo-jardín brinda una vista amplia, asociando la casa con el paisaje urbano y la geografía, además de definir el techo en una estructura de hormigón. Dos apoyos y la medianera sustentan esta planta y cuelgan, en estructura metálica, la planta intermedia de los dormitorios. Un lucernario continuo junto al vecino permite la iluminación natural de las circulaciones internas y asocia el interior de la casa con el cielo. En el fondo, un segundo bloque se vuelve visible desde la calle y crea una pantalla para el volumen alto vecino al límite posterior. Con servicios en la planta baja y un estudio en el primer piso, está conectado al cuerpo principal por una galería que se puede cubrir o descubrir mediante un sistema retráctil. La escalera abierta es el acceso a la azotea. La casa de “sol y sombra” para cobijar la vida de los residentes, tal como enseñó Marcel Breuer, está presente en las dualidades que componen este proyecto: concreta, porosa, ligera, pesada, opaca, transparente, cruda, delicada, material, vegetal, gravitacional y aérea.






















