










































































































































![]()







































































































































































































“El edificio de vivienda colectiva se inserta de forma silenciosa en el barrio de Las Mercedes, de baja escala residencial en Asunción, pero en constante proceso de transformación o nueva densificación. Se construye sobre un solar de pequeña dimensión (8,40 x 25 metros) e intenta operar con el mayor respeto en un lugar consolidado de viviendas, en un contexto de cerámicas y verdes. (…) El deseo de generar el menor de los impactos y ser lo más amable en un barrio tradicional asunceño fue uno de los objetivos primordiales.”
Memoria Edificio Valois (publicado en esta edición). Arquitecto José Cubilla
No hemos encontrado mejores palabras para compartir con ustedes el espíritu que anima esta nueva edición de los Fascículos CAPBA que las escritas por Joseto Cubilla para describir su obra. Las viviendas de densidad media, el tema que hemos elegido para esta ocasión, habilitan -en nuestra opinión- la posibilidad de construir entornos urbanos razonables, si como razonable se entiende la comprensión profunda que su transformación -inevitable- no implica la desaparición sistemática de las preexistencias, sin que medie la condición de su respeto y valoración como lo que son en esencia: patrimonio urbano. Sin decirse, discutir estas prácticas pone en debate el sentido mismo de la continuidad como concepto, sobre su por qué
y para qué. A riesgo de entrar en un territorio cenagoso, intuimos que priorizar continuidades -en rigor, ciertas continuidades- por sobre los quiebres, conlleva una tarea minuciosa y silenciosa, posiblemente menos atractiva en un contexto donde las imágenes prevalecen sobre los contenidos, pero más efectiva -creemos- a la hora de dar vida a entornos urbanos más humanizados, más cercanos a la pausa que a la velocidad. O, para mejor decir, rehumanizados Lo anónimo, lo común, configuran desde siempre el tejido de nuestras ciudades. Quizá su lenguaje o su gramática no resulten de nuestro agrado, tal vez sus estéticas no son todo lo depuradas que nos gustaría. Sin embargo, hay en ellos más inteligencia y sentido de la realidad de lo que estamos dispuestos a aceptar. Que su transformación es necesaria, por supuesto; que debemos profundizar su estudio para no tropezarnos con los mismos errores, no cabe duda; que contienen una experiencia comunitaria invalorable, no debiera estar hoy en discusión. Ahora bien, dialogar, discutir o pensar con honestidad intelectual el sentido de esa transformación, o aceptar que la construcción de la ciudad no es solo un tema de especialistas -que lleva tiempo, y mucho- no parece ser el modo de operar habitual, casi cotidiano; calmo y silencioso por definición.
Las obras aquí publicadas responden, a nuestro criterio, discutible siempre, a esta matriz. No hay en ellas estridencias inexplicables, no hay renuncia alguna a la singularidad, ni mucho menos a la complejidad contemporánea. Es su espíritu de convivencia lo que las define, un escenario más que propicio para que la arquitectura ponga en juego sus mejores herramientas. En ocasiones, o casi siempre, se exhiben solo argumentos de sostenibilidad económica cuando se impulsa multiplicar densidades o maximizar alturas en sitios con tejidos consolidados en baja densidad. Sin embargo, estos pequeños edificios de los que hoy hablamos, cuadriplican -o más- las capacidades constructivas de las parcelas donde se ubican, sin generan los impactos negativos de los que venimos hablando. Aunque estamos lejos de oponernos a las altas densidades y su producto arquetípico, la torre, nos parece que reservarlas para intervenciones focalizadas, que contribuyan a dotar de valor a nuestras ciudades, no es una opción de deba descartase de plano sin estudiar seriamente otras alternativas posibles. Que las normas deben revisarse porque han quedado muy atrás respecto a la dinámica urbana, no es un planteo novedoso de nuestra parte, pero que su debate quede, la más de las veces, condicionado por la rentabilidad económica y financiera, debiera llamarnos a la reflexión. Nadie es ingenuo en estos temas, pero no parece razonable dejar en manos del mercado la más maravillosa construcción colectiva que conocemos hasta ahora: la ciudad
Propietario Colegio de Arquitectos de la Provincia de Buenos Aires
Director Arq. Ramón Rojo
Consejo editor Arqs. Juan Carlos Sánchez y Mario Pérez
Direccion de arte y diseño Estudio RO-K
Producción publicitaria Arq. Máximo Frederic
CAPBA FASCÍCULOS integra la red de medios de comunicación del Colegio de Arquitectos de la Provincia de Buenos Aires Los artículos publicados expresan los puntos de vista de sus autores y no necesariamente representan los de la institución propietaria. Los artículos sin firma son conocidos por el Consejo Editor y su responsabilidad última recae en el Director Responsable. CAPBA FASCÍCULOS autoriza la reproducción total o parcial de los artículos contenidos en la misma con el compromiso de citar la fuente. Envio digital a 15.000 matriculados CAPBA e instituciones nacionales e internacionales.
COMISION EDITORIAL
Hay amplias coincidencias entre arquitectos, planificadores y especialistas urbanos: con la ciudad compacta -que se expande horizontalmente completando sus vacíos y verticalmente articulando tejidos mixtos de alta, medias y baja densidad- se modera el consumo de recursos limitados (suelo productivo, infraestructuras, red colectiva de movilidad) y garantiza, o debe tender a ello, calidad de vida a sus habitantes. Precisamente, una de las piezas clave para lograr la compacidad urbana es la vivienda multifamiliar de media densidad, de cuatro o cinco plantas como máximo, aquella a la que el arquitecto Alfredo Garay fija como límite de altura la copa de los árboles. Con esta modalidad de multivivienda, el paisaje urbano se enriquece por la diversidad tipológica, el barrio gana en mixtura social, la economía de los pequeños subcentros barriales se beneficia con el aumento de población, y las infraestructuras y equipamientos se utilizan plenamente, disminuyendo las inversiones que implican la expansión de los mismos.
Como toda tipología arquitectónica, la vivienda multifamiliar de media densidad tiene características que le son propias y compartidas por proyectos con diferentes implantaciones urbanas y distintas localizaciones en el territorio bonaerense. Probablemente, las diferencias proyectuales las marque el paso del tiempo y las disímiles necesidades que demanda cada momento histórico. En lo que respecta a las obras que se presentan -en esta oportunidad se publica un proyecto situado en Asunción, diseñado por un colega paraguayo, como una especie de contrapunto con los proyectos locales- son todas contemporáneas, ejecutadas en el lapso de la última década.
Un repaso minucioso de las seis multiviviendas que siguen en las próximas páginas ha permitido, a criterio de este Consejo Editorial, precisar algunas de esas notas comunes que se mencionan anteriormente.
1/ Punto de referencia. La propuesta de convertir a un edifico de tres o cuatro plantas, situado en un área de baja densidad, en un punto de referencia barrial, sin descuidar la necesaria consideración del medio urbano, es denominador común de todas las obras que se presentan.
2/ Vínculo con el entorno. La relación con el contexto es una búsqueda por el lado de la materialidad, las decisiones formales o las prácticas constructivas, en tanto que el disfrute del
paisaje -un espacio verde, propio o ajeno, el barrio o la naturaleza-, son resueltos con espacios circulatorios que se acercan a la promenade lecorbusierana –sin rampas que el espacio construible y la cantidad de niveles no permiten- más allá de su función primaria. Los proyectistas han puesto especial cuidado en destacar los valores visuales y las sensaciones que pueden aportar desde estos espacios colectivos.
3/ Programa diverso. El programa de la multivivienda contempla la diversidad tipológica de unidades, incluso el tipo dúplex, o el destino comercial o administrativo, en algunos casos. Si bien desde los comienzos de la vivienda colectiva, hace más un siglo ya, se adoptó esta modalidad, en muchas ocasiones para mejorar la rentabilidad, actualmente se entiende que la diversidad favorece la mixtura social y generacional. La propuesta de algún servicio común -un lugar de descanso, una terraza amable, la oferta de un espacio público- y de circulaciones amplias y amigables, bien iluminadas, favorecen el contacto social, y éstas últimas también se desempeñan como interfase entre lo público y lo privado, una transición que todos los proyectistas consideran indispensable en la vivienda colectiva. 4/ Materialidad en bruto. El hormigón y el ladrillo vistos, las superficies claras o blancas que resultan de revestimientos acrílicos e, incluso, la tierra compactada del edificio asunceño, son la diversidad de recursos materiales a los que apelan los autores de los proyectos. El resultado: obras sin estridencias que dialogan con sus entornos.
Con seguridad, la práctica lo indica, el avance tecnológico provocará cambios e innovaciones y, quizá en pocos años, esta nota peculiar de los edificios de media densidad -compartidas con otras tipologías- se renueve con otros materiales, otros procesos constructivos (¿la prefabricación y la industrialización generalizada es un horizonte posible en poco tiempo?).
Como conclusión, la multivivienda de media densidad es una opción valiosa para evitar la aglomeración central -con manzanas de 1.500 o más habitantes- y la dispersión del suburbio, tanto en la región metropolitana como en algunas ciudades bonaerense -La Plata o Mar del Plata, las más multitudinarias-, pero también es una excelente alternativa a algunas torres extemporáneas que se levantan en el tejido de ciudades medias bonaerenses.



AUTOR ARQUITECTO JOSE CUBILLA COLABORADORES DAHIANA NUÑEZ, MAURICIO ROJAS
BARRAIL, CAMILA CAFFARENA Y JORGE AUGUSTO NOREÑA / FEDERICO CAIROLI Y LUIS AYALA
(CREDITOS FOTOGRAFICOS)
MEMORIA
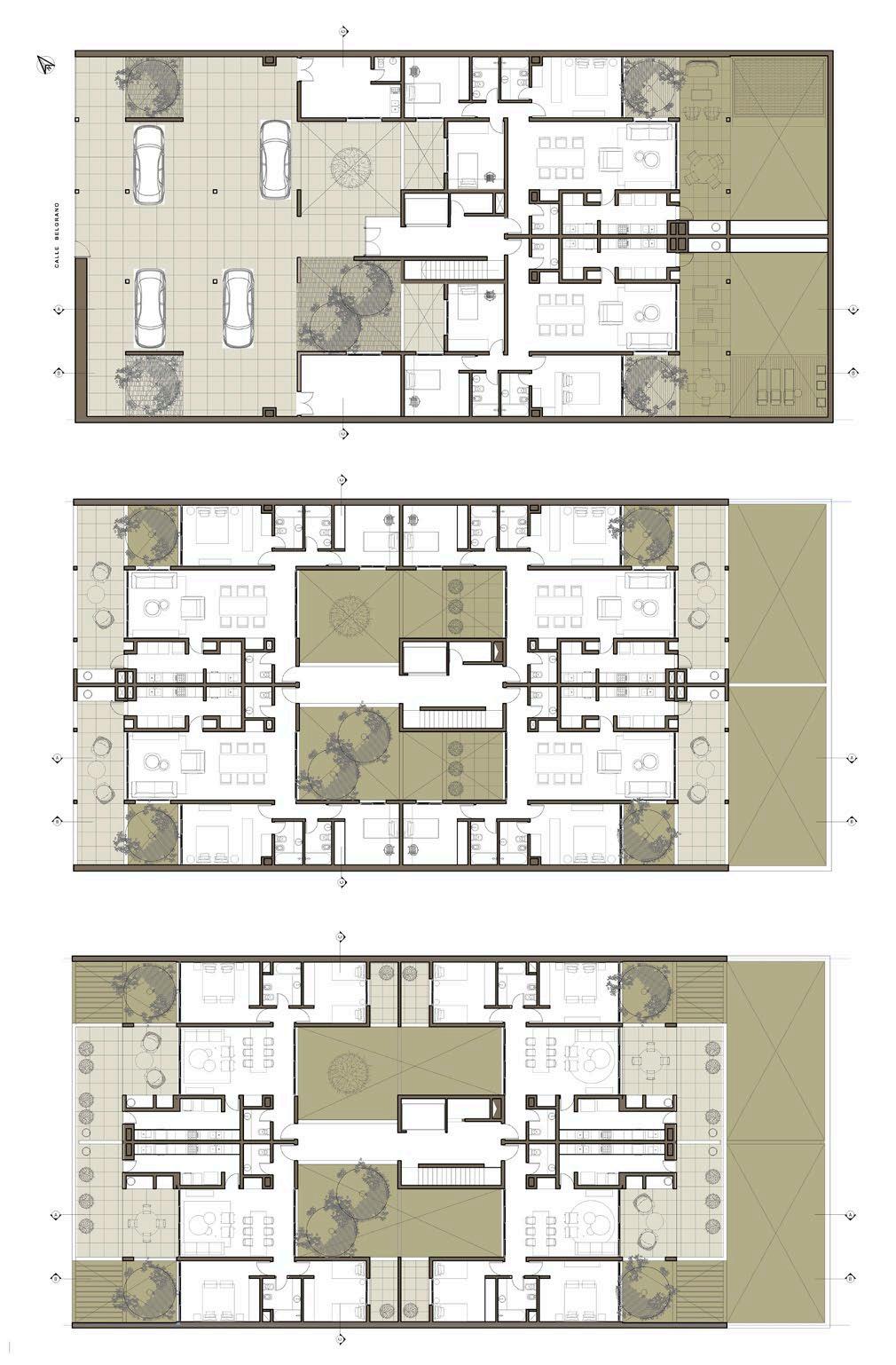
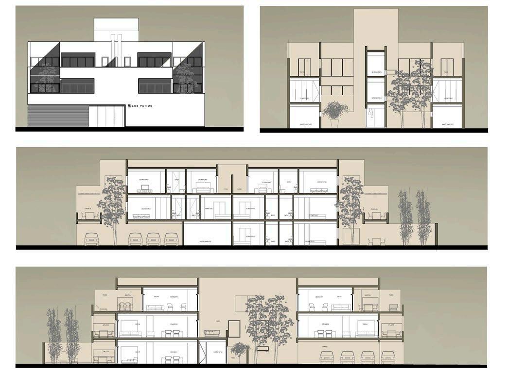
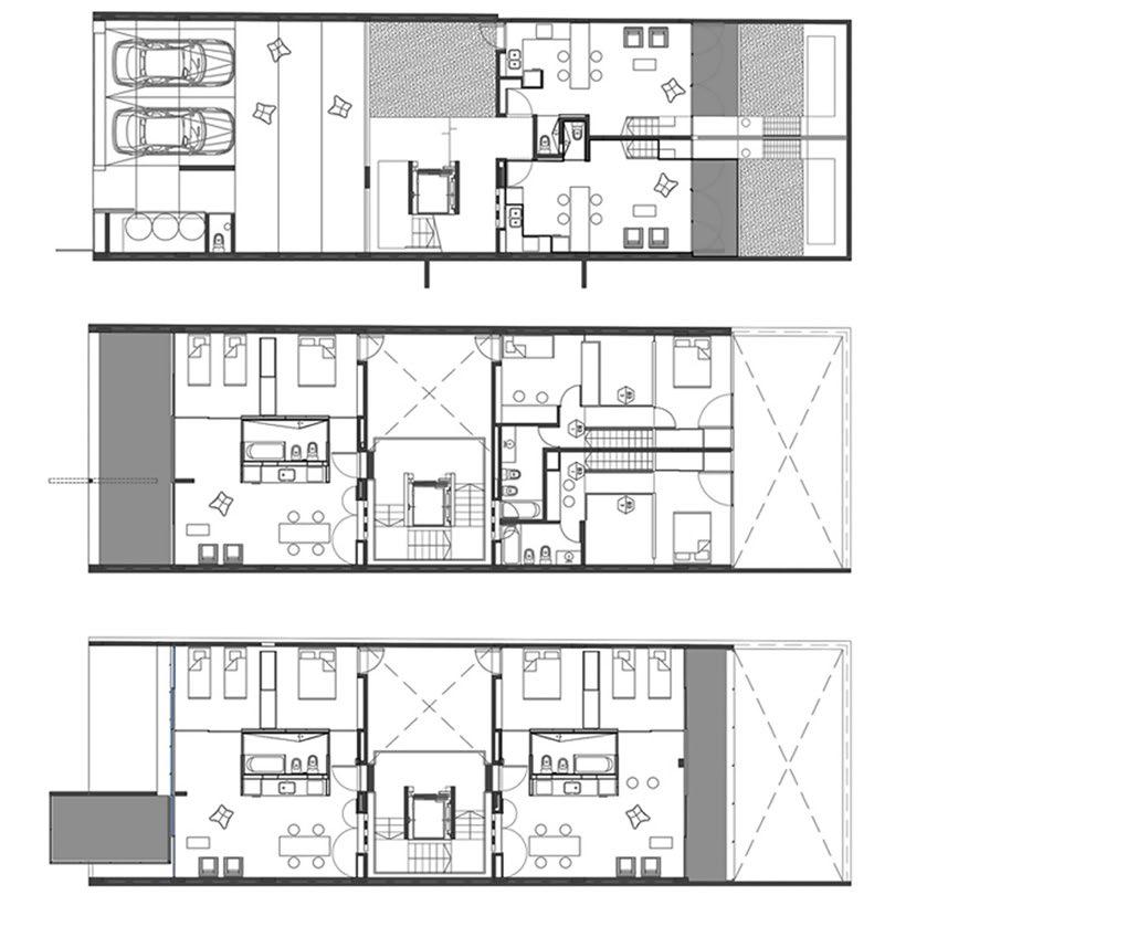
El edificio de vivienda colectiva se inserta de forma silenciosa en el barrio de Las Mercedes, de baja escala residencial en Asunción pero en constante proceso de transformación o nueva densificación. Se construye sobre un solar de pequeña dimensión (8,40 x 25 metros) e intenta operar con el mayor respeto en un lugar consolidado de viviendas, en un contexto de cerámicas y verdes.
La obra se concibe serena e implementa la tierra compactada o Tapial. La idea es proponer este sistema constructivo (visto como rural o milenario) como una posibilidad urbana actual, y proponer desde el diseño nuevas posibilidades de habitar, comprendiendo las complejidades climáticas del sub trópico y atendiendo ciertas características socio culturales pertinentes, en donde reconozcamos la importancia en la participación y colaboración de artesanos y maestros conocedores de la técnica.
La edificación se proyecta como una caja central de tierra que
FICHA TECNICA
UBICACION ASUNCION / PARAGUAY
SUPERFICIE CUBIERTA Y SEMICUBIERTA 650M2 FECHA FINALIZACION 2021
se perfora puntualmente en la fachada y se retira de la calle, como un gesto en el barrio para permitir un espacio de uso público. Los apartamentos, separados por un bloque de escaleras, rematan en una terraza que deja entrever el barrio, el cielo, el paisaje chaqueño y el río Paraguay. El edificio de tierra se retira del lindero para disponer de una galería abierta y ventilada, que es cerrada con una malla metálica que actúa como un manto verde y filtro de luz. Diversas especies de plantas autóctonas trepan y posibilitan esta protección natural, que además de regalar flores y aromas al barrio, protege al edificio del sol y lluvias. Se crea un interesante espacio en sombra, de uso intermedio muy bien ventilado, y posibilita el aprovechamiento en dirección Noreste de una luz más favorable para el uso de actividades comunes. El deseo de generar el menor de los impactos y ser lo más amable en un barrio tradicional asunceño, fue uno de los objetivos primordiales .










AUTORAS ARQUITECTAS PAULA LUCHELLI Y
ADRIANA RANDAZZO
FICHA TECNICA
UBICACION BELGRANO 427 / CHIVILCOY / PARTIDO DE CHIVILCOY
SUPERFICIE LOTE 883,70 M2
SUPERFICIE CUBIERTA 1297,69 M2
SEMICUBIERTA 493,52 M2
FECHA FINALIZACION 2013
MEMORIA
La idea nació con el nombre. Un edificio en el que sus unidades se vivan como pequeñas casas. Recrea la idea de patio como cohesionador de lo vivido, patios que juegan con la visibilidad y la privacidad.
Los patios conforman una trama en tres dimensiones, escalonándose desde la planta baja. Algunos se viven desde el ingreso, recreando, al entrar al edificio, un clima con reminiscencia de las antiguas casas. Los otros patios se descubren desde las unidades de planta baja en perfecto contacto con la tierra y también desde los pisos superiores donde, tanto desde sus interiores como desde sus terrazas, la copa y su follaje se aprecian en verdadera magnitud.
Todo lo demás es un tablero de volúmenes simples blancos que se articulan entre los vacíos para dar vida a los interiores, formando unidades más grandes abajo, que se escalonan hacia arriba, dando unidades más pequeñas.
El equipamiento, iluminación y objetos sólo juegan como piezas independientes, livianas, que se posan sobre la superficie de los pisos para que, finalmente, quienes habitan escriban su propia experiencia en este juego de las transparencias y las opacidades.
En planta baja se localizan estacionamientos y dos departamentos de cuatro ambientes, en tanto que el primer y segundo piso se conforman con cuatro unidades de tres ambientes cada una, pero de distinta tipología según el nivel.












FICHA TECNICA
UBICACION GARIBALDI 70 / TANDIL / PARTIDO DE TANDIL
SUPERFICIE LOTE 1.753 M2
SUPERFICIE CUBIERTA 2.035,89 M2
SUPERFICIE SEMICUBIERTA 1.070,58 M2
FECHA DE FINALIZACION 2016
MEMORIA
En un lote en esquina de un barrio de baja densidad en la ciudad de Tandil, el proyecto incorpora distintas situaciones espaciales y recorridos, buscando profundizar la relación de las viviendas con su exterior. El conjunto presenta variadas superficies libres de edificación destinadas a zonas comunes, dando lugar a la aparición de plazas interiores elevadas, donde se obtuvo una escala humana por la relación del espacio abierto resultante con la altura de las piezas construidas que la conforman. Estos espacios sin destino concreto, no solo hacen posible la organización y estructuración morfológica de las viviendas sino que permiten la interrelación entre sociabilidad y habitabilidad.
Mediante una estricta implantación geométrica, se introduce una referencia de orden y claridad en el tejido urbano. El edificio se organiza como una agrupación de pequeñas viviendas unifamiliares e intenta reproducir el espíritu de las casas que históricamente consolidaron el carácter del barrio.
La profunda expansión ubicada sobre el primer nivel de la esquina, y las generosas terrazas alternadas de las fachadas, conforman grandes vacios que se apropian del espacio urbano, generando una relación de transición entre interior y exterior.
La búsqueda de una espacialidad continua y fluida, resulta de la exaltación de una experiencia originada durante el recorrido. Los corredores se inician, terminan, se abren al exterior, se descubren y se extienden, transformándose en otros espacios colectivos.












AUTOR ARQUITECTO JUAN MICIELI
COLABORADORES LIC. MANUEL MICIELI (DESARROLLO) / ARQUITECTOS IGNACIO MOLINARI, EDGARDO ROJAS Y CHRISTIAN
NAULA Y ARQUITECTAS PATRICIA TEJERA Y FLORENCIA FERREYRA / JUAN MICIELI, ANA ESCOBAR, JOSE TORROGLOSA, NEO PARK, FLORENCIA BARATA (PAISAJE) / ARQUITECTOS PEDRO PEIRANO E IGNACIO MOLINARI Y GUSTAVO CHAPARRO
FICHA TECNICA
UBICACION ENTRE RIOS 2501 / MORENO / PARTIDO DE MORENO
SUPERFICIE LOTE 3.795 M2
SUPERFICIE CUBIERTA Y SEMICUBIERTA 4574,23 M2
FECHA FINALIZACION 2021
El edificio está ubicado en el área metropolitana de las afueras de Buenos Aires; se estructura en torno de un claustro central al que abren todas las unidades. Se busca desdibujar la dicotomía entre espacios públicos y privados y en su lugar se diseñó un edificio con diferentes intensidades de intimidad. La arquitectura es entendida como un artefacto sociabilizador que debe aportar sitios para la conformación de micro comunidades. En este sentido, la vivienda colectiva y los edificios de usos mixtos como COPA, se presentan como grandes oportunidades para ser escenario, y parte, del desarrollo de estas agrupaciones biológicas. Los nuevos modos de habitar que deconstruyen la idea de una familia nuclear que responde a la necesidad de producir determinado tipo de sujeto que sepa responder a determinados modos de producción, nos empujan a pensar nuevamente el significado de la vivienda colectiva y la vida en comunidad. La vivienda debe ser más que la iteración con o sin variaciones de un dispositivo habitativo para determinados grupos más o menos heterogéneos, se trata de todo lo que queda entre esos espacios ya no entendidos como privados sino como espacios de alta intensidad de intimidad. La planta del edificio es una reinterpretación de una forma tradicional de la arquitectura, el claustro; está diseñado siguiendo un riguroso módulo que es tratado luego de manera libre para otorgar movimiento y carácter al edificio. Si bien se maneja un vocabulario moderno, el lenguaje estético es vernacular, lo que facilita la construcción con mano de obra local, acostumbrada a este tipo de trabajo. El ladrillo común con diferentes cocciones


es utilizado a lo largo de toda la obra de diversos modos, explotando sus cualidades expresivas. En el claustro se armó una plaza que aprovechó la vegetación existente y se presenta como un espacio público para todos los habitantes de la comunidad. La esquina norte está desmaterializada para permitir que la luz solar inunde el espacio central, y una operación topográfica permite la continuidad espacial, generando nuevas situaciones y espacialidades. El claustro es entendido como una de las formas arquitectónicas clásicas, sus partes y sus lógicas de construcción son reconfiguradas con un vocabulario moderno y respondiendo a necesidades particulares. Las galerías de circulación y las unidades abren hacia este patio central, dotándolo de un carácter de verdadero espacio público para el encuentro de los habitantes. Este modo de organizar el edificio permite sacar provecho de las características particulares que ofrece el terreno; COPA se arma en torno de la gran arboleda existente, creando una relación de mutuo beneficio entre la naturaleza existente y la naturaleza modificada por la arquitectura. El edificio se nutre de la vegetación existente al mismo tiempo que la protege. El proyecto paisajista o plaza fue armado para generar un ecosistema que preserve las especies existentes y pueda albergar a las especies de pájaros que anidan en ellas, así como las especies de insectos. La vegetación colocada acompaña la existente y se adapta a las condiciones climáticas de la región facilitando el mantenimiento y reduciendo el consumo de agua y de químicos para su mantenimiento. El parque cuenta con un sistema de compostado en el sitio que es utilizado para abonar or-


gánicamente la huerta comunitaria que se encuentra en la parte superior de la plaza. El sistema constructivo elegido, con muros dobles, vidrios DVH, contrapisos alivianados y galerías en forma de alero, permite reducir considerablemente las ganancias térmicas en períodos estivales y las perdidas en períodos invernales, mejorando el rendimiento térmico del edificio. El sector del área metropolitana donde se encuentra el edificio se sitúa muy cerca de la autopista de acceso al centro de la ciudad y el tren, las dos vías de comunicación más importantes de la región, utilizadas cada una por un sector social muy diverso. El proyecto entiende esta realidad suburbana muy degradada pero altamente conectada para ofrecer un modo de vida que se encuentra en medio de la vida congestionada de la ciudad y la vastedad de la ciudad desparramada. Edificios de mediana densidad que no generan conglomerados demasiado grandes pero que tampoco representan gastos inmensos en una infraestructura que debe extenderse cada vez más para dar lugar a la vivienda suburbana en lote privado para la clase media. Se imagina así una ciudad de media densidad que no represente ni una mancha urbana infinita con todos los problemas de consumo energético que eso conlleva, ni una ciudad extremadamente concentrada que traiga aparejada otro tipo de problemáticas como la emergencia y propagación de enfermedades en las poblaciones demasiado densas. COPA se presenta como una reflexión disciplinar respecto de los modos de habitar contemporáneos, el papel de la periferia y el rol de los espacios comunes para la creación de micro-comunidades.

COMPOSICION INTERIOR

CORTE LONGITUDINAL
CORTE TRANSVERSAL
CORTE PERSPECTIVADO


El conjunto de viviendas en la calle Mariano Acha representa una investigación a través del proyecto sobre dos temáticas en las que insistimos cuando existe la oportunidad de operar sobre lotes tradicionales de la ciudad, trabajando con el programa de vivienda colectiva. Estas temáticas son la revisión de las posibilidades de los lotes entre medianeras y la expresión material de los edificios.
En el obra se combinan diferentes tipologías que refieren a distintas formas urbanas de vivir, desde unidades más introspectivas, unidades flexibles que admiten usos por fuera del habitar tradicional, y unidades con grandes lugares ligados a la vida al aire libre.
FICHA TECNICA
UBICACION MARIANO ACHA 1973 / CABA
SUPERFICIE LOTE 240 M2
SUPERFICIE CUBIERTA Y SEMICUBIERTA 630 M2
FECHA FINALIZACION 2013
La volumetría, a partir del tercer nivel, rota las lógicas del lote tradicional de Buenos Aires, consiguiendo un frente en el lateral, que coincide con la mejor orientación y las mejores vistas, aprovechando la menor altura de los linderos y la presencia de la plaza Zapiola.
Las viviendas Acha son un nuevo capítulo, que pretende hacer un aporte a la revisión que deseamos sobre el extenso y denso problema de los edificios de vivienda contemporáneos en las ciudades cada vez más densas.










AUTORES ARQUITECTO PABLO FIDEL RESCIA Y ARQUITECTA
MARIA FLORENCIA VARGAS COLABORADORES INGENIERO FELIPE
OTAROLA (CALCULO ESTRUCTURAL) Y PABLO VILLANO
(MODELADO 3D, RENDERS)
MEMORIA
Un terreno mínimo (12x12) en esquina, en una zona que muta de la vivienda con suelo propio tradicional a una media densidad, tensionada por la cercanía del polo comercial de la calle Güemes. La normativa, que viene en este caso por detrás del impulso inmobiliario, define una altura (5 pisos) que supera la capacidad edilicia del pequeño lote. La estrategia en relación a ese aspecto es forzar un piso alto de casi dos alturas de uso común como quincho que actúa de remate del edificio e incluye tanque de agua y otras instalaciones. Así, el edificio amplía su oferta de equipamiento, dejando la planta baja para el uso de estacionamiento y acceso.
La volumetría juega en el contraste con el plano “suelto” sobre la calle y envuelve el volumen más bajo donde se encuentran las tres unidades de vivienda. Las unidades de viviendas se consideras pequeñas casas en altura, con los siguientes aportes en ese sentido:
= No hay hall común en la salida del ascensor, sino que este lugar ya es propio de la vivienda (una cerradura magnética permite el uso del ascensor sin necesidad del palier común).
= Esto permite la doble circulación, una más privada hacia
FICHA TECNICA
UBICACION AVELLANEDA 1602 / MAR DEL PLATA / PARTIDO DE GENERAL PUEYRREDON
SUPERFICIE LOTE 149 M2
SUPERFICIE CUBIERTA 411 M2
SEMICUBIERTA 20 M2
FECHA FINALIZACION 2019
los dormitorios, y otra más pública hacia el área pública, estar y comedor.
= La cocina se considera como articulación entre estas áreas, conformando un espacio que se suma al área pública, incorporando la mesa de comer a la isla de cocinar.
= Las áreas públicas de la vivienda se proponen con grandes paños vidriados de piso a techo, en tanto que los vanos que caracterizan circulaciones y cocina, ubicados sobre el filo exterior, producen pequeños estantes en los antepechos, donde cada usuario ubica su imaginario familiar.
La volumetría es una articulación entre los planos de fachada, dejando la esquina como una sustracción donde aparecen balcones, y en planta baja, el acceso al hall. La primera unidad no tiene balcón, de modo que el acceso toma una doble altura exterior. La imagen apela a planos tersos y austeros, de pequeñas perforaciones aleatorias, de un monocolor que abarca todos los componentes de la fachada, reforzando una austeridad que destaca la articulación de los volúmenes, relegando lo maquínico y lo estructural a un segundo plano.







IMPLANTACION














