


































FASCÍCULOS
































![]()





















































































































































“Las características propias de esa arquitectura suelen ser la informalidad pintoresquista, una mayor calidez visual, rusticidad en las texturas y evocación de imágenes campestres en general (…) Todo esto está bien en tanto se quiera preservar las esencias de las arquitecturas campestres antes que sus apariencias o sea la búsqueda de lo esencial de una forma de vivir a través de una forma de construir (…) La arquitectura residencial podrá ser todo lo cálida o libre que se quiera sin tener que convertirse por ello en un remedo de postal de viaje o catálogo estilístico (…) Pero la arquitectura de nuestros clubes de campo y suburbios residenciales en general muestra esa fuerte inclinación y las copia sin razón”
Publicado en Nuestra Arquitectura_Año 51_N°516_Octubre de 1981/Clubes de campo, el suburbio feliz (pág.9)
Más allá de estar de acuerdo o no con estas reflexiones, hechas en un tiempo muy distinto al actual, nos resultan muy adecuadas para encuadrar un tema recurrente, no por ello agotado. Hoy, como hace más de 40 años, las urbanizaciones cerradas -UC-, sean estas clubes de campo, barrios cerrados o cualquier otra denominación que quiera utilizarse, constituyen una parte sustancial de la fuente laboral de los arquitectos bonaerenses. Ya no sucede que la arquitectura pintoresquista a la que refieren las primeras líneas que prologan este editorial, es casi la única opción de proyecto en estos sitios. Mucho se discutió en estos años acerca de la necesidad de pensar el espacio contemporáneo, de renovar lenguajes y dispositivos proyectuales, dentro de estructuras sociales que ha mutado invariablemente ante escenarios de incertidumbre, omnipresentes en la vida urbana. Ya no solo los suburbios de
nuestras ciudades reciben habitantes deseosos de naturaleza durante los fines de semana, sino, y también, a aquellos que lo hacen buscando un hábitat permanente, un mejor vivir, donde la seguridad física de las familias ocupa un lugar impensado hace no tantos años atrás. Obviamente no todxs puede acceder a las UC, pero no es el objeto de este breve texto abordar este punto. Se trata, más bien, de exponer un punto de vista acerca de la práctica de la arquitectura en sitios donde el recurso para construir es cuantioso, si bien no infinito, donde los márgenes de libertad proyectual son ampliamente mayores que en los centros urbanos, o, para mejor decir, en la ciudad abierta. Aquí, donde las rejas no existen, los cercos linderos no son infinitamente altos o atravesados por dispositivos de vigilancia electrónica o disuasión eléctrica, los espacios habitables pueden ser pensados generosamente, en forma y tamaño… Qué más pedir, ¿no?
Es evidente que los lenguajes se han renovado, que la luz natural recobra ese rol constitutivo tan caro a los arquitectos y que el abordaje material de las obras encuentra un nuevo espacio de exploración, impulsada por las nuevas tecnologías. Los cerramientos se aligeran; el acondicionamiento térmico, si se dispone de los recursos económicos necesarios, ya no necesita de enormes equipos para resolverse; los tiempos de obra se acortan y la mano de obra logra capacitarse en nuevas direcciones, solo por mencionar algunos aspectos entre tantísimos otros…Y de la mano de nuevas generaciones de arquitectos abiertos a la investigación e innovación, dotados de nuevas sensibilidades que el espacio contemporáneo, complejo por demás, torna ineludibles. Aquí nos detenemos por unos segundos, solo insistir en que lo que estamos diciendo es, en buena medida, producto de una apertura inédita hacia nuestra región de pertenencia, sucedida -y recuperada-desde los inicios de este siglo. Ahora bien, ¿esto nos exime del riesgo de volvernos reiterativos, sabedores de que hemos dado con productos arquitectónicos que hoy cuentan con amplia aceptación?... Si ocurrió en aquellos clubes de campos que muchas veces pusimos en cuestión, claramente la respuesta es no.
Desde ahí se explica la elección de obras para esta nueva edición digital. Quizá no singulares -objetivo que nunca buscamos-, sino menos frecuente de encontrar en las UC. Como sea, es solo la opinión de un equipo que comparte la idea que la síntesis en la arquitectura es una búsqueda a no abandonar, que sus componentes esenciales no han perdido vigencia, que la abundancia de recursos no son condición suficiente a la hora de poner en pie edificios pertinentes a tiempo y lugar -a los que hoy llamamos sustentables- o, mejor decir, que construyan futuro sin dañar el sendero transitado por las generaciones que nos antecedieron.
Propietario Colegio de Arquitectos de la Provincia de Buenos Aires
Director Arq. Ramón Rojo
Consejo editor Arqs. Juan Carlos Sánchez y Mario Pérez
Direccion de arte y diseño Estudio RO-K
Producción publicitaria Arq. Máximo Frederic
Revista del Colegio de Arquitectos de la Provincia de Buenos Aires
CAPBA FASCÍCULOS integra la red de medios de comunicación del Colegio de Arquitectos de la Provincia de Buenos Aires Los artículos publicados expresan los puntos de vista de sus autores y no necesariamente representan los de la institución propietaria. Los artículos sin firma son conocidos por el Consejo Editor y su responsabilidad última recae en el Director Responsable. CAPBA FASCÍCULOS autoriza la reproducción total o parcial de los artículos contenidos en la misma con el compromiso de citar la fuente. Envio digital a 15.000 matriculados CAPBA e instituciones nacionales e internacionales.
COMISION EDITORIAL
“La década del 70 fue la que asistió al fenómeno de explosión de los countries. Si bien existían previamente, es en esa década y a favor de la consolidación del Acceso Norte, que los countries van a aparecer como ‘las ranas después de un aguacero`, según la expresión albrozada del gerente de una inmobiliaria especializada en la venta de countries.”
Este texto ha sido tomado de una nota de los arquitectos Antonio Belluci y Julián Gil, publicada en un ejemplar de la revista “Nuestra arquitectura” de 1981, ya citada en la Editorial. Cuarenta y dos años atrás.
Hacia fines de la década del 90 (casi 20 años después que en la nota se señalara una “explosión”), cerca de 500 countries se localizaban en territorio bonaerense. En 2020, ARBA informaba que había más de 1.000 countries y barrios cerrados (568 registrados formalmente, 73 tributando como “tierra en desarrollo” y más de 300 no registrados) en la provincia de Buenos Aires. Crecimiento exponencial en cantidad, pero no solo eso. Nordelta, por ejemplo y según su sitio web, cuenta con “27 barrios lanzados, 50.000 habitantes, 5 colegios con una completa propuesta educativa con más de 5.000 alumnos, Centro Médico del Sanatorio Las Lomas con más de 80 especialistas, centro comercial con más de 100 locales, 5 salas de cine, 5 bancos, 3 estaciones de servicio, 23 restaurants […], un completo Club Deportivo con dos sedes y una cancha de golf de 18 hoyos, […] y un Hotel 5 estrellas”. Una ciudad mediana en 1.600 hectáreas, una “ciudad de los 15 minutos” que podría entusiasmar a algún urbanista que se interesa por las últimas teorías en boga. En definitiva, más urbanizaciones cerradas y más grandes, una historia que comienza hace casi un siglo con el Tortugas Country Club (1930), que ofrecía viviendas de “estilo californiano” (sic) para disfrutar del aire libre, la tranquilidad y la proximidad a las instalaciones deportivas, oportunidades que no brindaban los clubes en áreas urbanas o aquellos que, alejados de las mismas, implicaban para sus socios un penoso viaje de ida y vuelta. En los ´70, el decreto-ley 8912 del gobierno de facto bonaerense le otorga a las UC un estatus especial (todo un capítulo dedicado a ellas) dentro de la normativa urbana y territorial. Con el
nuevo siglo, renovados hábitos de vida, consumo y trabajo, inversiones inmobiliarias que aseguraban alta rentabilidad y una publicidad seductora hicieron de las urbanizaciones un lugar de residencia estable y asociada a un estilo de vida.
¿Cómo responde la arquitectura a este nuevo formato del club de campo y el barrio cerrado? Una serie de dualismos o premisas contradictorias, a nuestro entender, deben resolverse al momento del proyecto.
La oportunidad de brindar iluminación y ventilación natural y una variedad y amplitud de visuales, que un ambiente “natural” (naturaleza antropizada, intervenida para ajustarla a ciertos estándares de vida) parece facilitar, exige transparencia pero conlleva exposición. Por otro lado, la privacidad y el aislamiento, asociados a la relajación y el descanso, que se pregonan como atributos que debe asegurar toda UC, obligan al muro ciego y la negación del entorno.
La antigua disociación entre trabajo y ocio, que fundamentó incluso el nacimiento del club de campo, ya no es tal. El programa debe proponer espacios lúdicos, pero ahora se suman los ámbitos laborales, considerando que las viviendas son ya, en su inmensa mayoría, de residencia permanente y el home office se ha instalado definitivamente.
En un momento, las reglamentaciones de algunas UC intentaron establecer reglas morfológicas para evitar una excesiva heterogeneidad de estéticas, imágenes o estilos (cada cual elegirá la palabra). Sin embargo, lapsos prolongados de tiempo para completar la trama del sitio y la sucesión de modelos que se impusieron entre los profesionales y la sociedad han producido, en algunos casos, verdaderos “museos a cielo abierto” de la arquitectura dominante a lo largo de las últimas décadas.
Como en anteriores oportunidades, buscaremos alguna respuesta (seguramente las habrá muchas y con buenos argumentos) a la pregunta inicial entre las obras que han sido seleccionadas (una publicación exige una elección, siempre arbitraria). Los proyectos que se presentan, entendemos, han resuelto con éxito los dilemas esbozados más arriba. El lector, como de costumbre, deberá sacar sus propias conclusiones.


AUTORES CENTRO CERO ESTUDIO / ARQUITECTO LEONARDO G. VALTUILLE Y ARQUITECTA CAROLINA ANTOLINI COLABORADOR/AS MARTIN MARTINEZ,
ARIANA MIRANDA, MARINA BALDUZZI Y FERNANDA MIEREZ
MEMORIA
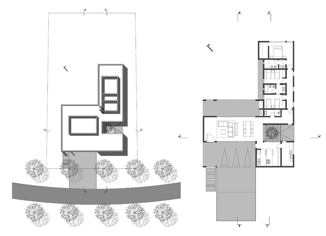
El proyecto se sitúa en un club de campo sobre la Ruta 6, en el partido de Marcos Paz, provincia de Buenos Aires. En un entorno predominantemente rural, el barrio toma la forma de dos ramilletes de hojas que contienen un gran parque central libre. Lindando con este vacío, al final del emprendimiento, se sitúa el terreno sobre el cual se implanta la casa.
La forma semicircular del predio y su ubicación relativa en el barrio definen, tanto como las orientaciones, la implantación de la casa. El buen sol del Este ofrece también las mejores y más extensas visuales hacia el parque central, sin interferencias. En consecuencia, sobre ese sector se abren las funciones principales de la casa -living comedor y dormitorios- y en contraposición se ubican los servicios, filtrando el sol de la tarde y las vistas de los vecinos, al oeste.
Se proyecta así una pieza longitudinal, apoyada sobre el lado recto del terreno, con acceso desde el norte y en corte ascendente hacia el sur, generando una segunda planta más privada y contenida para aprovechar las vistas desde un nivel superior. Este corte y la definición material de la obra terminan estableciendo gran parte de la impronta de la casa.
Particularmente en esta obra, la lógica constructiva surge desde un primer momento, resultando una oportunidad para de-
FICHA TECNICA UBICACION CLUB DE CAMPO LAS HOJAS / PARTIDO DE MARCOS PAZ
SUPERFICIE TERRENO 1958 M2
SUPERFICIE CUBIERTA 350 M2
FECHA FINALIZACION 2021
CREDITOS FOTOGRAFICOS ARQUITECTO JAVIER AGUSTIN ROJAS
sarrollar un sistema que combina materiales nobles, a la vista, de escaso mantenimiento y que toleraran una ejecución de obra en etapas sucesivas. El resultado es una vivienda que se define por esa lógica material, tanto en sus módulos como en sus instalaciones y equipamiento.
El ladrillo visto “Silma” resuelve los lados cerrados, permite filtrar visuales de los servicios y diluir vanos, pero no se corta con la forma inclinada del techo. Ese espacio triangular resultante es transparente, es vidriado, tanto en el interior como en el exterior, otorgando liviandad al conjunto y multiplicidad de situaciones lumínicas durante el transcurso del día. La estructura metálica -IPN, UPN, tubos- se percibe siempre, estructura el proyecto y lo caracteriza. La cubierta de doble chapa y poliuretano -termopanel- permite maximizar la aislación, los tiempos de ejecución y se muestra en su expresión original. Los muros, también de termopanel, al este, se amalgaman con las carpinterías de aluminio y resuelven en forma liviana el cerramiento del tímpano sobre las mismas. En consonancia con esta lógica, el corte completa la definición proyectual. Un volumen único y puro con un techo quebrado que permite acceder por el punto más bajo, tras atravesar un gran semicubierto, y percibir la totalidad de la obra, la cubierta ascendente, el balconeo y las distintas situaciones de fuga y transparencia.








IMPLANTACIÓN






FICHA TECNICA
UBICACION BARRIO SAN BENITO / VILLANUEVA / ESCOBAR
SUPERFICIE TERRENO 1.123 M2
SUPERFICIE CONSTRUIDA 253 M2
FECHA FINALIZACIÓN 2016
EL SITIO
Se trata de un lote en una zona residencial de un barrio cerrado perteneciente a la localidad de Villanueva, que se caracteriza por haber modificado terrenos bajos inundados, creando lagunas artificiales con interés paisajístico y rellenando otros sectores con la tierra removida para uso público y privado. Allí nos encontramos con un gran lote en contacto con una de las lagunas, sin otra atracción que las vista a la misma, ya que la vegetación existente es todavía muy joven y está dispuesta sólo en el espacio público.
El reto de este encargo era entonces concebir una casa que capitalizara el valor de ese espejo de agua, garantizando que todos los ambientes pudieran disfrutar de las visuales al mismo, resolviendo simultáneamente el problema de que estos puntos de vista coinciden con una orientación SE, desfavorable para la mayoría de las habitaciones en la casa.
EL ENCARGO
Los comitentes, un matrimonio interesado en la complejidad espacial de nuestras obras de hormigón visto, pero con reservas sobre la crudeza del resultado material, nos otorgan este proyecto con el requisito explícito de que el hormigón permanezca oculto detrás de un revestimiento, sin textura y



monocromo, entendiendo que, de esa manera, sin perder la libertad formal otorgada por el hormigón estructural, el resultado será una de una segura abstracción formal.
EL PROGRAMA
Una casa para ser habitada sólo por el matrimonio, un sector social de grandes dimensiones, un dormitorio principal con baño y amplio vestidor, y dos dormitorios de huéspedes con un baño para dar cabida a los niños y nietos los fines de semana. Si bien la casa se podía desarrollar en dos plantas, se proyectó la posibilidad a futuro de armar un dormitorio en planta baja. También se requirió un lugar para guardar artículos de jardinería y almacén, un garaje, una galería con parrilla, una gran piscina y un pequeño muelle en la laguna.
LA PROPUESTA
En respuesta a un entorno muy indeterminado, propusimos una casa abierta a su jardín interior y cerrada a la calle y a sus futuros vecinos, organizada en dos plantas con el objetivo de que la mayoría de las habitaciones pudieran disfrutar de las vistas al lago.
Tratando de resolver la dicotomía entre ese objetivo y la necesidad de asoleamiento en cada habitación, decidimos disponer las funciones en dos volúmenes desplazados, vinculados por un vacío de doble altura que contiene la escalera y la cir-
culación de la planta superior. Por lo tanto, en la planta baja se consigue una buena orientación, así como vistas a la parte delantera y la laguna, en la sala de estar y en el área de cocina y comedor. En la planta superior, el dormitorio principal goza de las mismas ventajas, además de estar aislado del resto de los dormitorios por una circulación que hace las veces de puente sobre la doble altura, con vistas de la laguna en su trayecto. La zonificación funcional no se expresa volumétricamente, buscando lograr con ello y con el monocromatismo interior y exterior, la síntesis formal y la abstracción material requerida.
TRATAMIENTO DE LA LUZ Y LAS VISUALES
Este es un tema que nos interesa en particular, por lo que hay, en todos los proyectos, una especial intención de controlar la incidencia de la luz solar sobre las superficies de vidrio como asimismo mejorar la luz natural, como material de proyecto que trae riqueza a los espacios vitales.
Si entendemos las aberturas como tales, no como elementos estandarizados con medidas preestablecidas y posiciones, sino más bien como tallada en los edificios que, por supuesto, no solo permiten la ventilación e iluminación de los ambiente, sino que dejan indefinida la relación interior-exterior, enmarcando el paisaje, filtrando luz, reflejándola en una pared, etc., entonces estas perforaciones serán el resultado de la manera especial en que queremos establecer estas relaciones.













FICHA TECNICA
UBICACION LUJAN / PARTIDO DE LUJAN
SUPERFICIE CONSTRUIDA 309 M2
FECHA FINALIZACION 2018
El terreno intervenido está ubicado en un Club de Campo en la ciudad de Luján, provincia de Buenos Aires. Un lugar para descansar del ajetreo actual, a sólo 70 kilómetros de la capital. Se trata de un lote atípico por el fuelle verde que existe frente a él; esta singularidad fue el punto de partida para el desarrollo del proyecto. La interpretación rigurosa del lugar y de los requerimientos del programa fue la base de una exploración, con el fin de lograr que lo natural y lo artificial interactúen y disipen sus límites. La forma surgió como consecuencia de esta búsqueda y no como premisa del proyecto. El resultado, un esquema en planta baja que aseguró la relación sensorial entre todos los espacios de la vivienda y la naturaleza: dos prismas perpendiculares entre sí, que sufren diferentes transformaciones y, en la intersección entre ambos, un vacío permite el ingreso de manera controlada en ambas direcciones. El prisma paralelo a la calle contiene las áreas públicas en un espacio libre y flexible, lo que le permite cumplir su función sin condicionamientos. Es un volumen alargado, vidriado casi en su totalidad, para que los espacios verdes se conecten a través de él. Las vigas invertidas permitieron aventanamientos de piso a



techo que enfatizaron esta conexión. Los semicubiertos en sus lados principales -acceso peatonal y garaje adelante y galería detrás- controlan la entrada de luz en el espacio interior y refuerzan el carácter etéreo del sector. El prisma perpendicular a la calle, que contiene las áreas privadas, es contundente para resguardar a los usuarios. Cocina y lavadero se niegan a la calle a través de un muro completamente opaco y se abren al vacío interior, espacio que toma protagonismo a partir de un acer palmatum. El resto del volumen contiene dormitorios y baños, ubicados estratégicamente en relación con el norte y el propio parque. El ingreso a los baños se da a través de los dormitorios para brindar mayor privacidad, lo que permitió apertura y luminosidad en el corredor. Como remate, el dormitorio principal, al resguardado visual del resto de la vivienda y abierto al fondo del terreno. En conclusión, un proyecto simple y efectivo, con equilibrio compositivo entre llenos y vacíos, muestra contundencia y ligereza a la vez. La disposición intencionada de los elementos vincula ciertos espacios y anula otros, a través del uso de la transparencia en forma selectiva.












AUTOR ARQUITECTO BERNARDO ROSELLO
COLABORADORES INGENIERO JORGE
ROSELLO (CALCULO ESTRUCTURAL) /
ARQUITECTOS FLORENCIA MUÑOZ, PITTI
BOLLETTINO Y CLAUDIO BRUN
FICHA TECNICA
UBICACION CLUB DE CAMPO SAN JOAQUIN / CAPILLA DEL SEÑOR / PARTIDO DE
EXALTACION DE LA CRUZ
SUPERFICIE LOTE 2.010 M2
SUPERFICIE CUBIERTA 223 M2
SEMICUBIERTA 118 M2
FECHA DE FINALIZACION 2009
La vivienda está ubicada en el Barrio San Joaquín, cercano a Capilla del Señor, a unos 80 kilómetros de la ciudad de Buenos Aires, con acceso desde las rutas 8 y 9. Los propietarios poseen tres terrenos lindantes de 30 x 67 metros cada uno. Por pedido de los mismos, la vivienda se debía posicionar en solo uno de ellos, pero orientándose de manera tal que, mientras que los dos terrenos restantes no se utilizaran, pudieran gozar de las visuales de los mismos como expansión verde. Y en un futuro, cuando ambos terrenos fuesen construidos o vendidos, igualmente se garantizara una porción de parque acorde a la superficie de la vivienda. La familia se compone por un matrimonio, un hijo y una hija con capacidades reducidas, que requiere continua atención médica, motivo por el cual transcurren gran parte de las jornadas en un espacio interior. Viviendo en Buenos Aires desean trasladarse a un contexto suburbano con predominio de espacios verdes. La razón de la construcción de la vivienda surge de la necesidad de mejorar la calidad de vida y el deseo de trasladarse se fundamenta en el disfrutar de un confort ambiental basado en la relación con la naturaleza. Estas necesidades por parte de los comitentes, posibilitan el hecho de plantear la vivienda como un organismo en donde los espacios interiores interactúan de manera efectiva con el paisaje circundante, intentando que las decisiones arquitectónicas tomadas resuelvan los aspectos fundamentales requeridos por la familia. Debido a los problemas de movilidad por parte de la hija, la vivienda se desarrolla en una única planta, evitando de esta manera barreras arquitectónicas y logrando una fluida movilidad. Por este mismo motivo, la vivienda se realza respecto a la cota del terreno (pero conectándose con el mismo, mediante una rampa de suave pendiente) para enfatizar las perspectivas del horizonte, relacionándose de manera



contemplativa con el paisaje pampeano circundante.
La vivienda se organiza sobre dos cubiertas planas compuesta por un sistema de losas y vigas de hormigón, que se apoyan y unifican mediante un basamento a cota +1.00 metro respecto al terreno. Bajo la losa mayor se organiza la vivienda, mientras que en la pequeña se ubican el garaje y una dependencia de servicio o huéspedes. El programa se articula de manera clara y funcional, un área de ingreso divide, en un extremo, la zona noche, en la parte central, la habitación con servicios especiales de enfermería para la hija, y en el otro extremo, las áreas públicas. Todos los locales importantes poseen la orientación NE-NO; en las habitaciones se coloca un sistema de parasoles a modo de protección y control solar, garantizando de esta manera el ahorro energético, no siendo necesario este sistema en los locales con amplios voladizos, como en la zona de estar comedor. El área de usos semi-cubiertos (quincho) se plantea como una extensión del estar, y se relaciona directamente con la zona de solarium y piscina, posicionada en el ángulo con mayor iluminación solar. La obra cumple con las normativas vigentes en cuestiones de planeamiento y edificación.
CRITERIOS DE SOSTENIBILIDAD
La concepción arquitectónica de una vivienda debe contemplar desde sus inicios criterios de sostenibilidad y ahorro energéticos, es decir, se debe asignar tanta importancia a la resolución del programa funcional/formal, como a los criterios de flexibilidad y ahorro energéticos de la misma. Se debe intentar reducir al mínimo el consumo de energía que va en aumento considerablemente en los últimos años, logrando el mayor grado de autosuficiencia energética posible, partiendo de la base de que la instalación que menos consumo tiene es la que no existe.

Los cerramientos exteriores actúan como reguladores de la radiación solar, en consecuencia, de la iluminación y ventilación natural requerida en todos los locales principales de la vivienda. Estas medidas pasivas de regulación de energía minimizan su suministro y pasan a formar parte de la propia arquitectura desde sus inicios. No se trata de generar un edificio adjetivado en la sostenibilidad ni con una cosmética verde sino de conseguir el bienestar térmico adecuado para garantizar el confort de sus habitantes.
La estructura se organiza geométricamente en un sistema modular de 3,35 x 6,9 metros, compuesto por columnas, vigas y losas de hormigón armado. El sistema de vigas transversales cubre una luz de 6,9 metros, dejando a ambos lados dos voladizos de 1,8 metros. La cubierta es una estructura de hormigón armado monolítica, el cálculo requería la colada de toda la cubierta en una sola vez incluyendo columnas (350 metros cuadrados) y con un hormigón de una calidad mínima H21. Se consiguió con hormigón elaborado y bombeo, y se realizó en una sola jornada de 8 horas.
El proyecto requería de amplios voladizos que debían conseguirse con vigas y columnas esbeltas y también con una cantidad mínima de éstas, fue posible lograrlo aprovechando la simetría estructural y haciendo actuar estos voladizos como contrapesos de los tramos centrales de las vigas. Se puso especial atención en el cálculo de las deformaciones. La estructura resultó con una “armadura normal” no superior a las estructuras de viviendas clásicas sin voladizos siendo el espesor promedio, incluyendo losas, vigas y columnas, de solo 12,50 cm/metro cuadrado de losa (bastante menor al promedio estándar de viviendas comunes, que está por encima de 15 centímetros).






AUTOR ARQUITECTO ANTONIO CARRASCO
COLABORADORES ARQUITECTO JUAN RUBEN CHOQUE / INGENIERO
JUAN PABLO BUSTI (ESTRUCTURA) / ARQUITECTO JAVIER AGUSTIN ROJAS (FOTOGRAFIA)
FICHA TECNICA
UBICACION COSTA ESMERALDA / PARTIDO DE LA COSTA
SUPERFICIE LOTE 1.500 M2
SUPERFICIE CUBIERTA / SEMICUBIERTA 160 M2
FECHA DE FINALIZACION 2016
Un médano con mucha pendiente rodeado por un bosque de eucaliptos, son las referencias iniciales de esta vivienda de veraneo. Se presenta como un mirador que consigue declarar y mantener su privacidad mediante la separación del terreno. La solución adoptada se compone de dos cuerpos colocados perpendicularmente sobre una plataforma principal, que hará de transición de las irregularidades topográficas y las superficies horizontales necesarias para el programa. Una circulación conecta las diversas partes de la casa, abriéndose a media altura a un jardín, que adaptará la volumetría general de la edificación a los accidentes naturales del terreno. El acceso, a modo de vestíbulo al aire libre, es una terraza abierta, permitiendo una relación dominante sobre el entorno; es la separación, el filtro, que distancia el espacio privado, de la calle. La razón de la extensión de la vivienda en alas responde, principalmente, al intento de privatizar el espacio de la casa por medio de la disposición de la construcción en la parcela. El eje horizontal de la “T” construye el limite lateral del recinto (con su espesor ayuda a amortiguar los ruidos del boulevard). Y el eje vertical la divide en dos partes: un gran porche, una cubrición que nos permite cruzar de exterior a exterior. Estas terrazas ayudarán a estructurar las relaciones espaciales entre las zonas pública y privada; a la vez, son las que dominan sobre el paisaje circundante, logrando un nuevo carácter de uso exterior del ya dado.










AUTORES ARQUITECTOS CARLOS RAMON GALINDEZ Y SANTIAGO ALRIC FERRE COLABORADORES ARQUITECTO FEDERICO
CARLOS LLOVERAS / ALFREDO QUIROGA, SOFIA PELUFFO Y JOAQUIN ADOT
MEMORIA
El terreno se encuentra elevado sobre un promontorio árido y con poca vegetación. Naturalmente, cuando uno se para en ese lugar, se pone de cara al lago, buscando abarcar en una sola visión, un paisaje conformado por los cerros y el lago Gutiérrez. Todo paisaje es una interpretación subjetiva de un territorio; en ese sentido, es necesario entender los límites del paisaje a definir. Es así que debido a las condiciones naturales del territorio, nuestro campo de acción supera los límites del lote. Entendemos que hay una doble mirada; una desde lejos, acercándose hacia el terreno a intervenir, y otra desde adentro, hacia el entorno natural. El proyecto debe dar cabida a estas dos miradas. Desde afuera, la casa se planta sobre el territorio, modificándolo y estableciendo un nuevo paisaje de contrastes a través de un objeto de geometrías cartesianas. La casa se desarrolla en dos volúmenes netos y simples, buscando de esta manera que la expresión sea la materialidad. Una madera y una piedra. La madera, como una reconstrucción de sus vetas por medio
FICHA TECNICA
UBICACION ARELAUQUEN G&CC / BARILOCHE / RIO NEGRO
SUPERFICIE LOTE 3.655 M2
SUPERFICIE CUBIERTA Y SEMICUBIERTA 567.21 M2
FECHA DE FINALIZACION 2012
de una sucesión de tablas de ciprés de distintos anchos. La piedra, de la misma manera que está construido el granito, por pequeñas piedras de distintos colores y tamaños amalgamados, solo que en este caso como una sola piedra en otra escala, construida por un revoque lavado de arena gruesa de distintos tamaños y colores. Desde adentro, de acuerdo a las necesidades de sus habitantes, entendimos que esta casa sería un suceso de encuentros familiares, por lo que se planteó en la planta superior el lugar de estar y de encuentro totalmente integrado, de forma tal que por su forma longitudinal de cara al paisaje, pudiera incorporar la experiencia original de la visión amplia, entendiendo este espacio como un lugar de encuentro y experiencia de los habitantes y el paisaje. Estas situaciones continúan en el exterior en terrazas y jardines generados por el escalonamiento de los volúmenes de piedra y madera con el terreno. La cubierta se pliega permitiendo el ingreso del sol de la mañana y define en sus quiebres las distintas situaciones del espacio común.



















