BIOCONSTRUCCIÓN Y CAMBIO CLIMÁTICO
ARQUITECTURA DE MADERA

HACIA EL CONGRESO DE BIOCONSTRUCCIÓN
CONSTRUIR CON MADERA
“´Las personas están más abiertas a probar otros sistemas constructivos y son más sensibles en cuanto a la eficiencia energética y el cuidado del medioambiente`, expresó. Para él, esto no quiere decir que dejemos de usar portland, hierro y demás, sino que se trata de ´buscar un equilibrio e integrar estos componentes con materiales que provee la naturaleza y que son renovables` con el fin de ´mitigar el impacto que la construcción tiene en el planeta´”.
_Martín Varela. Coordinador de Gestión / Cooperativa de trabajo Ecosinergia_Uruguay (https://www.bioframing.com/). La Nación_25/08/24
Los arquitectos y arquitectas tenemos mucho que aprender aun sobre Bioconstrucción. Las palabras de Martín Varela no provienen de la disciplina, son las de alguien que se ocupa de la gestión y producción de un tipo de sistema constructivo, en un lugar determinado y en un tiempo específico, que debe lidiar a diario con un mercado laboral y productivo, más allá de las convicciones que se puedan tener -y que nos convocan aquí- acerca de la sostenibilidad de nuestras prácticas, en un planeta que enfrenta serios riesgos ambientales. Es indispensable entender esto, si asumimos que es en la búsqueda de los puntos de equilibrio donde radica el éxito de cambios estables y sólidos -esto es, comprendidos y asumidos por la comunidad-, cambios que pueda eludir la trampa de los discursos políticamente correctos, aunque inocuos a la hora de impulsar transformaciones tangibles. No alcanza con tener un diagnóstico acertado, si no se avanza en el cómo hacer, que es igual a concertar; una dificultad recurrente que no hemos sabido resolver hasta ahora. La construcción en madera es paradigmática en esto que estamos comentando. Probablemente, sea el material más impactado por los cambios tecnológicos, un proceso que ha generado un salto cualitativo en su producción industrial, una verdadera “Revolución de la Madera”, al decir de muchxs. A otrxs, sin embargo, les enciende una alarma por la misma razón. Ahora bien, los avances tecnológicos no pueden eludirse, aunque sí conducirse. Los riesgos que se esgrimen tienen fundamentos muy atendibles, los mismos que enfrentamos si nos dejamos llevar por una mirada nostálgica, tan presente en una disciplina como la nuestra. El pasado lejano tiene mucho aun para enseñarnos, siempre que lo revisemos desde una óptica contemporánea, aunque suene a obviedad. Las antiguas prácticas no necesariamente han sido mejores que las actuales. Lo sabemos bien.
Una óptica contemporánea, a nuestro entender, implica una mirada integradora de los procesos productivos -somos parte de ello-. No basta con la eficiencia energética, no basta con la adecuación de nuestros saberes proyectuales y sus resultados arquitectónicos, no basta generar dispositivos ultra eficaces que construyan piezas de precisión milimétrica, si el resultado de ello no es asequible para las grandes mayorías. En definitiva, si

ARQUITECTO RAMÓN ROJO PRESIDENTE CAPBA
la producción industrial solo reduce puestos de trabajo para incrementar su ganancia, serán pocos y pocas quienes puedan dar uso a sus productos, pocos y pocas quienes vivan con mayor confort, y pocos y pocas quienes dispongan de tiempo libre y recursos para disfrutar sus vidas. Ustedes se preguntarán: ¿qué tiene que ver esto con la Sostenibilidad? Ensayamos una única respuesta: no hay sostenibilidad posible si se olvida que es la comunidad la que debe progresar y mejorar sus condiciones de vida (colectiva) en primera instancia.
La construcción en madera, probablemente, contenga en su devenir una de las llaves que permitan resolver eficazmente muchas de las demandas del presente. El acceso a una vivienda confortable en forma rápida y de costo pertinente es una de ellas. Construirla con métodos saludables, no solo para el medio ambiente, sino y también, para aquellos que intervienen directamente en su ejecución, dotándolos, además, de un oficio con menores riesgos para su seguridad física, es el desafío que nos interpela en el presente. Ni hablar cuando los destinatarios son los sectores populares de la sociedad que han quedado tremendamente relegados, a la espera de una solución habitacional que, cuando llega, tarda una enormidad en construirse por los métodos tradicionales, complejizando al extremo los procesos sociales, cuyas dinámicas son radicalmente distintas a los procesos constructivos convencionales. Así como estamos hoy, los sectores populares que viven en nuestras barriadas resuelven como pueden su hábitat -la más de las veces mal-, a pesar de los enormes avances en los procesos industriales. Si aceptamos asumir con la mayor sinceridad y responsabilidad nuestra voz como arquitectxs, debemos comprender que los sectores medios, habituales receptores de nuestros servicios, están enfrentando las mismas condiciones. La complejidad de la vida contemporánea exige soluciones más rápidas. Estamos en condiciones de hacerlo desde hace mucho tiempo. Qué nos impide hacerlo, es la pregunta a la que estamos invitando a responder.
Para finalizar, hacemos nuestras las palabras de Javier Hernández, que ha escrito un artículo muy valioso al que podrán acceder en las páginas que siguen.
“El futuro de la construcción parece estar cada vez más vinculado a este material natural, renovable y versátil. La revolución de la madera en la construcción no solo está transformando la forma en que construimos, sino también la forma en que pensamos sobre los materiales y los procesos constructivos. Con su combinación única de sostenibilidad, eficiencia y estética, la madera está preparada para desempeñar un papel central en el desarrollo de la arquitectura, ofreciendo soluciones que no solo responden a los desafíos del presente, sino que también apuntan hacia un futuro más sostenible y equitativo.”
Reafirmamos estos conceptos y los hacemos extensivos a muchos otros materiales de origen biológico o geológico.
STAFF CAPBA FASCÍCULOS
Propietario Colegio de Arquitectos de la Provincia de Buenos Aires
Director Arq. Ramón Rojo
Consejo editor Arqs. Juan Carlos Sánchez y Mario Pérez
Direccion de arte y diseño Estudio RO-K

LA MADERA, UN BIO MATERIAL DEL PASADO PARA SOSTENER EL FUTURO
ARQUITECTO JAVIER HERNÁNDEZ CONSULTOR ESPECIALISTA EN SUSTENTABILIDAD Y SISTEMAS CONSTRUCTIVOS EN MADERA



Los materiales de origen biológico y geológico, actualmente, son una alternativa sostenible para la construcción del hábitat. Están ganando protagonismo debido a su bajo impacto ambiental y a su capacidad para desarrollar las economías locales de manera circular. Estos materiales, como la madera, el cáñamo, la piedra y diversos subproductos agrícolas, no solo proceden de recursos renovables, sino que también ofrecen múltiples ventajas en términos de eficiencia y durabilidad. El uso en la construcción va desde las estructuras hasta revestimientos, pasando por aislamientos y aberturas. Estos materiales no solo preservan los recursos minerales y fósiles, sino que también juegan un papel crucial en la conservación de la biodiversidad y la regeneración del suelo.
En un contexto donde la sostenibilidad es cada vez más importante, la adopción de estos materiales representa una respuesta efectiva a la emergencia climática y una fuente significativa de empleo y desarrollo para las comunidades locales. La madera, en particular, se destaca por ser un recurso ampliamente disponible, que no solo es renovable, sino que también al reforestar en paralelo al consumo, es capaz de capturar y almacenar carbono, contribuyendo así a la mitigación del cambio climático. La capacidad de la madera para ser empleada en procesos de construcción en seco reduce el tiempo y los residuos generados, facilitando además la remodelación y deconstrucción de los edificios y los materiales con ella generados.
Cuando un arquitecto se involucra en la construcción con madera, algo comienza a pasar: su rol no se limita a la concepción, se transforma en un defensor del material, de una forma de hacer arquitectura. A medida que va utilizando madera en sus obras, va descubriendo sus verdaderas posibilidades y el confort sensorial, siente que la autenticidad junto a las cualidades medioambientales le ofrecen un material que lo pone en el centro de la lucha ética de la responsabilidad con el ambiente y el futuro.
MADERA, LA MATERIA PRIMA.
La madera es uno de los materiales más antiguos utilizados en la construcción; desde las primeras formas de “apilar” ramas y troncos, nos ha acompañado evolucionando con la industria, pero en el contexto actual, que exige un cambio tecnológico cultural, ha adquirido una nueva dimensión. Los desafíos ambientales actualizaron la legislación sobre el impacto de nuestra actividad, y la madera ha emergido como una opción sostenible frente a materiales más comprometidos en carbono, como son el acero y el concreto.
La capacidad de los árboles para capturar y almacenar carbono, combinada con su naturaleza renovable de la mano de una gestión forestal sostenible, es clave para posicionar a la industria de la construcción con madera en el ojo de la


innovación. Su ciclo de vida favorable se ve potenciado ya que puede ser reutilizada, reciclada o convertida en biomasa al final de su vida útil, contribuyendo a una economía circular que minimiza el desperdicio.
Al asegurar que la madera utilizada en la construcción provenga de fuentes responsables, no solo garantizamos la disponibilidad continua del recurso, sino que también protegemos la biodiversidad promoviendo la regeneración de los bosques. El uso de madera en espacios habitables nos ofrece importantes beneficios en términos de confort y bienestar. Al ser un material natural que regula la humedad de manera efectiva crea ambientes más saludables y confortables. Sus propiedades acústicas y térmicas mejoran la calidad de vida al reducir el ruido y mantener temperaturas interiores estables. Los edificios construidos con madera tienen un efecto positivo en el bienestar psicológico de las personas, ya que la presencia de materiales naturales en el entorno construido está asociada con la reducción del estrés y la mejora del estado de ánimo. Estos beneficios son especialmente relevantes en la construcción de edificios públicos, oficinas, escuelas y hospitales, donde el bienestar de los ocupantes es una prioridad común más allá del bienestar o gusto particular.
LA REVOLUCIÓN DE LA MADERA, UN NUEVO MATERIAL.
La creciente preocupación por la sostenibilidad y la eficiencia en las últimas décadas ha impulsado el uso de la madera en la construcción, obligando al sector a una transformación tal que ha pasado de ser un material tradicional para convertirse en el centro de las innovaciones tecnológicas que, paso


a paso, están transformando la industria.
La oferta de materiales de construcción a base de madera y los nuevos procesos constructivos basados en la industrialización están revolucionando el sector, abriendo oportunidades económicas y sociales a la vez que ofrece ventajas ambientales.
La innovación en el tratamiento y procesamiento de la madera da lugar a una amplia gama de productos que superan las limitaciones que tenía el material original. Estos productos, resultado de la ingeniería de la madera, han ampliado las aplicaciones en la construcción, permitiendo su uso en proyectos de gran envergadura y en condiciones que antes eran impensables.
Si repasamos el mercado, veremos que uno de los productos más conocidos es el contrachapado, un tablero fabricado a partir de la unión de varias chapas de madera natural con vetas contrapuestas, utilizando adhesivos especializados. Este proceso no solo aumenta la resistencia y estabilidad, sino que también permite aprovechar maderas de calidad inferior para las capas internas, reservando las maderas de mayor calidad para las capas visibles. Los contrachapados son altamente versátiles y se utilizan en aplicaciones que van desde la fabricación de muebles hasta la construcción de estructuras. De la mano de esta técnica, encontramos la familia de las vigas laminadas y los paneles contralaminados, de gran importancia en la innovación de las estructuras. Las vigas laminadas se fabrican uniendo con adhesivos de alta resistencia múltiples secciones de madera, tratadas y secadas previamente. Este proceso permite crear vigas de hasta 30 metros de longitud, algo que sería imposible con la madera maciza. Estas vigas son extremadamente estables y resisten-


tes, lo que las hace ideales para estructuras en edificios de gran tamaño, exigencias antes reservadas al acero. Por otro lado, los paneles contralaminados (CLT, por sus siglas en inglés) han revolucionado la construcción de edificios. Estos paneles, que combinan varias capas de madera en diferentes direcciones, ofrecen una resistencia y estabilidad excepcionales. En la construcción, los CLT se utilizan para formar las paredes, techos y suelos de edificios enteros, proporcionando una solución estructural integral que es tan resistente como el concreto o el acero, pero con un impacto ambiental mucho menor. El desarrollo tecnológico no solo se centra en la función estructural: el avance de los tableros de partículas -como el aglomerado, MDF y OSB- son otro ejemplo de cómo la industrialización ha optimizado el uso de la madera. Estos tableros se fabrican a partir de partículas de madera, que se prensan junto con adhesivos y resinas para formar productos con amplias posibilidades; el aglomerado, por ejemplo, se utiliza comúnmente en la fabricación de muebles, el MDF, por su parte, es ideal para aplicaciones que requieren un acabado liso, como lacados y revestimientos, y el OSB, que combina las características del aglomerado y el contrachapado, es un tablero resistente y versátil que se utiliza tanto en funciones estructurales como en la fabricación de mobiliario.
La mutación llega a su versión plástica o Composite Wood, alcanzando un material compuesto que combina fibras de madera con resinas para crear un producto duradero y resistente a las condiciones ambientales; es especialmente apto para uso en exteriores, como tarimas y revestimientos de fachadas, ya que posee una alta resistencia a la intemperie que lo convierte


en una opción atractiva para proyectos que requieren una durabilidad extrema sin sacrificar la estética natural de la madera. Algunas de estas mutaciones de la madera como materia prima en nuevos materiales de construcción aún son discutidas dentro del mundo de los materiales de origen biológico o geológico, junto a los cambios que afectan al material y también a los procesos constructivos que incorporan la lógica de la industrialización, que ha llevado a desarrollar procesos altamente eficientes y precisos que permiten reducir los tiempos de construcción y mejorar la calidad del producto final pero lo alejan de las economías locales y de las posibilidades en la autoconstrucción, tan importante en nuestro país. Sin embargo, la prefabricación de componentes de madera en entornos controlados, como pequeños talleres o fábricas, permitirían una gestión rigurosa de la calidad y reducir la necesidad de ajustes in situ, lo que a su vez minimizaría los riesgos laborales y los costos asociados a las improvisaciones, tan comunes en las construcciones de pequeña escala. Hablar de la prefabricación en madera, no es solo asociarla a las viviendas de bajo costo y rápida ejecución: hoy es el sistema que permite a la madera transformar la manera en que se construyen los edificios. Al fabricar componentes en un entorno controlado, es posible garantizar una precisión milimétrica en el proceso de producción, lo que facilita el ensamblaje rápido y eficiente en el sitio de construcción. Este enfoque no solo acelera el proceso, sino que también permite un control estricto de los costos, reduciendo la posibilidad de errores y desviaciones durante las obras.
Un ejemplo de cómo un nuevo material a base de madera impul-
sa el cambio en la construcción de edificios es el uso de paneles CLT ya que, modificando el proceso constructivo, se fabrican fachadas, losas y muros enteros a medida en la fábrica, se transportan al sitio de construcción y se ensamblan utilizando grúas. El proceso es comparable a armar un rompecabezas gigante, donde cada pieza encaja perfectamente en su lugar, previamente planificado y determinado durante la gestión de proyecto. Este método permite completar la estructura de un edificio en una mínima fracción del tiempo que tomaría con los métodos de construcción húmedos. La industrialización no solo ofrece ventajas en términos de velocidad y calidad, sino que también al minimizar los residuos generados en el sitio de construcción y reducir la necesidad de transporte de materiales pesados, se disminuye el impacto ambiental del proceso de construcción. Además, este control en todas las etapas del proceso asegura que la madera utilizada en estos proyectos proviene de fuentes sostenibles, lo que contribuye a la preservación de los recursos naturales y a la reducción de la huella de carbono del sector. En comparación con la construcción húmeda tradicional, donde los residuos de materiales como el concreto y el acero son difíciles de reciclar, la madera ofrece una alternativa más limpia y ecológica. Los residuos de madera generados durante la fabricación de materiales y componentes pueden ser reutilizados o convertidos en biomasa, cerrando el ciclo de vida del material y contribuyendo a una economía circular.
VENTAJAS DE LA INDUSTRIALIZACIÓN DE LA CONSTRUCCIÓN CON MADERA.
Si repasamos en lo desarrollado algunas de las principales ventajas de la construcción con madera, veremos que una de ellas es la gran reducción del tiempo de construcción. Al prefabricar componentes en entornos controlados, es posible ensamblar un edificio en el sitio en una fracción del tiempo que tomaría con métodos tradicionales. Esto no solo permite entregar proyectos en plazos más cortos, sino que también reduce el impacto y los costos. Para una casa promedio de 150 a 250 metros cuadrados, el tiempo total desde la concepción del proyecto hasta la entrega final puede ser de hasta seis meses, incluyendo el diseño, la fabricación de los componentes y el montaje en el terreno. Esta rapidez y eficiencia resulta especialmente ventajoso en proyectos donde el tiempo es un factor crítico, como en desarrollos urbanos de alta densidad o en la construcción de infraestructuras temporales o equipamientos urbanos. Este proceso ofrece un mejor control de costos. Al producir los componentes en fábricas, es posible calcular con precisión la cantidad de material necesario, lo que reduce el desperdicio y permite un uso más eficiente de los recursos. Los procesos de prefabricación también permiten identificar y resolver posibles problemas antes de que lleguen al sitio de construcción, lo que reduce la necesidad de costosos ajustes y retrabajos. El control de costos también se va a extender a la operación del edificio. Las construcciones en madera son más eficientes en términos energéticos, lo que reduce los costos de calefacción y refrigeración a lo largo de toda la vida útil. Si sumamos que la durabilidad y resistencia de los productos de madera industrializados minimizan la necesidad de mantenimiento y reparaciones, veremos que se traduce en ahorros adicionales a largo plazo durante todo el período de utilización del edificio, fundamental en una visión integral de la gestión en el tiempo desde la etapa de proyecto. La incorporación de alta tecnología informática, en la instancia de concepción apoyando la función del arquitecto, también reduce errores y da un marco de seguridad y eficiencia que la construcción húmeda in situ no puede brindarnos, pero resulta especialmente importante la construcción industrializada y los materiales en base a la transformación de la madera. Desde la perspectiva ambiental, como ya dijimos, la madera





es uno de los materiales de construcción más sostenibles; a lo largo de su ciclo de vida, tiene un impacto significativamente menor que materiales como el acero y el concreto, que requieren grandes cantidades de energía y emiten altas cantidades de CO2 durante su producción. La madera no solo capturó y almacenó carbono durante el crecimiento del árbol, sino que también requiere menos energía para ser procesada y al final de su vida útil, los productos de madera pueden ser reciclados o reutilizados, jugando un rol muy importante en los proyectos de construcción a gran escala, donde es fundamental minimizar el impacto ambiental para cumplir con los requerimientos de las nuevas normas y códigos.
PROYECTOS DE HOY MIRANDO EL FUTURO.
El uso de madera en la construcción industrializada ha dado lugar a una serie de proyectos innovadores en todo el mundo, que demuestran el potencial de este material en una amplia variedad de aplicaciones. Desde rascacielos hasta viviendas modulares y edificios públicos, la madera está redefiniendo el panorama de la construcción.
Una de las tendencias que más impactaron en arquitectura actual es la aparición de rascacielos de madera. Estos edificios, que combinan la sostenibilidad de la madera con la necesidad de densificación urbana, están demostrando que es posible
construir en altura sin sacrificar el rendimiento estructural ni la sostenibilidad. Ejemplos actuales incluyen la Torre Mjøstårnet en Noruega, que con 85,4 metros de altura se ha convertido en el edificio de madera más alto del mundo, y el HoHo Tower en Viena, un rascacielos híbrido que combina madera y concreto demostrando la versatilidad del material y el sistema. Estos proyectos no solo destacan por su innovación estructural, sino también por su enfoque en la sostenibilidad. Al utilizar madera como material principal, estos edificios fueron pensados y diseñados para que capturen grandes cantidades de carbono, contribuyendo a la mitigación del cambio climático con el uso de técnicas de construcción industrializadas, reduciendo los tiempos de construcción y minimizando el impacto ambiental. Otra importante tendencia en la construcción de viviendas con madera es la fabricación de módulos estandarizados y la prefabricación de piezas parte que luego se ensamblan en el sitio para formar una vivienda completa. El desarrollo del mercado de la construcción modular en madera alcanza a ofrecer una gran flexibilidad y personalización, ya que los módulos se pueden diseñar y fabricar de acuerdo con las necesidades específicas de cada proyecto. Resulta especialmente atractiva en desarrollos donde el espacio es limitado y la rapidez en la entrega es fundamental, asegurando la alta eficiencia energética, lo que las convierte en una opción ideal para proyectos


de vivienda social accesible y sostenibles.
A nivel mundial, la madera está encontrando un lugar preponderante en la construcción de edificios públicos y comerciales, donde la responsabilidad social y la sostenibilidad son exigidas por leyes y reglamentaciones cada vez más exigentes. Encontramos ejemplos de estos proyectos en centros comunitarios, escuelas, oficinas y centros comerciales, que utilizan la madera no solo por sus propiedades estructurales, sino también por su capacidad para crear espacios acogedores y saludables. Estos proyectos demuestran que la madera es una opción viable y atractiva para una amplia gama de aplicaciones, que puede competir con otros materiales en términos de rendimiento y costo, enviando un claro mensaje al mercado sobre el compromiso con la sostenibilidad y el bienestar de las comunidades. La construcción con madera está en un punto de inflexión, donde la combinación de innovación tecnológica, sostenibilidad y eficiencia está posicionando a esta materia prima como una opción clave para el futuro de la construcción. A medida que la demanda de soluciones sostenibles y de bajo impacto ambiental sigue creciendo, la madera está demostrando su capacidad para cumplir con metas muy exigentes. La industrialización, enfocada en la prefabricación, el control de calidad y la sostenibilidad, está redefiniendo el panorama de la construcción y abriendo nuevas posibilidades para el diseño


y la arquitectura con madera. Proyectos innovadores están desafiando las convenciones y mostrando el potencial de la madera en una amplia gama de aplicaciones.
El futuro de la construcción parece estar cada vez más vinculado a estos materiales de origen natural, renovable y versátil. La revolución de la madera en la construcción no solo está transformando la forma en que construimos, sino también la forma en que pensamos sobre los materiales y los procesos constructivos. Con su combinación única de sostenibilidad, eficiencia y estética, la madera está preparada para desempeñar un papel central en el desarrollo de la arquitectura ofreciendo soluciones que no solo responden a los desafíos del presente, sino que también apuntan hacia un futuro más sostenible y equitativo.
En Argentina, las arquitectas y arquitectos tenemos un desafío por delante: ser protagonistas del cambio tecnológico que demanda el sector y la madera es un aliado al que debemos recibir con los brazos abiertos, dejando de lado inseguridades y viejas sospechas que prácticas inadecuadas fueron sembrando. El cambio de normativas, reglamentaciones y responsabilidades está en construcción, la participación de los profesionales del sector puede asegurar que el resultado sea el que esperamos para ejercer la profesión de la mano del compromiso con el medioambiente y el futuro.

CASA EN BARRIO CUBE
ARGENTINA
AUTORES MATERIA SUR ARQUITECTOS / ARQUITECTO ESTEBAN UNHOLD
Y ARQUITECTA VALENTINA RÍOS
COLABORADORES ARQUITECTA JESSICA BENÍTEZ / JUAN MANUEL MILLARES
FICHA TÉCNICA
UBICACIÓN BARRIO CUBE / ESCOBAR
SUPERFICIE LOTE 1.000 M2
SUPERFICIE CUBIERTA 150 M2 / SEMICUBIERTA 35 M2
FECHA DE FINALIZACIÓN 2024
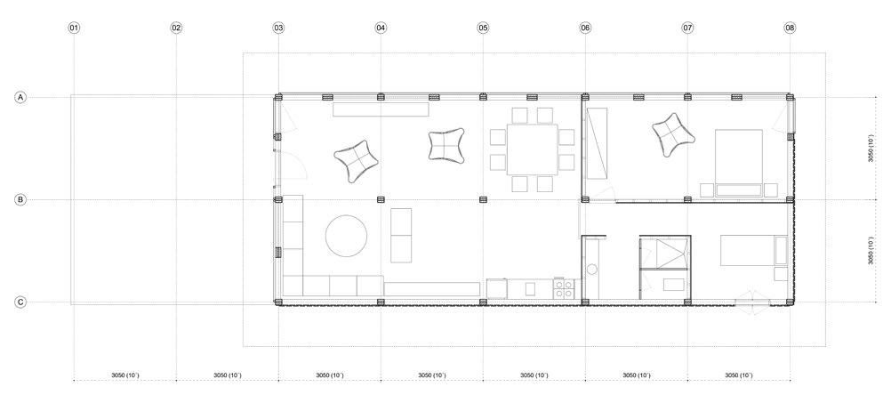
El barrio CUBE de Escobar posee las características propias del delta del Paraná. Su clima, geografía, vegetación y fauna lo vinculan a las tradiciones de la isla.
El lote se ubica en el extremo más alejado del acceso al barrio, en una situación privilegiada por su cercanía al agua y la privacidad. Dos lagos internos vinculados a un brazo del río Luján comparten su dinámica natural, las mareas, la vegetación, y la fauna se mueven a su ritmo.
La casa se eleva sobre pilotes de hormigón como respuestas a las dinámicas variables del agua del río. El movimiento de suelo nos lleva con una leve pendiente al interior, a través de un semicubierto que da al patio de acceso; un escalón aterrazado bajo el semicubierto de expansión pone en relación el nivel de piso interior con el entorno natural.
Proyectamos esta casa sin circulaciones: la rótula de acceso articula la relación del área de dormir, el área pública y la de servicios. Los dormitorios miran al patio de frente, en tanto que el estar-comedor se abre al patio de fondo con un sistema de carpinterías
que corren en su totalidad, liberando completamente las esquinas del volumen. Una pérgola paralela al espacio público resuelve la transición entre el interior y el exterior, generando un lugar en sombra que protege al interior del sol de la tarde.
Una pequeña raja de vidrio despega los planos verticales de las paredes de la cubierta; esta operación propicia la entrada de luz y las vistas al cielo filtradas por la vegetación.
La construcción en madera comienza en taller, donde se fabrica la estructura y las panelerías de paredes y piso en piezas que luego son montadas en obra. Herrajes metálicos insertos en el hormigón despegan la estructura de madera de las bases: esta pequeña separación permite protegerla del contacto con la humedad. El piso y las fachadas ventilados, las ventilaciones cruzadas y la sombra de la pérgola sobre la mayor superficie vidriada contribuyen al confort térmico interior, buscando reducir el consumo de energía. De esta forma, esta pequeña vivienda busca construir una relación consciente y coherente con el sitio, el programa y la construcción.














CORTE LONGITUDINAL
CORTE TRANSVERSAL




REFUGIO NATURALIS ARGENTINA
AUTORES ENNE ARQUITECTURA / MARCELA GADEA Y MATÍAS TABORDA / GERARDO ESTECHE (ASOCIADO)
COLABORADORES LUIS FRANCISCONI Y JORGE CELANO (ESTRUCTURAS), CARLOS DENTE (INSTALACIONES ELECTROMECÁNICAS) / MARÍA JOSÉ BARRANDEGUY, ALEXIS KUSY, JOSÉ LUIS BENEDETTI, JOSÍAS GRADE, GUIDO GODOY, ADRIÁN MENDÉZ, LISANDRO VILLANUEVA, FERNANDO JOSÉ FLEITAS Y ALAN KRUK (MAQUETA)
El inicio de esta obra comienza con un objetivo final más ambicioso: construir en el mismo lote -de un cuarto de hectárea-, totalmente en madera, un hotel en planta baja y tres pisos, de quinientos metros cuadrados. Si bien la materialidad fue una condicionante surgida del propietario, es un tema que nos interesa mucho como respuesta al paisaje de nuestra provincia, y veníamos trabajándolo en una escuela rural -ubicada en una aldea mbya-guaraní-, por lo que nos motivó a seguir investigando. En Misiones abundan edificios, sobre todo orientados al turismo, con esta particular tectónica maderera. Sin embargo, los ejemplos más llamativos están realizados en madera nativa de “monte”, lo que, pensado en términos del cuidado del ambiente, puede considerarse innecesario. Nos propusimos como desafío, entonces, producir una obra totalmente materializada con madera de reforestación -estructura portante, cerramientos, pisos, etc.- poniendo en valor dicha especie, el pino, al que le hemos solicitado un plus: que se eleve en altura, cubra grandes luces, genere aleros grandes que proyecten sombra, etc. La propuesta fue un sistema de marcos y diagonales estructurales en base a secciones compuestas de tres tablas, en una modulación de 10 pies, rigidizando los nudos por forma y, por seguridad, incorporado placas nodales. Los marcos se recubren, al
FICHA TÉCNICA UBICACIÓN ZONA DE QUINTAS / PUERTO IGUAZÚ / MISIONES SUPERFICIE 93 M2 / 18 M2 (DECK) FECHA FINALIZACIÓN 2016
exterior, con tablas y tapajuntas y los vanos, con policarbonato incoloro. Se completa el sistema con mallas de metal desplegado, delante de los vanos, no sólo por seguridad y proyección de sombras, sino también para protección de las aves, que suelen avanzar y chocar contra las superficies transparentes. La madera fue tratada con CCA (Arsenato de Cobre Cromatado), proceso que garantiza una vida útil, sin tratamientos adicionales, de más de treinta años.
La obra fue pensada inicialmente como un obrador-escuela, donde ensayar y poner a punto el sistema constructivo ideado para el proyecto principal, por lo que las escuadrías parecen estar “sobredimensionadas”. El ensayo fue tan satisfactorio, que el resultado final es un “módulo” del hotel que, acondicionado interiormente como tal, se utiliza hoy como un refugio por el propietario. Nuestra visión de la arquitectura es la de una herramienta que posibilita la construcción de un paisaje donde se den las condiciones aptas para habitar, en un equilibrio con el ambiente natural. Misiones es un territorio donde se necesita de esa mirada reflexiva para construirlo, exaltando sus valores: la forestoindustria, importante en la economía local, y el patrimonio natural y sociocultural, que se explota para el turismo. Agudizar esta mirada es lo que intentamos con este proyecto.






IMPLANTACION





CORTE TRANSVERSAL






Referencias
1. División interior. Tablas de madera de pino 1”x3”, disposición en vertical. Tratamiento, impregnante de maderas para interiores, satinado.
2. Columna armada de tablas de pino. Sección de 3x2”x8”. Tratamiento, impregnante exterior para maderas, natural.
3. Bastidor de hierro ángulo de 2”x3/16”, con metal desplegado liviano en cara exterior. Cara interior, policarbonato sinusoidal transparente.
4. Piso, tablas de pino de 1”x6”. Tratamiento impregnante para maderas exteriores, laca poliuretanica para pisos interiores.
5. Correas de piso. Tablas de pino de 1”x8”. Tramiento, ídem 2
6. Placa de anclaje de correa a viga de borde. Chapa plegada N18, tornillos T2+2”.
7. Clavador de madera de pino 1”x2”.
8. Chapa nodal de apoyo de viga de piso a cepo de hormigón. Chapa F+24 de ¼”. Fijación, bulones de 13mm.
9. Viga de piso. Armada de tablas de pino de 3x2”x12”. Tratamiento, impregnante exterior para maderas, natural.
10. Cepo y fundación de hormigón armado. Secciones y armaduras, según planos de ingeniería.
11. Viga superior. Armada de tablas de pino de 3x2”x8”. Tratamiento, impregnante exterior para maderas, natural.
12. Chapa nodal. Chapa F+24 de ¼”. Fijación, bulones de 13mm.
13. Diagonales. Armada de tablas de pino de 3x2”x8”. Tratamiento, impregnante exterior para maderas, natural.
14. Sellador de base poliuretanica incoloro.


CASA AA ARGENTINA
AUTORES IR ARQUITECTURA / LUCIANO INTILE, ANDRES ROGERS, MARTÍN ZLOBEC, RODRIGO PÉREZ DE PEDRO, ENRICO CAVAGLIA, FELIPE
BUIGUES Y FERMÍN INDAVERE
COLABORADORES JORGE BARROSO (PROYECTO ESTRUCTURAL), WULCON ENERGY (PROYECTO DE GESTIÓN ENERGÉTICA) Y FEDERICO CAIROLI (FOTOGRAFÍA)
La Casa AA se ubica en un barrio de quintas en Tortuguitas, provincia de Buenos Aires. Su posición en el lote le garantiza el mejor rango de incidencia solar en la cara norte, sobre la que se disponen todos los ambientes principales de la vivienda. Por otro lado, ofrece una forma de aproximación visual procesional a quien la visita. El modelo arquitectónico está determinado por dos sistemas, uno formal y otro constructivo. El primero es una secuencia de cuatro variaciones de sección conformadas por uno o dos planos inclinados. Cada sección, extruida en profundidades variadas, alberga paquetes de programa (dormitorio principalbaño-vestidor, invernadero-escritorio, galería-estar-cocina y dormitorios secundarios-baño-cuarto de juegos) que aprovechan la condición espacial propia de cada sección. Estos pares programático-volumétricos se disponen en planta de manera que los usos se reparten en dos alas diferenciadas, adultos y niños, mediadas por un ámbito comunitario. El segundo sistema, el constructivo, es el que da sentido a la modulación general de toda la pieza. La caja portante se conforma por bastidores de madera ensamblados en taller, completando el sistema estructural con envigados del mismo
FICHA TÉCNICA
UBICACIÓN TORTUGUITAS / MALVINAS ARGENTINAS SUPERFICIE 72 M2 FECHA FINALIZACIÓN 2015
material dispuestos en consonancia con la modulación de las montantes y vigas de madera laminada encolada de mayor sección para cubrir luces donde se interrumpe la continuidad muraria. Este esqueleto portante, por sus características matéricas, es el soporte perfecto para los componentes que completan el sentido de forma de la casa.
Por fuera, los muros estan revestidos con entablonados verticales y tapajuntas en los alzados longitudinales, mientras que los tranversales se resolvieron con entablonados de junta tomada. Dos elementos interrumpen esta lógica: el plano de carpinteria que da salida del estar a la galeria y el frente-techo del invernadero, este último resuelto con policarbonato acanalado transparente.
Por dentro, los intersticios entre montantes de bastidores reciben muros de barro, ensayados con la técnica llamada “quincha húmeda” y terminados con una mezcla fina de barro para lograr acabados parejos. La solucion muraria, sumada a la cubierta ajardinada que cubre la totalidad de la superficie de techo, dan por resultado una envolvente de alto rendimiento termodinámico por su capacidad de absorción de humedad ambiente y regulación natural de la temperatura.



IMPLANTACIÓN






CORTE TRANSVERSAL












LA SOÑADA
ARGENTINA
AUTORES IR ARQUITECTURA + JOAQUÍN PORTELA / LUCIANO INTILE, ENRICO CAVAGLIA, JOAQUÍN PORTELA, FRANCISCO ESCAPIL Y JULIA CATTANI FOTOGRAFÍA JOAQUÍN PORTELA
La Soñada es una vivienda unifamiliar ubicada en Chapadmalal, una pequeña localidad cercana a la ciudad de Mar del Plata, al sur de la provincia de Buenos Aires. Se trata de un enclave costero de atmósfera surfera, caracterizado por acantilados que se asoman al océano Atlántico, con playas extensas y médanos que se entrelazan con la vegetación autóctona. La distribución parcelaria se organiza entre calles serpenteantes de tierra y arroyos; los predios son heterogéneos en sus dimensiones y los volúmenes construidos se encuentran diseminados entre grandes arboledas que los protegen del viento. Son las condiciones generales del sitio, las particulares del predio y el uso requerido los que determinan las estrategias proyectuales. Un bosque tupido al ingreso del solar y la apertura de las vistas y orientaciones hacia el fondo proponen la ubicación definitiva de la vivienda, funcionando como mediadora entre paisajes. Los programas se disponen en el perímetro, conformando un anillo que organiza los usos, a la vez que resuelve la estructura portante y libera un espacio central de mayor dimensión. Los usos que requieren de mayor privacidad se alternan dentro el anillo perimetral con espacios semicubiertos que
FICHA TÉCNICA UBICACIÓN CHAPADMALAL / GENERAL PUEYRREDÓN SUPERFICIE 72 M2 FECHA FINALIZACIÓN 2024
proveen al espacio social de ventilaciones cruzadas y visuales determinadas. La cubierta sobre el espacio central se eleva por sobre el anillo perimetral para garantizar un mayor rango horario de incidencia de luz natural. La estructura se compone de dos sistemas; en lo que respecta a las fundaciones, es un sistema de 60 pilotines de 1.20 metros y vigas encadenadas que se completan con una losa de hormigón de 12 centímetros de espesor. Sobre esta base se apoya un sistema de construcción en seco en estructura de madera. La caja muraria está construida en tirantería de pino, normalizado en 2×4 pulgadas y tratado en autoclave mediante sistema vacío-presión con sales hidrosolubles, lo que garantiza su perdurabilidad en el tiempo. La tirantería responde a las cargas de presión y las placas rigidizadoras de OSB estructural a la flexión. Luego, se completan las envolventes con un siding horizontal, en el exterior, de madera semidura tratada con la técnica japonesa de quemado, y en los interiores, un revestimiento de tabla arrimada en el estar y placas de yeso pintadas en el resto de los ambientes. El cuerpo central de la casa se ejecutó por punto y viga, independizando de esta manera la estructura del espacio central del resto de la vivienda.





CORTE TRANSVERSAL

CORTE LONGITUDINAL









REFUGIO EN EL DELTA ARGENTINA
AUTORES MAPA / LUCIANO ANDRADES, MATÍAS CARBALLAL, ANDRÉS GOBBA, MAURICIO LÓPEZ Y SILVIO MACHADO COLABORADORES PABLO COURREGES, EMILIANO LAGO, FLAVIO FAGGION, FABIÁN SARUBBI, MARTINA PEDREIRA, AGUSTÍN DIESTE, SEBASTIÁN LAMBERT, DIAMELA MEYER, ALEJANDRO CUADRO, VICTORIA MUNIZ, DIEGO MORERA, SANDRA RODRÍGUEZ, EMILIA DEHL, AMANDA CAPPELATTI, AGUSTINA VIGEVANI, CONSTANZA MANZOCHI, DANIELA MORO, EDUARDO KOPITTKE, FERNANDA DIHL, HELENA UTZIG, JULIANA COLOMBO, LUCAS MARQUES, LUCÍA MARTINOTTI, MA. EDUARDA CAVASSOLA, MATEUS GRANDINI, MAURICIO MÜLLER, PEDRO BRANDELLI, PEDRO REICHELT, PIERINA NERVI Y ROMINA MANGINI FOTOGRAFÍAS LEONARDO FINOTTI Y JAVIER AGUSTÍN ROJAS
Una casa anfibia -adjetivo dicho de un ser que puede vivir indistintamente en la tierra o en el agua- se construye elevada del suelo para convivir con las periódicas crecidas del agua a orillas del Paraná Miní, un terroso río de suave andar. La casa está subordinada a las lógicas de su entorno natural. En una centralidad periférica del Delta de San Fernando, se ubica cerca de los equipamientos comunes locales y con acceso directo por transporte fluvial a través del río Paraná Miní, uno de los canales principales del Delta. El río hace las veces de calle, plaza y espacio público para una comunidad que está construyendo un nuevo concepto de urbanidad en estrecho vínculo con la naturaleza.
La construcción, fuertemente condicionada por la distancia de los medios de producción en la ciudad, se concibe como un montaje de elementos prefabricados capaces de ser transportados en pequeñas embarcaciones. La estructura se compone principalmente de piezas de madera laminada procedentes de la reforestación de pino elliotis impregnado. Un sistema constructivo en seco de paneles prefabricados SIP revestidos de chapa negra y madera conforma los espacios de la casa.
FICHA TÉCNICA UBICACIÓN DELTA SAN FERNANDO / BUENOS AIRES SUPERFICIE 665 M2 FECHA FINALIZACIÓN 2022 MENCIÓN HONORÍFICA AL PROYECTO DE ARQUITECTURA COMO HERRAMIENTA SUSTENTABLE / PREMIO ADUS 2021 FPAA / SAINT-GOBAIN
El refugio fue diseñado de acuerdo a un conjunto de estrategias pasivas de control bioclimático, pensadas para habitar el paisaje de manera consciente. Próximamente, será la primera vivienda de Argentina certificada por el Passivhaus Institute, actualmente en la etapa final de la certificación con el apoyo del Instituto Latinoamericano de Passivhaus (ILAPH). A estos efectos, la hermeticidad de la envolvente de la casa es estudiada al detalle, reduciendo al mínimo las transferencias de calor interior-exterior y por lo tanto también el consumo energético necesario para alcanzar los niveles óptimos de confort higrotérmico al interior durante todas las estaciones del año. Los espacios se compactan para reducir la superficie en contacto con el exterior, orientándose al norte los espacios de uso y al sur los espacios secundarios. Un sistema de galerías calibradas controla la incidencia solar y al mismo tiempo expande los espacios interiores hacia el entorno. La casa responde a la pregunta inicial de cómo hacer una vivienda “off-the-grid” hoy, utilizando las nuevas tecnologías para lograr las comodidades de un hogar urbano, pero sin comprometer el ecosistema anfitrión o la experiencia primitiva del paisaje remoto.







IMPLANTACIÓN















CASA SEMILLA ARGENTINA
AUTOR CALDERO TERRA BUILDERS / ARQ. JUAN IGNACIO RAVINA
COLABORADORES ESTUDIO PATÚN CON ATÉ (MOBILIARIO / DETALLES Y PRODUCCIÓN)
Caldero Terra Builders es un equipo interdisciplinario de diseño y construcción con materiales naturales comprometido con la sostenibilidad ambiental y la innovación. Trabajamos en la transición hacia un futuro sostenible. Elegimos el suelo, la infraestructura y las redes como las condiciones claves para la construcción de futuro y un presente resiliente. Ofrecemos colaboración con equipos y particulares para agregar valor desde nuestra visión. Nuestro objetivo es poner a disposición de la industria de la construcción soluciones que les faciliten sus procesos de transición para la descarbonización del sector, promuevan la reconexión con la naturaleza, fomenten la economía regional y dignifiquen el oficio.
Hacemos arquitectura natural racionalizada aplicando herramientas modernas y saberes de todo el mundo. Nuestros equipos de obra se conforman tanto por contratistas colaboradores como por staff interno, conformado por técnicos especializados
FICHA TÉCNICA
UBICACIÓN TANDIL / BUENOS AIRES
SUPERFICIE 25 M2 / 12 M2 (SEMICUBIERTO) FECHA FINALIZACIÓN 2024
que migran de la construcción convencional (framers, albañiles y carpinteros), como también por integrantes que buscan trabajar con sentido y adquirir conocimientos de construcción. Se convierten en strawpenters y terrabuilders. Tod@s aportan sus saberes diversos para generar soluciones de valor.
La Casa Semilla es un prototipo de vivienda joven con posibilidad de funcionar como alquiler turístico, atelier y estudio. Combina las características de uso para público viajero, trabajadores remotos o nómades digitales, siendo para el usuario un refugio en su lugar de implantación y mutando a unidad de alquiler temporal cuando se encuentra fuera. De esta manera, la vivienda agrega valor pudiendo generar ingresos. Este formato reduce la carga de inversión para generar infraestructura de vivienda y potencia el intercambio de experiencias sostenibles. Trabajamos en un concepto de sustentabilidad integral, seleccionando cuidadosamente cada material que compone la
obra, priorizando los componentes carbono positivos, la eficiencia energética, la racionalización del tiempo constructivo y la optimización del espacio. Siendo Tandil una zona de importante producción agrícola con un clima templado frio, la elección del rastrojo de trigo como aislante térmico cobró peso inmediatamente para los edificios producidos por Caldero. Combinando las fibras de cereales de alta disposición en la llanura pampeana, junto a las arcillas de nuestros suelos, conseguimos generar muros de alta aislación con materiales que absorbieron CO2 en su proceso de producción.
Agregando la madera cultivada para entramados estructurales, conseguimos paneles portantes que se fabrican en factoría y se instalan en pocos días, pudiendo reducir tiempos, costos y contratiempos de obra, mejor control de calidad y reducir el impacto en terreno.
La estructura fue desarrollada en bastidores de madera y trigo fabricados a medida en la planta de Caldero. Para los muros exteriores se combinaron paneles de quincha seca de 6” y 8” con Straw Panel de 35 cm de espesor, con revoques fibrados en base tierracal de 3 cm de espesor hacia el exterior. Hacia el interior los revoques de fibra natural se terminaron con estucos arcical formulados por Caldero. En el revestimiento exterior se eligieron chapas recicladas de un antiguo galpón rural aportadas por el cliente.
El montaje de piso, paneles y techo completo se llevó a cabo en dos semanas. La obra demoró 6 meses con entrega llave en mano. La orientación principal norte levemente tendida hacia el este, presenta condiciones de diseño solar pasivo, aprovechando alta radiación en invierno para calentar las superficies interiores. A su vez la galería de cubierta translúcida permite regular la insolación con esterillas que pueden colocarse o retirarse según preferencias del usuario.
El piso es una plataforma de madera emplacada en ambas caras, conteniendo aislación de trigo comprimido con barrera inferior y superior. El piso interior es entablonado clavado y pegado sobre tableros fenólicos. Una barrera adicional separa las vigas principales de madera semidura sobre anclaje metálico fijado a los pilotines de fundación.
Para la cubierta elegimos estructura de madera con 14 cm de aislación de trigo comprimido entre barrera de vapor hacia el interior y barrera de condensación superior, bajo la cubierta de chapa prepintada gris. El faldón norte alberga el termotanque solar con controlador electrónico. La canaleta permite juntar agua de lluvia que se integra al escurrimiento natural cuando no es necesario almacenar. Las aguas grises son tratadas en un filtro botánico de áridos de variable granulometría y plantas. El tamaño y ubicación de las aberturas responde al estudio de asoleamiento y al diseño de la experiencia de irradiación solar y sombras en el interior. La unidad cuenta con ventanas de aluminio con RPT y DVH. Las puertas de madera son diseños realizados en conjunto con carpinteros que realizan piezas con madera antigua en perfectas condiciones de estabilidad, como la pinotea y el pino paraná. Elegimos prescindir de materiales importados con alta huella de carbono en su transporte. Incluso la tornillería es de industria nacional de alta calidad, producida por la empresa TEL. Creemos en la Arquitectura Natural Racionalizada como un aporte de valor fundamental para hacer factible no sólo una transición para la industria de la construcción, sino también una mejora sustancial en la performance de nuestros edificios, logrando altos valores de aislación e inercia térmica, regulación de la humedad y libres de elementos contaminantes. Contamos con una factoría para producir panelizado y mezclas en base tierra para nuestras obras y terceros. En septiembre celebramos la apertura de Caldero Academy; espacio de intercambio y difusión de experiencias en construcción natural para operarios y profesionales del sector.
























CASA CABRAS BRASIL
AUTORES MAPA ARQUITETOS (PROYECTO FINALIZADO) / I.E (PROYECTO EN PROCESO) COLABORADORES BARRA ARQUITETOS (DESARROLLO DEL PROYECTO) FOTOGRAFÍAS LEONARDO FINOTTI
En lo alto de una colina hay un muro y una casa.
En plena Serra das Cabras, en el interior de Campinas, São Paulo, un muro contiene en su geometría rectilínea un gesto: una clara intención de trazar una línea humana sobre el territorio. Esta simple acción inaugura una secuencia de actos notables, impresos en el paisaje. Un hogar sensible a su entorno, que visualiza y traduce el medio natural en la sintaxis íntima de la vida doméstica cotidiana.
Localizada sobre una topografía marcadamente empinada, la casa descansa sobre una meseta generada por un muro de piedra que trasciende sus límites y permite la circulación a nivel, conformando también los bordes de una piscina hacia el norte.
Fuertemente definida en carácter y forma por la marcada modulación de columnas y paredes de madera industrializada, la casa expone sus elementos estructurales, su construcción en Madera Laminada Encolada, dialogando honestamente sobre sus técnicas e incorporándola como elemento esencial de sus intenciones plásticas.
Dos envolventes programáticas, una íntima y otra social, se correlacionan como volúmenes discontinuos en el espacio, pero se integran por un espacio abierto y cubierto que recorre
la continuidad de sus fachadas. El balcón social noreste mira hacia un horizonte delineado por las montañas, en tanto que el balcón íntimo, hacia el suroeste, se orienta hacia un bosque. Entre ambos volúmenes, donde se une el semicubierto, existe un vacío que alberga el acceso principal y un quincho con horno y parrilla. Un intermezzo dramático en una continuidad de eventos compositivos que generan una matriz prismática rectangular y conceden orden modular al sistema. Finalmente, los volúmenes juegan con las transparencias en sus caras, a veces mirando hacia la montaña y otras hacia el bosque, compartiendo así la vida cotidiana con el paisaje y el paisaje con la vida doméstica.
Casa Cabras es una construcción industrializada de madera. Sus principales elementos estructurales fueron producidos en fábrica, transportados al sitio y ensamblados hasta la finalización, seis meses después de iniciadas las cimentaciones. Con una rígida coordinación modular, el proyecto se organiza en una malla de 3,20 x 3,20 metros, formando un pabellón de 32 metros de largo por 9,60 de ancho. La tecnología constructiva adoptada fue la madera de pino; su estructura está formada por la composición de pilares y vigas en MLE (madera laminada encolada), muros en CLT (madera laminada cruzada), losas de paneles de muro para el piso y CLT para la cubierta. Para las fachadas ventiladas, se utilizó un sistema de vigas y láminas de pino que recubren las paredes exteriores, en tanto que para el aislamiento térmico e impermeabilización de la cubierta se emplearon placas de poliestireno extruido y manta de poliolefina termoplástica (TPO). Carpinterías de aluminio y vidrio laminado complementan los cerramientos. El conjunto de vigas laminadas, espaciada cada 80 centímetros, forma un entramado de soporte para las losas. En el interior, el solado se compone de panel de muro de 40 mm de espesor, mortero armado y revestimiento de baldosa hidráulica, y en la zona exterior, una terraza de pino forma el piso del semicubierto. El techo se materializa con un panel CLT de 60 mm en el interior y se impermeabiliza en el exterior. En el exterior, la viga sustenta una estructura formada por tablillas espaciadas de pino de 40x40 milímetros, que cumple la misión de filtrar la incidencia solar, protegidas por láminas de vidrio laminado. Los muros de CLT de 90 mm de espesor son estructurales, visibles desde el interior y protegidos desde el exterior por una manta de polietileno de alta densidad. Vigas cruzadas y laminillas de pino tratado envuelven y protegen la cara exterior de los muros de CLT.
Este proyecto, desarrollado originalmente por MAPA Arquitetos y finalizado en 2020, está sufriendo actualmente una especie de resignificación, al igual que la historia de sus autores. Tras la separación amistosa de MAPA a finales de 2023, surgió un nuevo estudio dirigido por uno de sus cofundadores. Casi simultáneamente se vende Casa Cabras y, con el cambio de propietarios, también se adquiere el terreno vecino, duplicando la superficie disponible.
Con estos cambios surge una nueva demanda y oportunidad de proyecto: ir más allá del objeto unitario para pensar en un “sistema de habitabilidad rural” el que, como en el canon histórico, la ocupación del territorio comienza con la “casa de campo”, pero que irradia hacia otros dispositivos, edificios, equipos y sistemas que conforman un paisaje rural antropomorfizado. En este segundo momento, una nueva residencia, diseñada como casa de huéspedes y equipada con espacios de ocio, dos canchas deportivas, una dependencia privada y alejada para la pareja, además de edificios de apoyo e intervenciones al aire libre, ampliarán la propuesta original. Una secuencia de dispositivos que realmente permiten vivir en un paisaje único, en diferentes escalas y facetas.






IMPLANTACIÓN














CORTE LONGITUDINAL
CORTE TRANSVERSAL







DETALLE CONSTRUCTIVO


CASA KUVO
CHILE
AUTORES STANAĆEV-GRANADOS / NATAŠA STANAĆEV
Y MANU GRANADOS
COLABORADORA JAVIERA URIBE (PAISAJISMO)
En el año 2021se nos encargó el diseño de una pequeña casa situada en Matanzas, población costera de Chile reconocida por sus excelentes condiciones para la práctica de deportes de agua. El cliente nos solicitó una casa de 70 metros cuadrados con dos dormitorios y dos baños, pensada para un público joven, que debía ser económica de construir y preferiblemente desarrollada en dos niveles para así tener vistas al mar. La Casa Kuvo se presenta como un prisma de 6x6x6 metros. De apariencia abstracta y aparentemente disociada de su entorno, veremos que el tratamiento de las distintas fachadas y sus aberturas cuadradas -en línea con el volumen- responde a las necesidades de iluminación, ventilación, oportunidad de vistas de los espacios interiores, y por supuesto, a cada una de las orientaciones: hacia el sur y el oeste, la casa se vuelve casi muda para protegerse del fuerte viento sureño, evitar el sobrecalentamiento durante el día y la pérdida de calor en la noche, al tiempo que se esconde de las miradas de futuros vecinos. Por otro lado, las caras norte y este se abren hacia el sol de la mañana y las vistas. La idea del uso del blanco en el revestimiento exterior de la vivienda tiene un doble sentido: por un lado, acentuar la volumetría en los días soleados mediante el juego de claroscuros de sus caras, y por otro, el de hacer que la casa se torne evanescente en los ratos de vaguada costera, neblina característica de la zona que discurre desde el mar hacia el interior. Al tratarse de una casa de carácter vacacional y para alquiler
FICHA TÉCNICA UBICACIÓN MATANZAS / CHILE SUPERFICIE 72 M2 FECHA FINALIZACIÓN 2022
que debe aguantar un uso más despreocupado, estando además situada en zona de ambiente marino y cuya construcción debía ser económica, planteamos una arquitectura que pudiera construirse de forma parca, con una expresión material cruda que asuma con naturalidad el paso del tiempo. Concebimos una casa donde los detalles están más en las decisiones generales que en la pequeña escala o la sofisticación. En este sentido, optamos por el uso de la madera como el único material: el exterior es de pino bruto teñido semitransparente, mientras al interior usamos pino cepillado teñido sólido satinado, aprovechando la textura de la madera de distinta forma. Las ventanas enrasadas y el tratamiento de todas las puertas exteriores refuerzan la idea del volumen, haciendo posible mantener las fachadas sin otras sombras que las que generan las tablas del revestimiento entre sí.
El programa se desarrolla en dos niveles, mediante la estrategia de compactar los servicios y equipamientos en el perímetro, liberando la mayor cantidad de superficie. De esta forma, el nivel inferior dispone de un único espacio abierto y flexible de salón, comedor y cocina, además de baño y espacios de guardado. En el nivel superior se sitúan los dormitorios y el baño principal. La escalera, llevada también al perímetro y semioculta desde la planta inferior, es una suerte de espacio dinámico regalado que se va abriendo hacia la propia casa y hacia el exterior a medida que se asciende.



IMPLANTACIÓN















CENTRO DE DESARROLLO PRODUCTIVO COMUNITARIO “LAS TEJEDORAS”
ECUADOR
AUTORES NATURA FUTURA + JUAN CARLOS BAMBA
COLABORADORES ANDREA OLLAGUE, HECTOR PERLAZA, FUNDACIÓN LA IGUANA Y BROMELIA / FUNDACIÓN YOUNG LIVING (GESTIÓN Y ADMINISTRACIÓN) / JAG STUDIO (FOTOGRAFÍAS) / ANDRES ORTEGA, CYNTHIA ROSERO (GRÁFICOS) / ESCAPE FOTOGRAFÍA (DRONE) / JAIME PEÑA (ILUSTRACIONES)
FICHA TÉCNICA UBICACIÓN CHONGÓN / GUAYAQUIL / ECUADOR SUPERFICIE 665 M2 FECHA FINALIZACIÓN 2023
“Las Tejedoras” se ubica en la periferia de la parroquia urbana Chongón, Ecuador, que cuenta con una población de 4.900 personas aproximadamente, donde su mayoría son mujeres que no forman parte de la comunidad económicamente activa, con baja posibilidad de insertarse en algún nicho laboral. Desde el 2009, la Fundación Young Living, dedicada a generar programas que fomentan el potencial de las comunidades a través de la educación y el emprendimiento, da inicio a la Academia Young Living donde estudian alrededor de 150 niños de bajos recursos, cuyas madres son parte de los talleres productivos de la localidad, formándose así la Organización de Mujeres Artesanas Bromelias, enfocada en el desarrollo a través de tejidos hechos a mano con fibras naturales. Con el tiempo, el grupo ha incrementado sus integrantes surgiendo así la necesidad de un nuevo espacio. El proyecto se desarrolla desde su diseño y construcción mediante el trabajo transdisciplinar de Fundación Young Living, Bromelias, Natura Futura y Juan Carlos Bamba, teniendo como objetivo principal generar un centro productivo de aprendizaje, integración-intercambio y venta de las artesanías. Se plantea como propósito que los procesos de obra sean una herramienta de formación e inserción, por lo que se realizaron varios talleres de construcción con la comunidad y padres de familias de la Academia, con el fin de generar habilidades que ayuden a fortalecer el desarrollo local y medioambiental.
La propuesta comprende un patio con vegetación endémica como lugar de encuentro y exposición, contenido por dos naves laterales y una central: una se integra con aulas formativas teóricas, cafetería y servicios higiénicos, la otra, con talleres de aprendizaje práctico, espacio de dormir, bodegas y una tienda para vender los productos desarrollados en la nave central, donde se realizan los tejidos artesanales. El frente principal es una galería productivaexpositiva que sirve como filtro del patio y como elemento para generar urbanidad hacia la calle, mientras que la cara posterior se cierra hacia el espacio medianero para generar mayor seguridad. Para la materialización, se plantea el uso de madera de teca rolliza como estructura principal, comúnmente utilizada para los pilotes de la viviendas palafíticas en zonas vulnerables de la región por su dureza y durabilidad, soportando la cubierta y el piso en planta alta. Las paredes de ladrillo están trabajadas con tejido de espina de pez y rigidizados por la propia forma de los muros trabados. Las puertas de tablillas abatibles de madera son utilizadas para el control de la ventilación, iluminación y vinculación entre el exterior e interior. Las Tejedoras busca ser un espacio de intermediación de procesos de desarrollo productivo, vinculando a mujeres en condición de desempleo mediante la participación activa, la potencialización de las técnicas artesanales locales y la dinamización del aprendizaje como herramienta de empoderamiento.









CORTE LONGITUDINAL

CORTE TRANSVERSAL













OBSERVATORIO DE SANTAY
ECUADOR
AUTORES NATURA FUTURA + JUAN CARLOS BAMBA COLABORADORES JOSÉ DELGADO MENDOZA Y JOSÉ GUARTATANGA (INGENIEROS NAVALES) / PLANTABAL, FUNDACIÓN YOUNG LIVING, NOVACERO, FUNDACIÓN LATITUD, BRIPLAST, FIMCM-ESPOL Y FLAVIO CHERNES / FUNDACIÓN AMGOS DE SANTAY (GESTIÓN) / JOSÉ ESCANDÓN, JUAN TERREROS Y JHONATAN ANDRADE (FOTOGRAFÍAS) / ANDRÉS ORTEGA, HOLGER PAUTA Y JAIME PEÑA (ILUSTRACIONES)
El Observatorio de Santay se plantea como un espacio flotante de expresiones artísticas, talleres de capacitación para niños y adultos, investigaciones ambientales y actividades de integración comunitaria.
La isla de Santay, base de operaciones del proyecto, está ubicada sobre el río Guayas, aproximadamente a 800 metros de la ciudad portuaria de Guayaquil, y actualmente se encuentra habitada por 315 personas. El territorio pertenece al cantón Durán y también forma parte del Sistema Nacional de Áreas Protegidas por su diversidad ecológica, aunque en la actualidad su alto valor ambiental parece incidir poco en el índice de necesidades básicas insatisfechas de la población. Además, su estatus de conservación complejiza el desarrollo de infraestructuras que promueven el desarrollo cultural y educativo, la dignificación y la revalorización de la memoria colectiva del sitio.
El proyecto surge de una sinergia entre la fundación Amigos de Santay, diversos profesionales y la comunidad isleña. Su visión: integrar y gestionar las manifestaciones culturales y sociales en el territorio, acercando a la comunidad local y a los visitantes tanto al entorno natural como a las técnicas tradicionales de construcción, fortaleciendo de esta forma la memoria local para las futuras generaciones.
El Observatorio fue construido con mano de obra local en las riberas de Babahoyo, a 60 kilómetros de Guayaquil, como con-
FICHA TÉCNICA UBICACIÓN ISLA SANTAY / DURÁN / ECUADOR SUPERFICIE 56 M2 FECHA FINALIZACIÓN 2022
tinuación de la investigación sobre habitabilidad flotante iniciada con “El Refugio del Pescador”. Este primer proyecto semilla buscó revalorizar las casas flotantes constituidas como patrimonio inmaterial de las ciudades costeras del Ecuador. Una vez completado su construcción, el Observatorio fue trasladado de Babahoyo a Guayaquil a través del río y finalmente se instaló en el muelle de la isla de Santay.
La obra consiste en una plataforma flotante multifuncional, capaz de adaptarse a diversas actividades mediante puertas plegables, con paneles prefabricados de madera de balsa, que conectan el espacio interior con una galería exterior que mira hacia el río Guayas y la isla de Santay. Las cerchas de madera constituyen la estructura de la cubierta a dos aguas que, además de generar nichos habitables, otorga la suficiente altura como para generar ventilación e iluminación natural desde sus límites permeables. Finalmente, se emplean tablas de madera para el piso y el cieloraso que se extiende fuera del límite habitable para generar protección contra el sol y la lluvia. El Observatorio reflexiona sobre nuevas posibilidades de habitabilidad sobre el agua, donde la arquitectura se expresa como un espacio convertible y adaptable para que artistas locales, visitantes y comunidad compartan una visión: recuperar los casi extintos sistemas tradicionales de hábitat flotante. Todo ello frente a un desarrollo que se aleja de los ríos como recurso para hacer ciudad.















DESPIECE










