FASCICULOS

![]()



RAMON ROJO / PRESIDENTE CAPBA
“Más allá de poder servirnos, hoy en día, de todos los dispositivos que mejoran las condiciones de confort y de ahorro energético de manera más eficiente, no se debe dejar de lado que el ahorrar energía siempre se ha logrado tratando de utilizar recursos simples y naturales durante el horario diurno: ventilación cruzada, iluminación natural y control solar para facilitar la habitabilidad en las actividades interiores.
La calidad de vida interior estará, entonces, en los espacios diáfanos y en cómo se disponen las piezas móviles que pueden regular el ahorro o la acumulación de calor, de luz, de aireación. El proyecto (…), asociado a estos conceptos, es un dispositivo, en principio, que incluye una serie de accionamientos simples que posibilitarán un control climático más eficiente y menos tecnológico: ventilar, dejar pasar el sol, protegerse de él. Balcones techados, o viseras que puedan tamizar la luz solar en verano y dejarla pasar en invierno. Ahorrar energía también es iluminar de forma equilibrada y continua, con control solar natural”
“Abrir, cerrar, mover: como antes, como siempre.”
_Enfoque de proyecto. Incorporación de estrategias proyectuales bioclimáticas en la vivienda estatal de la Provincia de Buenos Aires. Articulo elaborado por el Instituto de la Vivienda de la Provincia de Buenos Aires para la revista CAPBA_Septiembre 2023

Este fascículo se publica en el marco de la reciente creación de Departamento de Bioconstrucción y Desarrollo Sostenible del CAPBA, un espacio de debate a agenda abierta y del producción de contenidos del que, obviamente, no podemos estar ajenos.
Si bien es cierto -y se ha dicho hasta el cansancio- que la buena arquitectura es siempre sostenible en términos ambientales, no lo es menos que el foco ha estado puesto en el producto final y muy poco en su producción material. Conocemos bien los dispositivos de proyecto que nos permiten alcanzar el confort de los espacios habitables de manera inteligente, esto es, sin sofisticados sistemas tecnológicos; de los que disponemos también cuando la complejidad de los programas así lo requieren. Sin embargo, los pasivos ambientales a los que dan lugar la producción de materiales, la deposición de residuos de obra o los mismos métodos que empleamos para construir, son parte de un debate que se ha instalado fuertemente hace relativamente poco tiempo. No es para menos. Las consecuencias del cambio climático son tan evidentes -y tan riesgosas para la vida futura del planeta- que no hay ámbito que no esté afectado en buscar alternativas que puedan ir alterando gradualmente esta circunstancia.
Como se trata de ámbitos de producción material con muchos años de desarrollo, claramente son diversos -y poderosos- los intereses que se afectan. No hay modo, entonces, que lo cambios que sucedan no sean de modo gradual y concertado… ¿Qué queremos decir con esto? ...Que no hay espacio para posiciones ingenuas -ni voluntaristas-. Se necesita, a nuestro entender, ir construyendo argumentos sólidos -esto es, rigurosos- que permitan sostener el tema en la agenda pública en primera instancia, para luego ir acordando acciones efectivas con los actores involucrados. No puede desconocerse, a partir de asumir la complejidad del proceso, que el camino es largo, donde las personas irán cambiando irremediablemente. No debiera pasar lo mismo con las líneas de acción. En un país que suele comportarse de manera circular, constituye un enorme desafío fijar trazos de continuidad estructurales.
Lo dicho hasta aquí, no implica renegar de los avances tecnológicos ni retomar prácticas ancestrales de manera lineal. Se trata, más bien, de recuperar un pensamiento integral, un modo que admita que la construcción del futuro no puede llevarse adelante ignorando la revisión crítica del pasado.
Propietario Colegio de Arquitectos de la Provincia de Buenos Aires
Director Arq. Ramón Rojo
Consejo editor Arqs. Juan Carlos Sánchez y Mario Pérez
Direccion de arte y diseño Estudio RO-K
ELIZABETH VERGARA / DIRECTORA
El Departamento de Bioconstrucción y Desarrollo Sostenible del Colegio de Arquitectos de la Provincia de Buenos Aires es un proyecto pionero que tiene como objetivo principal transformar la industria de la arquitectura y la construcción en la región a través de la implementación de prácticas sostenibles. Conscientes del impacto significativo que el sector de la construcción tiene en el medio ambiente y el cambio climático, el Departamento se enfoca en promover y fomentar la adopción de prácticas sustentables en la construcción, formando así un nuevo enfoque en cómo pensamos, diseñamos y construimos.
Uno de los principales desafíos que enfrentamos en la actualidad es la reducción de las emisiones de gases de efecto invernadero y la adaptación al cambio climático. Las edificaciones son responsables de una gran cantidad de emisiones de CO2, por lo que la implementación de prácticas sostenibles en la construcción es un componente fundamental en la lucha contra el cambio climático. Además de buscar la reducción de emisiones, también nos enfocamos en la creación de espacios más saludables y sostenibles para las personas que habitarán estos edificios.

Otro aspecto clave es la sensibilización y capacitación de los profesionales del sector. Los arquitectos y constructores tienen un papel crucial en la promoción y adopción de prácticas sostenibles en la construcción, y es fundamental que comprendan la importancia de su trabajo en la lucha contra el cambio climático. Es por eso que el departamento se dedica a brindar capacitación y herramientas que ayuden a los profesionales a integrar la sostenibilidad en sus proyectos y a tomar decisiones conscientes.
Además de la formación, el Departamento se encargará de establecer criterios de evaluación y métricas para medir la eficiencia y éxito en la promoción del desarrollo sostenible en la arquitectura y la construcción en la Provincia de Buenos Aires. Esto nos permitirá conocer el impacto real de las iniciativas implementadas y ajustarlas en consecuencia, con el fin de alcanzar los objetivos establecidos. Estamos comprometidos en liderar el camino hacia un futuro más sostenible y equitativo, y creemos firmemente que la implementación de prácticas sostenibles en la construcción es una necesidad apremiante para enfrentar la crisis climática y garantizar un futuro habitable para las generaciones futuras.


AUTORA ARQUITECTA ANALÍA DÍAZ EQUIPO DE TRABAJO: MMO SEBASTIÁN BARBARESI (CONSTRUCCIÓN EN MADERA), YAMI RIVA Y EQUIPO (CAVA DE PIEDRA), ARQUITECTO CARLOS MAÑÁ (ELECTRICIDAD), RODRIGO MARTÍNEZ Y EQUIPO (SANITARIAS), INGENIERO CARLOS FISCHER Y FABIO FISCHER (ENERGÍA SOLAR), ROBERTO ZURITA / PAS ARQUITECTURA SUSTENTABLE (REGISTRO AUDIOVISUAL)
FICHA TÉCNICA
UBICACIÓN COSTA MARPLATENSE / PARTIDO DE GRAL. PUEYRREDÓN
SUPERFICIE TERRENO 450 M2
SUPERFICIE CONSTRUIDA CASA 48 M2
FECHA DE FINALIZACIÓN 2021
DESCRIPCIÓN GENERAL.
La “arqui tiny” o pequeña casa es un proyecto realizado 100% en estructura de madera, con el sistema llamado Woodframe o Platform Frame, ubicado en la costa marplatense. Desde los inicios, se pensó como un proyecto que, además de su materialidad, incorporara premisas de diseño para cumplir con objetivos de sustentabilidad y eficiencia energética, siendo los principales:
= Diseño bioclimático.
= Recursos materiales naturales, certificados y de bajo impacto.
= Prefabricación en taller y sistema constructivo en seco.
= Confort y eficiencia energética.
= Energía solar para agua caliente y energía fotovoltaica para electricidad.
= Tratamiento de desagües por biodigestor y celdas botánicas.
= Producción de alimentos y almacenamiento.
Las dimensiones y espacios del proyecto fueron estudiados en base al concepto de tiny house o pequeña casa, con un sentido de cobijo y máxima relación con la naturaleza.
El objetivo es conseguir el mayor confort y la mejor calidad de vida, en el menor espacio construido, con el menor impacto en el suelo. Y además, reivindicar sistemas constructivos con materiales renovables, demostrando que se puede construir en madera de forma prefabricada, con diseño y calidad, siendo

que en nuestro país existe desde el año 2018 la normativa que considera tanto al sistema de entramado ligero de madera de 2”x4”, como al Steel Frame, sistemas “tradicionales”, pudiendo construir proyectos sin necesidad de presentar un CAT.
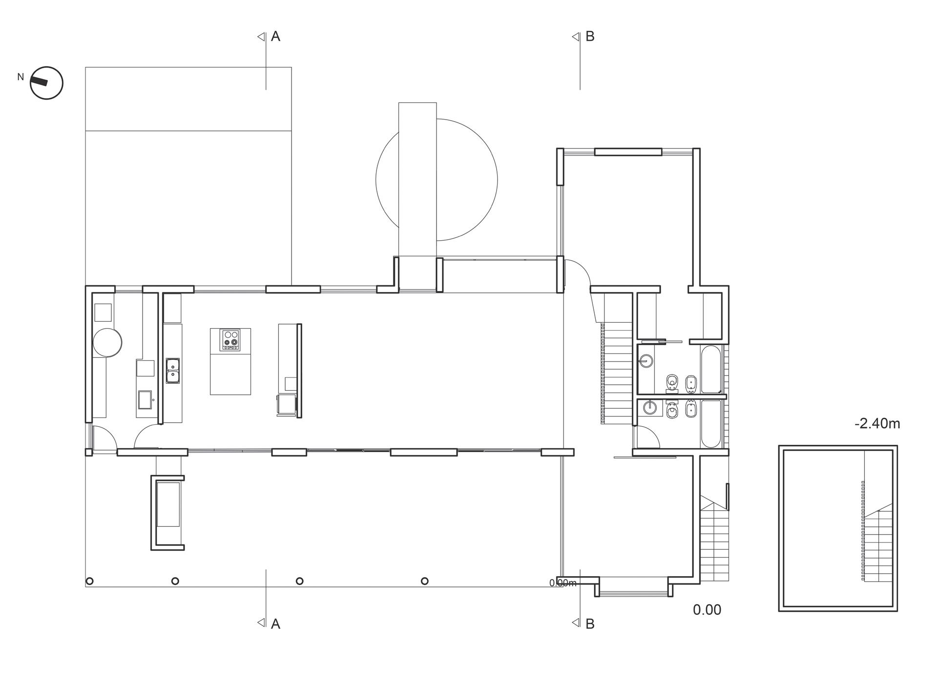
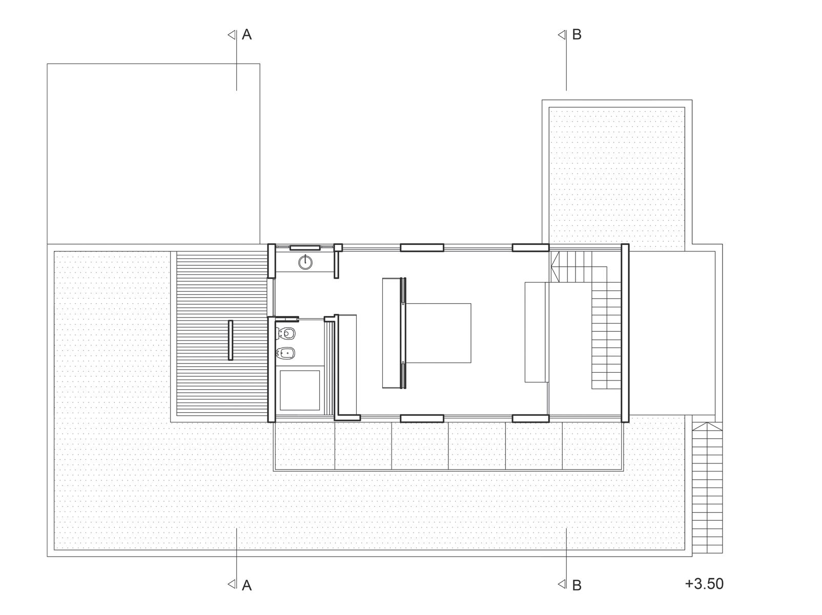
La arqui_tiny es un espacio de vida compuesto por una planta baja de 21 metros cuadrados, donde se encuentra la cocina, el estar comedor, un estudio y un baño completo, en tanto que en el entrepiso de media altura, se ubican los espacios para dormir y guardado, y a modo de sótano bajo tierra, hay una “cava -alacena” de muros de piedra.
IMPLANTACIÓN.
El proyecto se encuentra en la zona de la costa marplatense, en un predio de 15 metros de frente por 30 de fondo, donde la casa se ubica casi al frente del lote, respetando los 5 metros reglamentarios de acuerdo a los indicadores. De esta forma, en función al recorrido solar, se evita provocar sombra sobre el propio terreno, ganando el sol del atardecer en el ambiente principal en las épocas de otoño-invierno, siendo que el clima en el lugar (excepto en verano) es, en la mayor parte del año, frío-templado. Se ha contemplado el espacio para producción de alimentos; por un lado, plantando diferentes árboles frutales y ubicando los espacios para el cultivo de huerta, y por otro lado, se ha respetado el suelo en su totalidad, evitando impermeabilizar y conservando la flora silvestre y nativa.
El proyecto contempla como equipamiento exterior, una estructura de instalaciones que fue construida previa al inicio del proyecto, con múltiples propósitos: alivianar la estructura de la pequeña casa de equipos e instalaciones en su cubierta, construir un espacio que antecediera al proceso de obra y que oficiara de obrador / servicios (de manera de evitar contratar baños químicos), y contar con un espacio complementario que apoye a las actividades exteriores al aire libre, como huerta, jardín, guardado de herramientas, pileta de servicio, etc. Junto con el mangrullo se construyó el sistema de tratamiento de aguas donde luego se conectó la casa.
El mangrullo cuenta con: un baño y guardado, una barra con pileta, un tanque de agua potable de 500 litros -cuyo contenido se extrae por bomba a 45 metros de profundidad-, dos tanques de acopio de agua de lluvia (600 litros), equipo solar fotovoltaico para energía eléctrica (un circuito para la casa), y equipo termo solar de 150 litros para agua caliente sanitaria.
LA MATERIALIDAD.
La casa apoya sobre dos tipos de fundaciones: por un lado, con el objetivo de elevar la vivienda despegando del piso la construcción para evitar contacto con el suelo, se construyeron 9 pilotes de hormigón de 25 centímetros de diámetro, y del otro lado, apoya sobre los muros que se elevan del sótano
IMPLANTACIÓN

de piedra, de 35 centímetros de ancho. Se realizaron anclajes químicos para vincular la solera de nivelación con la fundación y la estructura de la casa. El sistema constructivo de la caja arquitectónica se realizó 100% en madera de pino tratada en autoclave; la producción de los bastidores, vigas y costillas para la pared sur (fardos) se realizó de manera prefabricada en taller de acuerdo al modelado del proyecto. En cuanto al diseño, fue muy importante la etapa de planificación, cálculo y modelización, con el fin de estudiar las alternativas para la toma de decisiones más eficientes en cuanto a recursos y etapas y de esta manera disminuir los tiempos de obra. El tiempo de fabricación en taller fue de 4 semanas, incluida una prueba de armado 1:1 para verificar los últimos detalles. Se utilizó, en tres de las caras, el sistema de trama de madera Platform Frame, de 2”x4” y con 100 mm de aislación; en la cara sur, se utilizó un sistema de estructura de costillas con aislante de fardos de rastrojo de trigo, con un ancho de muro de aproximadamente 50 centímetros.
El revestimiento exterior es de madera eucalipto grandis 1”x5”, sin pintura adicional, lo que provocará el cambio de color en el tiempo, mimetizándose con los árboles circundantes. Las aberturas son de PVC de abrir (mayor eficiencia) con DVH 4+9+4, y en algunos sectores, paños fijos de madera con el
mismo DVH. El revestimiento interior de las paredes y cielorraso es de machihembrado con terminación Cetol Vintage de ½”x5”, con piso de pino. Para la barra de la cocina, se han reciclado dos piedras de mármol.
CONFORT Y ENERGÍAS.
El proyecto plantea su funcionamiento con criterios sustentables, mayor confort y eficiencia térmica, aprovechamiento de la energía solar y tratamiento de efluentes para disminuir el impacto ambiental de los desagües.
Confort térmico. Toda la envolvente cumple con la ley 13059, de eficiencia energética, y supera los valores para acondicionamiento térmico en condiciones de invierno para la zona, logrando un confort en temperaturas con muy bajos gastos de energía (en muro fardo, K: 0.14 m2.°C/W, muro y techos, 100 mm aislación lana de vidrio Isover, K: 0,35 m2.°C/W). Inicialmente, se consideró colocar una estufa de 6.000 kilocalorías de alto rendimiento “Lepen”, pero al verificar el funcionamiento térmico una vez cerrada la casa, se optó por ubicar la estufa afuera, en el espacio de galería de invierno que da al sur, ya que la misma supera ampliamente la demanda necesaria para lograr el confort interior, y se decidió contar con una estufa de bajo consumo y eléctrica como apoyo para ciertos días.

Energía eléctrica. El abastecimiento eléctrico funciona de manera mixta: por un lado, con alimentación desde la red de servicios, y por otro, se colecta la energía solar a través de un sistema Off Grid para abastecer un circuito específico dentro de la casa de luminarias y contactos que funciona de manera paralela al de la red. Todos los ambientes (teclas negras) tienen una luminaria y un contacto solar, incluso luces exteriores.
Abastecimiento de agua. Se realiza a través de una bomba sumergible a 45 metros que extrae el agua, la que sube y se almacena en el tanque de 500 litros, y llega por gravedad a la vivienda. Complementariamente, se acopia el agua de lluvia para riego y el baño del mangrullo. El agua caliente se obtiene del termo solar “E-cológica”, de 150 litros, y toda la cañería, desde el mangrullo hasta la casa, está aislada con poliuretano de alta densidad.
Tratamiento de efluentes por biodigestor. Los desagües están separados en dos tipos. Las aguas grises desembocan primero en una celda botánica que realiza el saneamiento del agua a través de las raíces de plantas y piedras. Esta celda está conformada por un contenedor de 80 centímetros de profundidad, cubierto por nylon de 400 micrones, arena, media sombra, piedras y tierra para albergar las plantas, concluyendo el circuito en un lecho nitrificante de 10 metros de longitud (caño de
CORTE - DETALLE
110 mm. agujereado), desde donde el agua vuelve saneada al suelo. Las aguas negras pasan por un biodigestor de 1.700 litros, en donde, para reducir la presencia de contaminantes, se degrada la materia orgánica presente en las aguas residuales mediante un proceso denominado “digestión anaeróbica”, para luego continuar a la celda botánica y el lecho nitrificante.
ARQUITECTURA SUSTENTABLE
De esta forma, el proyecto arqui_tiny propone repensar la forma en la que construimos nuestros hogares, desde los espacios y metros cuadrados necesarios, hasta evaluando la toma de decisiones en todas las etapas del proyecto, incorporando opciones de sistemas constructivos de bajo impacto y mayor eficiencia, aprovechando energías naturales, respetando el entorno y proponiendo una relación armoniosa con la naturaleza. Son todas cuestiones que nos ayudarán a tener una mejor calidad de vida y, en conjunto, disminuir los impactos que ocasionamos en nuestros lugares.
AGRADECIMIENTO
Al arquitecto Jorge Barroso, maestro de muchos, por sus enseñanzas y amor por la madera, y a todos los que acompañaron este hermoso camino.






















AUTORES HÁBITAT Y PAISAJE
FOTOGRAFÍA VALENTINA CAO
Podríamos coincidir en que la construcción es una actividad rudimentaria, inherente al humano desde tiempos remotos; la urdimbre del mampuesto, la fijación de un pórtico. En el estudio nos preguntamos cuándo es entonces que la construcción comienza a expresar arquitectura. ¿Será en el cuidado del encuentro material; será en la abstracción espacial o tal vez en la amabilidad en el contacto con la naturaleza? De momento, no tenemos la respuesta definitiva, pero sin duda en estas posibilidades mencionadas, está gran parte de la búsqueda que tenemos en Hábitat y Paisaje
FICHA TÉCNICA
UBICACIÓN LAGUNA EL ROSARIO / PARTIDO DE GENERAL MADARIAGA
SUPERFICIE TERRENO 8.000 M2 (APROXIMADAMENTE)
SUPERFICIE CONSTRUIDA CUBIERTA 136 M2 /
SEMICUBIERTA 84 M2
FECHA DE FINALIZACIÓN SEPTIEMBRE / 2023
En este caso en particular, casa en laguna, el programa contemplaba la construcción de una casa para una familia en un entorno particular. El proyecto se llevó a cabo en chacras Laguna el Rosario, ubicadas en la localidad de Madariaga, a pocos kilómetros de Pinamar, provincia de Buenos Aires. El área se caracteriza por ser un territorio heterogéneo, propio de la zona de humedales de la provincia de Buenos Aires, donde confluyen diferentes superficies inundadas de agua y existe una constante interrelación entre los seres vivos que la habitan. La diversidad de su flora y fauna dan al espacio intensidad cromática. Proyectar en este espacio tan especial significó conocer su esencia, descubrirla, comprenderla. Somos seres naturales que habitamos espacios, les damos carácter, identidad, es la naturaleza quien organiza el espacio. La casa, ligeramente elevada del nivel cero, está distribuida en una sola planta de recorrido li-



neal, paralelo a la laguna, y se compone de dos alas divididas por un núcleo central, el hall de acceso. El ala este contiene el sector público mientras que el ala oeste el privado. Nuestra premisa fue desarrollar el proyecto acentuando la transición entre el entorno y la casa; de esta manera, a lo largo de todo su recorrido se extiende, entre la laguna y el espacio interior, una galería de lado a lado, que en su trayecto encuentra dos jardines interiores que, además de dar privacidad entre los distintos ambientes, intentan replicar en escala la belleza del entorno. Un jardín, un haz de luz, un ecosistema. La idea de la separación de espacios a través de jardines internos hace posible, de forma fugaz y primordial, la relación exterior-interior. La naturaleza se adapta al espacio, se fusiona con la obra. Vivir el paisaje. La naturaleza se adentra en la arquitectura, el paisaje atraviesa el proyecto. El acceso a la chacra se planteó atravesando el bosque nativo y la cortina de sauces, un sendero adaptado al entorno que encuentra su fin perpendicular a la implantación de la vivienda, que espaldada en el bosque esconde el paisaje primero, para entregarlo después a través de un ventanal en el hall de acceso que abre el espacio hacia la laguna en una visual ininterrumpida. En concordancia con la premisa de proyectar en una actitud sensible con el entorno, optamos por la madera como el material indicado para la materialización de la casa. Tanto en su fundación, su elevación, cubierta y revestimientos, la casa se realizó íntegramente en madera, motivados por su nobleza como elemento natural, su amabilidad con el entorno debido
a su bajo impacto en el ambiente, su capacidad de adaptación a las condiciones climáticas y al paso del tiempo. El trabajo llevado a cabo fue un proceso de exploración, reconocimiento topográfico, estudio de la flora y fauna que habitan el lugar. El uso de la madera no solo se utilizó para estructurar la casa, sino también por la calidez que suma al espacio, así como por la temporalidad que le dará a la obra, ya que la misma irá mutando a lo largo del tiempo. Entendiéndose así la casa misma como un proceso de transformación, relacionado al sitio, a la vegetación, a las estaciones, la naturaleza circundante. Una vivienda elevada, liberando el terreno para posibilitar corrientes de agua, aire, plantas y animales, con el objetivo que el habitar humano no estorbe a la naturaleza. El individuo debe adaptarse al espacio, sin generar alteraciones en el mismo.
En relación a la fecha de finalización, hacemos hincapié en que fue en septiembre porque alguien ajeno a un lugar no debería condicionar el mismo para que modifiquemos nuestras costumbres y nos adaptemos a esas nuevas dimensiones. Tratamos de descubrir la naturaleza sobre la que fuera posible plantear el proyecto, el cual es un conjunto de instancias que conversan entre sí. La Laguna el Rosario es un barrio que está subdividido en chacras de aproximadamente 8.000 metros cuadrados. Se caracteriza por su amabilidad con el entorno: flora y fauna nativa. Bosques de tala, el canto de aves exóticas, caminos que se adaptan al entorno, un espacio con diversidad cromática son algunos de los conceptos que se tuvieron en cuenta a la hora de diseñar.


IMPLANTACIÓN

VISTA CONTRAFRENTE











AUTORES ESTUDIO CANEPARI ARQUITECTOS
MEMORIA
La vivienda se encuentra cercana a la zona ribereña de San Pedro, provincia de Buenos Aires. Los clientes, un médico pediatra y su esposa, encargan un proyecto que atienda las necesidades de su familia compuesta por ellos y tres hijos. Se hace hincapié en la conexión con la naturaleza y la calidad ambiental de la casa, teniendo especial cuidado en la generación de alimentos, la calidad del aire interior, el bajo consumo de energía, el uso del agua y la posibilidad de conseguir lo que ellos llamaron “una casa saludable.”
Se dispusieron soluciones desde el programa y el proyecto en diferentes áreas, intentando, al dotar a la casa de soluciones, que al interactuar en las diferentes estaciones del año creen un estado de confort teniendo en cuenta orientaciones y disposición de locales y funciones.
Se diseñó un área de producción de alimentos separada en planta baja (frutales) y terraza verde (huerta) en planta alta, suficiente para el consumo familiar.
También se instaló un sistema de generación geotérmica de energía para calefacción y agua caliente sanitaria (ACS), que en verano revierte su uso a un frio pasivo, extrayendo temperatura de la casa. La tierra es un acumulador de energía muy eficiente y estable: en nuestra área geográfica, a partir de los 4 metros de profundidad, tiene una temperatura constante de aproximadamente, 18.5ºC +/-. Esa diferencia de temperatura entre la superficie y esta profundidad permite el intercambio de energía entre
FICHA TÉCNICA
UBICACIÓN ZONA RIBEREÑA / PARTIDO DE SAN PEDRO / ZONA BIOCLIMÁTICA III a SUPERFICIE CONSTRUIDA 215 M2 FECHA DE FINALIZACIÓN 2019
el fluido que circula adentro de los tubos y la masa de tierra que lo rodea. Su eficiencia (COP 5) es suficiente para dotar al equipo de una alimentación externa equivalente de paneles fotovoltaicos que generen la energía eléctrica para que funcione. En cuanto a la calidad del aire, posee una toma distante que conecta por cañería subterránea a un equipo “Entalpico”, que renueva el aire interior cada dos horas, logrando un tenor de humedad estable. Posee filtros e intercambiador de calor permitiendo funcionar con una mínima pérdida de temperatura del aire. Inyecta aire exterior tomado a tres metros de altura de la superficie y extrae el aire viciado por los locales que generan humedad y olores, como las cocinas y los baños. También interactúa en su recorrido previo con la tierra, moderando la temperatura del aire que llega desde la toma.
El agua consumida es extraída por bomba sumergible en la napa subterránea y filtrada por ósmosis inversa previa al consumo. El agua de lluvia se almacena y usa para regar la huerta en el techo verde.
El techo verde se erigió en el tema y la razón de ser de la casa, en el cual la familia se encuentra, realizan tareas productivas y de relajación. Sirve como aislante térmico, tanto en verano como en invierno, y se complementó con lana de vidrio sobre cielorraso interior de placa de yeso para llegar a un nivel de eficiencia “A” de invierno y “B” en verano. También atiende a los intereses de los clientes el hecho de ser un lugar de hospedaje de biodiversidad, y sobre el tema han trabajado posteriormente.















RE-GENERAR
EQUIPO DE PROYECTO PREMIO ESTIMULO 2020 / CAPBA
Arquitectos/as Pablo Fidel Rescia, Andrés Tapia Avalos, María Noé Gómez, María José Díaz Varela y Kristina Atanasoka
Colaboradores arquitectas María Sol de Santis Xifra y Stefania Tagle, arquitectos Nazareno Baldino y Alan Kessler / Agustín Nicolás Giulioni, Alfonso Trueba y Facundo Carrozzino
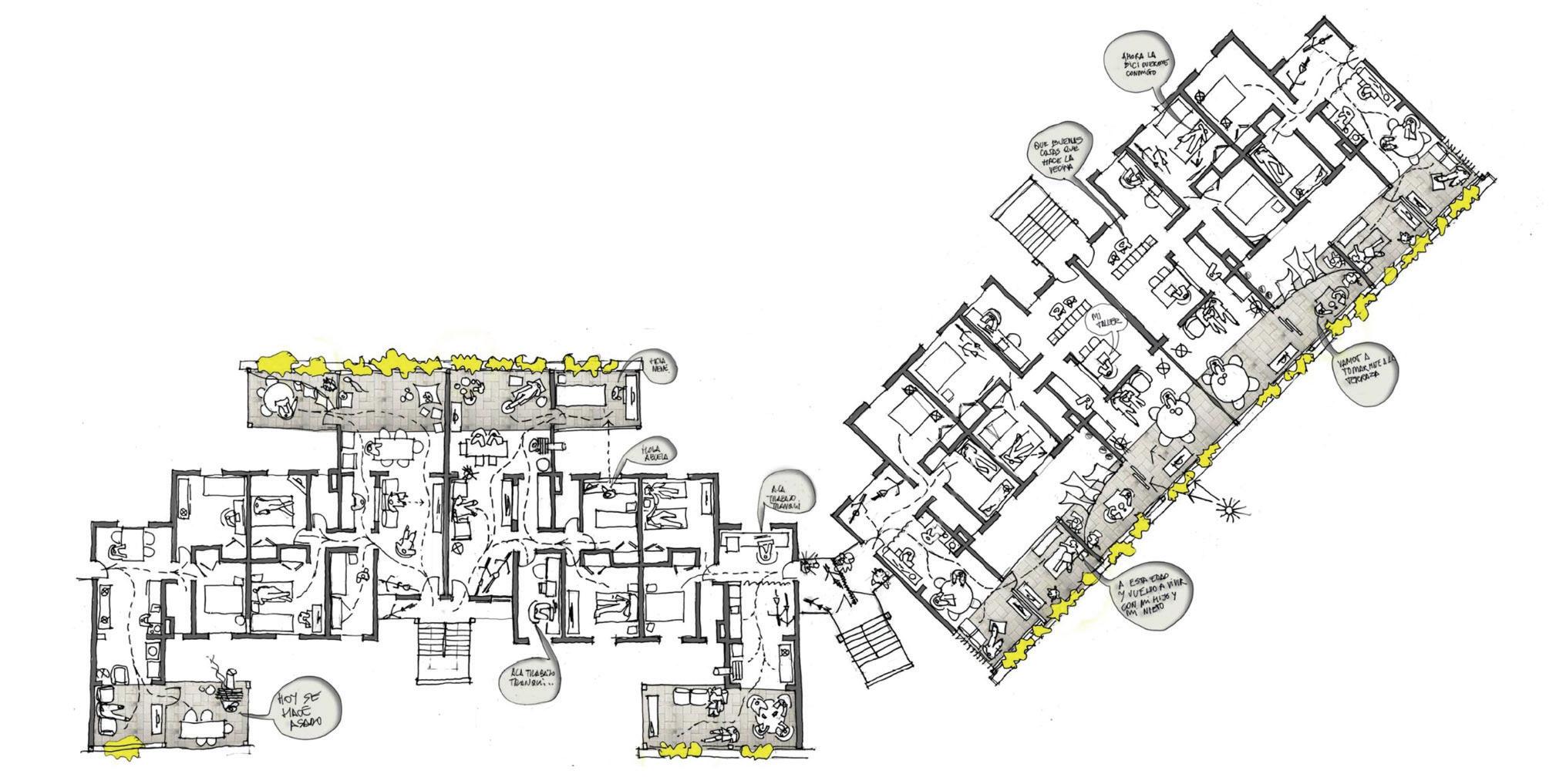
El conjunto de viviendas barrio Centenario cuenta con 1600 viviendas y alrededor de 20.000 habitantes “con alta proporción de jefes de hogar desocupados, subocupados e informales”1 Construido sobre fines de la década del `70 y principios de los `80, en los predios del antiguo matadero municipal y la plaza Rivadavia. Es producto de las operatorias de vivienda social FONAVI con la participación del Instituto de la Vivienda de la provincia de Buenos Aires y la Municipalidad de Gral. Pueyrredón. El barrio sufre un proceso gradual de degradación constructiva -producto de vicios de construcción, déficit de mantenimiento, cambios arbitrarios de las fachadas, nuevos cerramientos de espacios exteriores-, acompañado de una segregación física propia del planteo urbanístico espacial, así como una estigmatización social anclada en un imaginario urbano que lo muestra como uno de los barrios más peligrosos de la ciudad. La difícil situación, sumada la imposibilidad por parte del Estado de generar soluciones a largo plazo, ocasiona en sus habitantes un sentido de pertenencia y colectividad que, en los últimos años, determinan consorcios de administración sumamente activos y demandantes, ONG`s que interactúan con el barrio, consolidando, a lo largo del tiempo, los equipamientos públicos necesarios como escuelas, guarderías, y el último gran equipamiento municipal, que es la piscina pública. Ante el imprevisto aislamiento social preventivo y obligatorio,
las necesidades del hábitat popular ponen en evidencia las dificultades de crear un entorno digno que no sea a partir de lo ya producido. En ese sentido, la propuesta re-genera la identidad del barrio, promoviendo su inclusión en la trama urbana, evitando la segregación y consolidando la vivienda con una estructura de uso inespecífico, que expande la misma a su vez que atempera los reiterados problemas constructivos de base. La propuesta tiene como objetivo resolver los siguientes problemas socio-ambientales desde una perspectiva multiescalar, propia de la complejidad dimensional de la producción del hábitat. Tres ejes son los que articulan las diferentes escalas del planteo, respecto de la ciudad en cuanto a su desarticulación de la unidad de manzana, respecto de la urbanidad propia planteada por el conjunto, y por último, respecto de la vivienda y su condición de fragilidad en relación a lo constructivo, pero también a lo doméstico, sobre las nuevas formas de habitar que la pandemia evidencia como conflicto irresuelto entre las unidades espaciales y la complejidad de la vida contemporánea. Estos ejes son: 1.Evitar la segregación física. Aumentar la interconexión2 con la red circulatoria barrial que permita la interacción del complejo con el barrio, la llegada del trasporte público, recolección de residuos, favorecer la noción de seguridad y establecer una noción de referencialidad en el interior del



conjunto, son las premisas respecto de evitar la segregación física. Si bien la estructura de supermanzanas se mantiene, la red viaria interna se jerarquiza a partir de una articulación de dos bulevares arbolados, uno que da continuidad a la calle Tierra del Fuego en dirección NO-SE, y otro en la calle Peña, que también articula el barrio Centenario con otros conjuntos de vivienda adyacentes. Esta red principal se transforma también, se cualifica como una referencia necesaria que se contrapone a la uniformidad y monotonía actual que impone la estricta geometría del barrio.
Sobre el interior de las manzanas, se propone una nueva red de bicisendas que permita el desplazamiento liviano y rápido de interconexión entre las distintas manzanas del barrio
2. Uso racional de los espacios libres.
Promover una estructura de espacio público que implique la apropiación efectiva de los espacios libres, incluso legitimando
apropiaciones irregulares de las viviendas de planta baja, cuyo espacio exterior puede ser transformado en quintas particulares, o simplemente jardines. Esta nueva estructura está anclada a la nueva red circulatoria y enfatiza las esquinas liberadas por la conformación octogonal de la organización de los edificios. Así se generan espacios que igualan a las plazas secas, caracterizadas por sector de juegos, espera de transporte público, áreas de depósito de basura con los espacios verdes controlados. Esta conformación ya es utilizada en algunos sectores del complejo, que permite un control, saneamiento y cuidado de los espacios libres. La provisión de agua se garantiza a través de tres tanques tipo torre comunitarios, que se reconvierten en generadores eólicos de energía para los espacios comunes del complejo. Sobre la calle Peña, en áreas descubiertas residuales del complejo, se prevén estructuras abiertas y flexibles que concentren actividades comunitarias y productivas. Estos “galpones


productivos” pretenden concentrar tareas de capacitación, prácticas productivas de la economía social, y actividades de intercambio comercial relacionadas con el resultado de estas acciones de formación y elaboración. Los galpones se plantean como una gran cobertura de grandes luces, que permitan una diversidad de usos y una articulación entre espacios cubiertos, semicubiertos y abiertos, que concentren actividades comunitarias y productivas por fuera de las instituciones convencionales que ya se encuentran en el complejo. La autogestión, la mirada solidaria, la conciencia identitaria que subyace en el sitio debería encontrar en estos espacios su lugar apropiado, un espacio que se deje acondicionar en función de los dinámicos cambios a que nos somete la vida contemporánea. 3.Optimización ambiental de las unidades de vivienda. Las viviendas han sufrido patologías constructivas que tienen que ver con asentamientos diferenciales, deterioro propio de
la antigüedad y por falta de mantenimiento3. A su vez, los propietarios han introducido cambios, producto de la necesidad de espacios cerrados (lo que implica el cerramiento de balcones y terrazas e incluso palieres de acceso a las viviendas). También en algunos casos han sido retiradas las carpinterías de hierro que han sufrido el lógico desgaste de la oxidación, en una ciudad marítima como Mar del Plata.
Las viviendas han sufrido un proceso de transformación, ocupando lugares residuales de las escaleras comunitarias, cerrando las terrazas existentes o apropiándose de diferentes maneras del espacio público, generando un espacio exterior propio de múltiples usos.
La solución propuesta pretende el agregado de un módulo denominado MAS (Módulo ambiental de soporte), que implique una nueva estructura que mejore la resistencia de la actual construcción, que agregue espacios interiores y exteriores a

modo de tamiz entre el edificio existente y el espacio exterior, y que estructure una sistema de optimización de la distribución y reserva de agua potable, así como también paneles de precalentamiento de agua que reduzcan el consumo de gas o electricidad dedicado a la calefacción o al agua sanitaria. El MAS se convierte en un “ancla” natural que ayuda a detener los procesos de asentamientos diferenciales que producen patologías sobre los muros exteriores y las piezas estructurales. Además, en términos bioclimáticos, evita el efecto “Isla de calor”, ya que el MAS se colocará sobre la cara con mayor radiación solar, haciendo de filtro en las épocas de verano y convirtiéndose en invierno en lugares de captación solar por la utilización de cerramientos livianos a completar por el usuario. En síntesis, las características del MAS son las siguientes, según los recursos de agua, energía, aire y suelo.
Respecto del agua.
*El módulo es un colector de agua de lluvia y aguas grises destinadas a su reutilización, tanto como agua sanitaria como a riego de los espacios verdes exteriores. Recordemos que los espacios libres son porcentualmente la mayor superficie del predio. Su limpieza y manutención exige un considerable consumo de agua.
*El sistema MAS incorpora nuevos tanques elevados para aumentar la reserva de agua cercana a los elementos de consumo, incorporando una práctica habitual de los vecinos del barrio.
*Uso racional del agua durante la construcción, utilización de elementos de montaje en seco.
Respecto de la energía.
=Reducir el consumo de energía producido por la combustión de recursos no renovables (gas natural, petróleo y carbón), que producen emisiones de CO2 y provocan el calentamiento nocivo global del planeta, también conocido como efecto invernadero.
=Utilizar nuevas fuentes de energía renovables, incorporando a los depósitos de agua existentes “molinos” como fuentes de energía eólica que posibilite la iluminación del espacio público y de los espacios comunes de las viviendas. Lo mismo sucede, en menor escala, en los nuevos depósitos de residuos.
=El MAS estará compuesto por perfiles de PGC y losetas premoldeadas de hormigón vibrado que no necesitan otros elementos de terminación. Estos materiales utilizados permiten su recuperación y reutilización en su totalidad.
Respecto del aire.
=Utilización de materiales y sistema constructivo que implique una mínima o nula utilización de elementos perjudiciales para el medio ambiente y para la salud del usuario, como es el caso de pinturas y disolventes.
=Favorecer la ventilación de las unidades de vivienda, proveyéndoles de espacios filtro (MAS) que reduzcan la radiación solar sobre los edificios.
=Generar un entorno urbano que asegure la absorción de emisiones de CO2 con especies eficientes como variedades de coníferas, ubicados en los espacios libres y en los bulevares propuestos.

Respecto del suelo.
=Evitar la emisión de sustancias contaminantes al suelo (vertidos de combustibles, aguas de limpieza y productos peligrosos, etc.) que puede desestabilizar su orden natural como consecuencia de la disminución o aniquilación de la capacidad de regeneración de vegetación.
=Nuevos depósitos de residuos (asociados a los tanques comunitarios existentes y los propuestos), incorporando la separación de los mismo, y permitir el control y evitar el derrame de productos nocivos al suelo.
= Desarrollar una estrategia para el uso intensivo del suelo libre, incorporándolo incluso a la propiedad de la vivienda (en el caso de las viviendas en planta baja, acción que hoy se da informalmente) de modo de controlar su mantenimiento y optimizar su uso a través de programas como “Mi casa, mi huerta”, del INTA, contribuyendo a políticas alimentarias sustentables.
Conclusión.
La historia del barrio está caracterizada por la indefinición jurídica que deriva de las sucesivas entidades que lo administraron, no solo en su etapa de construcción, sino en los trabajos de ampliaciones, equipamientos comunitarios, y tareas de mantenimiento que, en muchos casos, quedaron inconclusas ante la ineficacia del Estado para proponer soluciones alternativas acordes a problemáticas puntuales.
Hoy, a la luz de esta nueva amenaza surgida de la propia naturaleza, la pandemia “nos ha puesto en evidencia lo que siempre estuvo ahí” (Manifiesto Utopías Posibles), ciudades como territorios de desigualdad e individualismo, con un Estado por detrás de los problemas. La propuesta pretende anclarse en aquellos problemas que parecen eternizarse hasta el punto de ser invisibles para la sociedad, incluso para aquellos que los sufren diariamente. Poner estas problemáticas como un pie de apoyo desde donde recomponer un horizonte de cambio en la realidad de nuestras ciudades, implica dejar de lado soluciones estereotipadas para dar paso a soluciones apropiadas, dinámicas y situadas, donde el proyecto es más proceso que forma, es más existencia que espacio, es más voluntad de ser que objeto de consumo.
Notas
1/ Pradin ,Griselda Alicia; Disfuncionalidad ambiental marplatense. El caso del Complejo Habitacional Centenario. Mar del Plata. Argentina.
2/ “Cortes de tramos en diversas arterias vehiculares impiden circular en el interior del CH y entre él y el barrio; el emplazamiento de equipamientos de gran porte, que ocupan varias parcelas y hacen de «tapón», configuran la fragmentación.” Roovers, Alfonso e Hidalgo; Segregación urbana, discriminación y conflictividad.
3/ Según dichos de vecinos, y administradores de los distintos consorcios de propietarios en la Jornada de trabajo Problemática edilicia Barrio Centenario en el Honorable Concejo Deliberante de Gral Pueyrredón.















