FASCÍCULOS

![]()

ARQUITECTO RAMÓN ROJO / PRESIDENTE CAPBA
Tenemos la íntima convicción que hemos reabierto un saludable espacio de debate en el CAPBA, que va más allá de los biomateriales o de la sostenibilidad ambiental. El interés que despertó el Congreso, particularmente en lxs jóvenes arquitectxs, da cuenta, a nuestro entender, de la necesidad de actualizar la agenda profesional. En nuestras reuniones de trabajo fuimos conversado mucho sobre el sentido y los alcances de este encuentro, sobre qué tan convocante podía resultar frente a una matrícula provincial con muchos matices profesionales. Tratándose de prácticas ancestrales, muy vinculadas a los saberes populares, no podemos -no debemos- desconocer que ha habido, y seguirán allí, resistencias a su abordaje hacia el interior de una institución como el CAPBA, donde conviven miradas

más académicas, si se quiere, con otras más ligadas al quehacer profesional cotidiano, al de las arquitectas y arquitectos de a pie, para ser más claros. Es inevitable que así suceda, en esta o cualquier entidad profesional. Ahora bien, a pocos días de haber finalizado este primer Congreso -entendemos que vale la expresión: ya estamos pensando en el próximo- ensayemos algunas conclusiones preliminares, ligadas fuertemente a los testimonios que fuimos recibiendo antes y después del encuentro. Insistimos en este punto porque cualquier institución que pretenda fortalecer su influencia en las políticas públicas que atañen a sus incumbencias, debe siempre ejercer una atenta escucha a las demandas de quienes las sostienen. En tiempos en que las representaciones sectoriales están siendo observadas -y con razón-, es imprescindible eludir las prácticas endogámicas y abrir el debate de ideas, sabiendo que enfrentar su incomodidad conlleva encontrar instancias superadoras de acción. En este sentido, es fundamental poner en valor los encuentros preparatorios que fueron haciéndose en algunas localidades de la provincia -San Isidro, San Martín, Tigre, San Pedro, Vicente López-. Todos ellos se constituyeron en un insumo de trabajo excepcional para ir comprendiendo la real dimensión de una demanda muy instalada en buena parte de la matrícula, particularmente la más joven… El significativo número de participantes, sorpresivo al principio, fue confirmando que estábamos frente a un hecho novedoso, un interés que -entendimos- iba más allá del cuidado ambiental. Recuperar practicas razonables -sostenibles- de gestión proyectual y constructiva estuvo -está- en el corazón de cada una de aquellas jornadas, en las palabras no dichas que flotaban en el aire... que una y otra vez nos hacían recordar que nuestra disciplina fue creciendo -y destacándose- a la luz de acciones que comprendían inteligentemente cada lugar, en cada una de sus dimensiones, desde sus tradiciones constructivas, prácticas socio-culturales o de producción económica. La arquitectura así entendida produjo obras pertinentes a cada lugar, percibidas y asumidas como propias por sus habitantes. En menor o mayor medida, esas arquitecturas no ponían en riesgo tan serio el medio natural donde se situaban, algo que sí está sucediendo hoy, sin margen para dudas. En ellas, la tradición popular ocupo un
STAFF CAPBA FASCÍCULOS
Propietario Colegio de Arquitectos de la Provincia de Buenos Aires
Director Arq. Ramón Rojo
Consejo editor Arqs. Juan Carlos Sánchez y Mario Pérez
Direccion de arte y diseño Estudio RO-K
lugar de inspiración principal, nunca testimonial, y mucho menos de imitación literal. En esencia, fue -es- una fuente referencial para mostrar caminos posibles, humanizados, nunca a contramano del interés por el resguardo ambiental. Si algo fue evidente con cada uno de los biomateriales y sus diversas prácticas constructivas -objeto específico de cada uno de esos encuentros preliminares-, es que son parte de un devenir silencioso pero persistente, donde la madera va unos pasos adelante. De hecho, es el único de los tres materiales que, en nuestro país, está considerado un sistema “tradicional” y, por lo tanto, incorporado en un marco normativo, aunque con mucho para revisar aún. Con la tierra cruda y el bambú no ocurre lo mismo, claramente. Y causa cierta extrañeza: la construcción con tierra cruda es una práctica popular ancestral en nuestro territorio, y el bambú- aunque con menor alcance-, también. Y la extrañeza se acentúa cuando se accede al conocimiento de obras construidas en la región, incluso dentro de la Argentina…Y, ni que hablar cuando se revisa la producción internacional, de la que hemos dado cuenta en anteriores fascículos, producción que nos fueron acercando cada uno de los expositores, que tan generosamente nos acompañaron en estos recorridos preliminares. La palabra militancia cabe aquí, es la que mejor los define, es necesario decirlo. Sin esa militancia, sin esa perseverancia, compartida con tantas otras y tantos otros, hacia adelante y hacia atrás, buena parte de lo que hoy es una realidad virtuosa, no hubiera sido posible. En ocasiones, el acceso a la información queda obturado por factores (o decisiones) que hoy no son objeto de este editorial, pero que existen, son reales. Ahora bien, nada indica que esas prácticas, aun siendo involuntarias, puedan sostenerse indefinidamente, siempre y cuando se comprenda que la difusión de saberes técnicos vinculados al hábitat, cualquiera fuera su origen, debiera ser un parámetro irrenunciable tratándose del CAPBA. Con los biomateriales pasa algo de esto (particularmente con la tierra cruda y el bambú), que explica buena parte de la razón que nos impulsó a concretar un evento de estas características.
Con este bagaje de información en nuestras mochilas, llegamos al Congreso de octubre. Y ahí fue otra historia. Lo que fue pasando de incertidumbre a cuasi certeza para el equipo organizador a medida que avanzaban los encuentros preliminares, determinó un cambio de locación ante el aumento sostenido de las inscripciones para obtener cupos de asistencia -libre y gratuita-, a una ampliación de la agenda de conferencias, y a una participación muy alta en los micro foros previstos, que desbordaron la sede del Consejo Superior del CAPBA, de los que compartiremos mayores detalles en próximas publicaciones. Siendo ya el tiempo de unas primeras conclusiones, en rigor ya anticipadas en las palabras que anteceden, nos queda insistir en que no se trata de valorizar ciertas materialidades sobre otras, ni exclusiones sin argumentos sólidos que las sostengan. En honor a la verdad, el punto en que elegimos pararnos es el mismo de siempre: las arquitecturas deben su mayor o menor eficacia a su pertinencia a un sitio determinado, siempre asociada a una materialidad específica y no a otra. Su sostenibilidad radica allí, jamás en la destrucción ambiental.
Para finalizar, vayan algunos agradecimientos:
_En primer lugar, a las y los asistentes al Congreso, por habernos acompañado con su presencia, sin omitir las disculpas por las incomodidades causadas ante un cambio de locación imprevisto.
_A los expositores que participaron de los encuentros preparatorios -Javier Hernández, Cristian Massat, Bettina Tommei, Valentina Ríos y Esteban Hunhold-; y a aquéllos que lo hicieron de forma presencial y virtual en el Congreso.
_Al Colegio de la Abogacía de La Plata, que nos cedió su auditorio durante las dos jornadas del evento, gracias a las gestiones de los arquitectos Julio Santana, Daniel Delpino y Soledad del Cueto.
_Al Consejo Editorial de Publicaciones CAPBA, al equipo de comunicación CAPBA y al CAPBA TV.
_Al equipo organizador, integrado por Elizabeth Vergara, Natalia Kamada, Bettina Tommei, Cecilia Martínez y Mario Pérez.



















“Fue un congreso que me renovó el compromiso con una arquitectura que respete al medio ambiente.” Participante Congreso
El Primer Congreso CAPBA de Bioconstrucción y Cambio Climático, celebrado en La Plata el 17 y 18 de octubre de 2024, marcó un hito en la búsqueda de una arquitectura sostenible que respete tanto el medio ambiente como a las comunidades locales y forestales. Este evento reunió a expertos en bioconstrucción, arquitectura, ingeniería y sostenibilidad, creando un espacio de diálogo e inspiración en el que la bioconstrucción se destacó como una poderosa herramienta para enfrentar la crisis climática. A través de más de 290 asistentes -entre arquitectos, ingenieros y estudiantes-, el Congreso fue una celebración de compromiso y acción en pro de un futuro donde la construcción se alinee con la protección de los ecosistemas y el bienestar de las comunidades forestales.
Arquitectura y responsabilidad ambiental: un Congreso que retó a los profesionales a actuar




“Es fundamental y urgente convocar para hablar de estos temas en nuestra profesión. El planeta nos necesita.” Participante Congreso
Desde el primer día, el Congreso desafió a los participantes a reflexionar profundamente sobre su impacto en el medio ambiente. La actividad inicial, en la que cada asistente calculó su huella de carbono, hizo evidente cómo cada decisión personal, incluso el medio de transporte elegido para asistir, afecta al planeta. Este ejercicio fue un llamado a la acción y generó un sentido de compromiso colectivo hacia soluciones sostenibles.
El Congreso también subrayó la urgente responsabilidad del sector de la construcción, que contribuye al 38% de las emisiones globales de carbono, en rediseñar las ciudades con materiales y técnicas que regeneren, en lugar de agotar, los recursos naturales. Materiales como la tierra cruda, el bambú y la madera se presentaron no solo como opciones sostenibles, sino como símbolos de una arquitectura ética y consciente.









TIERRA CRUDA: UN MATERIAL QUE UNE HISTORIA Y FUTURO
El primer día del Congreso estuvo dedicado a explorar las posibilidades de la tierra cruda, un material ancestral que ahora resurge como una opción viable para la construcción sostenible, no solo en zonas rurales, sino también en entornos urbanos. La tierra cruda, además de ser accesible y sostenible, tiene el potencial de transformar nuestras ciudades en espacios que dialoguen con la naturaleza y que conserven una huella ambiental mínima. Su capacidad de regulación térmica y su bajo impacto en carbono lo convierten en un recurso ideal para el urbanismo contemporáneo. En los micro foros, se destacaron tanto su versatilidad como su capacidad para conectar a las personas con su entorno y raíces culturales. Se discutieron las barreras normativas y los prejuicios culturales que enfrenta este material en Argentina, y se subrayó la importancia de integrarlo en la arquitectura urbana para reimaginar ciudades sostenibles y con identidad propia.

BAMBÚ Y MADERA: SÍMBOLOS DE RESILIENCIA Y CONEXIÓN CON LA NATURALEZA
El segundo día, el foco fue el bambú y la madera, dos materiales sostenibles que, además de su bajo impacto ambiental, evocan una conexión profunda con la naturaleza. El bambú, en particular, fue elogiado por su rápido crecimiento y resistencia, lo que lo convierte en un recurso accesible y transformador para comunidades en áreas vulnerables. Además, se destacó la dimensión espiritual del bambú: construir con este material implica un acto de creación compartida, un proceso en el que la naturaleza, el profesional y la comunidad trabajan juntos. En América Latina, el bambú se asocia además con la inclusión y empoderamiento social. En muchas comunidades, las mujeres asumen roles activos en los proyectos de construcción con bambú, liderando procesos desde la siembra hasta la construcción de viviendas y espacios comunitarios. Este material, por tanto, no solo representa una opción sostenible, sino un símbolo de igualdad y de empoderamiento femenino






que fortalece el tejido social y la economía local. Por otro lado, se discutió el potencial de la madera CLT (Cross Laminated Timber) para reemplazar el hormigón y el acero en construcciones de altura. Esta tecnología de madera laminada ofrece una estética versátil y baja huella de carbono, y representa una alternativa ideal para quienes buscan construir de manera sostenible sin sacrificar la calidad estructural.
ARQUITECTURA EN ARMONÍA CON EL CONTEXTO: UN COMPROMISO INELUDIBLE
La conclusión del Congreso, a cargo de los arquitectos Ariel Pradelli y Gustavo Barcia, fue un recordatorio de la necesidad de una arquitectura que respete el entorno natural. Ellos enfatizaron la importancia de adaptar los diseños arquitectónicos a los desafíos de cada lugar, especialmente en zonas vulnerables como costas y humedales. En estos contextos, la bioconstrucción no es solo una opción, sino una responsabilidad ética hacia las comunidades y el medio ambiente.





INSPIRACIÓN PARA EL FUTURO: UNA ARQUITECTURA QUE CONSTRUYA Y REGENERA
“Fue un congreso que superó mis expectativas. Me renovaron las ganas de estar donde hay que estar, haciendo lo que hay que hacer” Participante Congreso.
El Congreso CAPBA fue, para muchos, una experiencia transformadora que reforzó la importancia de colocar la sostenibilidad en el centro de la arquitectura. Los organizadores propusieron el desarrollo de un programa de formación continua para arquitectos, así como el impulso de normativas que respalden el uso de materiales sostenibles. Este esfuerzo busca establecer un nuevo estándar en la construcción, uno que traiga beneficios tanto ambientales como sociales. El entusiasmo de los asistentes, quienes expresaron su deseo de repetir el Congreso y seguir profundizando en estas temáticas, dejó claro que este evento es solo el inicio de un movimiento más amplio. Con la bioconstrucción como filosofía, se abre un camino hacia un futuro donde construir también signifique cuidar y regenerar.

AUTORES SUMA / ELENA ORTE Y GUILLERMO SEVILLANO
COLABORADORES MARTA ROMERO, LUIS SIERRA, PATRICIA MINGUITO, JESÚS LÓPEZ, NURIA SÁIZ, MIGUEL NEVADO, JULIO GONZÁLEZ, ENAR (FACHADA), CABA (EFICIENCIA ENERGÉTICA), M7 (INSTALACIONES), MARGARIDA (ACÚSTICA), MASTER PLAN (DIRECCIÓN DE EJECUCIÓN DE PROYECTOS), UTE VIAS-CRC, COBRA / JESÚS GRANADA (FOTOGRAFÍA)
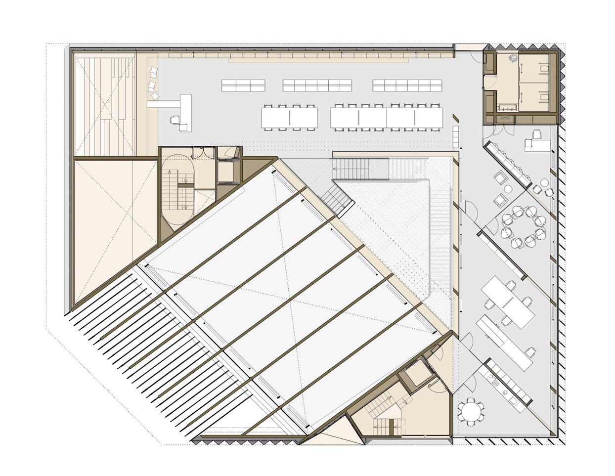
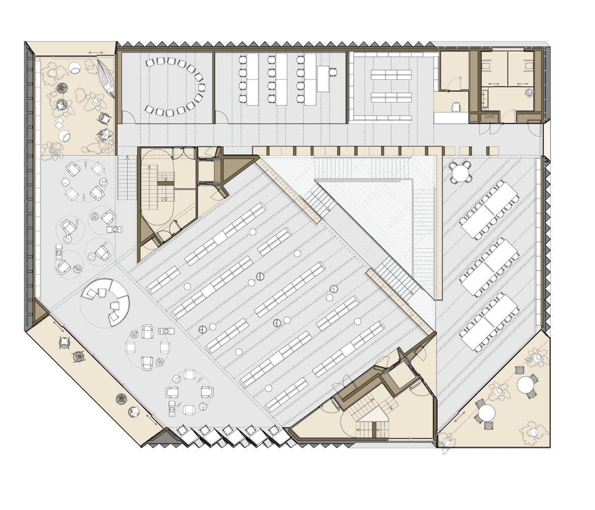
Tomando como punto de partida la pregunta “¿cómo debería ser una biblioteca en el siglo XXI?”, el proyecto estuvo acompañado de una investigación programática, desarrollada por el estudio para redefinir el modelo contemporáneo de este tipo de instalaciones. Este desafío afecta no sólo a las bibliotecas, sino a todo nuestro ecosistema construido, puesto en crisis por los medios digitales y virtuales. La propuesta de SUMA para la biblioteca Gabriel García Márquez consiste en apostar por una redefinición holística de las relaciones entre arquitectura, colecciones, personal y usuarios, ofreciendo un repertorio de ecosistemas cuya experiencia es insustituible por los medios electrónicos. Para definir esta diversidad de espacios, se analizaron situaciones formales e informales, locales y globales, que luego se combinaron y diseñaron de manera integral para fomentar la experiencia de acceder, intercambiar y producir conocimiento para todas las edades y tipos de público. Así, se diseñaron los siguientes espacios: el Ágora-Escaparate, que ofrece en la entrada un espacio de reunión y exposición permeable y reconfigurable; el Foro de Ideas, donde se ofrecen distintos tipos de reuniones con asientos y mesas de diferentes tamaños y alturas, rodeados de cortinas semitransparentes; o el Palacio de Lectura, que permite a cada usuario disfrutar de una experiencia lectora diferente: desde refugiarse en su sofá favorito, como lo haría en casa, hasta leer en la terraza o en el jardín de invierno, entre mecedoras y hamacas. La biblioteca se configura para el usuario como un paisaje complejo y enriquecedor, una Espiral de Encuentros dedicados a la cultura, donde cualquiera puede encontrar su lugar. Los usos del equipamiento se organizan en sus cinco plantas de la siguiente manera: social y comunitario en la planta baja (patio y jardín, auditorio, estudio de transmisión de Radio Maconda y espacio para asociaciones de vecinos); en el primer piso, la zona de acceso, el Bazar de Noticias y el Foro de Ideas; el espacio infantil y juvenil en el segundo piso, que incluye un quiosco dedicado a Francisco Ibáñez (famoso autor de cómics español y vecino) y un área familiar que evoca un parque; los espacios principales de la colección, que ofrecen diversas experiencias de lectura, en el segundo y tercer piso; y aulas y espacios dedicados a quienes buscan una mayor concentración, en el último nivel.
El sitio asignado al proyecto fue un desafío para los arquitectos. Situado en el interior del distrito de Sant Martí, se trataba de un pequeño solar rectangular en el cruce de dos calles secundarias, detrás de una comisaría de policía, muy poco atractivo a la vista y conceptualmente alejado de la función lúdica y cultural de la biblioteca. El edificio propone en su esquina principal una reinterpretación del
FICHA TÉCNICA
UBICACIÓN SANT MARTÍ / BARCELONA / ESPAÑA
SUPERFICIE 4.170 M2
FECHA FINALIZACIÓN 2022
característico chaflán del Eixample barcelonés, con una geometría de 45º que sigue el eje norte-sur, que atraviesa toda la biblioteca y ofrece las mejores vistas y asoleamiento. Esta directriz configura la forma triangular del patio central y los núcleos de servicios que se repiten en todas las plantas, con una envolvente que busca la luz indirecta en sus fachadas y lucernarios, evitando las vistas frontales a la comisaría y centrándose en los árboles de la calle. El reducido tamaño del solar obligó a multiplicar el número de plantas, sin sobrepasar la copa de los árboles para una mayor armonización con el entorno. La primera planta elevada permite, sin comprometer la accesibilidad del conjunto, maximizar las condiciones de la planta inferior, que goza de buena luminosidad, jardín perimetral y generosa altura para eventos, potenciando, al mismo tiempo, la biblioteca y su presencia en el barrio como salón urbano.
ESTRUCTURA Y MATERIALIDAD
La estructura de madera, ligera y permeable, pero compleja y diseñada de forma ecosistémica -en el momento de la inauguración, el mayor volumen de madera vista de Europa- ha permitido crear un edificio cinco veces más ligero que si fuera de hormigón, y con menor consumo de energía gracias a la solución constructiva de su envolvente ligera de lamas y fachada ventilada de fibra de vidrio, reciclada en gran parte. El proyecto es pionero en el uso de madera estructural, sin juntas vistas, reforzada con elementos de acero, y pone de relieve la dilatada trayectoria de Elena Orte y Guillermo Sevillano como profesores de diseño estructural en el IAAC de Barcelona.
El edificio se asienta sobre tres núcleos articulados en torno a un patio triangular, conectados por diferentes cerchas de madera, que albergan los espacios más acústicamente independientes y liberan zonas abiertas donde llega, en cada planta, la escalera caracol que recorre el atrio. El vacío central se convierte en un espacio centrípeto y conectivo, que multiplica las miradas y los posibles itinerarios, articulando la biblioteca como un paisaje lleno de ofertas y encuentros inesperados.
La biblioteca cuenta con numerosas estrategias pasivas y activas sostenibles y energéticamente eficientes, acreditadas con una certificación LEED Gold. El atrio actúa como chimenea solar; la envolvente luminosa y ventilada está realizada con lamas de fibra de vidrio reciclada, recubiertas con resinas que optimizan la protección solar, favoreciendo la iluminación natural en el interior; se han utilizado sistemas constructivos industrializados y prefabricados para optimizar los residuos; uso extensivo de materiales de almacenamiento y bajas emisiones de gases de efecto invernadero, como la madera estructural; paneles fotovoltaicos en el tejado; y un sistema de reciclaje de agua de lluvia, entre otras soluciones.



















AUTORES SUMA / ELENA ORTE Y GUILLERMO SEVILLANO
COLABORADORES MARTA ROMERO, JESÚS LÓPEZ, SARA CONTRERAS, DIEGO MOLINA, LUIS SIERRA DE HITA, MARÍA DEL CARMEN ABELLÁN, IRENE ALMAZÁN, MIGUEL ÁNGEL MAURE, PABLO CORROTO, COSTANZA
MAGLI, INTERNS Y MARTA ROMERO (VISUALIZACIONES) / JESÚS GRANADA (FOTOGRAFÍA)
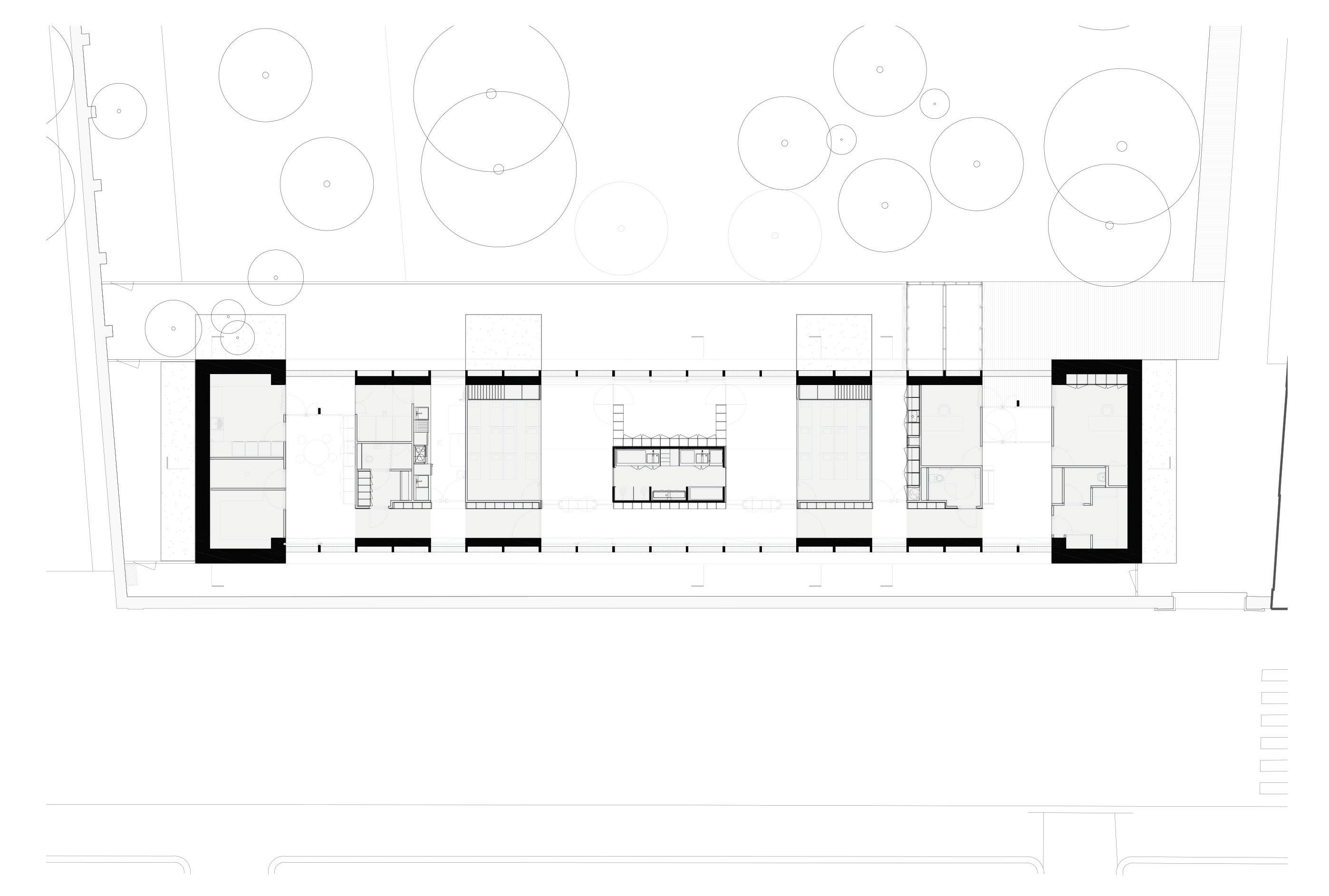
Our-Shelves-Houses es un singular edificio para una cooperativa, ubicado en Madrid, en una zona de edificaciones de baja densidad de vivienda unifamiliar y colectiva de hasta cuatro plantas de altura, construidas en su mayoría antes de la entrada en vigor del Plan General de Ordenación Urbana de Madrid en 1997. Se trata de un enclave complejo en cuanto a sus condicionantes volumétricos, ya que las edificaciones contiguas al solar tienen una posición y alturas dispares. El edificio introduce varias franjas de espacios ajardinados a lo largo del perímetro de las nuevas edificaciones, con lo que se recupera la configuración del espacio de la ciudad lineal en esta parcela. Se retranquea el edificio para organizar el acceso en la calle Hernández Rubín, generando una zona de uso privado común. En la zona posterior, otro espacio jardín de uso privado común, por lo que la edificación queda aislada en el interior de la parcela y bordeada por espacios ajardinados. Esta propuesta organiza el espacio de forma que la edificación queda integrada dentro del concepto de ciudad lineal que se había perdido.
ARQUITECTOS COMO EMPRENDEDORES:
PROGRAMA A MEDIDA, GESTIÓN Y DISEÑO
Our-Shelves-Houses es un desarrollo cooperativo fundado y gestionado por SUMA, que reunió a ocho familias de familiares, amigos y jóvenes profesionales en busca de su primera vivienda. Este proyecto de bloque abierto alberga ocho viviendas dúplex de tres dormitorios. Cada vivienda cuenta con un espacio exterior privado: un jardín en la planta baja y una amplia terraza en los áticos.
El complejo ofrece piscina, jardín, estacionamiento y servicios comunitarios para todos (trastero, lavandería, espacios comunes para reuniones o juegos, etc.).
Se trata de viviendas dúplex de tres dormitorios con estancias escalonadas y servicio de ascensor en todas las plantas. Todas las viviendas disponen de un espacio exterior privado, jardín en planta baja y una amplia terraza en los áticos. Además, el proyecto ofrece unas prestaciones únicas que permiten que cada cooperativista pueda customizar y recibir un diseño a medida de su vivienda (no hablamos sólo de elegir materiales). El conjunto cuenta con piscina, jardín y aparcamiento. La edificación se organiza en cuartos de medio nivel, que hace que cada una de las viviendas pueda contar con tres alturas diferentes. Esto posibilita que todas las viviendas puedan contar con jardín, habiendo cuatro viviendas-jardín y cuatro áticos con terraza.
FICHA TÉCNICA
UBICACIÓN MADRID / ESPAÑA
SUPERFICIE 2.046 M2
FECHA FINALIZACIÓN 2015
COSTO UNITARIO 1.432€/m2
PRESUPUESTO 2.930.477 €
Después de un meticuloso trabajo de toma de medidas, numerosas entrevistas y varias iteraciones de diseño, los miembros de la cooperativa obtienen un diseño a medida y plena capacidad de decisión sobre el resultado del proyecto y la obra, más allá de elegir materiales de un catálogo predefinido.
INNOVACIÓN TIPOLÓGICA
Al ser una cooperativa, cada vivienda es el depósito de la memoria y contiene fragmentos de los cooperativistas y de los suyos. Es una inversión hecha a la medida de cada uno (en función de calidades, criterios y decisiones individuales). Las viviendas se tratan como trajes a medida de las necesidades de cada familia, resultando en hogares únicos. La estructura de madera se “sociabiliza” convirtiéndose en elementos de protección solar, control de vistas y privacidad, mobiliario integrado, etc. El escalonamiento de las plantas mejora la comunicación entre habitaciones y las conexiones visuales con las terrazas y los jardines, haciendo de las viviendas un reflejo de la conciencia de las familias del mundo sostenible en el que habitan. La envolvente es el reflejo de la estructura portante y de la configuración interior, es una matriz personalizable, ya que la profundidad de los planos horizontales forma estantes que permiten controlar la privacidad de las estancias y la iluminación. Además, estos estantes pueden usarse como espacios de almacenamiento gracias a su retranqueo: grandes armarios para ropa y objetos personales, escritorios, superficies para camas y sofás, bibliotecas, encimeras de cocina y lavabos.
La estructura de madera ofrece ventajas higrotérmicas y de fácil montaje. Es el soporte de la envolvente. Los ambientes escalonados de las viviendas vacían los planos de los niveles. Así, la envolvente hacia el exterior es reflejo de la estructura portante y de la configuración interior. La repetición de estos elementos permite generar una estructura densa que funciona como un mecano prefabricado y de ensamblaje sencillo, seco y rápido, con una generación de residuos muy reducida. La envolvente y la estructura son un mismo elemento que permite controlar la privacidad, iluminación y temperatura de las habitaciones, y sirve como espacio de almacenamiento integrado gracias a su retranqueo. En esta envolvente se abren huecos y miradores estratégicos en los ambientes de las viviendas. La adición de elementos entre los planos la convierten en portante y le otorgan así características únicas. La estructura se divide en cuatro elementos principalmente: por




un lado, los núcleos de madera contralaminada del ascensor, la piel estructural de madera y losas de madera contralaminada, y por último, la estructura bajo nivel 0 de hormigón armado.
DISEÑO ECOSISTÉMICO, EFICIENCIA
ENERGÉTICA CLASE A
Las instalaciones del edificio incluyen producción de frío y calor por aerotermia, así como ventilación mecánica con recuperación de calor, garantizando confort higrotérmico y ventilación con máxima eficiencia. Además, se recolecta agua de lluvia para su reutilización y se emplean paneles solares térmicos junto con toldos para protección solar.
La estructura de madera laminada cruzada (CLT y GLT) de abeto rojo y pino silvestre, y losas de madera contra laminada de clase resistente GL24h vista en techos, ofrecen ventajas de sostenibilidad,
higrotérmicas y de fácil montaje. El CLT es un material sostenible, no solo por estar compuesto de madera que ya es un recurso renovable, sino que no requiere de la quema de combustibles fósiles durante su producción. Frecuentemente, los paneles de CLT son ensamblados y cortados durante su producción, igualmente se fabrican con las juntas y aberturas específicas del diseño, por lo que es un tipo de construcción prefabricada.
La utilización de CLT como material portante permite que el mismo sea el acabado, lo que disminuye la mano de obra y el tiempo de ejecución del proyecto. Al ser prefabricado y de ensamble sencillo, hace que la construcción de proyectos de este tipo sea un trabajo seco y rápido con una generación de residuos muy reducida. Algunos datos del proyecto: 392 metros cúbicos de madera (CLT) / 2.200 km distancia de transporte / 67% porcentaje de estructura de madera / 236 ton. potencial de beneficio de CO2.


















AUTORES ATELIER RÉGIS ROUDIL ARCHITECTES / GERENTES
DE PROYECTO: RÉGIS ROUDIL Y CHARLES LACROIX
COLABORADORES VESSIÈRE / B52 / ECO+ / EODD / VIASONORA
FICHA TÉCNICA
UBICACIÓN QUAI BRANLY / PARÍS / FRANCIA
SUPERFICIE 308 M2
FECHA FINALIZACIÓN 2022

SITUACIÓN
La torre Eiffel, el Museo Quai Branly, la intensa materialidad parisina, el movimiento, la profundidad histórica de un paisaje fuerte y un territorio singular... Es en un contexto monumental y poderoso, retirado y alejado del tumulto urbano, donde la Presidencia de la República decidió programar la construcción de una guardería. Previamente alojada en un edificio antiguo e inadecuado de la rue de l’Elysée, su nueva localización ofrece un lugar verdaderamente sereno. En el corazón del Palais de l’Alma, antiguos establos de Napoleón, el jardín sur permite que el silencio resuene para dar la bienvenida al nuevo equipamiento. Los monumentos de los alrededores, tan diferentes en su composición, nos cuentan diariamente la historia de París. Uno de los desafíos del proyecto es registrar con precisión este tejido urbano excepcional para respetar al máximo el patrimonio existente, pero también para ampliar las cualidades de un lugar tranquilo dominado por la vegetación y revelar el espesor del entorno. Dentro del Palais de l’Alma, el eje central y la composición racional de volúmenes construidos nos permiten sumergirnos en una arquitectura simétrica; sólo el jardín aparece como un pulmón verde, bucólico, en medio de un conjunto construido. Delimitado al sur y al oeste por dos muros circundantes, el sitio del proyecto prolonga sutilmente el jardín sur del Museo Quai Branly, diseñado por Gilles Clément: ambos conforman un espacio vegetal coherente. Esta importante relación urbana, así como nuestro deseo de trabajar en conjunto con el ala de la Maréchalerie, han guiado nuestra concepción por la implementación de un único volumen longitudinal al sur del terreno. Limitado por la zona boscosa del jardín y una banda de 15 metros al sur y al oeste, esta disposición nos permite restaurar un frente construido al sur del jardín (como fue el caso, en el pasado, con la construcción de edificio de la Meteorología Nacional), en un todo cuestionando la naturaleza del muro recinto. Este último se convierte en el soporte del proyecto, un grueso muro que vive y que se abre hacia el jardín. A modo de pabellón, una conexión profunda se teje entre el interior y el exterior. El volumen construido de la guardería y su espacio exterior se extiende desde el muro recinto al paseo. Para anclar el edificio en el sitio, se deja un espacio al sur entre la pared del jardín y la guardería para permitir el acceso necesario para la seguridad. El lugar es sensible por su destino y su función, y no ofrece visión directa desde el espacio público: se implementa la noción de corte y de espacio introvertido. Al norte, el jardín infantil se encuentra directamente con el Palacio para disfrutar de un escape visual a la naturaleza. Frente a una relación íntima con la naturaleza y una búsqueda
de significado telúrico a los elementos, la elección de materiales de origen biológico se impone de forma natural: por un lado, por el deseo de respetar los objetivos de control ambiental del trabajo, y por otro, para anclar el proyecto en resonancia con las materialidades constitutivas del jardín.
En este sentido, se construye la guardería con tierra cruda y madera. En cuanto a la tierra, el proyecto considera este recurso no como algo que debe ser excavado, sino como material de construcción virtuoso, de calidad, que permite ciertamente edificar, pero sobre todo ofrece la posibilidad de encarar una relación con el mundo verdaderamente sostenible y una economía decididamente anclada en su territorio.
En este caso, la construcción con tierra se implementa in situ, por estratos de tierra apisonada de 12 centímetros de espesor para reducirlos a 8 centímetros, intercalados por una capa horizontal de cal cada 6 estratos para estabilizar. En los ángulos y para ganar rigidez, la capa de cal se repite en todos los estratos. Desempeñando un rol portante y de refuerzo, la solicitación de los muros de adobe es total.
El acompañamiento de un equipo de especialista fue decisivo (estructura BET, oficina de control, empresa de pavimentación).
En el proyecto, la tierra procede de la fábrica de ladrillos Dewulf, en Allonne en Oise. La idea original preveía el uso de tierra proveniente de predios en construcción del Gran París, pero como los plazos de obra eran muy exiguos, nos orientamos hacia la tierra local, cuyas características eran conocidas y estaban revisadas. En cuanto a la madera, sus cualidades no necesitan demostración. Es un material renovable que consume poca energía para su producción y procesamiento industrial y, al mismo tiempo, contribuye a la reducción del efecto invernadero. En esta obra, la madera utilizada es de origen francés y representa aproximadamente el 82% del material empleado en la construcción (estructura, carpintería interior y exterior, aislamiento, revestimientos, cielorraso acústico, muebles…). Para reducir su huella de carbono, los elementos de la estructura fueron transportados por vía fluvial al sitio de construcción, cuyo acceso directo al Sena desde Quai Branly facilitó la operación. Con un espíritu pragmático, la estructura se basa en un sistema de soporte de vigas de madera y dos grandes volúmenes portantes de tierra cruda apisonada. Este dispositivo estructural ofrece gran libertad en el diseño de la planta y permite conciliar eficiencia y evolución. Anhelado por el comitente, la noción de mutabilidad del equipamiento diseñó el edificio desde su concepción. Escuchando a los niños en su relación con el mundo, el proyecto arquitectónico manipula materiales sensibles, con los

que articula percepciones cognitivas. Los colores de la madera, de la tierra, están armonizados en tonos cálidos para acompañar el aprendizaje en un ambiente doméstico y envolvente para los niños. La tierra permite enraizar el proyecto en el jardín, mientras que la madera aporta la dulzura y la calma que los niños necesitan para desarrollarse. El ritmo de los postes de madera juega con los grandes árboles del jardín, en tanto que los estratos horizontales de tierra se rencuentran con las piedras del sitio. El techo unifica la totalidad, originando una fuerte línea horizontal que enfatiza las verticales de la torre Eiffel y los edificios de vivienda hausmanianos situados al sur del jardín. Por su situación dominada y perceptible desde el área circundante, el techo está cubierto de vegetación y no presenta ningún elemento técnico. Sobe la cubierta se monta un shed que permite iluminar el corazón del edificio, donde se encuentra el espacio principal de la guardería, la sala de juegos infantiles. Por su curva cóncava, la volumetría del shed otorga una identidad lúdica al equipamiento, mientras permite posicionar un eje de simetría riguroso para la composición general. Las aberturas en la cubierta garantizan una importante ventilación natural, necesaria para un buen confort en verano. El solado de los espacios exteriores es de corcho fundido, que es un material ecológico, reciclado, renovable y, además de sus cualidades estéticas, es un buen aislante acústico y térmico y es especialmente indicado para amortiguar caídas.
En la oficina del director, en particular, la transpiración de la pared de tierra es óptima porque permite un tratamiento interior con aislamiento térmico de viruta de madera y placas de tierra cruda atornillados a un marco de madera con un revestimiento, también de tierra, para el acabado. Para el techo de toda la guardería, se usaron paneles acústicos de madera perforada.
FUNCIONALIDAD
Nuestra prioridad era lograr un proyecto claro, eficaz, racional y, sobre todo, funcional, para facilitar el desarrollo de los niños, ofrecerles un universo protegido y, finalmente, promover el contacto entre padres y personal.
El acceso es progresivo: en primera instancia, descubrimos la guardería desde el porche a lo largo del tiovivo tomando un camino



peatonal, de adoquines reutilizados, que se expande para convertirse en la explanada del edificio. El posicionamiento de la habitación de madera para dejar los cochecitos de los niños, invita a dirigirse con naturalidad hacia la esquina noreste del edificio. Una vez colocados los mismos en la habitación baja, los visitantes entran a la guardería a través de una esclusa de aire que se abre a un pasillo en cruz. Por un lado, la oficina del director da la bienvenida al público y vigila la entrada, y por el otro, se habilita un espacio para la atención de los padres.
Una vez que el niño es recibido por el personal de la guardería, es conducido a la sala correspondiente a su edad a través de una circulación accesible a todos. En cualquier situación, el traslado es luminoso y está diseñado para que el niño no pierda el rumbo o se sienta desestabilizado.
Se tuvo especial cuidado en la distribución de las unidades. El proyecto nos permite naturalmente proponer espacios abiertos de un lado al otro y favorecer el principio de mutua visibilidad. Las dos unidades pueden comunicarse entre sí a través del espacio de lectura polivalente. Las salas de cuidados comparten un solo espacio con divisiones, pero sin que las mismas lleguen al cielorraso. Esta condición permite tranquilizar a los niños, favoreciendo un espacio abierto que facilita la supervisión de un adulto sobre el resto del grupo. Para fomentar los hábitos de limpieza, los niños con edad adecuada tienen acceso exclusivo al área de sanitarios. Las particiones de los dormitorios que separan las áreas de juego son acristaladas en toda su altura. La separación entre la circulación y las salas infantiles es permeable porque está materializada por barreras desmontable. En relación al ambiente luminoso, las puertas corredizas con orientación norte permiten crear un fuerte vínculo interior/exterior. Los niños se benefician de la extensión del jardín e incluso pueden ver la torre Eiffel desde sus espacios al aire libre. Finalmente, los espacios de almacenamiento móviles dividen inteligentemente las salas para crear diferentes lugares para los niños, en tanto ofrecen una diversidad que propicia su desarrollo a un ritmo educativo diario.
Los vestuarios y el depósito de pertenencias personales de cada infante están situados en la circulación, que adquiere así un papel más estructurante en el día a día de los niños.






















AUTORES KÉRÉ ARQUITECTURE / DIÉBÉDO FRANCIS KÉRÉ / EQUIPO DE DISEÑO: JAIME HERRÁIZ MARTÍNEZ Y ANDREA MARETTO COLABORADORES JUAN CARLOS ZAPATA Y VALENTÍN BILLHARDT / SUPERVISIÓN DE CONSTRUCCIÓN: DIÉBÉDO FRANCIS KÉRÉ, NATANIEL SAWADOGO Y JAIME HERRAIZ MARTÍNEZ
FOTOGRAFÍA JAIME HERRAIZ MARTÍNEZ
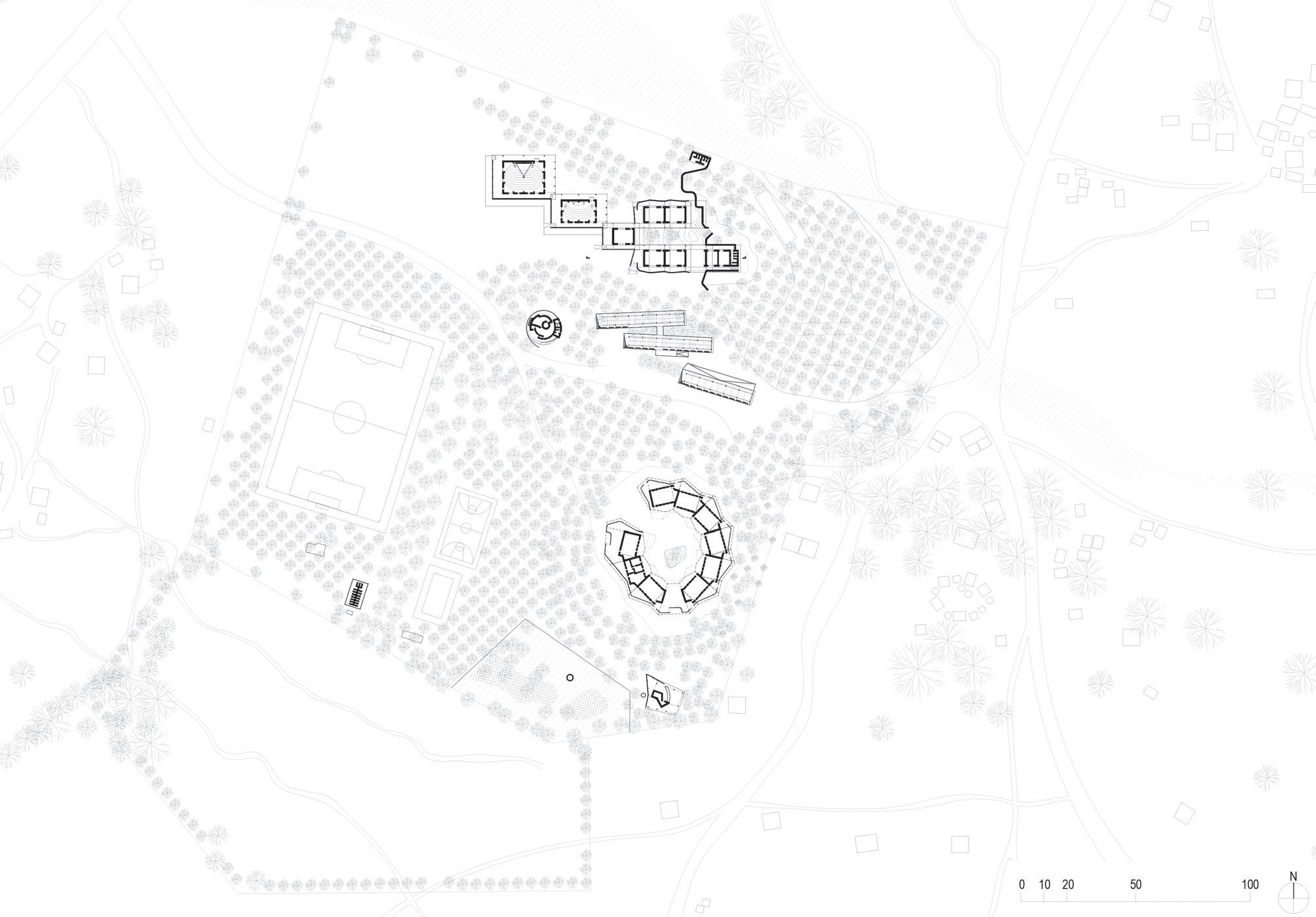
Tras una colaboración exitosa con Kéré Architecture en la construcción de la escuela secundaria Lycée Schorge, el Instituto Stern Stewart decidió ampliar su campus con el encargo de una nueva instalación que permitiera a los graduados de secundaria continuar su educación.
El Instituto Tecnológico de Burkina Faso está diseñado utilizando un sistema de módulos repetidos, que albergan aulas y funciones auxiliares, dispuestos ortogonalmente para definir un patio rectangular. La disposición ortogonal de los módulos permite que el campus se amplíe de forma incremental según sus necesidades. Los módulos están escalonados, lo que facilita que el aire fluya a través del vacío central, creando un espacio fresco donde los estudiantes pueden relajarse e interactuar.
A partir de la experiencia adquirida en la escuela secundaria Naaba Belem Goumma, los muros están hechos de arcilla local vertida in situ. Este método innovador permitió completar la construcción en un plazo ajustado, utilizando encofrados de gran tamaño
FICHA TÉCNICA UBICACIÓN KOUDOUGOU / BURKINA FASO SUPERFICIE 2.100 M2 FECHA FINALIZACIÓN 2021
que permitieron verter un módulo entero en una sola sesión. Aunque las aulas necesitan aire acondicionado mecánico debido al equipo informático, los muros de arcilla maciza contribuyen significativamente a enfriar los espacios interiores. Los perfiles repetitivos del tejado crean un ritmo dinámico y forman una chimenea en la parte trasera de cada módulo por donde se puede liberar el aire caliente acumulado. Los techos suspendidos, hechos de madera de eucalipto local, iluminan los espacios interiores y complementan las paredes de arcilla lisa. Para crear una sensación de unidad con el resto del campus, los edificios están revestidos con una piel transparente de madera de eucalipto, jugando con el Lycée Schorge. Ubicado en una llanura de inundación, el proyecto incluyó un amplio trabajo de paisajismo para proteger los edificios. Durante la temporada de lluvias, el agua se canaliza hacia un gran tanque subterráneo que luego se utiliza para regar las extensas plantaciones de mango del sitio.




IMPLANTACIÓN


















AUTORES IBUKU COLABORADORES PT BAMBOO PURE BALI (CONSTRUCCIÓN) / JOHN HARDY / JÖRG STAMM (CONCEPTO) / ATELIER ONE (INGENIERÍA) / KETUT YASA BAGIARTA (INGENIERÍA LOCAL) / LUIS FELIPE LÓPEZ-INBAR (CONSEJOS DE SEGURIDAD)
IBUKU ha sido pionera en un nuevo vocabulario de diseño, creando nuestras propias reglas en el camino y ofreciendo nuevas soluciones al mundo a través de nuestro viaje.
El Arco es el nuevo volumen del campus de la mundialmente famosa Green School de Bali, Indonesia. La escuela lleva 12 años rompiendo fronteras y ampliando horizontes, y esta instalación es el más reciente hito en esa historia, elevando la vara de la educación sostenible en todo el mundo. Como primer volumen de este tipo jamás realizado, la estructura está construida a partir de una serie de arcos de bambú de 14 metros de altura que se entrecruzan y miden 19 metros, interconectados por rejillas anticlásticas que obtienen su fuerza de las curvas en dos direcciones opuestas.
El Arco es una proeza de la ingeniería; ha requerido meses de investigación, desarrollo y ajuste de detalles a medida. El resultado es un diseño refinado con una belleza inigualable que es un testimonio del compromiso de IBUKU de ampliar los horizontes de la arquitectura y el diseño.
INSPIRADO EN LA NATURALEZA
Emplea una de las mejores estrategias de la naturaleza para crear grandes espacios con una estructura mínima. Dentro de
FICHA TÉCNICA
UBICACIÓN ESCUELA VERDE / SIBANG / BALI / INDONESIA
SUPERFICIE 760 M2
FECHA FINALIZACIÓN 2021
la caja torácica humana, una serie de costillas que trabajan en compresión se mantienen en su sitio gracias a una capa flexible y tensa de músculos y piel. Esto crea una envoltura fina pero fuerte para los pulmones. En el caso de El Arco, los arcos que trabajan a compresión se mantienen en su lugar mediante rejillas anticlásticas tensadas. Estos elementos parecen colgarse de los espacios entre arcos imposiblemente finos que se elevan en lo alto, lo que confiere intimidad y belleza al espacio. Aunque parecen colgar de los arcos, en realidad los sostienen.
“La malla utiliza la rigidez del encofrado para crear la cubierta y proporcionar resistencia al pandeo de los arcos parabólicos. Los dos sistemas juntos crean una estructura única y altamente eficiente capaz de flexionarse bajo carga, permitiendo que la estructura redistribuya el peso, aliviando las fuerzas localizadas en los arcos.” Neil Thomas, Director de Atelier One La orquestación contraintuitiva de la geometría lleva a la estructura a un estado de equilibrio, lo que significa una necesidad drástica de material estructural. También supone un volumen interno sin precedentes con una estructura increíblemente fina y sin armazón. Hoy ofrecemos otra solución de diseño, una estructura novedosa que no es sólo una pieza de arquitectura de bambú, sino que servirá de referencia en el conjunto de las estructuras ligeras.















DETALLES ESTRUCTURALES







AUTORES ZUARQ. ARQUITECTOS / ARQUITECTA
CAROLINA ZULUAGA ZULETA (DISEÑO)
FOTOGRAFÍAS MARIO NEGRETT, JESSICA COHEN
Y CAROLINA ZULUAGA
FICHA TÉCNICA
UBICACIÓN SILVANA / DEPARTAMENTO DE CUNDINAMARCA / COLOMBIA
SUPERFICIE TERRENO 962 M2
SUPERFICIE CUBIERTA 307 M2
GEOGRAFÍA TEMPERATURA PROMEDIO: 14/21
GRADOS / ALTITUD: 1.470 m.s.n.m.
FECHA FINALIZACIÓN 2008
OBJETIVOS DEL PROYECTO
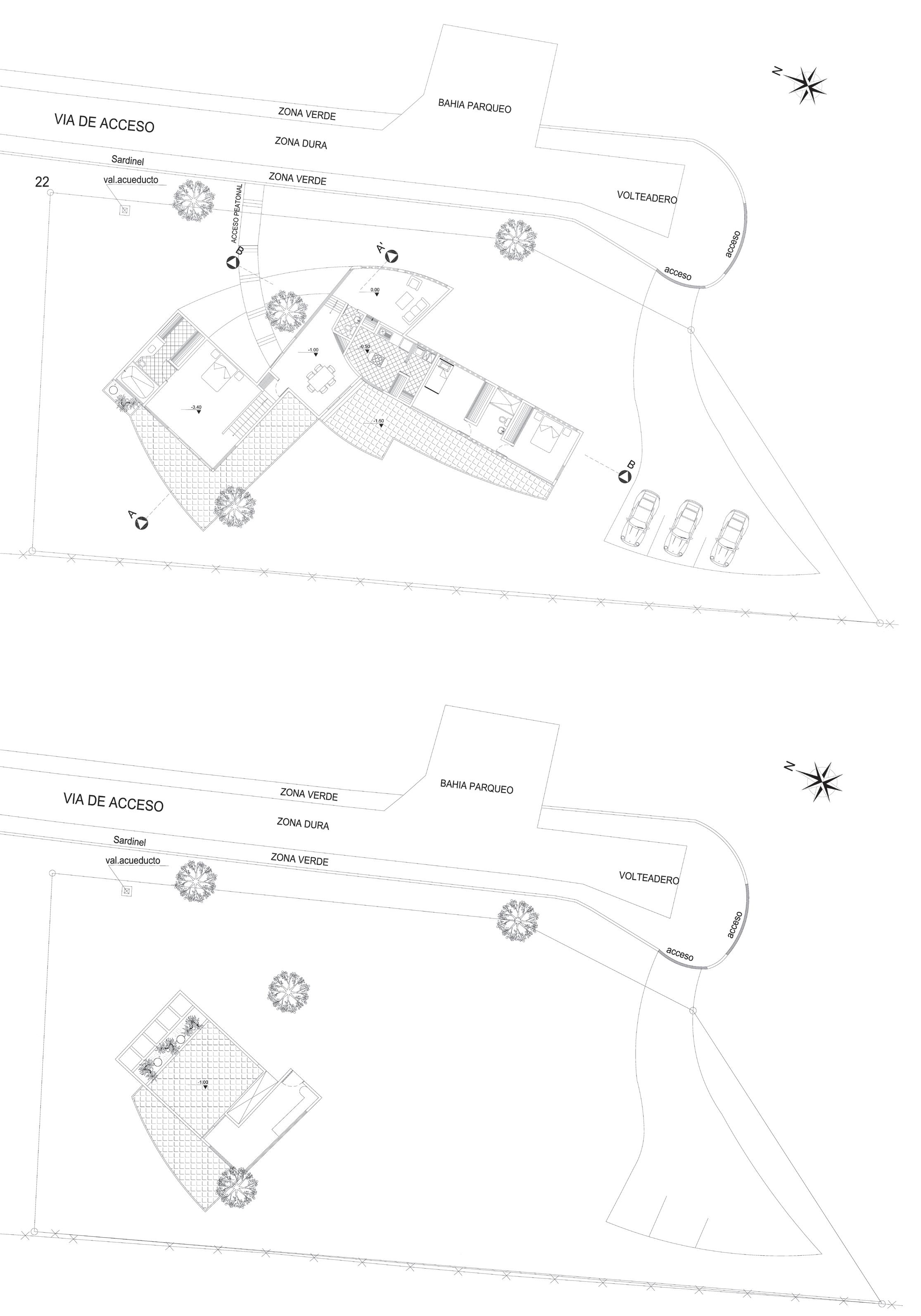
Ecología. Trabajar con iluminación y ventilación natural, conservar y respetar al máximo la vegetación existente, afectar lo menos posible las características naturales del terreno, construir la vivienda con técnicas vernáculas y manejar principalmente la guadua como material constructivo por sus características ecológicas, resistencia y estética.
Función. Desarrollar una vivienda en un conjunto residencial privado para una familia de cuatro personas, todos adultos, que solicitaban principalmente áreas grandes para sus reuniones, cocina con gran visual y ventilación, cuarto principal separado de las otras alcobas, muy amplio y con terraza para colgar sus hamacas.
Determinantes. Adaptarse al terreno, aprovechar la magnífica vista y tener especial cuidado con el clima, ya que este puede variar en un mismo día, de soleado a lluvioso y frio.
Bioclimática. Trabajar sistemas de refrigeración pasiva. Usar persianas como sistema de ventilación construidas con latas de guadua, orientar la construcción adecuadamente para aprovechar vientos, asoleamiento y visuales. Trabajar con aleros para proteger las diferentes áreas de la radiación solar. Diseñar espacios abiertos. Diseñar espacios altos para aumentar la masa de aire del interior.
SOLUCIÓN ARQUITECTÓNICA
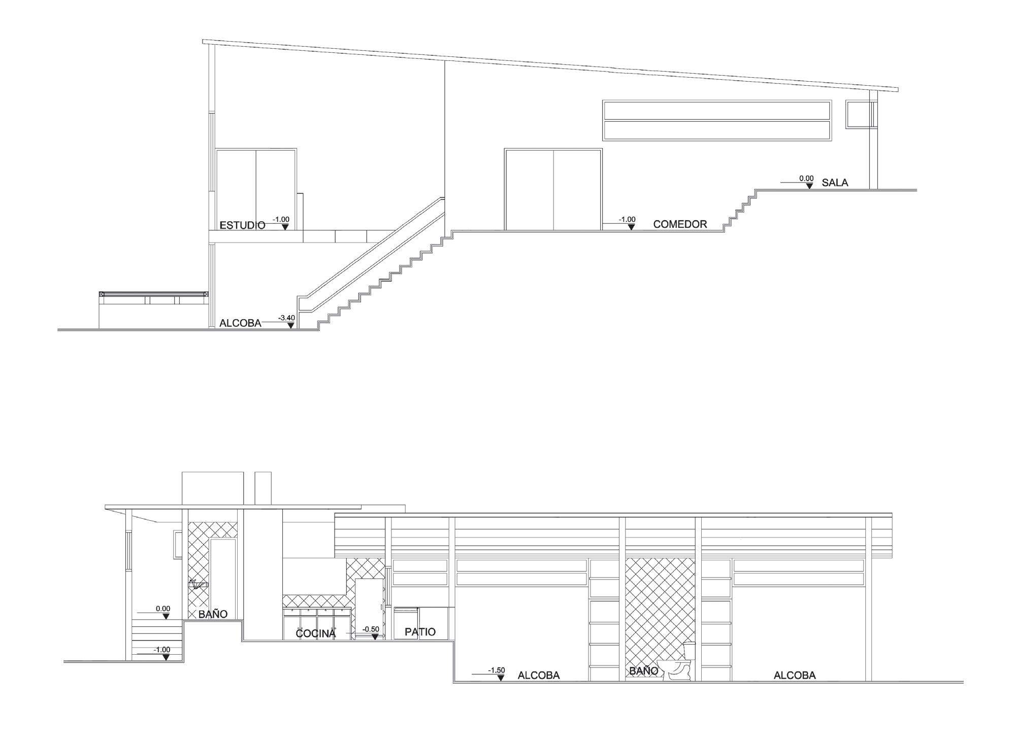
Se consideró el desnivel del terreno y el concepto ventana, que se convierte en la herramienta de creación.

Es así como surge una casa que parte de un imponente volumen que se eleva para enmarcar las impresionantes vistas del entorno y funcionalmente se convierte en el elemento captador de calor mediante el efecto invernadero, que es manejado según como se necesite, abriendo o cerrando las pequeñas aberturas localizadas en la parte frontal superior del mismo.
En síntesis, este es un espacio central de gran visual que recibe a los visitantes y los reparte a las diferentes áreas. Su doble altura y grandes ventanales permiten visualizar el diseño especial de sus jardines, compuesto principalmente de gran variedad de heliconias, planta tropical originaria de Colombia. A la casa se accede por un sendero escalonado de forma orgánica que conduce directamente al volumen principal, que consta en el primer nivel de comedor, salón en el segundo nivel con puerta ventana al jardín y detalles especiales en baranda, cocina tipo isla con vista a la montaña, estudio y terraza principal. En la zona de la cocina destacan las ventanas construidas con guadua que no solo dejan ver el jardín y el bello horizonte, sino que por su característica constructiva, gran tamaño y la posibilidad de girar fácilmente sobre un eje, crean corrientes de aire que acceden a la cocina y le dan una frescura sin igual. Respondiendo así, a los requerimiento especiales de la propietaria
Al bajar por la escalera flotante, zona derecha de la vivienda, se destaca el dormitorio principal por su gran tamaño, detalles especiales formados con entretejidos de latas de guadua, terraza
de hamacas y su especial baño compuesto por iluminación cenital que deja vislumbrar el azul profundo del firmamento. Pero además sirve de captador de calor, generando así un ambiente muy confortable a toda la zona. Al mismo tiempo, el gran ventanal de la bañera permite aprovechar el hermoso paisaje mientras se toma un baño relajante.
Al lado izquierdo de la volumetría de la casa, se accede a la zona de dormitorios por una escalera descubierta que permite la relación directa con el paisaje. En esta área se han estructurado tres habitaciones. La primera de ellas, de huéspedes, con baño privado y otras dos que corresponden a los hijos de los dueños de la casa y que comparten baño. En todas ellas, destaca la gran terraza multifuncional y las puertas ventanas que están dirigidas hacia la vista principal, la montaña.
En toda la casa se destaca la producción especial de carpintería, muebles, lámparas, accesorios para baños y cocina con guadua que fueron elaborados con los materiales sobrantes del proceso constructivo por Zuarq. Arquitectos.
Guadua (rolliza, lata, esterilla, calados, entretejidos, secciones de canutos y otras). Estructura, techos, entrepiso, paredes, persianas de ventilación, accesorios decorativos y lámparas. Teja de barro plana. Cubiertas, otorgan frescura a los espacios interiores.
Bloque. Paredes exteriores.
Piso de arcilla. Terrazas y caminos exteriores.

















