Portfólio de Arquitetura e Urbanismo - Camila Domingos

Page 1

C A M I L A D O M I N G O S
PORTFÓLIO
S U M Á R I O APRESENTAÇÃO 05 HABITACIONAL INSTITUIÇÃO DE LONGA PERMANÊNCIA PARA IDOSOS 06 COMERCIAL ORLEANS JAZZ E COQUETEL 12 HABITAÇÃO SOCIAL REALOCAÇÃO DA VILA SÃO SEBASTIÃO 22 CONSERVAÇÃO E RESTAURO INTERVENÇÃO DE BENS DE VALOR CULTURALMERCADO MUNICIPAL DE JUIZ DE FORA 34 0 1 02 03 04 EXPERIÊNCIA PROFISSIONAL ESTÁGIO EM ESCRITÓRIO DE ARQUITETURA: TAÍS JUNQUEIRA ARQUITETURA - JUIZ DE FORA. 38 05

P o r t f ó l i o A c a d ê m i c o

A r q u i t e t u r a e U r b a n i s m o

P e r í o d o d e i n g r e s s o : 2 0 1 9 1

C o n t a t o :

( 2 4 ) 9 8 1 6 8 - 5 4 6 8

c a m i l a . d o m i n g o s @ e s t u d a n t e . u f j f . b r

CAMILA DOMINGOS

DISCENTE DE ARQUITETURA E URBANISMO

Graduanda do 11° período (previsão de formação em 2024.2) do curso de Arquitetura e Urbanismo da Universidade Federal de Juiz de Fora (FAU - UFJF). Busco como principais objetivos adquirir experiências, colocar em prática os conhecimentos já adquiridos ao longo do curso e principalmente aprimorá-los e expandi-los profissionalmente

PERFIL ACADÊMICO

GraduaçãoemArquiteturaeUrbanismo

2019 - atual: Universidade Federal de Juiz de Fora - FAU/UFJF

EnsinoMédiointegradoaoCursoTécnicoemQuímica-CEFET-RJ/Campus Valença

2015 - 2018

EXPERIÊNCIA ACADÊMICA

BolsistanoProjetodeextensão:AcomunidadenoLaboratórioCasaSustentáveldo JardimBotânico

2021 - atual

MonitoranadisciplinadeAtelierdeProjeto.

2021 - 2022

FORMAÇÃO COMPLEMENTAR

CursodePhotoshopBásicoparaArquitetos.PlataformaEscolaTécnicaLeiaut Cariele.(Cargahorária:15h)

2020

CursodeSketchUpparaInteriores.EscolaTécnicaLeiautCariele.(Cargahorária: 15h)

2020

EXPERIÊNCIA PROFISSIONAL

EstágioemescritóriodeArquitetura:TaísJunqueiraArquitetura-JuizdeFora.

jan 2022 - ago 2022

HABILIDADES

Autocad, Sketchup, Layout para Sketchup, Vray, Enscape, Revit, Adobe Photoshop, Pacote Office Completo (intermediário) e Inglês (básico)

COMPETÊNCIAS PESSOAIS

Organização, pontualidade, empenho, comunicação, senso crítico e criatividade

INSTITUIÇÃO DE LONGA PERMANÊNCIA PARA IDOSOS

Vista externa da ILPI
Fachada Principal Fachada Lateral

O projeto da Instituição de Longa Permanência para idosos, teve como foco principal, a acessibilidade. O projeto tratava-se de um local de atendimento integral institucional de caráter residencial, oferecendo ao residente idoso, além de moradia, atendimento em diferentes segmentos, como área social e médica e integra-se a uma praça externa

O terreno utilizado no projeto se localiza na área central da cidade de Juiz de Fora, Minas Gerais e é disposto no encontro de três movimentadas ruas

O conceito do projeto parte do ser humano como um ser único, que se apresenta em sua plenitude a partir da sua história de vida. Logo, suas memórias precisam ser consideradas, visto que a vida é um ciclo Sendo a ideia inicial vindo de uma colcha de retalhos, que é única por si só com diversas histórias reunidas formando uma unidade

A cobertura é ponto importante a se destacar no projeto. Para fortalecer o gradiente de intimidade, a mesma é composta por diferentes materiais, que seguem de acordo com a sua setorização.

A área íntima apresenta cobertura feita com telhado de cerâmica, a área social é coberta com telhado verde, e as demais áreas em telhas de fibrocimento.

Nos corredores de circulação interna, utilizamos aberturas zenitais em vidro, que auxiliam na iluminação natural Já nos corredores externos, estas aberturas superiores se estendem também pela metade superior da parede.

O projeto dos dormitórios destinados a dois idosos, foi proposto para remeter aos residentes sensação de aconchego e relaxamento. A disposição de mobiliário e iluminação foi pensada para transmitir segurança aos idosos concomitante a sua autonomia, como os assentos acolchoados ao lado dos guarda-roupas, planejados para permanecer fechados no cotidiano e serem facilmente abertos para apoio no momento da troca de roupas e calçados.

A presença de escrivaninhas e locais de armazenamento de pertences pessoais incentiva o morador a manter hábitos cotidianos, suavizando a sensação abrupta de mudança de rotina. O banheiro foi pensado para preservar a autonomia do indivíduo idoso, seguindo todas as normas de acessibilidade. Todos os quartos possuem varandas voltadas para a área externa do ILPI, para reforçar a integração com o exterior ainda que em menor escala.

Uma curiosidade interessante do projeto é que a entrada dos quartos já foi projetada em concordância com as demandas decorrentes da pandemia de Covid-19, com local para armazenar pertences e calçados, como forma de prevenção higiênica

ORLEANS JAZZ E COQUETEL

Projeto desenvolvido pelas discentes Camila Domingos, Isadora Ferreira e Paola Barrizi para a disciplina de "Atelier de Projeto", com foco em projeto de restaurantes, ministrada pela docente Mariana Cury, no primeiro semestre do ano de 2021, da Faculdade de Arquitetura e Urbanismo da Universidade Federal de Juiz de Fora.

Programas utilizados: Revit, Sketchup, Enscape e Photoshop.

0 2

A proposta trata-se de um restaurante localizado no bairro Alto dos Passos, na cidade de Juiz de Fora, Minas Gerais. O bairro caracteriza-se como uma região de grande concentração de restaurantes e bares Analisando a presença intensa de fluxo noturno após a leitura do entorno, escolhemos este horário para o funcionamento. Levando isto em consideração, a inspiração para o projeto, desde sua concepção, foi o jazz, estilo musical nascido em Nova Orleans, Estados Unidos, o que originou o nome do estabelecimento.

Arte digital autoral
Fachada Frontal
Planta baixa humanizada
N Fachada Lateral
CORTEAA CORTEBB Volumetria
TECC

VOLUME DA CAIXA D'ÁGUA

Para a decoração, nos inspiramos na década de 20, com elementos que misturam o industrial e o art deco, a experiência que desejamos propor é a de uma possibilidade de se sentir em uma época diferente, voltando à época de criação do jazz sem deixar de pertencer ao presente

Para criar um ambiente aconchegante e acolhedor, tiramos proveito de luzes pontuais, sofás e bancos acolchoados e da mistura de cores escuras com mais quentes

PÓRTICOMARCANDOOACESSO TELHA SANDUÍCHE BRISES
Detalhamento do balcão

METAL TEXTURIZADO

MÁRMORE DE PEDRA

CARRARA

MÁRMORE AZUL

TROPICAL

REALOCAÇÃO DA VILA SÃO SEBASTIÃO

Projeto desenvolvido pelas discentes Camila Domingos, Beatriz Loures, Bruna Dias, Dayane Vieira e Nataly Schröder para a disciplina de "Projeto Arquitetônico V", com foco em habitação de interesse social, ministrada pelas docentes Letícia Zambrano, Paula Miranda, e Megg Sousa, no ano de 2021, na Faculdade de Arquitetura e Urbanismo da Universidade Federal de Juiz de Fora.

Programas utilizados: Revit, Sketchup e Enscape

0 3
Vista superior do conjunto
Distribuição das unidades habitacionais

A Vila São Sebastião se localiza atualmente em situação de vulnerabilidade socioeconômica e física, já que se encontra em uma encosta de risco ás margens da BR267, no bairro Nova Era, Juiz de Fora, Minas Gerais

Por estes motivos o projeto de Realocação da comunidade com 31 famílias se faz extremamente necessário.

O terreno proposto para o projeto se localiza bem próximo as moradias atuais e está inserido entre a 4° RISP (Região Integrada de Segurança Pública) e a Escola Municipal Thereza Falci.

O terreno se mostra um grande desafio, por possuir declividade bastante acidentada e por possuir em sua área uma vasta parcela de APP (Área de Preservação Permanente)

A distribuição das unidades habitacionais foi feita em sobrados multifamiliares organizados em 4 grupos, de acordo com as afinidades entre as famílias, já existente na comunidade atual e as organizações de cada grupo familiar.

66 ,96m
NovaEra
106,35m
SantaMaria
56,64m 49, 70m
121,59m
N N N 1° pavimento 2° pavimento Planta de Cobertura

Localização do bloco no terreno

N

Corte Longitudinal

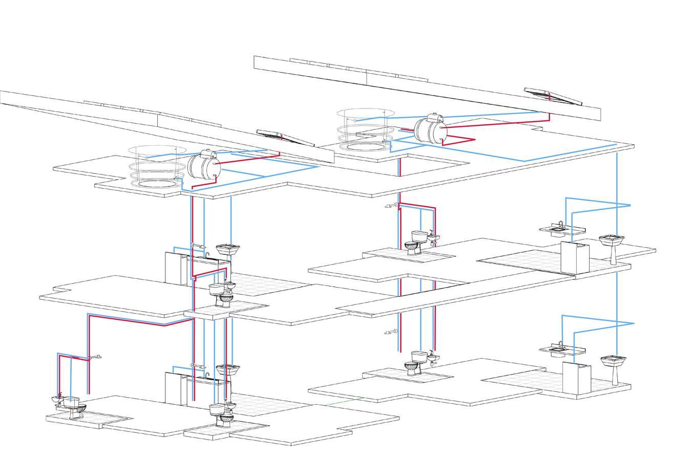
Foram utilizadas no projeto placas solares e boiler, mecanismo de aquecimento solar passivo, a fim de proporcionar formas alternativas de economia aos moradores, além de ser uma alternativa mais sustentável.

PLACA SOLAR PLACA COLETORA BOILER
Esquema hidráulico

Corte Transversal

Na área de APP (Área de Preservação Ambiental) o deck de madeira projetado além de integrar os indivíduos a área arborizada, também é utilizado como sutil barreira ao limite de área construída permitido, já na área protegida, a plantação de árvores frutíferas a torna um excelente local aos moradores

METAL TEXTURIZADO * I MAGEM ILUSTRATIVA
da escada Praça interna
Detalhamento
ENCHIMENTO TELHADEALUMÍNIO CHAPAMETÁLICA * I MAGEM ILUSTRATIVA N
de telhado Praça interna
Detalhamento
Entrada do
Área de convivência
conjunto
Praça
e estacionamento na entrada do conjunto
Local de comércio na entrada
pública

INTERVENÇÃO DE BENS DE VALOR

CULTURAL - MERCADO MUNICIPAL DE JUIZ DE FORA

Projeto desenvolvido pelas discentes Camila Domingos, Dayane Vieira , Isadora Ferreira, Lucas Luciano, Paola Barrizi e Ricardo Souza para a disciplina de "Projeto Arquitetônico VII", com foco em projetos de conservação e restauro, ministrada pelas docentes Mônica Olender e Helena Tuller, no ano de 2022, na Faculdade de Arquitetura e Urbanismo da Universidade Federal de Juiz de Fora.

Programas utilizados: Autocad, Sketchup e Enscape

0 4

O foco do projeto foi a intervenção de bens e conjuntos urbanos possuidores de valor cultural

O local utilizado para as intervenções foi o Mercado Municipal, localizado na Praça Antônio Carlos, no Centro de Juiz de Fora.

Além das ações de conservação e restauro realizadas na fachada voltada à Rua Dr. Paulo Frontin (a partir do mapeamento de danos) como a limpeza da mesma, a substituição de materiais com desgaste profundo e a troca de telhas deterioradas, também foi foco do projeto dois dos espaços destinados aos boxes para feirantes localizados na área central do interior do mercado, atualmente desocupados e que se encontravam bastante degradados.

Mapeamento de danos

Planta baixa Mercado Municipal

Planta baixa - Intervenção

Para a proposta do projeto arquitetônico do novo espaço pretendeu-se que ele fosse coerente com o que já existe no entorno, mas com certo destaque em relação aos outros, atraindo novos públicos e aumentando o fluxo de pessoas no mercado, e consequentemente, aumentar as vendas no local Com o desprendimento de identidade e referência do bem, a reformulação dos boxes foi feita a partir da divisão do espaço em duas áreas de dimensões semelhantes, a fim de gerar maior rotatividade e diversidade de público.

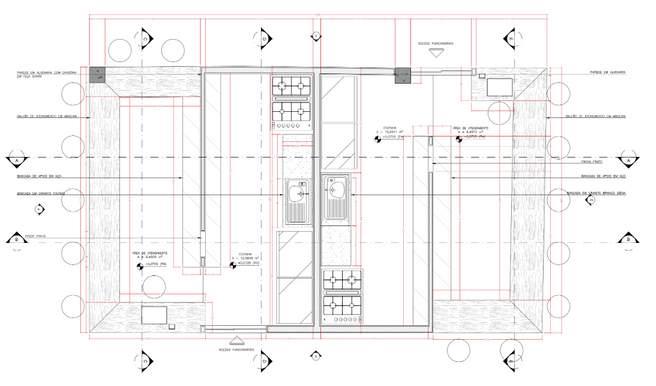
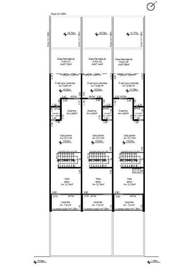
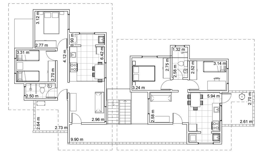
ESTÁGIO EM ESCRITÓRIO DE ARQUITETURA: TAÍS JUNQUEIRA ARQUITETURA

jan. 2022 - ago. 2022

Principais funções desenvolvidas:

- Desenvolvimento de projetos arquitetônicos, tanto em tipologia residencial quanto comercial.

- Correção de projetos legais para aprovação junto a Prefeitura, de acordo com a Legislação.

- Elaboração de imagens técnicas (plantas, cortes e fachadas)

- Plantas baixas humanizadas, com mobiliários e texturas.

- Detalhamentos e modelos 3D.

Nas próximas páginas apresentam-se alguns exemplos de atividades desenvolvidas ao longo dos 8 meses de permanência no estágio

Principais programas utilizados: Autocad, Sketchup, Layout, Vray e Photoshop.

0 5

ELABORAÇÃO DE DESENHOS TÉCNICOS

1° pavimento

2° pavimento

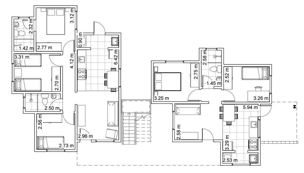
Projeto residencial com três pavimentos

Fachada residencial

PLANTAS BAIXAS HUMANIZADAS

Garagem Pavimento Garden

Cobertura - 1° pavimento

Cobertura - 2° pavimento

DETALHAMENTO

PORTFÓLIO

camila.domingos@estudante.ufjf.br (24) 98168-5468
C A M I L A D O M I N G O S

Turn static files into dynamic content formats.

Create a flipbook
Issuu converts static files into: digital portfolios, online yearbooks, online catalogs, digital photo albums and more. Sign up and create your flipbook.
Portfólio de Arquitetura e Urbanismo - Camila Domingos by Camila Domingos - Issuu