Caitlin Ross Portfolio

Page 1


C A I T L I N R O S S

INTERIOR DESIGN PORTFOLIO

Caitlin Ross, LEED Green Associate caitlinross25750@gmail.com (916) 832-9901

linkedin.com/in/caitlinross

Problem-solver and collaborative designer with a passion for creating functional and visually compelling designs. She excels at clearly articulating her designs, ensuring that her vision is concise and effectively implemented. While Caitlin is still young in her career, she possesses a great ability to lead those around her while also excelling as a collaborative and supportive teammate.

Savvy with the fundamentals, she is looking to expand her keen eye of design. She desires to be pushed outside her comfort zone knowing that’s when great things happen.

While design is the principal target, Caitlin welcomes opportunitites for ongoing professional development as one who jumps at firm associated activities inside and outside of the organization.

PROFESSIONAL WORK

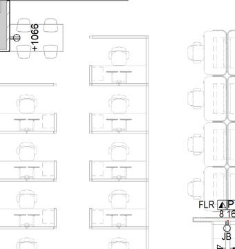
Synopsys

Remote Team Collaboration

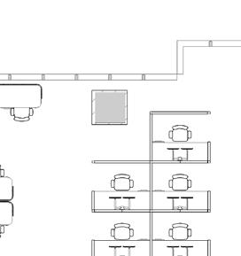
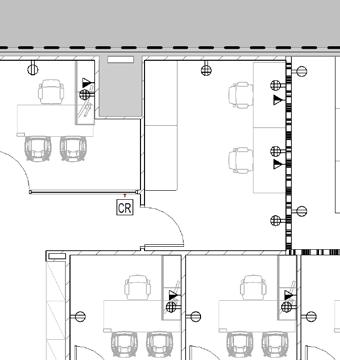
Project Overview: SYNOPSYS

KR Puram Hobli

Bengaluru, Karnataka 560048 India

Flr 03 - Flr 10

+/- 55,000 SF/Floor

Team Role: Designer

Supported the San Francisco team on the design and construction documentation for an eight-floor office space. Jumping on to the team during the design development phase, successfully managed multiple deliverables including updating power/signal, furniture, and lab plans as well as finish package improvements. Further contributed to renderings by incorporating finishes, floor plan updates, and modeling furniture. Demonstrated strong time management and adaptability while joining the project late and working remotely from the core team.

Key Project Duties:

Power/Signal Plans

Furniture Plans

Lab Requirements (plan/axon/schedules)

Concrete Framing

Enscape Renders

Modeling Furniture

Elevations

Finish Package development

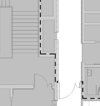
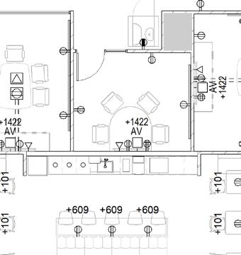
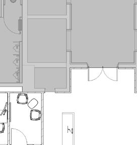
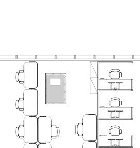
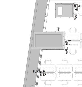
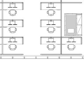
SIZE

89 m2 LAB + 32 m2 RACK STORAGE ROOM

NOTES

• HEIGHT OF STORAGE CABINETS HAS BEEN RAISED TO 7'-0" (2134mm) AND (1) ADDITIONAL CABINET ADDED TO COUNT

• EAST WALL OF RACK ROOM HAS BEEN MOVED 2' (607mm) TO THE EAST IN ORDER TO ACCOMODATE CLEARANCE AT SERVER RACKS

• (3) LOW STORAGE CABINETS ADDED

• REMOVED MOBILE WHITE BOARD

COMPONENTS

TAG DESCRIPTION

1 -(18) 3-TIER LAB TABLES WITH TASK STOOL 6'W x 2'D (1829mm X 610mm)

2 -(9) SERVER RACKS 2'-8" X 4' (800mm X 1200mm)

3 -(5) STORAGE CABINETS 3'W x 2'D (915mm X 610mm)

4 -(3) LOW STOARAGE CABINETS 36"W x 19"D x 39"H(911mm X 476mm X 1003mm)

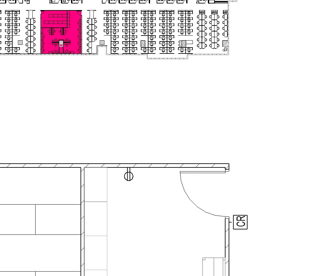
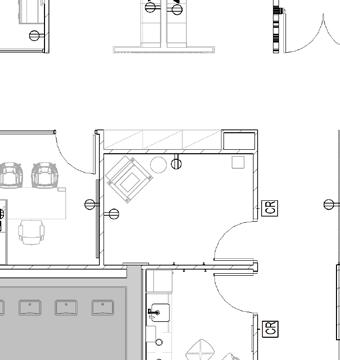
The Sweep - Master Plan

Exterior Renovation

385 Interlocken’s outdoor amenity space sweeps across the terrain, guiding visitors into the sunshine.

The mixture of formal and casual spaces create a welcoming environment for the modern office dweller.

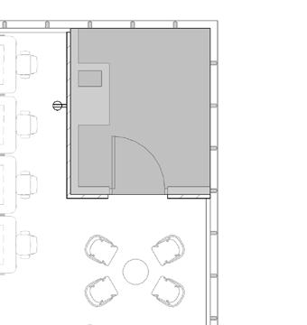
FLOOR PLAN

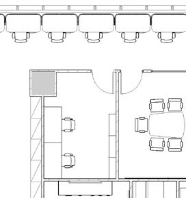
The Sweep - Master Plan

Amenity Renovation

The enticing exterior sweeps one into a revitalized interior. The enticing amenity space welcomes those to relax, play, and gather. Opening up the space from a prior dark and ominous space, the expansion invites tenants to work and play.

AMENITY FLOOR PLAN

GAME ROOM

CAFE WITH GRAB AND GO

PRE-FUNCTION

CONFERENCE

STORAGE PHONE ROOM

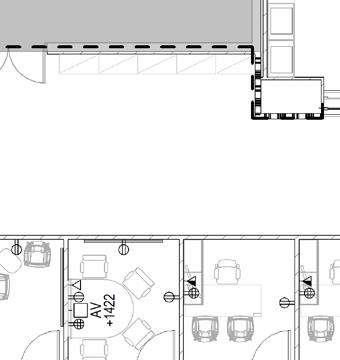
Interlocken

The Sweep Construction Documents/Final

Photography

LETTERS REPRESENT PLANK WIDTHS. CONTACT

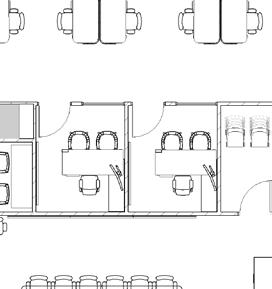
The Sweep - 385 Interlocken

Speculative Suites

Final Photography

The Sweep at Apex

385 Interlocken Cr

Broomfield, CO 80021

Team Role: Designer + Technical

Successfully managed the design and documentation of spec suites for six buildings, tailoring each space to unique owner requirements.

MOD Pizza

Central Region

MOD Pizza is a fast casual pizza restaurant with a passion for people. A big goal for MOD is having a positive social impact on it’s employee’s. While working at CallisonRTKL, Caitlin also pursued this positive impact through the relation with the client by conversation and care of each store being developed. In this process, Caitlin became well adept at the multiple phases of construction.

These smaller-scaled stores provided the perfect learning opportunity to fully understand multiple phases of a project.

From evaluating existing or new construction shell spaces and their suitability for the client’s designated use to implementing the client’s design in construction documents and through permit coordination. Through this, Caitlin expanded the knowledge she gained from her college education. These drawings showcase the skills she learned and honed over the years.

RESPONSIBILITIES

New Construction/Renovations

City code & permit research

Site Surveys

Survey Drawings

Landlord Coordination

Design Manager Coordination

Construction Documents

Floor Plans/RCP’s

Elevations

Schedules/Legends

Enlarged Plans

Details

Sections

MEP Coordination

Permit submittal and management

Construction Administration

TDLR and QA

INTERIOR ELEVATION - STOREFRONT MAIN ENTRY

SCALE: 6 1/4"=1'-0"

EXISTING STOREFRONT SYSTEM TO REMAN EXISTING CONCRETE PANEL TO REMAIN

STUD

WALL FRAMING AND GYP. BD. TO REMAIN

CEMENT

INTERIOR ELEVATION - ENGINE

SCALE: 3 1/4"=1'-0"

JAMB DETAIL AT STOREFRONT

INTERIOR ELEVATION - DINING

PLYWOOD SUBSTRATE FASTENED TO EXISTING WALL FRAMING

JAMB DETAIL AT STOREFRONT

WD-800
PT-109

UNDERGRADUATE WORK

Keeneland Development Lab

Commercial Design

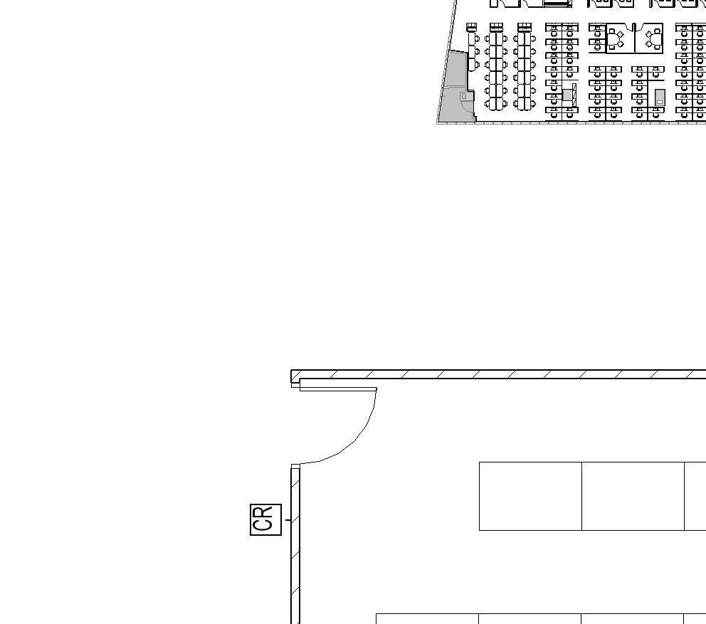
One major project that Caitlin succeeded in was the Keeneland Design Lab where students were tasked with designing a full floor of an office building which was inspired from an artist.

Drawing inspiration from the works of renowned photographer Ansel Adams, Caitlin infused the office space with elements of biophilia, integrating natural elements to create a harmonious and tranquil environment. She meticulously planned the incorporation of indoor plants, natural light, and organic materials, fostering a connection between the occupants and the natural world.

In addition to biophilia, Caitlin introduced curvature walls throughout the space, emulating the gentle and flowing lines found in nature. These curved walls not only enhanced the aesthetic appeal of the office but also created a more fluid and dynamic layout, promoting movement and interaction among employees.

Glasgow Residence Residential Design

This residential dwelling drew inspiration from the architectural philosophy of Alex Thomson and his “Double Villa” concept, which emphasizes symmetry and functional elegance.

Set in Glasgow, Scotland, the idea of this contemporary construction was to compliment the unique triangular shape of the site. Caitlin’s innovative approach led to the creation of custom window panels that not only enhanced the aesthetic appeal but also maximized natural light and provided stunning views of the surrounding landscape.

GROUND FLOOR PLAN FIRST FLOOR PLAN

Turn static files into dynamic content formats.

Create a flipbook
Issuu converts static files into: digital portfolios, online yearbooks, online catalogs, digital photo albums and more. Sign up and create your flipbook.
Caitlin Ross Portfolio by Caitlin Ross - Issuu