Leicestershire Builder Magazine April 2023

Page 1

BUILDER

FOR BUILDERS

APRIL 2023

FOR SALE

Development site for

Leicestershire foodbank receives £2,500 boost

Respite Care Home at 44 Smiths Crescent, Coalville, Leics. LE67 4JE – was granted detailed planning permission on 6th January 2020 for demolition of two residences, a residential home and a respite care home, and the construction of 14 one-bed flats, one three-bed house and a replacement respite facility, together with a day care building.

The planning decision notice stipulates that the development is to be carried out in two phases.

It is understood that the planning permission for the proposed scheme has been implemented as demolition works have been undertaken in relation to the first phase of the development.

Leicestershire County Council are seeking to dispose of the site on either an unconditional or conditional of planning basis. Bids are invited by way on an informal tender.

Tenders must be received by 12 noon on 19th May 2023. For more information, or to arrange a viewing, contact Peter Doleman at Innes England on 0116 255 5455 or email: pdoleman@innes-england.com

LEICESTERSHIRE developer David Wilson Homes has supported Coalville Foodbank with a £2,500 donation towards food and toiletry supplies, and assisting the vital work of volunteers.

Based at New Life Church, and close to the developer’s head office in Bardon, the foodbank has been operating for roughly 10 years and provides food parcels to local people in need on a referral-only basis. It also offers debt advice to clients, and helps to signpost them to other supporting charities and organisations.

Coalville Foodbank is part of a nationwide network of foodbanks, supported by The Trussell Trust, working to combat poverty and hunger across the UK.

Between 1st April 2022 and 30th September 2022, foodbanks in the Trussell Trust’s national network distributed 1.3 million food parcels to people facing hardship – this is an increase of 52% compared to the same period in 2019. Half a million of these parcels were distributed to children.

Service . Support . Expertise
USEFUL INFORMATION & ITEMS
INTEREST
LEICESTERSHIRE
OF
Innes England for themselves and for vendors or lessors of the property whose agents they are, give notice that: (i) the part iculars are set out as a general outline only for the guidance of intended purchasers or lessees and do not constitute part of, an offer or contract; (ii) all descriptions, dimensions, reference to condition and necessary permissions for use and occupation, and other details are given without responsibility and any intending purchasers or tenants should not rely on them as statements or representations of fact but must satisfy themselves by inspection or otherwise as to the correctness of each of them; (iii) no person in the employment of Innes England has any authority to make or give any representation or warranty whatever in relation to this property; (iv) all rentals and prices are quoted exclusive of VAT. Any plans published are for convenience of identification. Any site boundaries shown are indicative onl y. © Crown copyright – License No. 100007643 NOT TO SCALE

Housing supply at risk under proposed planning changes

UP TO 77,000 FEWER new homes are likely to be built a year for the rest of this decade, slumping to the lowest level since the second world war, according to a new report.

Lichfields’ Making a Bad Situation Worse, calculates by 2030 more than a million fewer homes will have been built than anticipated with annual output dropping to 120,000 a year. This would leave the government’s 300,000 new homes a year housebuilding target in tatters.

Homebuilders Federation, HBF, executive chairman Stewart Baseley said: “The increasingly anti-development and anti-business policy environment poses a real threat to house building and is inevitably at the forefront of minds when investment decisions are being made.”

Proposed changes to England’s planning framework will mean local planning authorities won’t

need to have a five-year housing land supply and produce housing delivery tests. The expectation councils should release some green belt land to ease housing shortages will also be dropped.

An estimated 47 local authorities have already retracted or delayed their local plans as a result with only 39 with an up-to-date plan.

The National Federation of Builders, NFB, housing and policy head Rico Wojtulewicz said: “The cost of development has already seen smaller builders either leave the industry or pull away from housebuilding.”

He said that in the last two years, the government had added 13 new costs for housebuilders leaving the future of housing supply at risk.

New housing isn’t responsible for river pollution

Alongside this, Natural England’s increasing intervention over nutrient neutrality of rivers has halted

120,000 new homes being built with a further supply cut of up to 41,000 homes a year.

The fact that intensive farming, rather than increased showering and washing, is the main cause of nitrate and phosphate pollution has infuriated the building industry.

The HBF said that water companies’ long-term failure to upgrade wastewater treatment facilities is another culprit. It estimates the building industry has paid £3bn in infrastructure charges to water companies over the last 30 years.

“The government’s mishandling of water and drainage legislation could see fewer homes built than ever before. The social and economic implications are stark and threaten to widen the ever-growing intergenerational divide while costing hundreds of thousands of jobs,” said Mr Baseley.

Consultation on changes to the national planning policy framework will finish by the end of this week with the government expected to

bring forward draft legislation by spring.

Land Promoters and Developers Federation, LPDF, executive chairman Paul Brocklehurst said: “The government still has sufficient time through the consultation process to reconsider its position and move away from changes which in the context of its 300,000 aspiration are frankly irrational. Now is the time to deliver meaningful, positive reforms which will embed growth into our economy.”

The report, commissioned by the HBF and LPDF, predicts the estimated housing supply cuts will mean 386,000 fewer jobs with a £34bn GVA, gross value added, loss to the economy.

Brokers Hank Zarish Associates said commercial development finance lenders were concerned the rising costs of future homes would mean even more people would be priced out of the market.

2 Leicestershire BUILDER Magazine • APRIL 2023 • Tel: 01530 244069 • EMAIL: INFO@BUILDERMAGAZINES.CO.UK
I got the sack from my job on the Bumper Cars. I’m appealing against funfair dismissal.

Leicester City

MR SUNIL PATEL (c/o Agent: Mr Sajjad Ibrahim, SI Designs, 65 Greenacre Drive, Leicester LE5 6TE) - Upper floors of post office converted into 2 one bedroom flats along with a double storey side extension to accommodate an additional 2 one bedroom flats - at 91 Keightley Road, Leicester LE3 9LQ.

BLUEBRICK ESTATES LIMITED

(c/o Agent: Andrew Lennard, Perfect Planning Architectural Services Ltd, Office 1F, Rugby House, Hinckley Road, Sapcote, Leics. LE9 4FS) –Conversion of single dwelling into 2 flats – at 58 Fosse Road South, Leicester LE3 0QD.

MR M CHUDASAMA (c/o Agent: Mrs Varsha Tailor, DT Designs Ltd, 74a Wyvern Avenue, Leicester LE4 7HH) – Change of use from a dwelling to self-contained flats – at 66 Gipsy Road, Leicester LE4 6QH.

HSK PROPERTY MANAGEMENT

LIMITED (c/o Agent: Mr Keshiv Sudera, Design Studio Architects Limited, Regent House, 7 Upper King Street, Leicester LE1 6XB) –Change of use of existing office to a hotel including one additional floor on the existing roof to create 14 bedrooms with café and bar facilities at ground/basement level – at 2-4 St George’s Way, Leicester LE1 1SH.

THE CLAY OVEN (c/o Agent: John Hackman, The Drawing Room (Architects) Limited, 130 Moat Street, Wigston, Leicester LE18 2GE) -Proposed two and first floor extensions to existing industrial unit – at 85 Cobden Street, Leicester LE1 2LB.

Construction activity rises at fastest rate for nine months in February

FEBRUARY DATA

highlighted a robust increase in overall business activity across the UK construction sector, thereby ending a two-month period of decline.

The rate of growth was the strongest since May 2022, supported by a marked rebound in commercial work and a positive contribution from civil engineering activity. In contrast, housing activity decreased for the third month running.

At the same time, the latest survey pointed to the least widespread supplier delays since January 2020 and a slowdown in input cost inflation. The overall rate of purchase price inflation was the lowest for 27 months in February.

The headline seasonally adjusted S&P Global / CIPS UK Construction Purchasing Managers’ Index® (PMI®) – which measures month-on-month changes in total industry activity – registered 54.6 in February, up from 48.4 in January and above the neutral 50.0 threshold for the first time in three months. The latest reading was the highest since May 2022.

Commercial construction was the best-performing area in February (index at 55.3), with the rate of expansion the steepest for nine months. Civil engineering activity also returned to growth in February (index at 52.3), although the rate of expansion was only modest.

Construction companies noted a fall in residential building work for the third consecutive month in February (index at 47.4). The speed of the downturn eased since January, however. Survey respondents commented on subdued market conditions due to elevated interest

rates, alongside cutbacks to new house building projects in anticipation of weaker demand. Total new work picked up in February, as signalled by an improvement in order books for the first time since November 2022. Construction companies reported signs of a turnaround in demand for commercial projects due to the improving near-term economic outlook.

Forthcoming project starts contributed to a modest upturn in purchasing activity during February. Despite rising demand for construction products and materials, the latest survey indicated that supply pressures continued to ease. The respective index signalled that delays with vendor delivery times were the least widespread for just over three years.

A better alignment of demand and supply helped to bring down input price inflation across the construction sector in February. The latest round of purchase price increases was the slowest since November 2020. Higher input costs were mostly linked to suppliers passing on rising energy bills and salary inflation, although this was offset by lower transportation bills. Business expectations for the year ahead improved further from the 31-month low seen in December 2022. Around 46% of the survey panel anticipate a rise in construction activity over the year ahead, while only 13% predict a decline. The resulting index pointed to the highest level of optimism for one year. Construction firms often noted signs of a recovery in client demand, despite elevated interest rates and recession risks. Finally, latest data indicated a modest increase in employment

numbers across the construction sector. However, efforts to cut costs continued to hold back staff recruitment, according the survey respondents.

COMMENT

Tim Moore, Economics Director at S&P Global Market Intelligence, which compiles the survey said: “Business activity in the UK construction sector returned to growth during February as a rebound in commercial work and civil engineering output helped to compensate for housing market weakness. Some firms noted that fading recession fears and an improving global economic outlook had boosted client confidence in the commercial segment. At the same time, work on major infrastructure projects such as HS2 contributed to the expansion of civil engineering activity in February.

“Cutbacks to new house building projects remained the weak spot for construction sector activity, with total residential work falling for the third month running in February. Survey respondents often commented on subdued demand and a headwind from elevated interest rates.

“Construction companies appear increasingly confident about the year ahead business outlook, with optimism rebounding strongly from the lows seen in the final quarter of 2022. Softer inflationary pressures and the least widespread supplier delays for just over three years were factors supporting business expectations in February.”

4 Leicestershire BUILDER Magazine • APRIL 2023 • Tel: 01530 244069 • EMAIL: INFO@BUILDERMAGAZINES.CO.UK
S&P Global / CIPS UK Construction PMI® FEB 6th
I thought it was my birthday cake but it was just the shed on fire.

UK set to open doors to foreign bricklayers and carpenters

BRICKLAYERS, masons, plasterers, carpenters, and roofers are among a raft of trades the construction industry hopes will become easier to recruit from abroad to ease chronic shortages.

On the eve of the spring budget the Construction Leadership Council, CLC published a report calling for 20 different trades to be added to the migration advisory committee’s occupation, MAC, shortage list.

CLC industry-side chair and group chairman of MACE Mark Reynolds said: “A dynamic immigration system allows us to bridge gaps in workforce need and meet the people requirement for the sector’s pipeline of work.”

Industry research shows 30,000 new recruits are needed to build an extra 10,000 new homes with bricklayers, groundwork operatives and site managers, particularly in demand.

The Construction Industry Training Board has calculated 225,000 more workers will be needed over the next four years to meet demand.

Although the government has introduced measures to encourage people back to work it has accepted this is insufficient to address the UK’s current 1.2m job vacancies. It’s hoped MAC’s imminent report will include key construction roles in the occupation shortage list.

This will allow employers to hire crucial staff on a lower salary threshold of just over £20,000 compared with the current ‘skilled worker’ threshold of £26,200 plus pay reduced visa fees.

Nearly half of small builders favour increased immigration with 60 per cent saying jobs are delayed due to difficulties hiring bricklayers and carpenters, according to the Federation of Master Builders, FMB, latest trade survey.

FMB chief executive Brian Berry said: “While immigration will help grow the construction sector, there still needs to be an investment in UK-based training to train the next generation of builders.”

Leicestershire BUILDER Magazine • APRIL 2023 • Tel: 01530 244069 • EMAIL: INFO@BUILDERMAGAZINES.CO.UK 5 NEW DEPOT OPEN IN SOUTH WIGSTON All Your Plant & Tool Requirements Full Range of Site Supplies & Consumables PREMIER PLANT & TOOL HIRE LTD TRADE ACCOUNTS & D.I.Y. WELCOME PREMIER PLANT & TOOL HIRE LTD CALL TODAY ON 0116 44 22 541 WWW.PREMIERPLANTANDTOOLHIRELIMITED.CO.UK 11 WILSON ROAD, SOUTH WIGSTON, LE18 4TP Power Tools For Sale Massive Range of Equipment OPEN Mon-Fri 7.30am-5pm OPEN Mon-Fri 7.30am-5pm Proofing Procedure Terms & Conditions - Whilst every effor t is made to minimise errors, occasionally they do occur The final responsibility is with you - the adver tiser, to check that the adver t is co (IN BLOCK CAPITALS) any alterations required We cannot accept responsibility for late alterations requested after the 48 hour deadline commencing on the date of proof shown It is the responsibility of SPECIFY ANY COLOUR REQUIREMENTS FOR THE ADVERT, FAILURE TO DO SO WILL RESULT IN COLOURS BEING USED AT THE DISCRETION OF THE PRODUCTION TEAM This is a low-resolution proo DECLARATION: I/We being authorised, approve the above advert for printing and acknowledge the Terms & Conditions of the proofing procedure as stated on this proof form Signature Print name Date / /2016 Approved for printing (Proceed, no amendments required) Amendments req (I require a further proof) Please tick one of the boxes and sign below or View the progress of the publication and position of your advert online visit*... http://spo Supplying the East Midlands for over 20 years ommer P am, N • Fast, next day delivery natio from our extensive stock ra allatio uk Free advice an qu Call our Nottingham on 0115 940 49 Nottingham Steel Supplies Ltd • Fast, next day delivery nationwide from our extensive stock range • Full fabrication and installation service • Residential and Commercial • Builder’s beams our speciality Supplying the East Midlands for over 30 years Supplying the East Midlands for over 20 years • Residential and Commercial Private Road No 2, Colwick Industrial Estate, Nottingham, NG4 2JR • Fast, next day delivery nationwide from our extensive stock range • Full fabrication and installation service www.nottinghamsteel.co.uk Free advice and no obligation quotations Call our Nottingham base on 0115 940 4949 Nottingham Steel Supplies Ltd Call our Nottingham base Private Road No 2, Colwick Industrial Estate, Nottingham, NG4 2JR www.nottinghamsteel.co.uk Free advice and no obligation quotations Free advice and no obligation quotations
Diet Day #1 - I removed all the
fattening food from my house. It was delicious.

SHIVA RAM LIMITED (c/o Agent: Mr Mark Payne, Architectural Vistadesigns Ltd, 118 Paddock Way, Hinckley, Leicestershire LE10 0BZ) –Proposed one storey extension and external stairs access to create 2 apartments over existing structure – at 315 Saffron Lane, Leicester LE2 6UE.

MR BIRJU KHUNTI (c/o Agent: Mr Muhammad Imtiaz, Architecture365 Limited, 20 Lynmouth Road, Leicester LE5 1NA) – First floor and second floor change of use from Class E to one-bedroom flat – at 205 Uppingham Road, Leicester LE5 4BQ.

MARZH HOLDINGS (c/o Agent: Mr Muhammad Imtiaz, Architecture365 Limited, 20 Lynmouth Road, Leicester LE5 1NA) – Change of use from dwellinghouse to 3 selfcontained flats plus construction of dormer extension at front, two storey rear extension and alterations – at 42 Freeman Road North, Leicester LE5 4NA.

VENTURE PROPERTIES GROUP

LIMITED (c/o Agent: rg+p Limited, Waterloo House, 71 Princess Road West, Leicester LE1 6TR) –Construction of 110 dwellings ( including provision for over-55s) with associated access, roads, parking and landscaping – at land to the north of Abbey Park Road, Leicester.

RUUT DEVELOPMENT LIMITED

(c/o Agent: Mr Ryan Astill, Astill Planning Consultants Limited, 144 New Walk, Leicester LE1 7JA) –Construction of 2 semi-detached houses with associated parking and landscaping – at land adjacent to 102 Rotherby Avenue, Leicester LE4 6HB.

Hinckley & Bosworth Borough

MR DAVID JACKSON & MR

ROGER JACKSON (c/o Agent: Tom Beardsmore, Pegasus Group, 4 The Courtyard, Church Street, Lockington, Derby DE74 2SL) –Conversion of agricultural building to 5 residential dwellinghouses – at Manor Farm, 2 Carlton Road, Barton in the Beans, Nuneaton, Warks. CV13 0DE.

DR R GOHIL (c/o Agent: John Hackman, The Drawing Room (Architects) Limited, 130 Moat Street, Wigston, Leicester LE18 2GE) – Proposed replacement and extension of existing barns and erection of new detached barn –at Inglenook Farm, Leicester Road, Barwell, Leicester LE9 8BD.

Residential development opportunity in Leicester city centre: £500k+

WANTED: BUILDER FOR PARTNERSHIP BUILD PROJECT – 2 DETACHED HOUSES

Landowner seeks quality builder to partner on scheme to build two 4-bed detached properties

BASIS: Landowner supplies land and pays builder agreed price for building 1 property, builder completes other property for re-sale (paying for their land at start or on sale of their property).

SITE: Village location South Leicestershire border, planning approved, services and highways access already installed.

TIMING & PROCESS: 4-8 weeks to conduct site visit(s), agree terms in principle and tender for project. Successor to sign agreement and commence works within 3 months with max 15months to complete.

CONTACT: To register Interest and arrange site visit: Please email property@imonic. co.uk with examples of previous quality project/house completions and contact details to arrange a site visit.

Hinckley National Rail Freight Interchange plans withdrawn for further work

READINGS Property Group are offering for sale a property suitable for residential development, subject to planning permission.

The property – 193 Charles Street, Leicester LE1 1LA – has been used as a photographic studio by the owner for his long-established business, and is located adjacent to Regus Serviced Offices.

The 2,797 sq.ft. property is set over two floors, with car parking to the rear of the premises.

The owner has been in extensive discussions with Leicester City Council’s Planning Department and the building offers a number of possibilities for conversion and re-development (subject to planning permission).

A pre-application enquiry has been submitted with detailed plans for the proposal of a mix of 6 or 7 one and two bedroom apartments, with a second floor extension.

Offers over £500,000 are invited. For more information, contact Readings Property Group on 0116 222 7575 or visit www.readingspropertygroup.com

Bowmer and Kirkland buys Innovaré

Innovaré, a partner business of The Osborne Group, is being bought by Derbyshire-based Bowmer and Kirkland as Osborne focuses on its core business.

Staff will be transferred under the TUPE regulations, maintaining their pay, terms and conditions under the new structure.

Innovaré, based in Coventry, provides offsite build solutions taking advantage of new materials, technologies, and methods of construction to increase the flexibility and energy efficiency of new buildings. It specialises in Structural Insulated Panels (SIPs).

DEVELOPERS Tritax

Symmetry have withdrawn their application for the Hinckley National Rail Freight Interchange. Tritax had submitted the application to the Planning Inspectorate on 6th February for consideration.

However, the Planning Inspectorate have told Tritax they failed to provide a required technical report in their submission documents.

It is understood Tritax will now take several weeks to prepare this report and will then need to resubmit their application.

This will restart the process from the start of the acceptance phase.

The scheme, earmarked for 662 acres of land between the M69 and the Leicester to Birmingham railway line, falls mainly within the boundary of Blaby District Council, south-west of Elmesthorpe village. While Blaby District Council can comment on the application throughout the formal process, it cannot make the final decision.

6 Leicestershire BUILDER Magazine • APRIL 2023 • Tel: 01530 244069 • EMAIL: INFO@BUILDERMAGAZINES.CO.UK I
don’t always have time to study, but when I do, I don’t.
5SheeneRoad,LeicesterLE41BF•Tel:01162357101•Email:sales@lbs.uk.net From £19.50 m2+VAT CountryCobble Pavers Mastercrete Cement £3.89 perlength +VAT 3"x2"CLS by2400mm 100mmPIRinsulationboard ArtificialGrass From £14.99 m2+VAT £19.50 Each +VAT Sleepers 200x100x2400mm BulkBags BlackIce20mmGravel 22.2m2 GreySandstone ONORDERSOVER£100 £4.65 Each +VAT PostMix 20kg LeicesterBuildingSupplies GREAT DEALS FROM £35 perbag +VAT BulkBags Aggregate,BuildingSand, SharpSand,MOT,Etc. LARGESTOCKSOFFACINGBRICKS•FENCING•PLASTERANDBOARDS•SAWNTREATEDTIMBERS•PLY•INSULATIONANDMUCH,MUCHMORE LARGESTOCKSOFFACINGBRICKS•FENCING•PLASTERANDBOARDS•SAWNTREATEDTIMBERS•PLY•INSULATIONANDMUCH,MUCHMORE ALLINSTOCKAND READYTOGO! £19.75 m2+VAT www.leicesterbuildingsupplies.co.uk www.leicesterbuildingsupplies.co.uk ALLDECORATIVE AGGREGATES
perbag +VAT £37.89 persheet +VAT £117.50 perbag +VAT £5.75
AVAILABLEONREQUEST ALLTYPESOFFENCING AVAILABLE

MR DAVID EVERTON (c/o Agent: Harriet Nind, Planning & Design Group (UK) Limited, Pure Offices, Lake View Drive, Sherwood Park, Nottingham NG15 0DT) – Erection of 2 detached dwellings (following demolition of existing dwelling) with associated parking and landscaping – at 21 Sapcote Road, Burbage, Hinckley, Leics. LE10 2AS.

MR MAX NORTH (c/o Agent: Iain Garnell, Perfect Planning Architectural Services Ltd, Office 1F, Rugby House, Hinckley Road, Sapcote, Leics. LE9 4FU) – Outline planning permission for 2 new dwellinghouses – at 130 Stamford Street, Ratby, Leics. LE6 0JU.

Melton Borough

MR A JOY (c/o Agent: Rory Canham, Harris McCormack

Architects, ArcHaus, Peterborough Road, Wansford PE8 6JN) –Demolition of redundant workshops and erection of 2 dwellings and the conversion of a separate redundant barn into one dwelling – at Hillside Farm, 1 Main Street, Grimston, Leics. LE14 3BZ.

MR G BRYAN (c/o Agent: Jonathan Weekes, Aitchison Raffety Ltd, The Granary, Spring Hill Office Park, Harborough Road, Pitsford, Northants. NN6 9AA) – Change of use from public house with integrated residential accommodation (Sui Generis) to public house and 4 residential apartments (Sui Generis and C3) including alterations to external elevations – at 31 Burton Street, Melton Mowbray, Leics. LE13 1AE.

Harborough District

MR RICHARD HENDERSON (c/o: Davidsons Developments, 207 Wilson House, Leicester Road, Ibstock, Leics. LE67 6HP) - Erection of 315 dwellings with associated garages and parking (Reserved matters) - revised scheme - at land to the west of Leicester Road, Market Harborough, Leics.

MR S PATEL (c/o Agent: George Weightman, Astill Planning Consultants Ltd, 144 New Walk, Leicester LE1 7JA) – Demolition of 2 existing dwellings (part retrospective) and erection of 2 replacement dwellings – at land at 623-625 Uppingham Road, Thurnby, Leicester.

New estate on Leicester bus depot site could double in size with 100 more homes built

AS REPORTED IN THE LEICESTER MERCURY, a new estate on a former bus depot could double in size if a bid to build 106 more homes is approved. The old Abbey Park Road Bus and Tram Depot was left devastated by a fire in 1999, kick-starting moves to find a new depot elsewhere in the city.

The site was finally closed for good in 2007 and demolished three years later. It was left vacant until permission was approved for a 117-home estate by Leicester City Council in October.

Developer Venture Properties Group has now revealed even grander ambitions for the site with a second phase of the development proposed. The group is seeking permission from Leicester City Council to build another 106 homes next to the 117 under construction.

Phase one was approved by the city’s planning officers, who say it fits in with the aims and aspiration for the area, which the council has earmarked for regeneration. The main access to the site would be via an extension of the existing Wolsley Island Way road.

This access would also be used by any future residents of the second phase. There would be 154 parking spaces for the additional homes. A number of other developments have been given the go ahead in the area, including the newly completed Sock Island development to the north of the site, consisting of 93 houses and 95 apartments on the former headquarters of the clothing company Wolsey.

Two building plots for sale in Waltham on the Wolds

SMITH & PARTNERS are offering for sale two level building plots at the rear of 19B High Street, Waltham on the Wolds, Leicestershire LE14 4AH.

The plots are set back approximately 75 metres from High Street, and will be accessed via a private drive.

Outline planning permission for two dwellings was granted by Melton Borough Council on 11th November 2021 under planning ref: 20/01157/OUT.

Guide Price: £460,000.

For more information, or to arrange a viewing, contact

on 01636 815544 or visit www.smithandpartners.co.uk

Digital Construction Week 17-18 May 2023

Discover the innovations

changing how our world is built

GET UP-TO-DATE on the latest tools, technology and ideas for the built environment at DCW on 17-18 May 2023.

Meet over 150 global brands and cutting-edge start-ups. Discover innovative solutions to help you be more efficient, collaborative, connected, sustainable and profitable.

Explore new ideas and deepen your understanding in the education programme. And connect with other like-minded professionals focused on delivering innovation and technology for the built environment.

£49.5 million for Melton as government supports vital new road

RESIDENTS and tourists in Melton Mowbray and Leicestershire will benefit from more than £49 million in government investment to reduce congestion, improve air quality and provide faster local journeys, the Roads Minister Richard Holden has announced.

The new road scheme – part of a £115.2 million total investment between the government, county council and private investors –will help unlock the full potential of Britain’s ‘rural capital of food’, stamping out ‘rat running’ car and lorry traffic from Melton Mowbray and making it easier for residents and tourists to access its historic town centre.

The scheme consists of a single carriageway road and extends from the A606 Nottingham Road at the north-western edge of the town to the A606 Burton Road in the south, crossing Scalford Road, Melton Spinney Road, A607 Thorpe Road and B676 Saxby Road to Burton Road.

The new single carriageway road will be funded by £49.5 million in government investment, alongside £51.7 million by Leicestershire County Council and £14 million by private funding.

With the opening scheduled for Summer 2025, the project will create new junctions with the radials on its route and provide crossings over the railway line and the River Eye.

8 Leicestershire BUILDER Magazine • APRIL 2023 • Tel: 01530 244069 • EMAIL: INFO@BUILDERMAGAZINES.CO.UK One in four frogs is a leap frog. Construction Estimator to the building trade www.fordestimatingservices.co.uk Call Martin on 07860 695 806 Or Email: martin@fordestimatingservices.co.uk
Smith & Partners
Land & Estate Agents Property Consultants The Country Property Specialists www.smithandpartners.co.uk A WONDERFUL OPPORTUNITY TO CREATE TWO EXCLUSIVE HOMES IN A SECLUDED POSITION WITHIN A CONSERVATION VILLAGE BACKWATER DELIGHTFULLY SITUATED TO THE REAR OF 19B HIGH STREET WALTHAM-ON-THE-WOLDS LEICESTERSHIRE LE14 4AH 01636 815544 TWO FIRST CLASS LEVEL BUILDING PLOTS WITH OUTLINE PLANNING CONSENT FOR TWO DETACHED FAMILY HOMES TOTAL BUILDING AREA OF AROUND 1766m² (OR THEREABOUTS)
BY • Doors • Roof Windows • Power Tools • Kitchen Appliances • Painting & Decorating • Boilers • Plumbing & Heating • Electrical & Lighting • Workwear • PPE • Flooring • Tiles • Bathrooms • Showers • Taps • Hand Tools • Security & Hardware • Sealants & Adhesives • Nails/Screws & Fixings 73 Commercial Square, Freemens Common, Leicester. LE2 7SR Tel: 0116 255 3539 Opening times: Mon-Thurs: 7:30am - 5pm Fri: 7:30am - 4.30pm Sat: 8am - 12 noon Saf f r on L ane Saf f r on L ane Commerc al Square E u s o n S r e e E u s t o n R o a d WelfordRoad Welford Road E a n g R o a d C o m m e r c a S q u a e Putney Road West Commercial Square Putney Road Putney Road Aylestone Road Aylestone Road A426 A5366 A5199 A5199 Freemens Common Road CountingHouseRoad HOME IMPROVEMENT & BUILDING MATERIALS AT CLEARANCE PRICES GET HERE QUICK. WHEN IT’S GONE, IT’S GONE! Travis Perkins Clearance Warehouse Leicester 2557150 TP Leicester Clearance Advert_v3.indd 1 09/12/2021 15:47

CHRISTOPHER STOTT AND ANDREW BELL PROPERTY

(c/o Agent: Zoe Massey, Hayward Architects Ltd, 19 Station Road, Hinckley, Leics. LE10 1AW) –Extension to existing warehouse/ distribution centre, addition of new cladding to existing building and widening of existing access – at Unit A2, Bilton Way, Lutterworth, Leics.

ATE FARMS (c/o Agent: Lance Wiggins, Lion Planning, 14 Woodhouse Road, Quorn, Loughborough, Leics. LE12 8ED)

– Mixed use scheme comprising solar farm, industrial/commercial development (green industry and office park), an electric vehicle charging facility for 20 cars, farm shop/café and the siting of 33 residential lodges and a management building together with surface water balancing, landscaping and parking – at Slip Inn Quarry, Leicester Road, Lutterworth, Leics. LE17 4LT.

MR TAKIAR (c/o Agent: DT Designs Limited, 74A Wyvern Avenue, Leicester LE4 7HH) Erection of 2 dwellings with associated landscaping, parking and fencing –at land to the rear of 92 Station Lane, Scraptoft, Leicester.

Rutland County

MR FRED & MRS ANNE HUTTON

(c/o Agent: Matt Taylor, Class Q, The Grey House, 3 Broad Street, Stamford PE9 1PB) - Erection of 8 dwellings, comprising 5 bungalows and 3 two storey houses, plus formation of new access - at land south of Lodge Trust, Main Street, Market Overton, Rutland.

MR SIMON HITCHCOCK (c/o

Agent: Miss Emily Anderson, Planning Design Practice, 3 Woburn House, Derby DE1 1UL) – Outline application for the erection of 2 dwellings - at land south of 11 Barrowden Lane, South Luffenham, Rutland.

NW Leics. District

MR & MRS JOHN LEMERCIER

(c/o Agent: Mr J Imber, JMI Planning, 62 Carter Street, Uttoxeter ST14 8EU) – Change of use of Methodist church to a dwelling plus associated alterations – at Oakthorpe Methodist Church, Chapel Street, Oakthorpe, Swadlincote, Derby DE12 7QT.

Building a career in a male-dominated industry

FEMALE CONSTRUCTION WORKERS ARE KEEN TO BREAK THE MOULD

IN AN INDUSTRY that has traditionally been predominantly dominated by men, Cannock-based housebuilder Jessup Partnerships is looking to encourage talented women into the workforce and inspire other women to consider a career in construction.

Site Manager, Kirsty Lynch, 50, who is originally from Edinburgh worked at Jessup five years ago and recently returned as Site Manager at the housebuilder’s Lower Valley Road development in Dudley. Kirsty previously worked in Health and Social Care for over 20 years, however, decided to take the plunge into the construction industry in her 40s.

Kirsty said: “After a long and successful career in Health and Social Care, I decided I needed a new challenge so, I retrained, and gained the necessary qualifications for site management.

“I applied for around 500 jobs to get myself onto site- having no trade background and being female, I did not feel like I was taken seriously. After a while, I eventually obtained a role, but I had to travel around 600 miles a week for work. This position was for a Trainee Assistant Site Manager which led to me being promoted to Assistant Site Manager within two years.

“I’ve had to work incredibly hard to prove myself. Being a woman brings a different dynamic to a construction site. For the most part, all the sub-contractors, the supply chain and the community, embrace and support my role, however a minority have to be challenged with education and training. Equality and diversity are the starting points ensuring we have equal rights such as pay, career progression and a voice.

“This journey has not always been easy, near impossible at times, with archaic and outdated attitudes. Like all good career paths if you want something you have to work at it. Having a supportive employer makes a massive difference, one who supports and embraces the diversity we bring to the role. Changing the rhetoric, change the perspective.”

The Office for National Statistics (ONS) reported that in Q4 of 2022, 2,171,000 people in the UK worked in construction. Out of those people, just 321,000, 14.7 per cent, were women.

With a number of female employees already in a range of roles across the company, the developer is keen to break the stereotype around women working in construction.

Michelle Howe, who joined Jessup Partnerships in 2022 as Health and Safety Advisor, previously worked for a large precast concrete manufacturer as a Health and Safety Co-ordinator.

Michelle, who works on sites across the West Midlands said: “Since joining Jessup, I have felt well-supported in my career progression and have received the relevant training to enable my transition from manufacturing to construction.

“I feel well supported by my manager and the site teams that I work with on a daily basis, and my opinions are listened to and valued. I have never felt anything other than welcomed and accepted by the site personnel.

“If I could give any advice to women thinking about starting a career in construction, I would tell them that they absolutely should pursue it. I think that working in construction is far more inclusive than it was five years ago, and there are now a lot more women actually working on site.”

Chris Timmins, Managing Director at Jessup, said: “We are extremely proud to be part of the collective effort to drive more women into the construction industry.

“We hope we can inspire more women to break the stereotype and build a career in construction.”

To watch Jessup’s International Women’s Day 2023 video, please visit, https://youtu.be/JZsv8blDHuc.

For further details about Jessup Partnerships visit https:// jessuppartnerships.co.uk/or follow on Facebook https://www.facebook. com/JessupPartnerships or Instagram https://www.instagram. com/jessuppartnerships/?hl=en

10 Leicestershire BUILDER Magazine • APRIL 2023 • Tel: 01530 244069 • EMAIL: INFO@BUILDERMAGAZINES.CO.UK
Does anyone have plans to stare at their phones somewhere exciting this weekend? Do YOU sell to the building trade? Reach THOUSANDS of potential customers every month with an advert in LEICESTERSHIRE BUILDER!
Visit our Website! Affordable Housing Apartments and Student Accommodation Bespoke Housing See our 3D Design Joists and Roofs : STRUCTURAL TIMBER ASSOCIATION Member ASSUREGOLD PEFC/16-37-874 Promoting Sustainable Forest Management See our 3D Design Midland Timber Engineering 8 Sunningdale Road, Leicester 0116 232 1777 info@mte-leicester.co.uk www.mte-leicester.co.uk TIMBER FRAME SPECIALISTS FOR THE MIDLANDS

Builders’ Problems SOLVED

KELLER CONSTRUCTION LTD

(c/o Agent: Mr S Raju, R3Design Developments Ltd, The Glasshouse, 9 Hallam Close, Littlethorpe, Leicester LE19 2LA) – Reserved matters approval for the erection of up to 7 dwellings – at land west of Ashby Road, Packington, Leics. LE65 1TD.

MR EMERSON (c/o Agent: Andrew Large Surveyors Ltd, The Estate Office, Staunton Harold Hall, Melbourne Road, Ashby de la Zouch, Leics. LE65 1RT) – Erection of 3 dwellings and part demolition of agricultural buildings – at Field House Farm, Lily Bank, Thringstone, Coalville, Leics. LE67 8NB.

EAST MIDLANDS RFCA (c/o

Agent: Robert Tsvetanov, Allan Joyce Architects Ltd, 16-20 Bath Street, Nottingham NG1 1DF) –Demolition of existing single storey brick building and replacement with a new larger metal cladded building, with two storeys at the front and one at the rear – at Army Training Corps, Forest Road, Coalville, Leics. LE67 3SH.

Oadby & Wigston

MR A SINGH (c/o Agent: Mr E Stevenson, BHC, 72 Boston Road, Leicester LE4 1HB) –Demolition of 2 dwellings and erection of 2 new dwellings with garaging (Resubmission) – at 39 Harborough Road, Oadby, Leicester LE2 4LE.

MR & MRS BOULTER (c/o Agent: Mr A Lennard, Perfect Planning Architectural Services Ltd, Office 1F, Rugby House, Hinckley Road, Sapcote, Leics. LE9 4FU) – Outline application for 2 dwellings with associated parking – at 86 Station Road, Wigston, Leicester LE18 2DJ.

CRYSTALITE LIMITED (c/o

Agent: Ms Paula Moura, Hybrid Planning & Development, 23 Vyner Street, London E2 9DG) – Change of use of the third floor to residential use, together with a new communal amenity space at roof level, cycle parking and refuse storage – at Lyn House, 37-41 The Parade, Oadby, Leicester LE2 5BB.

Charnwood Borough

UNNAMED APPLICANT

(c/o Agent: Savills (UK) Ltd) –Conversion of existing farmhouse to create 2 dwellings with single storey extension, parking provision and associated landscaping – at Oakley Grange Farm, Shepshed Road, Hathern, Leics. LE12 5LL.

Pointers to mitigate exposure in current economic climate

PROBLEM: It is not so much a problem I have that requires a ‘cure’, but rather I am seeking pointers that will help prevent potential problems in the future.

I run a construction company that turns over just under £10 million per year. The type of work we do is quite varied, ranging from large residential extensions to commercial and office property. Like any other company in the building sector, the company has suffered over the past 12 to 18 months with material cost inflation and cash flow being squeezed. Fortunately, though, we have not had any bad debts, but the profit for the company has disappeared and I am very concerned for the future – if a client goes bust on us, that would have dire consequences for the company.

Going forward, can you give me any pointers as to how better I can protect the company, and even start to turn in a profit?

RESPONSE: You are very sensible in your approach –prevention is of course far better than cure.

Currently, contracting companies (and of course procurers) are having a very tough time. They have to contend with material cost inflation, skilled labour shortages and liquidity issues – and working on the construction industry, I have witnessed all of these problems.

From my point of view, there are two important factors that a contractor on any project must consider:

1) ensure that a written contract is in place prior to any works being carried out; and

2) ensure it remains cash flow positive. All of my other ‘pointers’ that I discuss below, can be said to be sub-factors of these 2 main factors.

Having a written contract in place may sound straightforward, but the number of times I have come across contractors where they have commenced works without any proper written contract in place: and it is not just a case of ensuring a written contract is in place, but to also understand the terms and conditions.

Given the high inflation cost of materials (in 2022, building materials prices were 25% higher than they were in 2021), on contracts where you have a lengthy duration (and I would define a lengthy duration as 6 months or more), then you must seriously consider whether you can afford to take the risk if the contract is going to be fixed price for the duration.

If you cannot take the risk, ensure that the contract contains a fluctuating clause – all of the main standard agreements deal with fluctuation provisions in different ways.

For example, the JCT Intermediate Building Contract includes a fluctuating provision in the Contract Particulars, whilst the NEC has secondary option X1 on price adjustment for inflation which can be used in NEC4 ECC, PSC and TSC – it can also be included as an additional condition of contract in the shorter NEC contracts.

Since the 1980’s, fluctuating provisions have largely been ignored by contracting parties: in those days, the formulae for calculating fluctuations was known as the NEDO formula (an acronym for the National Economic Development Office), which is now the Price Adjustment Formulae Indices which is administrated by BCIS (Building Cost Information Service), which publishes general indices for building, civil engineering and maintenance projects.

Even on contracts that have relatively short-time scales, consideration should be given to a fluctuating clause, especially where there is specialist equipment such as used in M&E installations.

As to cash-flow (and remember that old adage – turnover is vanity, profit is sanity but cash-flow is king!), it starts by doing a creditcheck on the client. You can then consider ways to reduce your risk (for not getting paid or client insolvency), for example, monies on account, monies paid into a trust account (and drawn down via a third party payment certificate), more regular valuations (ie, every 2 weeks), and quicker payments (ie, within 5 days of the due date). Of course, a client may not be too willing to part with its own cash earlier than usual, so perhaps an incentive (like a discount), could prompt agreement.

Also remember that you can include a provision in the contract to suspend performance for nonpayment. Such a provision is not needed where the contract is with another business (the right to suspend is implied by the Housing Grants, Construction and Regeneration Act (as amended)) –and don’t be hesitant is using this right – it could save the company!

The advice provided is intended to be of a general guide only and should not be viewed as providing a definitive legal analysis.

12 Leicestershire BUILDER Magazine • APRIL 2023 • Tel: 01530 244069 • EMAIL: INFO@BUILDERMAGAZINES.CO.UK The first time I sang in the church choir, two hundred people changed their religion.
Michael Gerard Author background Michael is a Solicitor, Chartered Builder & Registered Construction Adjudicator, and is a director at Michael Gerard Law Limited, a solicitors practice regulated by the SRA.
Remember that old adage –turnover is vanity, profit is sanity but cash-flow is king!
emctiles.co.uk | 0116 283 4068 Chartwell Drive Ind. Estate, Wigston, LE18 2FL LEICESTER LE18 2FL | LOUGHBOROUGH LE11 5GD | NOTTINGHAM NG5 9RA | DERBY DE21 4TS Rated ‘Excellent’ on Levellers Grouts Tools Adhesives Primers Underfloor Heating & More! Quality products & exclusive suppliers. Supplying commercial projects since 1979.

Development Properties IN BRIEF

SI THRUSSINGTON LTD (c/o

Agent: Brick Architects Ltd) –Outline application for 9 new detached dwellings and new means of access – at land off Hoby Road, Thrussington, Leicester LE7 4TH.

GREY GOOSE LIMITED (c/o Agent: Will Aust) – Conversion and extension of existing vehicle showroom and garage to create offices/collaborative spaces/workshops and café and associated facilities – at 14-18 Loughborough Road, Mountsorrel, Leics. LE12 7AT.

WILLIAMS BUILDERS (c/o Agent: GHM Planning Ltd) – Demolition of bungalow and associated outbuildings and structures, erection of 4 dwellings and associated outbuildings and associated works (Revision) – at 45 Beveridge Street, Barrow upon Soar, Leics. LE12 8PL.

DAVID WILSON HOMES

EAST MIDLANDS (c/o Agent: Fisher German) – Outline planning application for up to 140 new dwellings with open space, landscaping and drainage infrastructure (Revision) – at land west of Barkby Road, Queniborough, Leics.

TREVOR PARR ASSOCIATES

LTD (c/o Agent: Heaton Planning Ltd) – Conversion of single family dwellinghouse to 3 self-contained residential units and erection of single storey rear extension – at 64 Leopold Street, Loughborough, Leics. LE11 5DN.

GREY GOOSE LTD (c/o Agent: WA Architecture) – Erection of 1½ storey rear extension to and refurbishment of existing dwelling, and construction of 2 new dwellings – at Mill House, 20 Loughborough Road, Mountsorrel, Leics. LE12 7AT.

Blaby District

MR MITESH RATHOD (c/o: Jelson Limited, 370 Loughborough Road, Leicester LE4 5PR) - Residential development of up to 200 dwellings including provision of public open space and associated infrastructure - at land off Croft Road, Cosby, Leicester

MR RICHARD HENDERSON (c/o: Davidsons Developments, 207 Wilson House, Leicester Road, Ibstock, Leics. LE67 6HP) –Reserved matters application for the erection of 163 dwellings – at Parcels R6(4) Dee Way/Laxford Lane, Lubbesthorpe, Enderby, Leicestershire.

Land - Building Plot

ACCOMMODATION

THE PLOT: comprises of 4 x 3 bed semi-detached houses located on the edge of a quiet rural village, accessed by a private drive.

PLANNING PERMISSION: The planning permission was granted by Melton Borough Council on Monday 26th March 2018 (17/01135/FUL), with the council confirming on Friday 14th May 2021 that the development had commenced in accordance with condition 1 of the above planning permission (ref - 21/0034/DIS) which includes footings for the garages of plot 3 and 4 and the driveway for access.

FENCING: The purchaser is to erect post and rail fencing between points A, B and C (on the plan included with these particulars) within 6 months of completion and shall thereafter be responsible for the repair and maintenance of the same.

Building land and three paddocks for sale in Nether Broughton

REGIONAL HOUSEBUILDER William Davis Homes has seen strong early sales at its new development in a sought-after Leicestershire village.

SERVICES: Most services will be available close by. We would advise potential purchasers to make their own investigations as to the availability and location of any services.

VIEWING: Strictly by appointment with Shouler and Son PLANS: Not to scale. For identification purposes only.

After being inundated with enquiries for Hastings Green at Kirby Muxloe, even before a brick was laid, a quarter of the 34 attractive plots have already been sold.

IMPORTANT INFORMATION -Right Of Way The Property is sold subject to a right of way for the vendor (and their successors in title) at all times and for all purposes, with or without vehicles, over and along the existing farm track shown edged and hatched yellow on the plan included with these particulars.

OVERAGE The land will be sold with an overage for any development (other than agricultural or equestrian buildings) and this will apply to any residential development (including but not limited to any residential element linked to agricultural or equestrian uses) or commercial development. The rate will be 50% for 30 years from the completion date.

To help cope with demand, a new on-site sales office has been launched, alongside an impressive view-home. Sales enquiries were previously handled off-site.

William Davis Homes Sales Director Steve Rush said they were looking forward to welcoming would-be buyers with a range of offers and options, including part exchange on selected plots.

Hastings Green has a range of 2, 3 and 4-bedroom homes, all beautifully designed inside and out. All William Davis Homes properties come with high-spec features including Smeg kitchen appliances, Porcelanosa tiling in the bathroom and a Hive smart home system.

County Chambers, Kings Road, Melton Mowbray, Leicestershire LE13 1QF Tel: 01664 560181 www.shoulers.co.uk m.harris@shoulers.co.uk

land and three pony paddocks, with potential for development, subject to planning permission.

The property is located at Limes Farm, Middle Lane, Nether Broughton, Melton Mowbray, Leics. LE14 3HD.

Planning permission (refs: 17/01135/FUL & 21/0034/DIS) have been granted by Melton Borough Council for 4 three-bed semidetached dwellings.

to be correct. We generally rely on what we are told without obtaining proof. You should verify for yourself such information before  & Son nor their clients guarantee accuracy of the particulars, and they are not intended to form any part of a contract. No person in the ation or warranty in respect of this property.

Guide Price: £350,000. For more information, contact Shoulers on 01664 560181 or visit www.shoulers.co.uk

Building plot in Bitteswell

OSCAR JAMES Estate

Agents are offering for sale a building plot of 0.2 acres with full planning permission (ref: 22/02154/ REM) for a cleverly designed single storey 5-bedroom dwelling.

The plot – at Bitteswell Pavilion, Ashby Lane, Bitteswell, Leics. LE17 4LS – is for sale at £375,000. For more information, or to arrange a viewing, contact Oscar James on 01858 458458 or visit www.oscar-james.com

14 Leicestershire BUILDER Magazine • APRIL 2023 • Tel: 01530 244069 • EMAIL: INFO@BUILDERMAGAZINES.CO.UK I’m taking anti-barn dance pills. I’m not allowed to exceed the stated dosey-dosage.
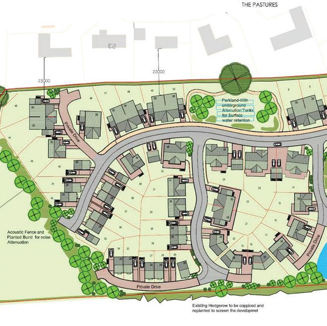
William Davis’s new Kirby Muxloe development is 25% sold

Topping out of 67-bed Care Home in Hinckley

CARE BUILD GROUP’S first care home, a 67 bedroomed development located in Hinckley

Leicestershire have celebrated topping out having completed the building’s main structure. The home located on a road fronted position, has close transport links to the M1 motorway and is ideally positioned to shops and amenities within the localCommunity. The site formally a car park and a local bowls club, has been designed to incorporate new club and Pavilion facilities.

The project will see a brand new later living facility created, which includes 67 en-suite bedrooms, office spaces, lounge areas, hairdressing amenities, a commercial kitchen, private dining areas and a pub. The home is specifically designed in accordance with dementia-friendly acoustics and appropriate for the complex needs of the home’s residents.

Director of Care Build Group, Ashley Cooper added: ‘This is a very exciting day for the project and Care Build Group as we celebrate the completion of the main structure of the building. We are looking forward to cracking on with the internal works and finishes in readiness for a successful completion to our client later this year’.

Leicestershire BUILDER Magazine • APRIL 2023 • Tel: 01530 244069 • EMAIL: INFO@BUILDERMAGAZINES.CO.UK 15
From 2 Hours After Ordering On-site Or Home Deliver y
Pictured Left to Right: Steve Day (Director Care Build Group), and Ashley Cooper (Director Care Build Group). I saw Michael J Fox in the florists this morning. He had his Back to the Fuschias.

KIRSTEN CUNNINGHAM (c/o Agent: Dale Radford, rg+p Limited, Waterloo House, 71 Princess Road West, Leicester LE1 6TR) – Outline application for 9 dwellings – at Hill Street, Croft, Leics.

PAM BASRA (c/o Agent: Mr Mike Cano, Keenan Project Designs Limited, 11 Dormer Place, Leamington Spa, Warks. CV32 5AA) – Two proposed new dwellings – at 203 Hinckley Road, Leicester Forest East, Leicester LE3 3PH.

MR JOHN MAC (c/o Agent: David

F Barnes, Chartered Architect, 14 Pyeharps Road, Burbage, Leicestershire LE10 2JE) – Erection of a new tool shed and workshop building – at land to the south east of Granitethorpe Quarry, Leicester Road, Sapcote, Leics.

Rugby Borough

DANDOM PROPERTIES LIMITED

(c/o Agent: Peter Halfpenny, 59 Springfields, Coleshill, Warks. B46 3EG) - Three storey rear extension and conversion to 5 flats - at 321 Hillmorton Road, Rugby, Warks. CV22 5EZ.

MR L TOMES (c/o Agent: John Clarke, Howkins & Harrison, 7-11 Albert Street, Rugby CV21 2RX) –Conversion of agricultural building into 4 dwellinghouses – at Merlin Filed Farm, Gibraltar Lane, Leamington Hastings, Warks. CV23 8EX.

MEMBERS LIMITED (c/o Agent: Mr Shailender Nagpal, Design and Plan Consultants Limited, 93 Cotmandene Crescent, Orpington, Kent BR5 2RA) – Conversion of the upper existing property into 12 flats along with addition of one floor – at 28-29 The Lawrence Sheriff, High Street, Rugby, Warks. CV21 3BW.

SECLAND GROUP LIMITED

(c/o Agent: John Wilbraham, DLP Planning Limited, 18 Regent Place, Rugby, Warks. CV21 2PN) – Change of use from office to a state-funded school – at The Hall, Priory Hill, Rugby Road, Wolston, Warks. CV8 3FZ.

JESSUP PARTNERSHIPS & RUGBY ASSETS LTD & RUGBY ASSETS 1 LTD (c/o Agent: rg+p Limited, Waterloo House, 71 Princess Road West, Leicester LE1 6TR) – Construction of 111 dwellings with associated access, roads, parking and landscaping – at land north of Projects Drive, Rugby, Warks.

Space city LeiceSter NeWS

Start on new workspace development to be made this month

THIS MONTH Leicester firm Brackley Property Developments and the city council will start work on expansion the Dock and Dock 2 workspace hub to create an innovative workspace development for high-tech industries at the heart of Space City.

Two Dock-style office buildings and a terrace of high-quality manufacturing spaces will provide space for up to 45 businesses across 4,000sqm, with the purpose-built industrial units providing 2,000sqm of workspace across nine units.

A range of energy efficiency measures will mean the new buildings will be net carbon zero in operation. They will feature include roof mounted photovoltaic panels, air source heat pumps, super insulation, low-energy LED lighting and will require no gas heating. Chargers will also be installed for electric vehicles in the new parking area.

The buildings have been designed to complement the look and feel of the original two Dock workspace buildings which they will be built next to.

The new buildings will become part of the Dock campus which is managed by the city council. The existing Dock buildings are now home to around 50 businesses, with 90 per cent of the available workspaces now occupied.

The £16.5million project will be supported by £13million from the Government’s Levelling Up fund. The Leicester and Leicestershire Enterprise Partnership (LLEP) is also providing £3.5million towards the project from Enterprise Zone Retained Business Rates.

Space City Leicester will create one of the largest and most connected Enterprise Zones for space-related activities in the UK. It will be home to space research, production, manufacture and development as well as non-space related knowledge economy businesses, those working towards decarbonisation, innovative start-ups and established businesses looking for grow on space.

The Space City partnership includes Space Park Leicester, University of Leicester, National Space Centre, Leicester City Council, and the Leicester and Leicestershire Enterprise Partnership (LLEP). Space City is part of the Loughborough and Leicester Science and Innovation Enterprise Zone.

Potential development site in Derby

SDL PROPERTY AUCTIONS are offering for sale BY AUCTION a potential development opportunity which is suitable for redevelopment, subject to planning consent.

The site – 441, 443, 445 & 447 Kedleston Road, Derby DE22 2TG – is currently occupied by two substantial detached houses, a detached bungalow and a former builder’s yard, workshop and garage, all of which offer the opportunity for improvement and extension, subject to planning.

For sale BY AUCTION on Thursday 27th April 2023 – 10am start. Guide Price: £1,800,000+ plus fees.

For more information, visit the website at www.sdlauctions.co.uk

16 Leicestershire BUILDER Magazine • APRIL 2023 • Tel: 01530 244069 • EMAIL: INFO@BUILDERMAGAZINES.CO.UK SHONKI BROTHERS K Sangra Wednesday 26th April 2023 Wednesday 14th June 2023 Visit www.shonkibrothers.com AUCTIONS DIARY If you’d like your property auction dates mentioned here, please email the details to us: info@buildermagazines.co.uk SDL National Property Auction Thursday 27th April 10.00am National Property Auction Thursday 25th May 2023 10.00am National Property Auction Thursday 29th June 2023 10.00am Visit www.sdlauctions.co.uk COTTONS Wednesday 24th May 2023 Wednesday 12th July 2023 Visit www.cottons.co.uk BOND WOLFE Thursday 18th May 2023 9:00am Thursday 13th July 2023 9:00am Visit www.bondwolfe.com
BROS LS Sangra
17th May Wednesday 12th July 2023 Visit www.shonkibros.com
SHONKI
Wednesday
When I’m lying on my deathbed, my one big regret will be that I’m lying on my deathbed.
sales@cooksmidlands.co.uk 01530 249191 t Horsepool Grange, Elliotts Lane, Stanton Under Bardon, Leicestershire, LE67 9TW cooksmidlands.co.uk Your local Authorised Sales and Service Centre for CAT® Compact Equipment e Cooks Midlands now have stock and parts of the CAT® Compact Range of Construction Products including: • Excavators • Backhoes • Skid Steers • Compact and Small Wheeled Loaders Contact us now for more information. Based in Stanton Under Bardon, just off J22 on the M1 in Leicestershire
HOLKHAM | Graphite HOLKHAM A grained painted 5 piece frame door with integrated handle. To request the new Gaddesby Kitchens brochure or to open an ECF trade account, please email: marketing@ecf.co t : 01664 424 288 | e : hello@ecf.co | w : www.ecf.co Auster House, Rearsby Business Park, Gaddesby Lane, Rearsby, Leicestershire LE7 4YH
Our business is helping you build yours

FOR SALE BY ONLINE AUCTION

howkinsandharrison.co.uk/online-auctions

Business update from Walters Architects

AFTER RECENTLY moving to new offices in the centre of Leicester to grow their practice, Walters Architects have now made the decision to split their existing business into two separate arms in order to encourage further growth.

The practice intends to offer their design-led projects, which are predominately in the residential sector, under Walters Architects. The new division - Walters Industrial - will provide services specifically to industrial clients.

Both teams will operate from the offices in the Cathedral Gardens in Leicester and the company will still operate under their original name, Walters Architects ltd.

The main reason for creating these separate teams, was due to a rise in the number of successful commercial and industrial schemes within Leicester and the Midlands area. The office also felt it was important to have two separate websites addressing specific typologies.

Not only does this diversification of the business clarify clientele but it also helps create a stronger identity for the principle architectural services carried out by Walters Architects.

Please visit the new website at www.waltersindustrial.co.uk for a selection of commercial and industrial projects. You can also see changes to the original website at www.waltersarchitects.com

If you have any questions about either sector, please contact the office on 0116 254 1830 or info@waltersarchitects.com the team are always happy to discuss specific individual requirements.

Property for Renovation

2 Gladstone Street, Lutterworth LE17 4EA

GUIDE £85,000

A three bedroom end terrace with garden to the rear which is in need of complete renovation.

Please contact Henry Martin, 01788 564680 (henry.martin@howkinsandharrison.co.uk)

Investment property with Assured Shorthold Tenancy in situ

32 New Street, Lutterworth LE17 4EA GUIDE £200,000

A spacious, 3 bedroom mid-terrace property within walking distance to Lutterworth town centre

Please contact Henry Martin, 01788 564680 (henry martin@howkinsandharrison co uk)

SALES / LETTINGS / COMMERCIAL / FARM & RURAL PLANNING & DEVELOPMENT / AUCTIONS

Site with planning permission: The Former Town Council Offices, North Street, Atherstone, CV9 1JW GUIDE £110,000

An exciting opportunity to acquire a property with two separate planning applications, one for residential and one for commercial.

Please contact Philippa Dewes 01827 721380 (philippa.dewes@howkinsandharrison.co.uk)

20 Leicestershire BUILDER Magazine • APRIL 2023 • Tel: 01530 244069 • EMAIL: INFO@BUILDERMAGAZINES.CO.UK
Just noticed a sign on a pub door saying ‘Guide Dogs Only’. Possibly the most exclusive pub ever.

Plans to transform Leicester’s Pilot House approved

PLANS TO TRANSFORM

Pilot House in Leicester have been approved.

The £11.4m proposals, initially revealed in 2020, will see the cluster of heritage buildings on King Street redeveloped into a home for creative businesses, with an atrium and cafe sitting alongside office space.

The city council proposes to deliver the phased refurbishment of the former factory, to create office and workspace to meet demand from inward investment, the professional sectors and creative/design businesses.

It is hoped that Pilot House will build on and extend the success of the city’s LCB Depot in the Cultural Quarter and will be a hub providing workspace, events, exhibitions and host key projects and services to support the growth of its business communities.

Speaking on the plans, City Mayor Peter Soulsby previously said: “This project will transform a group of architecturally significant heritage buildings into a landmark destination that will become a source of pride for Leicester.

“Not only will it contribute to the wider regeneration of the Belvoir Street, Market Street and New Walk areas, and complement exciting new developments like the Gresham Building, but it will also create and support hundreds of high quality new jobs.”

AUNIQUE opportunity to acquire a substantial property comprising a former nursing home, building plot and retail premises occupying a plot of just under half an acre in the centre of this popular Rutland village.

OAK HOUSE RESIDENTIAL HOME - Oak House is a former residential home comprising period stone-built houses and a significant new build element which was up until recently a residential care home providing twenty-five rooms with a variety of reception and community rooms, kitchens and associated offices and a combination of ensuite accommodation with the remaining bedrooms having WCs and wash hand basins. There are attractive gardens and generous parking provision.

THE POST OFFICE - The building and yard edged blue on the aerial photograph comprises a former post office and village store. It houses a separate title and has been acquired by our client subject to contract.

BUILDING PLOT - The building plot edged in green on the photograph has a consent for the erection of a detached house and parking and provides a 1400ft², four-bedroom house with two bathrooms.

DEVELOPMENT POTENTIAL - The whole site provides enormous potential for a mixed-use scheme comprising residential and commercial components while continuation of the existing use. Our clients are seeking unconditional offers for the whole area edged in green, red and blue. The purchaser’s pack provides further detail.

LOCATION - Greetham is a pretty village to the east of Oakham with excellent travel links being approximately 3 miles from the A1. The east coast mainline runs through Peterborough, allowing access to London in less than an hour by train. The village boasts two great pubs, a shop and a post office and sits just four miles from Rutland Water with a regular bus service to Oakham and beyond.

ON THE MARKET WITH JAMES SELLICKS, OAKHAM

For further information, call us on 01572 724 437 or email on oakham@jamessellicks.com

Leicestershire BUILDER Magazine • APRIL 2023 • Tel: 01530 244069 • EMAIL: INFO@BUILDERMAGAZINES.CO.UK 21
A un comp premi of thi Oak Ho period recentl recepti of ensu hand b The Po photog title an Buildin erectio house w Develo use sch of the edged Locatio links b throug village Rutland For D E V E L O
O P P O R T U N I
Y in G R E E T H A M , R U T L A N D
P M E N T
T
• Website: www.jamessellicks.com
I was thinking of getting contact lenses, but I always think my face looks a bit blurry without my glasses.

PORTAKABIN LIMITED (c/o Agent: Tim Waters, RENEW Planning Limited, Work Life Hammersmith, 174 Hammersmith Road, London W6 7JP) – Two-storey endoscopy facility complete with new pedestrian crossing and hard landscaping on existing vacant land – at Hospital of St.Cross, Barby Road, Rugby, Warks. CV22 5PX.

PUNCH PARTNERSHIPS (PML)

LIMITED (c/o Agent: Ms Jenna Lai, Unit 3, Broadbridge Business Centre, Delling Lane, Bosham PO18 8NF) –Erection of 2 three-bed dwellings on land adjacent to the public house accessed from Main Stree, with associated parking and landscaping, including reconfiguration of beer garden and car park – at The Crown Inn, 2 Main Street, Newbold, Rugby, Warks. CV21 1HW.

RUGBY BOROUGH COUNCIL (c/o Agent: rg+p Limited, Waterloo House, 71 Princess Road West, Leicester LE1 6TR) Residential development of 100 affordable dwellings – at Biart Place, Rugby, Warks.

Corby Borough

MR WILLIAM SHARMAN (c/o: 52 Cottingham Road, Corby, Northants. NN17 1SZ) – Demolish existing house and outbuildings and erect 4 bungalows with associated access and landscaping – at 52 Cottingham Road, Corby, Northants. NN17 1SZ.

FOXBOROUGH HOMES (c/o: Wakerley Road, Harringworth, Northants. NN17 3AH) – Erection of 6 dwellings with associated garaging and car parking – at Gretton Village Hall, 61 Kirby Road, Gretton, Corby, Northants. NN17 3DB.

North Northants. Council

MR BOB FETT (c/o Agent: Anna-Louise Jardine, Copper Beech Architecture, 21 Mallows Drive, Raunds, Northants. NN9 6SE) – Proposed change of use of existing barn into 2 dwellings – at Agricultural Holding to the rear of Nos 56 & 58 Avenue Road, Rushden, Northants.NN10 0SW

LODGE PARK LIMITED (c/o Agent: Miss Catherine Shephard, J & J Design, 1A King Edward Road, Bedford MK41 9SF) – Demolition of existing buildings and erection of 5 detached two-storey dwellings, detached car barn and replacement vehicular access (Revised Application) – at Rectory Farm Buildings, Cranford Road, Great Addington, Northants. NN14 4BQ.

Floor Fitter From Leicestershire Reaches Screwfix Trade Apprentice Semi-Final

MIKE WALDRON, an apprentice floorer from Leicestershire, is a step closer to becoming Screwfix Trade Apprentice 2023, after reaching the semi-final stage of the coveted award.

With this year’s competition attracting more than 1,700 applications from across the UK and Ireland, the entrants have now been whittled down to just 30, all of whom are in the running to reach this year’s final.

The final will be held in May, with the top 10 apprentices facing a panel of industry experts. Only one will be crowned Screwfix Trade Apprentice and receive a careerboosting £10,000 trade bundle made up of tools, tech and training – everything they need to become a champion of their chosen trade.

Mike, 29, who is currently studying floor laying at Floortrain, says: “I’m really pleased to have been shortlisted as a semi-finalist and being one step closer to the final. To be crowned Screwfix Trade Apprentice 2023 would be an incredible accolade that would help me realise my potential and pursue my dream of becoming a champion of my trade.

“I’m really excited to show my commitment, and passion for the trade and hope this is enough to get me through to the final. When the pandemic hit, I realised how unfulfilled I was in my current job. It was then, at the age of 28 I decided to embark on an apprenticeship. Since then, I’ve really found my calling – working to not only be the best that I can, but I’m also a believer in helping those just starting out in the trade too.”

Mike was shortlisted for the semi-final for his passion, dedication, and ambition – which shone through in his application. Having made a career change in his late twenties, Mike’s dedication to championing the trade and the breadth of opportunities within in it has meant he is keen to support others thinking of switching careers.

Amenity land for sale in Enderby

READINGS Property Group are offering for sale a parcel of amenity land in the heart of Enderby.

The land – at High Street, Enderby, Leicester LE19 4AG –has an estimated area of 0.11 acres and fronts on to The Nook.

In the opinion of the selling agents, the land could possibly be developed, subject to planning consent and the negotiation of an access from The Nook.

Offers around £45,000 are invited. For more information, contact Readings on 0116 222 7575.

22 Leicestershire BUILDER Magazine • APRIL 2023 • Tel: 01530 244069 • EMAIL: INFO@BUILDERMAGAZINES.CO.UK I try to play it cool with women by pretending not to notice when they’re not noticing me.
Don’t forget to send us your news. Email: info@ buildermagazines. co.uk Thanks!

RESIDENTIAL DEVELOPMENT SITES FOR SALE

Lower Moor Road, COLEORTON, Leicestershire LE67 8FN

106 Sports Road, GLENFIELD, Leicester LE3 8A J

Ÿ Planning Permission 18/00386/VCU and 18/01237/REM

Ÿ Consent for 3 detached dwellings

Ÿ 1 x 4-bed and 2 x 3-bed

Ÿ Additional land included

PRICE ON APPLICATION

Ÿ Planning Permission 20/0748/FUL (implemented)

Ÿ Consent for 3 detached dwellings

Ÿ 1 x 4-bed and 2 x 3-bed

PRICE ON APPLICATION

202 Loughborough Road, MOUNTSORREL, Leicestershire LE12 7AX

Ÿ Planning Permissions P/18/1747/2 and P/18/1032/2 (both implemented)

Ÿ Consent for 4 detached dwellings

Ÿ 1 x 3-bed and 3 x 3-bed dormer house types

PRICE ON APPLICATION

All enquiries, please email Will Shattock on wjs@apbleicester.co.uk or James Phillips on jmp@apbleicester.co.uk or call the office on 0116 254 0382

APB Property Consultants
Ground Floor, Blaby Hall, Church Street, Blaby, Leicester LE8 4FA
Will Shattock James Phillips

CHARLTON GRAY HOMES

LIMITED (c/o Agent: AnnaLouise Jardine, Copper Beech Architecture, 21 Mallows Drive, Raunds, Northants. NN9 6SE)Change of use and conversion of existing former business premises on ground floor (tool hire shop) to 2no 2-bedroom flats – at 11 Washbrook Road, Rushden, Northants. NN10 9UY.

MR & MRS PAUL AND HELEN

HUGHES (c/o Agent: Richard Wedge, Blueprint Architectural Design, 5 Blotts Barn Business Centre, Raunds, Northants. NN9 6NS) – Change of use from nursery to residential; residential development of 4 dwellings including access, parking and amenity space – at Jack and Jill Nursery, Moor Road, Rushden, Northants. NN10 9TP.

CAUSHAJ BROTHERS PROPERTY

(c/o Agent: Jon Sidey, Sidey Design Architecture, 10 Market Square, Higham Ferrers, Northants. NN10 8BT) – Change of use of former bank with four-bedroom flat to retail with 6 one-bedroom flats including demolition of single storey element and extension to second and third floors, access, amenity space and parking – at Bank, 133 High Street, Rushden, Northants. NN10 0NX.

South Derbyshire

MR HAMMOND (c/o Agent: Mrs Elizabeth Rhodes, Swain Architecture Ltd, Allen Suite, Mohan Business centre, Tamworth Road, Long Eaton, Nottingham NG10 1BE) – Demolition of existing storage building and construction of two storey building to create six bed and breakfast rooms and associated house keeping space – at 11 The Green, Willington, Derbyshire DE65 6BP.

DOVE VALLEY PARK LIMITED

(c/o Agent: Alice Henderson, Asteer Planning LLP, Mynshulls House, 14 Cateaton Street, Manchester) - |Erection of 2 employment buildings at Plot 1 with associated landscaping, drainage, car parking, refuse stores and other infrastructure – at Dove Valley Park, Park Avenue, Foston, Derbyshire DE65 5BG.

Rushcliffe Borough

CARTER (c/o Agent: Mr Liam Swaby, ARC Design Studio, First Floor, Western House, Western Street, Nottingham NG1 3AZ) –Erection of 5 dwellings – at 42 Wilford Lane, West Bridgford, Nottingham NG2 7RL.

Investment and refurbishment opportunities for sale with H&H

WITH DEVELOPMENT opportunities gaining significant attention across the region, it is exciting to note the Howkins & Harrison have three properties live in their online auction house at present.

Details of the lots, helpful information about online auctions and bidding is available by visiting https://howkinsandharrison.co.uk/online-auctions/

The properties are:

• 32 NEW STREET, LUTTERWORTH: a spacious, mid-terrace property within walking distance to Lutterworth town centre. The property boasts three double bedrooms, a large sitting room, separate dining room and a garage to the rear. A great pick for investors as there are tenants in situ who would like to remain following the sale. With minimal work needed, this property would suit a landlord looking to extend their portfolio.

• 2 GLADSTONE STREET, LUTTERWORTH: a three bedroom end terrace residential property with garden to the rear which is in need of complete renovation, within walking distance of Lutterworth town centre. This property is again ideal for an investor looking for rental properties or for someone looking for a value property to renovate for resale.

• FORMER TOWN COUNCIL OFFICES, ATHERSTONE: An exciting opportunity to acquire a property with two separate planning permissions, one for residential and one for commercial. The property currently has planning permission for the demolition of the existing building and construction of a two-storey building with offices and a meeting room. There is also a further planning permission for the conversion of the building to a single two bedroom dwelling. Plans for both applications can be found in the property particulars online.

The market for properties in need of renovation and for rental properties is active and Howkins & Harrison are experiencing high levels of interest in these properties. Their online auction system is attracting interest be that for land, development land, plots or renovations.

‘We are looking to increase our online auction offering and are seeing significant success with those already listed. Our platform has a number of systems in place that allow us to provide the in-person auction benefits without the need to attend. Our clients are delighted with the outcome and the level of control and surety that the online, automated system provides,’ explains Anna Meynell, Head of Auctions at Howkins & Harrison.

If you have a property or land you are looking to sell ad would like to speak to a member of the team about the opportunities that auctions provide, Anna would be delighted to hear from you oby email: Anna. meynell@howkinsandharrison.co.uk or phone: 01530 877977.

Water-damaged Loughborough semi for sale by auction

SDL PROPERTY AUCTIONS are offering for sale BY AUCTION a threebed semi-detached house which has suffered water damage due to a leak in the roof or pipe in the loft space.

The property – 205

Hermitage Road, Loughborough, Leics. LE11 4PD – had recently undergone a refurbishment with a new kitchen, bathroom, décor and a full re-wire. Most of the works are now required again. The property benefits from gas central heating and upvc double glazing.

The property is being sold as seen, to include brand new appliances still in packaging in the kitchen.

For sale BY AUCTION on Thursday 27th April 2023 – 10am start.

Guide Price: £100,000+ plus fees.

For more information, visit the website at www.sdlauctions.co.uk

IMA Architects achieve global BIM certification

LEICESTERSHIRE-BASED architects, IMA Architects, has achieved the leading global certification within a specialist area of architecture and construction, Building Information Modelling (BIM).

The company has achieved ISO 19650, the most significant global information management and BIM certification available today. This has been secured following an in-depth assessment of IMA’s knowledge of BIM, its management and IT systems, and how the use of BIM has been implemented successfully on client projects.

ISO 19650 is an international standard that regulates the management of information across the full lifecycle of a building using BIM. It defines collaborative processes for the effective management of information throughout the delivery and operational phase of the building. Significantly, ISO 19650 is recognised in both the UK and USA.

IMA has successfully implemented BIM technology across a range of client projects, including the recent office development at Ednaston Business Park for Clowes Developments.

New strategic development partner sought by Derby City Council

DERBY CITY Council is seeking to develop a longterm partnership with a strategic development partner to drive forward key regeneration sites within the city centre, ensuring that current momentum is maintained and leveraging the full potential of Councilowned assets.

If approved at Cabinet, expressions of interest to establish the level of interested partners are expected to open, with invitations to bid being issued in April 2023. It is anticipated that a strategic development partner will be selected in late Summer 2023. Derby is a city of growth and economic significance, representing a regional economy of around £15bn, and a key centre of excellence in advanced manufacturing.

24 Leicestershire BUILDER Magazine • APRIL 2023 • Tel: 01530 244069 • EMAIL: INFO@BUILDERMAGAZINES.CO.UK I wonder how many of those cocaine-sniffing dogs have to go to rehab.
MAKITA LED SITE LIGHT SPECIFICATIONS: ■ Powered by AC or 18v Batteries ■ 360 Degrees Adjustment ■ Twenty 0.5W White-Light LEDs ■ Power Supply Cord 2.5m ■ 110v & 240v Available £ 74.99* TD CODE: DML805 £ 224.99* TD CODE: DML810 SPECIFICATIONS: ■ Powered by AC or 18v Batteries ■ Max 5,500 Lumens ■ 3 Brightness Settings ■ Adjustable Illumination Area IP54 Certified Terms and Conditions apply, ask for details. *All prices exclude vat at the prevailing rate. Offers available while stocks last. E&OE STIHL PETROL BLOWER SPECIFICATIONS: ■ Equipment Round Nozzle / Flat Nozzle ■ Performance 0.8kW ■ Tank Volume 0.44 Litres £ 214.99* TD CODE: BG86C-E STIHL Ergostart HUSQVARNA 14” CHAINSAW £ 129.00* TD CODE: 120-MK2-14 SPECIFICATIONS: ■ Power Output 1.4 kW Maximum Power 9000 RPM ■ 14” (350mm) Bar MILWAUKEE M12 SDS ROTARY HAMMER £ 164.99* TD CODE: M12CH-202B KIT INCLUDES: ■ M12CH-0 SDS Rotary Hammer 2 x M12 2.0Ah Batteries ■ Battery Charger ■ Carry Bag MILWAUKEE M18 ONEKEY TWIN PACK £ 389.99* TD CODE: M18ONEPP2A-502X KIT INCLUDES: ■ M18ONEPD Combi Drill ■ M18ONEID Impact Driver ■ 2 x 5.0Ah Batteries ■ M12-18FC Charger ■ Carry Case FREE LOCAL DELIVERY Contact your local branch LEICESTER 0116 266 2456 LOUGHBOROUGH 01509 267 377 NOTTINGHAM 0115 963 5521 New look, same great values Terratruck delivers excellence, quality and integrity as one of the UK’s largest power tool supply companies. MAKITA LED UPRIGHT AREA LIGHT www.terratruck.com Tool Sales, Hire & Repair

MR R WHITING (c/o Agent: Marcus Tams, Red Sky Architects, 29 Bridgford Road, West Bridgford, Nottingham NG2 6AU) – Demolition of existing house and garage and erection of 3 new dwellings – at 222 Loughborough Road, Ruddington, Nottingham NG11 6NX.

UNNAMED APPLICANT (c/o Agent: George Machin, GraceMachin Planning & Property, 2 Hollowstone, The Lace Market, Nottingham NG1 1JH) – Outline application for the erection of 2 detached dwellings – at land at Former Stackyard, Church Gate, Clipston on the Wolds, Notts.

MR STEVE KEATING (c/o Agent: Miss Caroline Richardson, Aspbury Planning Ltd, 20 Park Lane Business centre, Park Lane, Nottingham NG6 0DW) – Outline application for residential development of up to 75 dwellings – at land north east of Lees Barn Road, Radcliffe on Trent, Nottinghamshire.

MR PETER BARLOW (c/o: PR & V Barlow & Sons, Sycamore Farm, Main Road, Shelford, Nottinghamshire NG12 1EE) –Agricultural buildings converted to office space and commercial storage – at Sycamore Farm, Main Road, Shelford, Nottinghamshire NG12 1EE.

MR D CHEVELEY (c/o Agent: Ms Caroline Chave, Chave Planning, Enterprise Centre, Bridge Street, Derby DE1 3LD) – Demolition of existing outbuildings, formation of access, construction of 36 dwellings and provision of open space – at 211 Loughborough Road, Ruddington, Nottingham NG11 6NY.

SPRINGBOURNE CEO SEES CONFIDENCE RETURNING IN PROPERTY MARKET

THE CHIEF EXECUTIVE of award-winning Midlands builders Springbourne Homes has signalled an upturn of confidence in the property market.

Springbourne chief executive Lee Harris says the Leicestershire firm is now experiencing a far more positive response from fellow developers, lenders and homebuyers.

Harris has been monitoring developments since last year’s political turmoil and dramatic economic downturn created a crisis of confidence amongst many housebuilders, suppliers and lenders.

Lee explained: “We needed a positive period of recovery after the Covid pandemic but instead we’ve experienced multiple changes in political leadership, disastrous mini budgets, the war in Ukraine and unstable economics.

“Inflation and interest rates have spiralled as a consequence and a huge amount of lending deals were quickly withdrawn from the market as appetite quickly shifted away from development funding into secure rental markets. That’s inevitably had a negative impact on housebuilding which has followed through to the many suppliers and contractors involved in the industry. Now, as those uncertainties and anxieties calm, I’m expecting the lenders to return and the housing market to re-boot and revive this Spring.

“Interest rates and inflation appear to have peaked with both predicted to fall over the next 18 months and I feel confidence in the property market is already returning. We’ve noticed it already at Springbourne Homes. We’ve been inundated with new land opportunities, the funders are back on the scene and we have potential buyers chasing our next developments before we have even broken ground.”

Lee’s positivity about an upturn in the property market is mirrored by Springbourne’s ambitious plans for 2023, commencing with the construction of 29 new luxury homes in a countryside setting just south of Melton Mowbray.

Springbourne also has planning permission for the construction of eight luxury homes at The Coppice in Burbage, near Hinckley, and for a stunning bespoke residence in the heart of Cornish fishing village, Port Isaac - home of the popular Doc Martin TV series.

Plot and cottage in Thoroton

RICHARD WATKINSON & PARTNERS are offering for sale an individual building plot and a period cottage for conversion.

The plot – at the rear of Shelton Cottage, Main Street, Thoroton, Nottinghamshire NG13 9DS – extends to approximately 0.3 of an acre. Planning permission (Rushcliffe ref: 21/02957/FUL) was approved in November 2022 for a contemporary dwelling of around 2,900 sq.feet., together with conversion of the original cottage.

Guide Price: £500,000.

For more information, contact Richard Watkinson & Partners on 01949 836678 or email: bingham@ richardwatkinson.co.uk

Bosworth plot

Improvement Work Begins on Leicester City Centre Bridge

CONSTRUCTION WORK has started on a new road bridge and walkway on Watkin Road in Leicester city centre, crossing over the Grand Union Canal and Old River Soar.

The bridge is being delivered as part of the planning agreement for Freemens Meadow, a completed riverside development of 589 homes built across six phases by Barratt Homes, which were delivered between 2004 and 2017.

The construction of the new bridge – which will take place over a 40-week period – will be constructed in two phases to allow full-time access for vehicles and pedestrians during this period.

Funded by Barratt Homes, the new bridge will improve the current access to the development, and will be built in accordance with current highway standards for its adoption by Leicester City Council Highways.

Barratt Homes has appointed a specialist contractor, Danaher and Walsh Limited, to undertake the works on its behalf.

Mark Cotes, Managing Director at Barratt Homes North Midlands said: “The completion of our riverside development, Freemens Meadow, saw significant improvements in Leicester’s urban environment and provided high quality new homes to local people.

“We have been working closely with a team of design consultants, statutory consultees, local businesses and Leicester City Council to bring forward proposals to replace the bridge, which was part of the planning agreement back in 2002.”

26 Leicestershire BUILDER Magazine • APRIL 2023 • Tel: 01530 244069 • EMAIL: INFO@BUILDERMAGAZINES.CO.UK I
my car.
called roadside assistance, but they didn’t want to hear about my problems unless it had to do with
Bu d ng P ot Rea Of Shel on Cottage Ma n S t t T h N t t g h h N G 1 3 9 D S G u i d e P r i c e £ 5 0 0 0 0 0 Te 01949 836678
Springbourne Homes chief executive Lee Harris

Edwalton site for 9 dwellings

FHP (Fisher Hargreaves

Proctor Ltd) are offering for sale a prime residential development site at 274 Melton Road, Edwalton, Nottinghamshire NG12 4DD.

The 1.5 acre site is of a regular shape with two entry points to Melton Road. It has a frontage to Melton Road of 285 feet and comprises a plot with a bungalow, plus a field previously used for the sale of Christmas trees each year.

Outline planning permission (ref: 22/01106/OUT) exists for the development of 9 six-bedroom executive houses. Offers over £3,000,000 are invited.

For more information, or to arrange a viewing, contact David Hargreaves at FHP on 07876 396003 or email: davidh@fhp.co.uk

Site for 10 dwellings in Scropton

BAGSHAWS are offering for sale a 1.56 acre residential development site with Outline Planning Permission (ref: DMPA/2019/1198) for up to 10 dwellings.

The site – Off Scropton Lane, Scropton, Derbyshire DE65 5PP – was previously used for farming, with main sheds already demolished. The site is currently a mixture of hardcore, with some areas of concrete and grassland. There is presently no perimeter fencing around the site, and access is gained off Scropton Lane.

Offers in excess of £1,100,000 are invited.

For more information, contact Bagshaws on 01889 562811 or email: Uttoxeter@bagshaws.com

Leicestershire BUILDER Magazine • APRIL 2023 • Tel: 01530 244069 • EMAIL: INFO@BUILDERMAGAZINES.CO.UK 27
Location Gallery Contact 274 Melton Road I Edwalton I Nottingham NG12 4DD Residential Development Site: 1.5 acres Location The site is situated on Melton Road in Edwalton, one of Nottingham’s most sought after and high value residential area . Nearby West Bridgford town centre is home to a variety of quality independent shops together with the likes of M&S Simply Food, Boots, Costa Coffee, Caffè Nero, Cote and Giggling Squid. Close to the site is the Notcutts Garden Centre, Aldi and Costa Coffee, amongst others. There are buses to a variety of Private Schools including Nottingham High School, Nottingham Girls High School, Loughborough Grammar and Trent College, with highly rated state schools in the catchment area. The Site The site is of a regular shape with 2 entry points to Melton Road. It has a frontage to Melton Road of 285’ and comprises a plot with Bungalow and a field previously used for the sale of Christmas Trees each year. Tenure Freehold.
The
trouble with an all-day breakfast is that you’ve got to eat it so slowly.

Mental health in homebuilding event hosted in parliament

Site for 50 dwellings in Long Bennington

THE HOME BUILDERS Federation (HBF) has hosted a parliamentary reception to raise awareness around mental health issues in the construction workforce.

The event, sponsored by Dean Russell, the Member of Parliament for Watford, took place on Wednesday 22 February. It is part of HBF’s work to breakdown the stigma associated with poor mental health and to highlight the support available within the industry.

People working in house building are amongst the worst affected by mental health issues. Construction workers are nearly four times more likely to take their own lives compared to other sectors* and two do so every single working day of the year. The event saw the publication of a new report, highlighting the huge amount of work going on within the industry to help address these shocking statistics.

MPs from across the political spectrum attended the event alongside home building employees and representatives from industry mental health charity the Lighthouse Club. It provided an opportunity to discuss the steps the industry is taking to support workers and highlight the resources available, allowing MPs to help raise awareness in their own constituencies.

Among the industry representatives were multiple Mental Health First Aiders (MHFAs), who are trained in how to signpost their colleagues to appropriate mental health support. MHFAs play a vital role in helping to build a positive mental health culture and support network both at a sitelevel and within a company itself.

To date, the industry has trained over 1,000 MHFAs, with many companies planning to train even more. Home builders are also supporting their workforce in a number of other ways including through mental health awareness training, employee assistance programmes (EAP) and toolbox talks. Further information on what the industry is doing to support its workforce can be found in HBF’s new report, which was launched at the reception.

HBF’s Executive Chairman, Stewart Baseley, who spoke at the event alongside Jo Mann, the Chair of HBF’s Mental Health Group, Bill Hill, CEO of the Lighthouse Club, and Dean Russell MP said: “I am delighted that so many industry representatives and Members of Parliament were able to join us to raise awareness of mental health issues in construction.

“This is a key priority for our industry, and whilst significant progress is being made there is much more to do. Over the coming months, HBF’s Mental Health Group will be doing all it can to help raise awareness among site-based staff and the industry’s supply chains of the fantastic support available to them”.

More on HBF’s Mental Health Awareness Campaign can be found on the HBF website (www.hbf.co.uk)

RICHARD WATKINSON & Partners are offering for sale a parcel of residential development land for up to 50 dwellings at Main Road, Long Bennington, Newark, Notts. NG23 5EH.

The 5.68 acre site has a frontage of approximately 40 metres to Main Road, and an average depth of 190 metres. It comprises one large field, largely flat, and currently used for agriculture.

The site has outline planning permission (ref: s20/0775) for up to 50 dwellings. Guide Price: £2,500,000.

For more information, or to arrange a viewing, contact Richard Watkinson & Partners on 01636 611811 or email: newark@richardwatkinson.co.uk

Planning for sustainable drainage crucial following Government’s incoming rule change

FOLLOWING THE government’s announcement to make sustainable drainage systems (SuDS) mandatory across England, ACO Water Management is supporting urban planners, architects and civil engineers to embed sustainable drainage into their designs.

SuDS will become a legal requirement in 2024 after a recent government review. Making SuDS a necessary obligation aims to help further reduce surface water flooding and water pollution, and lower the pressure on sewerage systems that often get overwhelmed in heavy rainfall events.

Regulations and processes are currently being established but SuDS are expected to be compulsory for any new development, building or structure over 100sqm. It is anticipated that SuDS plans will need to be submitted to SuDS Approvals Bodies (SABs), which will fall under the Lead Local Flood Authority (LLFA).

However, ACO Water Management, a leading drainage and water management manufacturer, warns firms not to delay in acting. Instead, it advises to start planning ahead now for the incoming changes, especially given a knowledge and skills gap across the industry.

Sam Hawkins, National Specification Manager at ACO, said: “This rule change by the government is a welcome one and will help to address the challenges we’ve seen recently with flooding. More importantly, mandatory SuDS will ensure we can start to mitigate the effects of climate change, biodiversity loss and habitat fragmentation.

“While it seems far off, it’s vital that everybody within the construction industry pulls together now rather than ‘wait and see’, otherwise we could see residential and commercial projects being held up and exacerbating current issues we’re seeing in the sector. This is especially as we know from our own research that there are different levels of awareness around SuDS requirements, and how to implement SuDS that perform well. At ACO, we’re here to help overcome these challenges, and our team is ready to help with design and specification to ensure compliance.”

The new regulations will come about through implementation of Schedule 3 of the Flood and Water Management Act 2010, which is already in force in Wales.

To find out more about ACO Water Management and to read its highways drainage report, please visit https://www.aco.co.uk/the-route-to-surfacewater-management-report

28 Leicestershire BUILDER Magazine • APRIL 2023 • Tel: 01530 244069 • EMAIL: INFO@BUILDERMAGAZINES.CO.UK I was in this car wash and I started foaming at the mouth. I though, I’m not having this, so I cycled out again.
R e s i d e n t i a l D e v e l o p m e n t L a n d f o r u p t o 5 0 D w e l l i n g , M a i n R o a d , L o n g B e n n i n g t o n , N e w a r k N G 2 3 5 E H £ 2 5 0 0 0 0 0 T e l : 0 1 6 3 6 6 1 1 8 1 1
RECYCLED AND QUARRIED AGGREGATES DELIVERED TO YOU LOCALLY We Offer A Range Of Aggregates From Type 1 Recycled & Granite To Sharp Sand & Ballast: � Small And Large Loads � Delivered Throughout The Leicester Area � Order Direct From Our Website WWW.AGGRECYCLE.CO.UK 0116 261 9733 LEICESTER URBAN QUARRY 92 SYSTON STREET EAST LEICESTER LE1 2JW FULLY CERTIFIED TO WRAP STANDARDS ISO 14001 Management Certification ISO 9001 Quality Management Certification

Three development sites for sale with APB

APB (LEICESTER) PROPERTY CONSULTANTS are offering for sale three residential development sites which will be of interest to local builders:

• LOWER MOOR ROAD, COLEORTON, LEICESTERSHIRE

LE67 8FN: A parcel of land with planning consent (ref: 18/00386/VCU and 18/01237/REM) for 3 detached dwellings (one four-bed and two threebed), plus additional land.

Price on application.

• 106 SPORTS ROAD, GLENFIELD, LEICESTER LE3 8AJ: A parcel of land with implemented planning permission (ref: 20/0748/ FUL) for 3 detached dwellings (one four-bed and two three-bed). Price on application.

• 202 LOUGHBOROUGH ROAD, MOUNTSORREL, LEICESTERSHIRE LE12 7AX: Land with two implemented planning permissions (refs: P/18/1747/2 and P/18/1032/2) for 4 detached dwellings (one three-bed and three three-bed dormer house types).

Price on application.

For more information, email Will Shattock at APB (Leicester) at wjs@apbleicester.co.uk or phone the office on 0116 254 0382.

Information for employers from HMRC

ON 1 APRIL 2023, the government will increase the National Living Wage (NLW) for workers aged 23 years and over by 9.7% to £10.42. This 92 pence increase is the largest ever cash increase to the NLW. Changes to the other National Minimum Wage (NMW) rates can be found on GOV UK.

How to make sure you are paying the new rates correctly

Paying the NMW can be more complex than just paying your workers the right rate. Some common causes of underpayment include:

• deductions and payments

• unpaid working time

• incorrect use of the apprenticeship rates

Last year, we recovered £16.8 million arrears for 155,000 workers and issued a total of 696 penalties amounting to £13 million.

Sakina Oxley

National Minimum Wage team

Bond Wolfe launches £10 million development division

BOND WOLFE, the Birmingham-based property specialists, have launched a new development division with £10 million in cash earmarked for new build and part-built development projects.

The company is calling on lenders, receivers and property agents across the Midlands to get in touch and explore the opportunity of taking forward stalled projects.

Chief executive Gurpreet Bassi said: “Against a backdrop of rising interest rates and construction costs, Bond Wolfe will look to acquire distressed part-built residential projects and new build opportunities to complete the construction and retain for long term rental or re-sale.”

Initially, Bond Wolfe has set up a war chest of up to £10 million and will operate without bank debt.

The decision follows a report by the Federation of Master Builders (FMB) that highlights the main barriers from stopping small to medium local housebuilders from delivering homes.

Aside from the usual constraints of lack of available land and a tortuous planning process, the report flags up access to finance as the most significant finance-related issue, by far.

Gurpreet Bassi said: “This is why we are delighted to be launching a development division to capitalise on market opportunities that arise through the onset of rising interest rates with the view to retaining assets for income or resale to help aid the UK housing shortage.

“We welcome opportunities from lenders, receivers and agents across the Midlands area.”

The FMB report found that 41% of respondents cited sites they have an interest in that are stalled for finance-related reasons.

Mr Bassi added: “We understand the hurdles that developers face – not just financial, but also supply chain, skills shortages and surges in material prices - but we can take the long view.”

Bond Wolfe celebrates 40 years in 2023, and recorded record revenues for 2022, finishing the year on over £210 million, a 20% increase on the 2021 result.

Commercial agency also set a new high, agreeing £60 million worth of deals across the UK, with auction sales totalling £150 million.

Anyone interested in teaming up with Bond Wolfe can contact Gurpreet Bassi on 0121 312 1212 or email gbassi@bondwolfe.com

• By Post to SUBSCRIBERS and a rotating free mailing list (2,500 copies)

• Through trade counters of local merchants (approx. 1,000 copies)

SUBSCRIPTIONS: £20 PER YEAR (No VAT) TO SUBSCRIBE: CALL 01530 244069 and leave your details, or subscribe via our Website. We’ll invoice you later.

is made to ensure the accuracy of information in this magazine, but no liability can be accepted for loss or inconvenience caused as a result of error or omission. Builder Magazines reserves the right to amend, shorten or refuse to publish articles and/or advertisements submitted for publication. All property details contained within this magazine are to be regarded as being for outline guidance only. All potential interested parties are requested to check individual availability of premises for accuracy of details with the relevant selling agents before proceeding further.

For details of our Advertising Rates: visit www.buildermagazines.co.uk

30 Leicestershire BUILDER Magazine • APRIL 2023 • Tel: 01530 244069 • EMAIL: INFO@BUILDERMAGAZINES.CO.UK My wife said we needed to communicate more. I knew she was right so I gave her my email address.
Published
Builder Magazines
Box 8, Markfield, Leics. LE67 9ZT Tel: (01530) 244069 Email: info@buildermagazines.co.uk Web:
a
Leicestershire Builder Magazine
By:
PO
www.buildermagazines.co.uk Over 3,500 copies distributed every month across Leicestershire & Rutland by
combination of:
Printed
Ellistown by: Norwood
Published on 1st of each month. Booking
15th of each month The opinions expressed by contributors are not necessarily those of the Editorial/Production Team. The inclusion of any group or organisation in this publication does not necessarily imply a recommendation of its aims, methods or policies. Builder Magazines cannot be held responsible for the information disclosed by advertisements, all of which are accepted in good faith. Every effort
in
Press
Deadline:
Gurpreet Bassi

£60m Redesign For Leicestershire County Cricket Club Ground Planned

AS REPORTED IN THE LEICESTER MERCURY, a £60 millionplus masterplan to transform Leicestershire County Cricket Club ground over the next five years has been revealed. Management hope to redesign the stands at the Uptonsteel County Ground to take capacity from the current 6,000 to 10,000 or more, and to open up the site to more events on the back of recent concerts by Elton John and Little Mix and an upcoming summer performance by Tom Jones. The club already calls itself Leicester’s “premier outdoor venue” with a 19,999 capacity for concerts and shows. In addition, the 15 acre Grace Road site, just outside Leicester city centre, could bring in potential tenants such as retirement or assisted living homes, and shops, to generate extra income for the club.

Another element of the plans could see the club working with the three local universities – Loughborough, De Montfort and Leicester – to build an Academy of Cricket, offering courses including the world’s first MBA in cricket management.

Leicestershire BUILDER Magazine • APRIL 2023 • Tel: 01530 244069 • EMAIL: INFO@BUILDERMAGAZINES.CO.UK 31 My favourite overweight 70s band were the Obesity Rollers. Tel:01162853777 LeemaTechnologiesLimited. TheWarehouse,1aStamfordStreet,LeicesterLE16NL

New primary school for Wigston as part of estate with 650 homes

Deposit Unlock

THE HOME building industry’s low deposit mortgage scheme, Deposit Unlock is helping hundreds of people to realise their dreams of homeownership and now has 50 builders signed up with an increasing choice of lenders on board.

The 5% deposit mortgage scheme was developed by the Home Builders Federation in partnership with major homebuilders and reinsurance broker, Gallagher Re.

The scheme was launched in response to the ending of Help to Buy in England and aims to support more buyers get onto or move up the housing ladder by making homeownership more affordable.

Deposit Unlock works by offering participating mortgage lenders protection on mortgage products so they can lend to consumers at 95%.

This means first time buyers and existing homeowners can use Deposit Unlock to purchase a new-build home worth up to £833,000 with a 5% deposit and a competitively priced mortgage product.

AS REPORTED IN THE LEICESTER MERCURY, plans to build hundreds of new homes on fields near Wigston have taken a step forward. Council officials have agreed to give outline planning permission to the 101-acre scheme which will see a brand new primary school built.

David Wilson Homes and Barratt Homes submitted an application to build 650 new houses on farmland at the south east of Wigston, around a link road connecting Newton Lane and Welford Road.

Planning officials from Oadby and Wigston Borough Council have granted the developers outline planning permission for the estate. A ‘reserved matters’ application will need to be submitted to the council within the next two years by the developers, which fills in the specifics of the original application. These include things such as house designs, parking, pedestrian access and drainage.

A new local centre, primary school site and link road are also featured in the plans to develop the area near Welford Road. Farm buildings that currently sit on the site will be demolished, to make way for the new estate as well as a five-and- a-half acre employment area, shops and a new community building.

The number of “affordable” homes that will feature in the estate is not currently clear, but the provision for new housing developments in Wigston requires 20 per cent. This would mean 130 homes would be deemed “affordable”.

House for renovation plus building plot for sale in Burton Joyce

LESLEY GREAVES Estate Agents are offering for sale a property for renovation, plus a plot with outline planning permission for a single dwelling, at Nottingham Road, Burton Joyce, Nottingham NG14 5BD.

The existing property offers versatile accommodation which is in need of a full renovation . The new property is to comprise a kitchen diner, wc and cloaks cupboards, living room and three en-suite bedrooms. Guide Price: £650,000.

For more information, or to arrange a viewing, contact Lesley Greaves Estate Agents on 0115 987 7337 or email: sales@lesleygreaves.co.uk

The scheme is now available on homes of almost 50 major and SME home builder brands, with an increasing number set to join the list.

This update comes on the back of research launched as part of New Homes Week (27 February to 3 March), which found 18% of people felt the top issue preventing them from buying a house was uncertainty over whether they would be able to secure a mortgage.

David O’Leary, Executive Director at HBF said: “Through Deposit Unlock homebuilders are making a significant investment in supporting people to access competitive mortgage products that would otherwise be unattainable.

“The scheme began with one lender and 17 home builders. It has now extended across a range of mortgage lenders and HBF members nationally.

“Importantly, against a challenging financial backdrop, it’s providing much needed support to enable more families to achieve homeownership.”

Steven Rance, Managing Partner of mortgage indemnity reinsurance at Gallagher Re, said: “Deposit Unlock is a great example of crossindustry collaboration for social good. It has seen homebuilders, lenders and insurers come together to create and deliver a long-term, sustainable scheme that will allow more people to realise their dream of homeownership.

“Even in today’s tough financial environment, competitively-priced lowdeposit mortgage products for new build homes, with all their energy performance benefits, are now more available throughout the UK thanks to the scheme. And, as we seek to maximise choice for home buyers, it’s fantastic to see the number of house builders and lenders active under Deposit Unlock growing daily.”

More information on Deposit Unlock can be found at deposit-unlock.co.uk and on participating developer and lender websites.

32 Leicestershire BUILDER Magazine • APRIL 2023 • Tel: 01530 244069 • EMAIL: INFO@BUILDERMAGAZINES.CO.UK I normally play the trumpet with some buxom ladies. I am part of a big bras band.

Boiler Upgrade Scheme is ‘failing to deliver’

THE BOILER UPGRADE SCHEME (BUS), launched in May 2022, is failing to deliver on its objectives, following a disappointingly low take-up of grants, the House of Lords Environment and Climate Change Committee has concluded. Given the urgent need to reduce emissions from our homes, changes must be made swiftly.

In a letter sent to Lord Callanan, Parliamentary Under Secretary of State for Energy Security and Net Zero, in February the Committee warns that if the current take-up rate continues, only half of the allocated budget will be used to help households switch to lowcarbon heating systems and a healthy market of installers and manufacturers will not be in place in time to implement low-carbon heating policy measures smoothly. Therefore, the Government’s 2028 target of 600,000 installations per year is very unlikely to be met.

The Committee has found:

• public awareness of lowcarbon heating systems is very limited, and promotion of the BUS has been inadequate

• there is a shortage of heatpump installers & insufficient independent advice for homeowners

• Hydrogen is not a serious option for home heating for the short to mediumterm and misleading messages, including from the Government, are negatively affecting take-up of established low-carbon home heating technologies like heat pumps

• upfront costs are too high for many households, even with the help of the grant, making it impossible for low-income households to benefit from the scheme

• while heat pump running costs are becoming competitive with gas boilers in some modelling, progress is urgently needed through electricity market reform to ensure running costs are affordable.

The Committee is calling on the Government to:

• provide greater clarity to industry and consumers on feasible options for low-carbon home heating through a consistent policy framework, public communications, and householder advice

Former Coalville market hall site to be released for leisure use

• Key project within Coalville’s Regeneration

THE FORMER market hall site in Coalville could be transformed into a commercial leisure facility.

• roll over the remainder of the BUS first year budget into the second year and establish a review to consider extending the scheme

• correct the Energy Performance Certificates (EPC) methodology so that certificates properly reward households for making the switch to low-carbon heating and flawed EPC recommendations cease being a barrier to BUS eligibility

• upgrade the provision of Government advice, alongside recognising the role of independent retrofit coordinators, to help households navigate lowcarbon heating installations

• relax the requirement arising from Permitted Development Rights to site a heat pump a certain distance from neighbouring properties.

Baroness Parminter, Chair of the Environment and Climate Change Committee, said: “The transition to low-carbon heat is fundamental in the path to net zero, given that 17% of the UK’s greenhouse gas emissions come from our homes.

“The Government must quickly address the barriers we have identified to a successful take-up of the Boiler Upgrade Scheme in order to help grow the take up of low-carbon heating systems. It is vital they do so if we are going to meet our Net Zero ambitions.”

North West Leicestershire District Council (NWLDC), which owns the building, is currently marketing the site with the aim of attracting investment in Coalville.

Feasibility studies show that the location of the former market hall, which stands on the edge of the town centre next to the main car park, means that it is prime for re-use as commercial leisure activity, like a cinema.

The building has been empty since 2021, when the indoor market relocated to Marlborough Square. Now the council is looking for investors to transform the area, with the addition of a leisure attraction.

Whilst Coalville has a new leisure centre, a theatre, escape rooms, a gaming lounge and a range of independent and chain shops, as well as pubs, restaurants, bars and a nightclub, there are limited family leisure attractions.

Councillor Richard Blunt, Leader of NWLDC, said: “Coalville has a very active, growing population, and we are told over and over how people would love to see a cinema or similar attractions within the town centre.

“Through the Coalville Regeneration Framework, we’re looking to invest, or support investment in a range of schemes that will improve the town –this is one of the most prominent.

“If we can turn this empty site over to the private sector for investment in leisure, this can only be a good thing for the town.”

Formal offers to acquire the site are invited, with a deadline of 17 April. The council hopes to announce a preferred bidder for the site in late spring or early summer.

Allison Homes appoints Operations Director to lead creation of new East Midlands region

ALLISON HOMES has appointed Karl Edwards as its Operations Director for its newly created East Midlands region, covering Leicestershire, Derbyshire and Nottinghamshire.

Karl will focus on establishing a new office and team in the region, as the company seeks to drive forward its presence in this market. The office will be situated in Castle Donington, Leicestershire, in the centre of the region’s operational area, which runs from Chesterfield to Rugby.

Karl has a long career in the housebuilding industry, starting out as a joiner, moving on to become a Site Manager with Barratt Homes East Midlands and then spending most of his career to date in land, most recently as Senior Land Director at Gladman.

34 Leicestershire BUILDER Magazine • APRIL 2023 • Tel: 01530 244069 • EMAIL: INFO@BUILDERMAGAZINES.CO.UK My mum and dad always do things straight away. I call them my immediate family.
• • •
Tel: 01527 871 640 www.thomaslister.com • •
Key project within Coalville’s Regeneration
Tel: 01527 871 640 www.thomaslister.com
Karl Edwards, Operations Director for Allison Homes’ East Midlands Region

Bright future for local charity as work starts on day centre

Baxi to deliver training and added

installer incentives aligned with new Government scheme

BAXI HAS BEEN working alongside the Government to develop its new £5 million Heat Training Grant, designed to support 10,000 trainees to become low carbon heating experts with grants of up to £500 over the next two years.

Baxi has pledged to match the £500 Government grant with another £500 worth of Baxi Works loyalty points for installers who use the voucher to train and achieve Baxi’s BPEC accredited qualification.

Upon completion of the course and registration of the installer’s first air source heat pump, points can be redeemed against a range of rewards including gadgets, vouchers, tools and workwear.

THE FUTURE of a local charity is looking bright as work starts to build them a new home.

North West Leicestershire District Council (NWLDC) has provided land in Swannington to Hospice Hope so it can create a bespoke facility and continue its work supporting people with life limiting conditions. Local house builder Bloor Homes will carry out the building work at no cost to the charity.

Work started on site to build Bright Hope House on Monday 27 February, with the centre expected to open early 2024.

In 2019 Hospice Hope learned that they would have to move out of their current accommodation in Griffydam, so the trustees turned to the district council for ideas.

In response, the council agreed to lease some of its land – currently used to store spare wheelie bins – to the charity for a peppercorn rent. Bloor Homes have now started building the bespoke 6,000 sq ft facility at no cost to the charity.

Worksurfacing Industry for the

“This is a great scheme and we welcome the Government’s focus on skills, and its commitment to the installer community who are keen to participate in the transition to decarbonised heating in buildings,” said Jeff House, External Affairs & Policy Director at Baxi.

“The conversation on heat pumps has to move beyond purely product and must recognise the necessary industry change needed around specification, installation and maintenance – all of which will be addressed by the training programmes provided by us and others under the scheme. This is absolutely critical to gaining consumer confidence around new technology,” he added.

Baxi can deliver training through its own facilities in the Midlands and South East, and will make all course information and benefits available through the government’s linked web pages promoting the scheme to installers. Individuals who sign up to Baxi’s loyalty scheme will receive vouchers towards a heat pump or other purchases, up to the value of the training they have completed at a Baxi training centre, using the government grant.

For more information on Baxi air source heat pumps, visit: https://www. baxi.co.uk/products/air-source-heat-pumps

Advertising Rates in Leicestershire Builder

Leicestershire BUILDER Magazine • APRIL 2023 • Tel: 01530 244069 • EMAIL: INFO@BUILDERMAGAZINES.CO.UK 35
ADVERT SIZE Dimensions Price per Insertion Sixteenth of Page 47mm wide x 65mm high £22.50+VAT Eighth of Page 97mm wide x 65mm high £45.00+VAT Quarter Page 97mm wide x 130mm high £90.00+VAT Half Page 194mm wide x 130mm high £165.00+VAT Full Page (A4) 194mm wide x 268mm high £290.00+VAT 10% DISCOUNT if you advertise in 3 or more consecutive issues TO PLACE YOUR AD, call 01530 244069 or email: info@buildermagazines.co.uk SUBSCRIBE to Leicestershire Builder! Avoid the TRAUMA of missing an issue of Leicestershire Builder by SUBSCRIBING! It costs just £20 for 12 issues ... and that includes postage! Fill this form in and send it to us with your cheque for £20 made out to BUILDER MAGAZINES to: Builder Magazines, PO Box 8, Markfield, Leics. LE67 9ZT. YES - I WANT TO SUBSCRIBE!
............................................................................................
.......................................................................................... ........................................................................................................ ........................................................................................................ Don’t Miss Out! Seabrook Digital Solutions Ltd www.seabrookdigital.com Tel: 01455 889726 Mobile: 0772 309 2474 For more information, visit
Name:
Address
I’ve taken up speed reading. I can read ‘War and Peace’ in 20 seconds. It’s only 3 words but it’s a start.

Independent Timber Merchant with over 90 years experience

Hinckley:

Additional

Oak Feature Trusses Open Web Joists Roof Trusses Firebreak Spandrel Panels
Machining
Timber Timber Merchants Garden Buildings Delivery Service Available @harlowbros Harlowbros Trade & DIY Welcome Tel: 01530 516990 • Forest Business Park, Bardon Hill, Coalville LE67 1TU
Bespoke
Engineered
branches in
Nottingham -
Office: Tel: 01509 842561 • Hathern Road, Long Whatton, Leicestershire, LE12 5DE
Tel: 0116 2557966 • Unit 20 & 21, Oswin Road, Leicester, LE3 1HR
Burton-Upon-Trent, Derby and
see website for details: www.harlowbros.co.uk Head
Leicester:
Tel: 01455 245309 • Units 1 & 2, Barleyfield, Hinckley, LE10 1YE
Tel: 01530 832181 • Thornborough Road, Coalville, Leicestershire, LE67 3TH
Coalville:
See website for details www.harlowts.co.uk

Turn static files into dynamic content formats.

Create a flipbook
Issuu converts static files into: digital portfolios, online yearbooks, online catalogs, digital photo albums and more. Sign up and create your flipbook.