Centro de apoio e reintegração a população em situação de rua no Munícipio de Ribeirão Preto/SP

Page 1

CARP

Centro de apoio e reintegração a população em situação de rua no Município de Ribeirão Preto/SP

CARP

Plano de trabalho apresentado ao Centro

Universitário Barão de Mauá como parte dos requisitos para obtenção do grau de Bacharel em Arquitetura e Urbanismo.

Orientador: Dr. César Muniz

CENTRO UNIVERSITÁRIO BARÃO DE MAUÁ

Centro de apoio e reintegração a população em situação de rua no Município de Ribeirão Preto/SP Bruna Costa

CARP
TRABALHO FINAL DE GRADUAÇÃO BACHARELADO
EM ARQUITETURA E URBANISMO RIBEIRÃO PRETO/2022

Autorizo a reprodução e divulgação total ou parcial deste trabalho, por qualquer meio convencional ou eletrônico, para fins de estudo e pesquisa, desde que citada a fonte.

Silva, Bruna Costa da

CARP- Centro de Apoio e reintegração a população em situação de rua no Munícipio de Ribeirão Preto/SP/ Bruna Costa da Silva - Ribeirão Preto, 2022.

120p.il Trabalho de conclusão do curso de Arquitetura e Urbanismo do Centro Universitário Barão de Mauá

Orientador: Dr. Cézar Muniz

1. Morador em situação de rua 2. Apoio social 3. Reintegração população de rua I. Lima, Onésimo Carvalho de II. Título CDU 72

Bibliotecária Responsável: Iandra M. H. Fernandes CRB8 9878

AGRADECIMENTO

Agradecer ao tempo que fez com que tudo acontece-se da forma que tinha que ser, ao meu companheiro Bruno que partilhou e compartilhou os altos e baixos, a minha mãe que foi amiga, confidente, colo, acalanto e sempre me apoio muito, ao meu irmão e pai que vibraram com as minhas evoluções como pessoa e profissional. Agradeço também ao Renê, professor de maquete, amigo e confidente, aos amigos que fizeram parte de tudo isso, ao meu Orientador César que foi parceiro e amigo em todo processo e, por fim a Arquitetura, que me escolheu aos 10 anos de idade, andando pelas ruas de São Paulo, encantada por todas as variedades e formas de projetar, afinal a arte de arquitetar me transborda.

(...)

A gente sempre deve sair à rua como quem foge de casa, Como se estivessem abertos diaWnte de nós todos os caminhos do mundo.

Não importa que os compromissos, as obrigações, estejam ali... Chegamos de muito longe, de alma aberta e o coração cantando!

Mario Quintana, in: A cor do invisível, 1989

Resumo

Proporcionar núcleos que atenda necessidades par ticulares de cada indivíduo, com o intuito de orientá-lo, apoiá-lo e reintegrá-lo a sociedade e sair desta condição de rua, dando suporte ao uso dos espaços na cidade e tentan do trazer de volta a função da Praça, como um espaço de descanso e lazer.

Através de cursos voltados para reciclágem, espaços de acolhimento, apoio de saúde mental e física, espaços de convivência e interação, para que este indivíduo volte a se sentir pertencente a sociedade.

Abstract

Provide centers that meet the particular needs of each individual, with the aim of guiding, supporting and reintegrating them into society and leaving this street si tuation, supporting the use of spaces in the city and trying to bring back the function of Square, as a space for rest and leisure.

Through courses aimed at recycling, welcoming spa ces, mental and physical health support, spaces for coexis tence and interaction, so that this individual can feel like he/she belongs to society again.

LISTA DE FIGURAS

Figura 1 - Google imagem, 2022

Figura 2 - Imagem do Grupo SP Invisível, 2022

Figura 3 - Imagem feita pela autora, rua Gonçal ves Dias, Ribeirão Preto, 2022.

Figura 4 - Fonte: Assistente Social: Disponível em: https://www.ribeiraopreto.sp.gov.br/portal/ noticia/pessoas-em-situacao-de-rua:-o-resgate-da autonomia-como-ferramenta-de-reinsercao-social, 10/01/2022

Figura 5 - Google imagem, 2022

Figura 6 - Ilustração editada pela autora, loca lizando os espaços de atendimento mais próximo do lote, 2022

Figura 7 - Localização da área de intervenção em relação ao Centro - Quadrilátero Central. Fonte Mapa viário geral da PMRP. Adaptado pela autora, 2022.

Figura 8 - Imagens feita pela autora, sobre o en torno do lote, região da Vila Tibério, rua Cel. Luis da Cunha, Rua Rodrigo Alves e Rua Gonçalves dias, Ribei rão Preto, 2022.

Figura 9 - Implantação The Bridge a esquerda,

acima Planta Pavimento Térreo - The Bridge.

Figura 10 - Atendimento, dormitórios e espaço de convivência - The Bridge.

Figura 11 - Espaço de convivència - Bud Clark Commons

Figura 12 - Planta 1 e 2 - Bud Clark Commons

Figura 13 - Planta 3 e 4 - Bud Clark Commons

Figura 14 - Elevações - Bud Clark Commons

Figura 15 - área de convivência e circulaçãoBud Clark Commons

Figura 16 - Planta térreo - Rebridge

Figura 17 - Corte - Rebridge

Figura 18 - Área

Externa, fachada e plantas pávimentos superio res - Rebridg

Figura 19 - Google Earth. Adaptado pela autora, 2022

Figura 20 - Mapa Uso do solo

Figura 21 - Mapa clima

Figura 22 - Faixa Conceitua

Figura 23 - Organograma

Figura 24 - Plano preliminar de ocupação

Figura 25 - Mapa de equipamento urbanos e imagens dos equipamentos

Figura 26 - Imagem feita pela autora, Rua Gon çalves

Figura 27 - Imagem feita pela autora, Rua Rodri go Alves, Ribeirão Preto, 2022

Figura 28 - Imagem feita pela autora, Rua Cel. Luiz da Cunha, Ribeirão Preto, 2022

Figura 29 - Imagens feita pela autora, maquete de estudo volumétrico, 2022

Figura 30 - Imagens feita pela autora, maquete de estudo volumétrico, 2022

Figura 31 - Imagens feita pela autora, implanta ção 3D, 2022.

Figura 32 - Implantação em planta , 2022.

Figura 33 - Planta pávimento térreo e Cortes

Figura 34 - Planta pávimento superior e Cortes

Figura 35 - Cobertura e Cortes 3D

SUMÁRIO 14 INTRODUÇÃO 3.1 11111Justificativa Objetivos 18 28 31 PROCEDIMENTOS METODOLÓGICOS 3.1 Pesquis a teórica Pesquisa documental 32 34 38 POPULAÇÃO E ESPAÇO 3.1 C1.1 O olhar para a população em situação de rua 1.2 Relação indivíduo e espaço de acolhimento 1.3 Síntese 1.4 Uma oportunidade para a implantação do equipamento 1.5 Qualidade do espaço 40 41 42 48 52 54 2 3 1 3.1
56 PROPOSTA PROJETUAL 3.1 CO lugar e a implantação Legislação Clima e estratégia sustentável Partido Arquitetônico Partido estético-formal 76 77 79 80 82 84 6 O PROJETO CDiretrizes e Premissas Estudo volumétrico fisíco Diagramas Implantação Plantas baixa e Cortes Render 86 88 94 99 102 104 110 7 QUADRO DE ÁREAS REFERÊNCIAS BIBLIOGRÁFICA 3.1 126 128 LEITURA PROJETUAL The Bridge Homeless Assistence Center Bud Clark Commons Rebridge Welcome Cente Sintese das leituras projetuais 4 5 57 62 68 74
18
INTRODUÇÃO

A população em situação de rua tanto na esfe ra do indivíduo, quanto do grupo, traz problemáticas de grande amplitude de questões a serem analisadas e questionadas, uma vez que envolve questões sociais, econômicas, políticas e urbanísticas. “Renata Corrêa, secretaria de Assistência Social, destaca que as pesso as acolhidas podem participar de uma série de ativi dades nos abrigos, além de cuidar da alimentação e da higiene pessoal. “Foram abertas 100 vagas para aco lhimento, totalizando em Ribeirão 270 vagas. O Centro POP funciona como um local para que as pessoas fa çam sua alimentação, lavem a sua roupa, podem tomar banho, além de várias oficinas.”, disse.

Dentro deste cenário, o papel do arquiteto e ur banista é trazer em seus projetos formas de solucionar parcela desta problemática, com o objetivo de criar es paços voltados para dar apoio social e urbano.

“A participação dos arquitetos e urbanistas neste panorama é incipiente. Há que se per guntar qual o papel do arquiteto e do urba nista frente a está realidade: o fato de que existe uma parcela da população que habi ta a cidade e que não é contemplada pelos projetos urbanísticos inclusivos da mesma”.

(QUINTÃO;PAULA,2012,p.16).

“trata-se de indivíduos sem uma habitação e que satisfazem tal necessidade, seja procu rando uma instituição social, seja se apro priando e transformando o espaço público em moradia” (GIORGETT, 2006).

19
INTRODUÇÃO

Existem diversos grupos dentro dessa popula ção em situação de rua, com necessidades particulares e de vários setores, como questões básicas de higiene, alimentação e atendimento psicológico, dentre outros fatores sociais e inclusivos para cada perfil. Como dis tinguir os diferentes grupos dentro desta população? Esta é uma questão sobre a população em situação de rua que deve ser estudada, porém um ponto importan te a se levar em consideração é saber, qual segmento atender e como chegar nesse público de forma obje tiva.

Por meio de experiências em que estes indivídu os vivenciaram, surgem algumas resistências quanto a participar desses espaços de apoio, dados e depoimen tos são necessários para direcionar as problemáticas. Cada caso e cada necessidade deve ser direcionada conforme as necessidades desse indivíduo e como é impactado na sociedade.

“Mesmo o indivíduo que é morador de rua há muitos anos e, portanto, possivelmente assim continuará, não necessariamente dur ma nas ruas. Há os que preferem os logra douros públicos, e os “acolhidos”, no termo usado pelo Censo. O indivíduo pode ser um albergado constante, mudando de albergue em albergue, assim que o prazo permitido expira. Ou pode ser o que nunca utilizou estas estruturas e prefere utilizar espaços públicos da metrópole para dormir e para outras ações cotidianas.” (QUINTÃO; PAU LA,2012,p.57).

Também existe a questão de relação entre a so ciedade e esses indivíduos. Por questões de seguran ça, drogas, mal cheiro, formas de abordagem, olhares de julgamento e medo, muitos perdem sua identidade como ser que faz parte do todo.

20

“O acréscimo de pessoas nas ruas aumentou muito nos últimos anos, mas a diferenciação pode ser notada facilmente, principalmente no trabalho de campo, da qual a participa ção nos Censos de 2000, 2003 e 2009/2010 foi imprescindível. Nela podemos imedia tamente perceber as mudanças de caracterização, principalmente na pesquisa feita à noite, onde podemos perceber grupo de centenas de pessoas se aglomerando em um local, para consumo de crack, o que é diferente da concentração de moradores de rua, que formam grupos menores. Mas a confusão por parte da sociedade é grande, pois, como habitam o mesmo espaço, pare cem ser um só grupo. No entanto, têm perfis completamente diversos.” (QUINTÃO;PAU LA,2012,p.63).

21
Figura 1 - Google imagem, 2022.

Crispim é um indivíduo em situação de rua que sempre está disponível para as equipes que ajudam com alimentação e demais serviços de apoio e acolhimento. Está em situação de rua à 7 anos e sempre fala sobre suas experiências vividas antes do fato que mudou sua vida, comenta sobre as necessidades que tem no dia a dia e que nem sempre consegue solucioná-las. “Gosto de ir ao culto todas as quartas-feiras e fico ansiosamente esperando o grupo que sempre nos ajuda com uma roupa limpa e um bom prato de comida. Quando isso acontece, sei que posso ir aonde me sinto bem, pois sei que não vão me olhar com olhos tortos pelas minhas vestimentas ou pelo mal cheiro. Encontramos as vezes postos de combustível que nos oferece mangueira para tomar um banho e isso é importante para nós.”

22

A proposta desse trabalho é trazer espaços que atendam necessidades particulares como: inserir o indivíduo ao mercado de trabalho, requalificação através de cursos gratuitos que a cidade disponibiliza com biblioteca, apoio psicológico, saúde básica, higiene, vestuário, dormitórios, refeitórios, espaços de convivência e uso comunitário.

A dificuldade em acessar

lugares

por suas atuais condições, pela ausência de documentos e fatores físicos, são problemas que impedem algumas permanências

de uso social.

em locais públicos e

23

“Na busca de elementos que auxiliam o indivíduo na passagem desta condição de exclusão até sua reinserção, está o trabalho. A volta ao mercado de trabalho não tem só uma importância financeira, mas está intimamente ligado ao resgate de identidade, em busca da cidadania. E a formação de grupos, no sentido de criar um sentido de comunidade, união, pertinência, é uma premissa básica. Neste sentido, as tentativas de construção de cidadania, através dos movimentos de moradia e de outros grupos participativos podem surtir resultado, na medida em que a clareza de certos conceitos básicos, tais como identidade, dignidade, respeito, adquire um sentido profundo, porque vivido.”(QUINTÃO;PAULA,2012,p.70).

Figura 2 - Imagem do Grupo SP Invisível, 2022.

Estudos e depoimentos de pessoas em situação de rua apontam que há uma apropriação das representações sociais a elas atribuídas e, através delas, dão sentido às suas identidades e às condições sociais a que estão submetidas. A população de rua não se resume somente no indivíduo que dorme embaixo dos viadutos, nas praças ou em qualquer espaço público, mas que antes desta condição tinha uma vida em que era inserido na sociedade como os demais. (MATTOS, 2003, p. 75).

26

“Faz-se necessário distinguir entre o indivíduo que tem vontade de sair de rua, ou ficar na rua como escolha. Para um, a situação de morar na rua tem que ser, então, transitória. Para o outro, ela é quase que permanente, no sentido em que não havendo iniciativas ou não sendo ofertas possibilidades para aquele indivíduo sair das ruas, provavelmente ele ficará nela para sempre.” (QUINTÃO;PAULA,2012,p.21).

27

1. JUSTIFICATIVA

A população em situação de rua em Ribeirão Preto cresceu 8 vezes em 5 anos. Cadastro feito pela Secretaria Municipal de Assistência Social (Semas) aponta que há 3.405 moradores de rua em Ribeirão, 2.861 das pessoas em situação de rua são de outras cidades. O número de pessoas que vivem nas ruas de Ribeirão Preto saltou de 414 para 3.405, crescimento de 722%. É o que mostra o Diagnóstico Sobre Atendimento à População de Rua. O levantamento foi feito pelo Semas e pelo Instituto Limite, que levantou o perfil dessas pessoas entre junho de 2017 e junho de 2018.

A situação mais séria acontece no entorno da rodoviária, na região conhecida como Baixada (entre o Centro e a Vila Tibério). Dos 3.405 cadastros, 2.751 foram realizados no entorno da rodoviária. A maioria esmagadora desses moradores de rua é de homens, 3.014, sendo que apenas 391 mulheres foram cadastradas.

De acordo com Isaias Cruz de Oliveira, gerente do Instituto Limite, apenas 1 de cada 10 moradores de rua abordados aceitam ajuda. “Nosso trabalho é ganhar a confiança e estabelecer um vínculo”, disse ele, apontando a crise econômica como fator de aumento dessa população de rua.

A diferença dos perfis desses indivíduos em situação de rua, adotam os espaços públicos como moradia pelas condições vivenciadas, que são diversas, alguns pela falta de oportunidade, outros como estratégia de sobrevivência e geração de renda, de forma lícita ou ilícita.

Nesse contexto, se justifica pois pretende mostrar como o estudo do tema pode ser aplicado em arquitetura no caso, em Ribeirão Preto. Criando um equipamento que resolva uma parcela das problemáticas urbana e social, com melhorias para este indivíduo, criando relação com as necessidades particulares e com a sociedade.

29

Mas as casas de convivência são também locais de socialização, cuja finalidade é oferecer acolhida, no período diurno, para homens e mulheres acima de 18 anos, acompanhados ou não de seus filhos, por meio de atividades socioassistenciais, culturais, de lazer e higiene. E onde, teoricamente, o inseriria na infraestrutura de apoio que o liga á rede oficial de assistência, como o objetivo de proporcionar o primeiro passo para a saída das ruas.. (QUINTÃO;PAULA,2012,p.67).

Como esse indivíduo pode contribuir de forma ativa para a sociedade e como a sociedade como reintegrá-los? Além de melhorar a saúde pública através de cuidados básicos, físicos e psicológicos. Trazendo para os espaços públicos as suas reais funções e assim melhorando a convivência entre esses grupos.

Rua ou albergue? Os albergues e a população atendida nos serviços de acolhimento para adultos em situação de rua, que incluem: centros de acolhida, repúblicas e hotéis sociais, diferem da população que habita as ruas e que não utiliza este tipo de instalações disponíveis. Importa-nos aqui verificar os tipos de grupos que utilizam os albergues, e os modos de organização dos diferentes grupos. (QUINTÃO;PAULA,2012,p.65).

30
OBJETIVO

OBJETIVO

Propor projeto de Centro de Apoio e Reintegração a População em Situação de Rua no município de Ribeirão Preto, prezando pela flexibilidade e adaptabilidade projetual de suas tipologias, a fim de se adequarem às necessidades e configuração de cada indivíduo em situação de rua, sendo passíveis de alterações simples e não custosas no arranjo da planta e apropriação estética. Estudar questões sociais, políticas públicas e saúde urbana do Brasil e do Município de Ribeirão Preto.

Elaborar estudos preliminares que contenham plano de massas organograma, fluxograma e volumetria. O Centro de apoio a população em situação de rua tem o intuito de trazer diversos setores para atender necessidades não somente relacionados a fome ou moradia, mas apoio psicológico, recolocação ao mercado de trabalho, saúde básica, refeitório, espaços com dormitórios temporários, espaços de relacionamentos em área aberta, com a intenção de fazer a correlação e a ligação entre a área urbana na qual eles se situam e o Centro em que também será um espaço de acesso livre, porém com o intuito de resgatar necessidades particulares.

31

PROCEDIMENTOS

METODOLÓGICOS

32

O trabalho tem pesquisas relacionadas a pessoas em situação de rua, suas condições, grupos, levantamentos fotográficos do local, trabalhos acadêmicos, teses, mestrados e notícias. Sendo fundamentais para a elaboração das etapas, com dados necessários para melhor atender a demanda dos grupos trabalhados no tema.

METODOLÓGICOS

1. Pesquisa teórica

Como palavra-chave na pesquisa é utilizado: morador em situação de rua, população de rua, reintegração população de rua, apoio social, população de rua, exclusão social e espaço urbano. As pesquisas foram realizadas com bases em artigos, notícias, tese e documentos que relatam visões sobre o tema abordado.

Alguns destes levantamentos, é citado em todo processo de desenvolvimento do trabalho, como o texto da tese de QUINTAO, P. R. Morar na rua: há projeto possível? 2012. Trata-se de uma pesquisa sobre o que é a população de rua, o seu significado, suas condições e os diversos grupos que compõe esta população, os diferentes tipos de equipamentos ofertados e as soluções existentes.

O segundo texto foi de REGINA FIORATI, Iniquidade e exclusão social: estudo com pessoas em situação de rua em Ribeirão Preto/SP. É um artigo que apresenta uma pesquisa realizada com pessoas em situação de rua do Município de Ribeirão Preto, que aborda alguns depoimentos destes indivíduos.

E o terceiro texto foi do RICARDO MATTOS

- Quem vocês pensam que (elas) são? O artigo discute as nomenclaturas que são colocadas para as pessoas em situação de rua. A relação do comportamento da sociedade com estes indivíduos resistência. so. O indivíduo pode ser um albergado constante, mudando de albergue em albergue, assim que o prazo permitido expira. Ou pode ser o que nunca utilizou estas estruturas e prefere utilizar espaços públicos da metrópole para dormir e para outras ações cotidianas. (QUINTÃO; PAULA,2012,p.57).

Também existe a questão de relação entre a sociedade e esses indivíduos. Por questões de segurança, drogas, mal cheiro, formas de abordagem, olhares de julgamento e medo, muitos perdem sua identidade como ser que faz parte do todo.

35

O acréscimo de pessoas nas ruas aumentou muito nos últimos anos, mas a diferenciação pode ser notada facilmente, principalmente no trabalho de campo, da qual a participação nos Censos de 2000, 2003 e 2009/2010 foi imprescindível. Nela podemos imediatamente perceber as mudanças de caracterização, principalmente na pesquisa feita à noite, onde podemos perceber grupo de centenas de pessoas se aglomerando em um local, para consumo de crack, o que é diferente da concentração de moradores de rua, que formam grupos menores. Mas a confusão por parte da sociedade é grande, pois, como habitam o mesmo espaço, parecem ser um só grupo. No entanto, têm perfis completamente diversos. (QUINTÃO;PAULA,2012,p.63).

Figura 3 - Imagem feita pela au tora, rua Gonçalves Dias, Ribeirão Preto, 2022.

36

2. Pesquisa documental

Na pesquisa documental, serão investigados documentos relacionados ao comportamento desses indivíduos, como se relacionam com a área urbana, problemáticas, equipamentos que atenda necessidades conforme cada grupo existente dentro da população em situação de rua. Além de assuntos que abordam as relações socioeconômicas e saúde pública.

O projeto The Bridge Homeless Assistance Center / Overland Partners (Centro de Assistência aos Desabrigados da Ponte / Parceiros Terrestres), Projeto Bud Clarck Commons e o Spring Gardens, são referências que atende de problemáticas de alguns grupos através de equipamentos arquitetônicos que podem trazer benefícios para a população em situação de rua, de forma social e urbano.

A localização para a implantação do projeto fica na região Central de Ribeirão Preto, local na qual tem números significativos de indivíduos em situação de rua, aglomerados nas praças principais, principalmente na Praça Schmidt e na Rodoviária central.

Registros fotográficos de todo o espaço, das praças, do entorno e dos equipamentos existentes. Ir ao local com o intuito de conhecer a qualidade do espaço e como contribuir para a população em situação de rua em Ribeirão Preto.

Observar os comportamentos desses indivíduos, buscar através entrevistas, depoimentos, notícias, relatos sobre suas necessidades e como vivem.

Visitar centros de apoio e acolhimento e verificar como eles se organizam e prestam serviços.

39

POPULAÇÃO

40
E
ESPAÇO

1.1 O olhar para a população em situação de rua. Oportunidade de diminuir o índice populacional de pessoas em situação de rua, trazendo uma visão diferente da sociedade perante a este indivíduo e recriando relações entre praça e pessoas, pessoas e centros de apoio.

Renata Corrêa, secretária de Assistente Social, ressalta as constantes ações do município para atender as pessoas em situação de rua. “Temos inúmeras ações, inclusive integradas com outros secretarias para resolver a questão da pessoa em situação de rua na nossa cidade. Criamos o PertenSer que busca estabelecer e fortalecer o vínculo dessas pessoas com a nossa equipe, passo fundamental para o resgaste da autonomia e reinserção na sociedade”.

Para conquistar esse público e estabelecer confiança, a Semas criou o projeto PertenSER, que tem por objetivos principais o acompanhamento longitudinal em busca da reinserção social, aproximação de vínculo com a equipe e oferta da rede pública de atendimento. A Secretaria de Assistência Social, por meio do Departamento de Proteção Social

Especial, oferece o atendimento de recâmbio à pessoa em situação de rua, para garantir o retorno às cidades de origem, bem como o vínculo familiar e comunitário.

A intervenção de recâmbio é executada pela equipe do Centro POP ao identificar a demanda ou por solicitação do próprio usuário. Em média, 150 pessoas são recambiadas mensalmente. A prioridade é reinserir essas pessoas na sociedade através do resgate de sua autonomia, realizando este atendimento da forma mais humanizada.

Sociabilidade é um dos mais importantes fatores de um bom espaço público e talvez o mais difícil de alcançar, mas quando isso acontece as chances de sucesso deste espaço são muito altas. Quando as pessoas encontram seus amigos, conversam com seus vizinhos ou se sentem confortáveis para interagir com pessoas desconhecidas, há uma forte sensação de pertencimento e de comunidade e isso é uma das melhores qualidades de um espaço público acessível e democrático.

41 ESPAÇO

1.2 Relação indivíduo e espaços de acolhimento. Políticas públicas, ações sociais, questões econômicas, tem relação direta com esta problemática.

A superpopulação relativa se configura na sociedade capitalista brasileira sob três diferentes formas: população flutuante, latente e estagnada. Constata-se que a forma mais recorrente no perfil da população em situação de rua é a forma estagnada, devido às especificidades que compõem as características desse grupo populacional, sobretudo no que se refere às estratégias informais de trabalho e renda para a garantia de sustento e sobrevivência nas ruas, como atividades de coleta de material reciclável, “flanelinha,” construção civil, limpeza, entre outros. (SILVA; Neuza Ferreira, HACK; Neiva Silvana; 2021, p.61).

42

Segundo Neuza Silva e Neiva Silvana (2021, p.69), “[...] a falta de acesso aos bens e ser viços necessários à manutenção da vida — como a moradia, o trabalho, a alimentação, a saúde, a educação, entre outras necessida des —, desencadeia um processo de viola ção de direitos continuado, que não apenas se manifesta na precária qualidade de vida da população em situação de rua, como tam bém se desdobra em diferentes formas e ex pressões de violência.’

Violência que também se apresenta nas ações higienistas do poder público, de “limpeza” da cidade, na internação forçada e na retirada de pessoas e seus pertences da rua, obstrução de bancos e marquises, impedindo o direito de ir e vir, entre outras violações de diretos cometidas por quem deveria proteger.

Embora vulnerável, se lhe forem ofertadas oportunidades que alavanquem sua saúda da vida nas ruas, provavelmente ele o fará. Para estes a rede de assistentes sociais, psicólogos, agentes de saúde, e outros profissionais que abordam cotidianamente essas pessoas nas ruas, é um meio de conectá-los a esta realidade a qual querem voltar. (QUINTÃO;PAULA,2012,p.55)

Para tanto, a legislação brasileira tem avançado bastante, criando inclusive parâmetros mínimos a serem seguidos no caso de projeto, como número de pessoas por quarto, tipo de instalações e atendimentos, entre outros. Na prática, porém, o atendimento aos moradores de rua disponível atualmente não é o que está proposta na legislação, que deveria ser feito em três etapas:

44

1°passo: Albergue

Recebe a pessoa em situação de extrema pobreza e sem local de abrigo. Tempo máximo ideal de permanência, segundo a Prefeitura: 6 meses.

2° passo: Moradia provisória

Local recebe a pessoa que avançou no processo de reinserção Moradia é paga pelo município. Tempo máximo ideal de permanência, segunda a Prefeitura: 6 meses.

3° passo: Soluções habitacionais definitivas

É o último estágio do processo: pessoa ganha moradia fixa com subsídio.

Figura 5 - Google imagem, 2022.

45

“Pinheirinho diz que deve ser obrigado a sair, em breve, do albergue onde mora. Deve voltar para a rua. “Esse Sistema não reintegra ninguém à sociedade”, afirma. É uma “moradia definitiva” por um prazo determinado”. (QUINTÃO, 2012, p.56; apud PAGNAN; CARAMANTE;2009)

Os albergues ainda é uma questão de debates e discussões sobre sua metodologia de reinserção destes individuos a sociedade.

O rapaz trabalha com reciclagem e conta que passou a noite ao lado de Isaías de Faria, de 66 anos. Eles tinham apenas duas cobertas e relata que nenhuma equipe da assistência social esteve no local.

“A gente tem que sair da insensibilidade para o aquecimento da caridade, sair da hostilidade pra hospitalidade. E muitas vezes o poder público fica parado no lugar esperando que as pessoas venham. O movimento tem que ser contrário. A gente tem que ir ao encontro onde eles estão. A verdadeira caridade não é burocrática nem institucional, ela diligente, ela vai ao encontro de quem precisa”, afirmou Lancellotti.

Segundo notícia do G1, Tiago Pereira, amigo de Isaias, que morreu durante a manhã, chorou ao contar o drama de tentar encontrar um abrigo para passar a noite.

Paula Quintão, diz que para os que querem sair das ruas, deixar sua condição e efetivar seu retorno à sociedade, o albergamento é uma porta de entrada, o primeiro passo. É no albergue, instituição ligada às outras re des assistenciais, que ele poderá ser aten dido, acompanhado e inserido em progra mas de atenção e reinserção. Para alguns o albergue é o endereço, elemento necessário quando da procura de emprego, para o res gate da identidade e respeitabilidade.

46

Para aquele que acabou de ingressar na con dição de morador de rua os albergues são uma primeira alternativa, um intermediário entre a casa, e a rua. Com tempo e a sociali zação, este indivíduo pode deixar os alber gues e optar pela vida nos espaços públicos, com os grupos que porventura conhecer. (2012, p.65).

Outras opções são casas de acolhimento, porém alguns preferem permanecer em locais que já conhecem e que já tem seus grupos formados, onde se sentem seguros e “acolhidos”,

A ideia é fazer com que esses espaços de acolhimento e reinserção tenham o intuído de fazer com que este indivíduo frequente espontaneamente os locais e casas de acolhimento.

“Como se coloca à página da Casa de Convivência do Jardim Vida I e II: “Este centro de convivência, que atende diariamente cerca de 320 moradores de rua, tem por objetivo proporcionar o primeiro passo para a saída das ruas. Por não ter uma estrutura de abrigo, não são impostas regras aos usuários, permitindo que se sintam livres para voltarem quando

quiserem. O intuito é fazer com que, aos poucos, os frequentadores voltem espontaneamente, até que se sintam prontos para uma acolhida mais concreta.”

47

1.3 Síntese

Paula Quintão diz em sua analique que pesquisa bibliográfica sobre o significado e a condição do morar na rua, e os diversos grupos que compõe esta população. Analisou-se então os diferentes tipos de equipamentos ofertados, as soluções existentes e a sua pertinência ao perfil de população encontrado. A análise da população em situação de rua mostra, primeiramente, que há pessoas que desejam sair dessa condição, ou seja, para quem a situação de estar na rua é circunstancial (falta de emprego, perda da moradia, rompimento de laços familiares, atividades ilícitas). De qualquer forma mesmo que a questão do morar na rua seja transitória para um dado indivíduo, outros aparecerão, ou seja, há um contingente permanente de pessoas que habita os espaços público e para o qual se espera uma resposta, que o projeto urbano não tem dado conta. Para parte dessa população, a resposta é a oferta de meios que proporcionem sua saída das ruas. Para a formulação de propostas inovadoras faz-se necessário conhecer a fundo a população para a qual se está projetando valendo-nos de conceitos contemporâneos que vão além do campo da arquitetura e urbanismo.

A pandemia ampliou o atendimento a pessoas em situação de rua em Ribeirão Preto. São aproximadamente 1.148 pessoas vivendo em situação vulnerável nas ruas de Ribeirão Preto e que precisaram ainda mais do suporte e amparo na pandemia. O número de pessoas é significativo, tendo em vista que são cerca de 700 mil Habitantes na cidade, de acordo com o Instituto Brasileiro de Geografia Estatística (IBGE).

Em 2020, a Prefeitura de Ribeirão Preto realizou uma parceria entre as secretarias de Assistência Social, Esportes e o Instituto Limite, para transformar o Complexo Esportivo “Elba de Pádua Lima – Tim” (Cava do Bosque) em um local de acolhimento temporário para atender até 100 pessoas, diariamente. No local, era oferecido banho, troca de roupas e alimentação.

Hoje, devido às necessidades exigidas pela pandemia, esses atendimentos acabaram sendo transferidos para o Serviço de Acolhimento Institucional para Adultos, podendo acolher pessoas do gênero masculino, com uma ampliação que chega a comportar e ajudar 130 pessoas todos os dias.

Já a Casa de Passagem, reorganizada pela Secretaria Municipal de Assistência Social, consegue

48

abrigar 80 homens e mulheres que tenham sido diagnosticadas com covid, e que estejam em fase de isolamento social. Os assistidos podem ficar durante um período de até 24 horas no local.

Além da prefeitura, outras iniciativas ajudam as pessoas em situação de rua em Ribeirão Preto. O Café Solidário, uma iniciativa da Catedral de São Sebastião, é oferecido todos os domingos, às 10h, na praça que fica na esquina da rua Lafaiete com Visconde de Inhaúma. Já o projeto Solar Fides é uma residência focada na ressocialização dos moradores de rua na sociedade. Ela tem a capacidade de abrigar 12 homens durante o período de seis meses. Em 2020, cerca de 30 homens participaram do projeto, e 15 deles saíram contratados para trabalhar. A residência se localiza na rua General Câmara, Ipiranga, 852.

Ribeirão Preto possui alguns locais de atendimento e apoio para esta população. Conforme a imagem ilustrada nas proximidades do lote estudado encontra-se o Centro POP, CETREM, CRAS III, e a Secretaria Municipal de Assistente Social.

O Centro POP, que recebe esta população para passar o dia, vai oferecer também 100 vagas de acolhimento masculino para pernoite em sistema

de albergue, ou seja, sem vínculos. Quem aderir aos serviços será recebido com uma alimentação quente e kit de inverno.

Além da equipe do SEAS, a Semas disponibilizou uma equipe extra para auxiliar as rondas durante a noite e levar o maior número de pessoas para o acolhimento, seja no Complexo do Cetrem ou no Centro POP.

O CETREM (Central de Triagem e Encaminhamento do Migrante/Itinerante e Morador de Rua), atende pessoas em situação de rua e desabrigo por: abandono, migração e ausência de residência ou pessoas em trânsito e sem condições de autossustento. Fica localizado na Rua Mogi Mirim no Bairro Salgado Filho, Zona Norte de Ribeirão Preto. Em torno de 8km de distância do Centro da cidade, ponto onde se aglomera o maior número de população em situação de rua, o acesso daqueles que precisam do serviço prestado pelo local fica dificultado.

O CRAS (Centro de Referência de Assistência Social. Também conhecido como a “Casa da Família” - O CRAS - Centro de Referência da Assistência Social foi criado para atender as famílias e indivíduos em situação de vulnerabilidade social, ofertando serviços continuados de Proteção Social Básica. Ele serve como

49

“porta de entrada” dos usuários à rede de Proteção Social Básica do Sistema único de Assistência Social, recepcionando, acolhendo, escutando, orientando e sendo referência para eles. Os CRAS’s localizam-se em cinco regiões do município: Central, Sul, Norte, Noroeste, Sudoeste e Bonfim Paulista.

O Centro POP é uma instalação pública preparada para fornecer assistência a pessoas que vivem em situação de rua. Vinculado ao MDS (Ministério do Desenvolvimento Social), este serviço foi estruturado para prestar auxílio à população jovem e adulta.

Ao acolher um cidadão, o POP realiza ações de âmbito individual e coletivo voltados a desenvolver a socialização dos indivíduos. Um conjunto de atividades promovidas pelo centro visa estimular o convívio social, além de transmitir conhecimentos sobre respeito, solidariedade e afetividade.

Para completar, a instituição também atua como um ponto de apoio a pessoas que vivem nas ruas, uma vez que fornece condições apropriadas para:

• Armazenamento de pertences

• Higiene pessoal

• Alimentação

• Emissão de documentos

Figura 6 - Ilustração editada pela autora, localizando os espaços de atendimento mais próximo do lote, 2022.

50

1.4 Uma oportunidade para a implantação do equipamento

Estimativa populacional divulgada pelo IBGE (Instituto Brasileiro de Geografia e Estatística), apontou crescimento do número de habitantes de Ribeirão Preto. Segundo os novos dados, referentes a julho de 2021, a cidade tem agora 720.116 habitantes, 1,16% a mais que os 711.825 estimados até então. Considerando a região metropolitana, formada por 34 municípios, a população total estimada é de 1.755.029.

Ribeirão Preto é uma cidade pujante, com vocação para o crescimento e grande capacidade de superação. Somos sede da região metropolitana e, portanto, uma referência regional, um polo prestador de serviços, com grande destaque para o setor de comércio e as áreas de saúde e educação. Nosso trabalho na prefeitura é justamente planejar e preparar a estrutura do município para fazer frente aos desafios futuros”, comenta o prefeito Duarte Nogueira.

A falta de qualidade e preservação dos espaços públicos na cidade vem proporcionando um afastamento entre pessoas e consequentemente aos espaços comuns existentes. O espaço público é um

lugar que possui muitos significados, não somente valores estéticos, mas sim sociais, éticos e culturais, que auxiliam na construção e na movimentação da sociedade.

Os espaços públicos são a alma da cidade, são locais de encontro e socialização. A praça é um local de grande significado para entendermos esse mecanismo de relações e funções espaciais. O local de implantação se localiza no centro da Cidade de Ribeirão Preto/SP, sendo a antiga Fábrica da Antártica, que fica em frente à Praça Schimdt próximo a Rodoviária Central de Ribeirão Preto.

Figura 7 - Localização da área de intervenção em rela ção ao Centro - Quadrilátero Central. Fonte Mapa viário geral da PMRP. Adaptado pela autora, 2022.

52

1.5 Qualidade do espaço.

A maioria dos espaços públicos considerados saudáveis compartilham quatro características elementares: eles são espaços acessíveis, lugares onde as pessoas desenvolvem uma atividade específica, são agradáveis e bonitos, e finalmente, são espaços de encontro e diversidade.

Amplo aspecto de cuidados, incluindo espaços de convivência, emergência e cuidados transitórios para esta população. Desde o uso da materialidade até a sensação causada naquele espaço, tudo com a intenção de integrar quem está em situação de rua com a sociedade.

Trazendo a sensação de extensão da praça para o objeto instalado.

Se um morador de rua dorme na calçada da Av. Paulista, por exemplo, poderíamos argumentar que este não é um espaço degradado, apartado da cidade, portanto, no sentido especial, não haveria segregação. No entanto, embora ele frequente e divida o mesmo espaço que um indivíduo qualquer, seu status não o possibilita ter acesso ao mesmo universo que o outro: é neste sentido, excluído, privado destes direitos.

E o espaço que resta para ele habitar, embora no coração da cidade de São Paulo, como no exempo, não é seu: não é uma área, mas um ponto: é um espaço residual que lhe sobra, e que usa temporariamente. (QUINTÃO;PAULA,2012,p.45).

Figura 8 - Imagens feita pela autora, sobre o entorno do lote, região da Vila Tibério, rua Cel. Luis da Cunha, Rua Rodrigo Alves e Rua Gonçalves dias, Ribeirão Preto, 2022.

54
56
LEITURA PROJETUAL
PROJETUAL The Bridge Homeless Assistence Center Autor: Overland Part ners Local: Dalas, Estados Unidos Ano: 2010 Área: 75.000m²

The Bridge é um Centro de Assistência a po pulação em situação de rua, considerado um projeto modelo mundialmente para este tema. Oferece amplo aspectos de cuidados, incluindo habitação, emergência e cuidados transitórios para mais de 6.000 pessoas em Dallas, que estão na condição de rua por muito tempo.

• Programa de necessidades

Oferecem dormitórios, setor de apoio para a saúde mental e física, higienização, consultórios médi cos, escritórios de aconselhamento, lavanderia, setor infantil, biblioteca, refeitório, setor de treinamento e área de cuidados para animais.

• Espacialidade do objeto

Possui 5 edifícios que suas disposições foram um pátio central, com o intuito de criar relação do ex terno com o interno, através de áreas verdes, espaços para convivência e interação, amplo e agradável para descanso. Todos se comunicam entre si através das praças centrais.

58

Figura 9 - Implantação The Bridge a esquerda, acima Planta Pavimento Térreo - The Bridge.

59

• Materialidade e linguagem

Através da translucidez que é existente no edi fício e a visibilidade através dos blocos de acesso, foi inserido painéis artísticos com vidros coloridos com o intuito de usar como forma de expressão de linguagem.

Figura 10 - Atendimento, dormitórios e espaço de convivência - The Bridge.
Autor: Holst Archi tecture Local: Portland, Ore gon, Estados Unidos Ano: 2011 Área: 9.850m²
Bud Clark Commons

A Bud Clark Commons é um Centro de serviços públicos, combinando moradia de apoio com recursos comunitários.

• Programa de necessidades

Consiste em serviços prestados durante o dia, um abrigo temporário para 90 homens, 130 apartamentos estúdio, sendo destinados a mulheres ou homens de renda muito baixa a procura de moradia permanente. Lavanderia, espaços de computação, oficinas, bibliote ca e reabilitação para casos de drogas e alcoolismo.

• Espacialidade do objeto

Os pavimentos são organizados conforme as atividades de âmbito mais público como as áreas co letivas, de serviços e abrigos no térreo e primeiro pa vimento, enquanto as áreas de acolhimentos se encon tram nos demais pavimentos superiores.

Outro partido adotado foi o de usar layout nos apartamentos adaptáveis para outros tipos de usos.

Figura 11 - Espaço de convivència - Bud Clark Commons

63

Figura 12 - Planta 1 e 2Bud Clark Commons

64

Figura 13 - Planta 3 e 4Bud Clark Commons

65
Figura 14 - ElevaçõesBud Clark Commons
67
Figura 15 - área de convivência e circulaçãoBud Clark Commons

Rebridge Welcome Cente

Autor: Peter Barber Architects Local: Londres, In glaterra. Ano: 2012 Área: 9.850m²

O prédio abriga instalações de acolhimento, dro gas, álcool, aconselhamento, treinamento vocacional e de habilidades para a vida em um edifício espetacular e arejado, organizado em torno de um novo jardim no pátio.

• Programa de necessidades

Se programa é destinado para pessoas com de pendência química e alcoolismo, além de pessoas em situação de rua.

Possui unidades de internação, abrigos com sa nitários próprios e cozinhas compartilhadas, oficinais de treinamento profissionalizante, áreas comunitárias, espaços de convivência, encontros e acolhimento, la vanderia e refeitório.

• Espacialidade do objeto

Possui 3 pavimentos, com a maior concentração de uso no pavimento térreo, os espaços de encontro no mezanino, enquanto os demais pavimentos estão des tinados para as cozinhas compartilhadas. A proposta do projeto é criar menos corredores possível para não gerar isolamento.

69

Figura 16 - Planta térreo - Rebridge

70
71
Figura 17 - Corte - Rebridge

Além de conexões e fluidez entre os espaços, existe a conexão do externo e interno através das transparências dos vidros de fechamento.

• Materialidade e linguagem

Todo edifício é fechado com vidro, trazendo transparência e leveza para suas fachadas, possibili tando a entrada de luz, criando espaços amplos e ilu minados.

Figura 18 - Área Externa, facha da e plantas pávimentos superioresRebridge

73
74
75

PROPOSTA PROJETUAL

76

O lugar e a implantação

O uso do solo na área do Centro x Vila Tibério se mostra de maneira bem heterogênea. Com predominância de edificações voltada ao comércio e/ ou prestação de serviço na região central, tendo como um limite a Av. Jerônimo Gonçalves. Esta acaba sendo um ponto principal, pois a partir dela em direção ao bairro adjacente, Vila Tibério, observa-se mudanças comportamentais nos usos, que não mais predominase comércio, mas sim residências.

A área de intervenção e sua relação com o entorno da cidade, sendo proposto para este fim a delimitação de um recorte centralizado no terreno, auxilia na identificação das áreas e suas dinâmicas urbanas, para assim, se analisar o impacto sobre o projeto e vice-versa.

Figura 19 - Google Earth. Adaptado pela autora, 2022

77
PROJETUAL
REGIÃO CENTRAL DE RIBEIRÃO PRETO/SP.

No entorno do lote de intervenção, pode ser encontrado equipamentos de lazer como o Parque Maurilio Biagi, de transporte com os dois terminais urbano de ônibus, o terminal rodoviário central e de saúde com a UBS CentralDr. João Baptista Quartin, conforme a figura 2.

Para uma intervenção de apoio social, é de extrema importância uma localização que permita acesso à equipamentos urbanos e estabelecimentos comerciais e de serviços, possibilitando sua inserção na malha urbana. Atendendo as necessidades da população em situação de rua e os demais que ali transitam.

Legislação

O Município de Ribeirão Preto conta com um novo Plano Diretor – Lei Complementar nº 2.866, de 3 de maio de 2018 – o qual busca maior compatibilização com o Estatuto da cidade, indicando entre seus princípios básicos: (i) o ordenamento do desenvolvimento das funções sociais da cidade e da propriedade urbana; (ii) a universalização do direito à cidade; e (iii) a gestão democrática e o controle social; MACROZONEAMENTO: ZUP (Zona de urbanização preferencial), lei complementar n°2866 -27/04/2018.

Figura 20 - Mapa Uso do solo

79

Clima e estratégias sustentáveis.

A cidade de Ribeirão Preto tem clima tropical, com pluviosidade em certo período do ano. Na área de estudo em que se refere ao microclima e suas tipologias o seu clima e temperatura não se difere das outras áreas da cidade.

Os ventos dominantes são no sentido sudeste para noroeste, com temperatura média de 21°C à 27°C. Em relação a orientação solar por conter duas praças a frente e um córrego ao lado, diminuiu a temperatura e alguns pontos de exposição direta do sol.

Como estratégias sustentáveis, utilizar materiais reutilizáveis e recicláveis, reaproveitamento da água da chuva, através do uso de coberturas verdes e arborização.

Figura 21 - Mapa clima

80

Partido Arquitetônico

1.1 Função do objeto e espacialidade.

Proporcionar núcleos que atenda necessidades particulares de cada indivíduo, com o intuito de orientá-lo, apoiá-lo e reintegrá-lo a sociedade e sair desta condição de rua, dando suporte ao uso dos espaços na cidade e tentando trazer de volta a função da Praça, como um espaço de descanso e lazer.

82
Figura 22 - Faixa Conceitual

1.2 Programa de necessidades e organograma.

Através do uso das cores dos ambientes serão as mesmas que as estabelecidas desde o programa de necessidade e repetidas no organograma, porém, dife rentes destes, a representação gráfica dos ambientes será fluida, desconsiderando a relação de proporciona lidades das áreas dos ambientes.

Dentre esses espaços, concentra-se:

• ESPAÇO DE CONVIVÊNCIA: Espaço que ofe rece atividades de cultura, lazer e interação entre os indivíduos, promovendo a socialização entre essas po pulações com o objetivo de reintegração social e crian do vínculos interpessoais, familiares e comunitários.

• NÚCLEO SAÚDE E PSICOLOGIA: Espaço desti nado a população com problemas de saúde, auxiliando no encaminhamento e agendamento para os serviços de saúde.

• NÚCLEO ACOLHIMENTO: Espaço com dor mitórios e apoio, com direcionamento e acolhimento a população em situação de rua.

• NUCLEO EDUCAÇÃO, REQUALIFICAÇÃO E REINTEGRAÇÃO: Reinserção no mercado de trabalho, oferecendo oficinas de capacitação e qualificação (áre as como construção civil, pintura, elétrica, cabelereiro e manicure). Espaço para catadores de materiais reci cláveis.

83
Figura 23 - Organograma

O partido estético-formal

Foram esquematizados fluxos sobre o programa específico, sendo: três acessos público no entorno do lote, a qual engloba os serviços prestados na proposta do projeto, que atenderão necessidades particulares e em coletivo para a população em situação de rua, mas por ser de acesso a todo público, também pode-se tra zer interesse voluntários da população em relação ao espaço e como estes podem contribuir positivamente para a proposta.

Ao pensar na possibilidade de não possuir muros ou acessos restritos, a implantação do projeto possui áreas pensadas em serem utilizadas por todos, criando conexões entre os indivíduos e a sociedade, promoven do a interação e reinserção sem ambientes fechados e segregados. Trazendo outra visibilidade para essa po pulação e fazendo com que eles se sintam pertencente a outros espaços, além de praças, pontes e viadutos.

84

Figura 24 - Plano preliminar de ocupação.

85
PROJETO O

Diretrizes e Premissas

As diretrizes e premissas que determinaram o desenvolvimento do projeto partem do princípio de que o entorno tem intensa relação com o espaço escolhido para implementar o projeto.

Pretende-se criar possibilidades de conexão e migração entre um ponto e outro para criar proximidade social e inclusão, com o intuito de pertencimento deste indivíduo em situação de rua com os espaços urbanos públicos.

O lote se localiza na Vila Tibério, próximo ao Centro de Ribeirão Preto, localizado na Rua Cel. Luiz da Cunha, a alguns metros da Praça Schimidt que é o ponto em que mais se concentra indivíduo em situação de rua, ao lado desta praça encontra-se a UBS, Centro Rodoviário da cidade e o Mercadão Municipal, todos esses objetos de instalação são locais de permanência dessa população.

Figura 25 - Mapa de equi pamento urbanos e ima gens dos equipamentos.

88

Este foi o principal motivo para a escolha do lo cal de implantação do projeto, além de ter três acessos por outras vias e também ter uma praça em frente a um dos acessos.

Através dos levantamentos fotográficos feito no entorno, uma das vias de acesso sendo a Rua Gonçal ves Dias, foi encontrado pertences como colchão, co bertores e roupas, na Rua Rodrigo Alves, também tinha os mesmos objetos em uma fonte d’água desativada na praça a frente do lote.

Figura 26 - Imagem feita pela autora, Rua Gonçalves Dias, Ribeirão Preto, 2022.

90

Figura 27 - Imagem feita pela autora, Rua Rodrigo Alves, Ribeirão Preto, 2022.

91

Partindo dessas primeiras observações, surgiu o questionamento de como seria implementado os núcleos dentro deste lote, como eles se comportaria e como seria mais bem localizado. Com isso, observamse os movimentos, fluxos de veículos e pessoas em cada um desses acessos, e ao perceber as atividades ao entorno chega-se à conclusão de que a Rua Gonçalves

Dias tem pouco tráfego de veículos e pessoas, local mais silencioso, porém maior número de indivíduo em situação de rua, composto por casas e algumas aparentemente abandonadas, com odor forte e sujeira, logo será um acesso interessante para o Núcleo de acolhimento e ponto de apoio para itens de reciclagem e animais.

Na via Rua Rodrigo Alves, médio fluxo de veículos, porém fluxo intenso de pessoas. Por ser em frente a praça que tem em seu entorno Comércios, bancos, igreja e escola, será um ponto estratégico para o Núcleo Educacional, na qual acontecerá palestras, cursos, registro de documentos, direcionamento para o mercado de trabalho, biblioteca comunitária e demais atividades voltadas para a inserção do indivíduo a sociedade, mas também para todos que precisarem de utilizar os serviços prestados no espaço.

E por fim o acesso da Rua Cel. Luiz da Cunha, que possuí dois hotéis á frente, maior trafego de veículos e pessoas, local em que será implementado os núcleos de Administração e saúde psicofísico.

Figura 28Imagem feita pela autora, Rua Cel. Luiz da Cunha, Ribeirão Preto, 2022.

92

Após solucionar como ficariam setorizados os núcleos, surge o desafio de como conectar o externo existente com o interno dos edifícios, trazendo a praça como continuidade para dentro do lote, criando um pátio aberto com mesas e horta comunitária, servindo como refeitório, espaço de convivência e interação, espaço para feiras e exposições, lavanderia comunitária e espaço com canil para dar apoio ao núcleo de acolhimento e para as carroças que são meios de trabalho, enquanto o indivíduo estiver usufruindo do espaço.

94

ESTUDO VOLUMÉTRICO FISÍCO

95
Figura 29 - Imagens feita pela autora, maquete de estudo volumétrico, 2022.

O terreno tem um declive de 3m. O desnível foi trabalhado no terreno através de taludes, níveis e uso de rampas de acessibilidade em todo percurso do lo cal, devido a permeabilidade do fluxo de pessoas.

96
Figura 30 - Imagens feita pela autora, maquete de estudo volumétrico, 2022.

DIAGRAMAS:

• CIRCULAÇÃO

Cada Edifício possuí circulação vertical através de elevadores e escadas abertas, que conectam aos demais pavimentos.

Além disso, as circulações horizontais conectam tanto pelos corredores externos dos edifícios, quanto pelos espaços internos que abre e fecha através de portas de correr em vidro por todo entorno dos edifícios.

• SISTEMA CONSTRUTIVO

Estrutura metálica, com vigas e pilares em formato I, com vãos que variam entre 5 e 8 metros. Pé direito que varia entre 3,0 m a 4,5m.

Fechamento em vidro e esquadrias metálicas com vidro. Laje de Steel Deck e cobertura verde.

• SETORIZAÇÃO E USO DAS CORES

Para setorizar as atividades de cada Núcleo, foi utilizado Brises nas fachadas através do uso das cores, sendo:

Núcleo Educacional: Azul

Núcleo Acolhimento: Roxo

Núcleo Administrativo: Amarelo

Núcleo Saúde e Psicologia: Rosa

98
99

IMPLANTAÇÃO

Figura 31 - Imagens feita pela autora, implantação 3D, 2022.

Premissas do local de implantação

Estimativa populacional divulgada pelo IBGE (Instituto Brasileiro de Geografia e Estatística), apontou crescimento do número de habitantes de Ribeirão Preto. Segundo os novos dados, referentes a julho de 2021, a cidade tem agora 720.116 habitantes, 1,16% a mais que estimados até então. Local de implantação: Lote localizado na Vila Tibério da Cidade de Ribeirão Preto/SP, à 500m da Praça Schimdt e a Rodoviária Central de Ribeirão Preto, também possui praça em frente a uma das fachadas do lote. Área: 2.733,95 m².

Figura 32 - Implantação em planta , 2022.

103
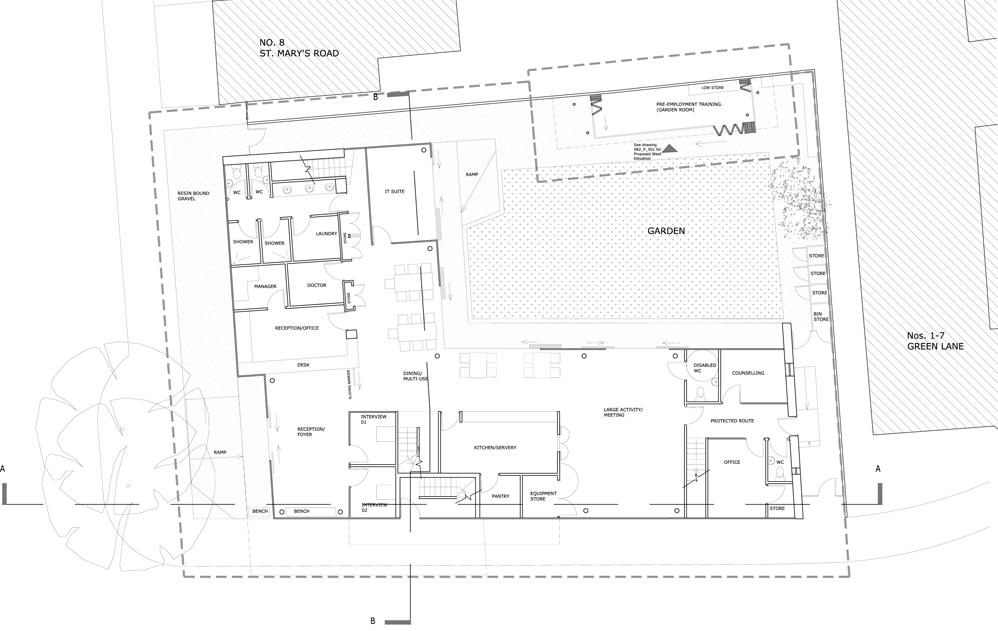
104 BB BB AA AA 0,48 2,59 0,48 6,00 0,48 44,66 36,63 24,98 38,06 31,07 19,40 48,43 10,82 1,20 7,30 1,00 CC CC serviço chaft D W PCD ÁREA W C PCD ÁREA 5,00 22,92 4,20 24,52 8,40 10,03 9,46 22,61 0,48 8,50 0,48 1,36 8,28 5,38 7,60 2,65 5,74 11,01 0,48 10,05 0,48 7,80 11,52 5,51 3,55 8,28 12,78 21,05 2,50 15,44 3,11 0,48 7,00 0,48 7,00 0,48 25,36 2,70 2,50 2,50 2,50 2,50 3,20 2,09 3,74 21,72 6,95 4,52 7,96 7,48 6,31 6,33 3,72 0,00 +3,09 +2,83 +1,70 +1,94 DD DD Guarda Corpo H 1 20 Balcão de alimentos NÚCLEO EDUCACIONAL NÚCLEO ACOLHIMENTO NÚCLEO ADM NÚCLEO SAÚDE SOBE HALL DE ENTRADA E ACESSO AO DORMITÓRIO ÁREA 16 25 PD 50 DEPÓSITO ESTACIONAMENTO DE CARROÇA ÁREA 85 50 PD 00 SOBE SOBE PORTA ACESSO DESCE SOBE SOBE SOBE PORTA ACESSO cadeirante porta de acesso LAVANDERIA COMUNITÁRIA ÁREA 55 00 50 TRIAGEM ACOLHIMENTO ÁREA 21 60 PD 50 DORMITÓRIO 01 ÁREA 42 PD 50 WC MASC VESTIÁRIO ÁREA 12 20 21 24 27 SOBE HORTA COMUNITÁRIA ÁREA 42 00 HORTA COMUNITÁRIA ÁREA 21 15 ÁREA PERMEÁVEL ÁREA 26 35 ÁREA PERMEÁVEL ÁREA 15 00 ÁREA PERMEÁVEL ÁREA 22 85 COZINHA COPA ÁREA 00 PD 50 REFEITÓRIO ÁREA DE CONVIVÍO E INTERAÇÃO ÁREA 55 00m social CONSULTÓRIO DE SAÚDE PSICOLÓGICA ÁREA 25 00m PD 50 CONSULTÓRIO DE SAÚDE FÍSICA ÁREA 65 PD m NÚCLEO ADM ÁREA 42 00 PD 50 NÚCLEO ADM ÁREA 42 00 PD 50 BIBLIOTECA COMUNITÁRIA ÁREA 90 22 60 00 00 00 rampa de acessibilidade 8 33 % WC MASC VESTIÁRIO ÁREA 42 55 ESTACIONAMENTO ÁREA 38 65m ESTACIONAMENTO MOTO ÁREA 38 65m RUA GONÇALVES DIAS RUA CEL LUÍZ DA CUNHA RUA RODRIGO ALVES WC FEM WC MASC rampa de acessibilidade 8 33 % SOBE BIBLIOTECA COMUNITÁRIA ÁREA 90 rampa de acessibilidade 8 33 % rampa de acessibilidade 8 33% CANIL 30 WC FEM VESTIÁRIO ÁREA WC FEM VESTIÁRIO ÁREA PD 51 DORMITÓRIO 02 ÁREA 19 50 PD 25 GSEducationalVersion BB AA 0,48 2,59 0,48 6,00 0,48 44,66 36,63 24,98 38,06 31,07 19,40 10,82 7,30 1,00 CC CC serviço chaft D W PCD ÁREA 80 W C PCD ÁREA 5,00 22,92 4,20 24,52 8,40 10,03 9,46 22,61 8,50 0,48 1,36 8,28 5,38 7,60 2,65 5,74 11,01 0,48 10,05 0,48 7,80 11,52 5,51 3,55 8,28 12,78 0,48 7,00 0,48 7,00 0,48 25,36 2,70 2,50 2,50 2,50 2,50 3,20 2,09 3,74 21,72 6,95 4,52 7,96 7,48 6,31 6,33 3,72 0,00 +3,09 +1,70 DD DD Guarda Corpo H 1 20 Balcão de alimentos NÚCLEO EDUCACIONAL ACOLHIMENTO NÚCLEO ADM NÚCLEO SAÚDE SOBE HALL DE ENTRADA E ACESSO AO DORMITÓRIO ÁREA 16 25 PD 50 ÁREA 85 50 PD 00 SOBE PORTA DE ACESSO DESCE SOBE PORTA DE ACESSO cadeirante porta de acesso LAVANDERIA COMUNITÁRIA ÁREA 55 00 PD 50 TRIAGEM ACOLHIMENTO ÁREA 21 60 PD 50 DORMITÓRIO 01 ÁREA 42 00 PD 50m WC MASC VESTIÁRIO ÁREA PD 51 0 0 0 13 16 19 SOBE HORTA COMUNITÁRIA ÁREA 42 00 HORTA COMUNITÁRIA ÁREA 21 15 ÁREA PERMEÁVEL ÁREA 15 00 ÁREA PERMEÁVEL ÁREA 22 85 COZINHA COPA ÁREA 50 00 REFEITÓRIO ÁREA DE CONVIVÍO E INTERAÇÃO ÁREA 55 00 Elevador social CONSULTÓRIO DE SAÚDE PSICOLÓGICA ÁREA 25 00 PD 50 CONSULTÓRIO DE SAÚDE FÍSICA ÁREA 38 65 PD 50 NÚCLEO ADM ÁREA 42 00m PD 50 NÚCLEO ADM ÁREA 42 00 PD 50 BIBLIOTECA COMUNITÁRIA ÁREA 90 22 60 6 00 00 acessibilidade WC MASC VESTIÁRIO ÁREA PD 55 ESTACIONAMENTO ÁREA 38 65m ESTACIONAMENTO MOTO ÁREA 38 65 RUA GONÇALVES DIAS RUA CEL LUÍZ DA CUNHA WC FEM WC MASC SOBE BIBLIOTECA COMUNITÁRIA ÁREA 90 rampa de acessibilidade 8 33 % rampa de acessibilidade 8 33% CANIL 30 WC FEM./ VESTIÁRIO ÁREA PD WC FEM VESTIÁRIO ÁREA 42 DORMITÓRIO 02 ÁREA 50 PD m 6 00 25 PLANTA PÁVIMENTO TÉRREO ESC:. 1:200

perfil natural do terreno perfil natural do terreno

perfil natural do terreno

105
RUA RODRIGO ALVES
3,50 6,50 3,20 4,50 0,48 4,50 0,48 3,00 guarda corpo em vidro H 1 20m guarda corpo em vidro H 1 20m guarda corpo em vidro H 20m +2,83 +2,10 +3,09 RUA GONÇALVES DIAS
refeitório cobertura caixa d água caixa d água caixa d água caixa água vestiário w vestiário triagem núcleo de acolhimento dormitório 4 dormitório dormitório vestiário w vestiário dormitório 2
4,50 4,50 guarda corpo em vidro H 1 20m rampa de acessibilidade 8 33% rampa de acessibilidade 8 33% RUA CEL LUÍZ DA CUNHA cobertura verde núcleo adm núcleo adm núcleo adm núcleo saúde núcleo saúde REFEITÓRIO ÁREA DE CONVIVÍO E INTERAÇÃO núcleo adm
3,50
12,78 perfil natural do terreno cobertura verde
elevador cadeirante 60 perfil natural do terreno perfil natural do terreno cobertura verde
+3,09 RUA GONÇALVES DIAS RUA RODRIGO ALVES refeitório cobertura caixa d água caixa água caixa água caixa d água w c vestiário w vestiário triagem núcleo de acolhimento dormitório 0 dormitório 0 dormitório 0 w c vestiário w vestiário dormitório 2 perfil perfil
terreno 4,50 4,50 guarda corpo em vidro H 1 20m rampa de acessibilidade =8 33% rampa de acessibilidade =8 33% RUA CEL LUÍZ DA CUNHA cobertura verde núcleo adm núcleo adm núcleo adm núcleo saúde núcleo saúde REFEITÓRIO ÁREA DE CONVIVÍO INTERAÇÃO núcleo adm perfil
0,50 6,53 12,78 cobertura verde 4,50
CORTE BB
- Planta pávimento térreo e Cortes
0,50 6,53
4,50 4,50
CORTE AA CORTE BB 3,50 6,50 3,20 4,50 0,48 4,50 0,48 3,00 guarda corpo em vidro H 1 20m guarda corpo em vidro H 1 20m guarda corpo em vidro H 20m +2,83 +2,10
natural do
natural do terreno
CORTE AA
Figura 33
106 BB BB AA AA CC CC 1,20 7,30 6,33 3,72 7,05 1,50 7,00 1,50 1,00 chaft E W C PCD ÁREA W PCD ÁREA 80 DD DD 1,00 Guarda Corpo em vidro Guarda Corpo em vidro Ombrelone com base B rise B rise B rise Guarda Corpo H 1 20 B rise B rise Guarda Corpo em vidro DESCE MEZANINO ÁREA 26 25 PD 75 DORMITÓRIO 0 ÁREA 63 50 PD m NÚCLEO ADM ÁREA 38 65 PD 50 projeção do beiral projeção do beiral SALA DE AULA INFORMÁTICA ÁREA 50 m PD 50m VAZIO WC MASC VESTIÁRIO ÁREA PD 51 WC FEM VESTIÁRIO ÁREA 42 WC NÚCLEO ADM ÁREA 42 00m PD 50 NÚCLEO ADM ÁREA 42 00 PD 50 DESCE HALL DE ENTRADA E ACESSO AO DORMITÓRIO ÁREA 16 25 PD 50 DORMITÓRIO 0 ÁREA 42 00 PD 50m WC MASC VESTIÁRIO ÁREA PD WC FEM VESTIÁRIO ÁREA PD ROUPEIRO ÁREA 18 10 PD 50 DESCE CONSULTÓRIO DE SAÚDE PSICOLÓGICA ÁREA 25 00 PD 50m BEIRAL BEIRAL GSEducationalVersion BB AA CC CC 6,33 3,72 7,05 1,50 7,00 1,50 1,00 chaft W C PCD ÁREA W PCD ÁREA DD DD 1,00 Guarda Corpo H 1 20 Guarda Corpo H 1 20 Tamanho 5 3 5 rise Corpo vidro H 1 20 Guarda Corpo H 1 20 DORMITÓRIO ÁREA 63 50 PD 50 NÚCLEO ADM ÁREA 38 65m PD 50 projeção do beiral projeção do beiral SALA DE AULA INFORMÁTICA ÁREA 50 00 PD 50m MEZANINO VAZIO WC MASC VESTIÁRIO ÁREA m PD 51 SOBE WC FEM./ VESTIÁRIO ÁREA 42 PD NÚCLEO ADM ÁREA 42 00 PD 50 NÚCLEO ADM ÁREA 42 00 PD 50 HALL DE ENTRADA E ACESSO AO DORMITÓRIO ÁREA 16 25 PD 50 DORMITÓRIO 0 ÁREA 42 00 PD 50 WC MASC VESTIÁRIO ÁREA 12 WC FEM VESTIÁRIO ÁREA 12 ROUPEIRO ÁREA 18 10m PD 50 DESCE CONSULTÓRIO DE SAÚDE PSICOLÓGICA ÁREA 25 00 PD 50 BEIRAL BEIRAL PLANTA PÁVIMENTO SUPERIOR ESC:. 1:200

perfil natural do terreno

Núcleo educacional • Pávimento térreo: Espaço para atividades fléxiveis, como biblioteca, espaço para atendimento ou triagem.

• Primeiro pavimento: Espaço para atividades fléxiveis e sala de informática.

• Segundo pavimento: Espaço para atividades fléxiveis e sala de estudo.

Núcleo Acolhimento

CORTE CC CORTE DD

• Pavimento térreo: Triagem, banheiros e quartos • Primeiro pávimento: banheiros e quartos. Núcleo Psicosaúde

• Pávimento Térreo: sala externa e interna de atendi mento físíco e psicológico

• Primeiro pávimento: sala de triagem

Núcleo Administrativo

• Pávimento Térreo: Salas e banheiros • Primeiro pávimento: salas e banheiros

Lavanderia comunitária

CORTE DD

Figura 34 - Planta pávimento superior e Cortes

Galpão reciclágem e canil Pátio central

107 3,50 0,50 6,53 12,78 perfil natural do terreno perfil natural do terreno cobertura verde 4,50 4,50 elevador cadeirante 1 60m perfil natural do terreno perfil natural do terreno Consultório de psicologia Consultório de psicologia ADM cobertura verde CORTE BB
guarda corpo em vidro H: 1,20m rampa de acessibilidade =8,33% rampa de acessibilidade =8 33% REFEITÓRIO ÁREA DE CONVIVÍO E INTERAÇÃO
4,50 4,50 elevador cadeirante H 60m perfil natural do terreno perfil natural do terreno Consultório de psicologia Consultório de psicologia ADM cobertura verde
108 BB BB AA AA CC CC DD DD H 0 70 H 0 70 Platibanda Platibanda H 70 m COBERTURA IMPERMEABILIZADA CAIXA D ÁGUA CAIXA D ÁGUA COBERTURA VERDE COBERTURA VERDE COBERTURA VERDE CAIXA D ÁGUA COBERTURA IMPERMEABILIZADA CAIXA D ÁGUA GSEducationalVersion BB AA CC CC DD DD H 0 70 H 0 70 Platibanda Platibanda H 0 70 m COBERTURA IMPERMEABILIZADA CAIXA D ÁGUA CAIXA D ÁGUA COBERTURA VERDE COBERTURA VERDE COBERTURA VERDE CAIXA D ÁGUA COBERTURA IMPERMEABILIZADA CAIXA D ÁGUA PLANTA COBERTURA ESC:. 1:200

CORTE AA

CORTE BB

109
Figura 35 - Cobertura e Cortes 3D.

IMAGENS INTERNAS - NÚCLEO EDUCACIONAL PÁVIMENTO

TÉRREO

110
111

IMAGENS EXTERNA - LAVANDERIA COMUNITÁRIA E PÁTIO CENTRAL

114
115
116
117
118
119
120
121
122
123

Quadro de áreas

Área total do terreno: 2.733,95 m².

Centro de Apoio e Reintegração a População em situação de rua no Munícipio de Ribeirão Preto/SP.

126
127

REFERÊNCIAS BIBLIOGRÁFICAS

FONTES, MARCELO. ACidadeON/Ribeirão Preto, 29 jul. 2018. Disponível em: https://g1.globo.com/sp/ ribeirao-preto-franca/noticia/2021/07/29/ribeira o-preto-acolhe-161moradores-em-situacao-de-rua -apos-temperatura-despencar.ghtml. Acesso em: 16 março 2022. FRANCA, G1 Ribeirão Preto, 29 jul. 2021. Disponível em: https://g1.globo.com/sp/ribei rao-preto-franca/noticia/2021/07/29/ribeirao -preto-acolhe-161moradores-em-situacao-de-rua -apos-temperatura-despencar.ghtml. Acesso em: 18 março 2022.

KEBBE, Regina Célia Fiorati, Joab Jefferson da Silva Xavier, Beatriz Cardoso Lobato, Regina Yoneko Dakusaku Carretta, Leonardo Martins. Iniquidade e ex clusão social: estudo com pessoas em situação de rua em Ribeirão Preto/SP.Dianet, Revista Eletrônica Ges tão e Saúde: Dialnet, ed. Extra 3, ano 2015, n. ISSN-e 1982-4785, p. 2120-2135.

OLIVEIRA, Maria do Rosário de Lima. A rua como espaço para morar: observações sobre a apropriação dos espaços públicos pelos moradores de rua da cida de de João Pessoa- PB. Orientador: Prof. Dr. Maria de Fátima Melo do Nascimento.2011. Dissertação (Mes trado) - Curso de Serviço Social, Universidade Federal da Paraíba, repertorio.ufpb,2011.

QUINTÃO, P. R. Morar na rua: Há projeto possí vel? Orientador: Prof. Dr. Carlos Roberto Zibel Costa. 2012. Dissertação (Mestrado) - Curso de Arquitetura, Faculdade de arquitetura e urbanismo da Universida de de São Paulo, pdf.blucher, 2012.

SILVA, Neuza Ferreira da; e HACK, Neiva Silvana. População em situação de rua e a questão da moradia Orientador: Tese Porto Alegre. 2021.

128
129

Turn static files into dynamic content formats.

Create a flipbook
Issuu converts static files into: digital portfolios, online yearbooks, online catalogs, digital photo albums and more. Sign up and create your flipbook.