90 Cannon

Page 1

DANIEL PELLEGRINO Executive Vice President +1 850 728.1050 daniel.pellegrino@bridge-commercial.com MCKENZIE DEUTSCH Associate +1 540 287 4914 mckenzie.deutsch@bridge-commercial.com 1,392 SF WITH ADDITIONAL 600 SF OF PATIO SPACE 90 CANNON ST CHARLESTON, SOUTH CAROLINA RETAIL/RESTAURANT FOR LEASE | SPRING 24’ EST. DELIVERY

THE OPPORTUNITY

90 CANNON STREET BEFORE EXISTING BUILDING AFTER PROPOSED BUILDING

Bridge Commercial is pleased to present 90 Cannon Street for Lease. Located in the Cannon borough Neighborhood this is a great opportunity for retail or restaurant users. The space offers 1,392 SF of renovated interior space with an additional 600 SF of patio space. The delivery condition is a dark box with allocated TIA. Landlords are willing to work with approved quality tenants on delivery condition. For more on the opportunity, contact listing agents.

CANNON ST

WEST ASHLEY JAMES ISLAND BRIDGE-COMMERCIAL.COM 17 Atlantic Ocean Ashley River Cooper River 17 HAMPTON PARK EAST BAY ST MEETING ST KING ST CALHOUN ST 1 MILE CHARLESTON AQUARIUM RUTLEDGE AVE ASHLEY AVE HAGOOD AVE LINEST SPRINGST CANNONST BROAD ST LOCKWOOD 30 WATERFRONT PARK WHITE POINT GARDENS THE CITADEL BRITTLEBANK PARK CHARLESTON MARINA NOMO MIDTOWN MEDICAL DISTRICT COFC FOLLY RD MARION SQUARE COUNTRY CLUB PORTER GAUD WESTEDGE THE CITY MARKET CONCORD PARK RIVERDOGS STADIUM KING SHOPPINGSTREET DISTRICT LAUREL ISLAND
90

PROPOSED

RETAIL/RESTAURANT FOR LEASE

1,392 SF WITH ADDITIONAL 600 SF OF PATIO SPACE

PROPOSED REAR EXIT TO PATIO SPACE

EXISTING
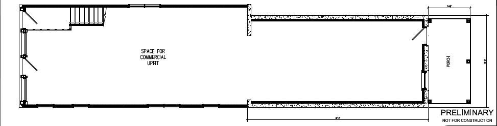
FLOOR PLAN

THE SPACE -

• 1,392 SF

• 600 SF Patio

THE LOCATION -

• Central Location to other Retailers, Short Term Rentals, and Residential Units.

• Easy Access to Highway 17

THE RENOVATIONS -

• Opportunity to work with developers for a semi turn-key solution

• Estimated Delivery Spring 2023’

THE HIGHLIGHTS

UNPARALELLED ACCESS SUPERIOR NEIGHBORHOOD ABUNDANCE

ASHLEY AVE SPRING ST CANNON ST CALHOUN ST KING ST ST PHILLIP ST RUTLEDGE AVE MARION SQUARE 90 CANNON ST HIGHWAY 17
ST COMING ST MUSC
MEETING
OF
AMENITIES
IDEAL MARKET
BRIDGE COMMERCIAL 25 Calhoun Street, Suite 220 Charleston, SC 29401 +1 843 535 8600 www.bridge-commercial.com 90 CANNON ST CHARLESTON, SOUTH CAROLINA DANIEL PELLEGRINO Executive Vice President +1 850 728.1050 daniel.pellegrino@bridge-commercial.com MCKENZIE DEUTSCH Associate +1 540 287 4914 mckenzie.deutsch@bridge-commercial.com

Turn static files into dynamic content formats.

Create a flipbook
Issuu converts static files into: digital portfolios, online yearbooks, online catalogs, digital photo albums and more. Sign up and create your flipbook.